Скачать Типовой проект 181-25-10/1.2 Альбом I. Часть 1. Архитектурно-строительные чертежиДата актуализации: 01.01.2021
|
| Обозначение: | Типовой проект 181-25-10/1.2 |
| Обозначение англ: | 181-25-10/1.2 |
| Статус: | не определен законодательством |
| Название рус.: | Альбом I. Часть 1. Архитектурно-строительные чертежи |
| Дата добавления в базу: | 01.09.2013 |
| Дата актуализации: | 01.01.2021 |
| Дата введения: | 28.10.1982 |
| Дата окончания срока действия: | 30.06.2003 |
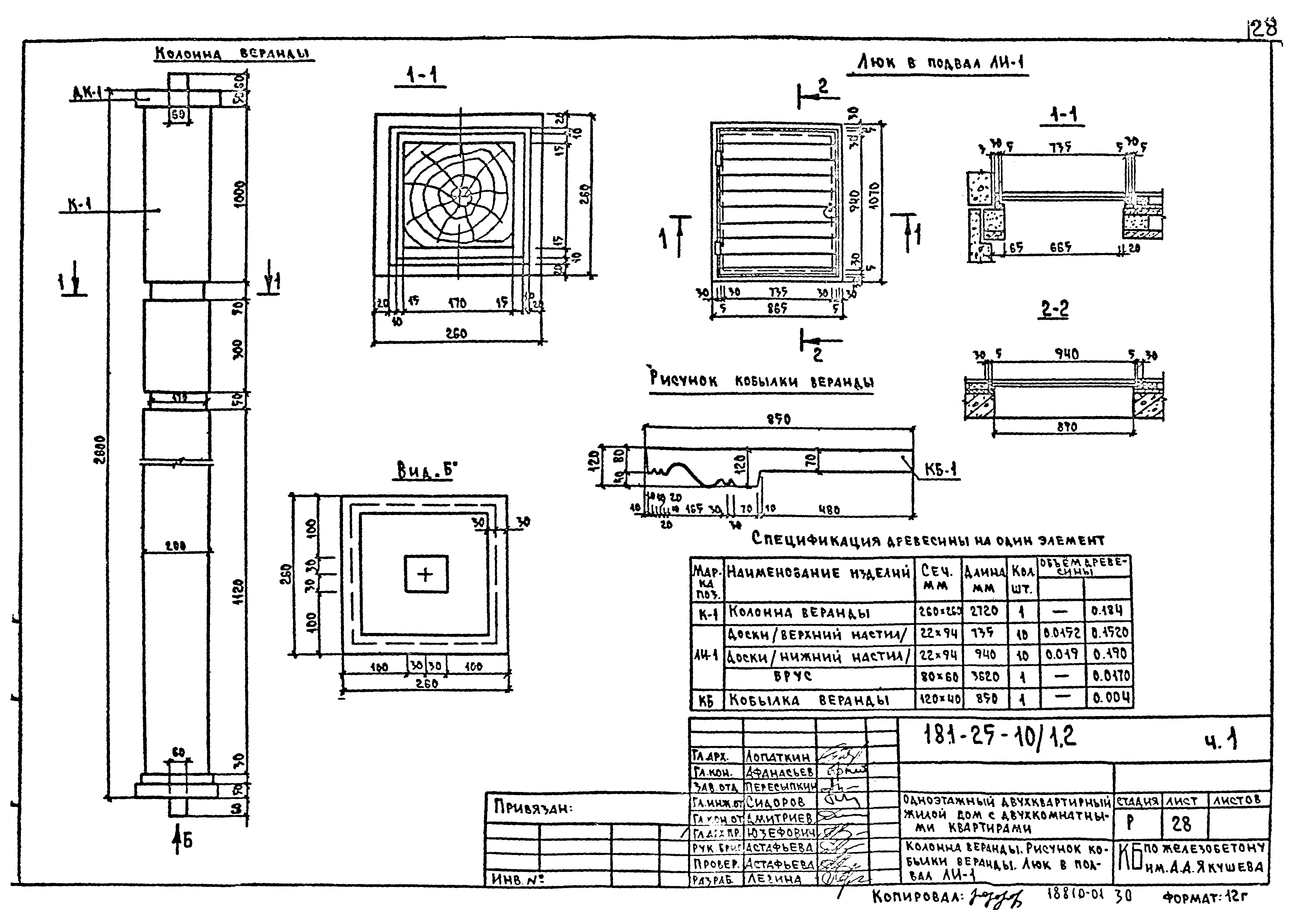
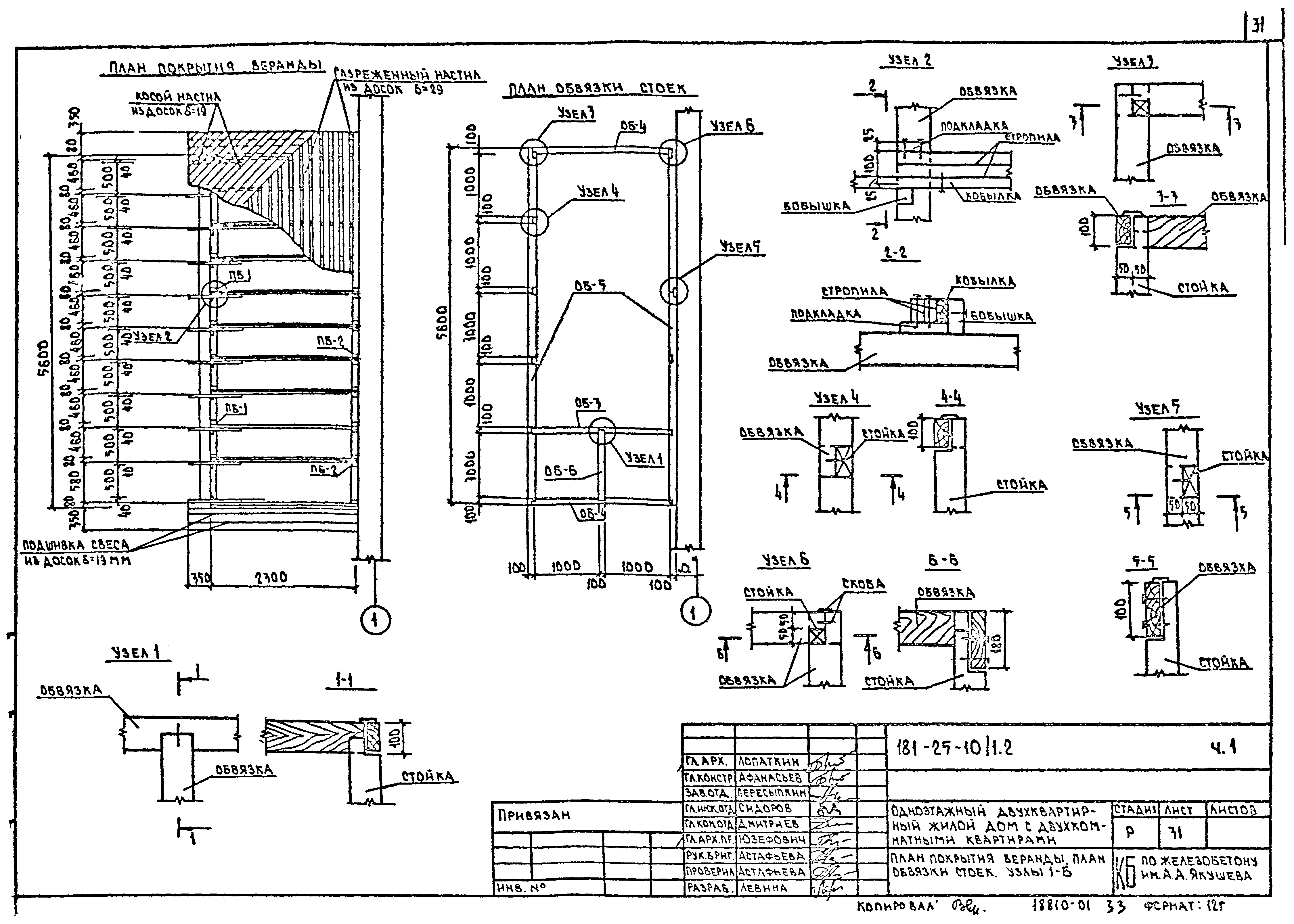
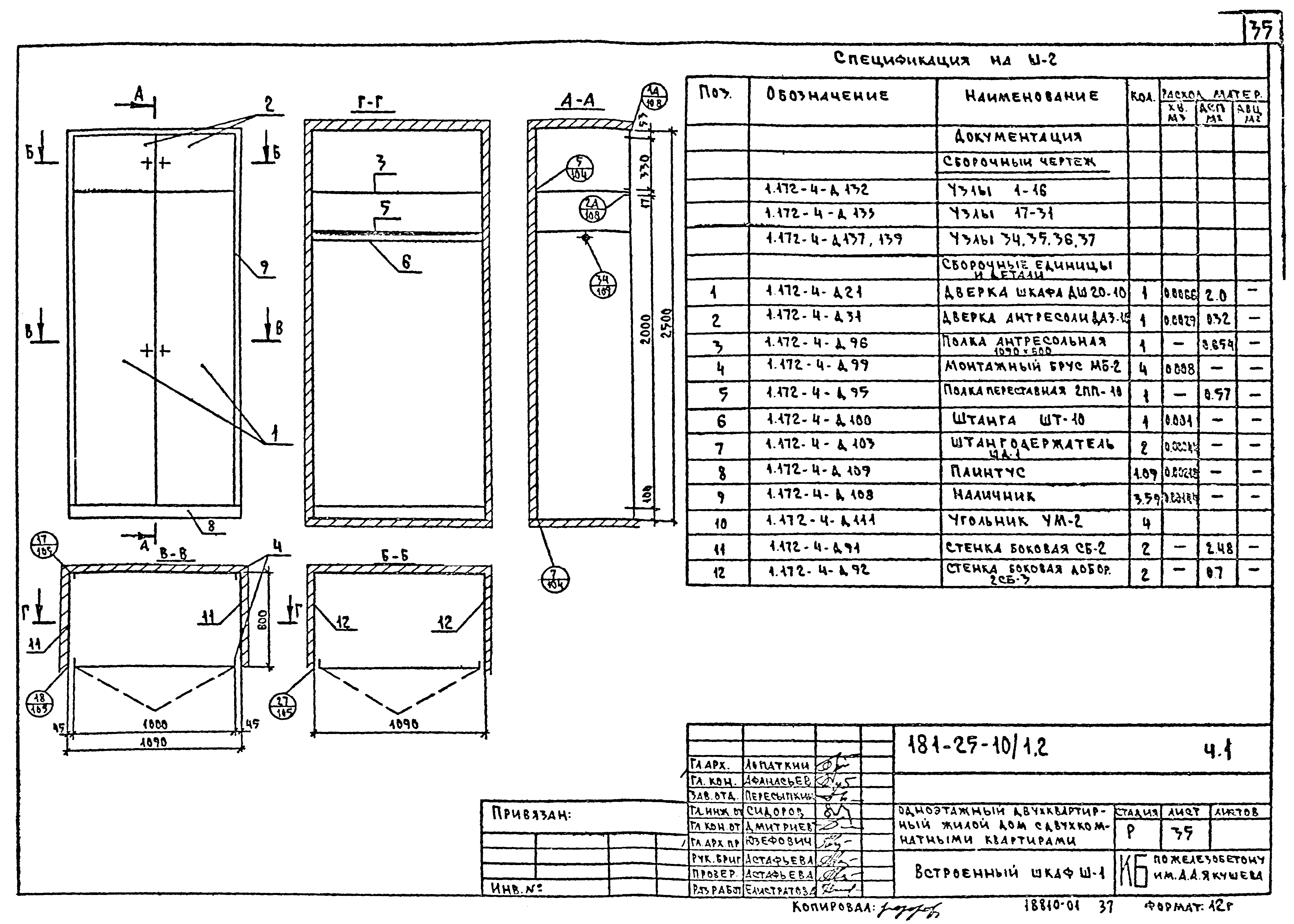
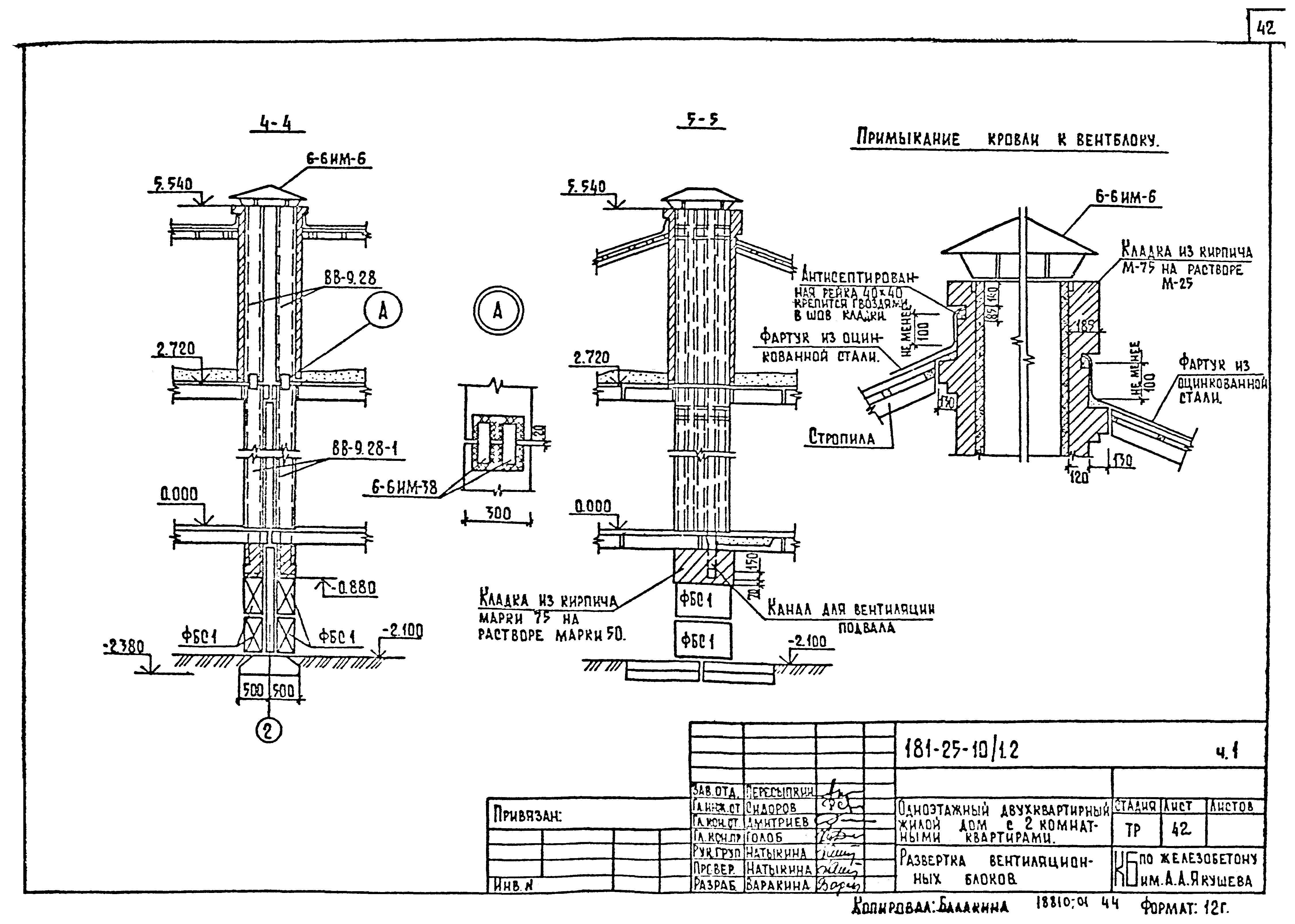
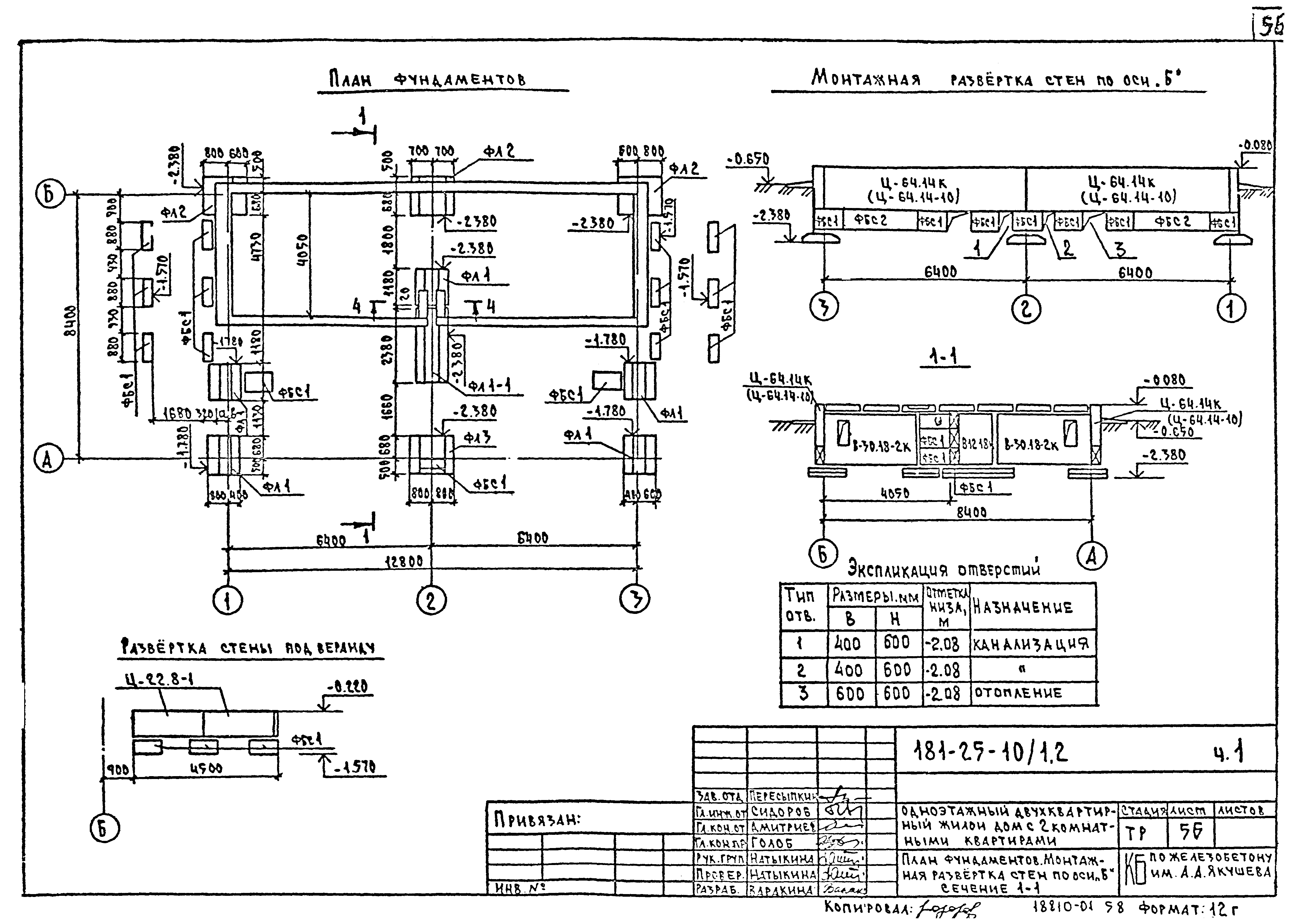
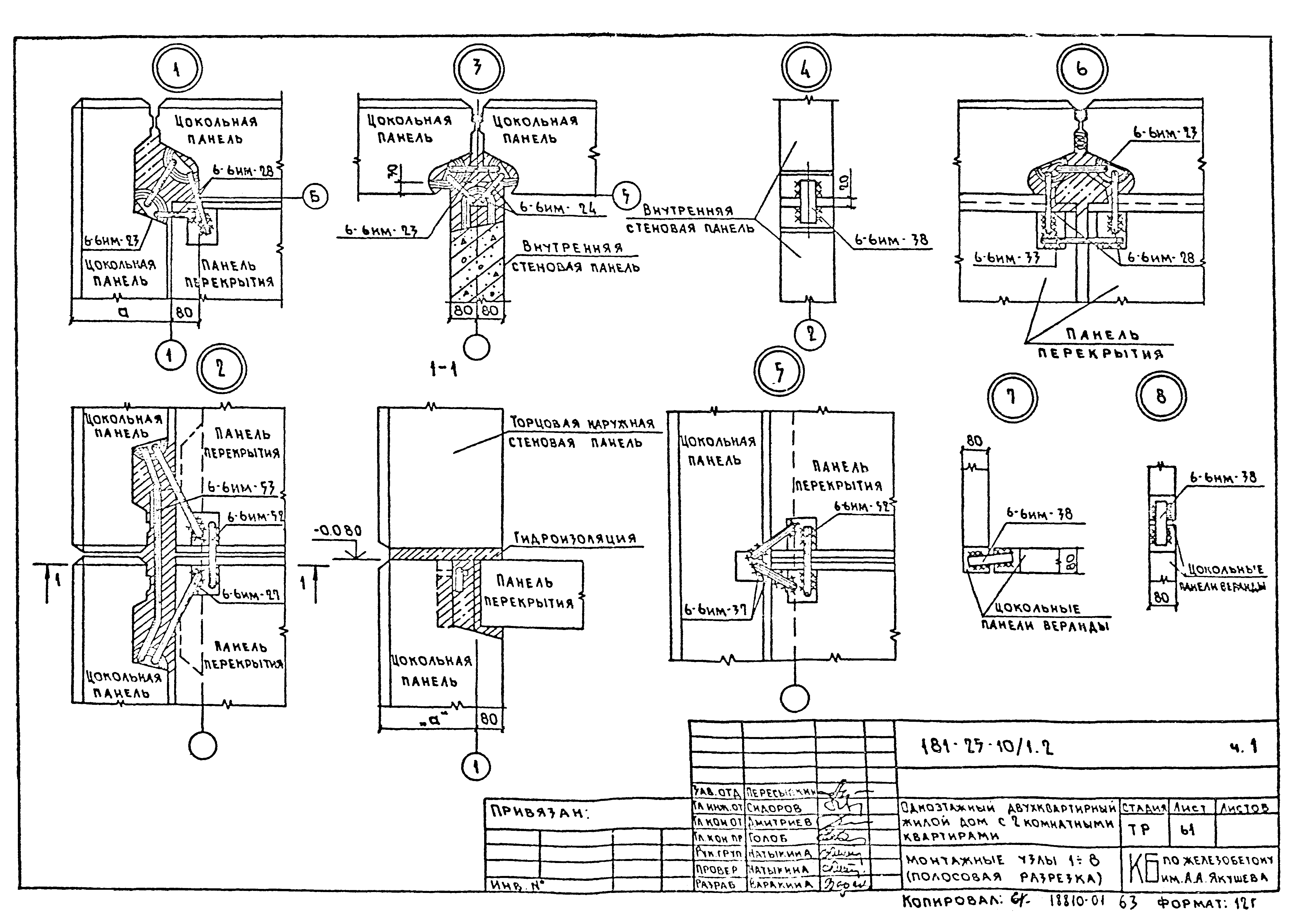
| Оглавление: | Общие данные Фасады 1 - 3; А - Б; 3 - 1 (гипсоцементные наличники) (вариант 1) Фасады 1 - 3; А - Б; 3 - 1 (для вариантов расстановки сантехнического оборудования) Фасады 1 - 3; А - Б; 3 - 1 (вариант однорядной разрезки наружных стен) Фасады к вариантам расстановки сантехнического оборудования при однорядной разрезке стен Фасады 1 - 3; А - Б; 3 - 1 (гипсоцементные наличники) (вариант 2) Фасады 1 - 3; А - Б; 3 - 1 (деревянные ставни вариант 3) План в осях 1 - 3 (основное решение) План в осях 1 - 3. Санузлы из объемных элементов План в осях 1 - 3 для расстановки сантехнического оборудования План в осях 1 - 3 для отделочных работ План в осях 1 - 3 для отделочных работ для расстановки сантехнического оборудования Фрагменты планов санитарно-кухонных блоков с вариантами инженерного оборудования (варианты 1А, 1Б, 1В, 2) Фрагменты планов санитарно-кухонных блоков с вариантами инженерного оборудования (варианты 3А, 3Б, 3В) Разрез 1-1 Монтажный план стен (полосовая разрезка). Фрагмент плана с объемными санкабинами Монтажный план стен однорядной разрезки. Монтажные планы перекрытия на отм. 2.720 Монтажные схемы фасадов в осях "А", "Б", "1", "3". Узел 1 Монтажные схемы фасадов в осях "А", "Б", "1", "3". Узел 2 Монтажный план стен для вариантов оборудования. Монтажная схема фасадов по оси "Б" План в осях 1 - 3 с расстановкой оборудования Наличники на окна (вариант 1) Наличники на окна (вариант 2, 3) Колонна веранды, рисунок кобылки веранды, люк в подвал ЛИ-1 План веранды. Вид А. Вид Б. Узлы План балок пола веранды. Разрезы 1-1, 2-2. Узлы А, Б План покрытия веранды. План обвязки стоек. Узлы 1 - 6 План крыльца. Разрезы 1-1, 2-2. Узлы План тамбура. Вид А. Разрез 1-1. Узлы Дверь ДН-1. Окна ОВ-1, ОВ-2. Узлы 1-8 Встроенный шкаф Ш-1 Элементы конструкций веранды. Спецификация элементов окон ОВ-1, ОВ-2 и двери ДН-1 на одну веранду План стропил. Сечения 1-1, 2-2 План кровли. Узлы 1 - 6. Крепление мауэрлата к наружной стене Подстропильная ферма Ф-1 Узлы крепления кровли для однорядной разрезки стен. Фрагмент плана чердака. Узлы 14, А Спецификация древесины на подстропильную ферму Ф-1 и на крышу Развертка вентиляционных блоков План вытяжной шахты (варианты оборудования). Металлический зонт Спецификация железобетонных изделий выше отм. 0.000 Спецификация железобетонных и бетонных изделий выше отм. 0.000 Спецификация железобетонных и металлических изделий выше отм. 0.000 Спецификация столярных изделий Сводная спецификация древесины Варианты фасадов, конструктивных решений и инженерного оборудования Ведомость отделки помещений. Ведомость отделки фасадов Объемно-планировочные и эксплуатационные показатели Общие указания ниже отм. 0.000 План фундаментов. Монтажная развертка стен по оси "Б". Сечение 1-1 План подвала. Развертка стен по оси "1". Сечения 2-2, 3-3 Монтажный план перекрытия на отм. 0.000 шириной 1.2 и 2.4 м Спецификация железобетонных, бетонных изделий ниже отм. 0.000 Спецификация железобетонных металлических элементов ниже отм. 0.000 Монтажные узлы 1 - 8 (полосовая разрезка) Монтажные узлы 1 - 5 (однорядная разрезка) Стремянка в подвал |
| Разработан: | КБ по железобетону им. А.А. Якушева |
| Утверждён: | 28.10.1982 КБ по железобетону им. А.А. Якушева (186) |
















































