Скачать Типовой проект 186-115-151.86 Альбом I. Архитектурно-строительный, сантехнический и электротехнический комплектыДата актуализации: 01.01.2021
|
| Обозначение: | Типовой проект 186-115-151.86 |
| Обозначение англ: | 186-115-151.86 |
| Статус: | не определен законодательством |
| Название рус.: | Альбом I. Архитектурно-строительный, сантехнический и электротехнический комплекты |
| Дата добавления в базу: | 01.09.2013 |
| Дата актуализации: | 01.01.2021 |
| Дата введения: | 30.07.1985 |
| Дата окончания срока действия: | 30.06.2003 |
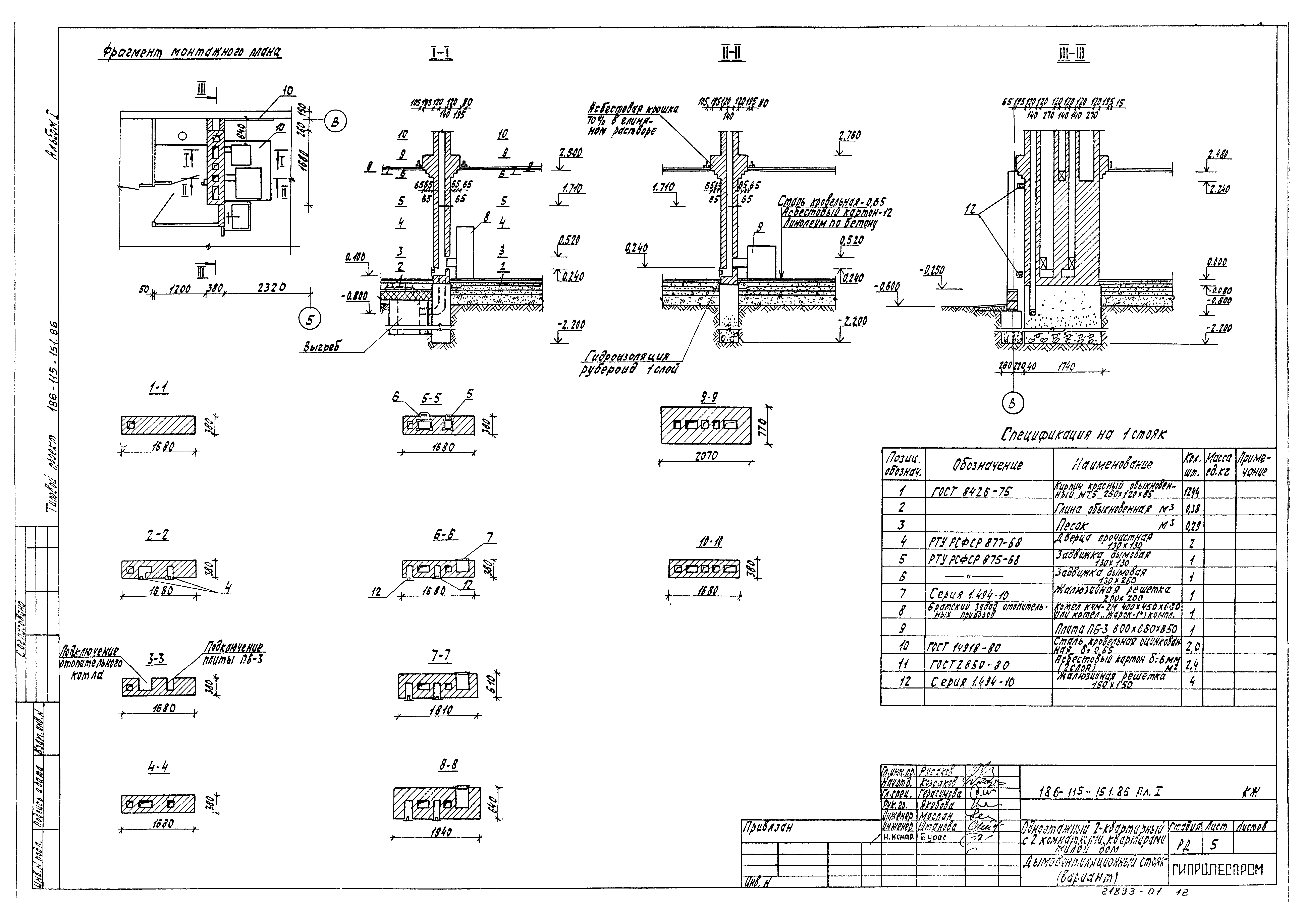
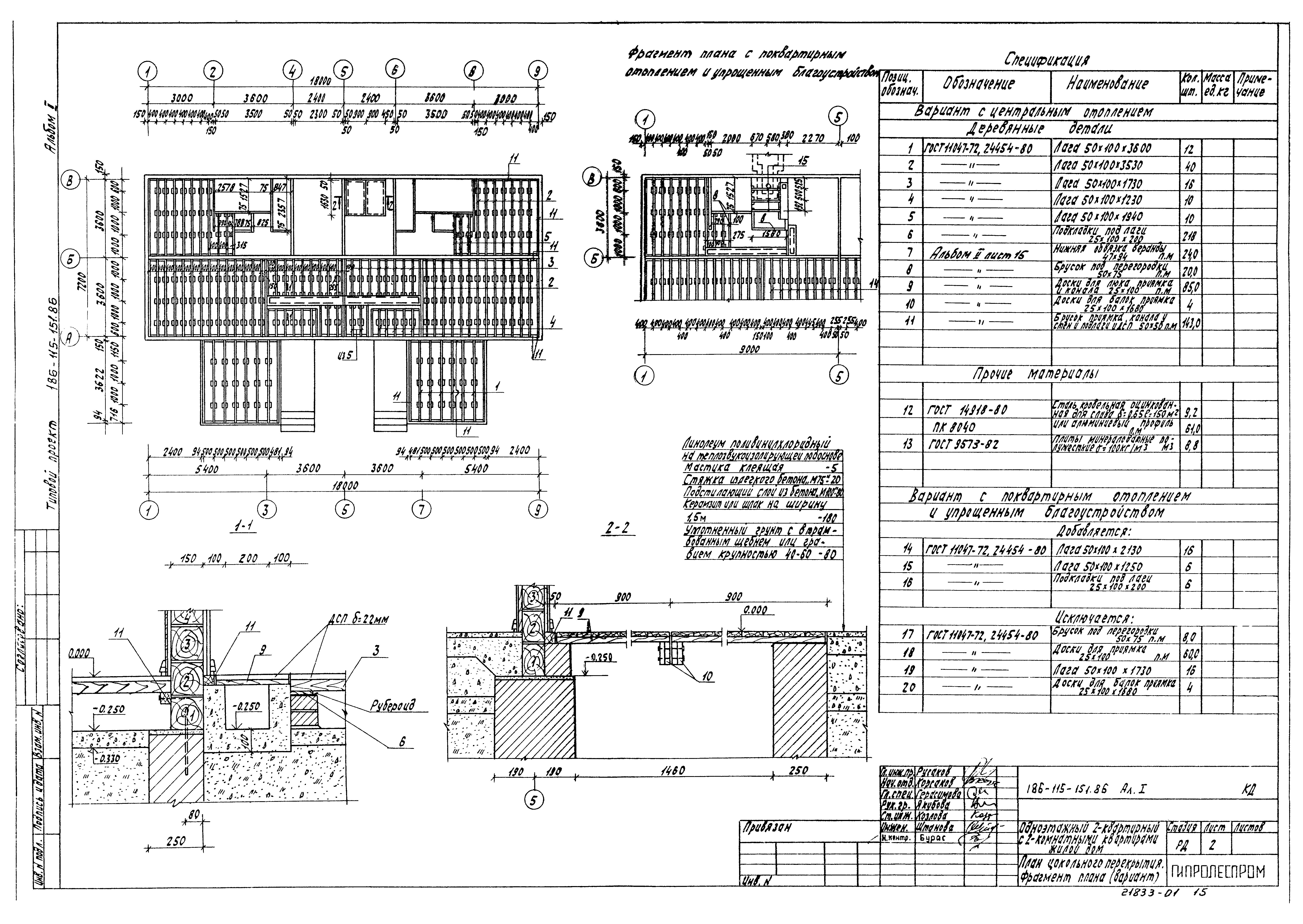
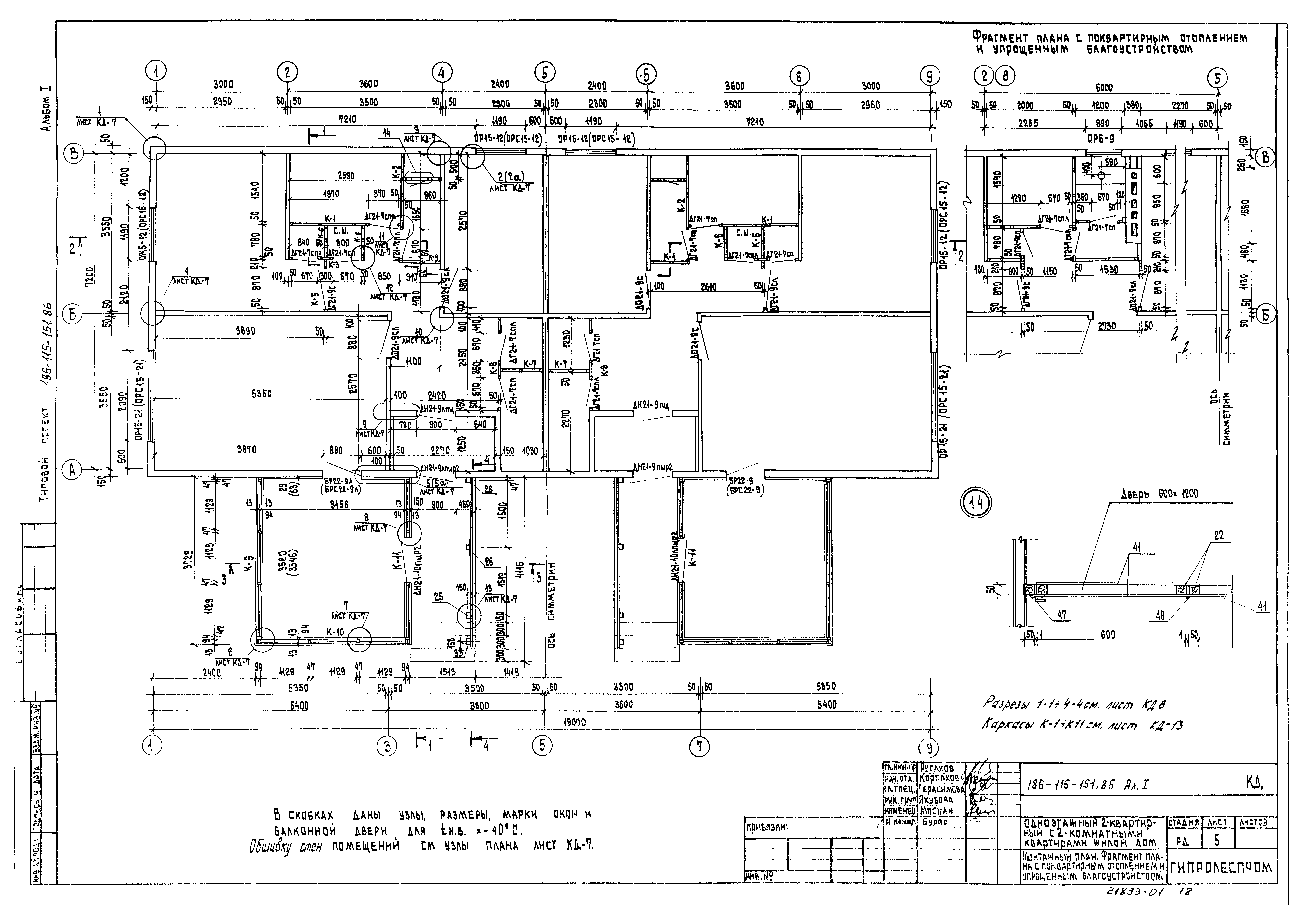
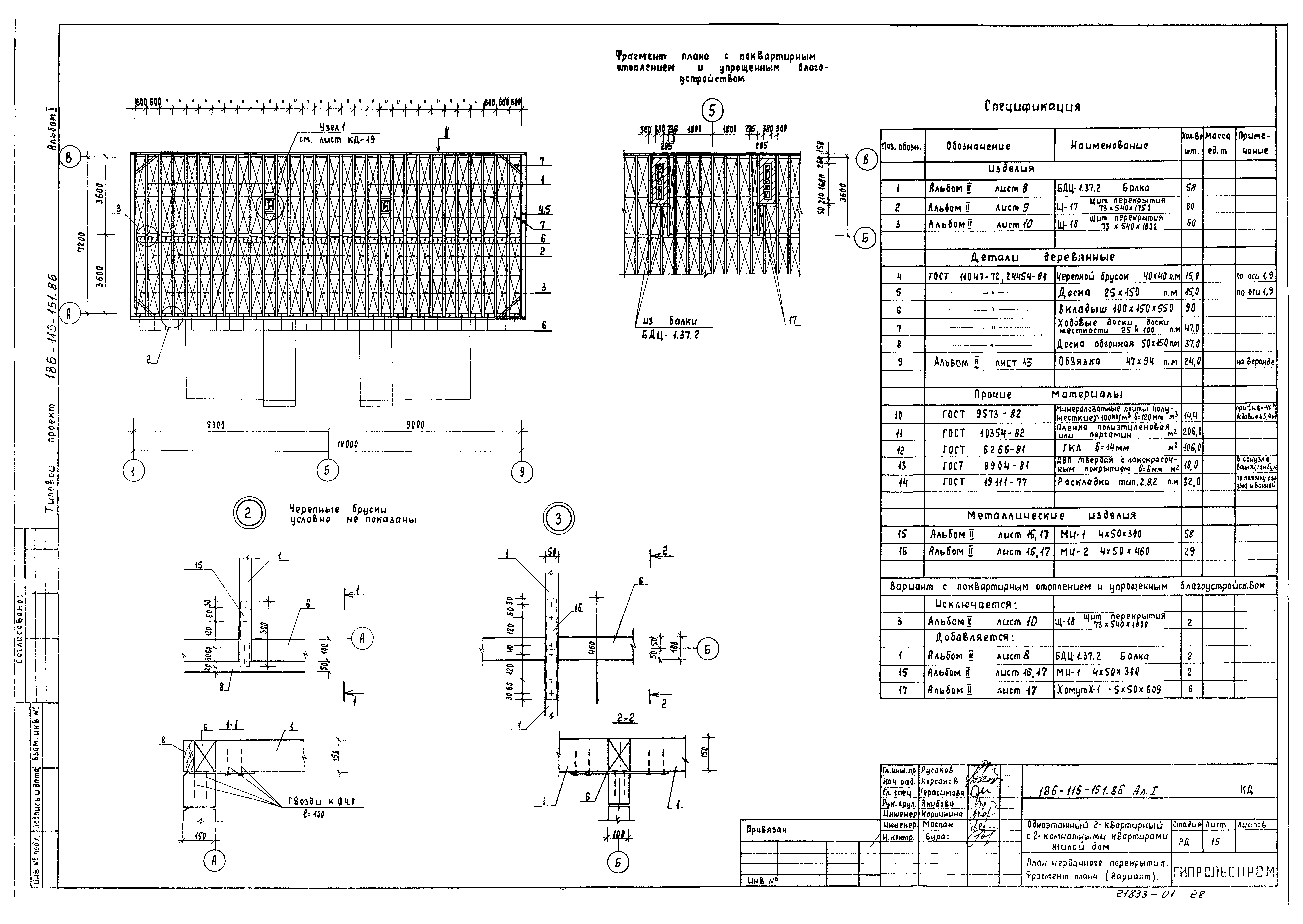
| Оглавление: | Содержание альбома Основной комплект АР Общие данные Фасады в осях 1 - 9; 9 - 1; А - В; В - А План с расстановкой мебели Архитектурные элементы. Разрез 1-1 Основной комплект КЖ Общие данные. Пояснительная записка План фундаментов. Сечения. Фрагмент плана (вариант) План фундаментов. Сечения (вариант мелкозаглубленных фундаментов) Развертки стен фундаментов Дымовентиляционный стояк (вариант) Выгреб (вариант) Основной комплект КД Общие данные. Пояснительная записка План цокольного перекрытия. Фрагмент плана (вариант) План цокольного перекрытия по балкам (вариант) План полов. Фрагмент плана (вариант) Монтажный план. Фрагмент плана с поквартирным отоплением и упрощенным благоустройством Спецификация к монтажному плану Узлы плана Разрезы. Узлы разрезов (для tнв = минус 30 градусов Цельсия) Узлы разрезов (для tнв = минус 30 градусов Цельсия) Узлы разрезов (вариант для tнв = минус 40 градусов Цельсия) Развертки наружных стен Развертки внутренних стен Каркасы стен веранды и перегородок. Узлы Сушильный шкаф План чердачного перекрытия. Фрагмент плана (вариант) План стропил Стропила пролетом 7,2 м К3 План кровли. Раскладка асбестоцементных волнистых листов Вытяжная шахта В6-1. Фрагмент плана чердачного перекрытия Слуховое окно Ф8 Сводная спецификация Основной комплект ОВ Общие данные Отопление и вентиляция. Планы Схема трубопроводов отопления Отопление и вентиляция. План (вариант поквартирного отопления) Схема трубопроводов отопления (вариант поквартирного отопления) Основной комплект ВК Общие данные Планы сетей В1, Т3 и К1 Схемы сетей В1, Т3 и К1 Основной комплект ЭО Общие данные План электросети Основной комплект СС Сети связи. Общие данные. Скелетные схемы План сетей связи |
| Разработан: | Гипролеспром Минлесбумпрома СССР |
| Утверждён: | 21.12.1984 Госгражданстрой (Gosgrazhdanstroy 394) |

















































