Скачать Типовой проект 416-7-228с.85 Альбом I. Пояснительная записка. Архитектурно-строительные решения. Конструкции железобетонные. Конструкции металлические. Технология производства. Электрооборудование и электроосвещение. Связь и сигнализацияДата актуализации: 01.01.2021
|
| Обозначение: | Типовой проект 416-7-228с.85 |
| Обозначение англ: | 416-7-228с.85 |
| Статус: | действует |
| Название рус.: | Альбом I. Пояснительная записка. Архитектурно-строительные решения. Конструкции железобетонные. Конструкции металлические. Технология производства. Электрооборудование и электроосвещение. Связь и сигнализация |
| Дата добавления в базу: | 01.09.2013 |
| Дата актуализации: | 01.01.2021 |
| Дата введения: | 12.09.1985 |
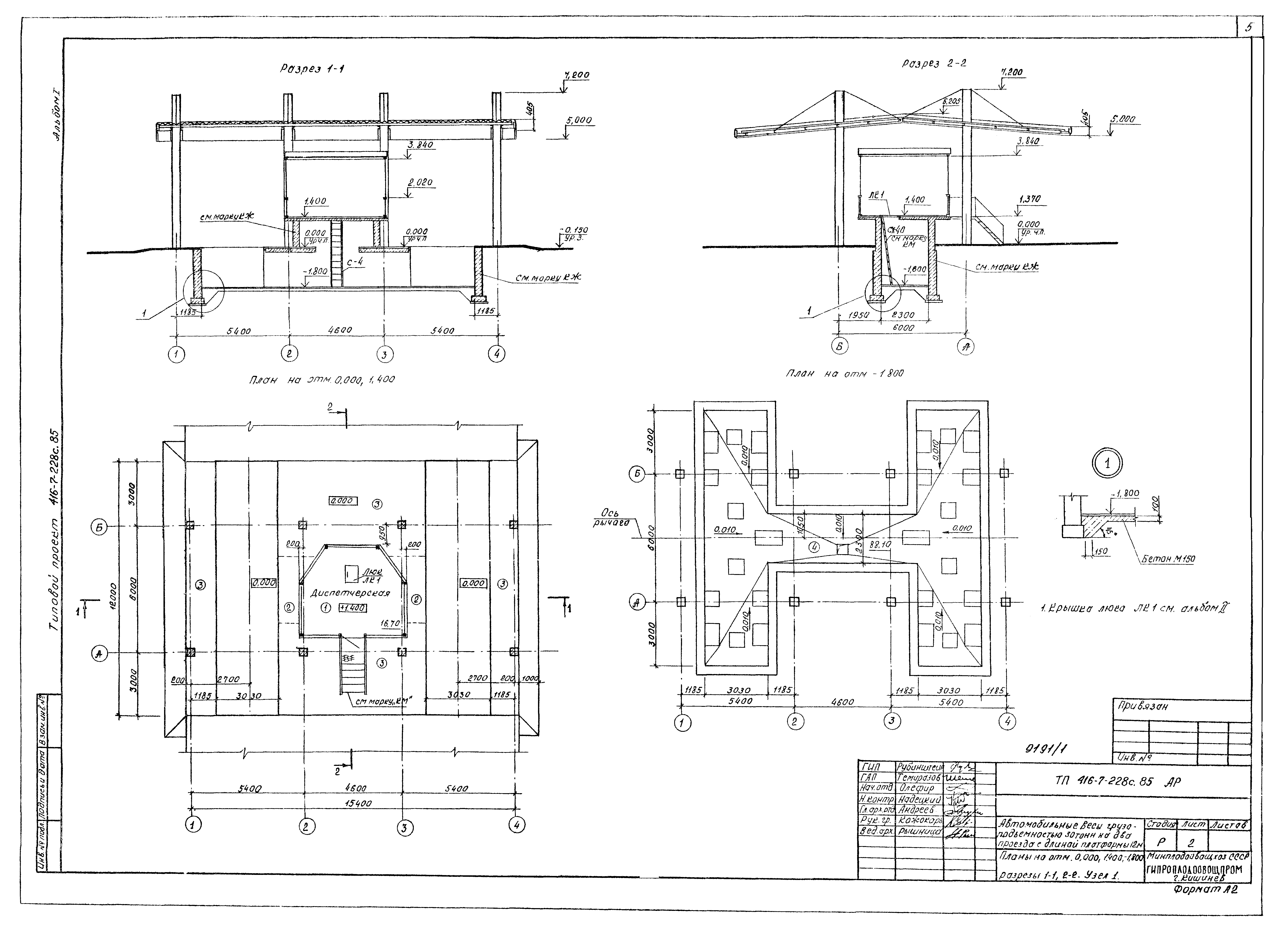
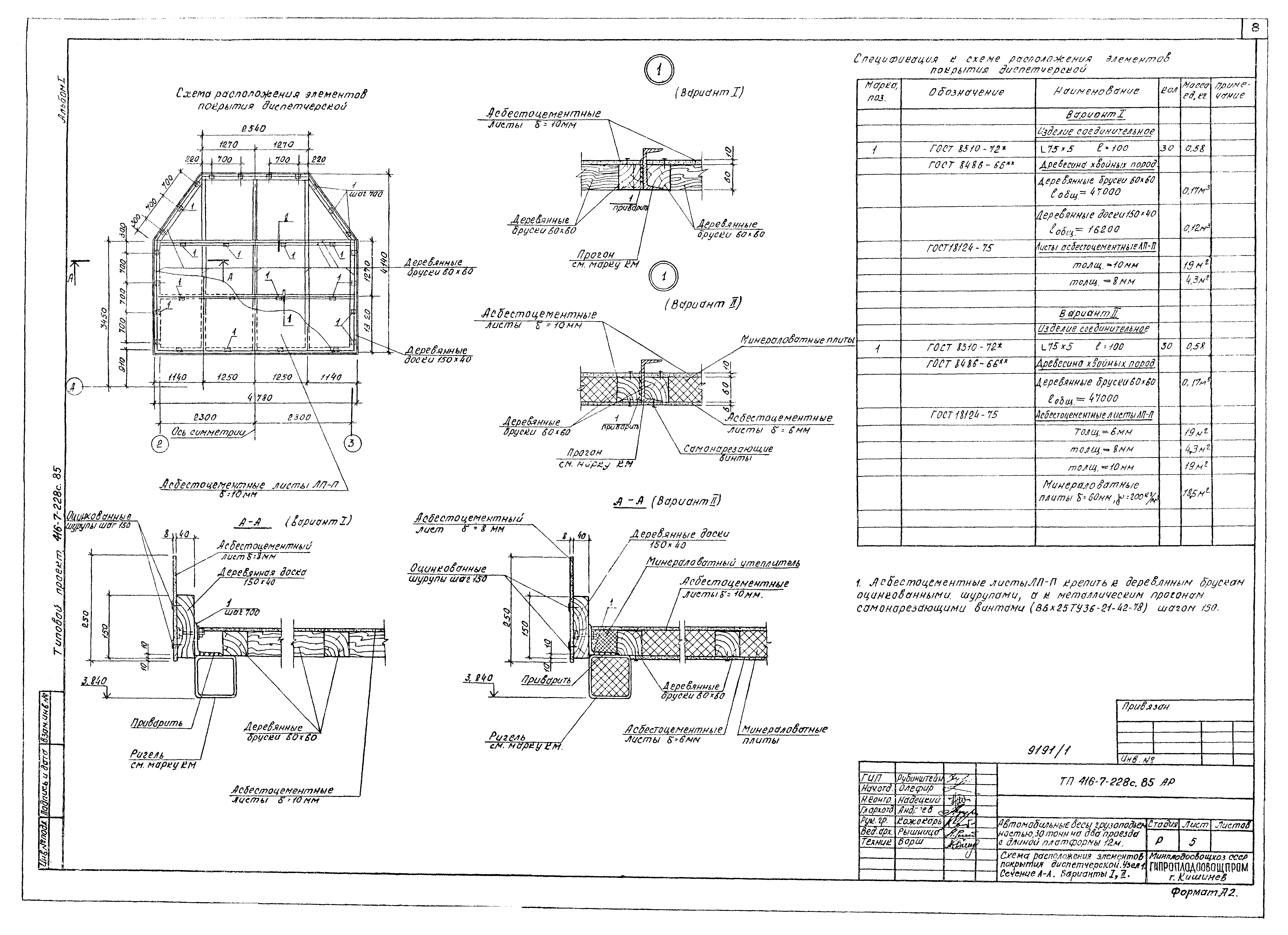
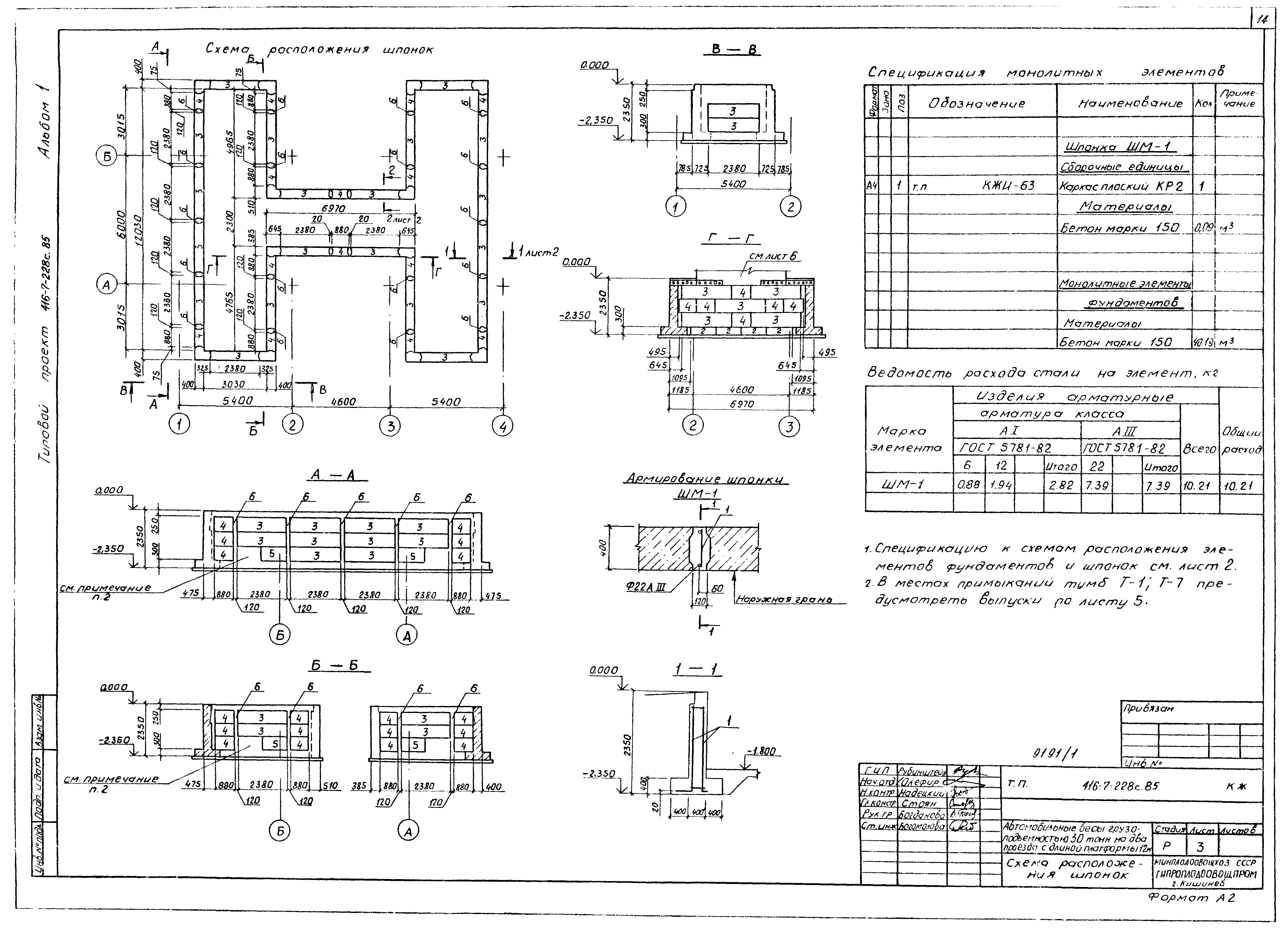
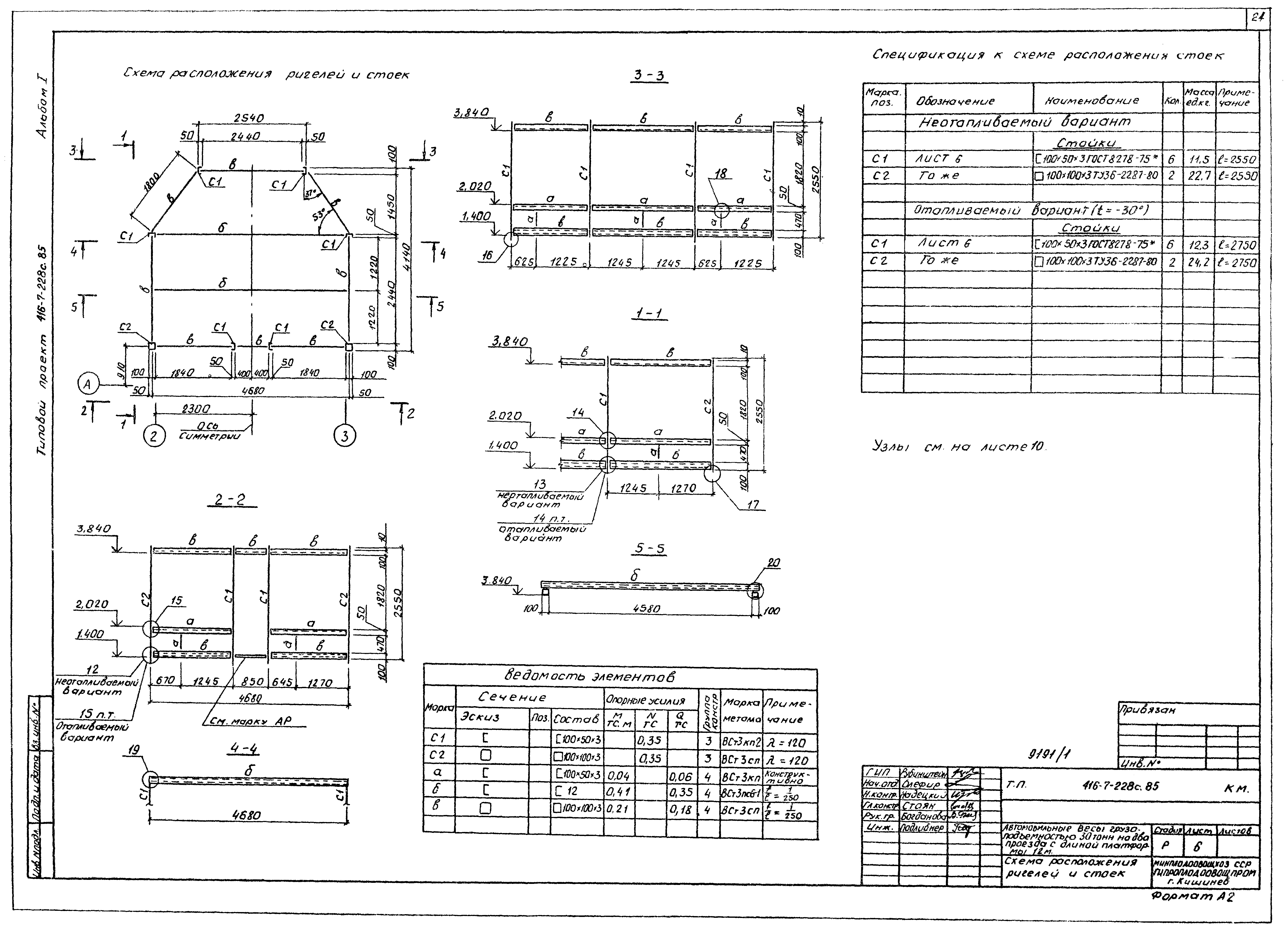
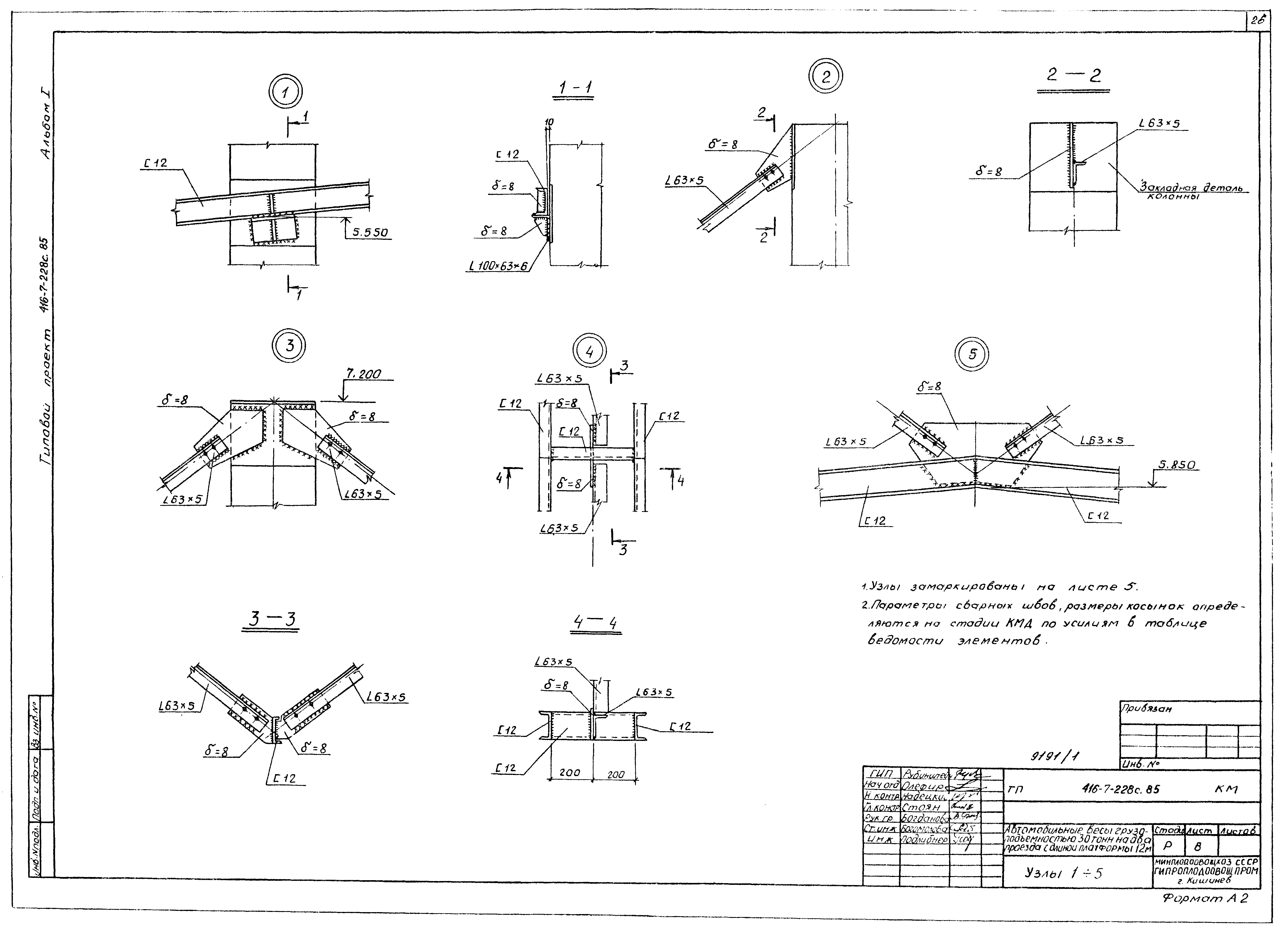
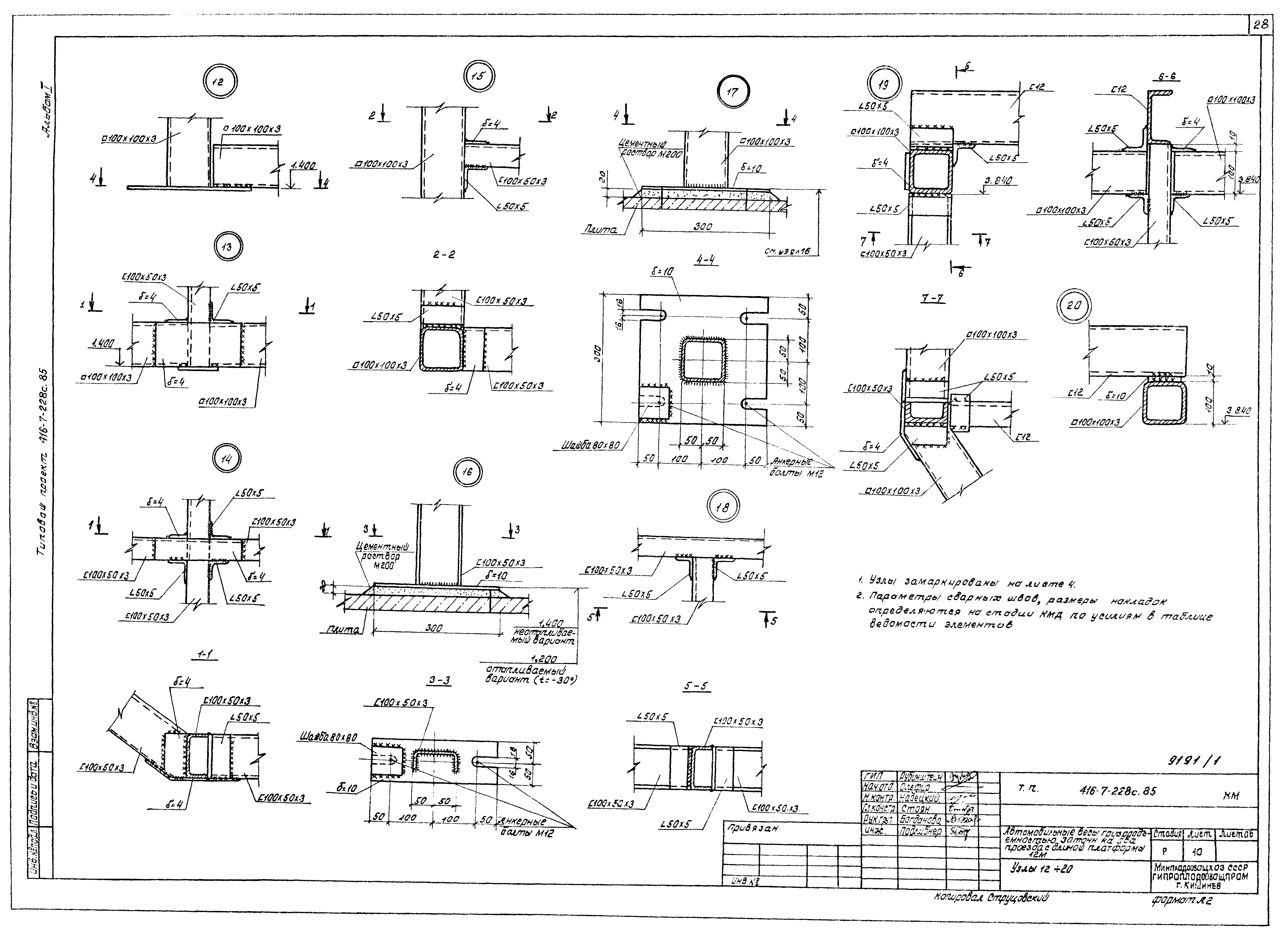
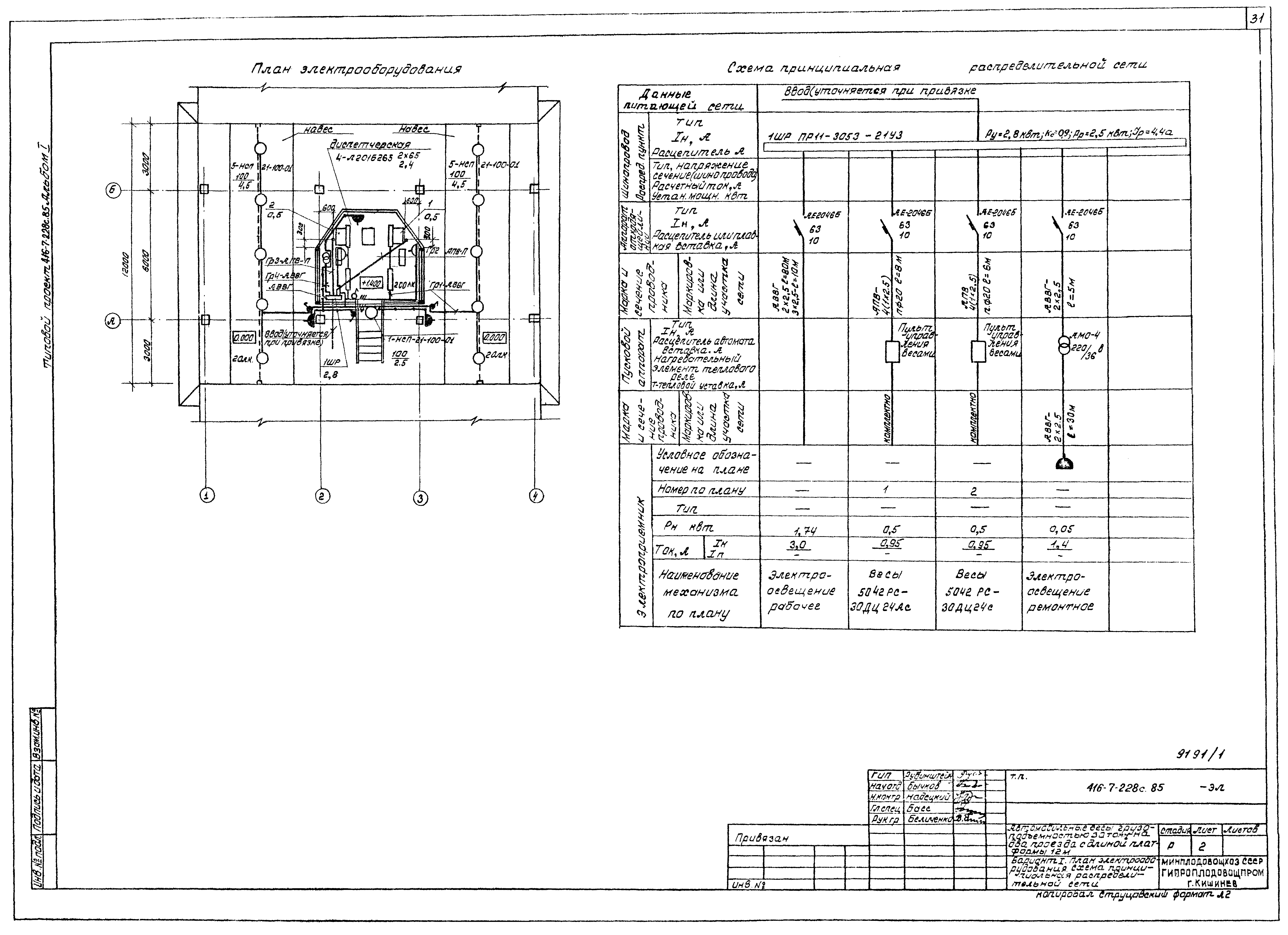
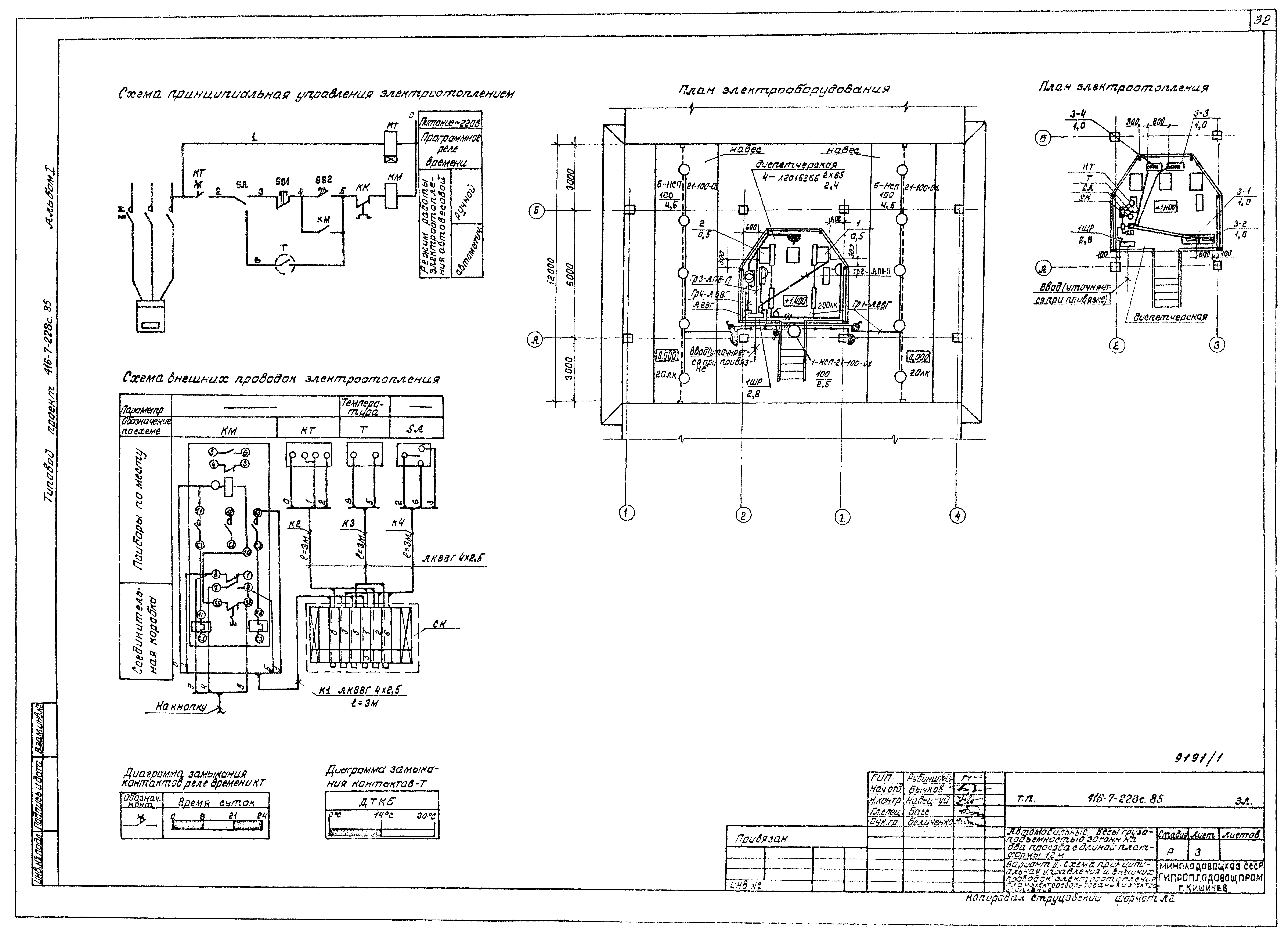
| Оглавление: | Пояснительная записка Чертежи основного комплекта марки АР Общие данные Планы на отм. 0.000; 1.400; - 1.800. Разрезы 1-1, 2-2. Узел 1 Фасады Б - А; 1 - 4; 4 - 1 Схема расположения элементов покрытия навеса. Узлы 1, 2 Схема расположения элементов покрытия диспетчерской. Узел 1. Сечение А-А Схемы расположения элементов деревянного каркаса и зашивки стен. Виды А - Е. Сечения 1-1, 2-2 Узлы 1 - 9 (вариант I) Узлы 1 - 9 (вариант II) Чертежи основного комплекта марки КЖ Общие данные Схема расположения элементов фундаментов Схема расположения шпонок Схема расположения элементов подземной части Тумбы Т-1 - Т-7. Фундамент Фо-1 Схема расположения элементов каркаса, панелей перекрытия Монолитная плита Пм1 Чертежи основного комплекта марки КМ Общие данные Схема расположения элементов покрытия. Схема расположения элементов входной лестницы Схема расположения ригелей и стоек Схема расположения элементов заполнения оконных проемов Узлы 1 - 5 Узлы 6 - 11; 21; 22 Узлы 12 - 20 Чертежи основного комплекта марки ТХ Общие данные. План. Разрез 1-1 Чертежи основного комплекта марки ЭЛ Общие данные Вариант I. План электрооборудования. Схема принципиальная распределительной сети Вариант II. Схема принципиальная управления и внешних проводок электроотопления. План электрооборудования и электроотопления Вариант II. Схема принципиальная распределительной сети Чертежи основного комплекта марки СС Общие данные. План с размещением слаботочных сетей |
| Разработан: | Гипроплодоовощпром |
| Утверждён: | 18.08.1985 Минплодоовощхоз СССР (06-32-51/5213) |


































