Скачать Типовой проект 501-3-33.87 Альбом 3. Сборные железобетонные элементы и металлические изделияДата актуализации: 01.01.2021
|
| Обозначение: | Типовой проект 501-3-33.87 |
| Обозначение англ: | 501-3-33.87 |
| Статус: | не определен законодательством |
| Название рус.: | Альбом 3. Сборные железобетонные элементы и металлические изделия |
| Дата добавления в базу: | 01.09.2013 |
| Дата актуализации: | 01.01.2021 |
| Дата введения: | 11.03.1988 |
| Дата окончания срока действия: | 30.06.2003 |
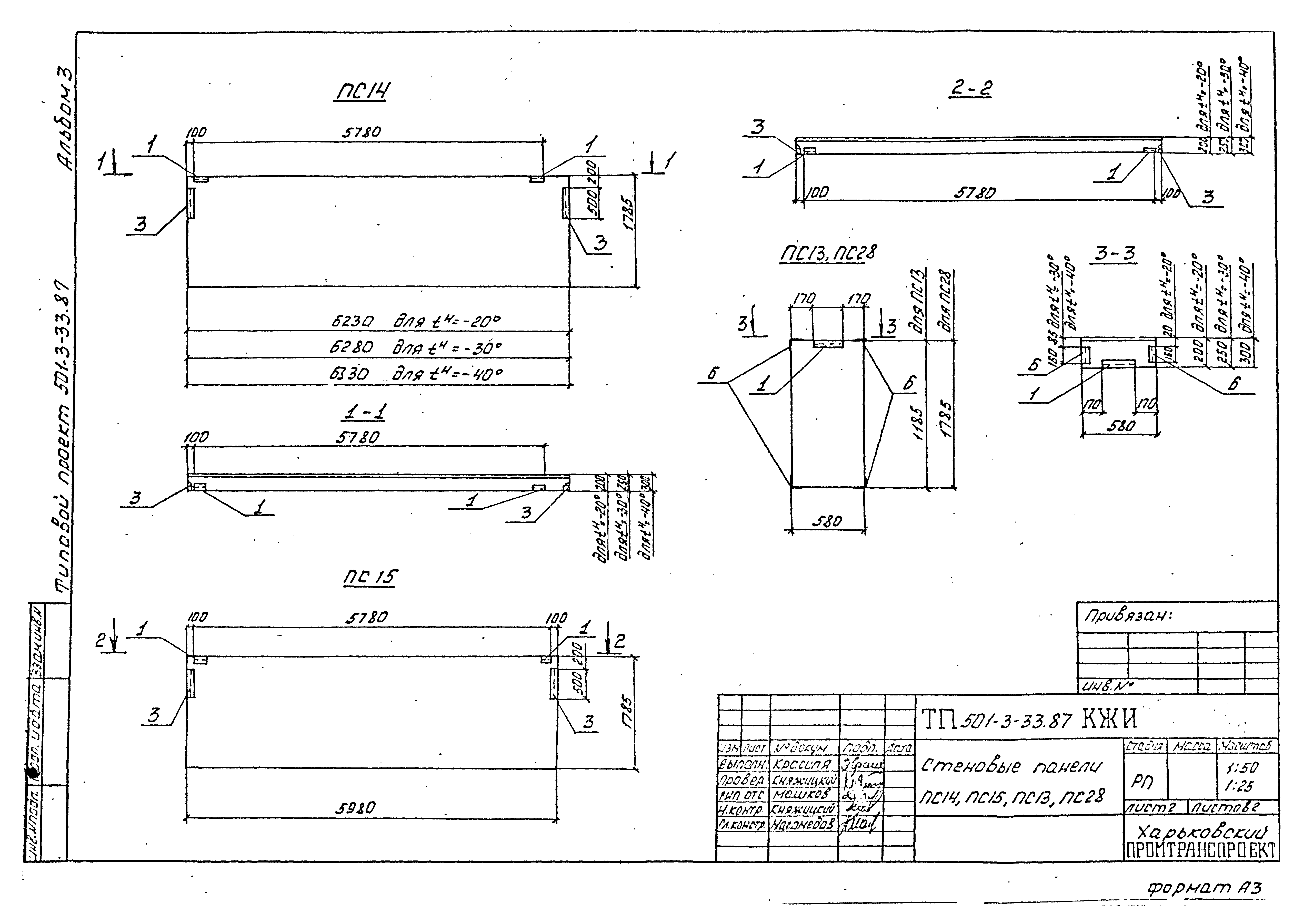
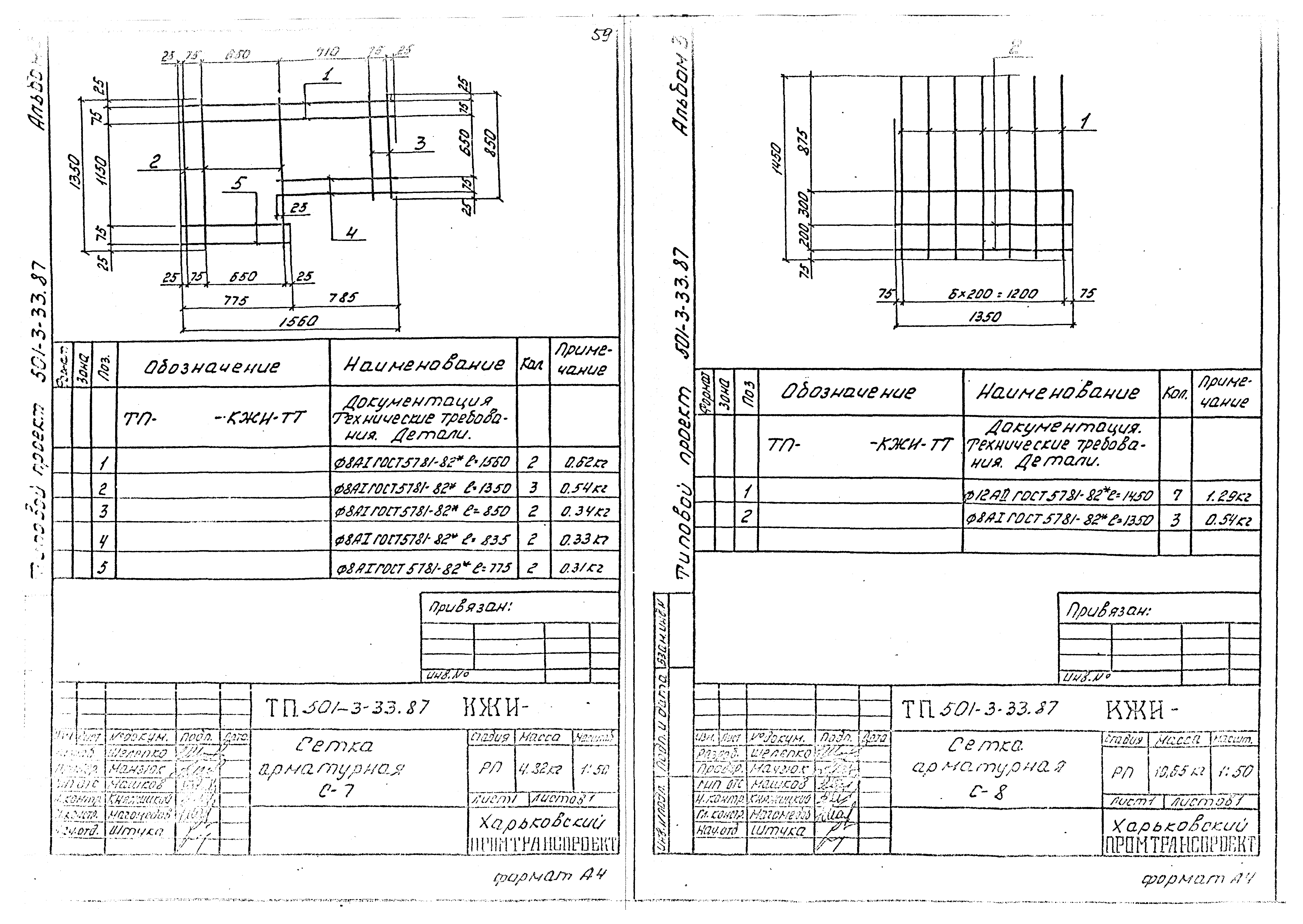
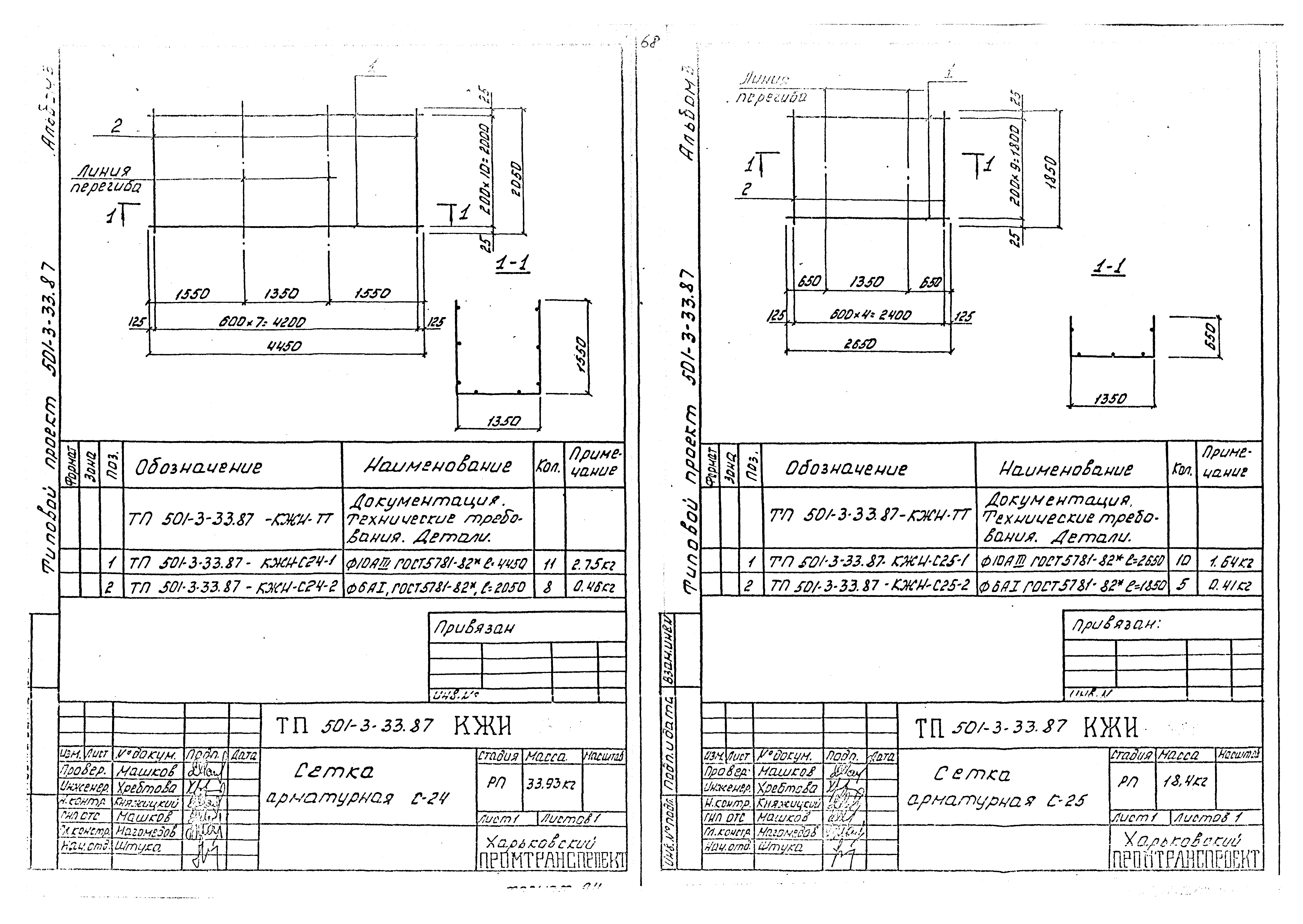
| Оглавление: | Ведомость чертежей Технические требования Фундамент 1Ф18.9-1А Колонны Балки покрытия Плиты покрытия Стеновые панели ПС-1 - ПС12, ПС26, ПС27, ПС29 Ведомость расхода стали на элемент ПС-1 - ПС12, ПС26, ПС27, ПС29 Стеновые панели ПС13 - ПС25, ПС25, ПС30, ПС31 Ведомость расхода стали на элемент ПС13 - ПС25, ПС25, ПС30, ПС31 Стеновые панели ПС32 - ПС44 Ведомость расхода стали на элемент ПС32 - ПС44 Плиты покрытия Плиты Детали Д-1 - Д5 Плиты Сетка арматурная С-1 - С27 Изделие соединительное МСИ-1, МСИ-2. Закладная деталь ЗД-1 Петля для подъема П-1. Скоба П-2. Изделие закладное МН-2 Консоль опорная НРК-1, НРК-2, НРК-3 ОВ-1. Изделие закладное МС-2 Изделие закладное МН-3, рамка РМ-1. Закладная деталь ЗД-2, ЗД-3 Лестница ЛП-1. Верх лестницы ПВ-1 Лестница пожарная ЛП-2 Крепежная деталь КД-1 - КД3 Опорная деталь ОД-1 - ОД-3 План крышки приямка. Разрезы 1-1, 2-2. Спецификация Фильтр ВФ-1 Ограждение площадки ОГ-1 Подставка пожарного шкафа ППШ-1. Изделие закладное МН-1 Щиты Щ1 - Щ-4 Пожарный шкаф ПШ-1. Решетка для вытирания ног МР-1 |
| Разработан: | Харьковский Промтранспроект |
| Утверждён: | 11.03.1988 Госстрой СССР (Государственный комитет Совета Министров СССР по делам строительства) (USSR Gosstroy 11) |






















































































