Скачать Типовой проект 271-13-120.86 Альбом III. Изделия железобетонные заводского изготовления. Изделия монолитных железобетонных конструкций. Изделия металлические. РазноеДата актуализации: 01.01.2021
|
| Обозначение: | Типовой проект 271-13-120.86 |
| Обозначение англ: | 271-13-120.86 |
| Статус: | не определен законодательством |
| Название рус.: | Альбом III. Изделия железобетонные заводского изготовления. Изделия монолитных железобетонных конструкций. Изделия металлические. Разное |
| Дата добавления в базу: | 01.09.2013 |
| Дата актуализации: | 01.01.2021 |
| Дата введения: | 28.10.1986 |
| Дата окончания срока действия: | 30.06.2003 |
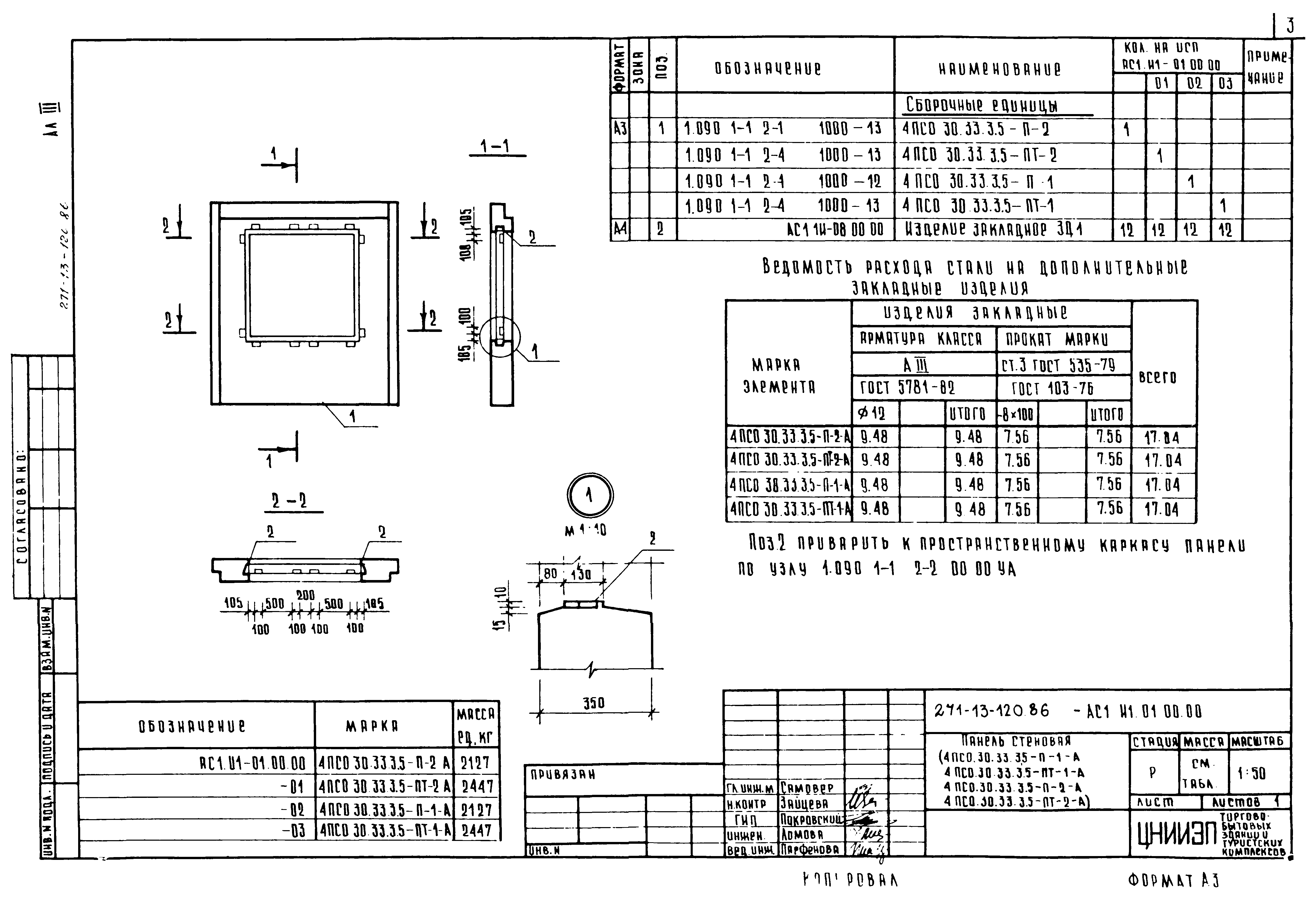
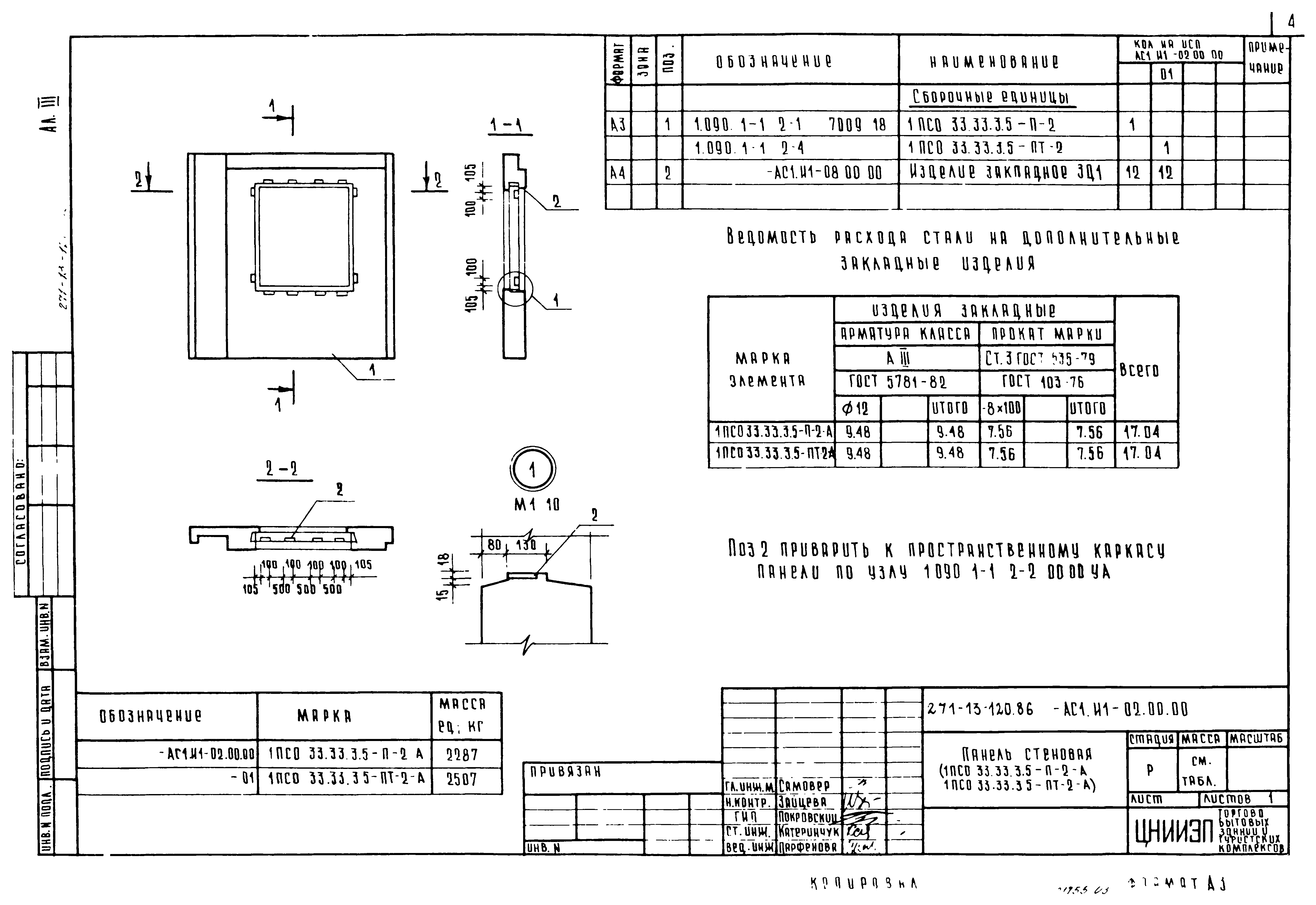
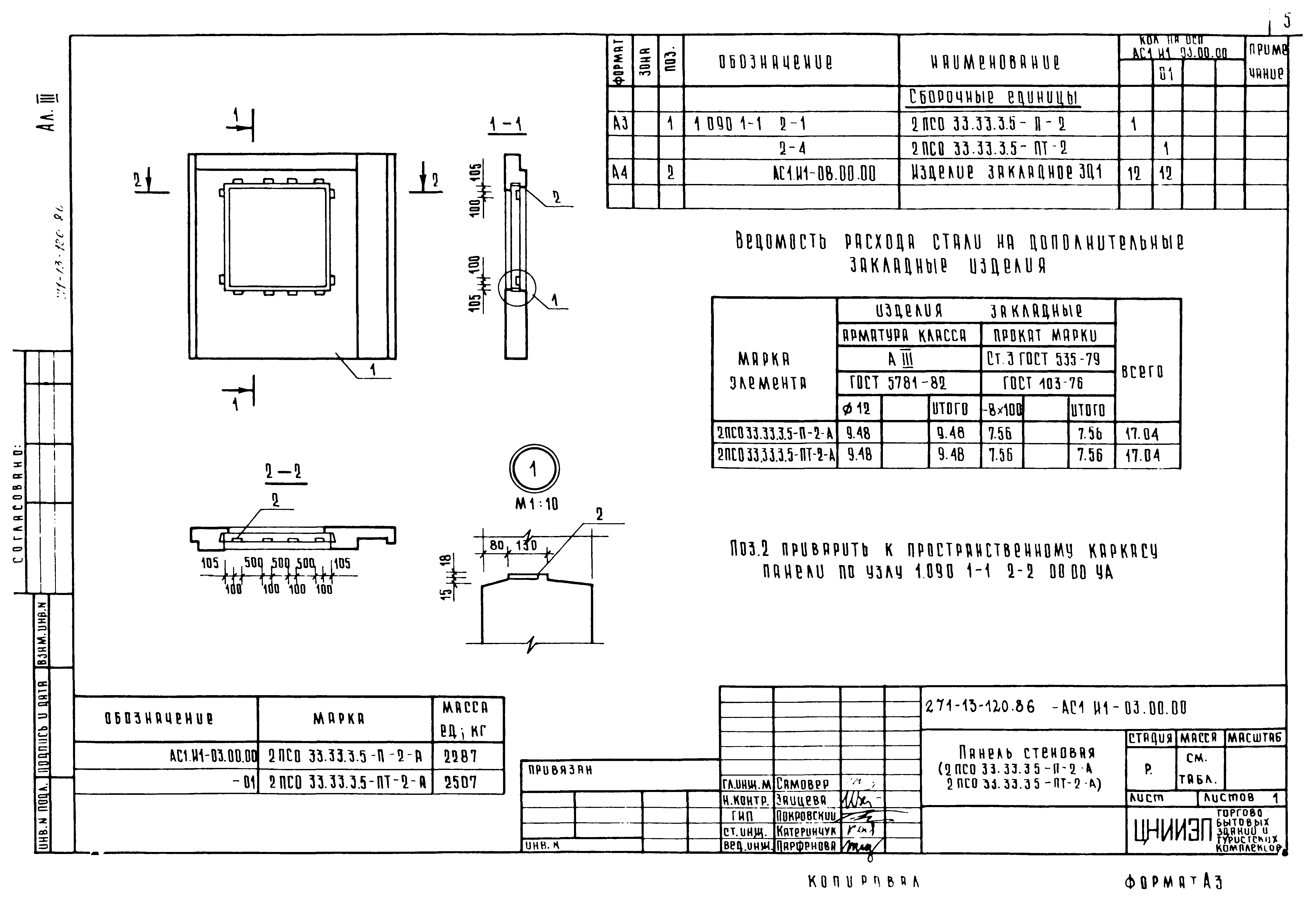
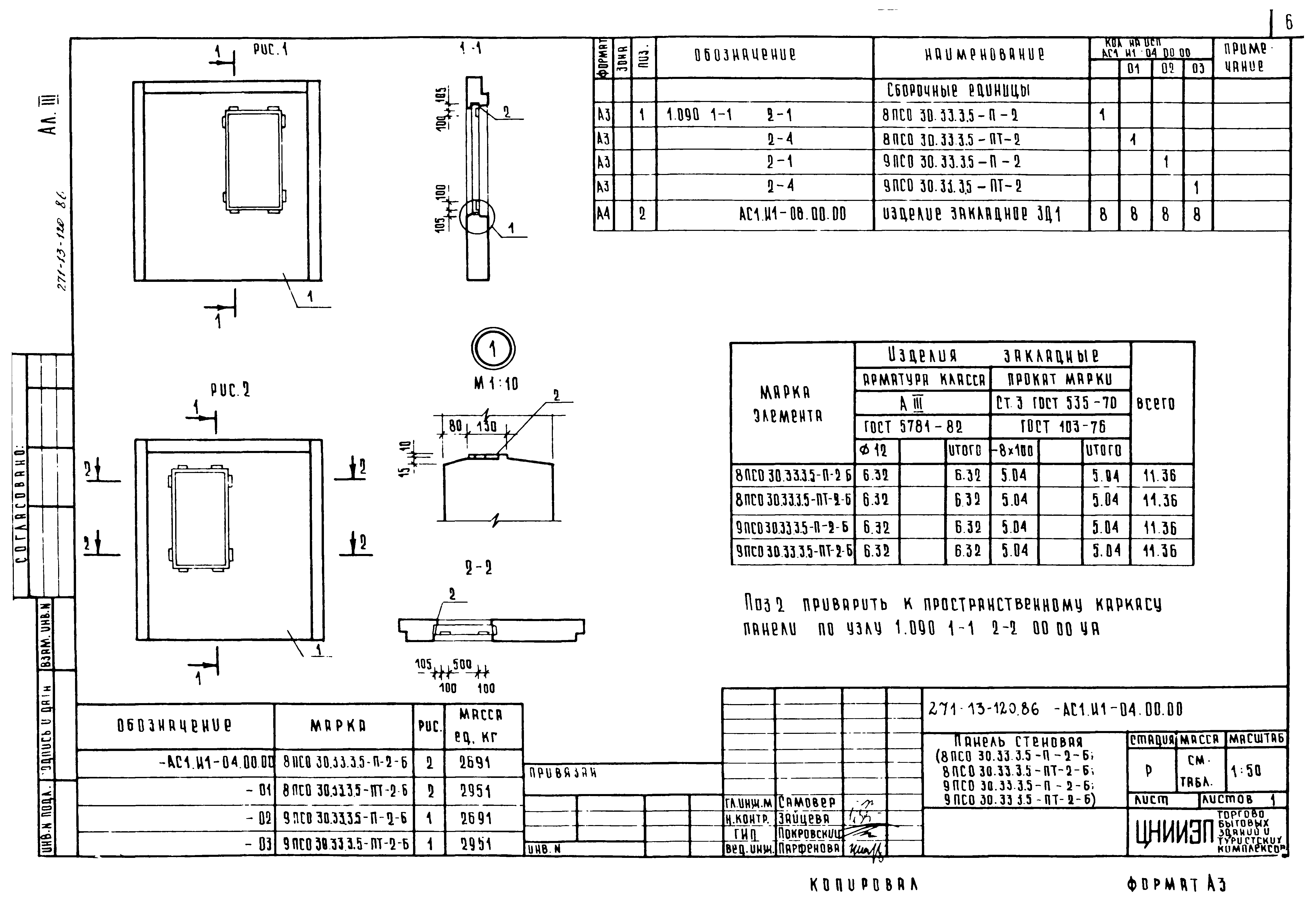
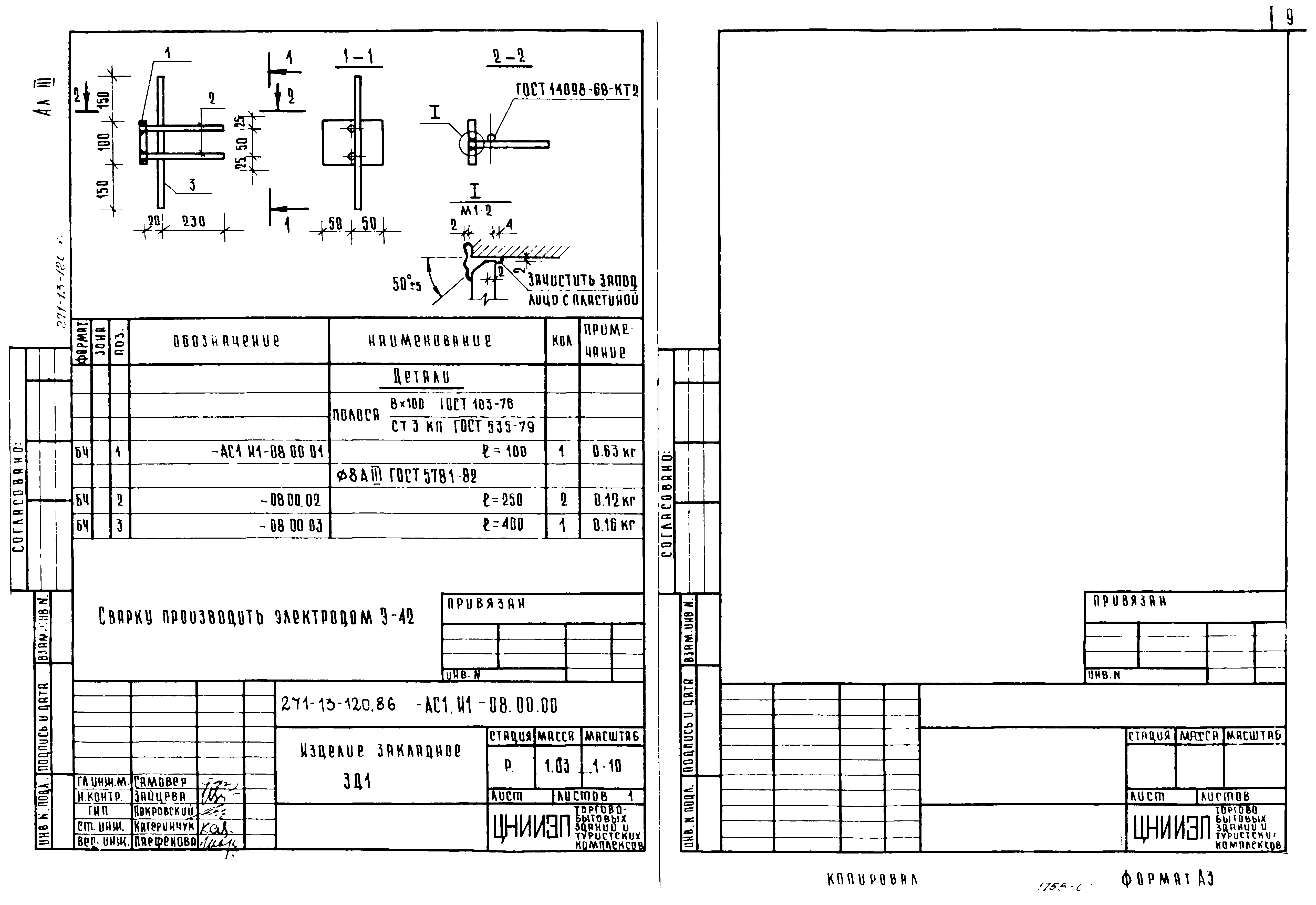
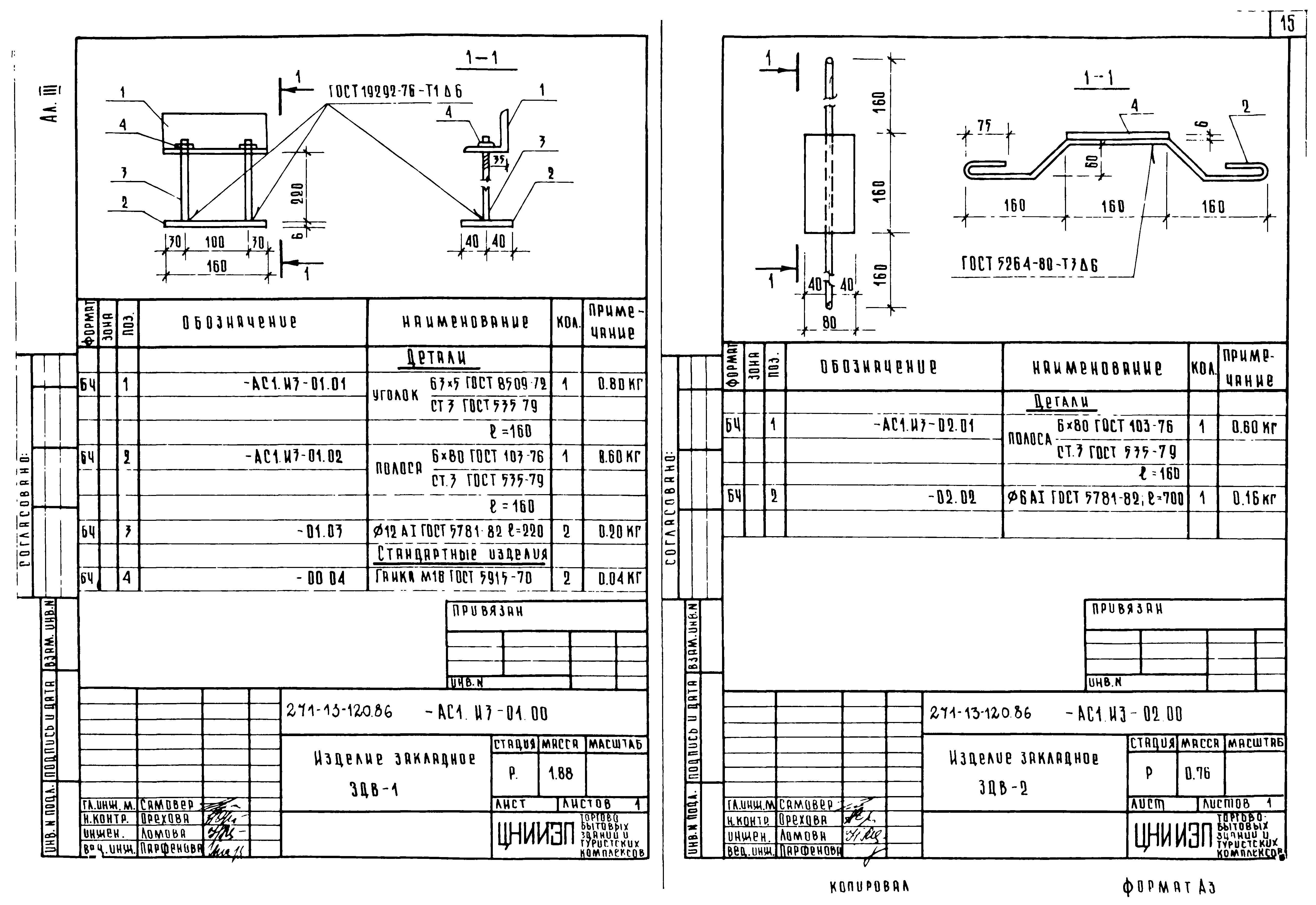
| Оглавление: | Титульный лист Содержание альбома АС1.И1-01.00.00 Панель стеновая (4ПСО30.33.3.5-П-1-А; 4ПСО30.33.3.5-АТ-1-А; 4ПСО30.33.3.5-П-2-А; 4ПСО30.33.3.5-ПТ-2-А) АС1.И1-02.00.00 Панель стеновая (1ПСО33.33.3.5-П-2-А; 1ПСО33.33.3.5-ПТ-2-А) АС1.И1-03.00.00 Панель стеновая (2ПСО33.33.3.5-П-2-А; 2ПСО33.33.3.5-ПТ-2-А) АС1.И1-04.00.00 Панель стеновая (8ПСО30.33.3.5-П-2-Б; 8ПСО30.33.3.5-ПТ-2-Б; 9ПС30.33.3.5-П-2-Б; 9ПСО30.33.3.5-ПТ-2-Б) АС1.И1-05.00.00 Панель стеновая (8ПСО30.33.3.5-2-А; 8ПСО30.33.3.5-ПТ-2-А; 9ПС30.33.3.5-П-2-А; 9ПСО30.33.3.5-ПТ-2-А) АС1.И1-06.00.00 Отделка панели (ПСП30.10.2.Б-П; ПСП30.10.2.6-ПТ) АС1.И1-07.00.00 Отделка панели (4ПСО30.33.3.5-П-2-А; 4ПСО30.33.3.5-ПТ-1-А) АС1.И1-08.00.00 Изделие закладное ЗД1 АС1.И2-01.00.00 Изделие закладное ЗД2 АС1.И2-02.00.00 Монтажная петля (МП-1, МП-2) АС1.И2-03.00.00 Рама Р-1 АС1.И2-04.00.00 Рама Р-2 АС1.И2-05.00.00 Каркас К-1 АС1.И2-06.00.00 Каркас К-2 АС1.И3-01.00 Изделие закладное ЗДВ-1 АС1.И3-02.00 Изделие закладное ЗДВ-2 АС1.И4-01.00.00 Звено асбестоцементного воздуховода АС1.И4-01.00.00СБ Звено асбестоцементного воздуховода. Сборочный чертеж АС1.И4-01.02.00 Фланец (ФС1 - ФС6) АС1.И4-01.01.00 Муфта (МС1 - МС6) |
| Разработан: | ЦНИИЭП торгово-бытовых зданий и туристских комплексов |
| Утверждён: | 13.07.1984 Госгражданстрой (Gosgrazhdanstroy 195) |



















