Скачать Типовой проект 903-4-127.87 Альбом 3. Архитектурно-строительные решения, отопление, вентиляция, водопровод и канализация, электроосвещение, связь и сигнализацияДата актуализации: 01.01.2021
|
| Обозначение: | Типовой проект 903-4-127.87 |
| Обозначение англ: | 903-4-127.87 |
| Статус: | действует |
| Название рус.: | Альбом 3. Архитектурно-строительные решения, отопление, вентиляция, водопровод и канализация, электроосвещение, связь и сигнализация |
| Дата добавления в базу: | 01.09.2013 |
| Дата актуализации: | 01.01.2021 |
| Дата введения: | 02.11.1987 |
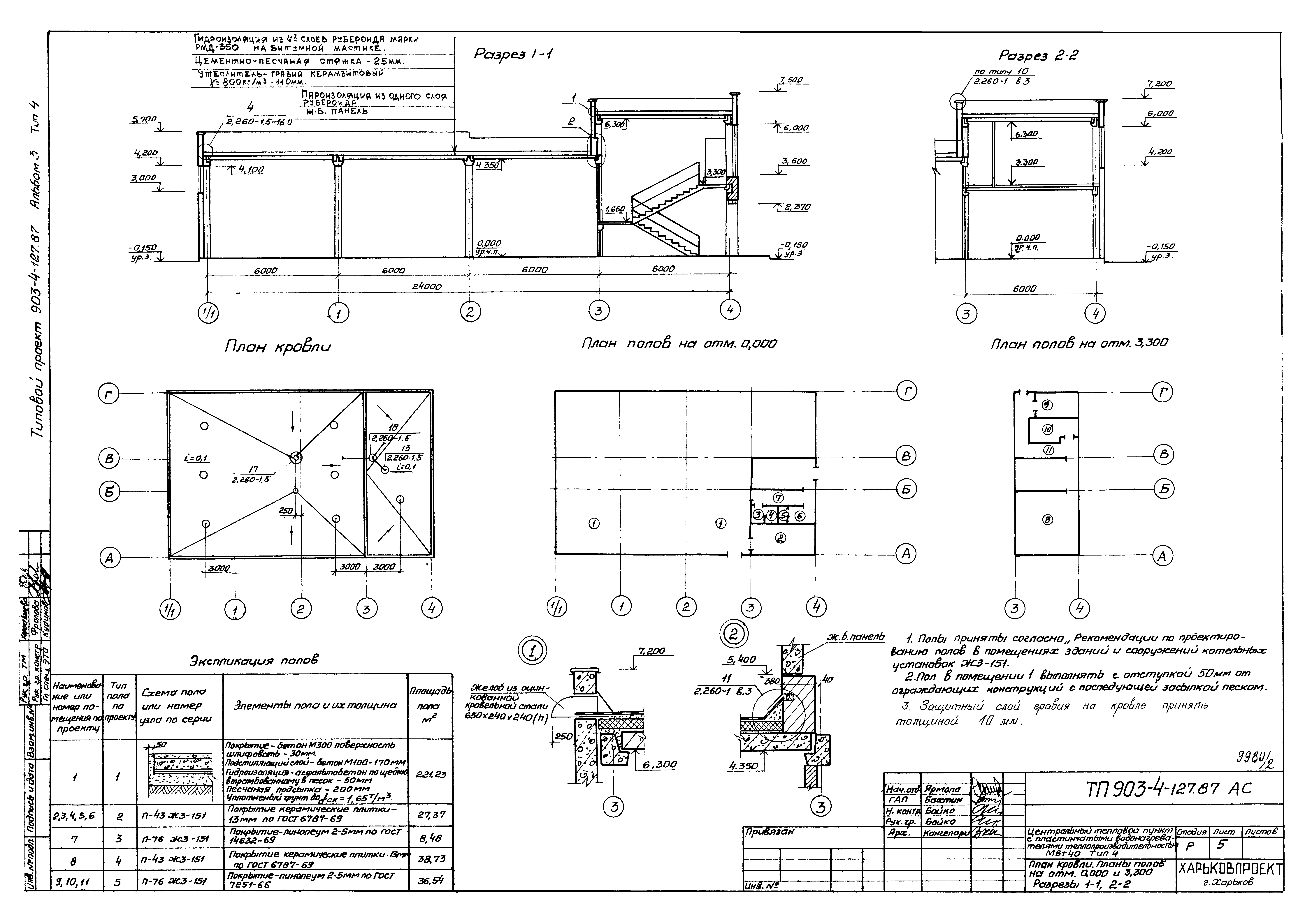
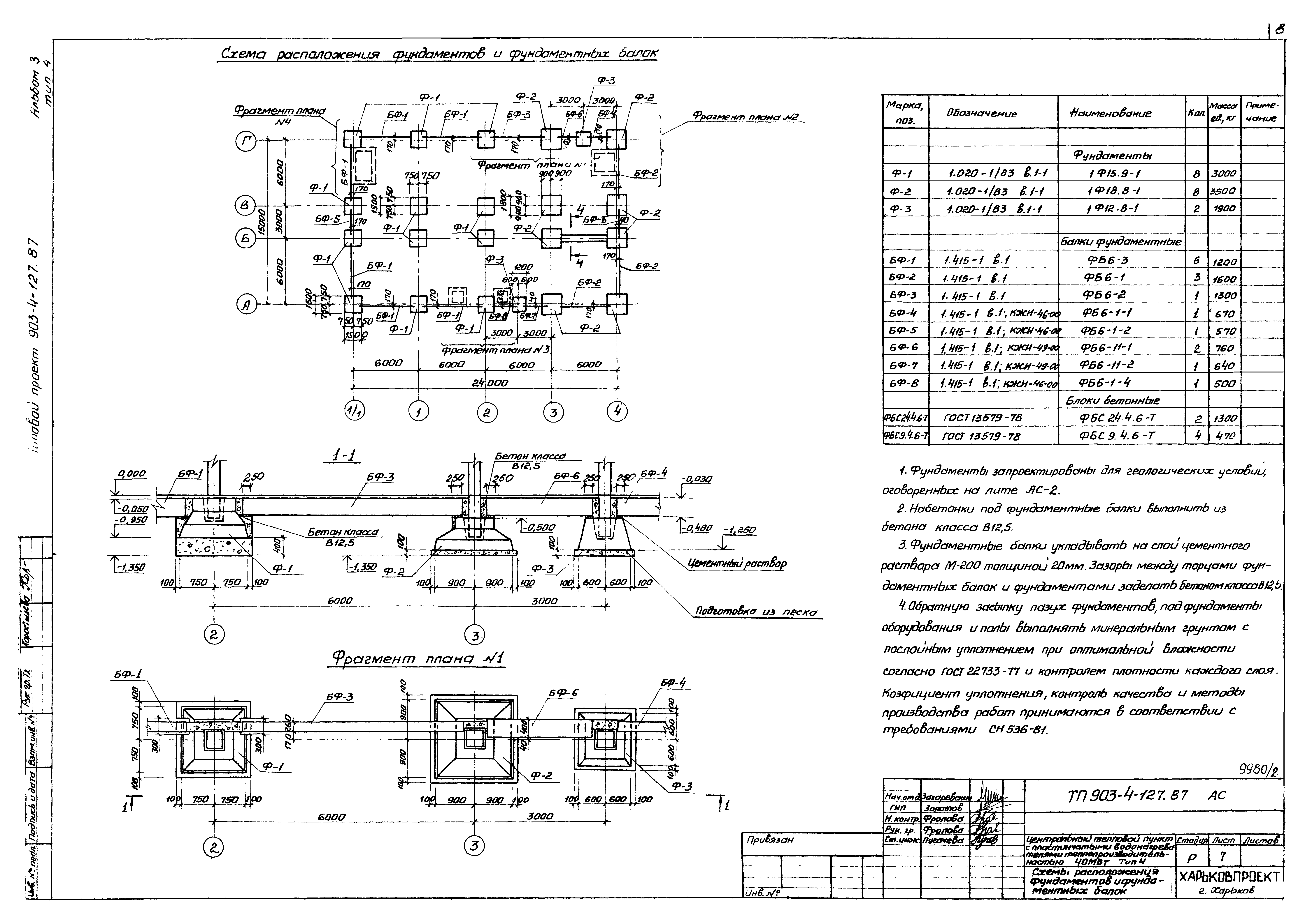
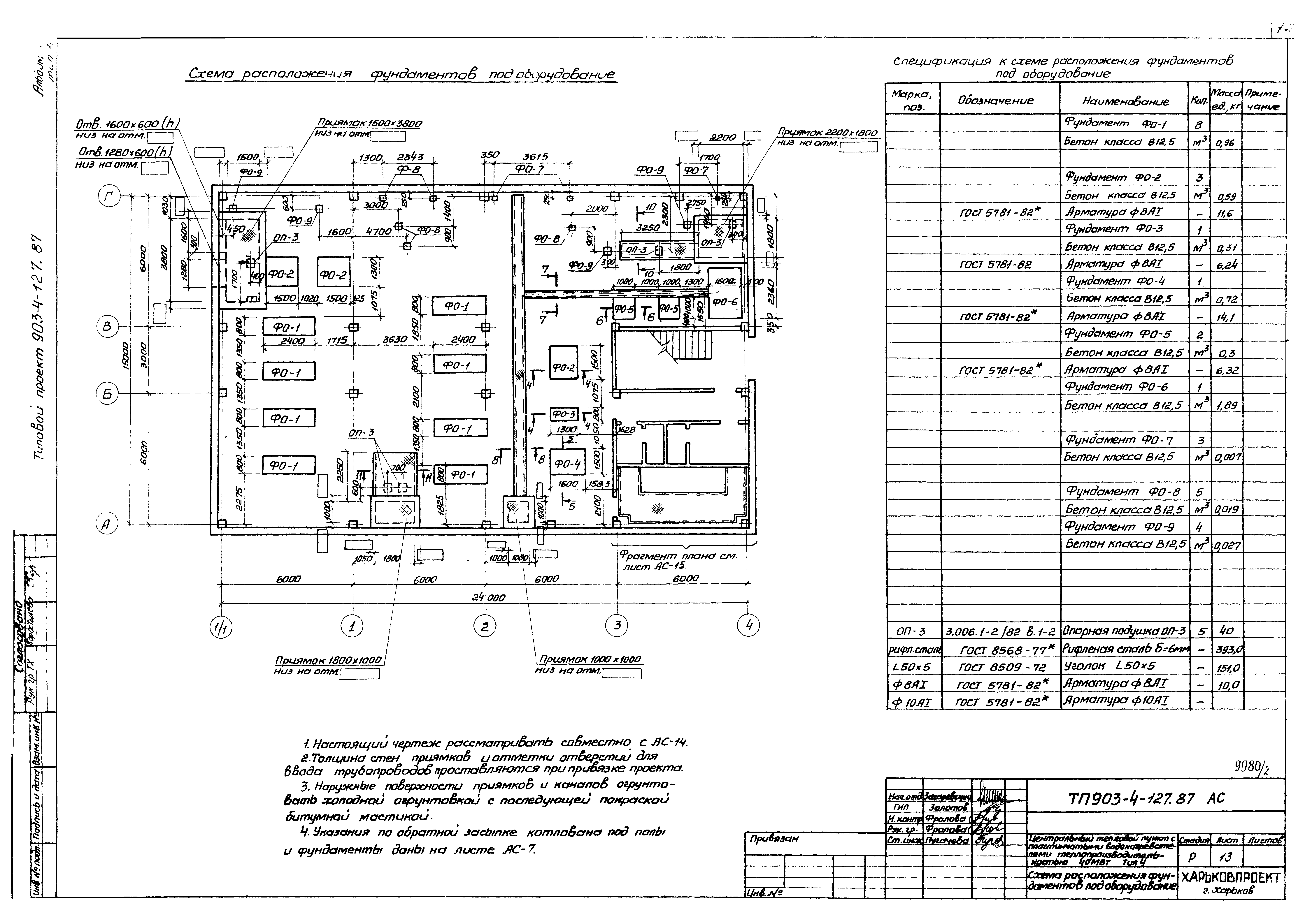
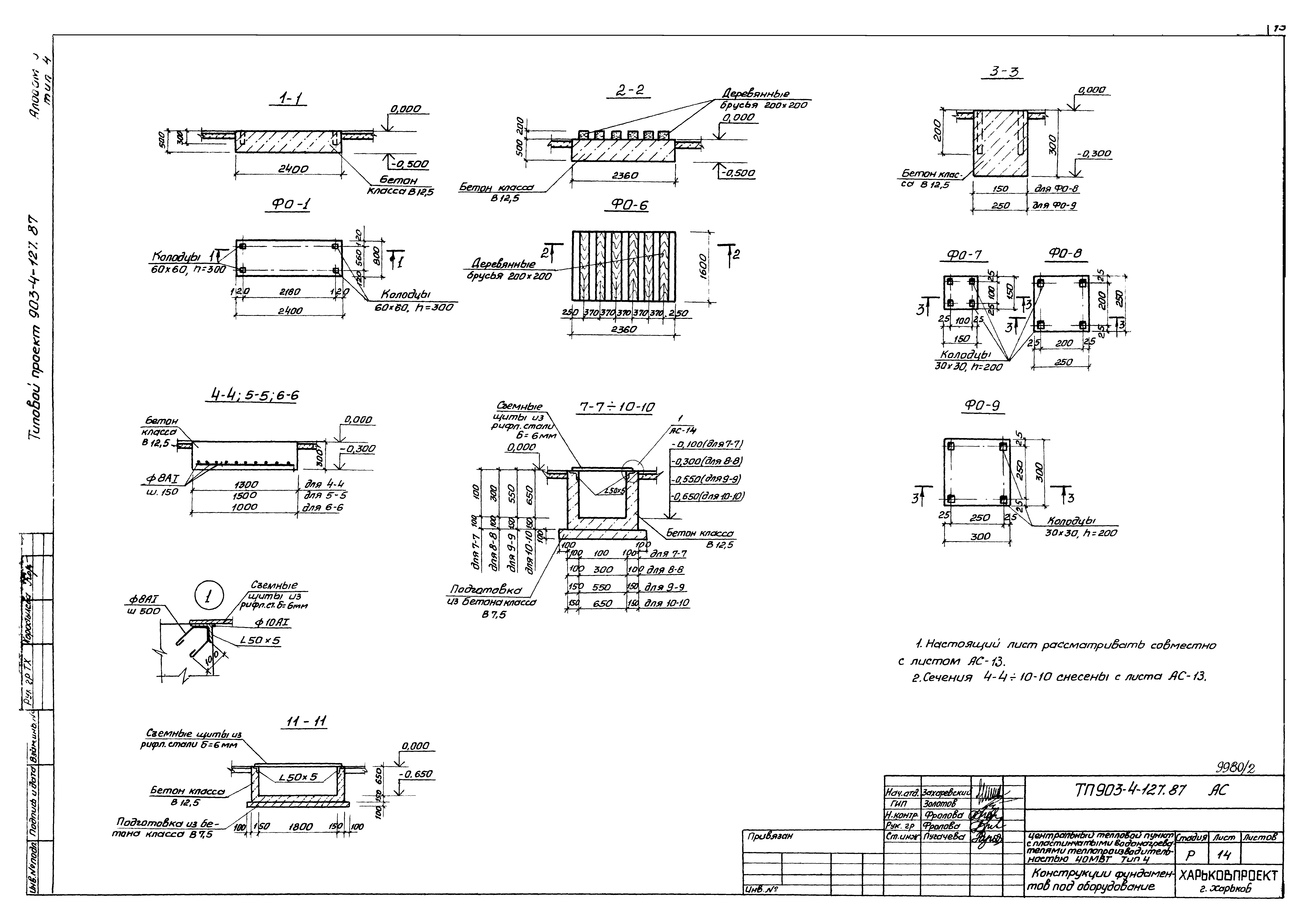
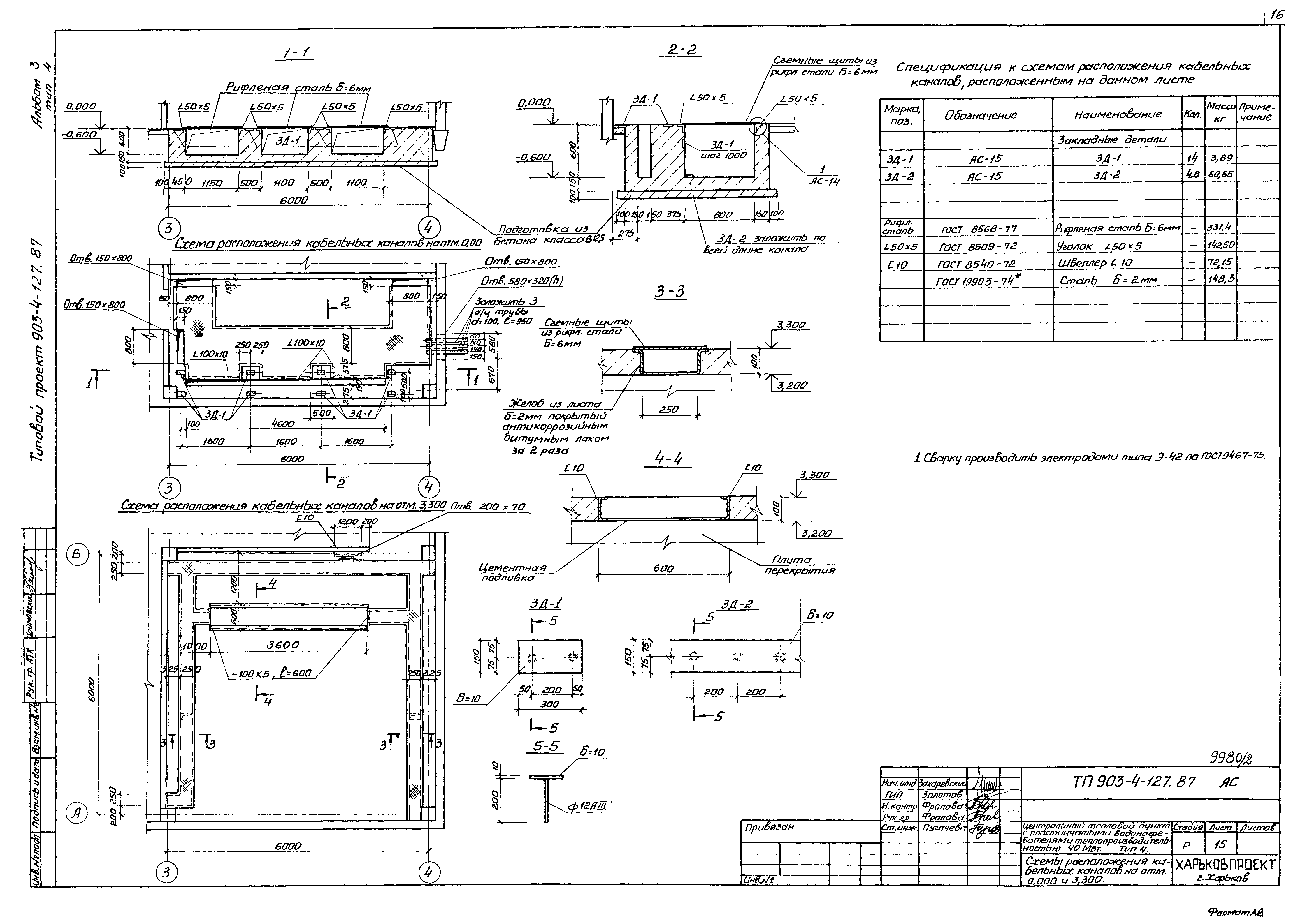
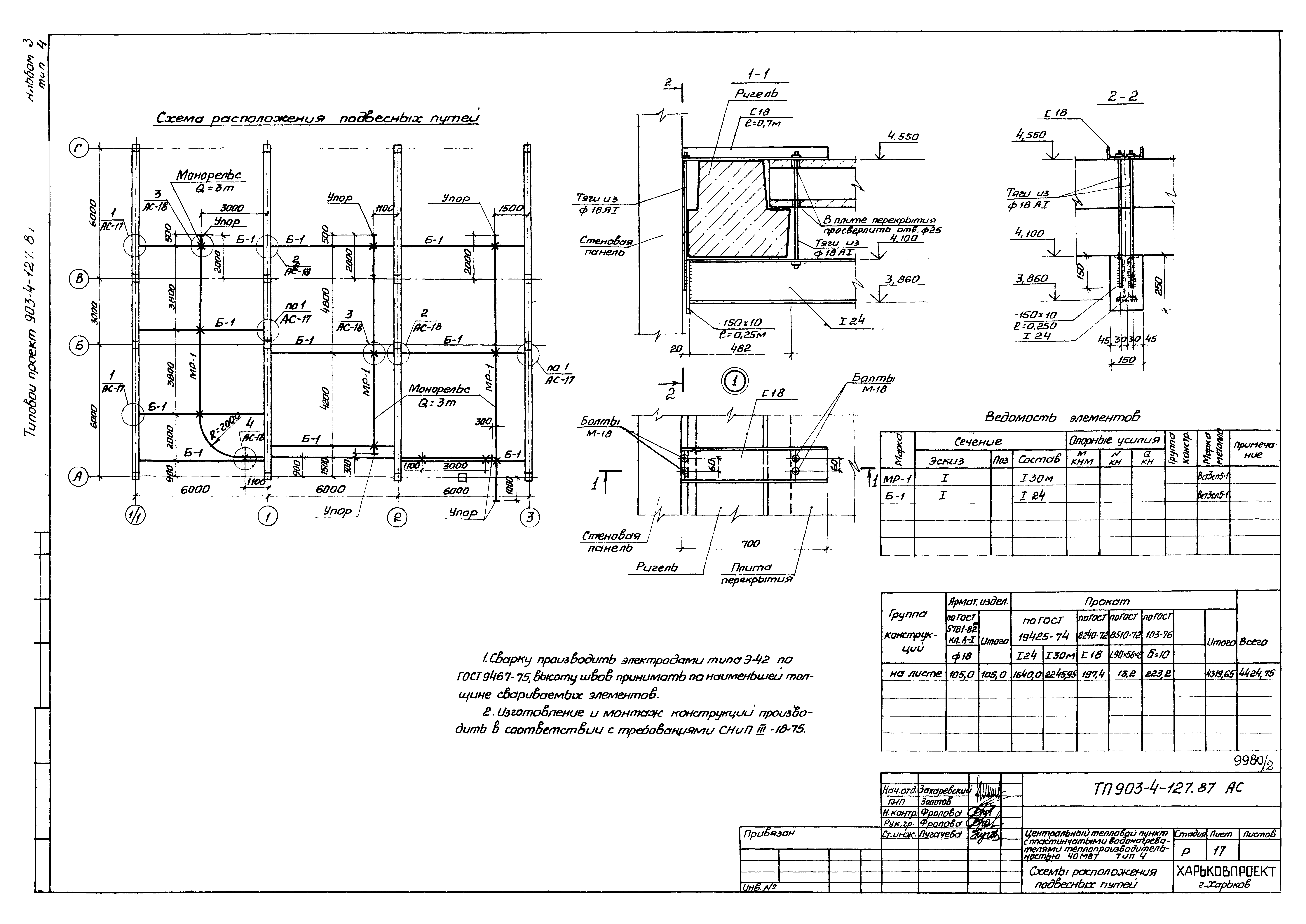
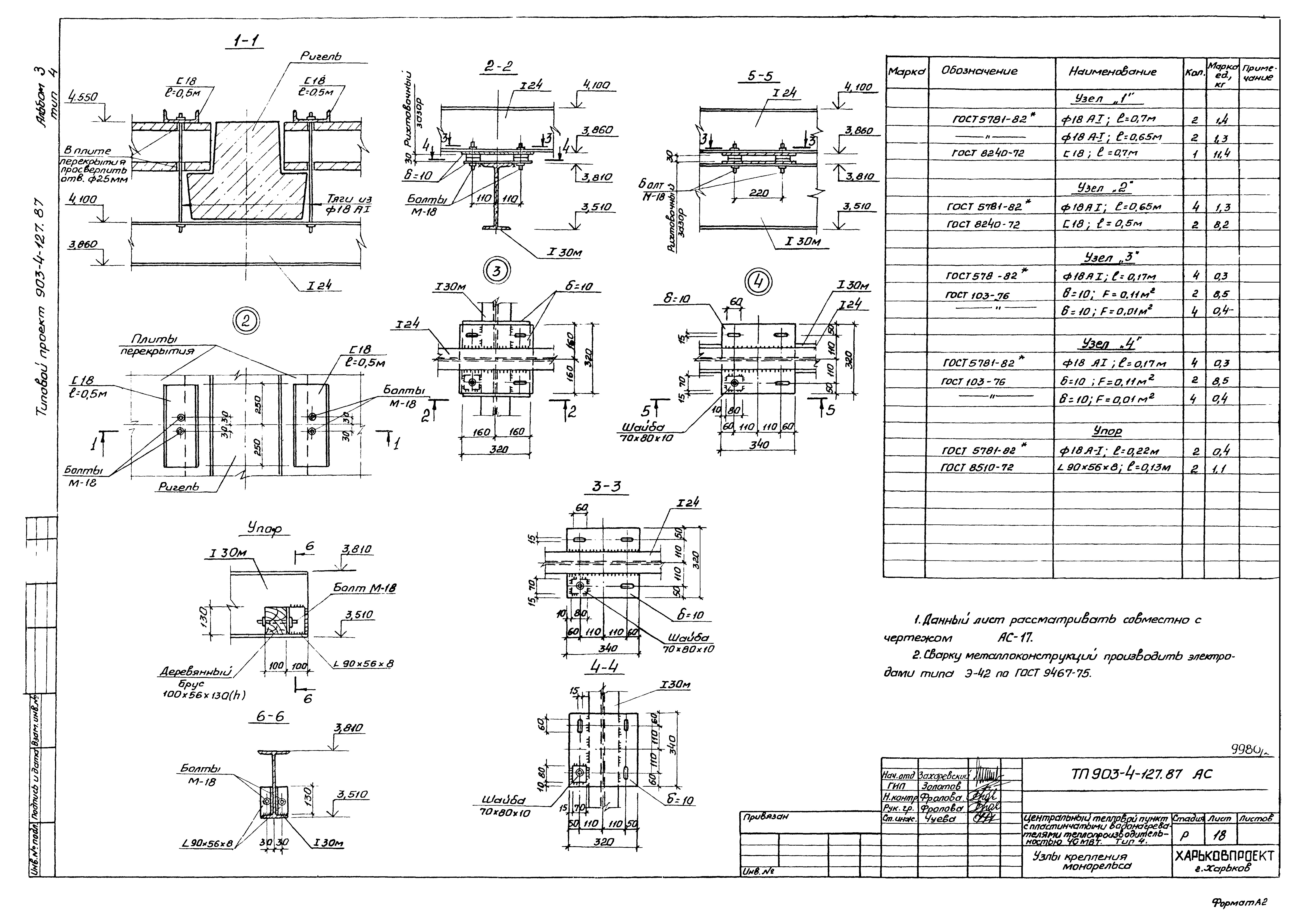
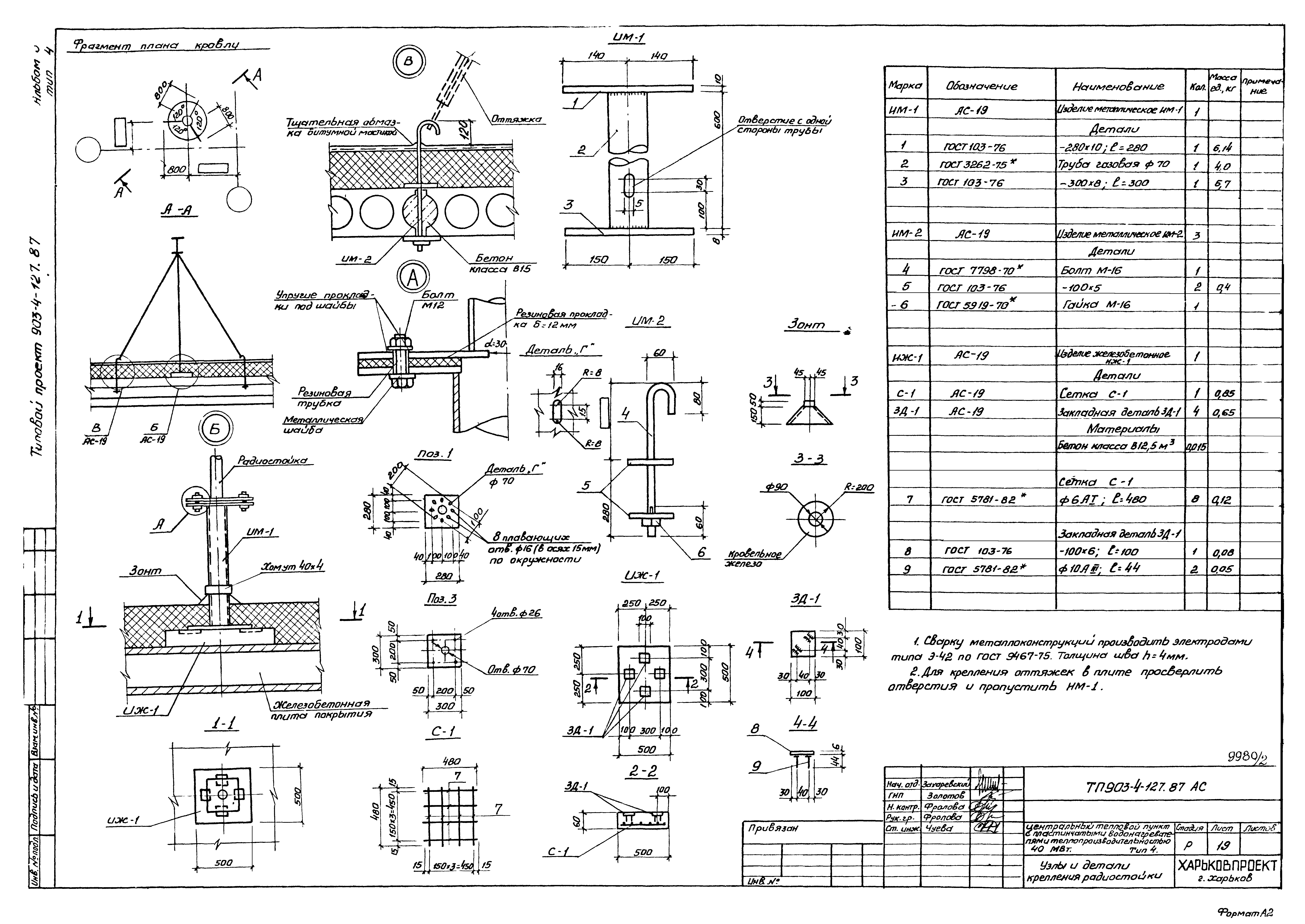
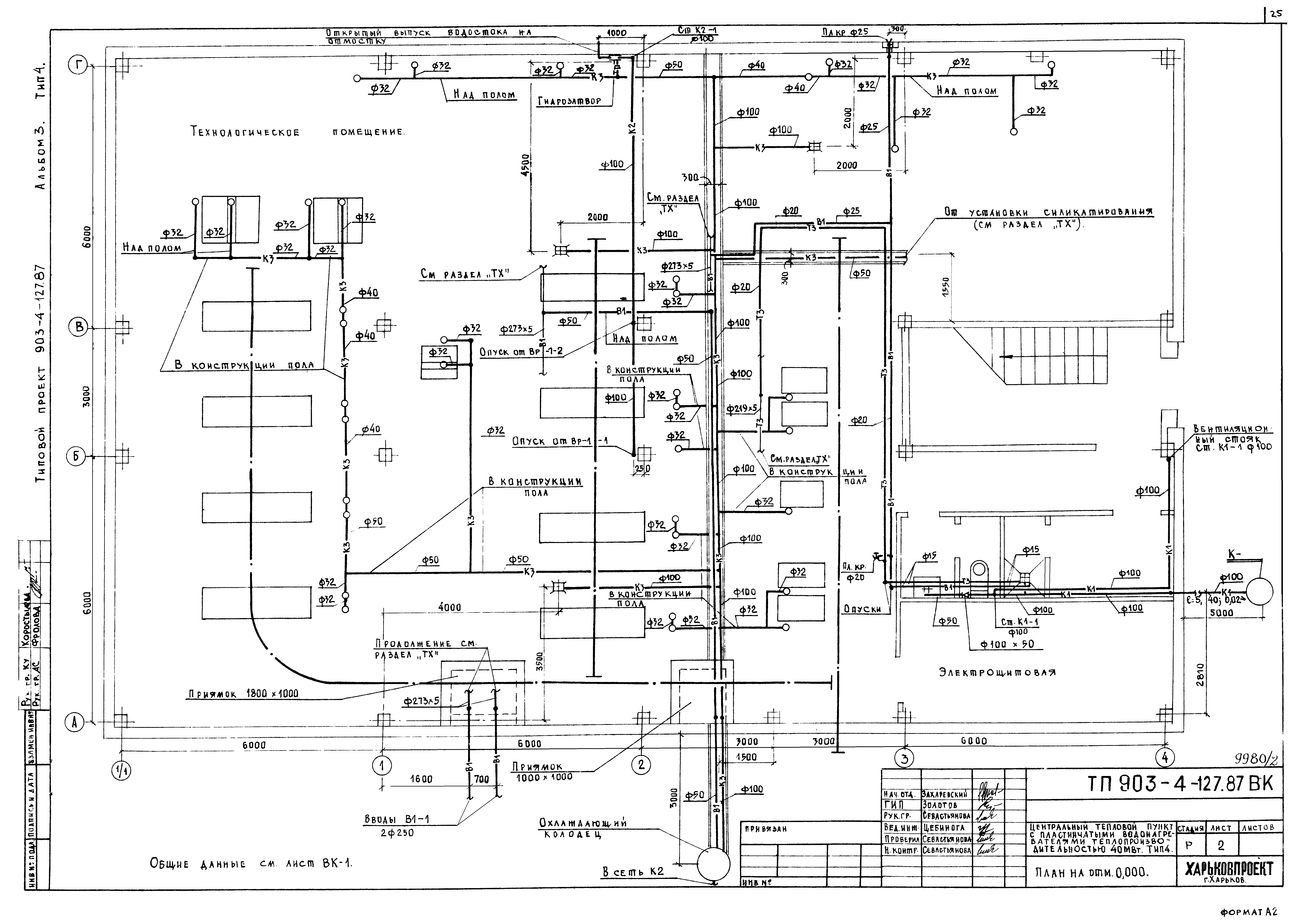
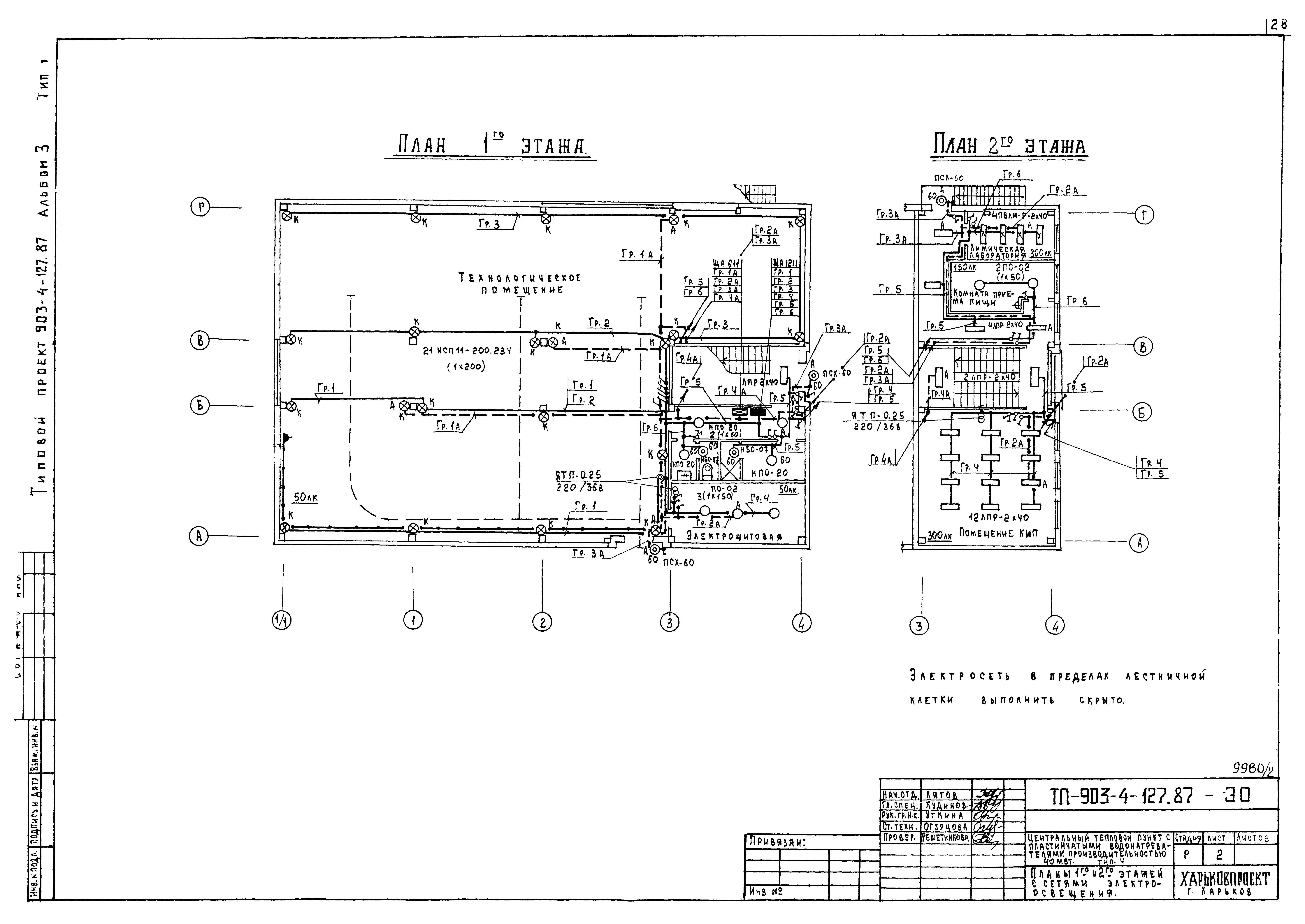
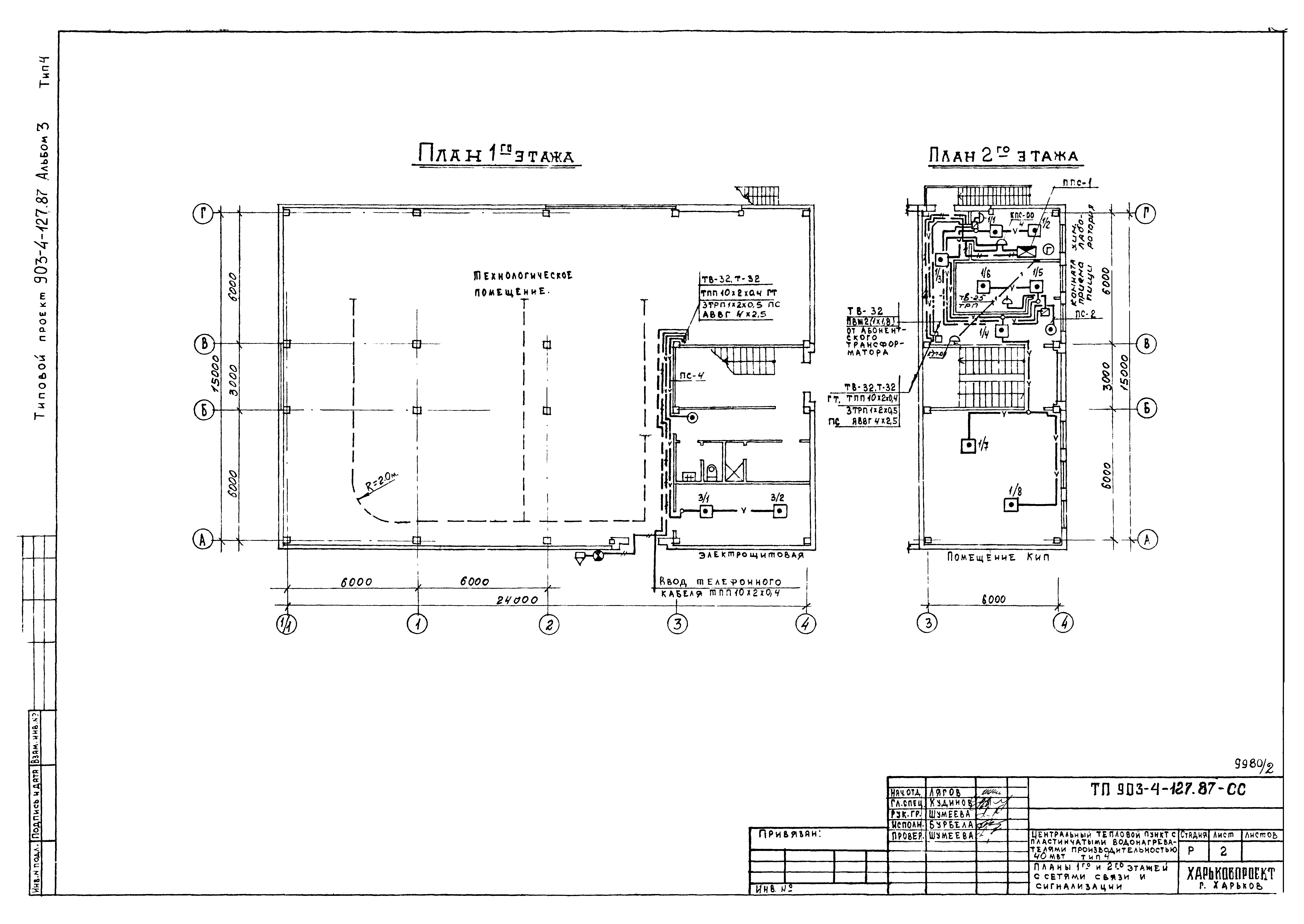
| Оглавление: | Чертежи основного комплекта марки АС Общие данные Планы 1-го и 2-го этажей План кровли. Планы полов на отм. 0.000 и 3.300. Разрезы 1-1, 2-2 Фасады 1/1-4; А - Г; 4-1/1; Г-А Схема расположения фундаментов и фундаментных балок Фрагменты плана Схема расположения элементов каркаса Схемы расположения элементов покрытия и перекрытия Схемы расположения стеновых панелей по оси 1 и 4 Схемы расположения стеновых панелей Схема расположения фундаментов под оборудование Конструкции фундаментов под оборудование Схемы расположения кабельных каналов на отм. 0.000 и 3.300 Схемы расположения элементов лестниц Схема расположения подвесных путей Узлы крепления монорельса Узлы и детали крепления радиостойки Конструкция металлических связей Чертежи основного комплекта марки ОВ Общие данные План на отм. 0.000. План на отм. 3.300. Схемы вентсистем, схема системы отопления Чертежи основного комплекта марки ВК Общие данные План на отм. 0.000 Схемы сетей В1, Т3, К1, К2, К3 Чертежи основного комплекта марки ЭО Электроосвещение. Общие данные Планы 1-го и 2-го этажей с сетями электроосвещения Чертежи основного комплекта марки СС Связь и сигнализация. Общие данные Планы 1-го и 2-го этажей с сетями связи и сигнализации |
| Разработан: | Харьковпроект |
| Утверждён: | 16.07.1986 Госстрой УССР (UkrSSR Gosstroy 136) |
| Издан: | ЦИТП Госстроя СССР (CITP, Gosstroy (USSR) 1988 г. ) |































