Скачать Типовой проект Серия 125 Часть 10. Раздел 10.1-3. Изделия заводского изготовления. Наружные стеновые и цокольные панели из легкого бетона толщиной 300 и 350 мм для общественных зданийДата актуализации: 01.01.2021
|
| Обозначение: | Типовой проект Серия 125 |
| Обозначение англ: | Серия 125 |
| Статус: | действует |
| Название рус.: | Часть 10. Раздел 10.1-3. Изделия заводского изготовления. Наружные стеновые и цокольные панели из легкого бетона толщиной 300 и 350 мм для общественных зданий |
| Дата добавления в базу: | 01.09.2013 |
| Дата актуализации: | 01.01.2021 |
| Дата введения: | 31.12.1970 |
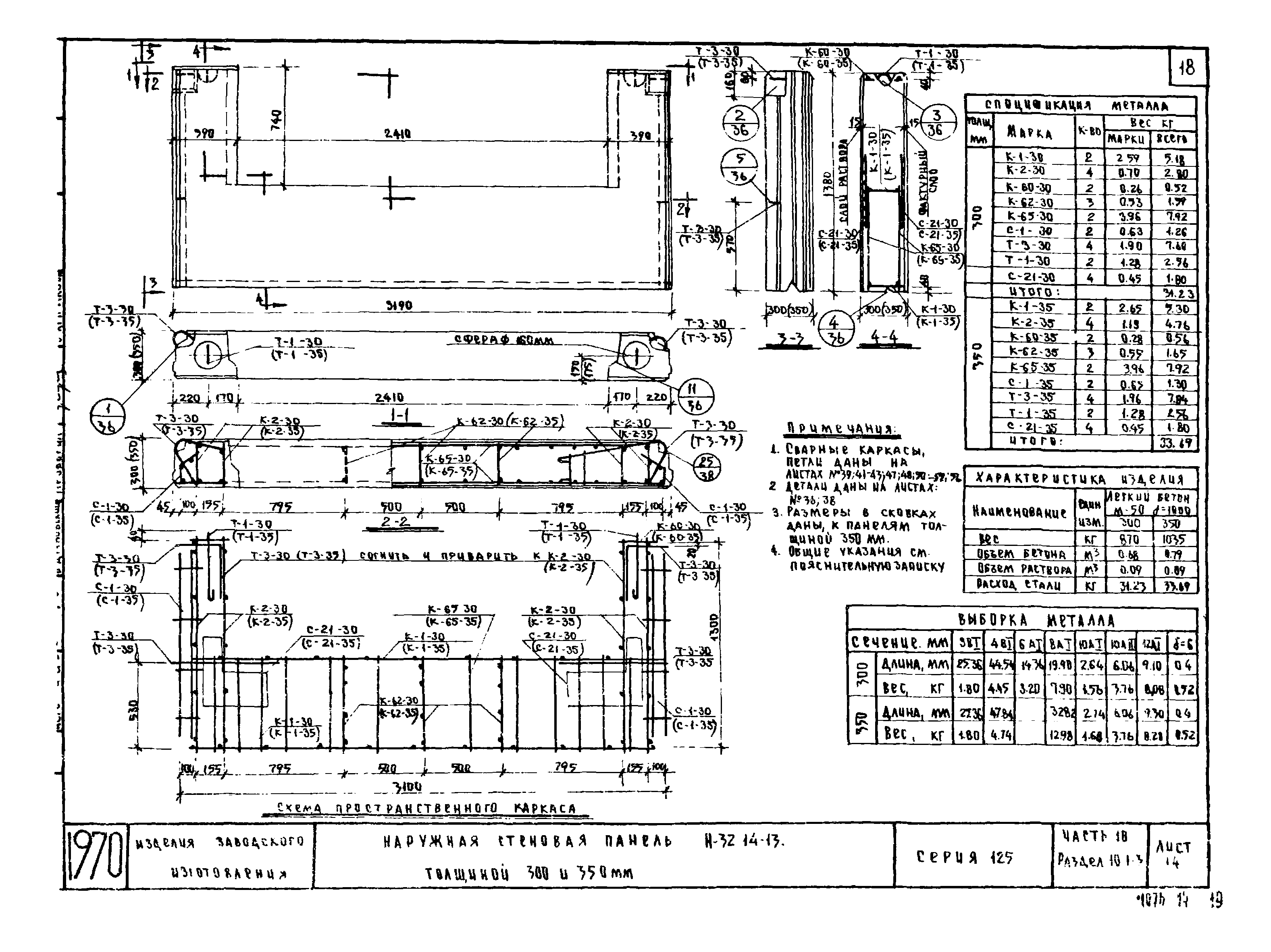
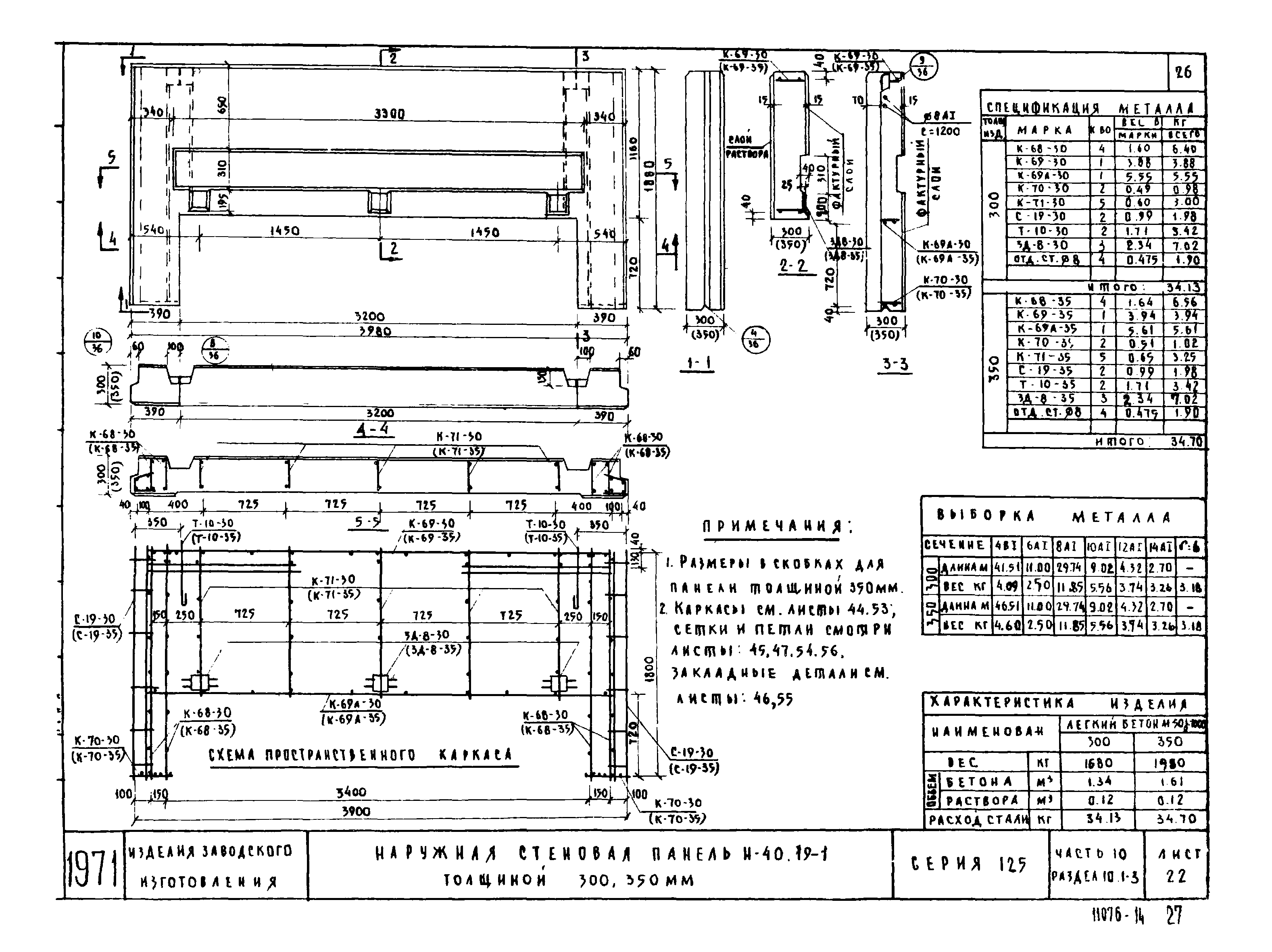
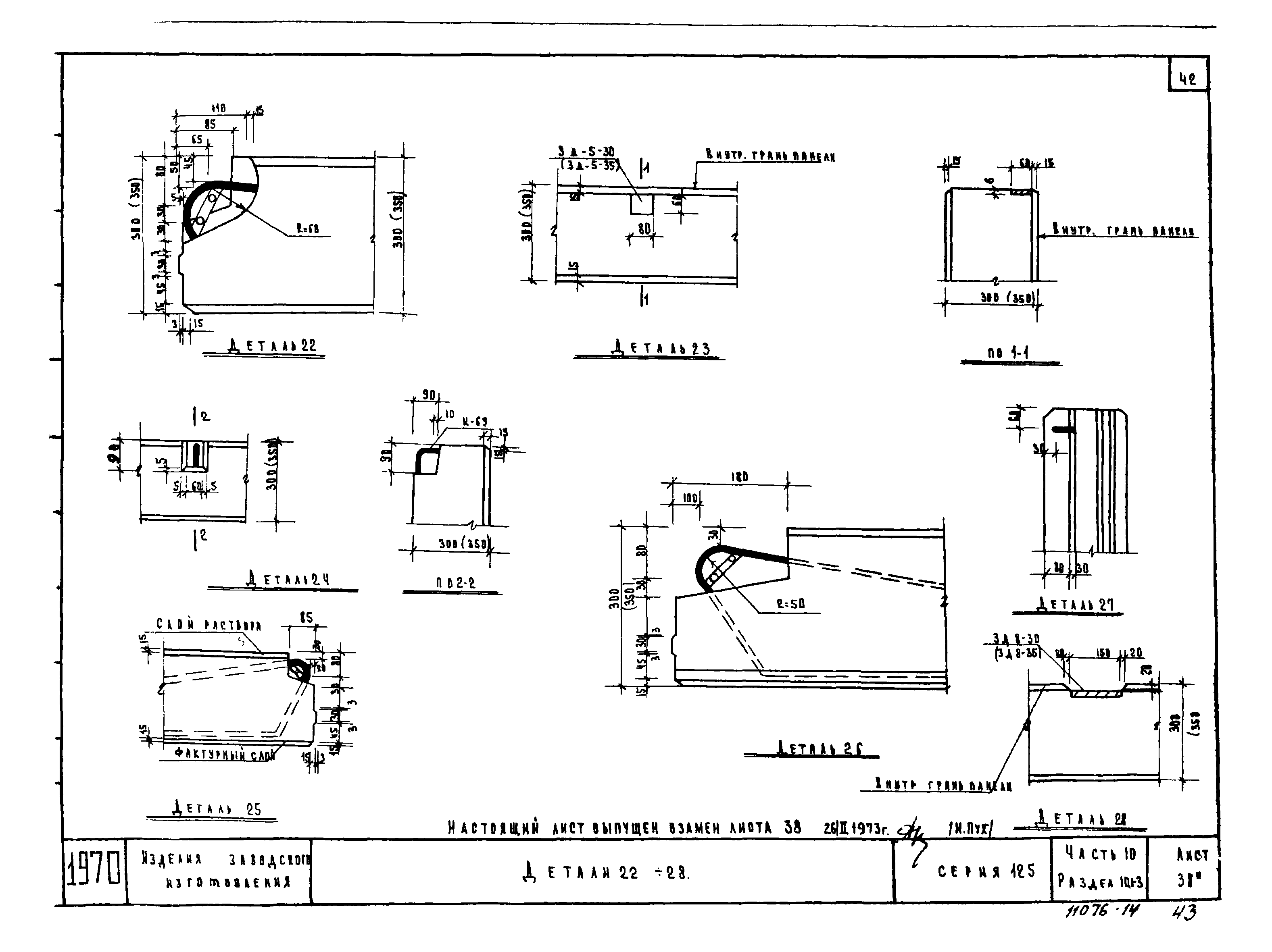
| Оглавление: | Содержание Пояснительная записка Наружные стеновые панели Детали Сварные каркасы. Сетка Закладные детали Монтажные петли Сварные каркасы. Сетка Закладные детали Монтажные петли Цокольная панель |
| Разработан: | КБ по железобетону Госстроя РСФСР |
| Утверждён: | 31.12.1970 Госстрой РСФСР (Russian Federation Gosstroy 142) |






























































