Скачать Типовой проект Серия 125 Часть 10. Раздел 10.1-60ш. Изделия заводского изготовления. Наружные стеновые панели однорядной разрезки из шлакопемзобетона толщиной 400 мм (для строительства в г. Череповце)Дата актуализации: 01.01.2021
|
| Обозначение: | Типовой проект Серия 125 |
| Обозначение англ: | Серия 125 |
| Статус: | действует |
| Название рус.: | Часть 10. Раздел 10.1-60ш. Изделия заводского изготовления. Наружные стеновые панели однорядной разрезки из шлакопемзобетона толщиной 400 мм (для строительства в г. Череповце) |
| Дата добавления в базу: | 01.09.2013 |
| Дата актуализации: | 01.01.2021 |
| Дата введения: | 13.05.1983 |
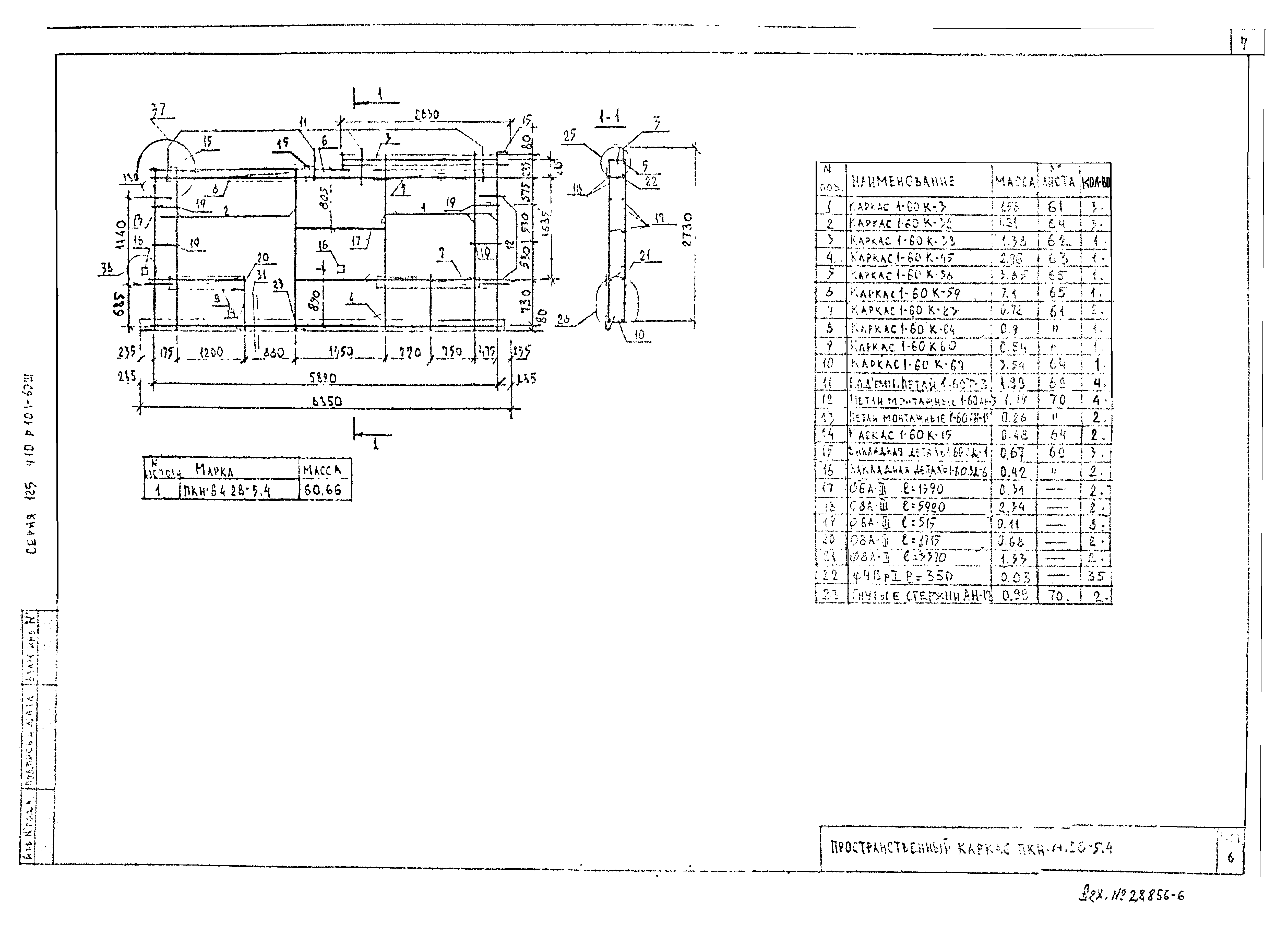
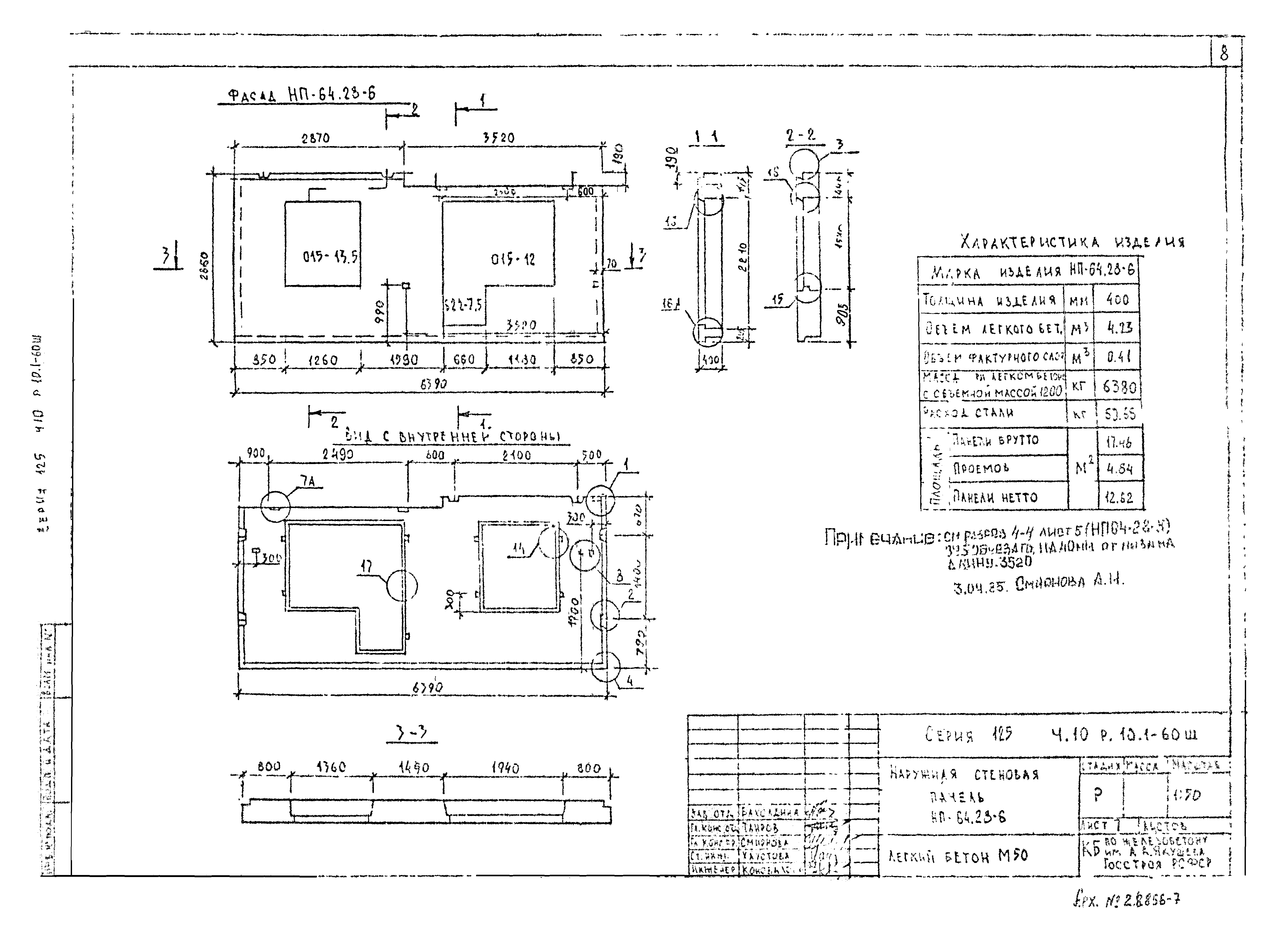
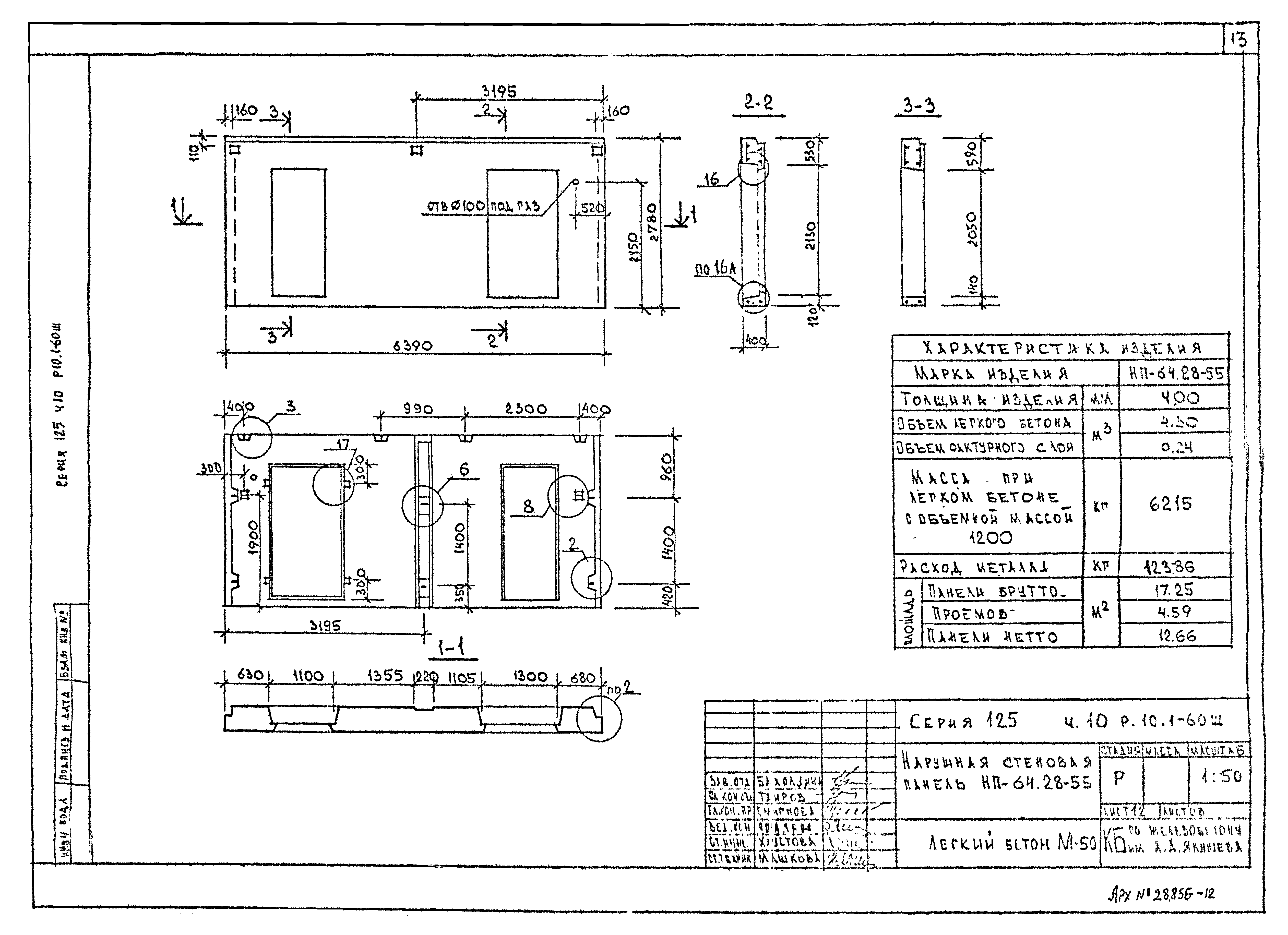
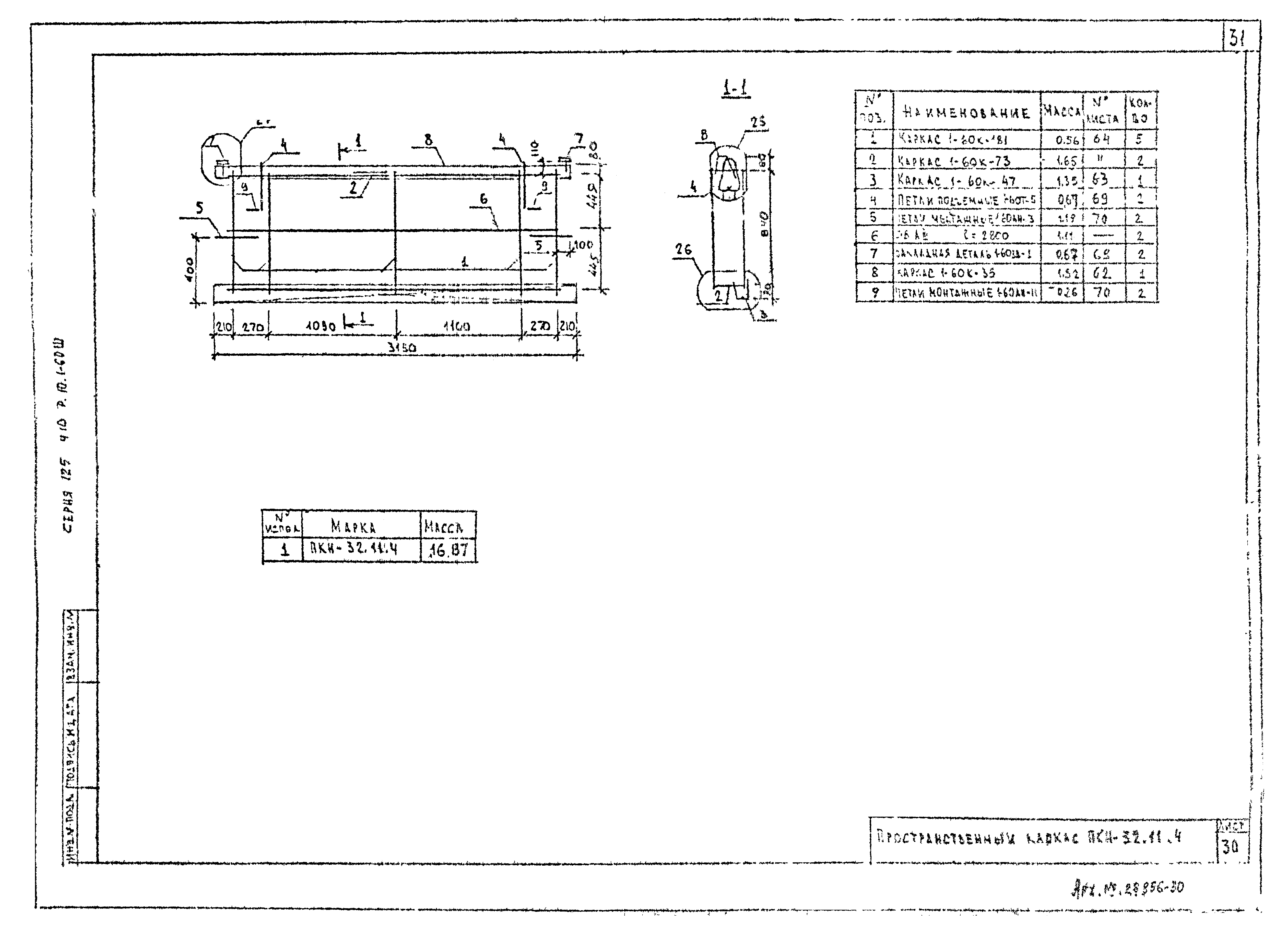
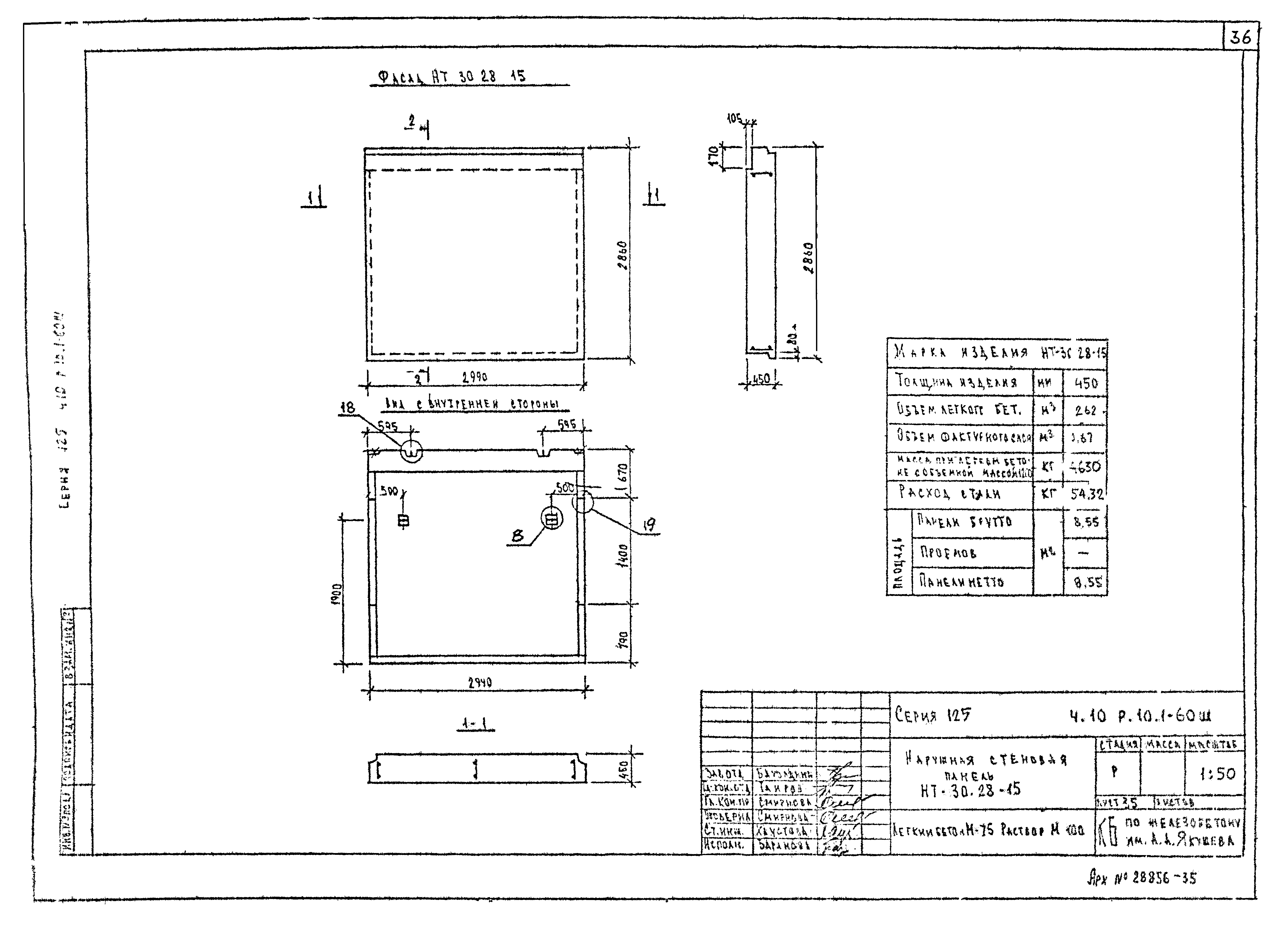
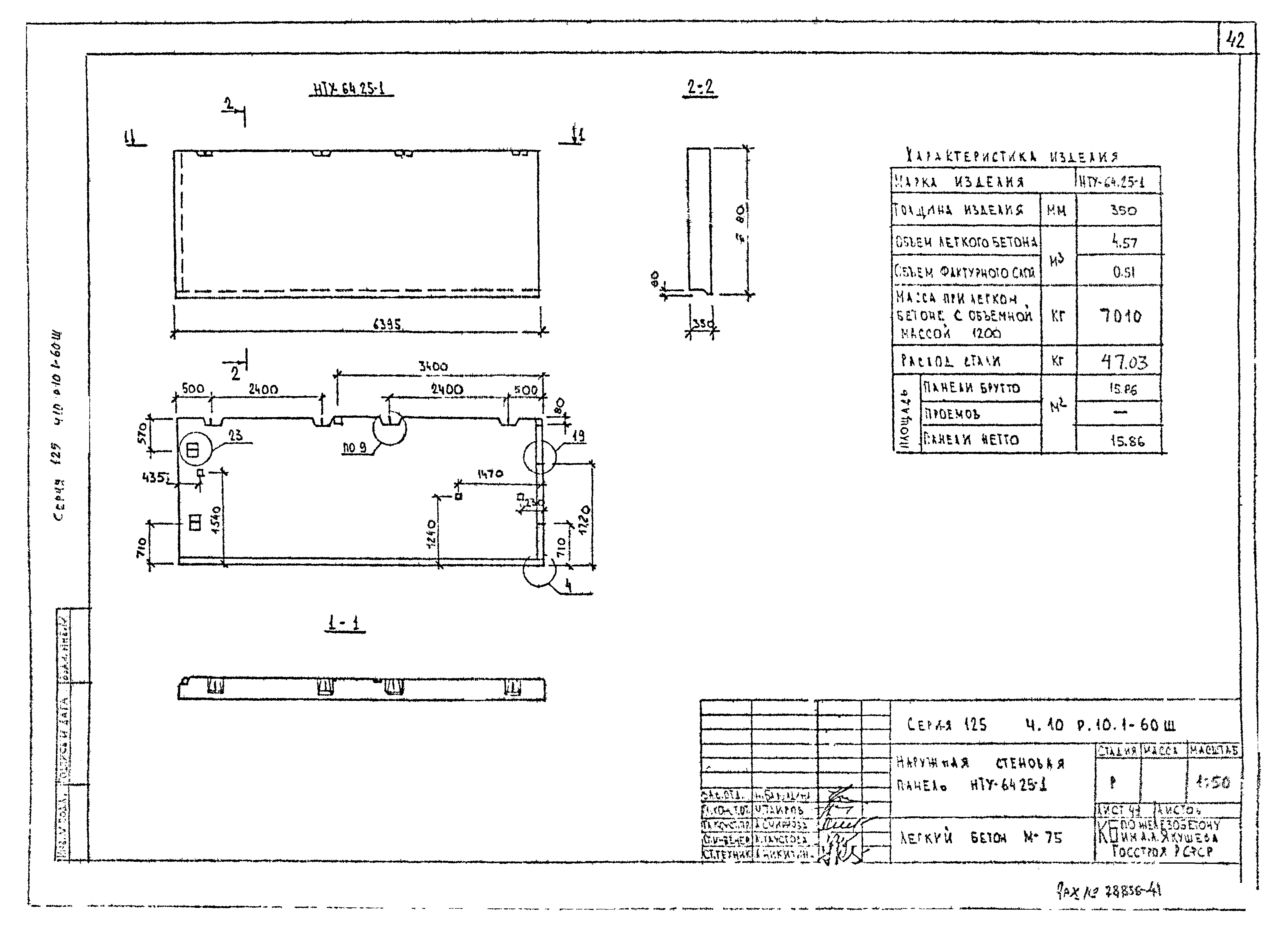
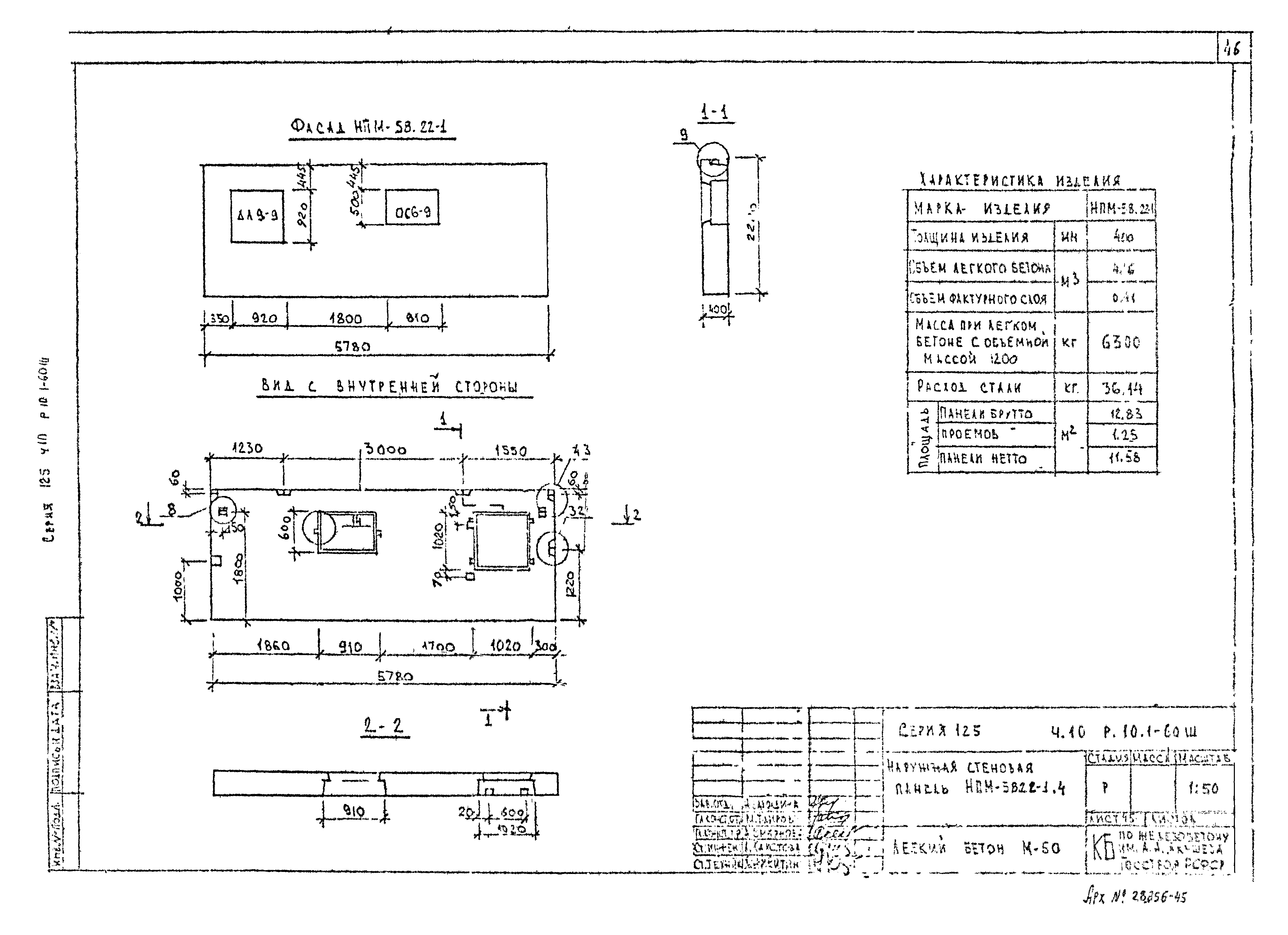
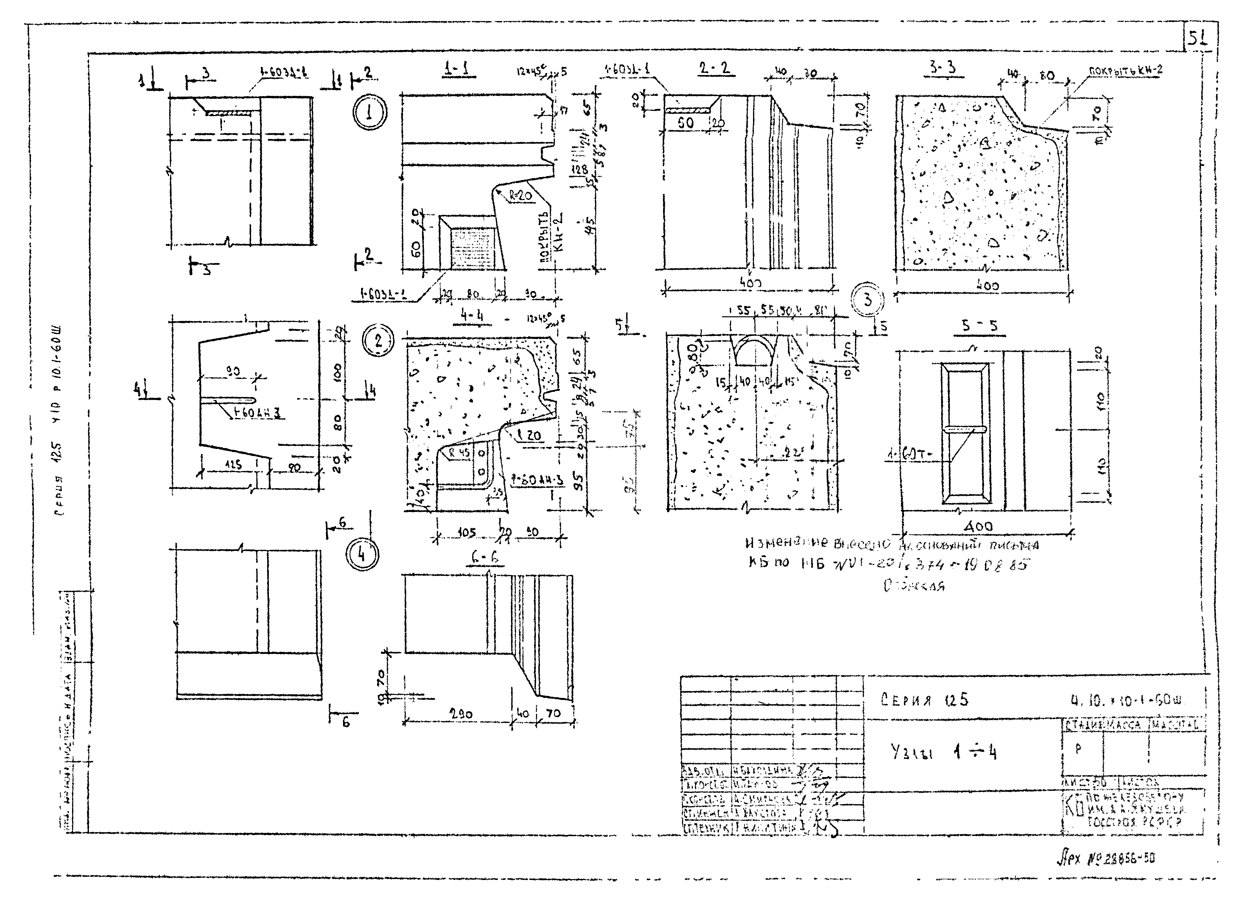
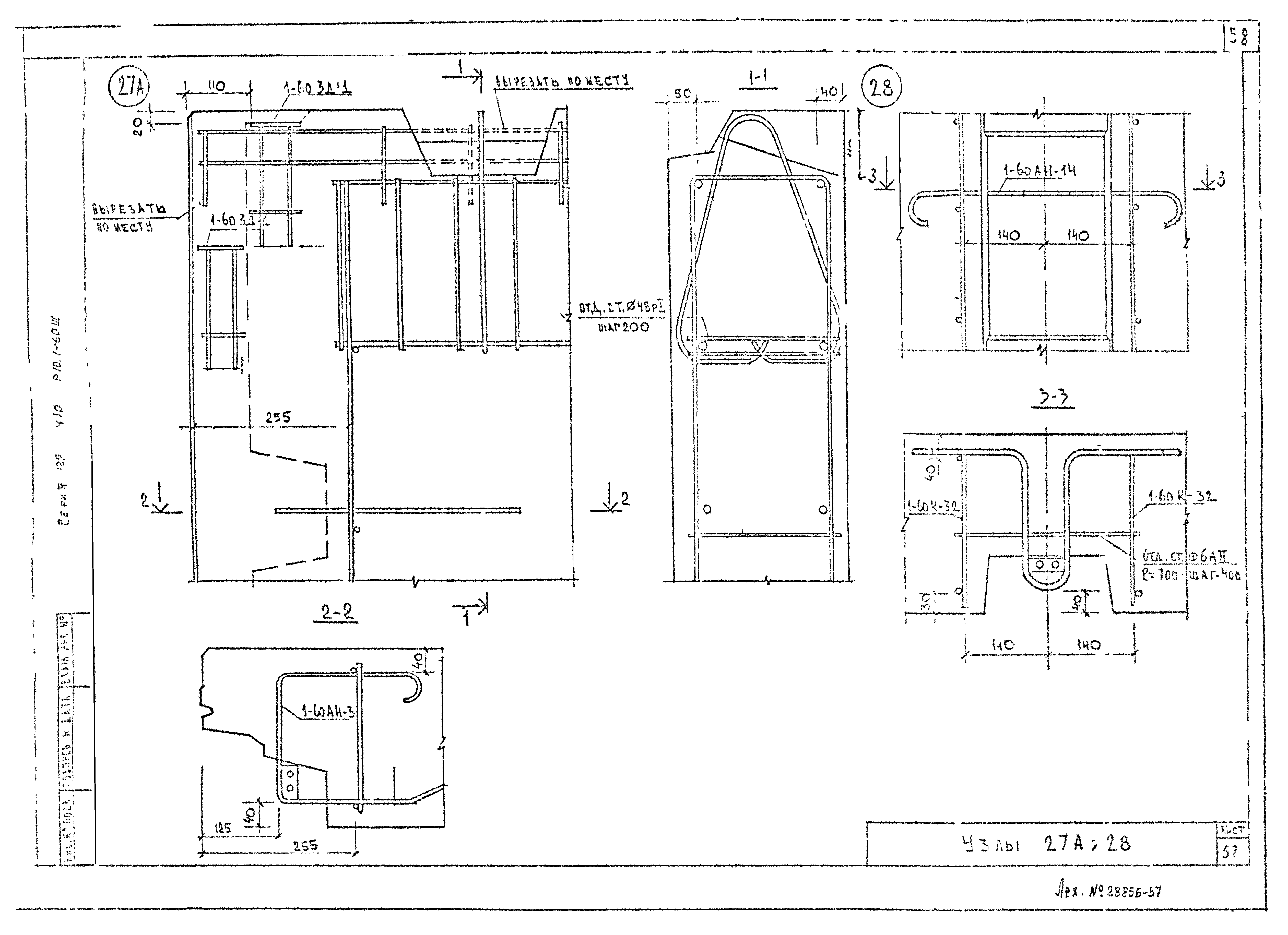
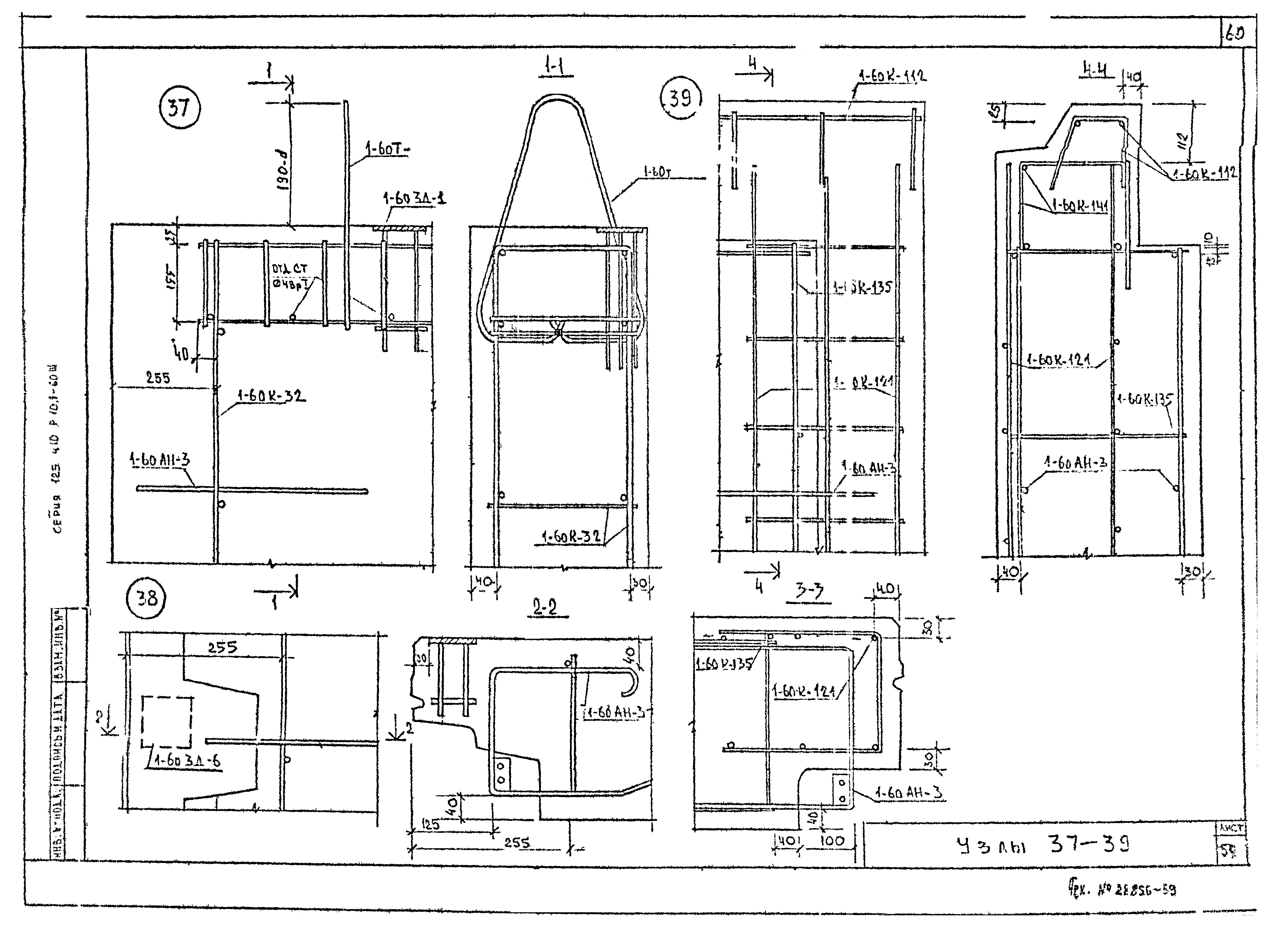
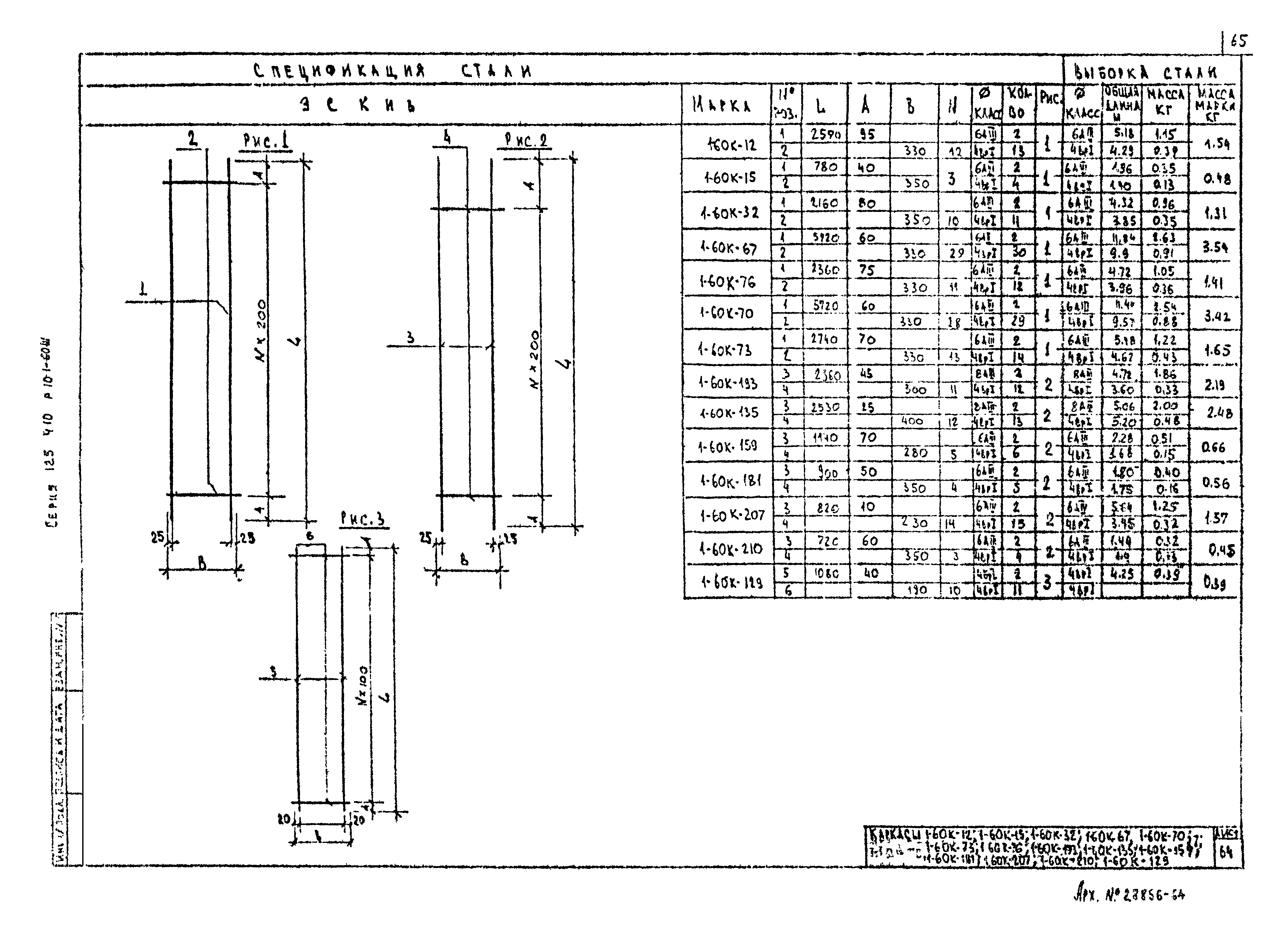
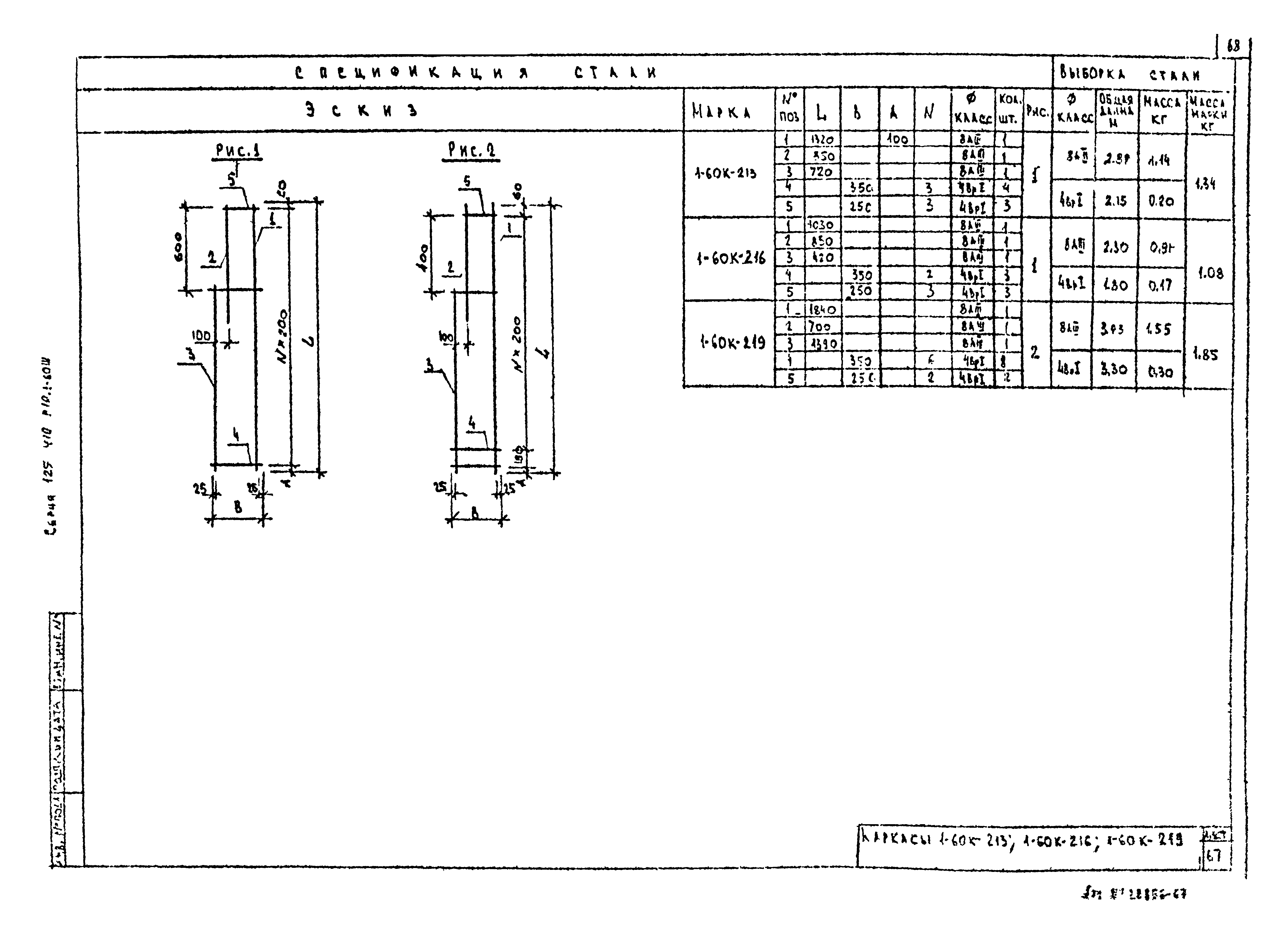
| Оглавление: | Общие данные Наружные стеновые панели. Пространственные каркасы Фризовая панель Пространственный каркас Фризовая панель Наружные стеновые панели. Пространственные каркасы Фризовые панели Наружные стеновые панели. Пространственные каркасы Узлы Каркасы Закладные детали Петли Выборка стали Наружные стеновые панели. Пространственные каркасы |
| Разработан: | КБ по железобетону Госстроя РСФСР |
| Утверждён: | 19.12.1978 Госстрой РСФСР (Russian Federation Gosstroy 8-23) |











































































