Скачать Типовой проект Серия 125 Часть 10. Раздел 10.9-1. Изделия заводского изготовления. Изделия нулевого циклаДата актуализации: 01.01.2021
|
| Обозначение: | Типовой проект Серия 125 |
| Обозначение англ: | Серия 125 |
| Статус: | действует |
| Название рус.: | Часть 10. Раздел 10.9-1. Изделия заводского изготовления. Изделия нулевого цикла |
| Дата добавления в базу: | 01.09.2013 |
| Дата актуализации: | 01.01.2021 |
| Дата введения: | 28.08.1970 |
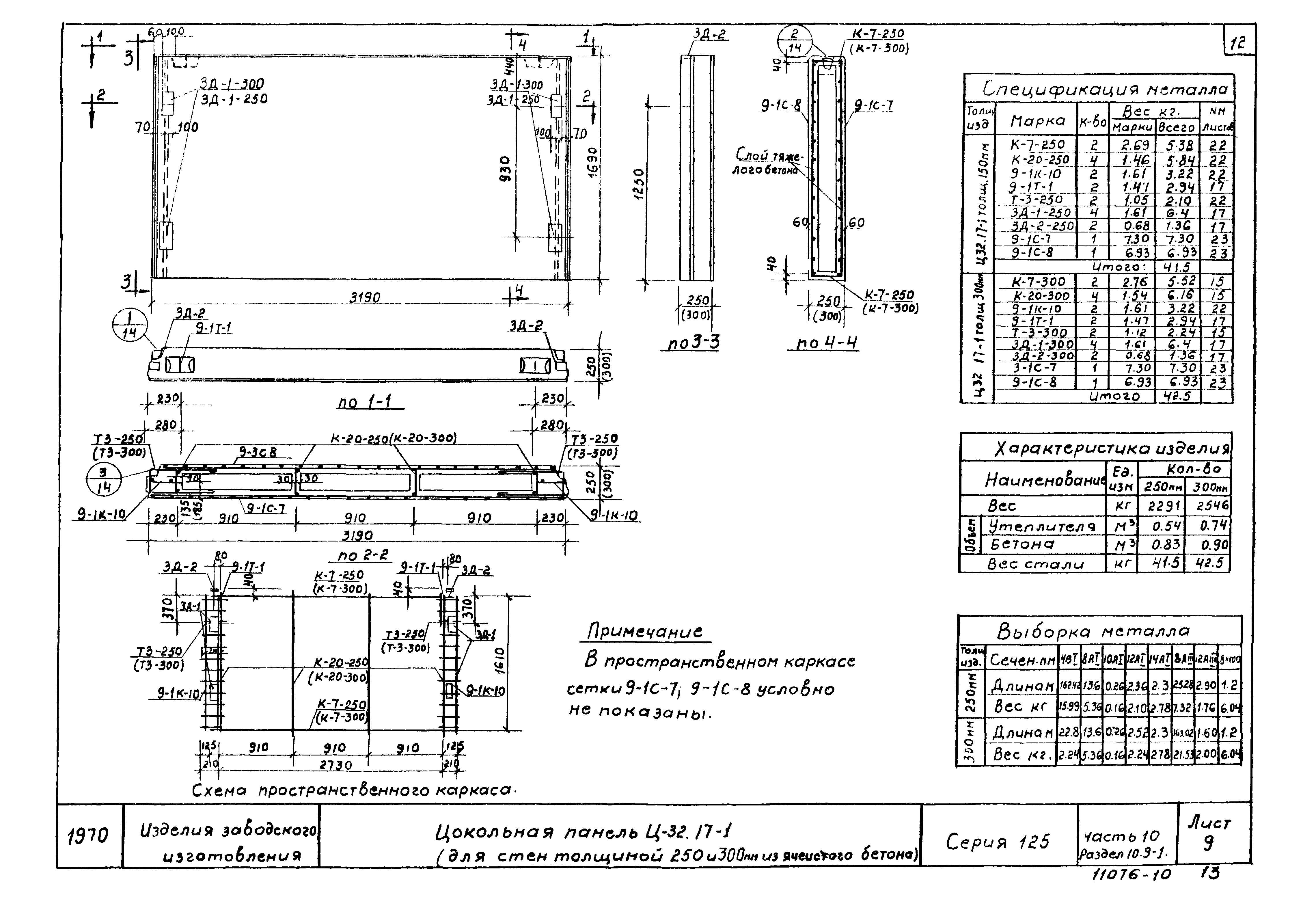
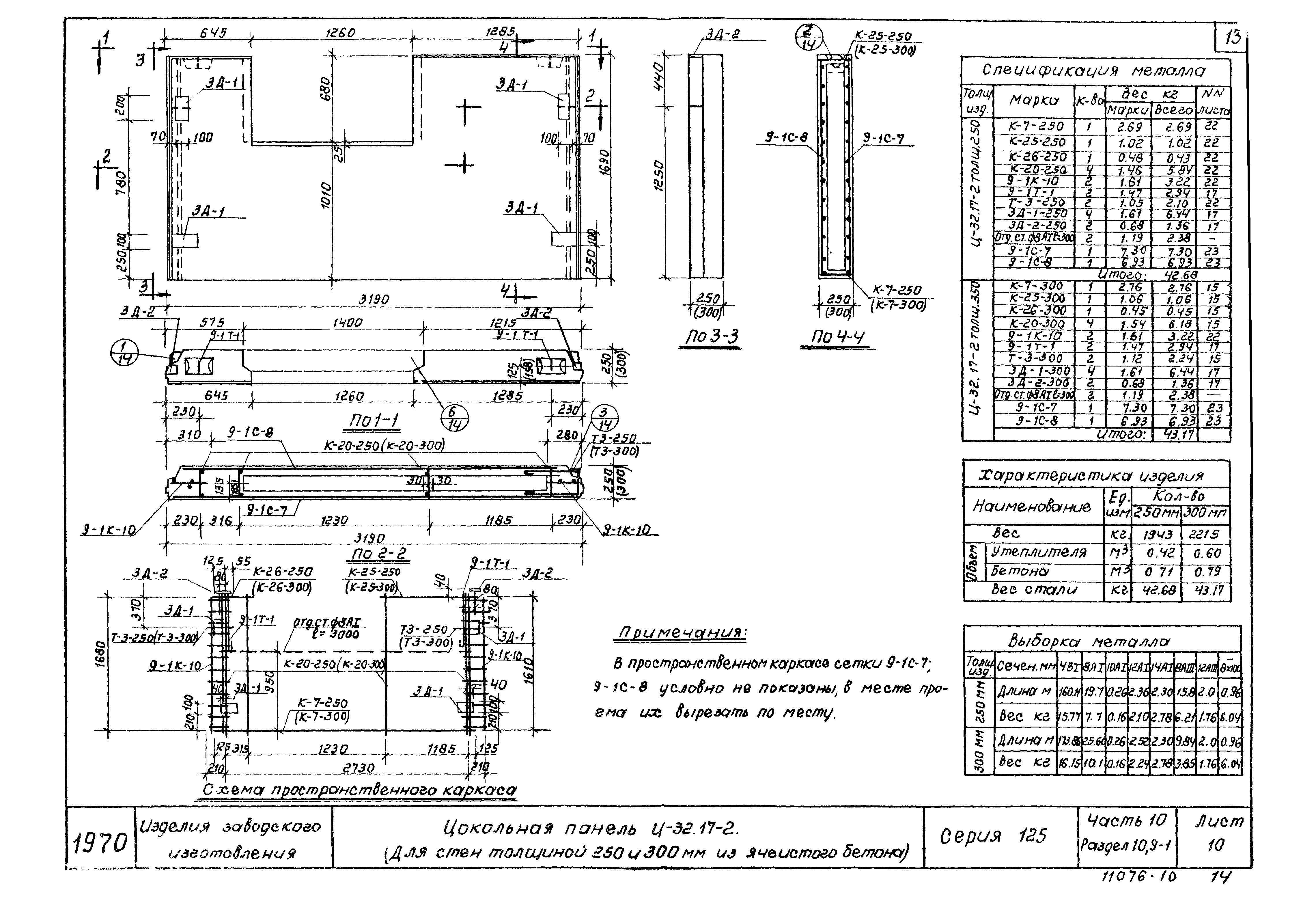
| Оглавление: | Содержание альбома Пояснительная записка Цокольная панель Детали Цокольная панель Детали Сварные каркасы Подъемные петли. Закладные детали Сварные каркасы. Петли Фундаментные блоки Фундаментная панель Ребро лоджии Детали Сварные сетки. Петли Сварные каркасы Закладные детали. Петли Сварные каркасы Плита входа |
| Разработан: | КБ по железобетону Госстроя РСФСР |
| Утверждён: | 28.08.1970 Госстрой РСФСР (Russian Federation Gosstroy 8-23) |















































