Скачать Утепление фасадов. Системы фасадной теплоизоляции Термомакс и Термомакс-Е для нового строительства и капитального ремонтаДата актуализации: 01.01.2021 |
| Статус: | справочные материалы, мп, тпр |
| Название рус.: | Утепление фасадов. Системы фасадной теплоизоляции Термомакс и Термомакс-Е для нового строительства и капитального ремонта |
| Дата добавления в базу: | 01.09.2013 |
| Дата актуализации: | 01.01.2021 |
| Область применения: | Руководство по монтажу систем наружной теплоизоляции фасадов зданий "Ремтеко-Термомакс" и "Ремтеко-Термомакс-Е" разработано для проведения и проверки правильности монтажа систем теплоизоляции "Ремтеко-Термомакс" и "Ремтеко-Термомакс-Е". |
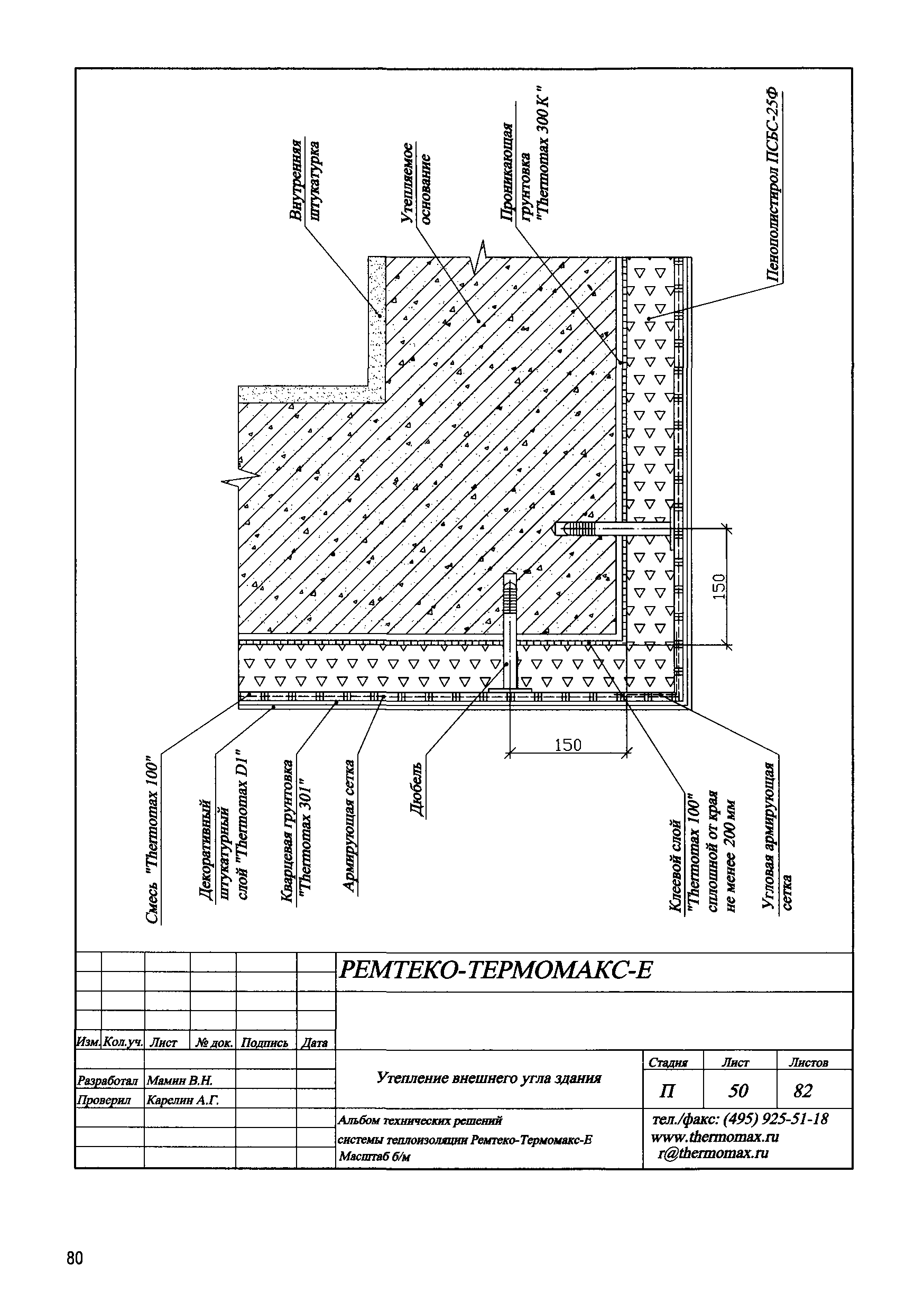
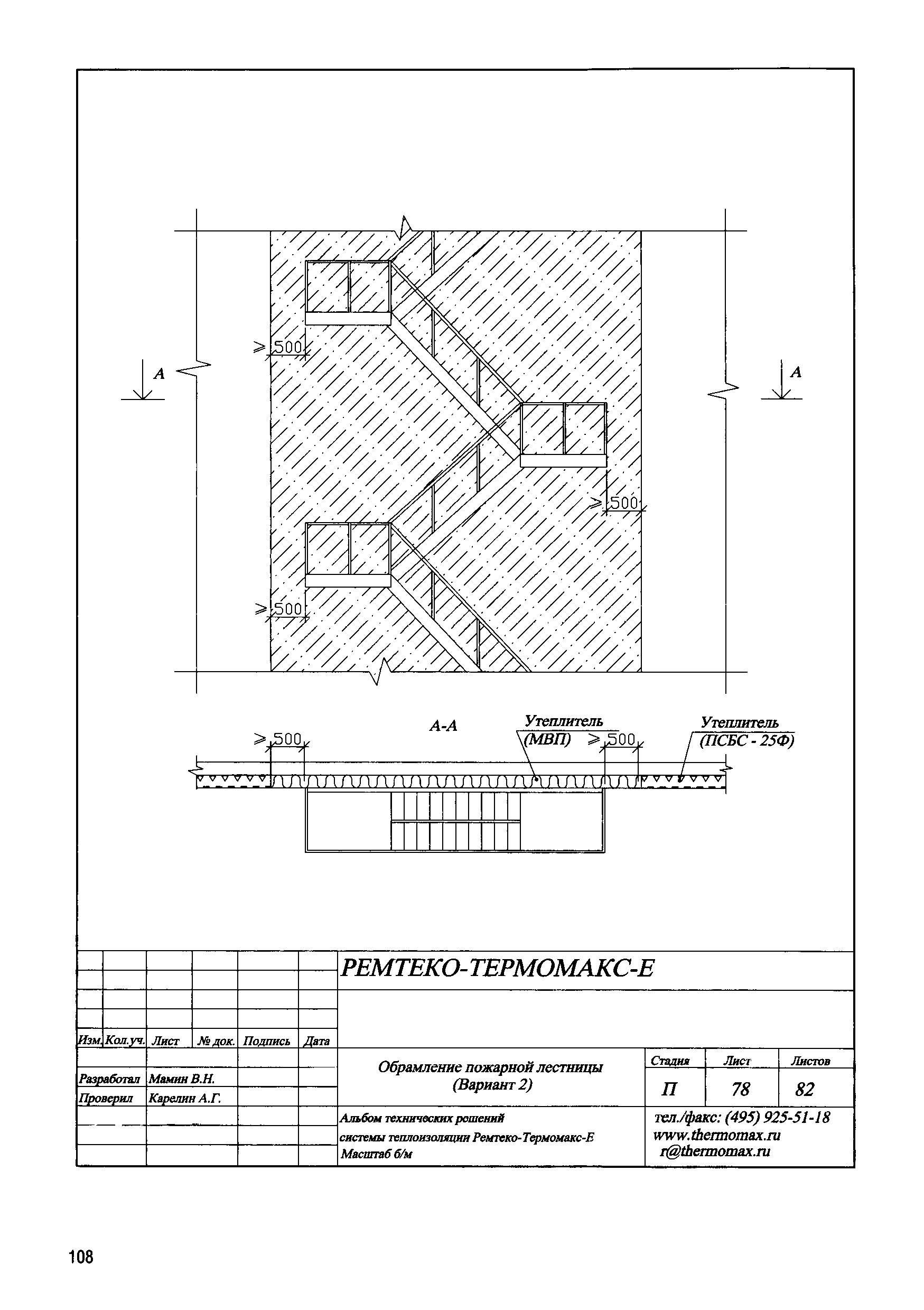
| Оглавление: | Расход и ориентировочная стоимость комплектующих для системы утепления фасадов Термомакс-Е Техническое свидетельство Техническое свидетельство Заключение - техническая оценка пригодности Введение Общие положения Принципиальное описание, назначение и область применения систем Показатели и параметры. Характеризующие безопасность и надежность систем Дополнительные условия по контролю качества устройства системы Выводы Перечень использованных документов и материалов Руководство по наружному утеплению стен зданий с использованием систем фасадной теплоизоляции Термомакс и Термомакс -Е Общие положения Подготовительные работы Установка строительных лесов Подготовка строительного основания Монтаж систем теплоизоляции Термомакс и Термомакс-Е Монтаж цокольного профиля Приклеивание теплоизоляционных плит к основанию Приготовление растворной смеси Нанесение клеевого состава на теплоизоляционные плиты Механическое крепление теплоизоляционных плит дюбелями Установка усиливающих элементов и профилей Создание защитного армированного слоя Меры по антивандальной защите Устройство внешнего декоративного слоя Грунтовка под декоративную отделку Нанесение внешнего декоративного слоя Приготовление растворной смеси Нанесение на основание Окраска декоративного защитного слоя Герметизация Заделка мест анкеровки строительных лесов Консервация систем теплоизоляции в случае незавершенного монтажа Ремонт и уход за системами Требования безопасности Комментарии к экспликациям Комментарии по системе "Thermomax-Е" Альбом технических решений для массового применения Условные обозначения Схема системы фасадной теплоизоляции "Thermomax-Е" Установка цокольного профиля Схема нанесения клеевого состава на плиту утеплителя Расположение выравнивающих вставок при отклонении плоскости стены от нормали Аксонометрическая схема укладки теплоизоляционных плит Утепление рядового участка стены Крепление дюбелями теплоизоляционных плит, глубина крепления в разных основаниях Схема установки дюбелей (вариант 1 ПСБС) Схема установки дюбелей (вариант 2 Минвата) Деталь утепления цоколя Примыкание системы к цоколю (вариант 1) Примыкание системы к цоколю (вариант 2) Примыкание системы к цоколю (вариант 3) Примыкание системы к цоколю (вариант 4) Примыкание систем к цоколю (вариант 5) Примыкание системы к цоколю (вариант 6) Примыкание системы к цоколю с утеплением фундамента здания (вариант 7) Примыкание системы к цоколю с утеплением ниже уровня земли (вариант 8) Схема установки противопожарных рассечек при комбинированном утеплении здания Усиление углов оконных проемов Оконное соединение без откоса с помощью профиля оконного примыкания Оконное соединение без откоса с помощью профиля оконного примыкания с устройством противопожарных рассечек Оконное соединение с изоляцией откоса с помощью профиля оконного примыкания Оконное соединение с изоляцией откоса с помощью профиля оконного примыкания с устройством противопожарных рассечек Оконное соединение с изоляцией откоса с примыканием через уплотнительную ленту Оконное соединение с изоляцией откоса с примыканием через уплотнительную ленту с устройством противопожарных рассечек Примыкание системы к оконному проему без утепления откоса Примыкание системы к отливу с устройством противопожарных рассечек Организация подоконного отлива Примыкание системы к оконному проему с коробом для жалюзи Примыкание системы к дверному блоку Примыкание системы к отливу (вариант 1) Примыкание системы к отливу (вариант 2) Примыкание системы к отливу (вариант 3) Организация подоконного отлива без утепления откоса Примыкание системы к отливу (вариант 4) Примыкание комбинированной системы к подшивной кровле Примыкание системы к вентилируемой кровле Комбинированное утепление карнизной части здания невентилируемой кровли Комбинированное утепление карнизной части здания вентилируемой кровли Примыкание комбинированной системы к парапету Примыкание комбинированной системы к парапету с утепленной кровлей Примыкание комбинированной системы к плоской кровле Устройство температурного шва с помощью деформационного профиля (вариант 1) Устройство температурного шва с помощью деформационного профиля (вариант 2) Устройство углового температурного шва с помощью деформационного профиля Устройство температурного шва с помощью цокольного профиля Устройство углового деформационного шва с помощью цокольного профиля Утепление внешнего угла здания Завершение системы цокольным профилем на внешних вертикальных углах Примыкание системы к односкатной кровле Примыкание системы к односкатной кровле с устройством противопожарных рассечек Примыкание системы к балконной плите с облицовкой керамической плиткой Примыкание системы к балконной плите Примыкание системы к вентилируемому фасаду. (Вариант1) Примыкание системы к вентилируемому фасаду. (Вариант 2) Примыкание системы к вентилируемому фасаду. (Вариант 3) Примыкание системы к вентилируемому фасаду на внутренних вертикальных углах. (Вариант 1) Примыкание системы к вентилируемому фасаду на внутренних вертикальных углах. (Вариант 2) Примыкание системы к вентилируемому фасаду на внешних вертикальных углах Примыкание комбинированной системы к ранее установленной Примыкание системы к существующим коммуникациям Узел примыкания системы теплоизоляции к наружному газопроводу по фасадной разводке (вариант 1) Узел примыкания системы теплоизоляции к наружному газопроводу по фасадной разводке (вариант 2) Узел примыкания системы теплоизоляции к наружному газопроводу по фасадной разводке (вариант 3) Примыкание балконного ограждении к системе Узлы крепления навесных элементов: транспортных растяжек, кондиционеров, легких элементов Установка навесных элементов (осветительные приборы, номерные знаки, указатели) Установка навесных элементов (флагодержатель) Устройство декоративного карниза Устройство декоративного наличника Выполнение рустов Применение углового элемента с капельником на внешних горизонтальных углах Утепление горизонтальных поверхностей Примыкание системы к лестничному маршу Обрамление пожарной лестницы (вариант 1) Обрамление пожарной лестницы (вариант 2) Утепление балконов и лоджий Утепление вертикального внутреннего угла Утепление эвакуационного выхода Аксонометрическая схема утепления вертикального внутреннего угла Контактная информация |
| Разработан: | ООО СтройГрупп |
| Нормативные ссылки: |
|





















































































































