Скачать Типовой проект 262-21-37 Альбом I. Часть 1. Архитектурные и технологические чертежиДата актуализации: 01.01.2021
|
| Обозначение: | Типовой проект 262-21-37 |
| Обозначение англ: | 262-21-37 |
| Статус: | не определен законодательством |
| Название рус.: | Альбом I. Часть 1. Архитектурные и технологические чертежи |
| Дата добавления в базу: | 01.09.2013 |
| Дата актуализации: | 01.01.2021 |
| Дата введения: | 06.04.1982 |
| Дата окончания срока действия: | 30.06.2003 |
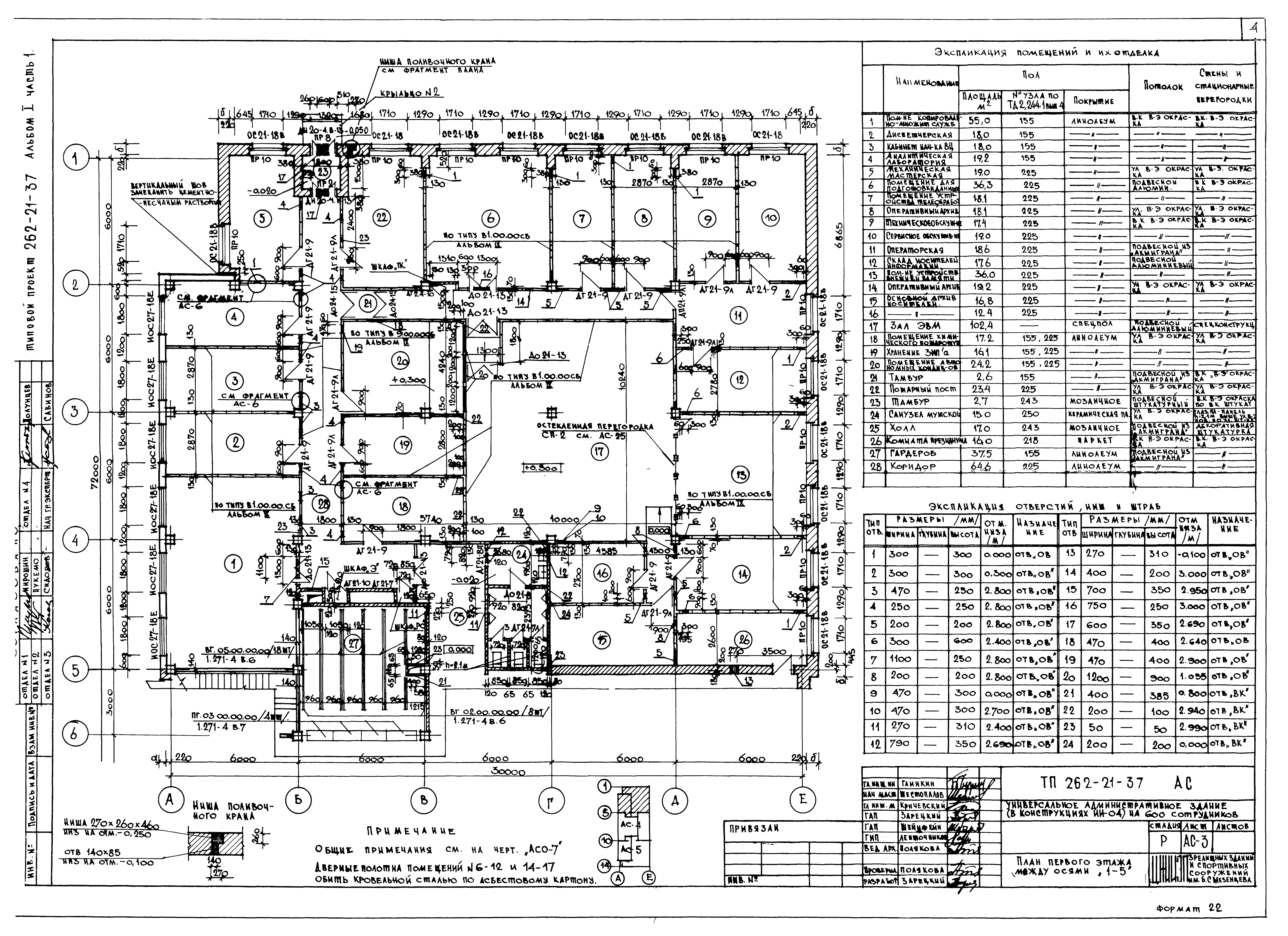
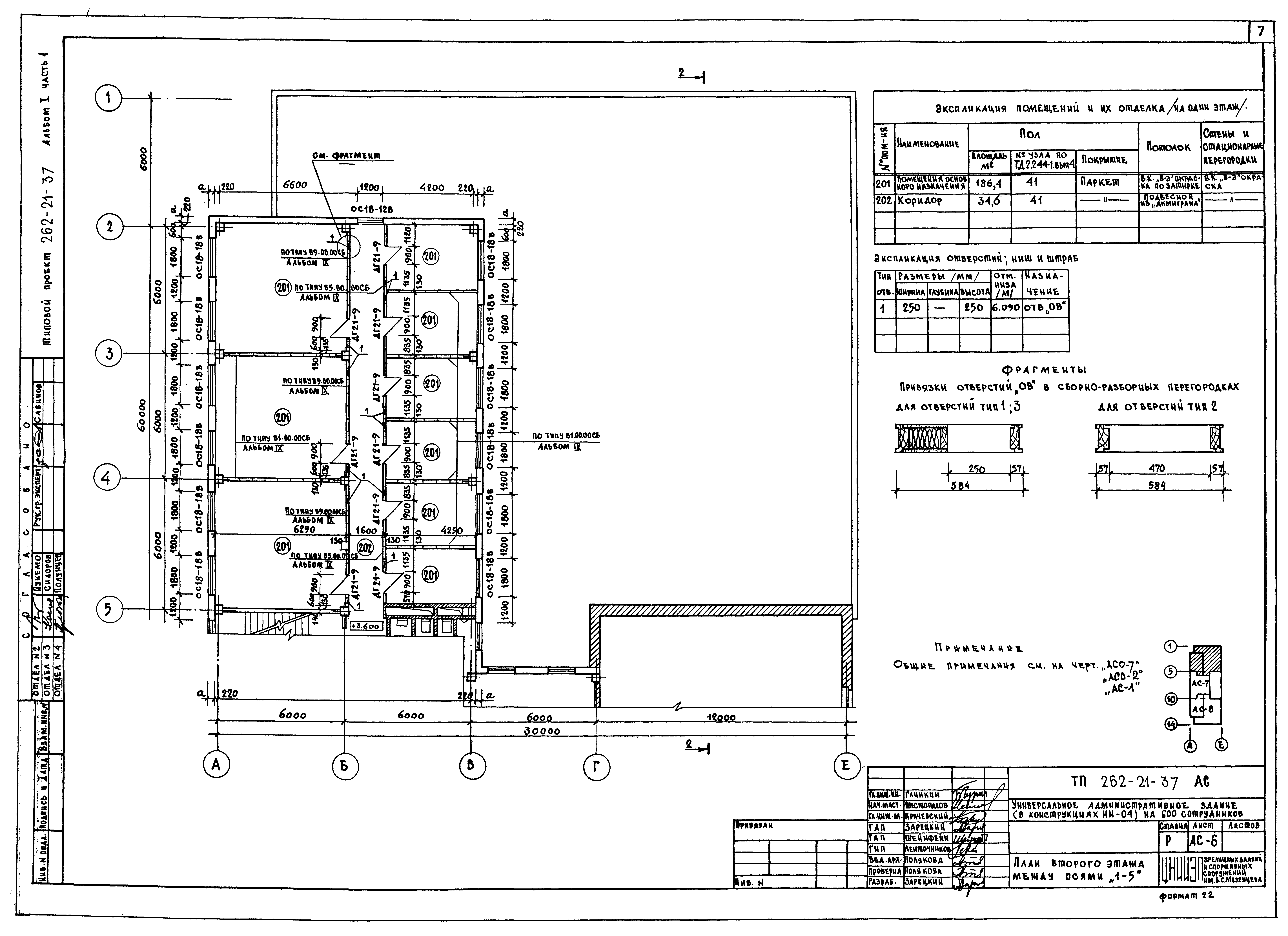
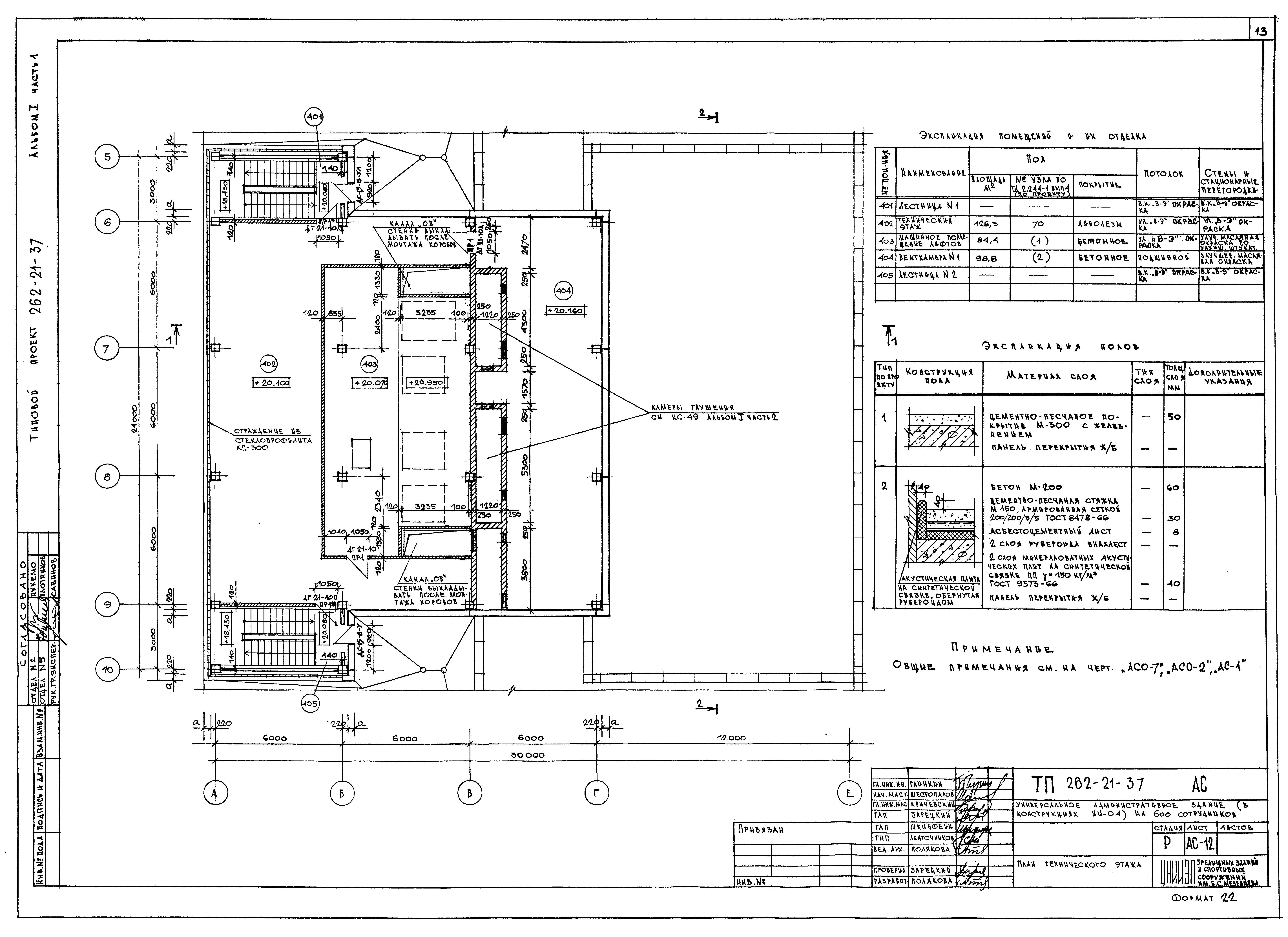
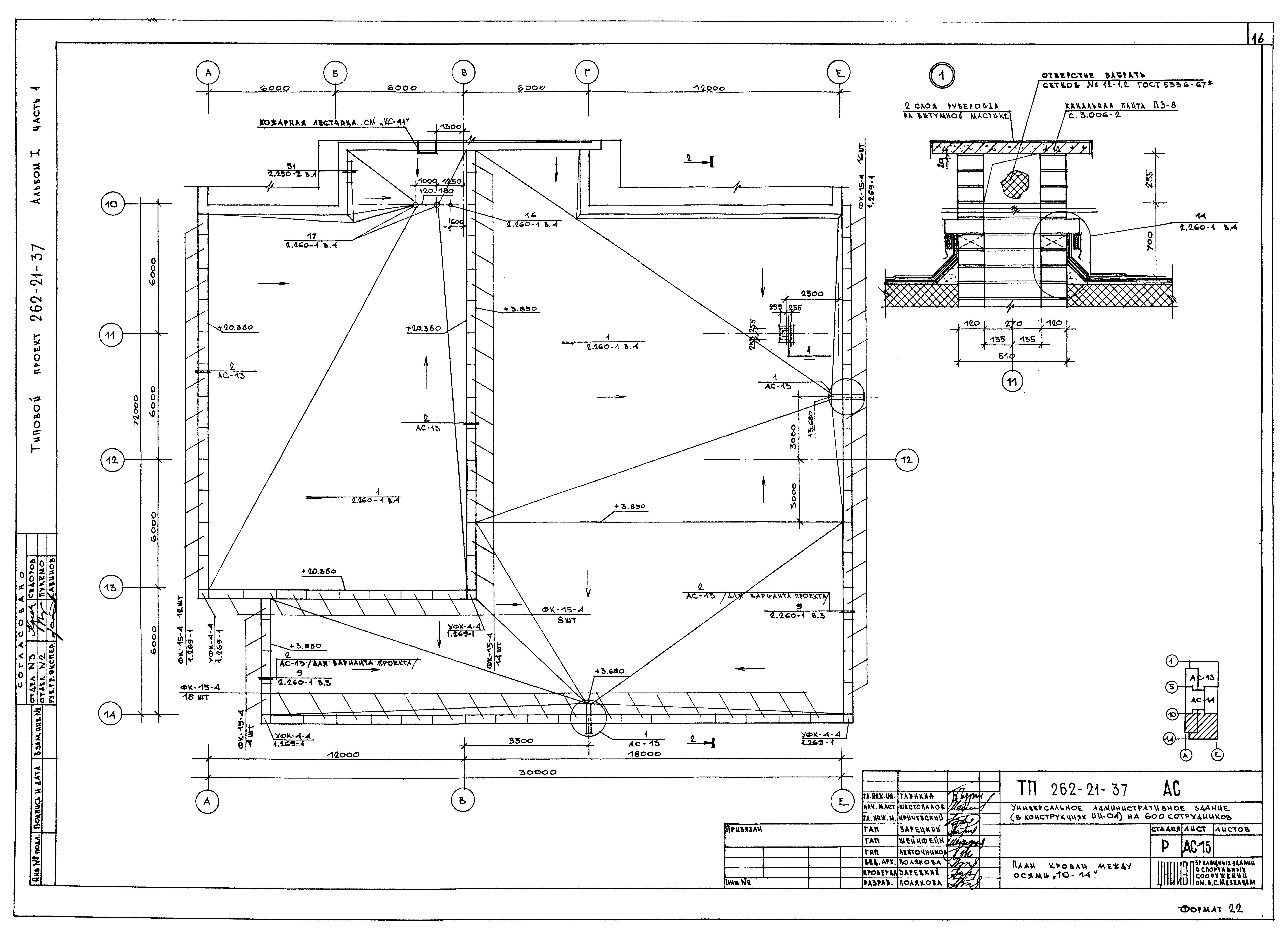
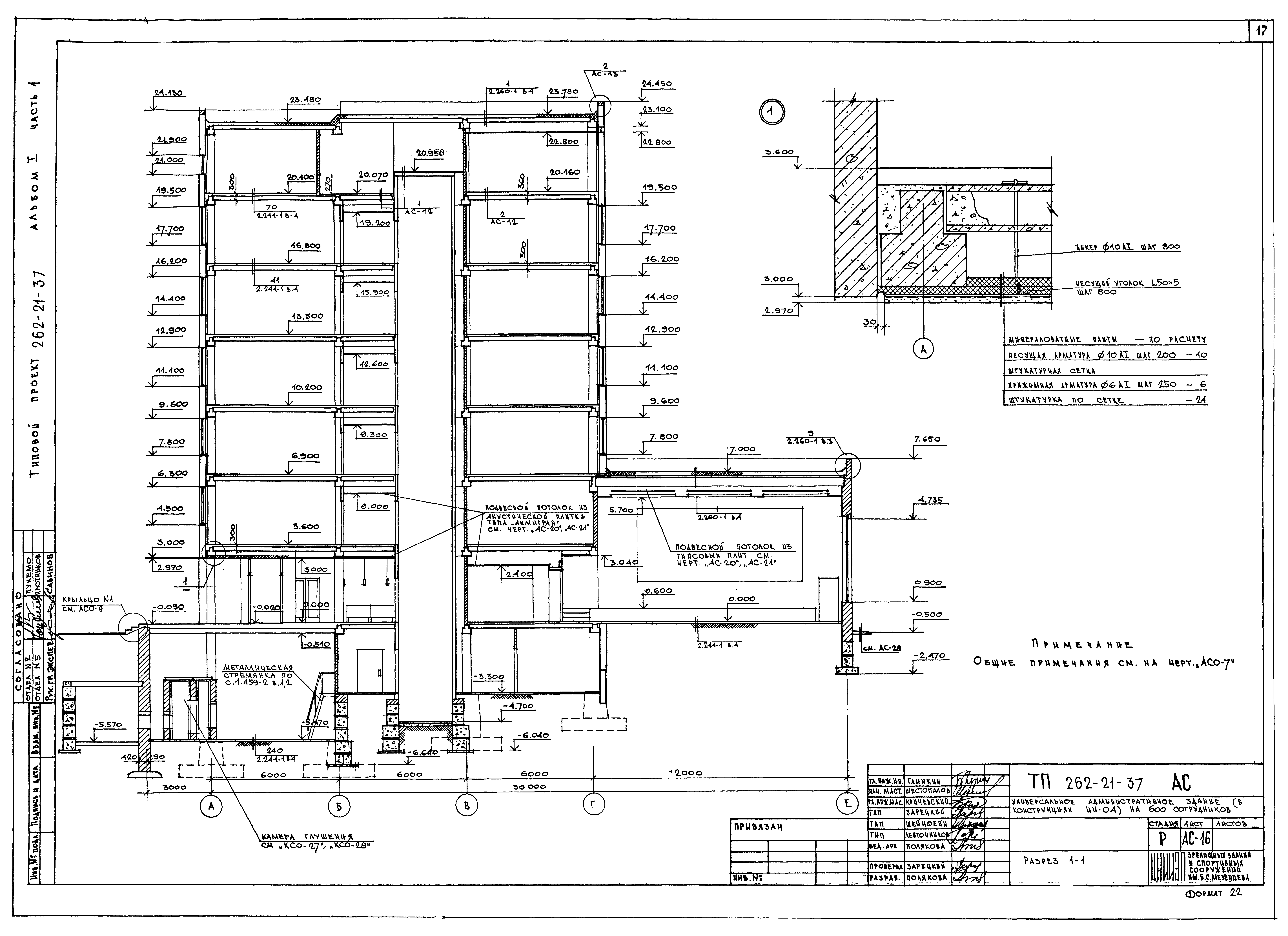
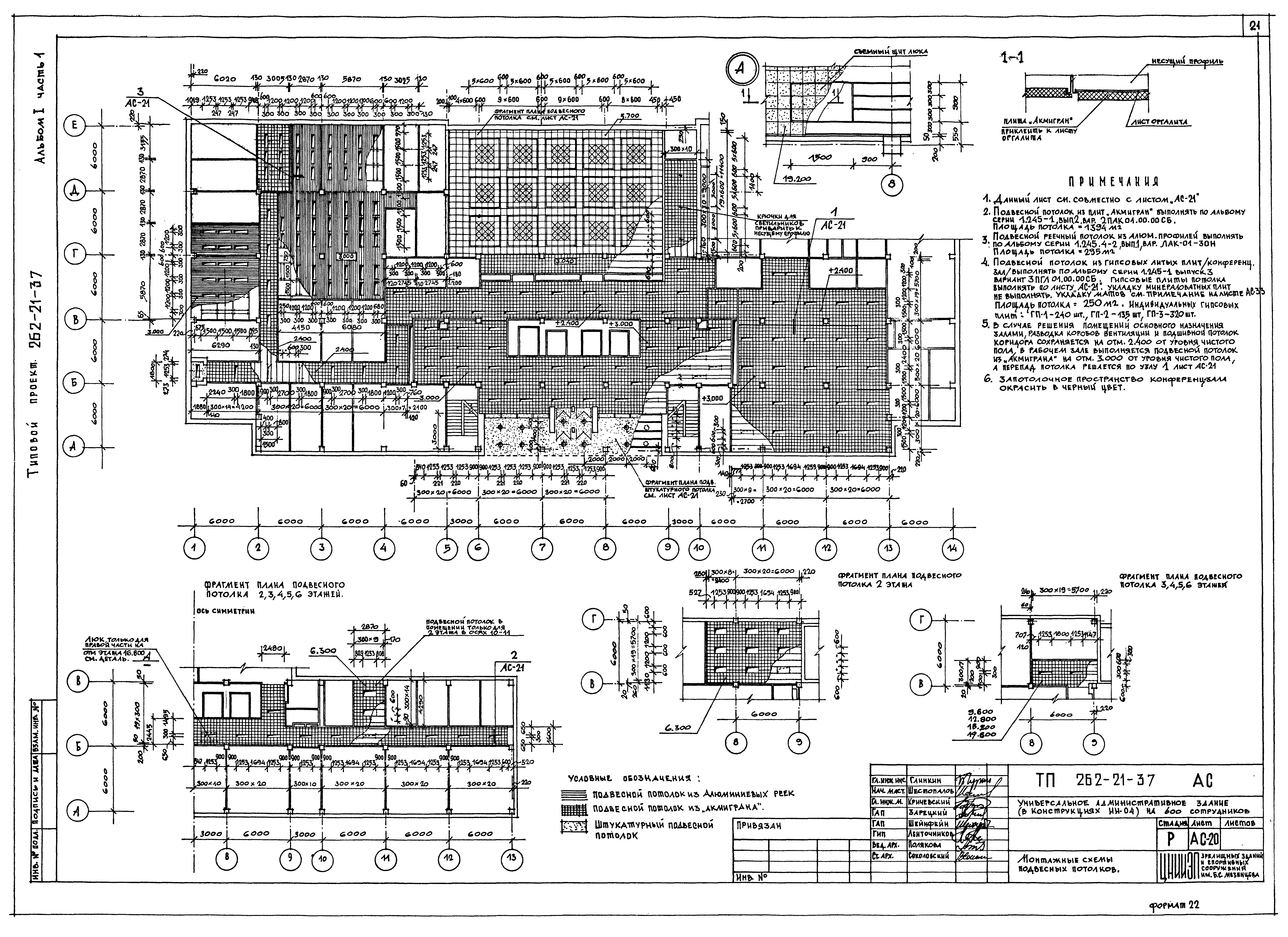
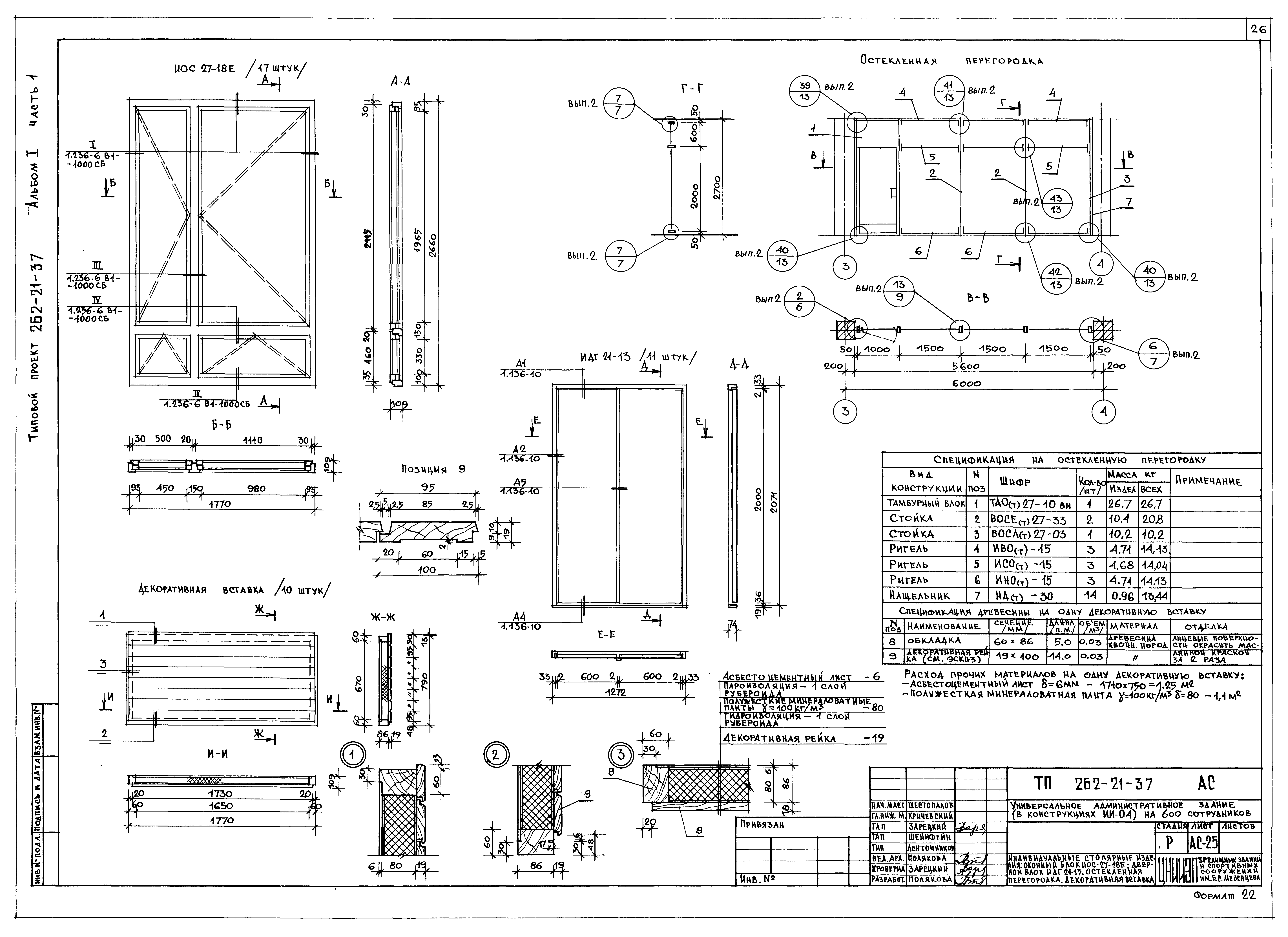
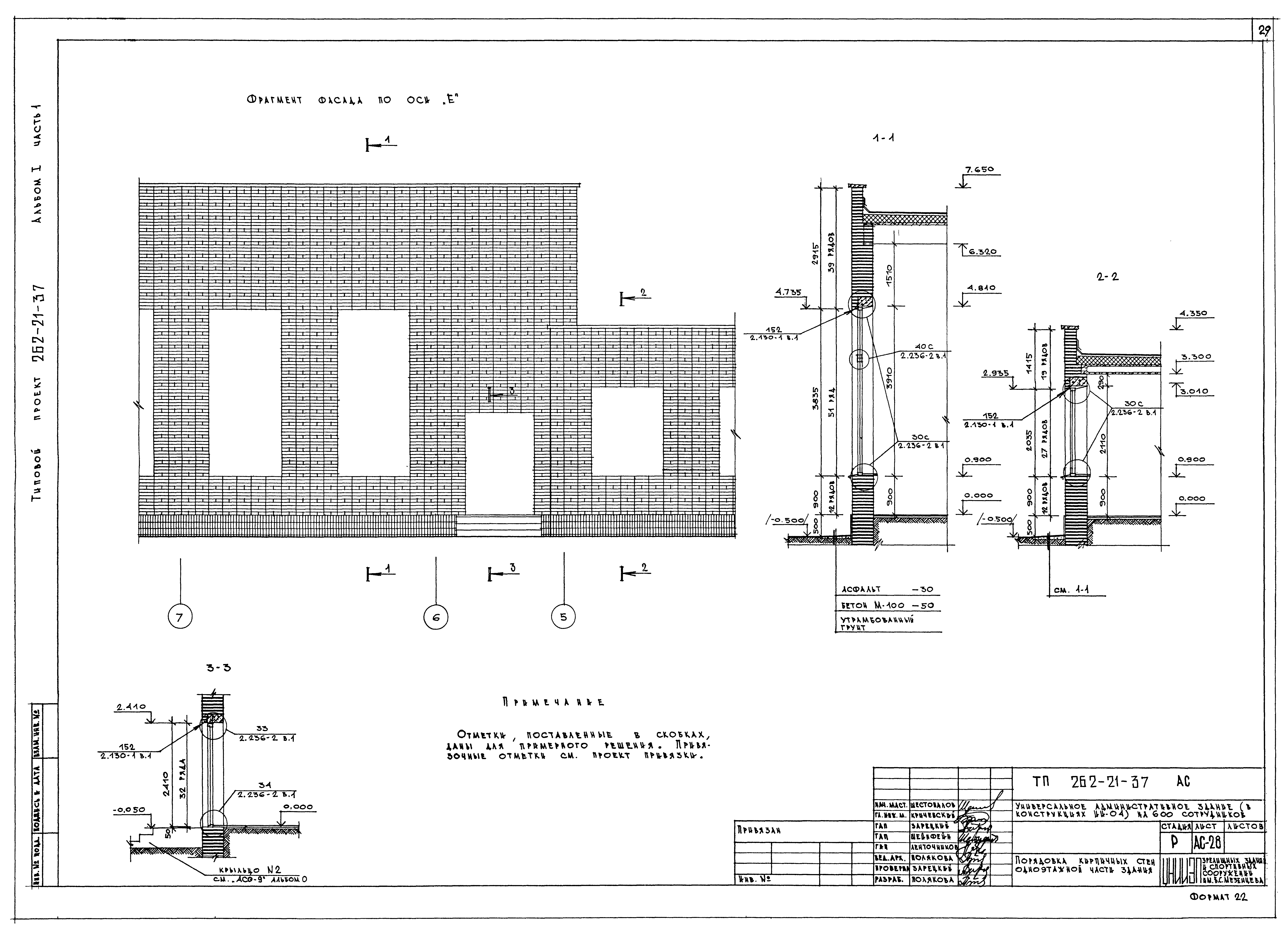
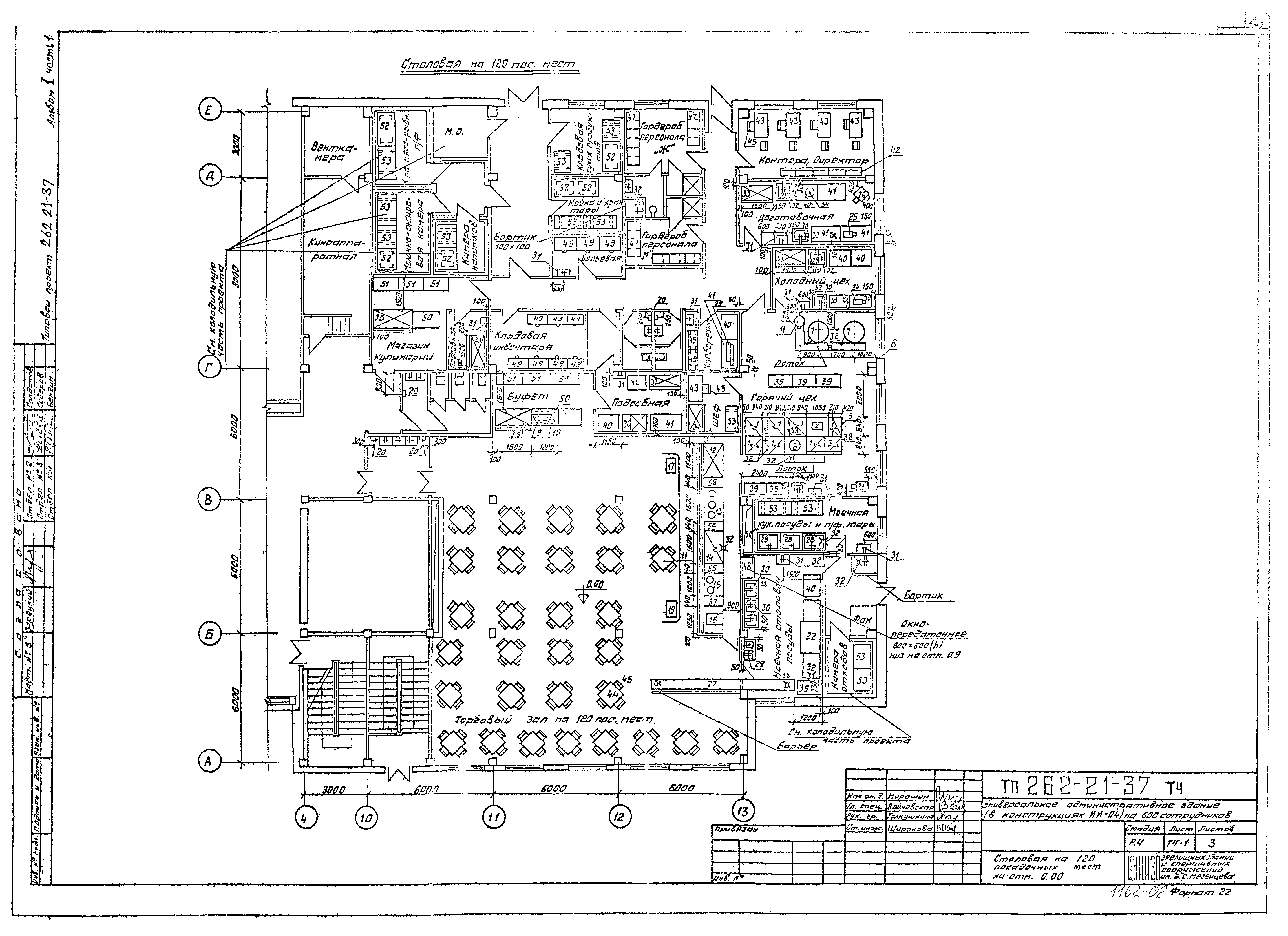
| Оглавление: | Общие данные План первого этажа между осями 1 - 5 План первого этажа между осями 5 - 10 План первого этажа между осями 10 - 14 План второго этажа между осями 1 - 5 План второго этажа между осями 5 - 10 План второго этажа между осями 10 - 14 План 3, 4, 5, 6 этажей между осями 1 - 5 План 3, 4, 5, 6 этажей между осями 5 - 10 План 3, 4, 5, 6 этажей между осями 10 - 14 План технического этажа План кровли между осями 1 - 5 План кровли между осями 5 - 10 План кровли между осями 10 - 14 Разрез 1-1 Разрез 2-2 Фасады 1 - 14 и А - Е Фасады 14 - 11 и Е - А Монтажные схемы подвесных потолков Детали подвесных потолков. Спецификации Декоративная перегородка в раздаточной. Деревянные конструкции мест конференц-зала Эстрада конференц-зала Индивидуальные столярные изделия: двери "ДА" и "ДН" Индивидуальные столярные изделия: оконный блок ИОС-18Е, дверной блок ИД121-13; столярная перегородка СП-2; декоративная вставка Индивидуальные столярные изделия: оконный блок ИОС10-18; столярная перегородка СП-1 Спецификация столярных изделий Порядовка кирпичных стен одноэтажной части здания Воздухозаборная шахта №1 и выбросная шахта №1 Развертки стен конференц-зала Ведомость отделки помещений Детали планов Варианты планировочных схем помещений основного назначения Расстановка оборудования и мебели в помещениях основного и вспомогательного назначения. Спецификация Копировально-множительные службы, медпункт, ремонтные мастерские. План расположения технологического оборудования и мебель Копировально-множительные службы, медпункт, ремонтные мастерские. Спецификация технологического оборудования и мебели Столовая на 120 посадочных мест на отм. 0.00 Столовая на 120 посадочных мест. Спецификация технологического оборудования Столовая на 120 посадочных мест. Монтажный план |
| Разработан: | ЦНИИЭП зрелищных зданий и спортивных сооружений Госгражданстроя |
| Утверждён: | 21.02.1980 Госгражданстрой (Gosgrazhdanstroy 64) |










































