Скачать Типовой проект 262-21-37 Альбом VIII. Изделия заводского изготовленияДата актуализации: 01.01.2021
|
| Обозначение: | Типовой проект 262-21-37 |
| Обозначение англ: | 262-21-37 |
| Статус: | не определен законодательством |
| Название рус.: | Альбом VIII. Изделия заводского изготовления |
| Дата добавления в базу: | 01.09.2013 |
| Дата актуализации: | 01.01.2021 |
| Дата введения: | 06.04.1982 |
| Дата окончания срока действия: | 30.06.2003 |
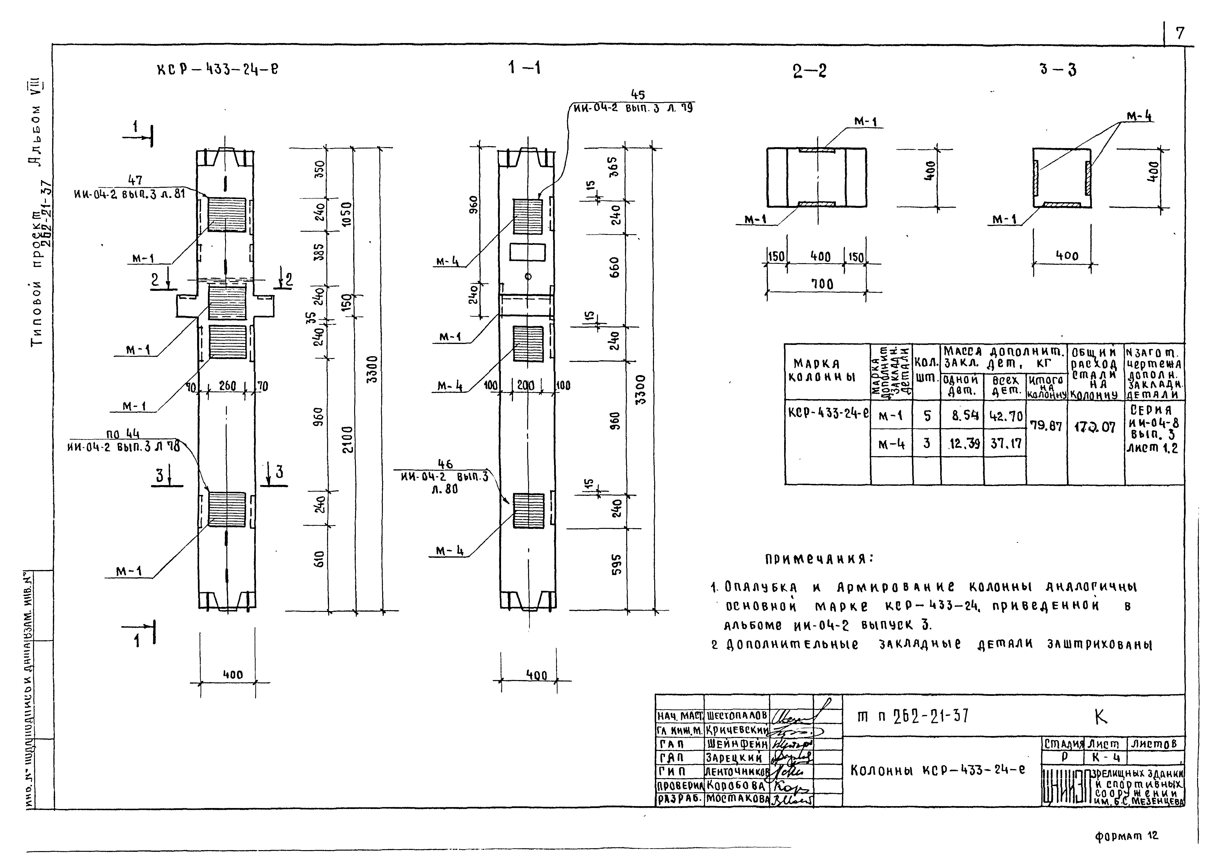
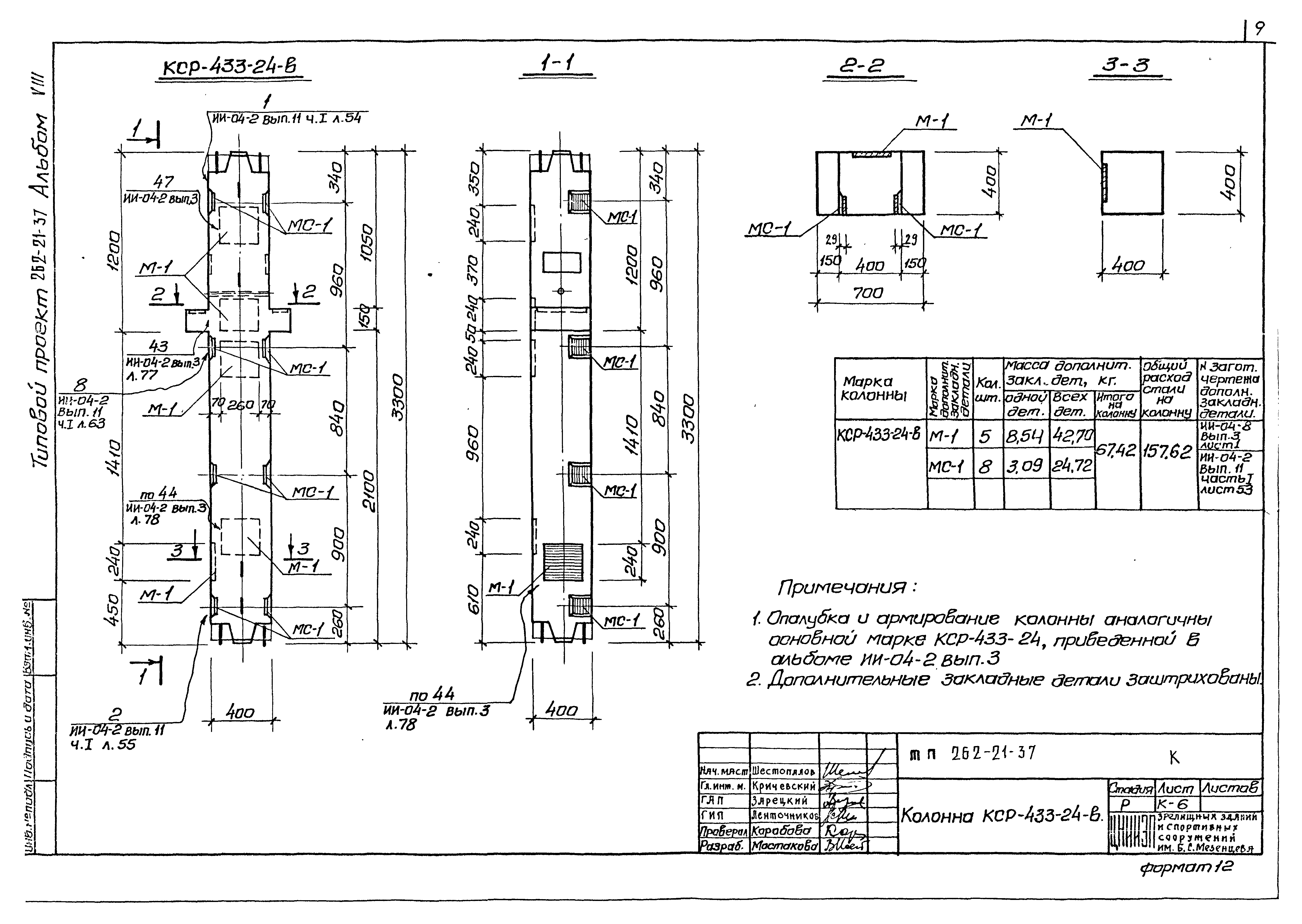
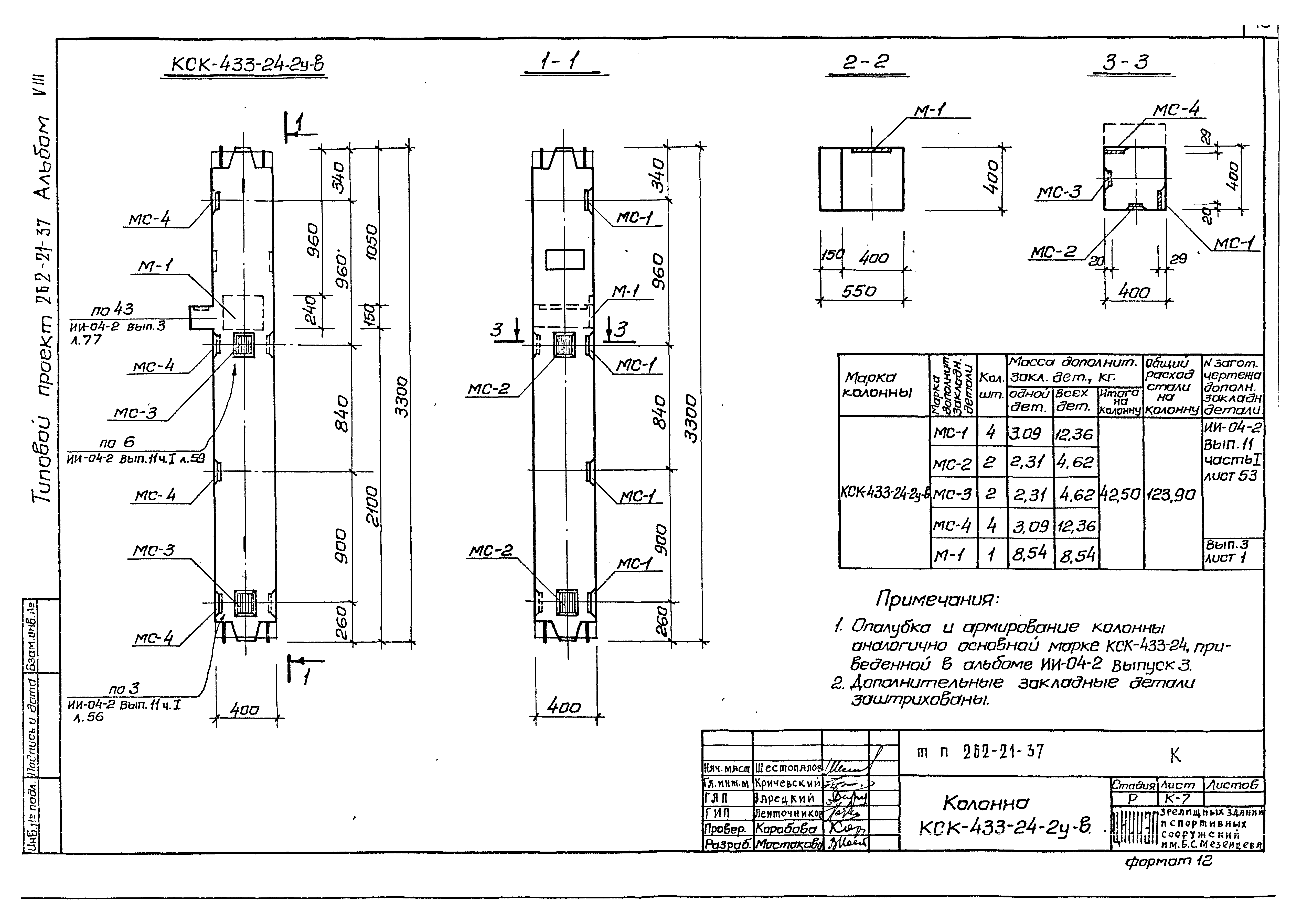
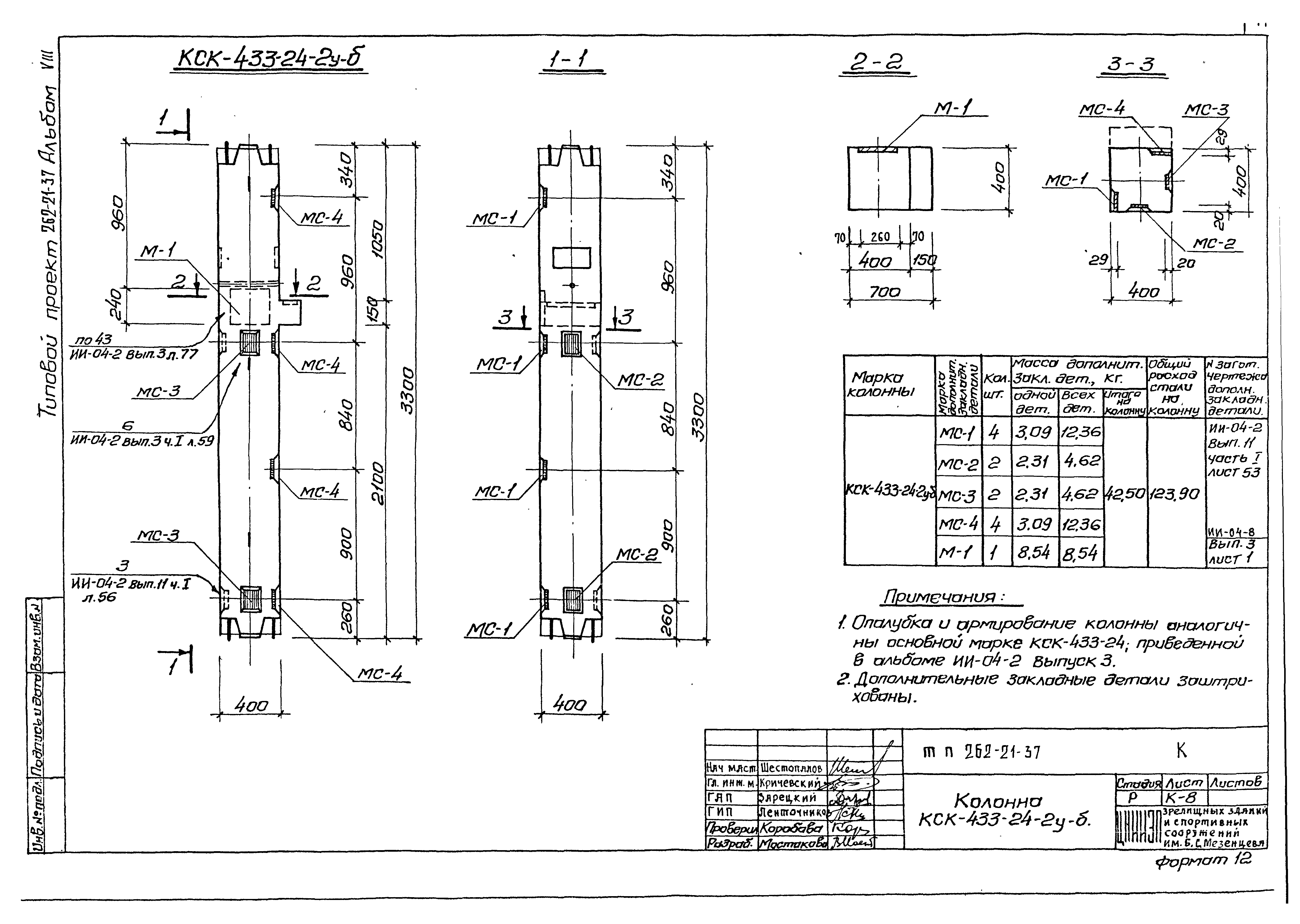
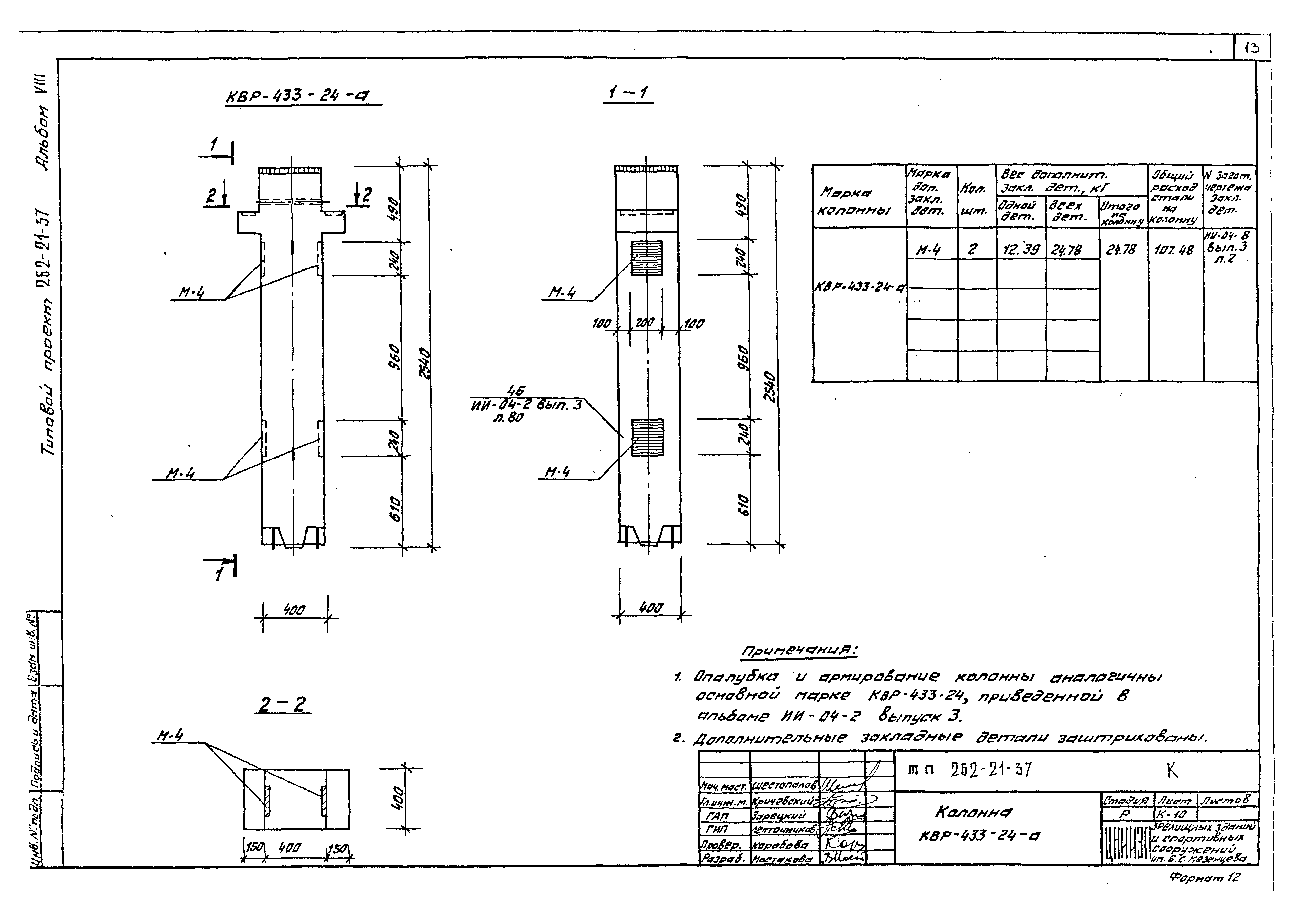
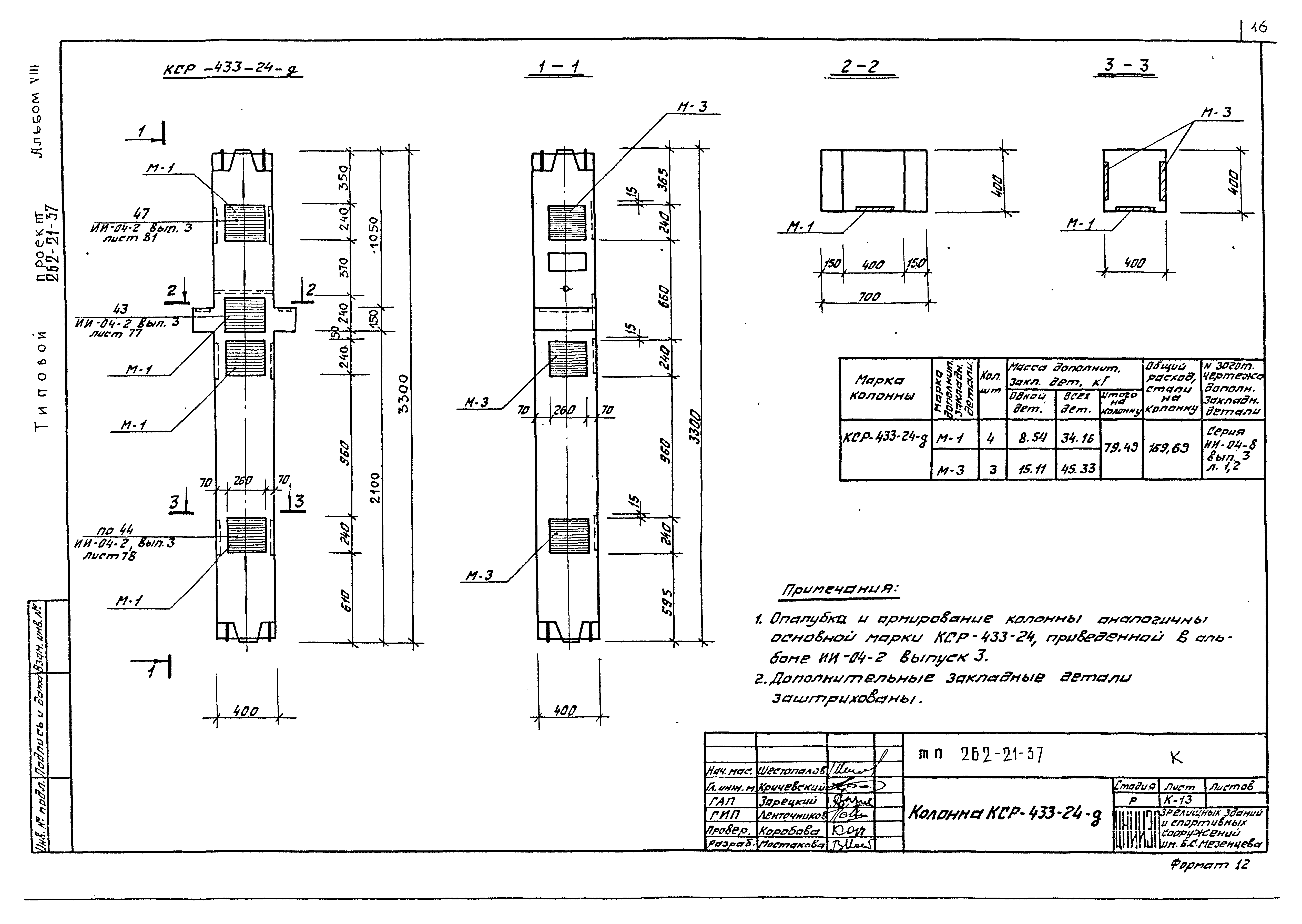
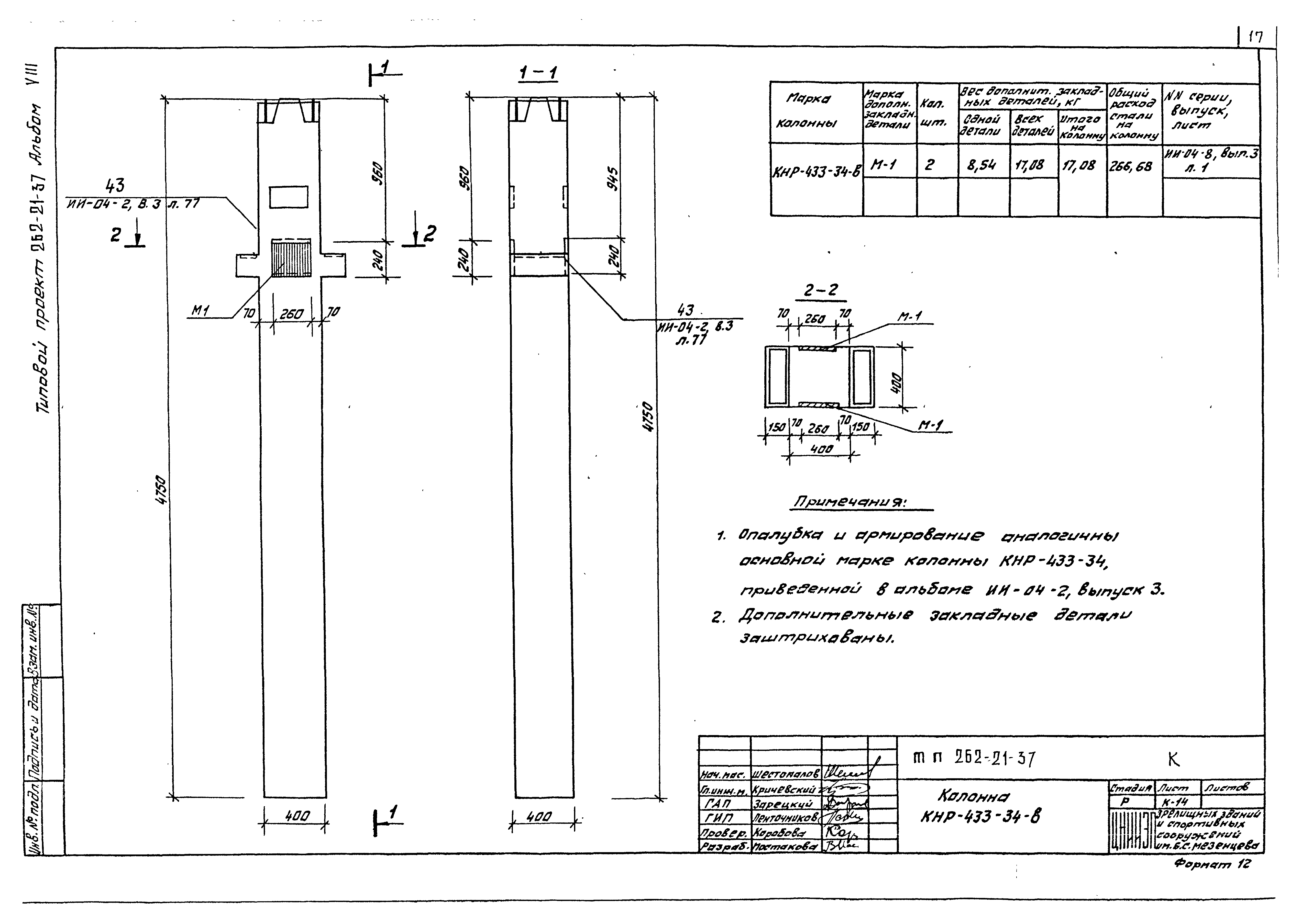
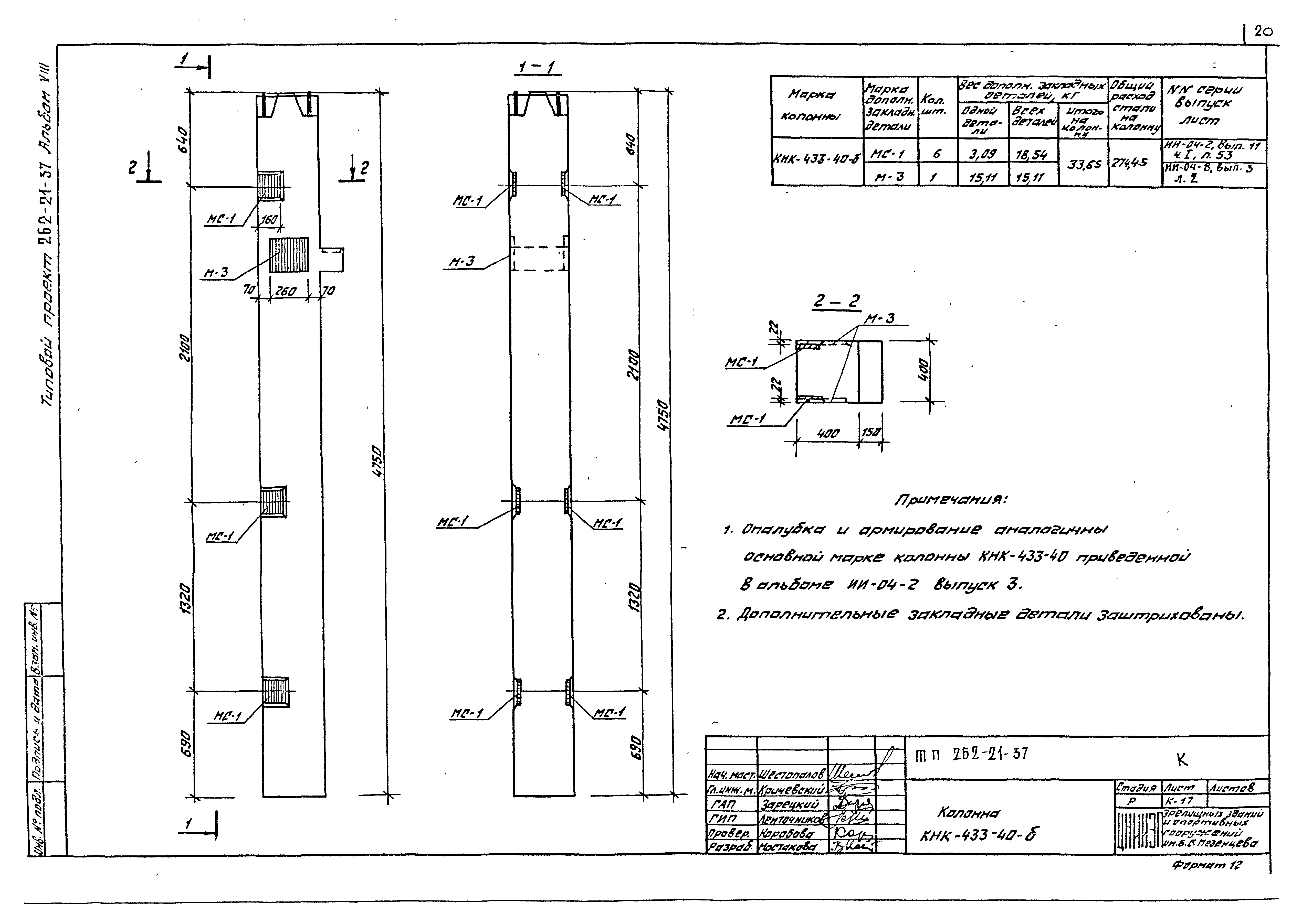
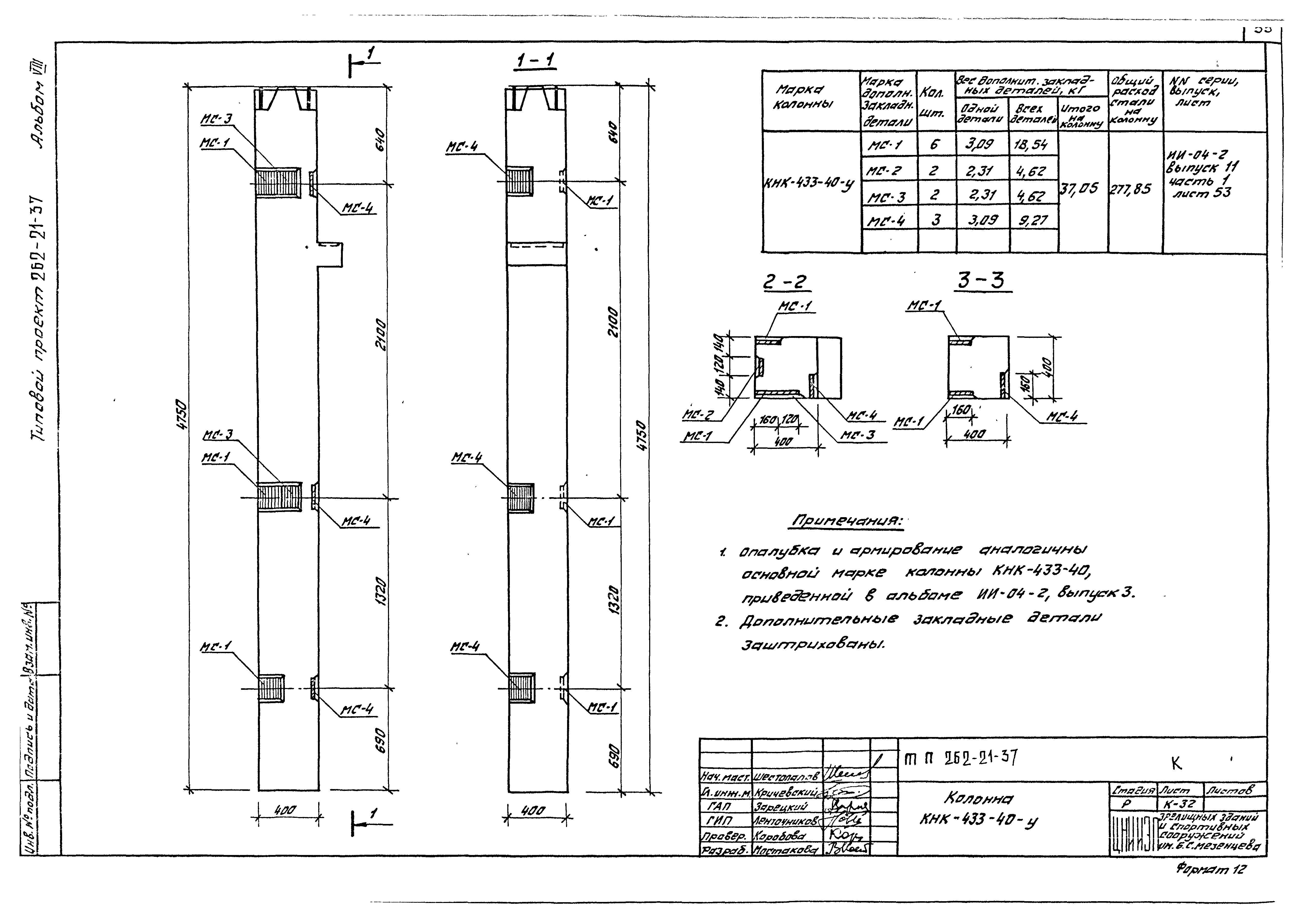
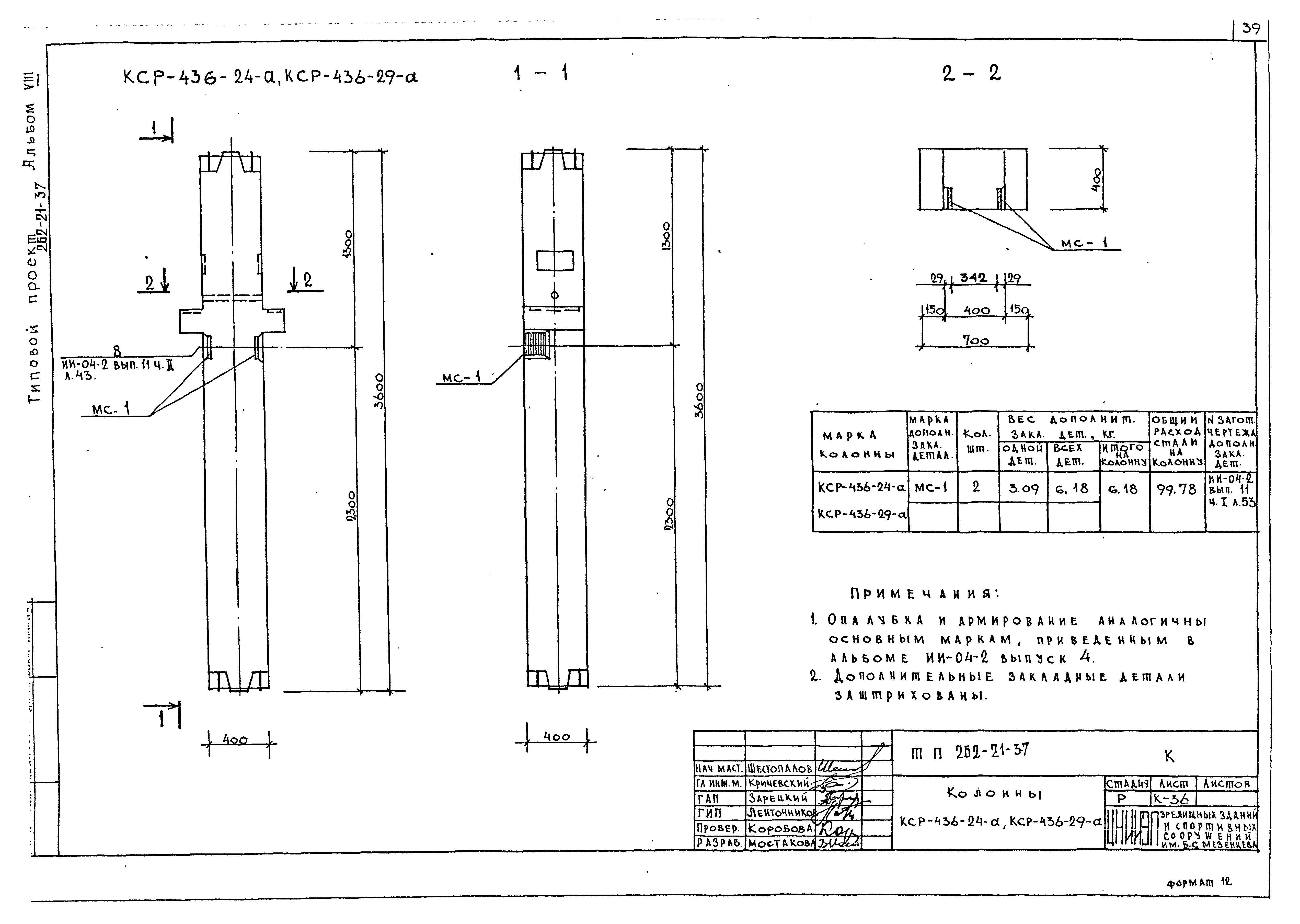
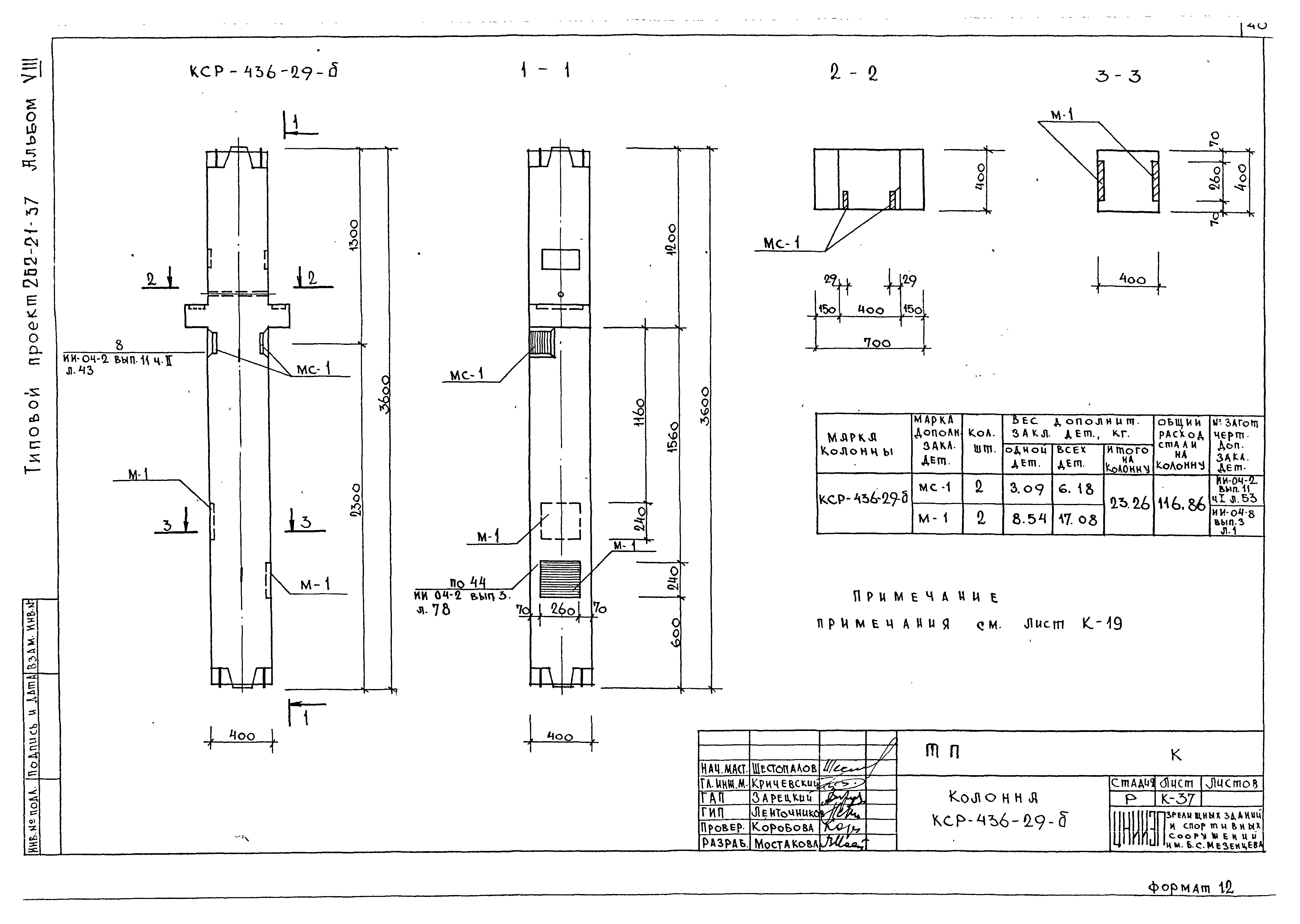
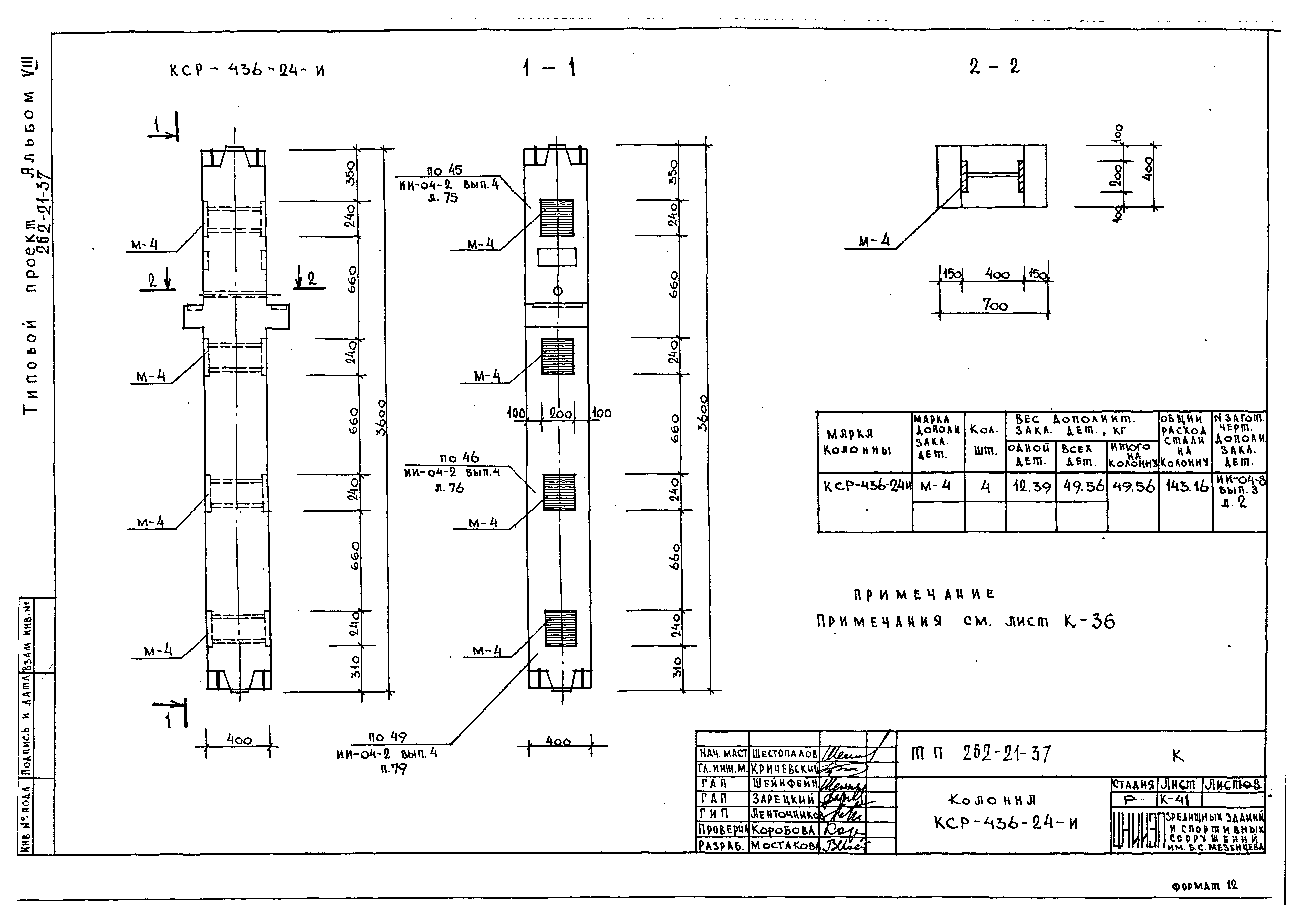
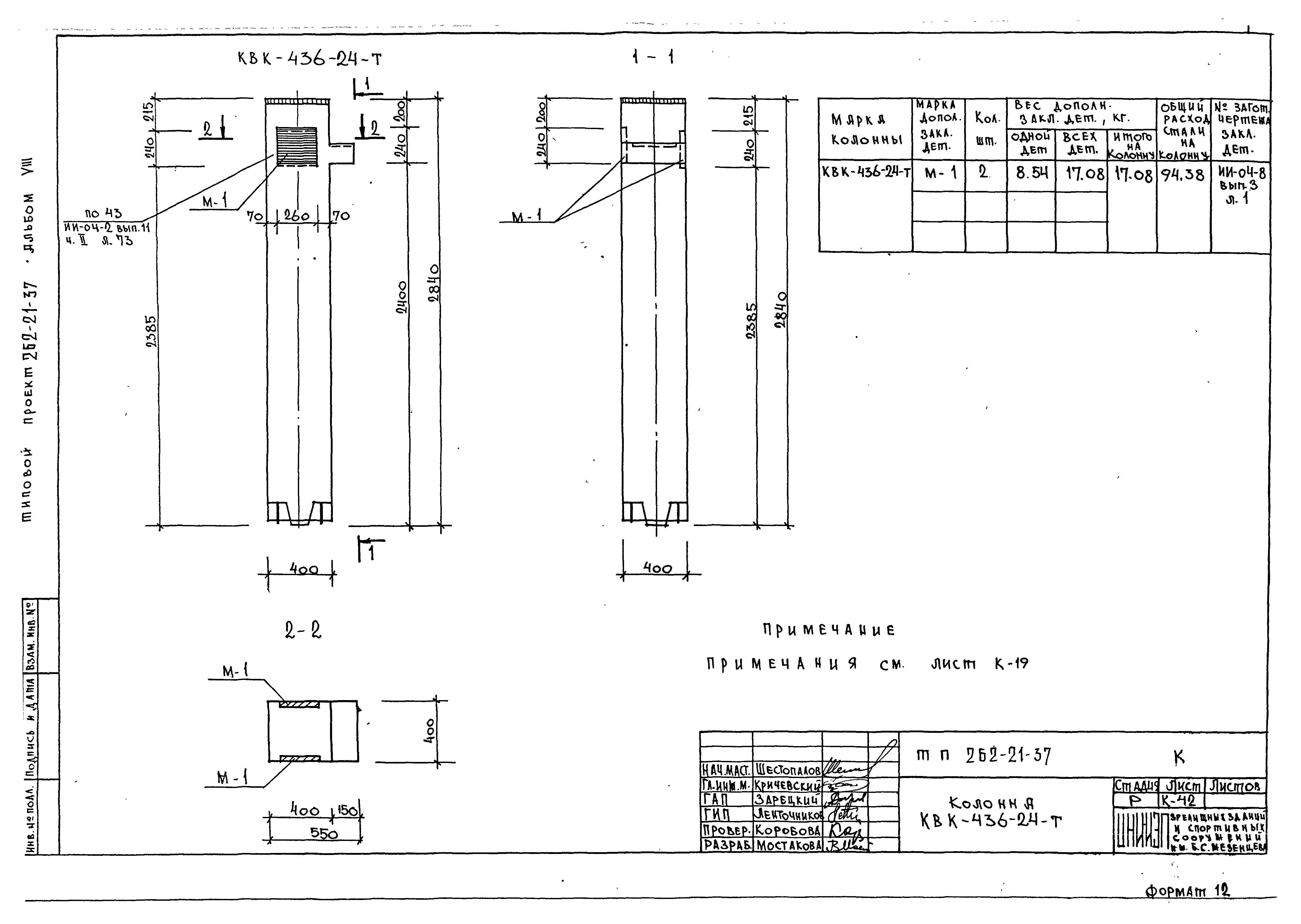
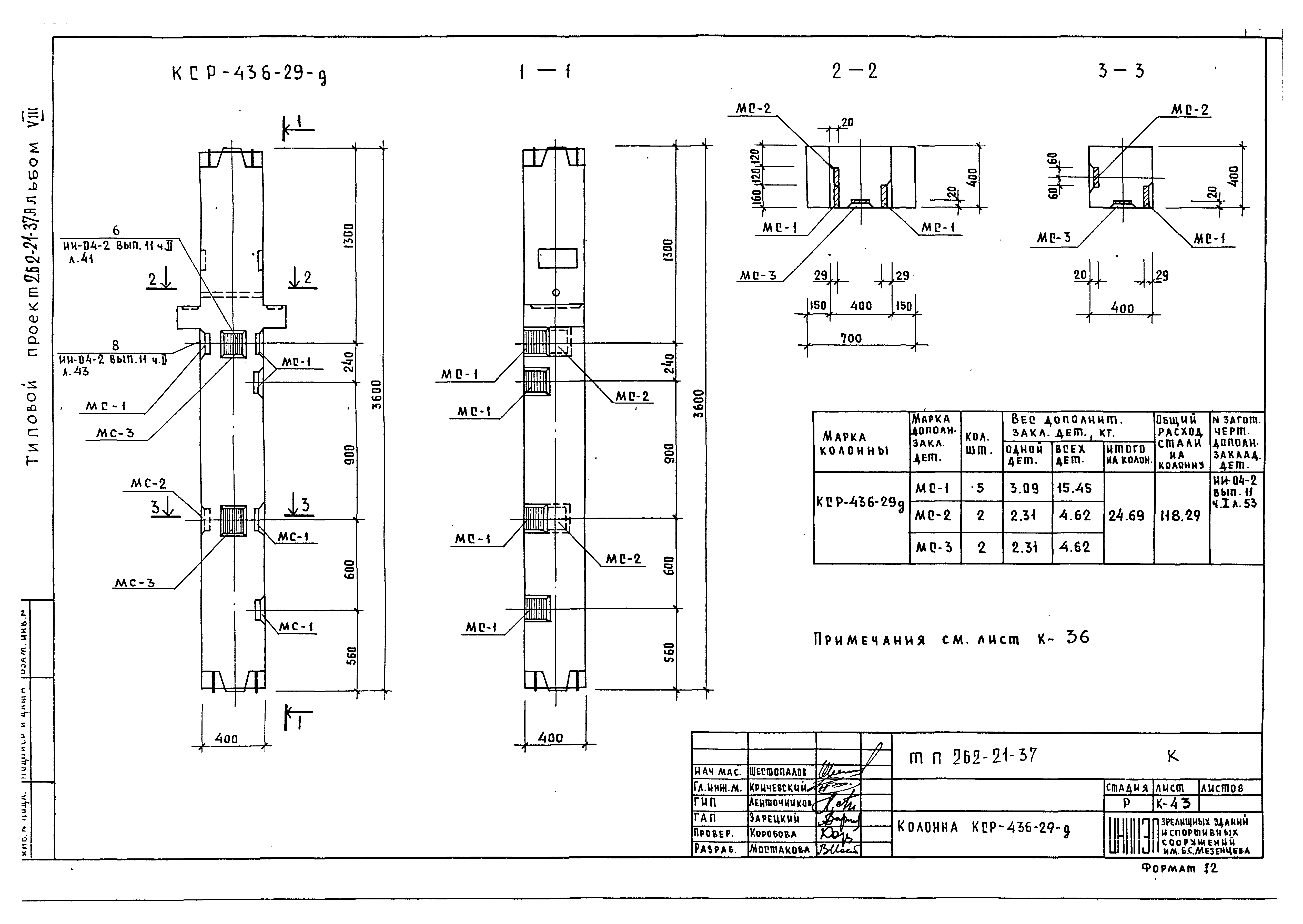
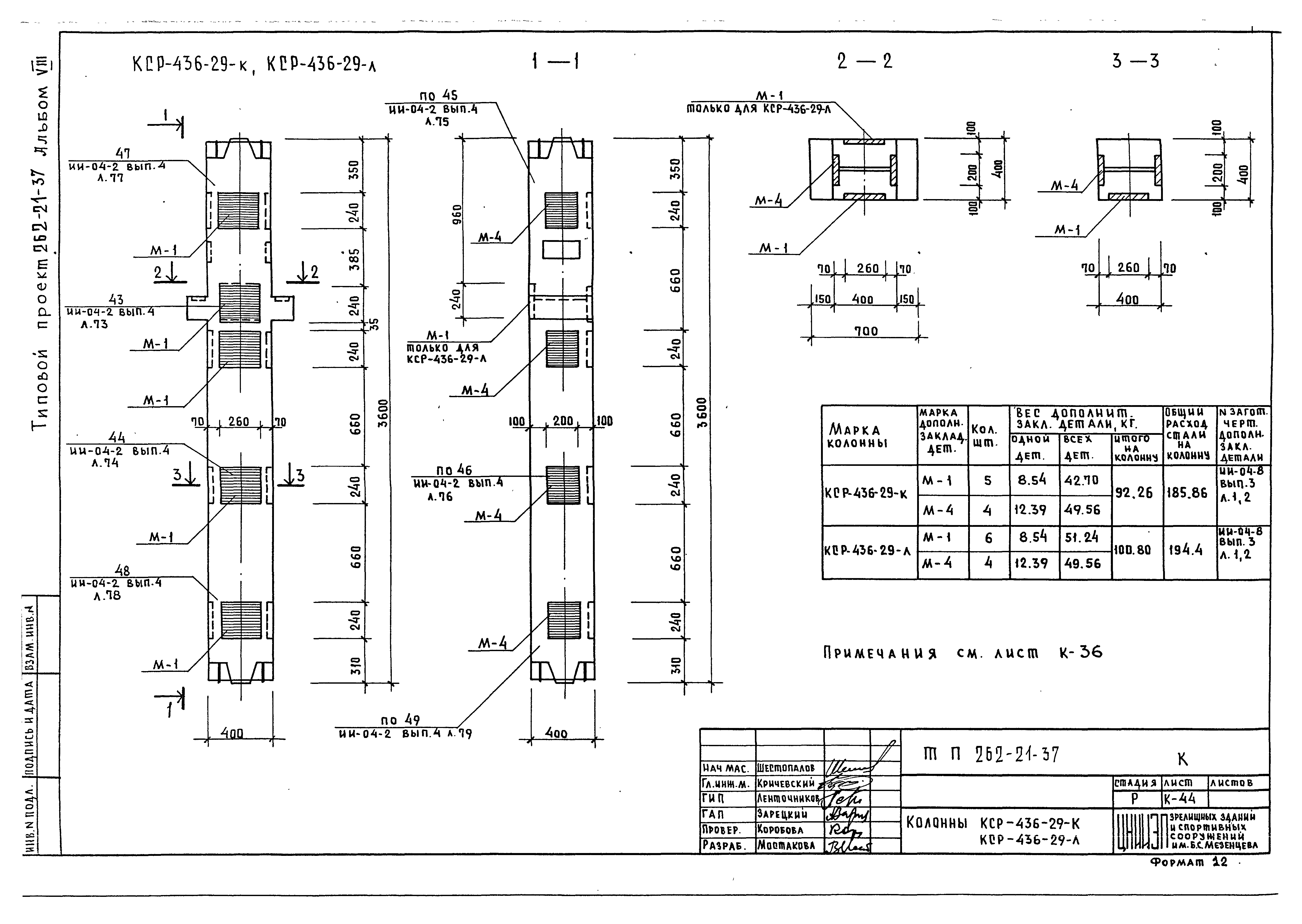
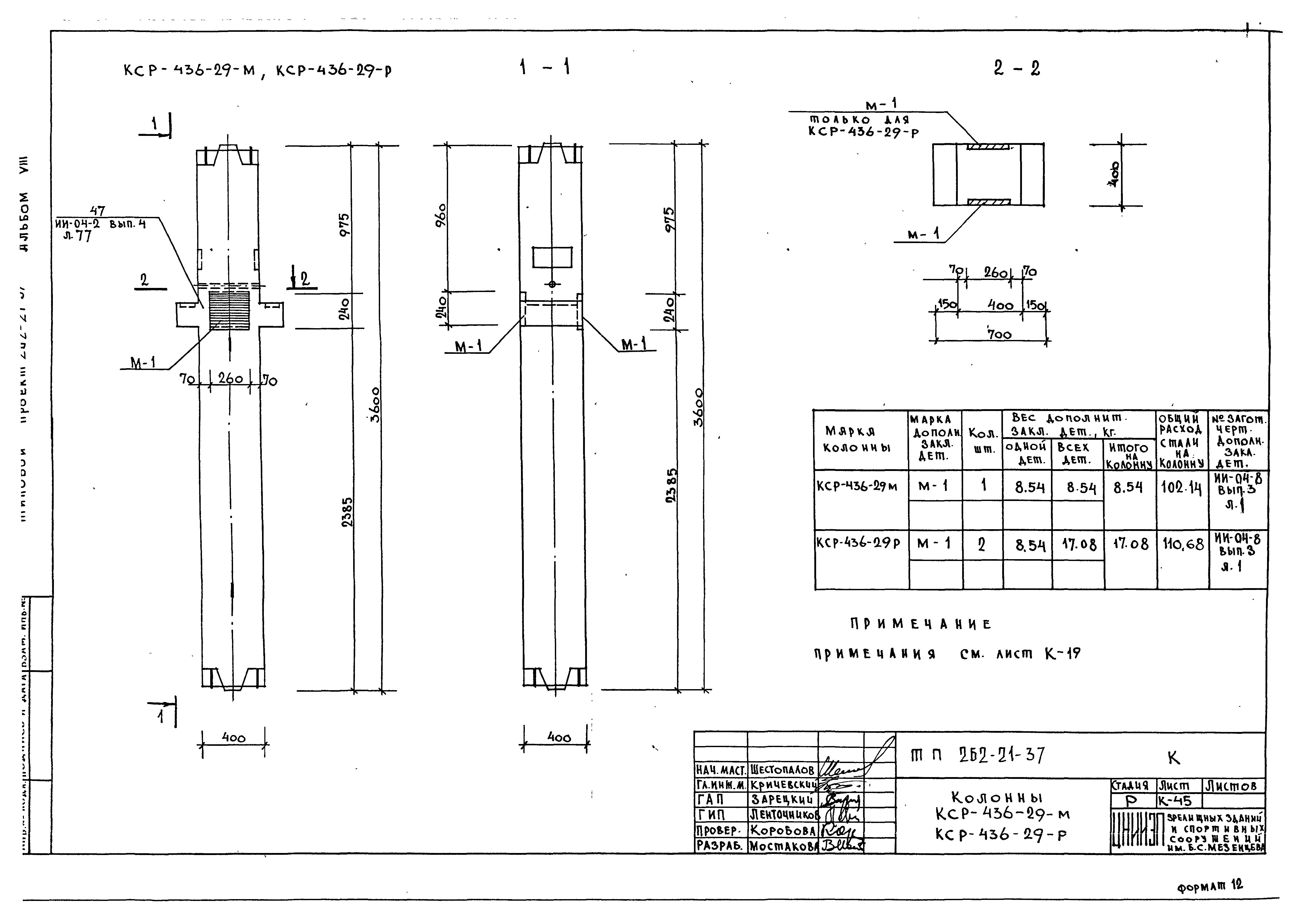
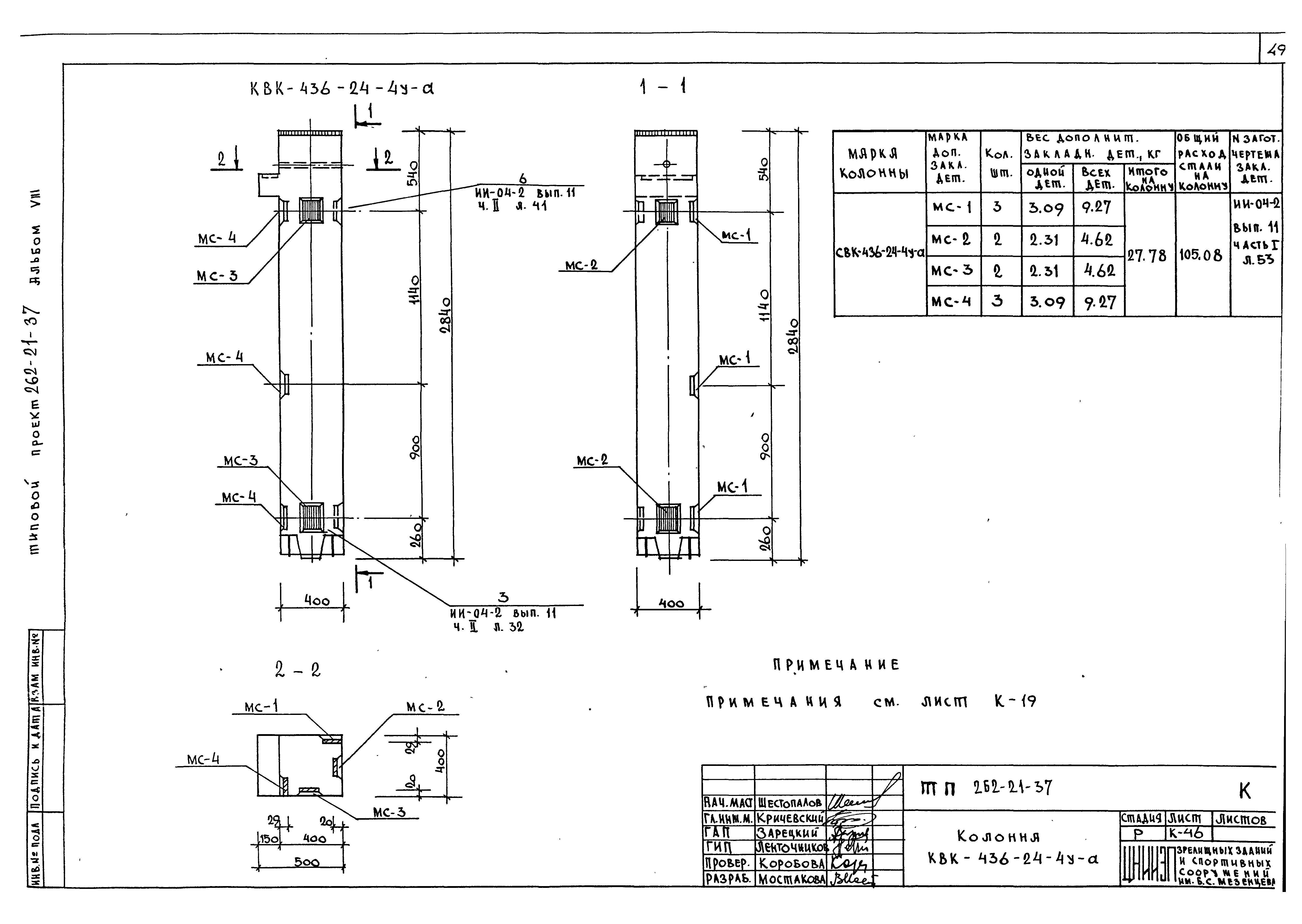
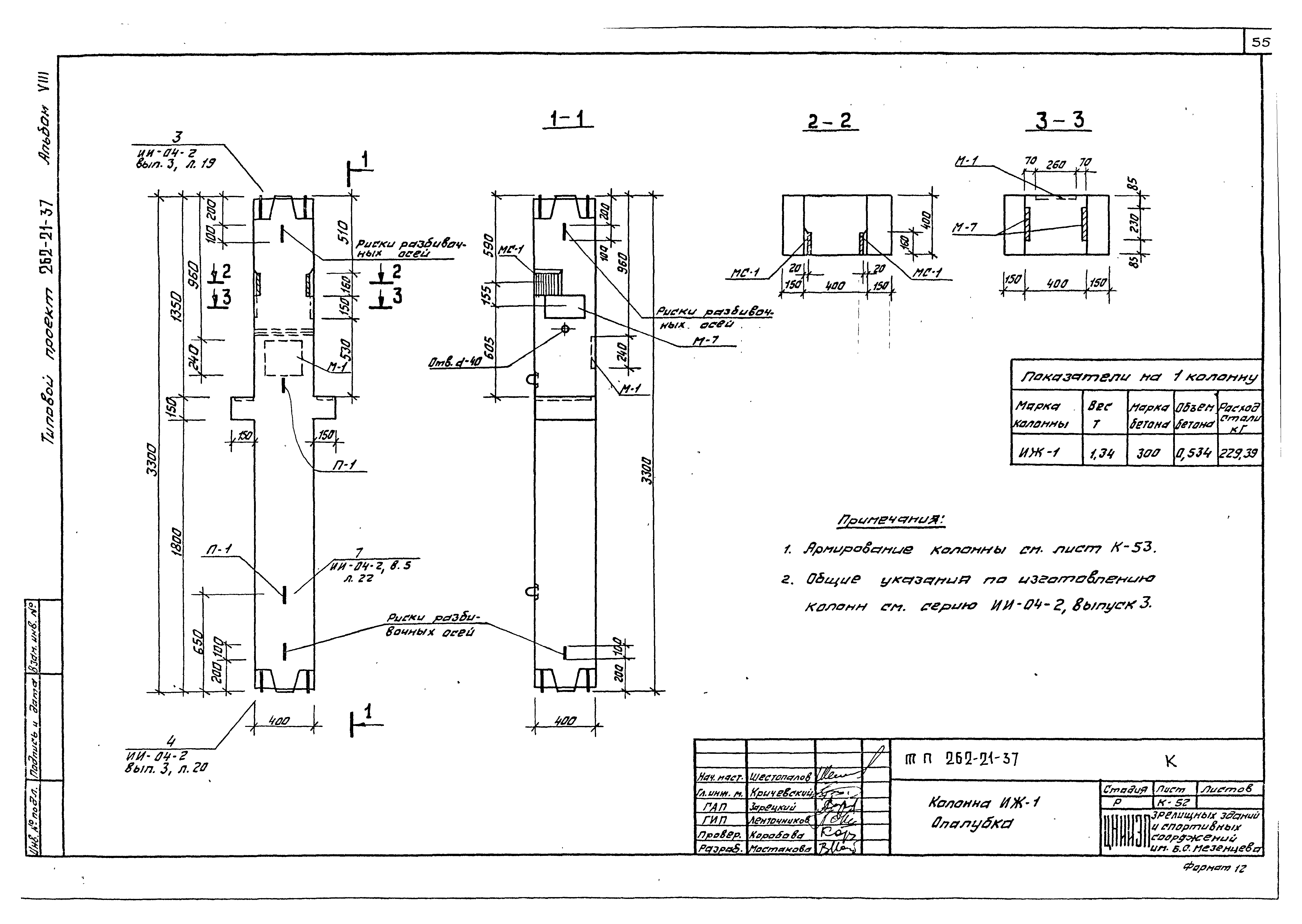
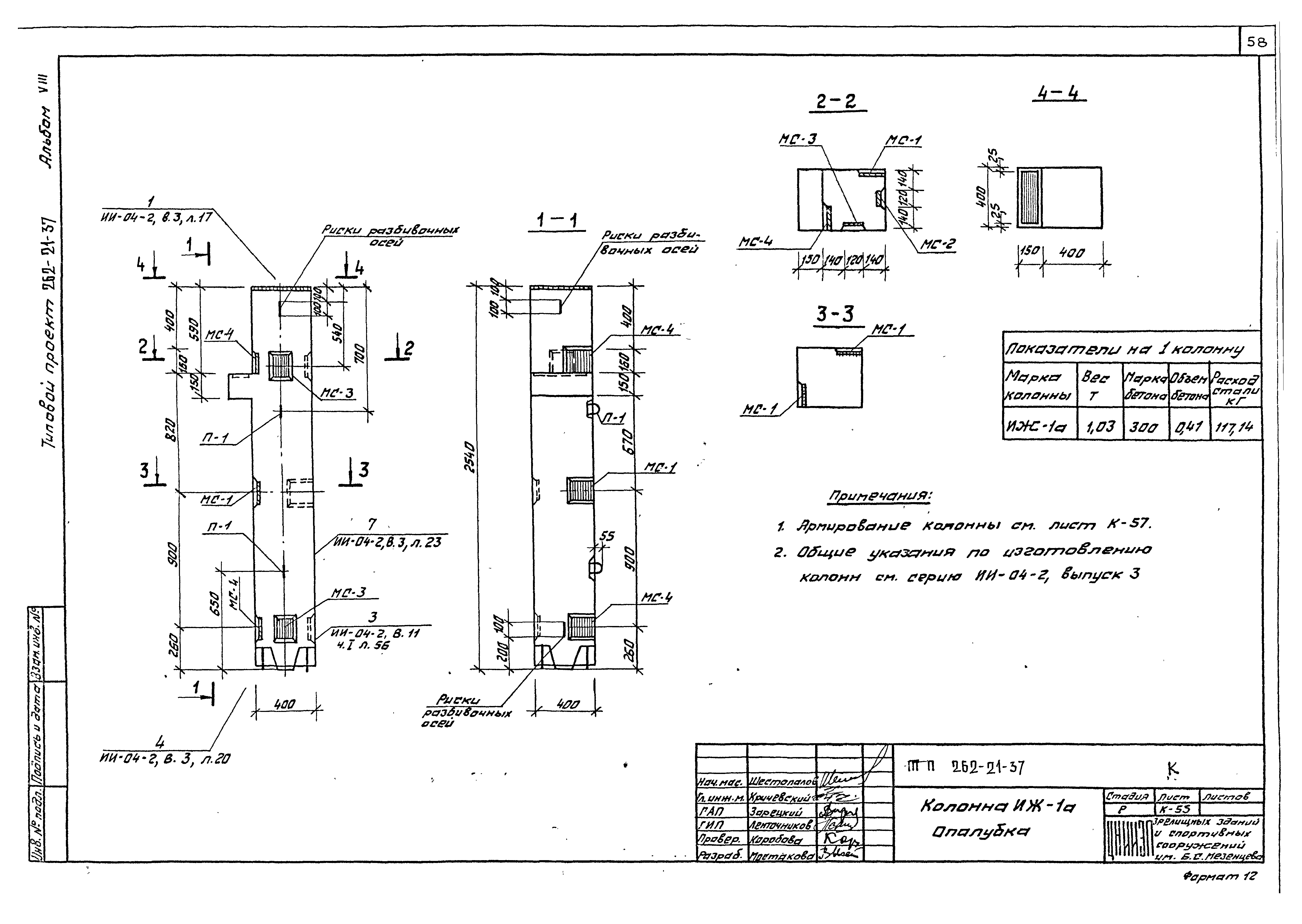
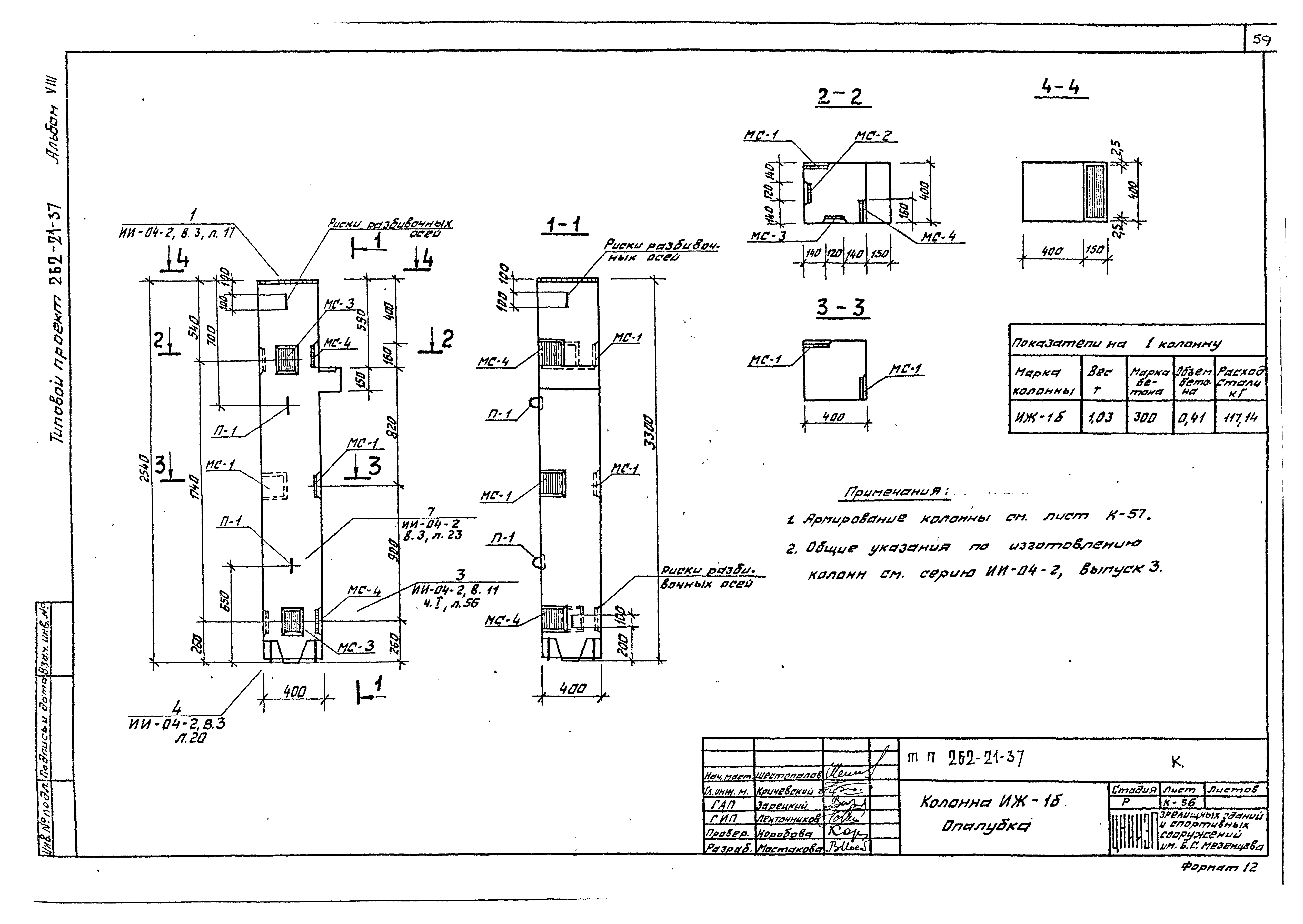
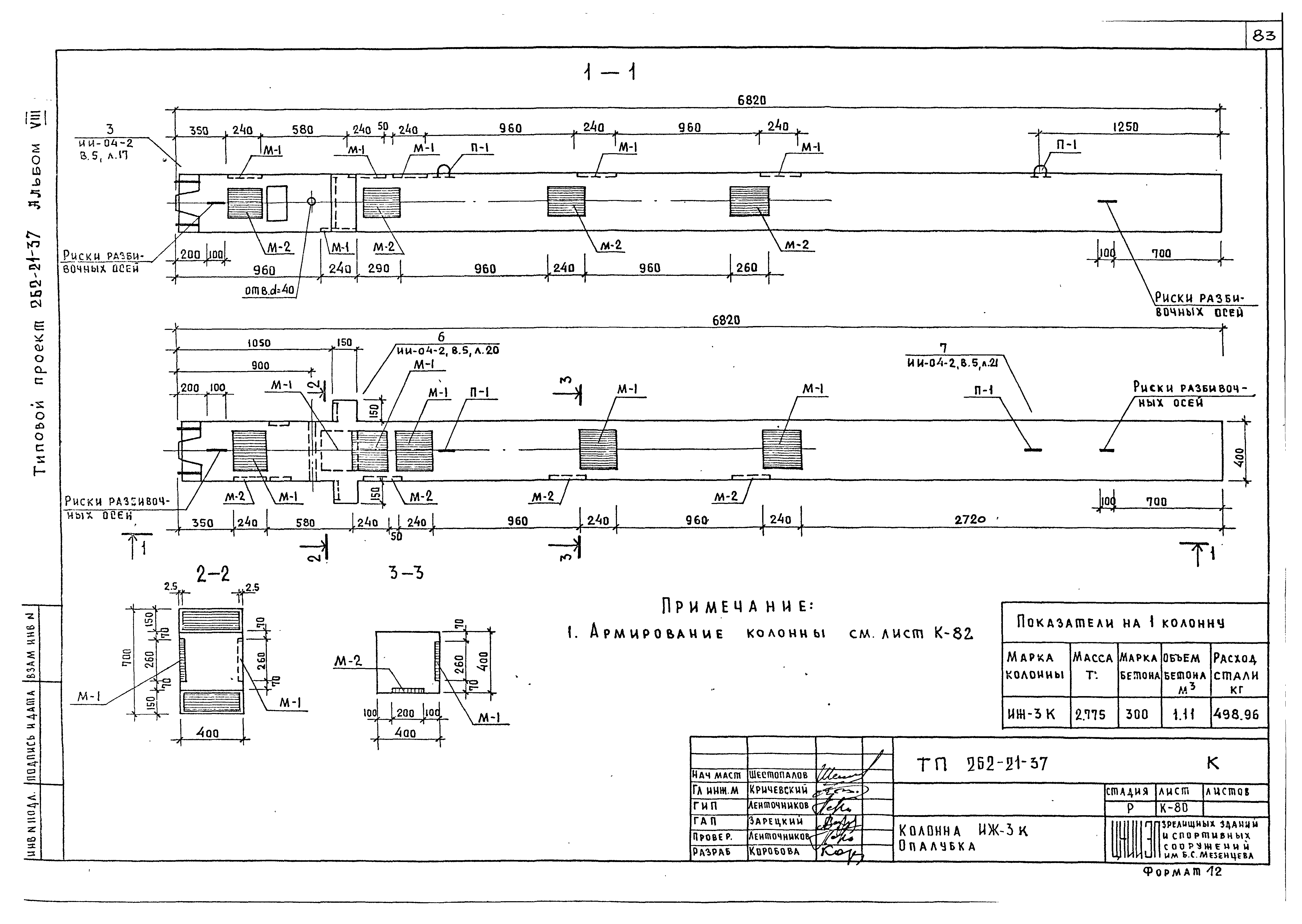
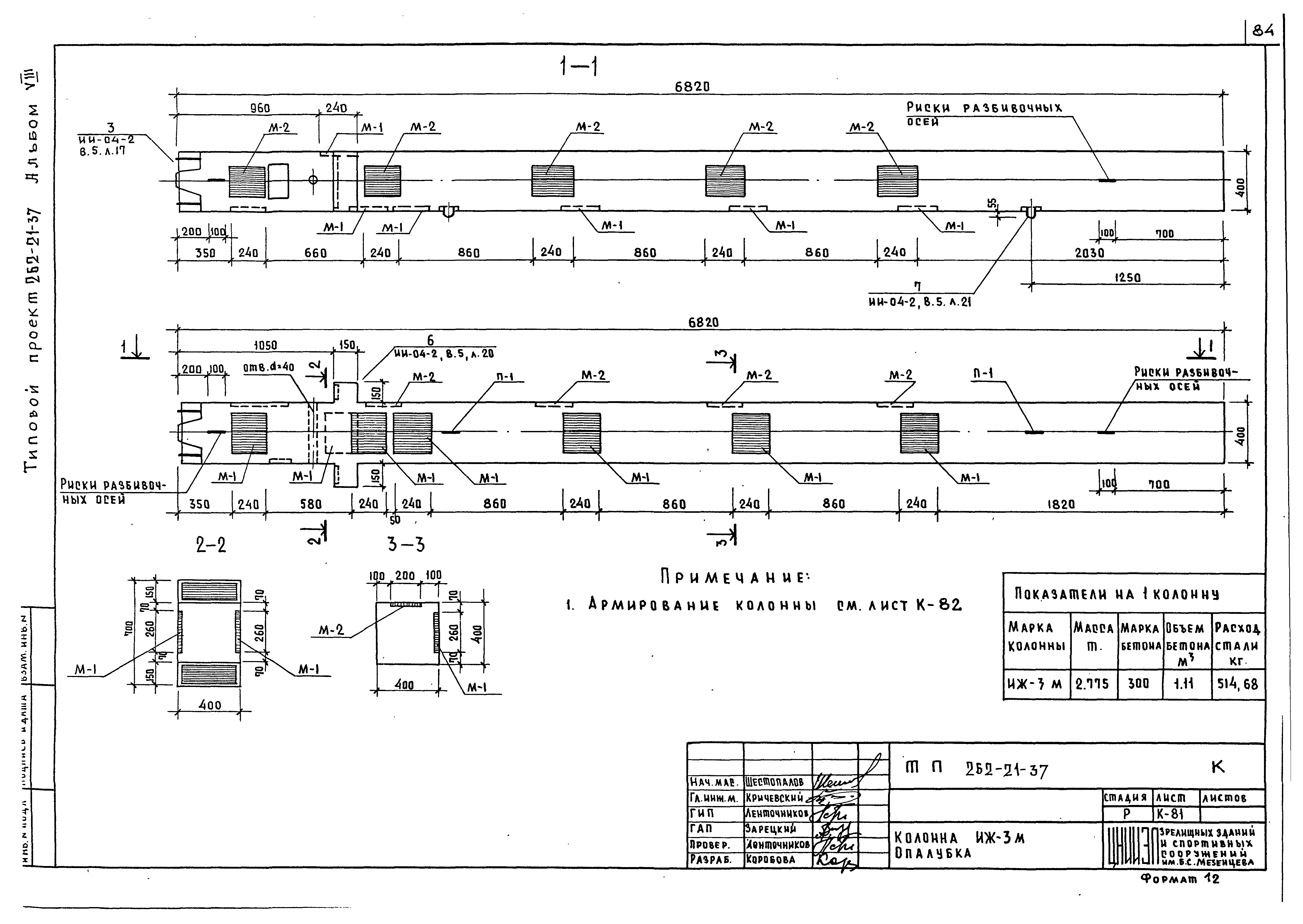
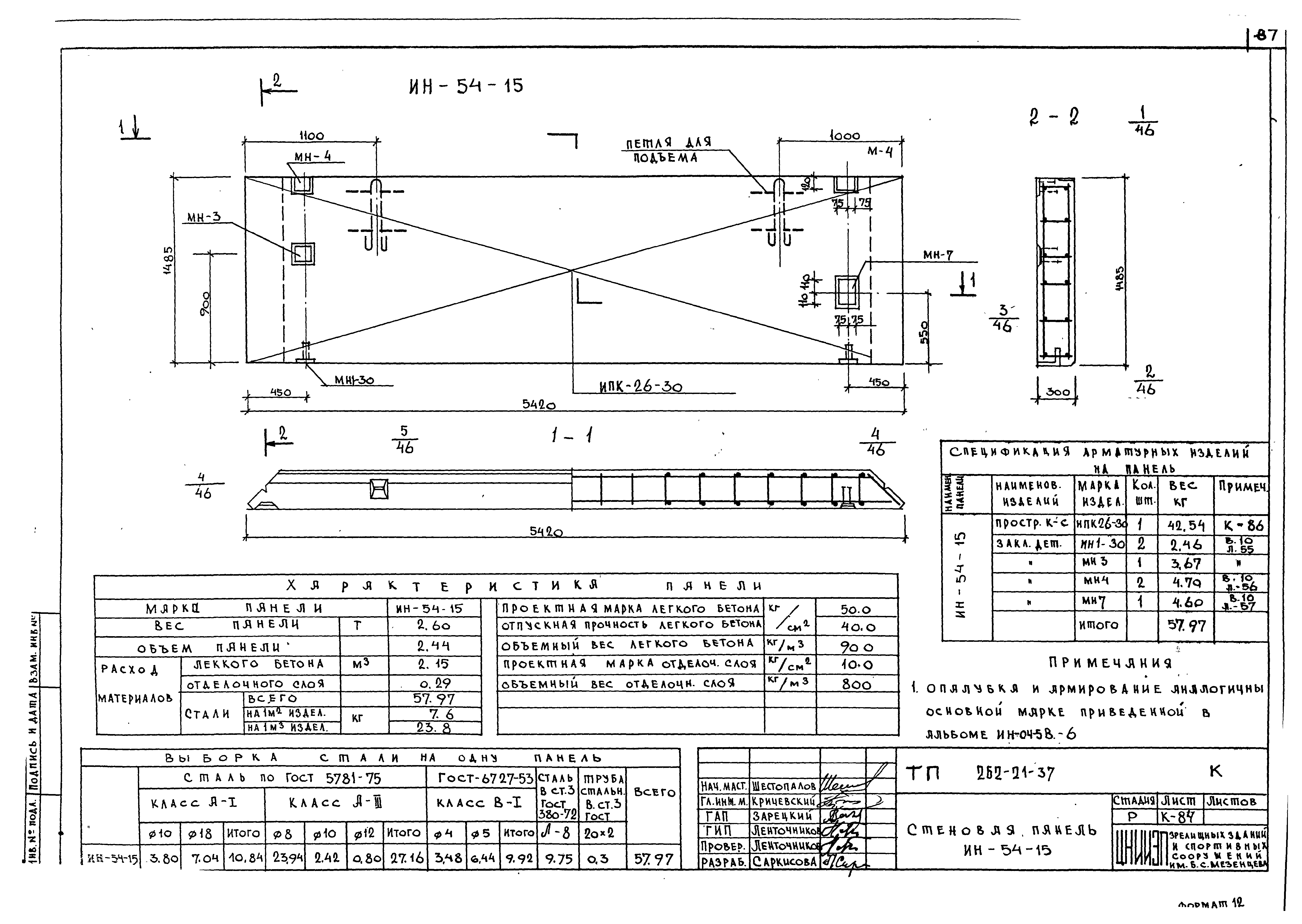
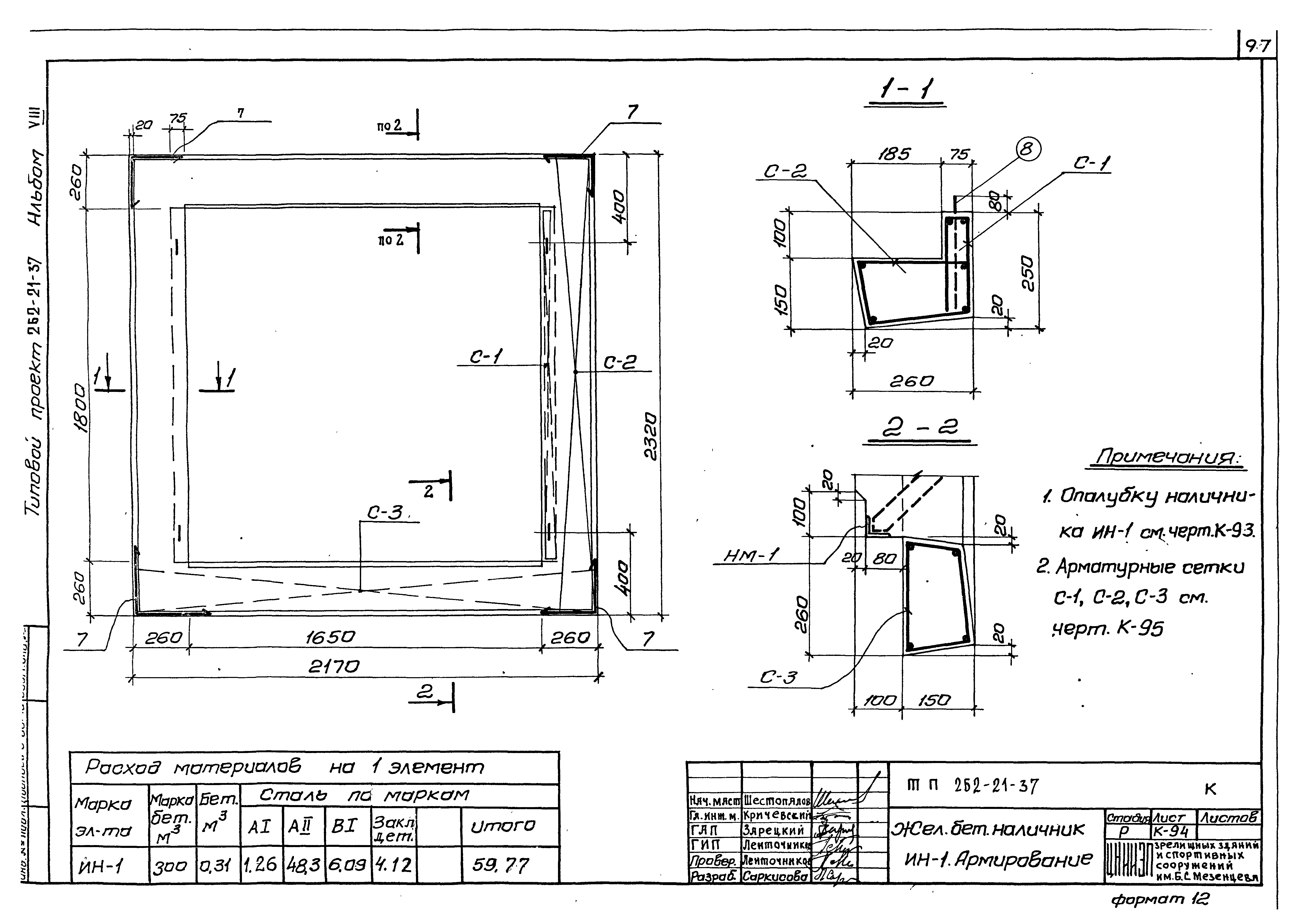
| Оглавление: | Общие данные Колонны Диафрагма Д-3и Плоские каркасы Ригели Колонны Стеновая панель Каркасы Пространственный каркас Панели Железобетонный наличник ИН-1 |
| Разработан: | ЦНИИЭП зрелищных зданий и спортивных сооружений Госгражданстроя |
| Утверждён: | 21.02.1980 Госгражданстрой (Gosgrazhdanstroy 64) |



































































































