Скачать Типовой проект 262-21-37 Альбом IX. Сборно-разборные перегородкиДата актуализации: 01.01.2021
|
| Обозначение: | Типовой проект 262-21-37 |
| Обозначение англ: | 262-21-37 |
| Статус: | не определен законодательством |
| Название рус.: | Альбом IX. Сборно-разборные перегородки |
| Дата добавления в базу: | 01.09.2013 |
| Дата актуализации: | 01.01.2021 |
| Дата введения: | 06.04.1982 |
| Дата окончания срока действия: | 30.06.2003 |
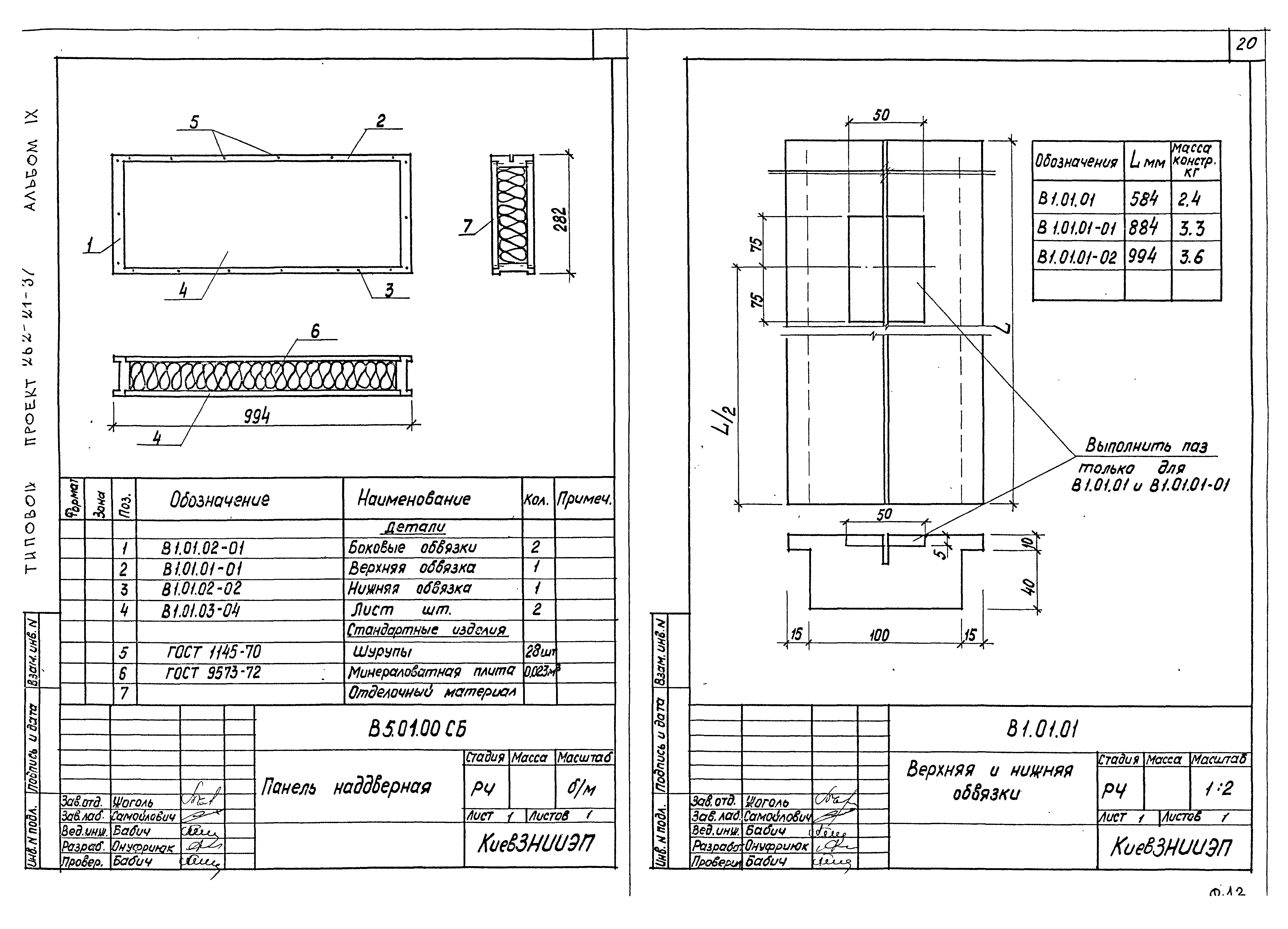
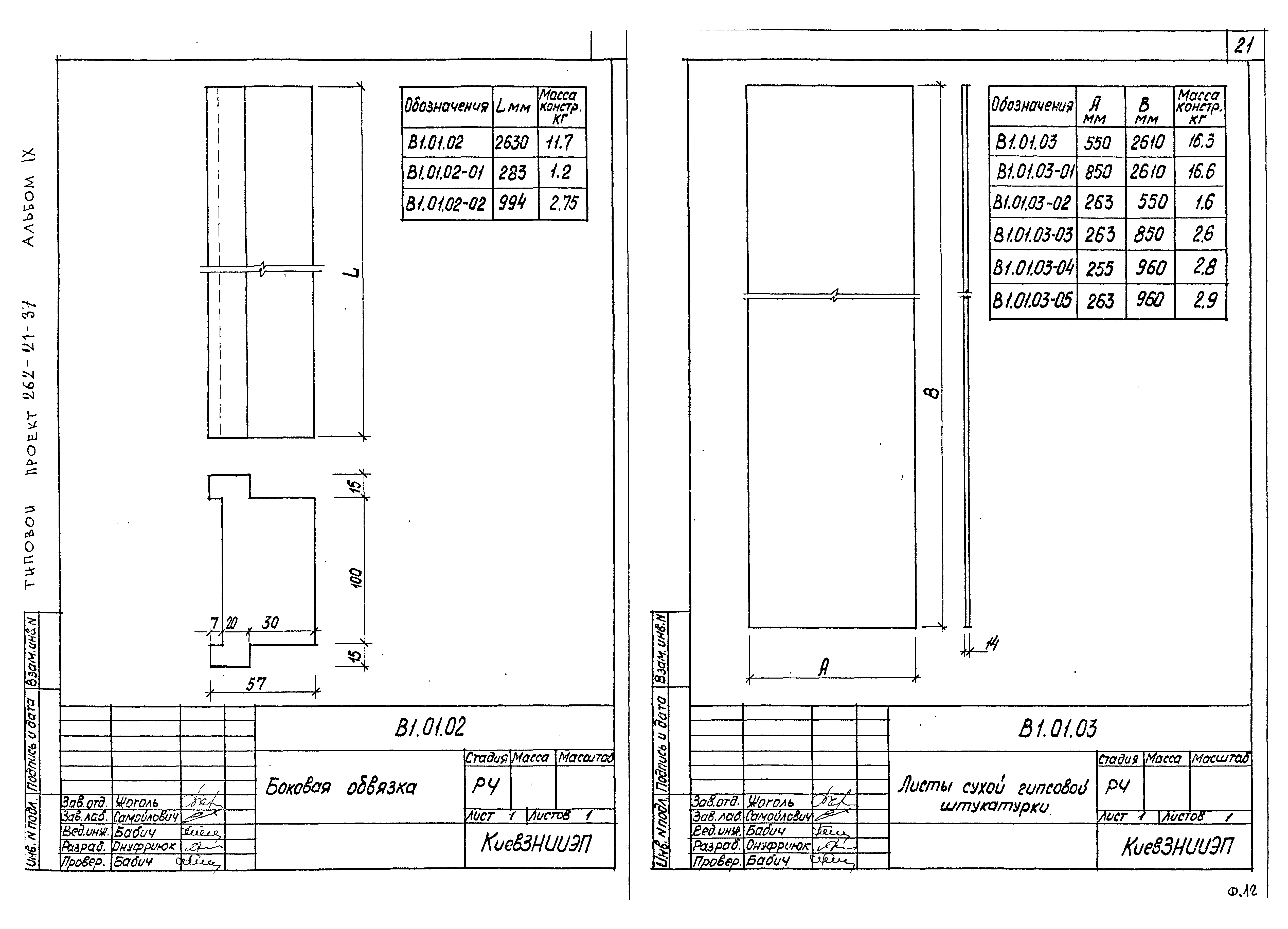
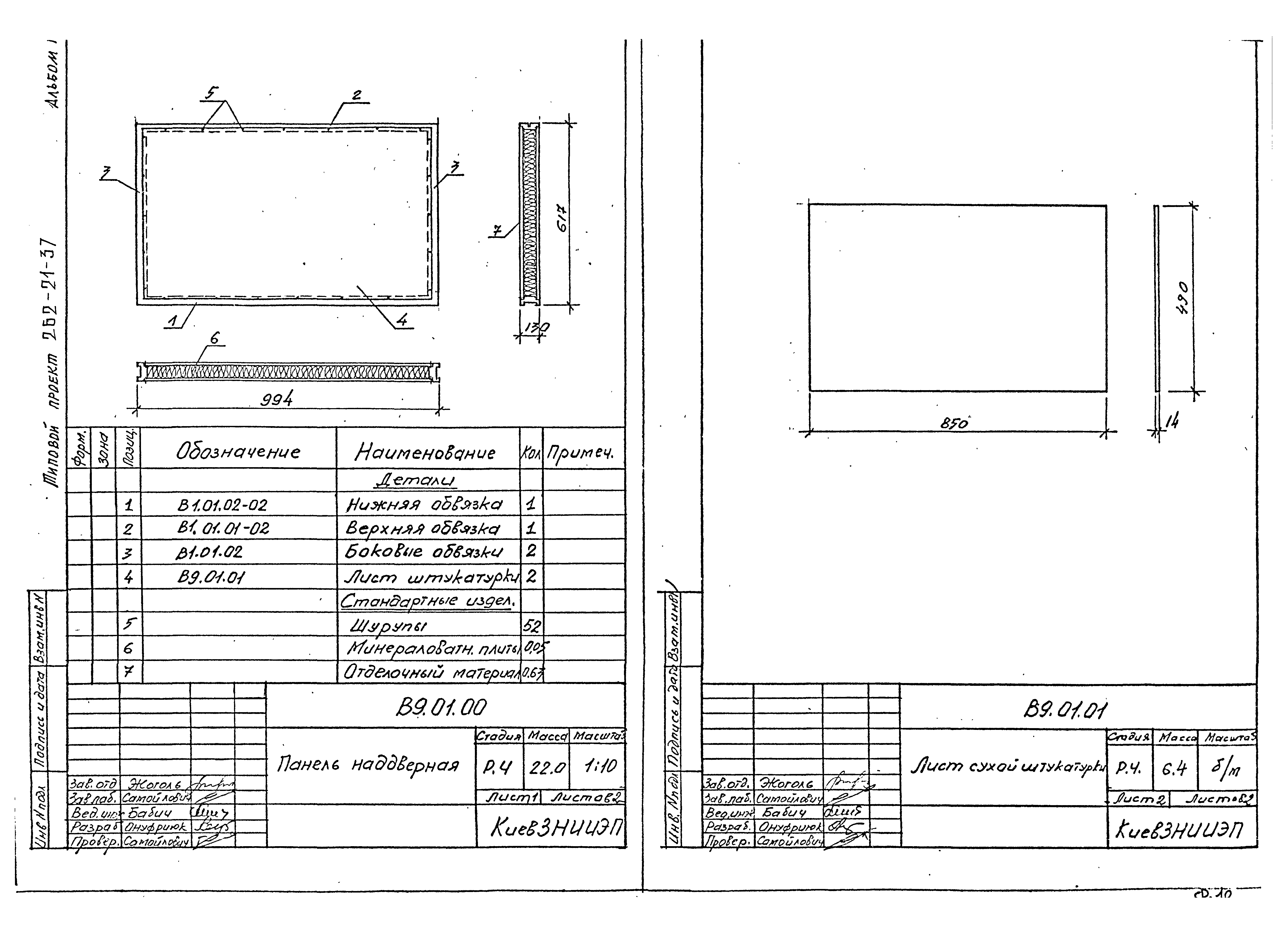
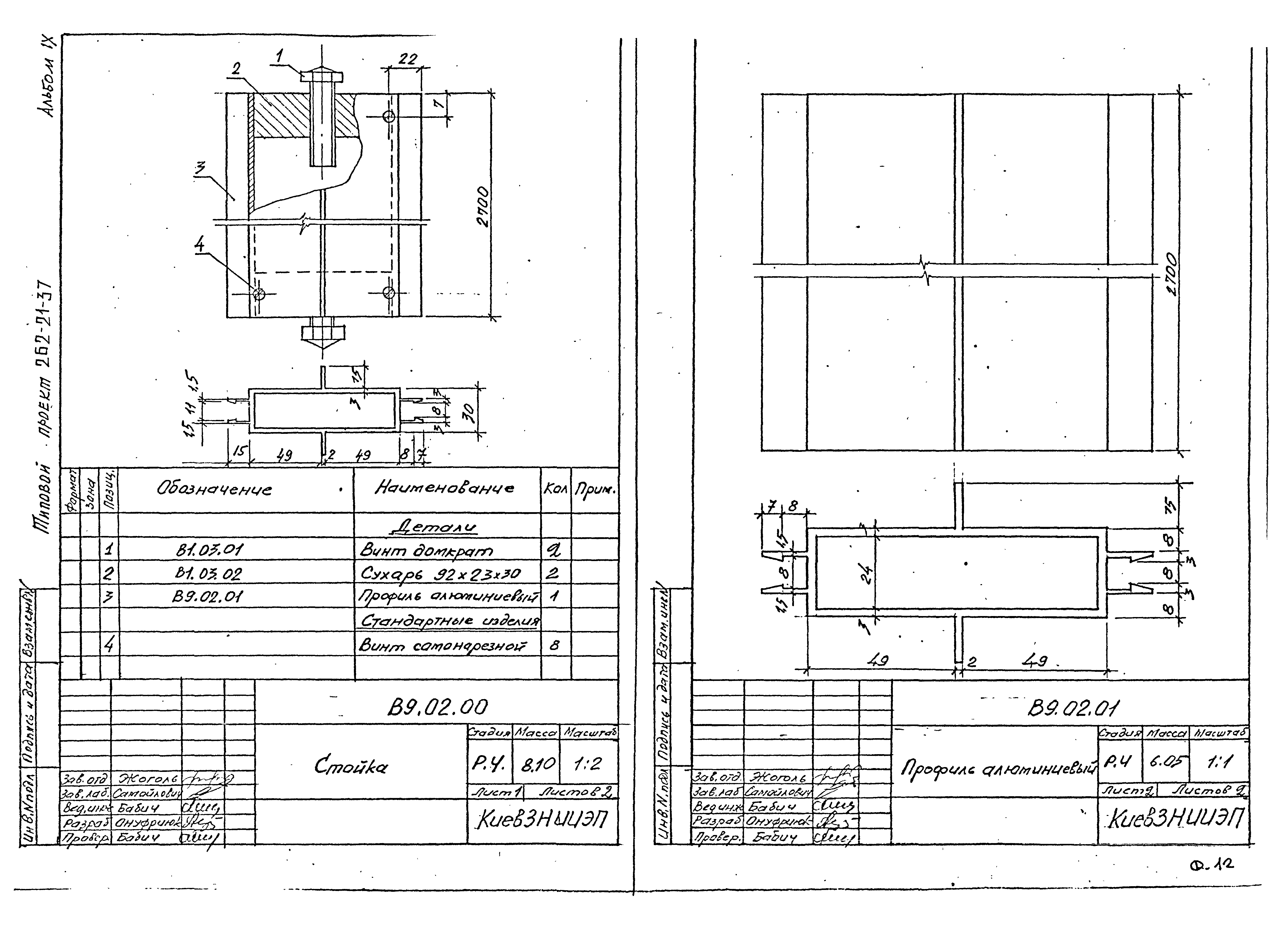
| Оглавление: | Содержание Техническое описание В1.00.00 Спецификация. Вариант 1 В1.00.00СБ Перегородка, без подвесного потолка, с панелями шириной 600 мм В1.00.00 Узлы 2, 3 В1.00.00 Узлы 4, 6 В1.00.00 Узлы 7, 8 В1.00.00 Узлы 5, 9 В1.00.00 Узлы доборных перегородок по этапам В1.00.01 Плинтус В1.00.02 Сухарь В1.00.03 Раскладка ПХВ В1.00.04 Шпонка В1.00.05 Пружина В1.00.06 Прикрывающий профиль В1.01.00 Спецификация В1.01.00-01 Спецификация В1.02.00 Спецификация В1.02.00-01 Спецификация В1.02.00-02 Спецификация В1.01.00СБ Панели стеновые В1.02.00СБ Панели потолочные В1.01.01 Верхняя и нижняя обвязки В1.01.02 Боковая обвязка В1.01.03 Листы сухой гипсовой штукатурки В1.01.04 Пластина металлическая В1.03.00СБ Стойка В1.03.01 Винт-домкрат В1.03.02 Сухарь В1.03.03 Профиль алюминиевый В2.00.00 Спецификация. Вариант 2 В2.00.00СБ Перегородка с подвесным потолком, с панелями шириной 600 мм В2.00.00 Узлы 1, 10 В2.00.01 Прикрывающий профиль ПВХ В2.00.02 Деревянный брусок В3.00.00 Спецификация. Вариант 3 В3.00.00СБ Перегородка без подвесного потолка, с панелями шириной 900 мм и с примыканием перегородок между собой В3.00.00 Узлы 11, 12 В3.01.00СБ Соединительный элемент В3.01.01 Корпус В3.01.02 Нижний элемент раскладки В3.01.03 Фиксирующий элемент В4.00.00 Спецификация. Вариант 4 В4.00.00СБ Перегородка с подвесным потолком, с панелями шириной 900 мм В5.00.00 Спецификация. Вариант 5 В5.00.00СБ Перегородка без подвесного потолка, с панелями шириной 600 мм, с дверным проемом В5.00.01 Профиль деревянный В5.01.00СБ Панель наддверная В6.00.00 Спецификация. Вариант 6 В6.00.00СБ Перегородка с подвесным потолком, с панелями шириной 600 мм, с дверным проемом В7.00.00 Спецификация. Вариант 7 В7.00.00СБ Перегородка без подвесного потолка, с панелями шириной 900 мм, с дверным проемом В8.00.00 Спецификация. Вариант 8 В8.00.00СБ Перегородка с подвесным потолком, с панелями шириной 900 мм, с дверным проемом и пересечением перегородок между собой В9.00.00 Спецификация тип 9 В9.00.00 Перегородка под ригелем с шириной панелей 600 мм, с двумя дверными проемами. Узел 13 В9.01.00 Панель наддверная В9.01.01 Лист сухой штукатурки В9.02.00 Стойка В9.02.01 Профиль алюминиевый В9.04.00 Импост дверной В9.04.01 Сухарь |
| Разработан: | ЦНИИЭП зрелищных зданий и спортивных сооружений Госгражданстроя |
| Утверждён: | 21.02.1980 Госгражданстрой (Gosgrazhdanstroy 64) |











































