Скачать Типовой проект 262-21-37 Альбом XI. Часть 1. Вариант проекта со стоянкой на 36 легковых автомобилей. Архитектурные и конструктивные чертежиДата актуализации: 01.01.2021
|
| Обозначение: | Типовой проект 262-21-37 |
| Обозначение англ: | 262-21-37 |
| Статус: | не определен законодательством |
| Название рус.: | Альбом XI. Часть 1. Вариант проекта со стоянкой на 36 легковых автомобилей. Архитектурные и конструктивные чертежи |
| Дата добавления в базу: | 01.09.2013 |
| Дата актуализации: | 01.01.2021 |
| Дата введения: | 06.04.1982 |
| Дата окончания срока действия: | 30.06.2003 |
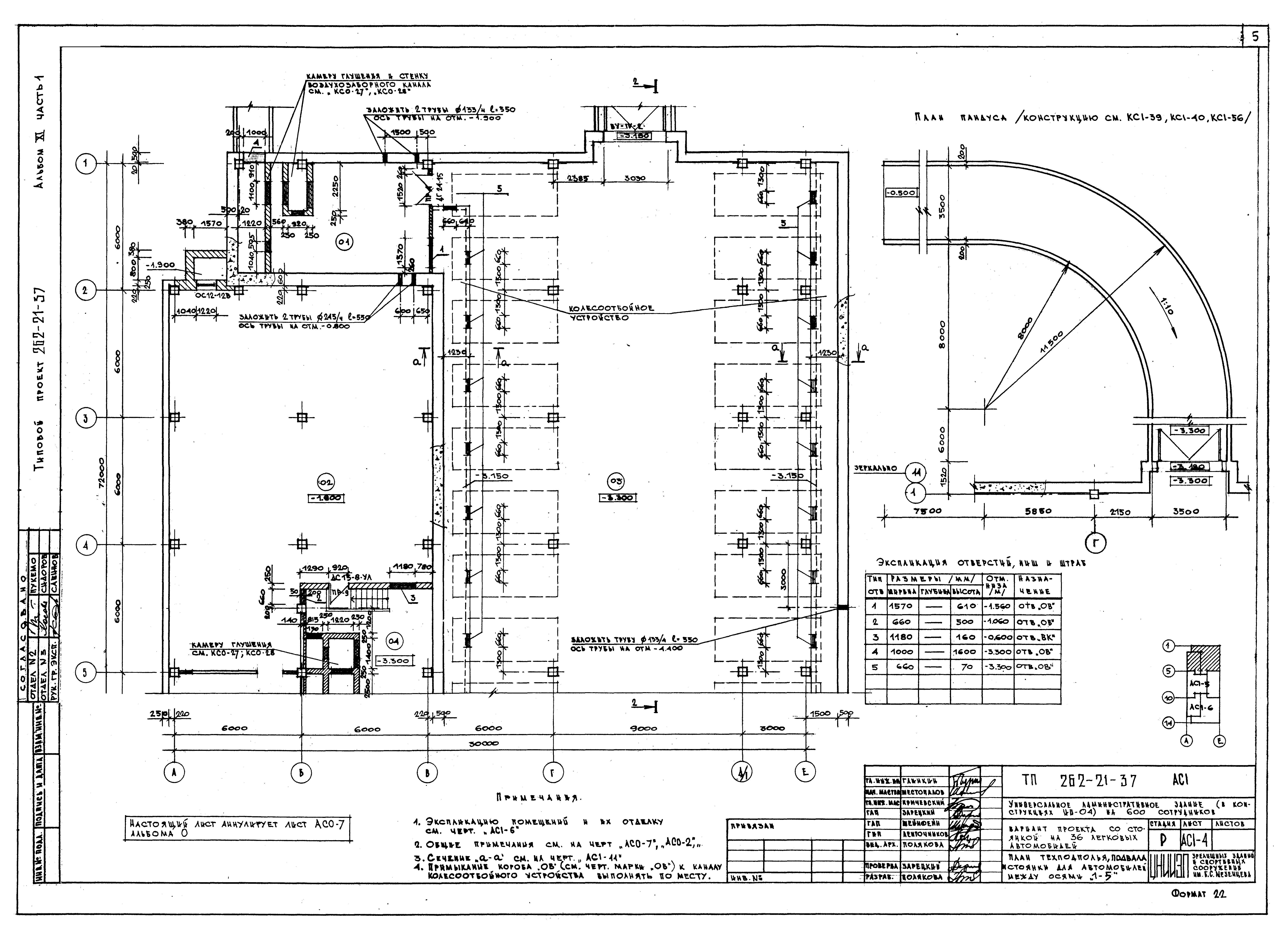
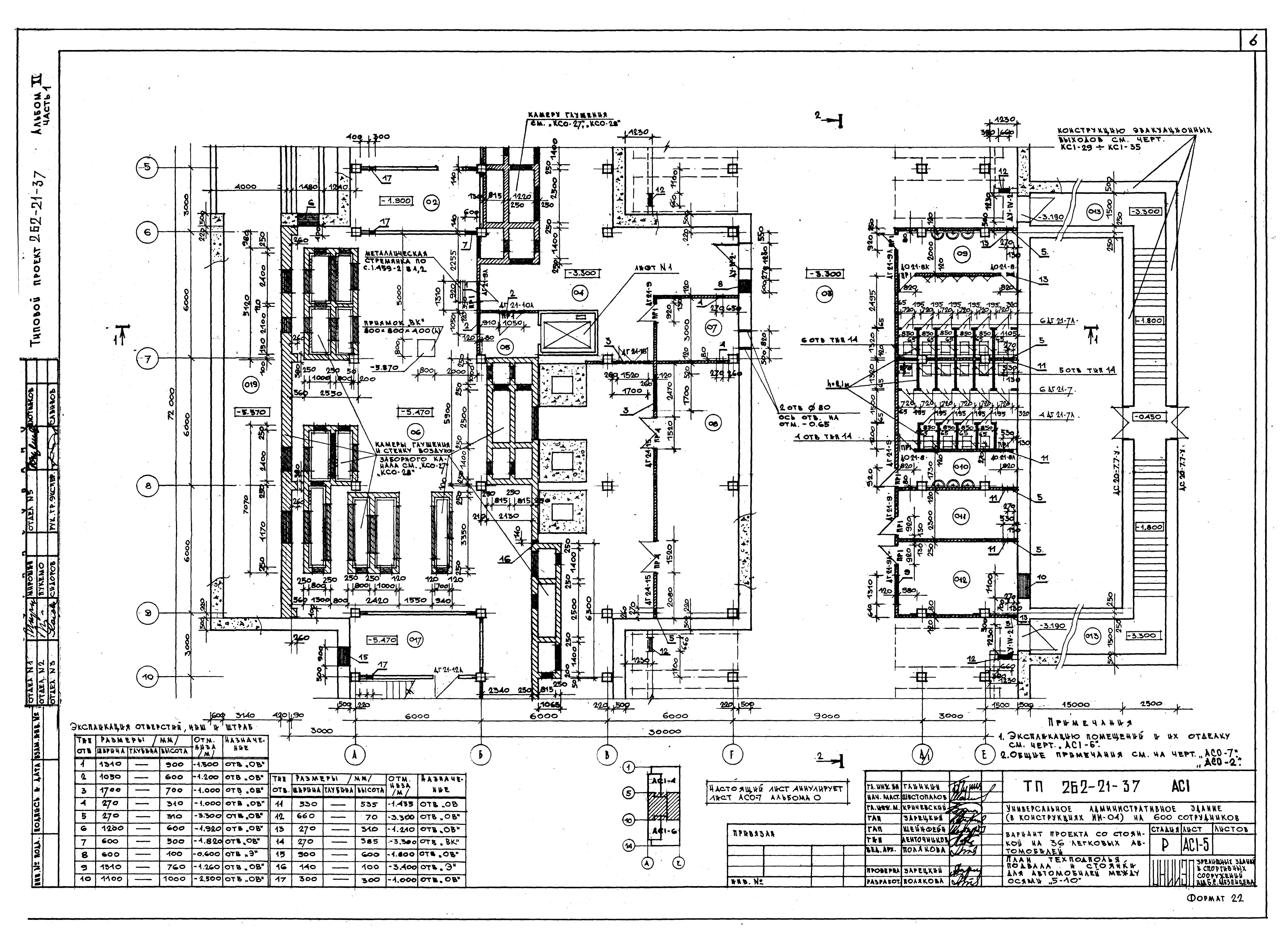
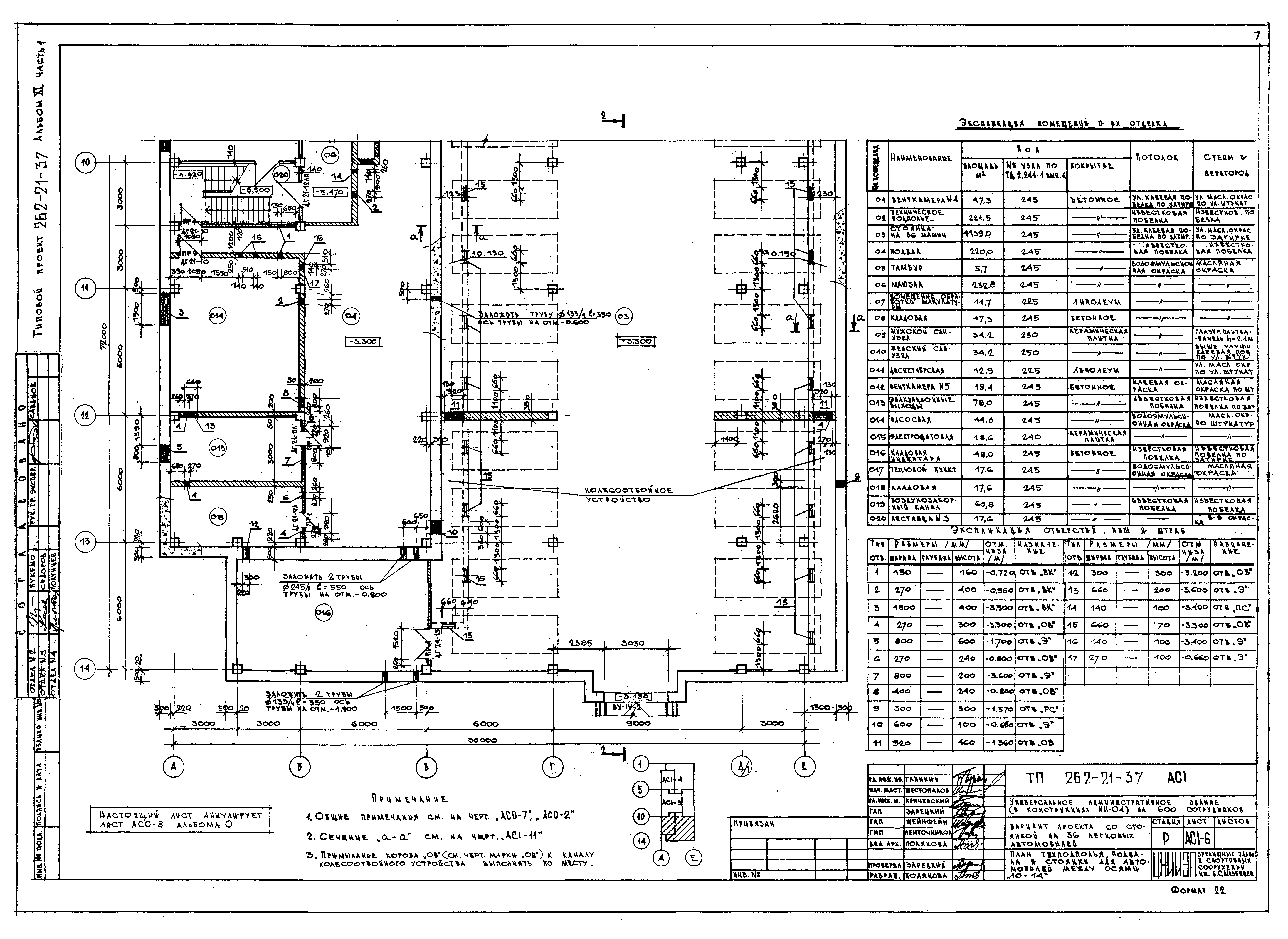
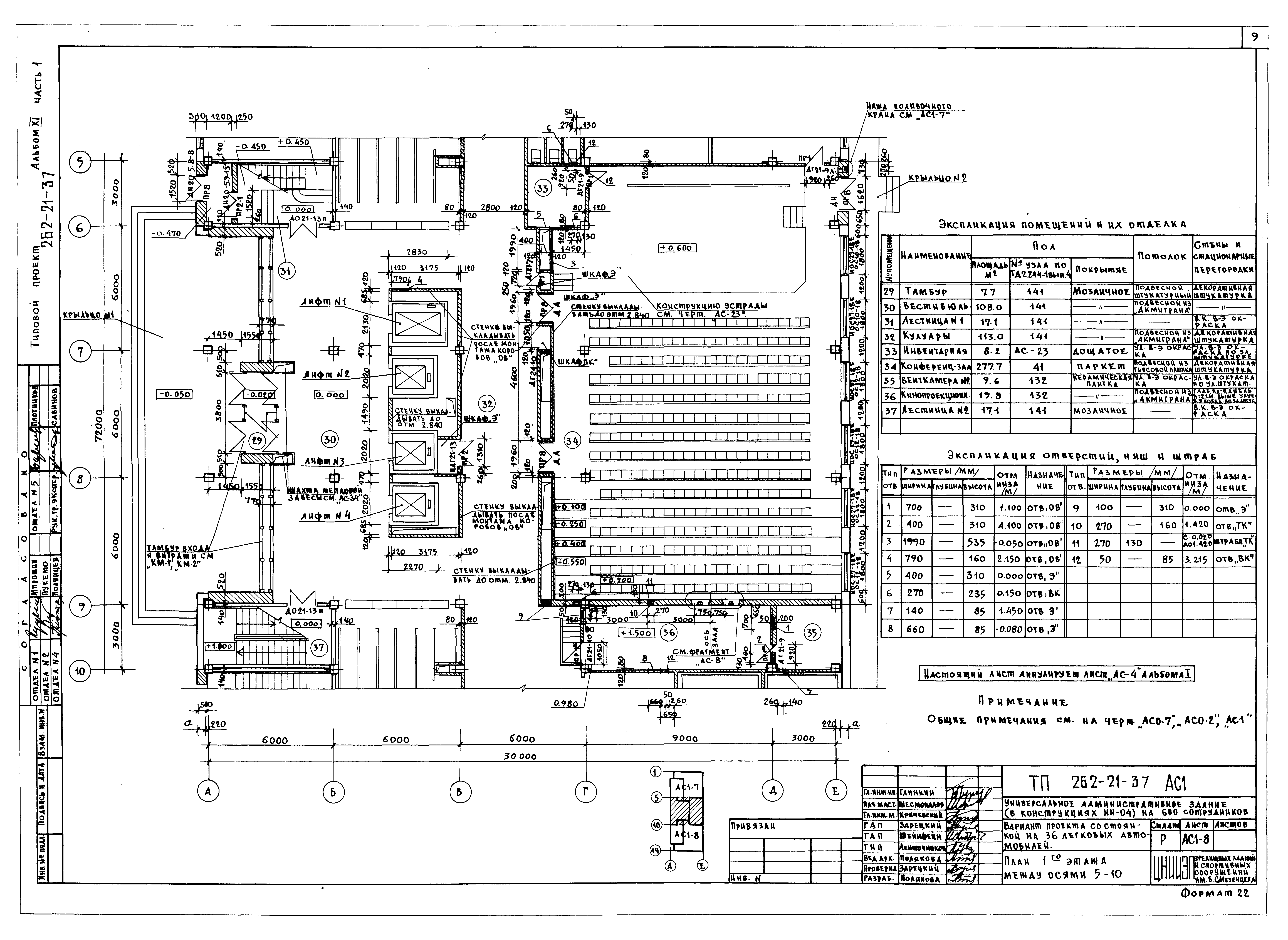
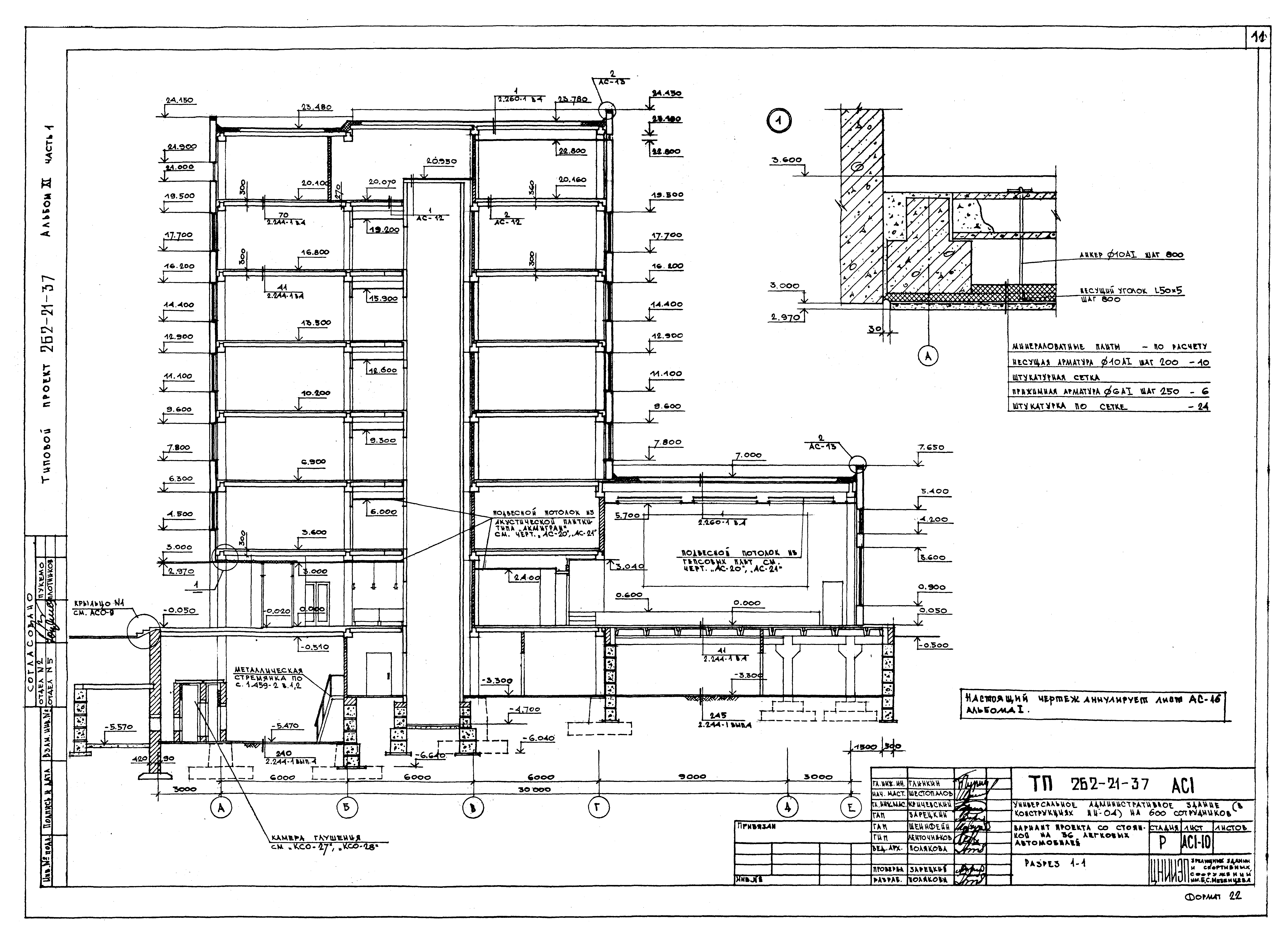
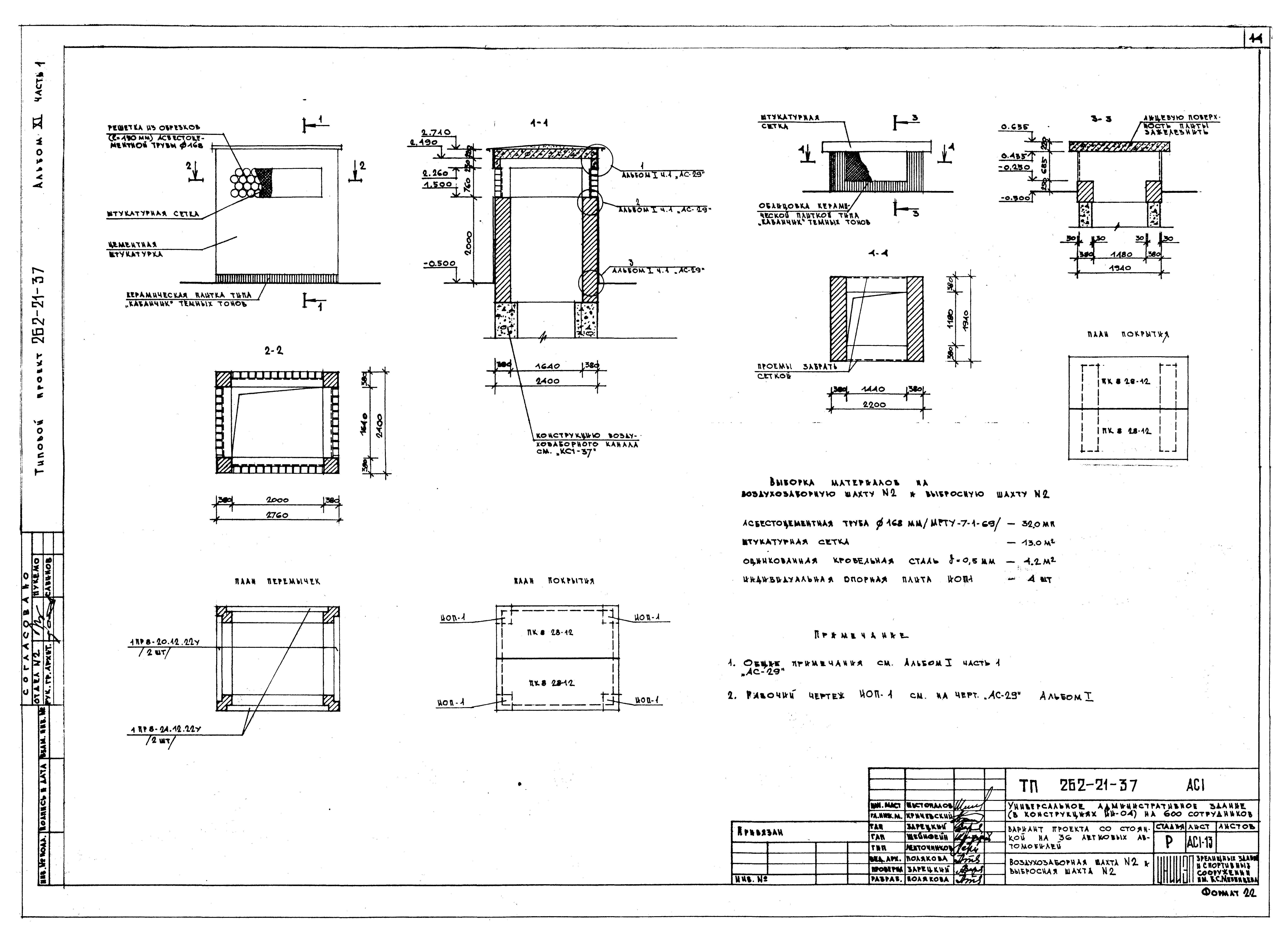
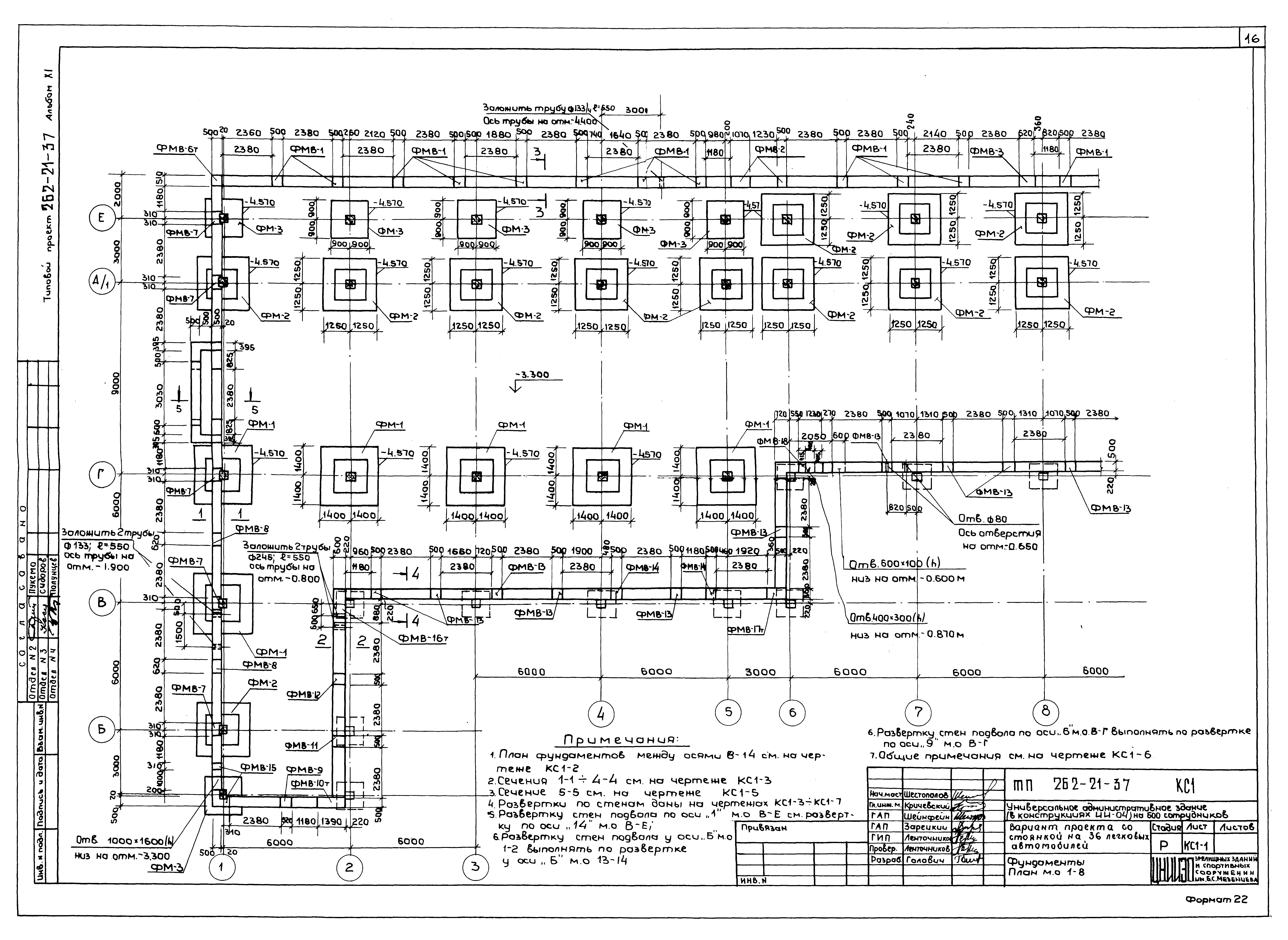
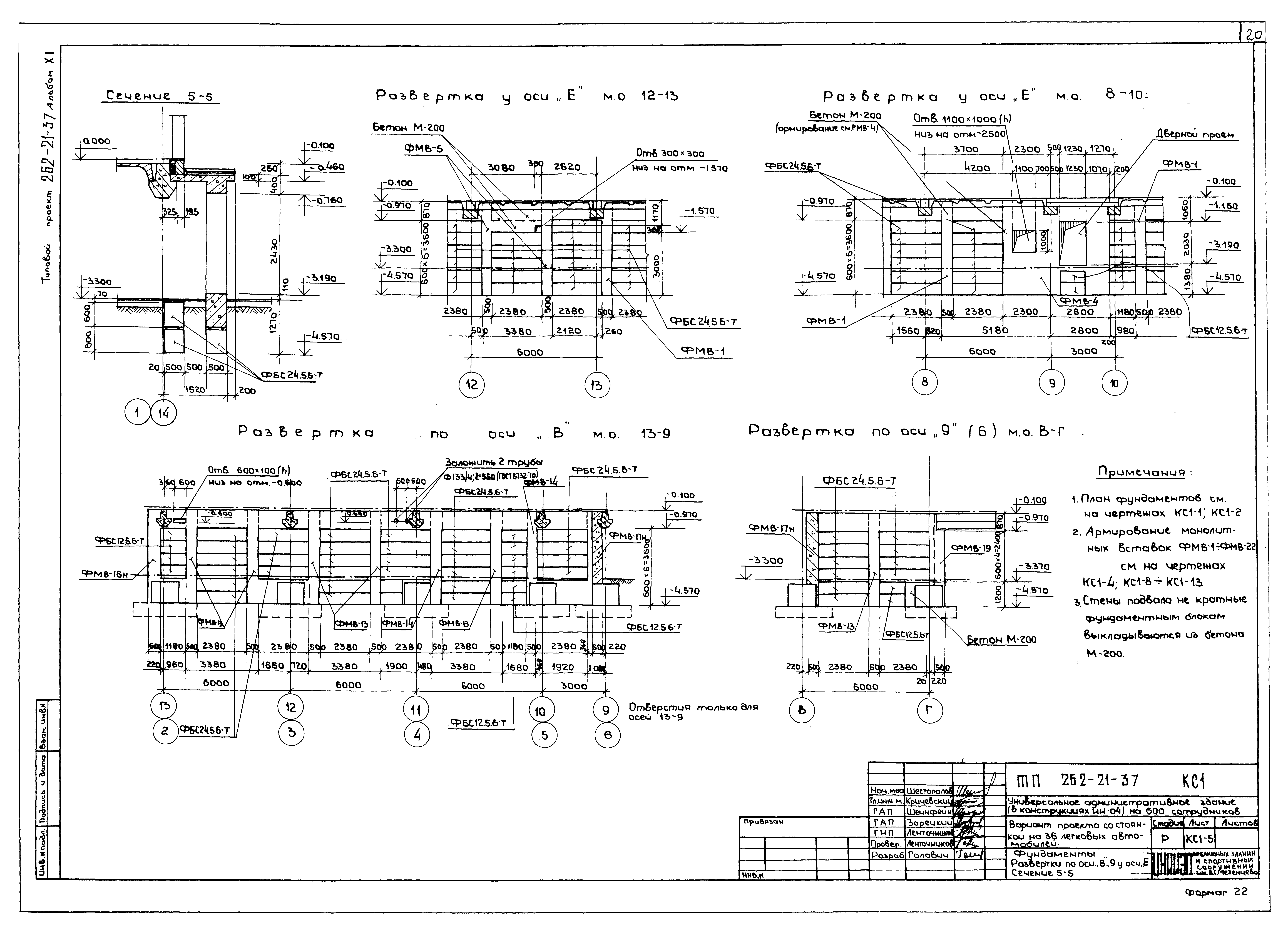
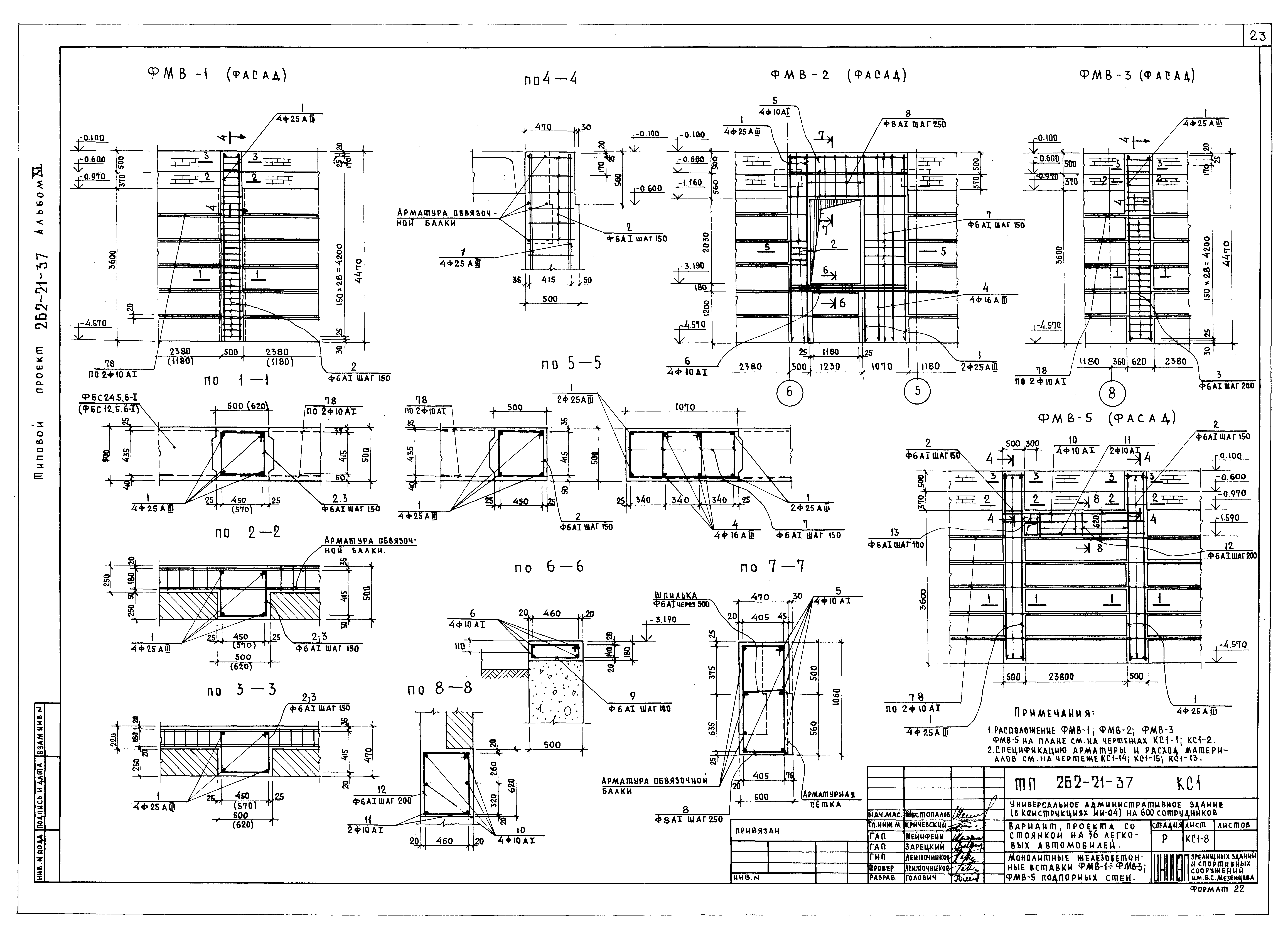
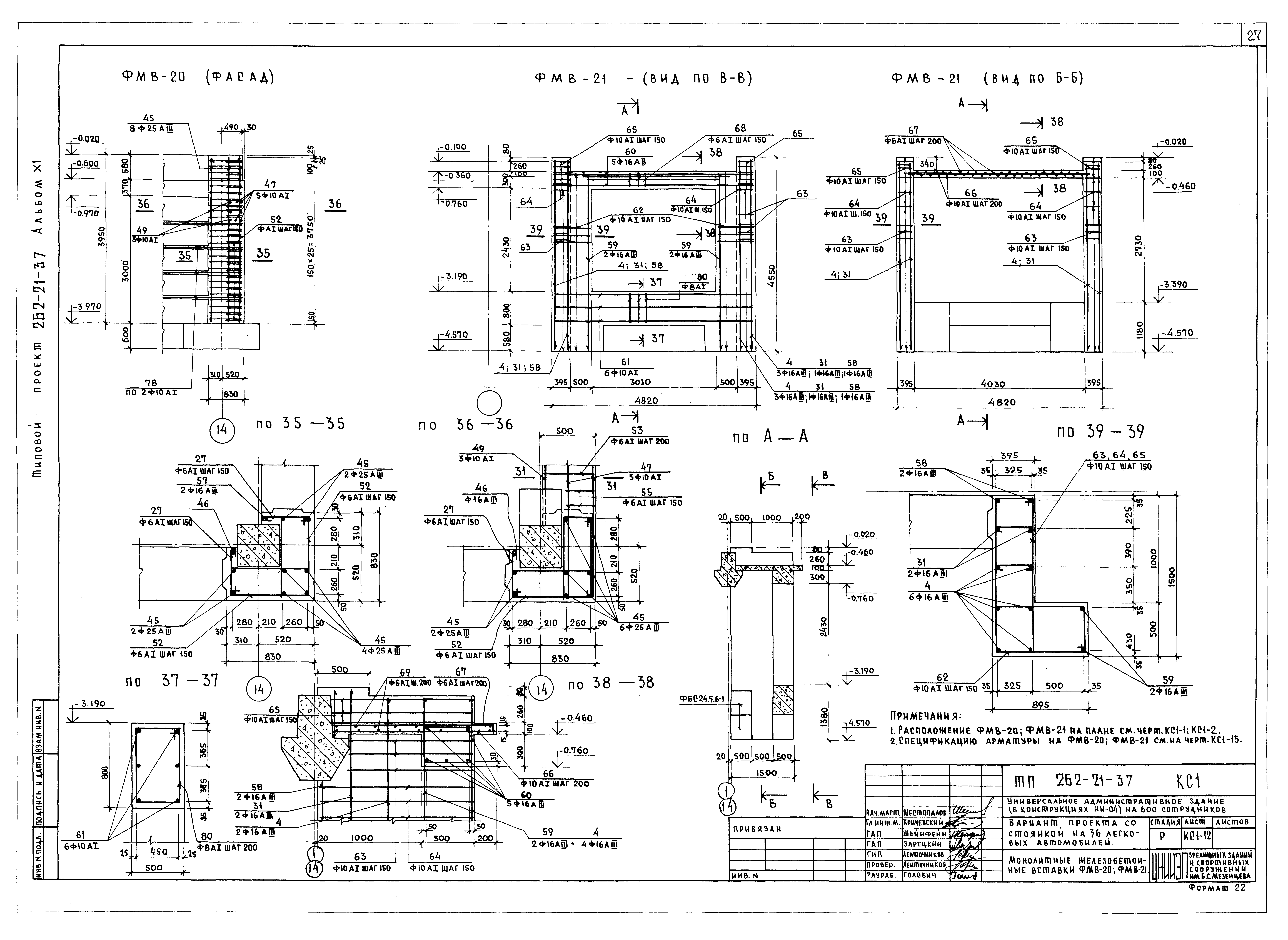
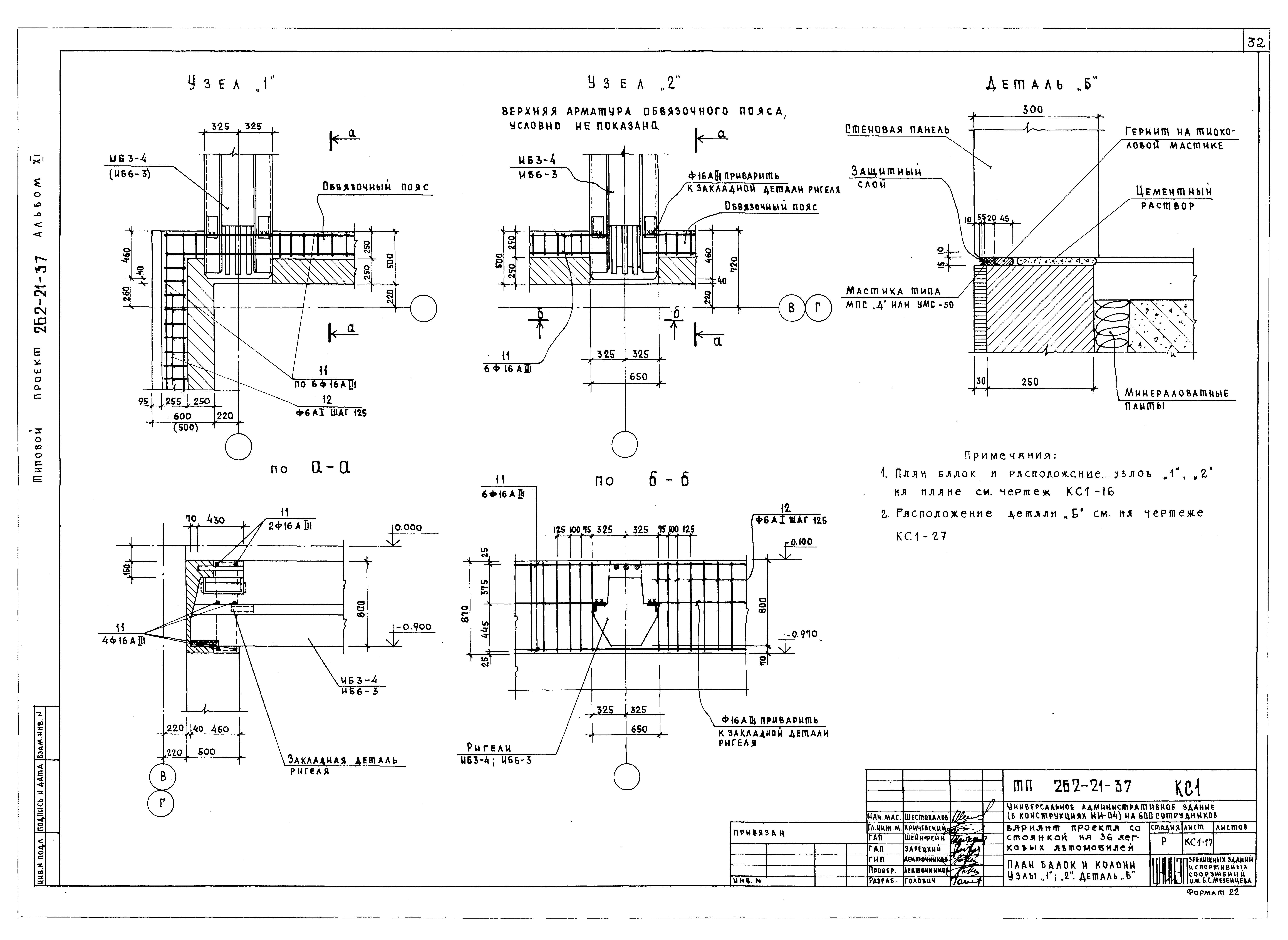
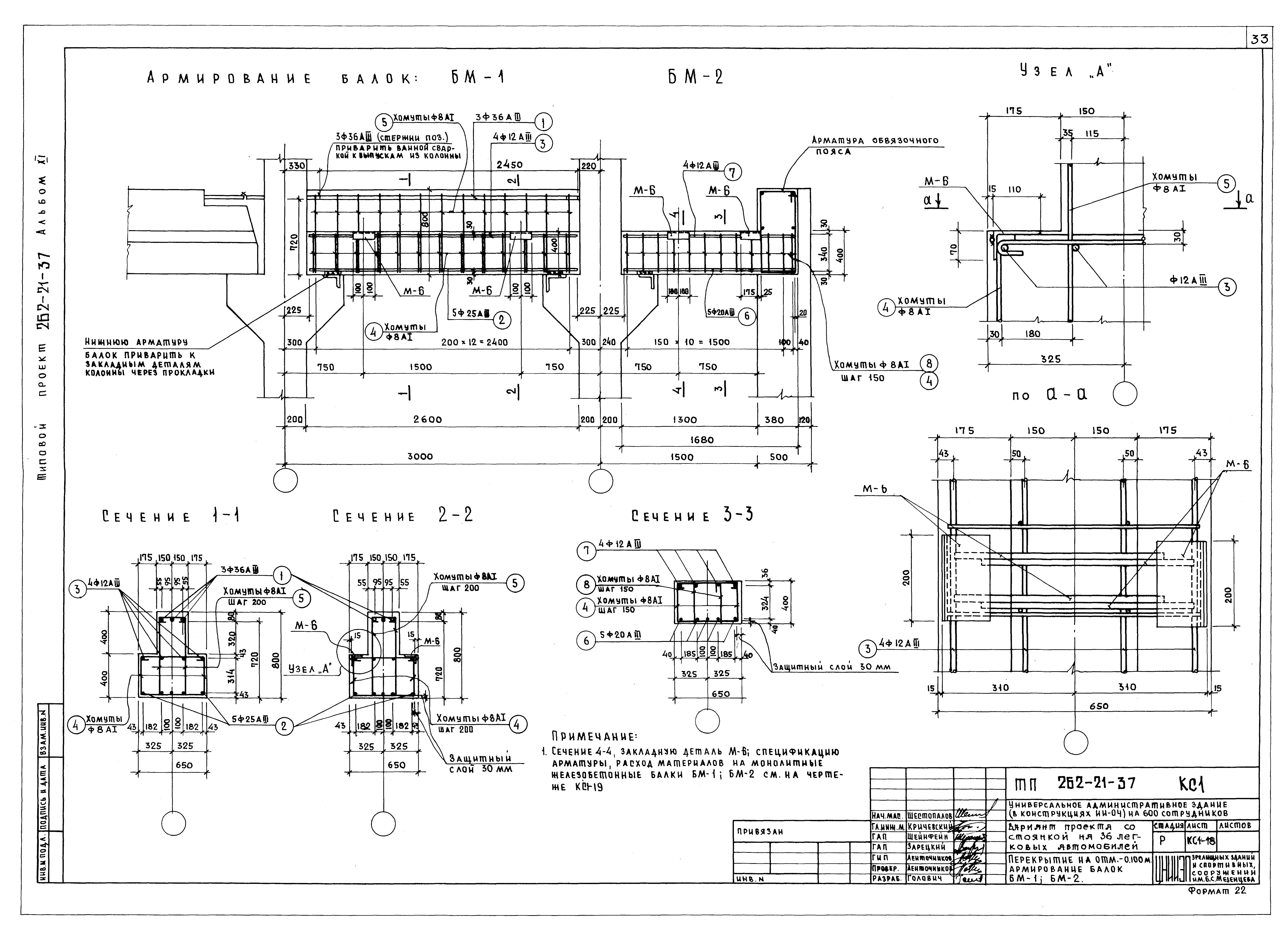
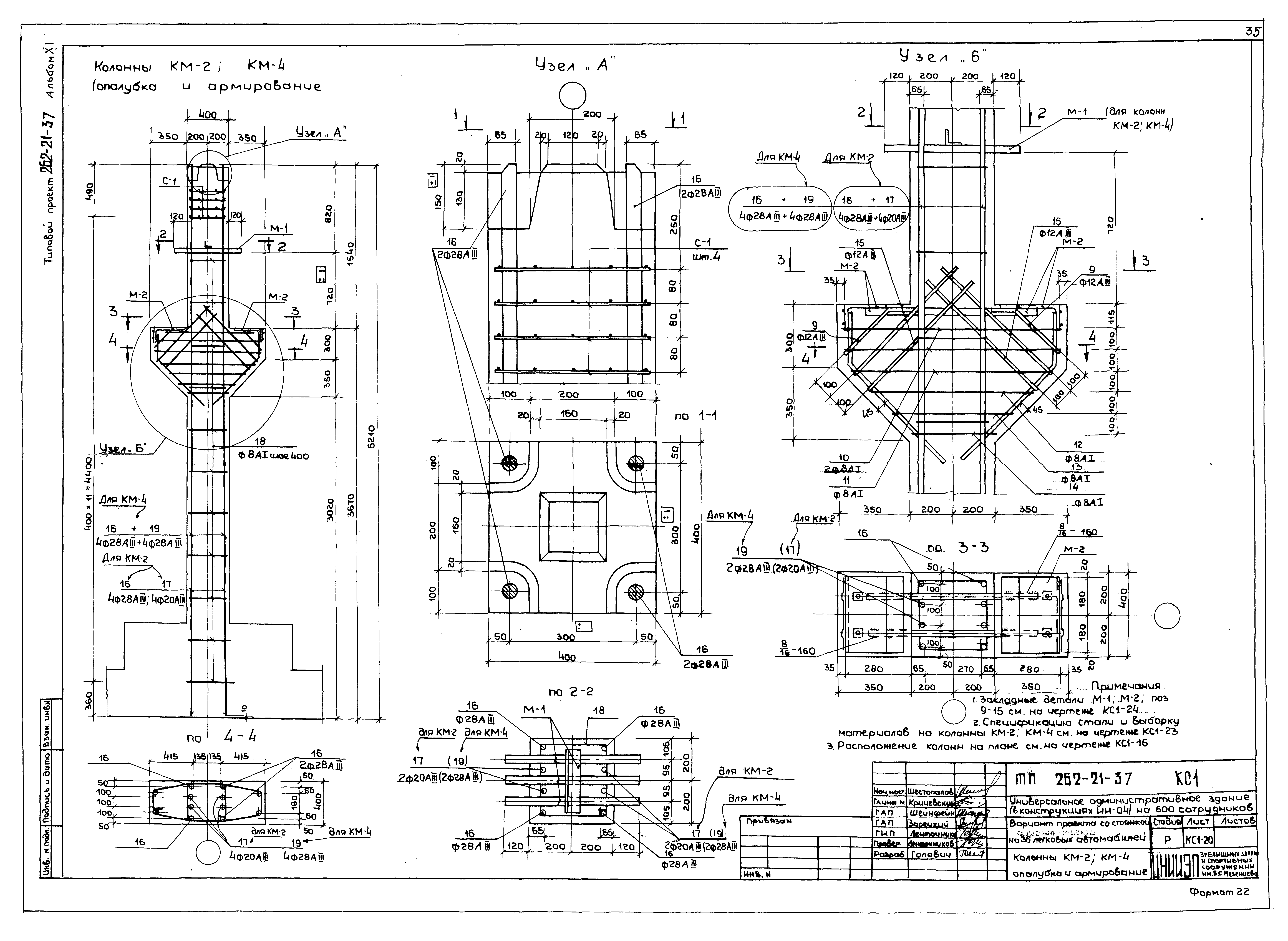
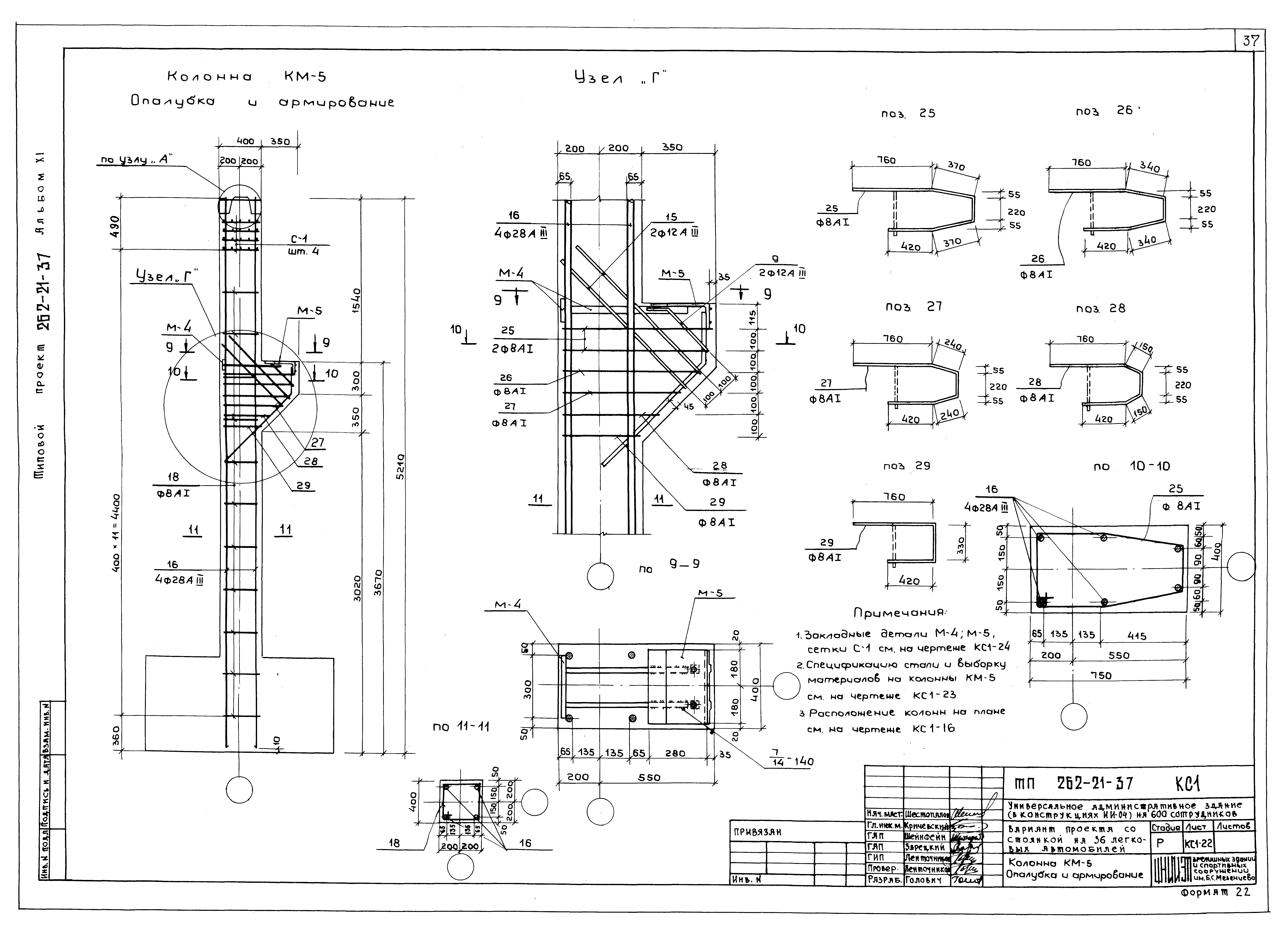
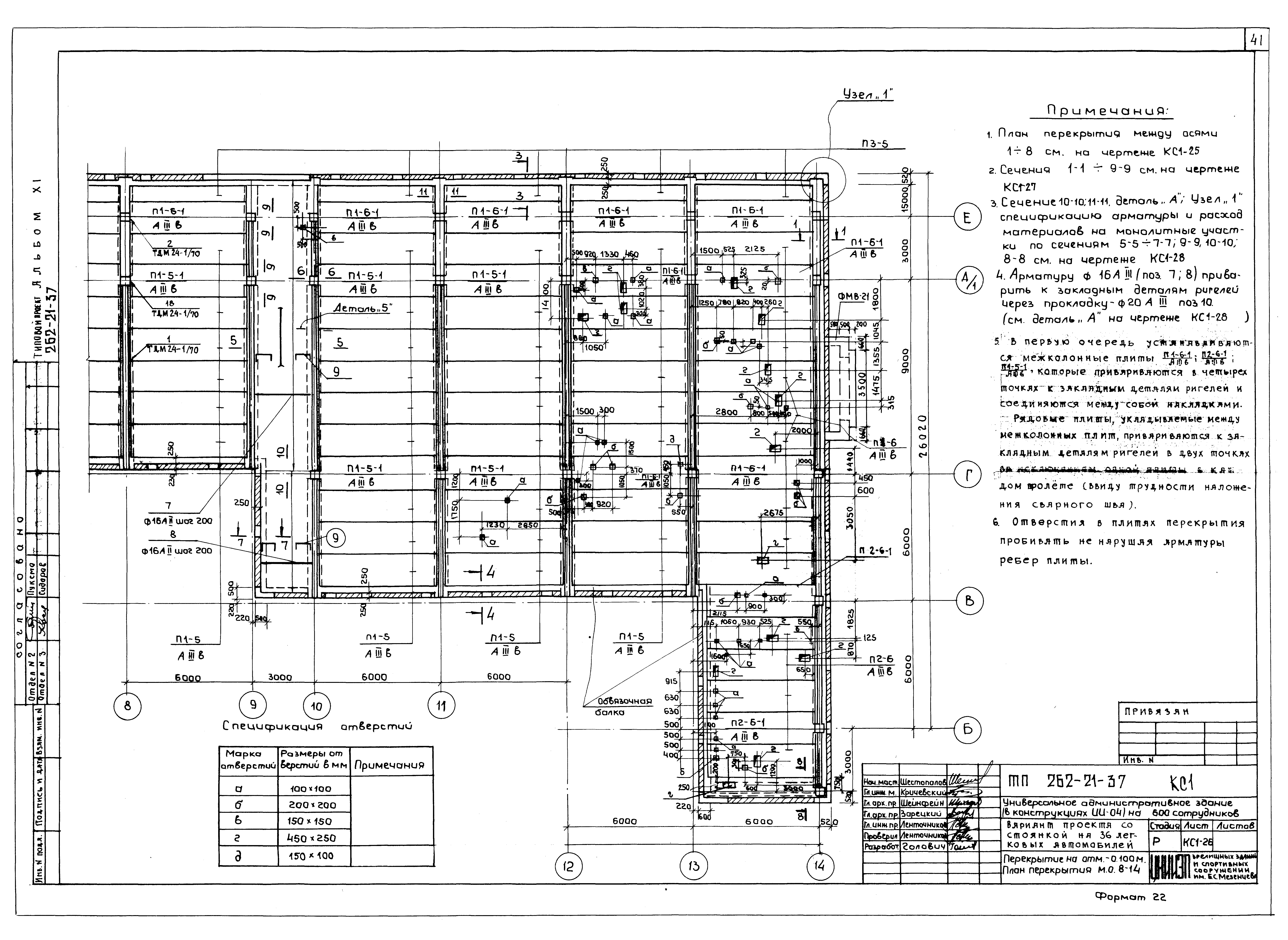
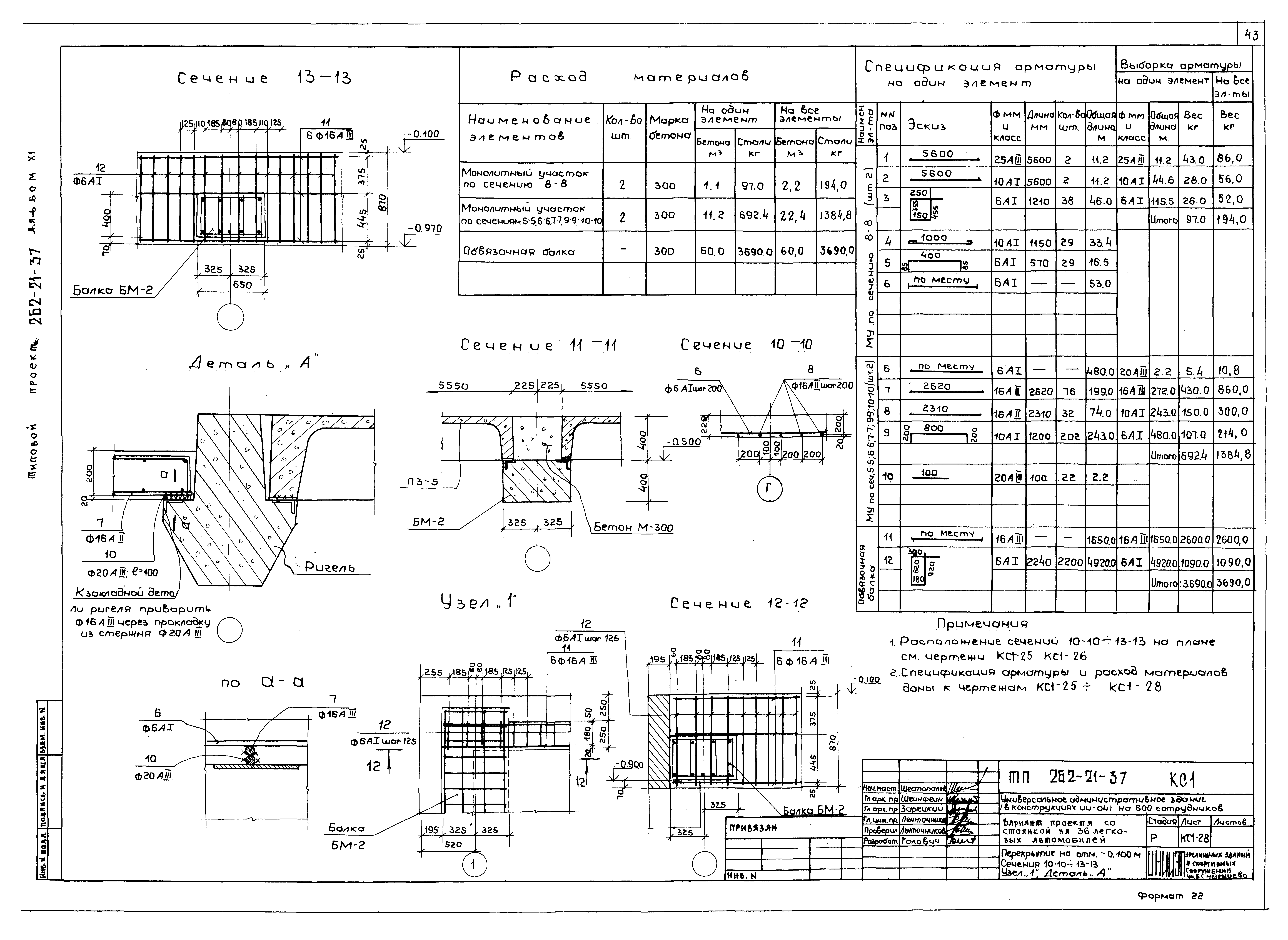
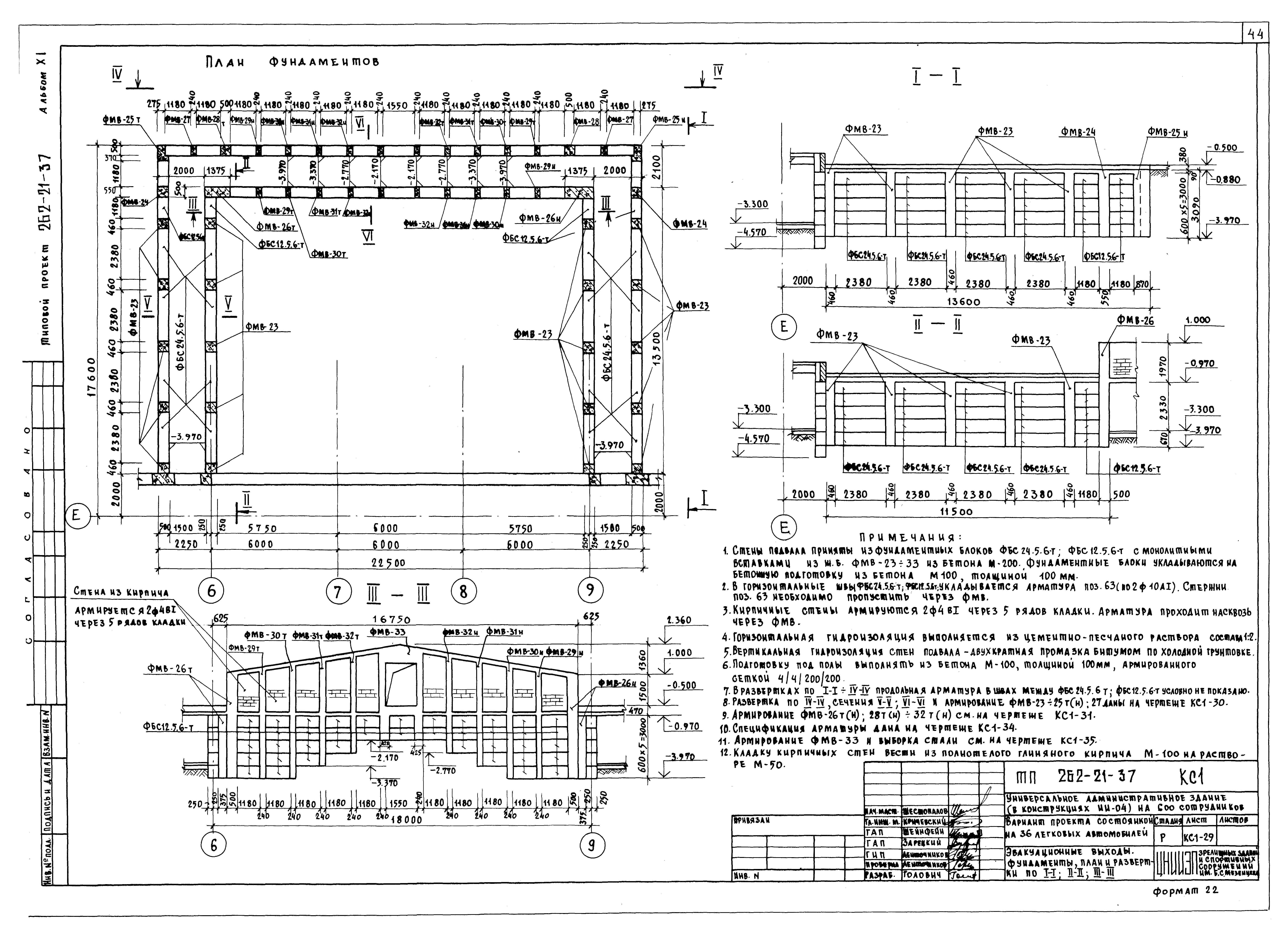
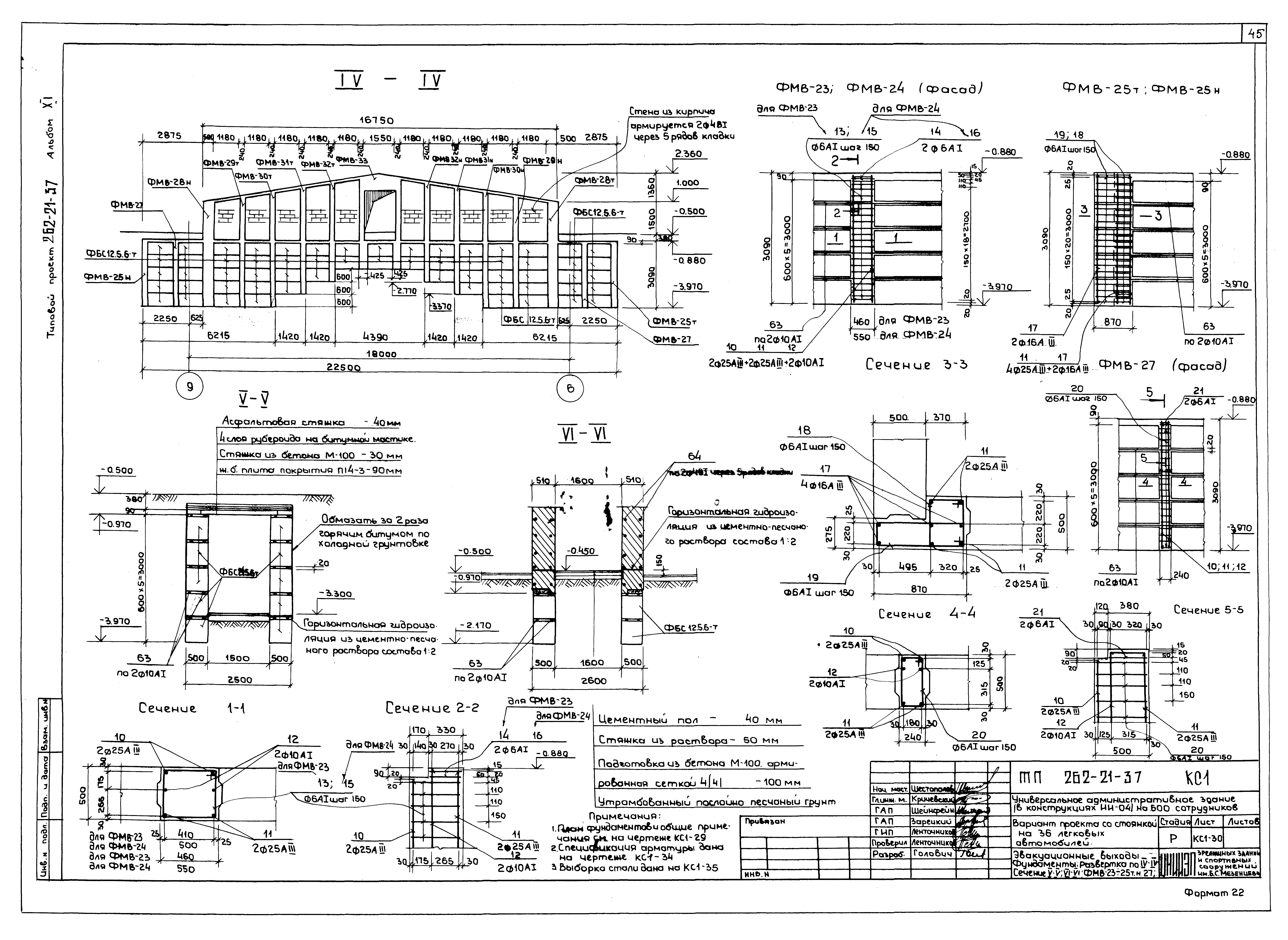
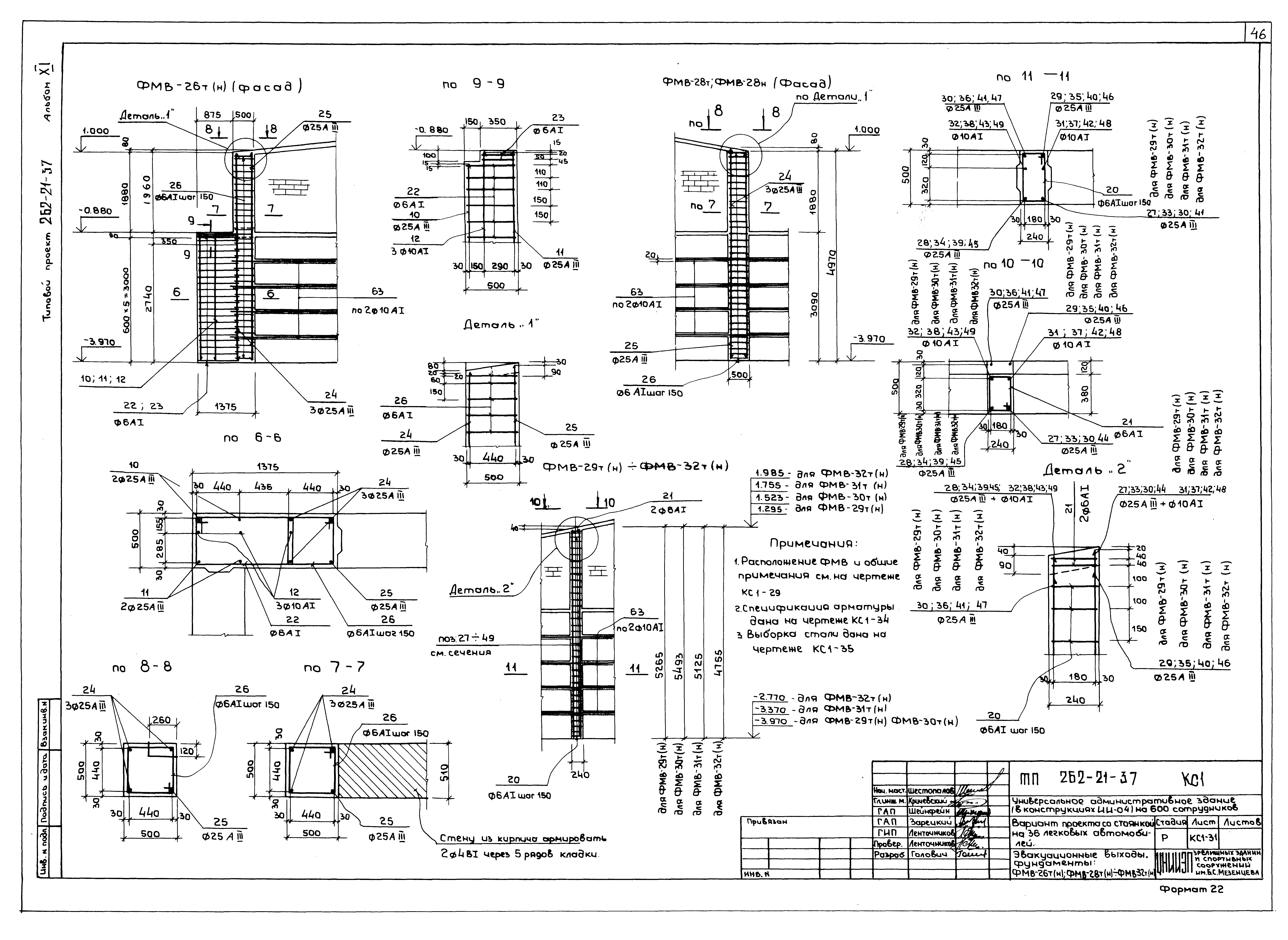
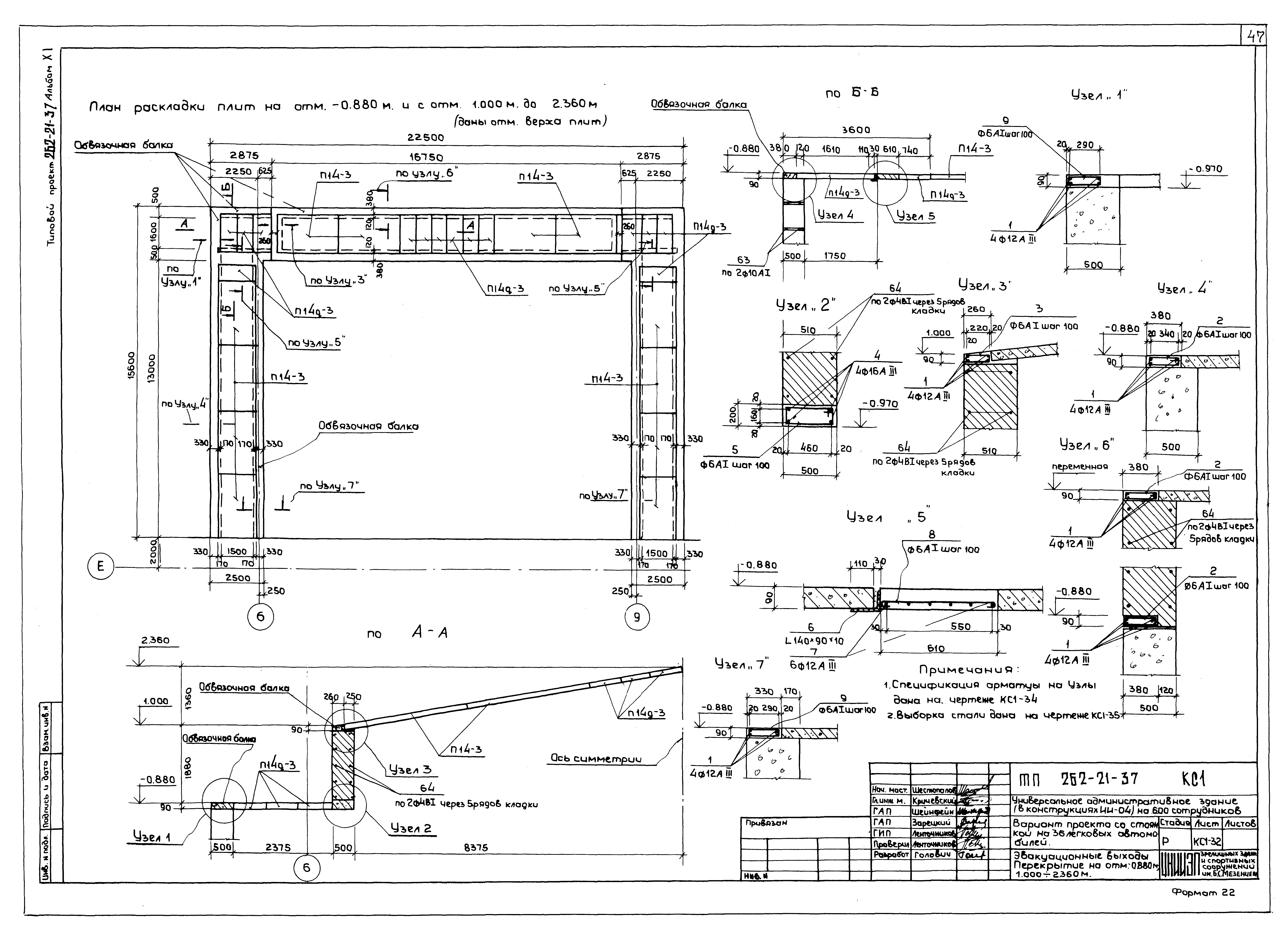
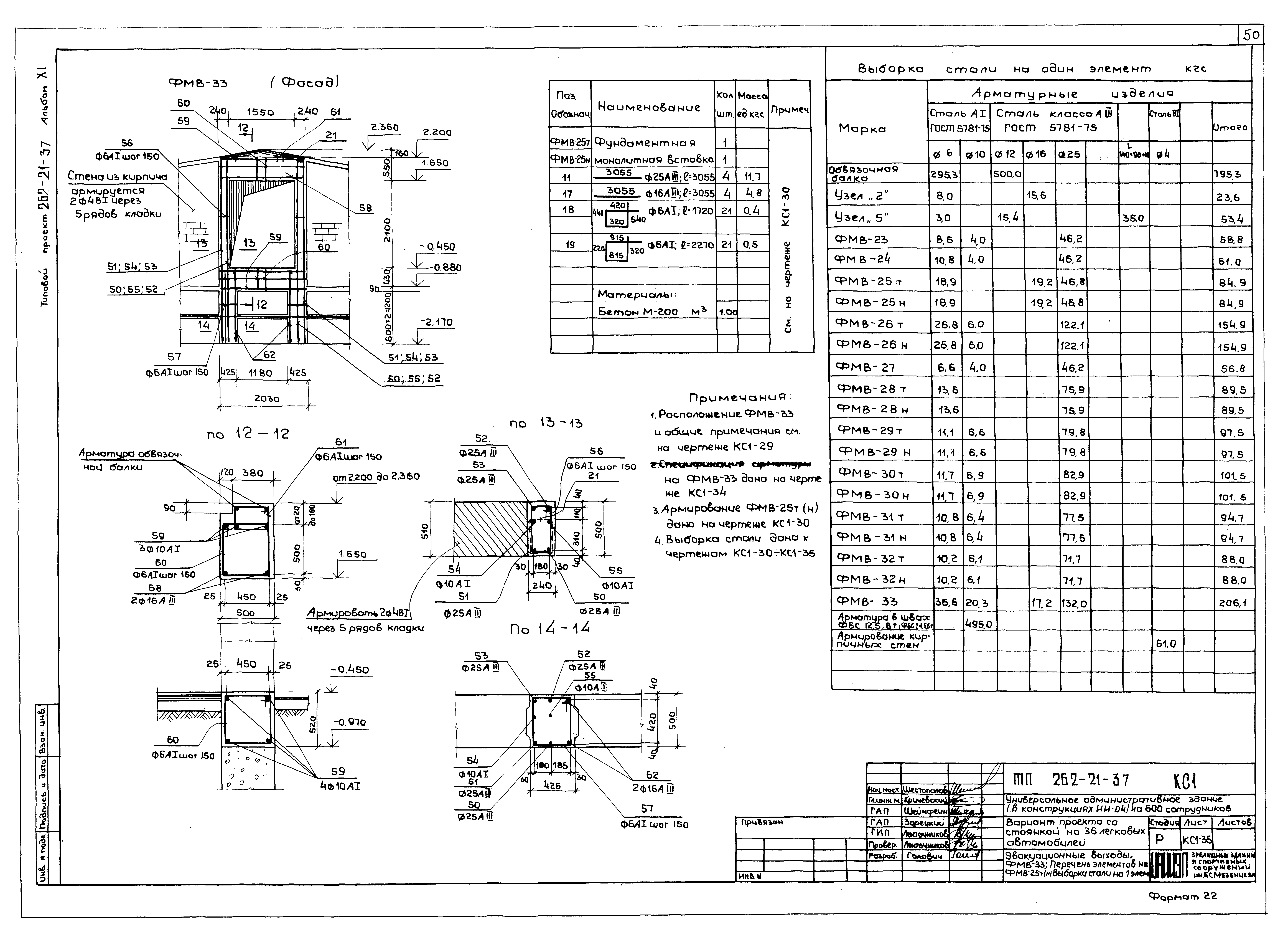
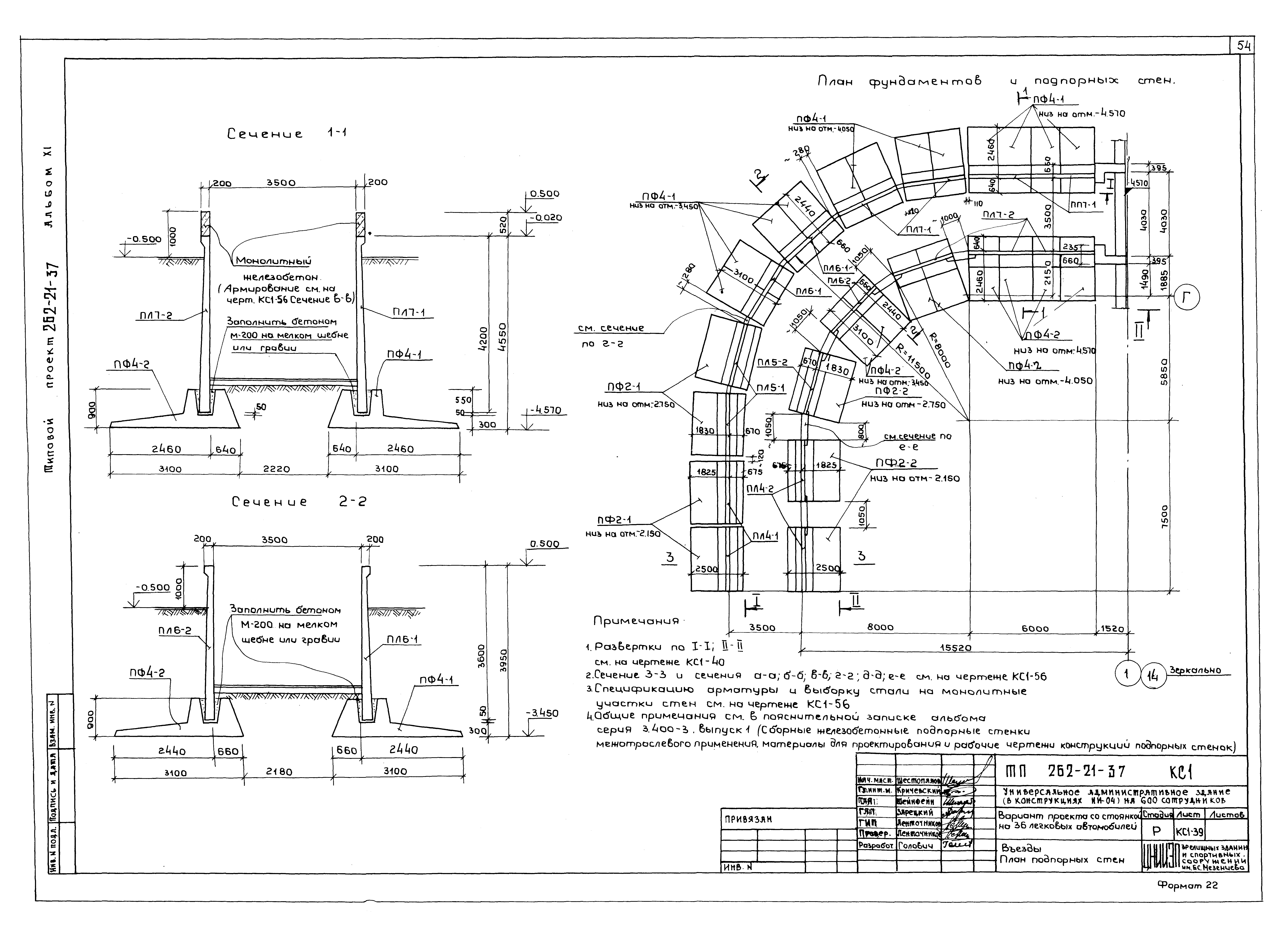
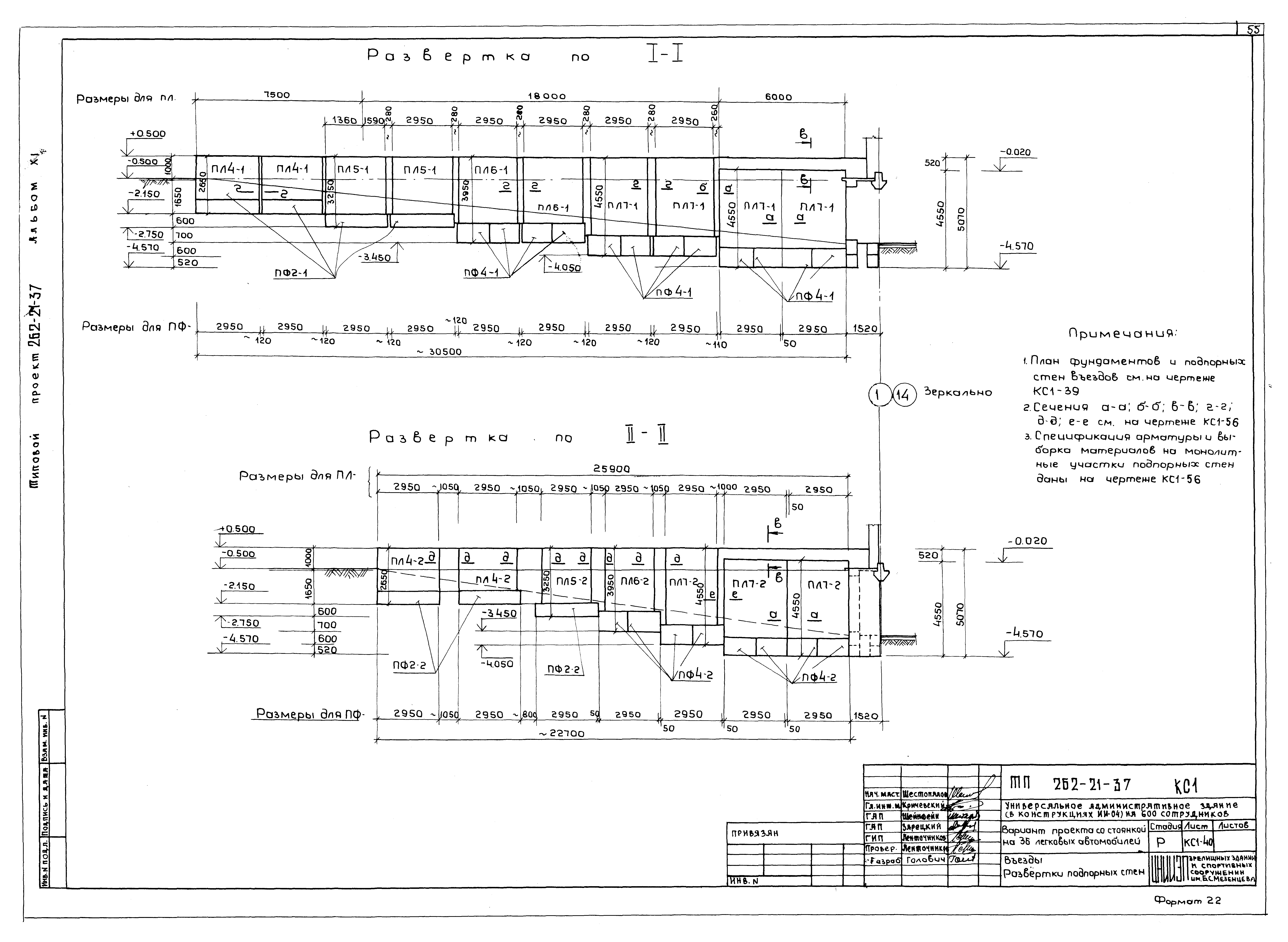
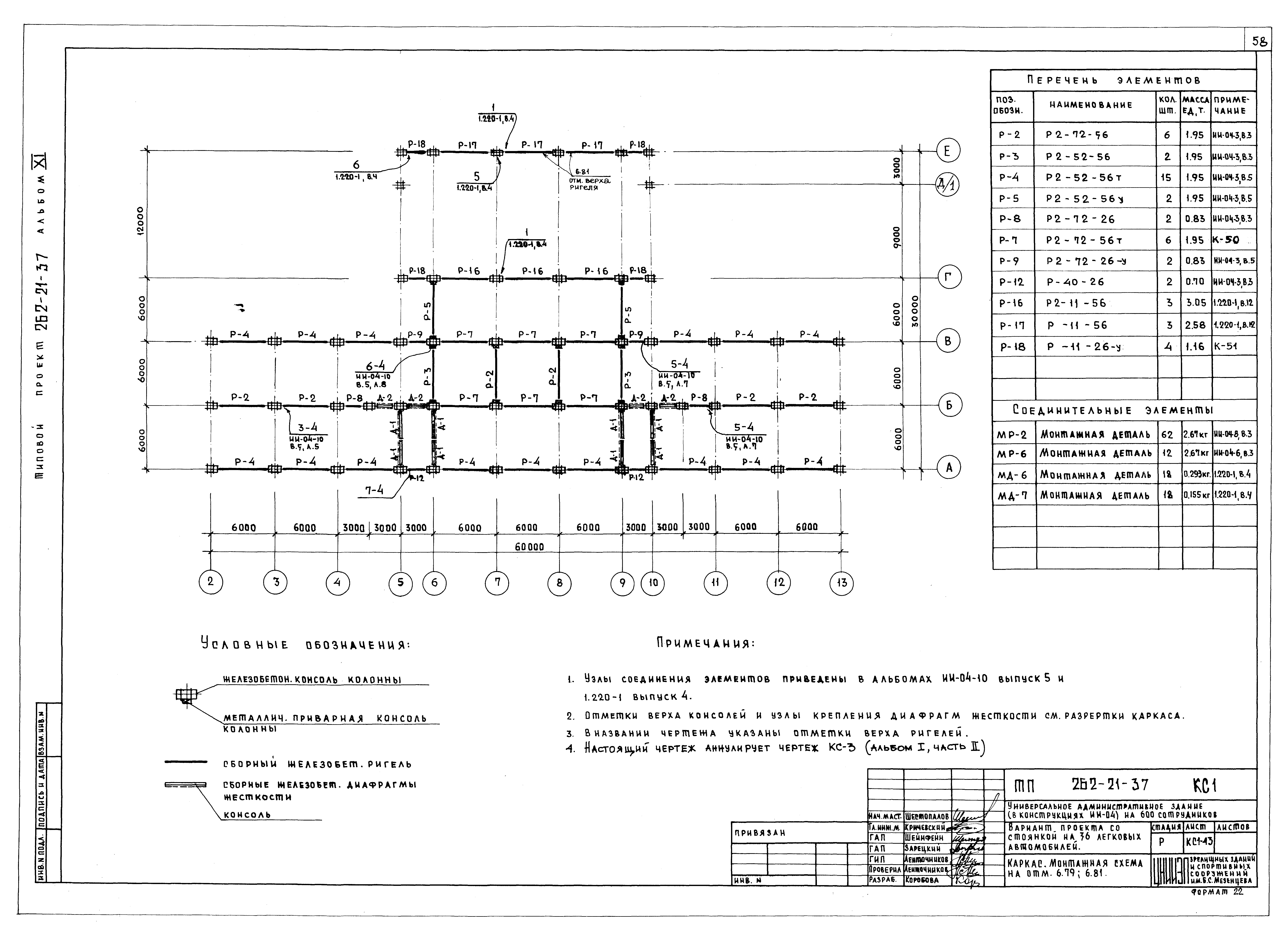
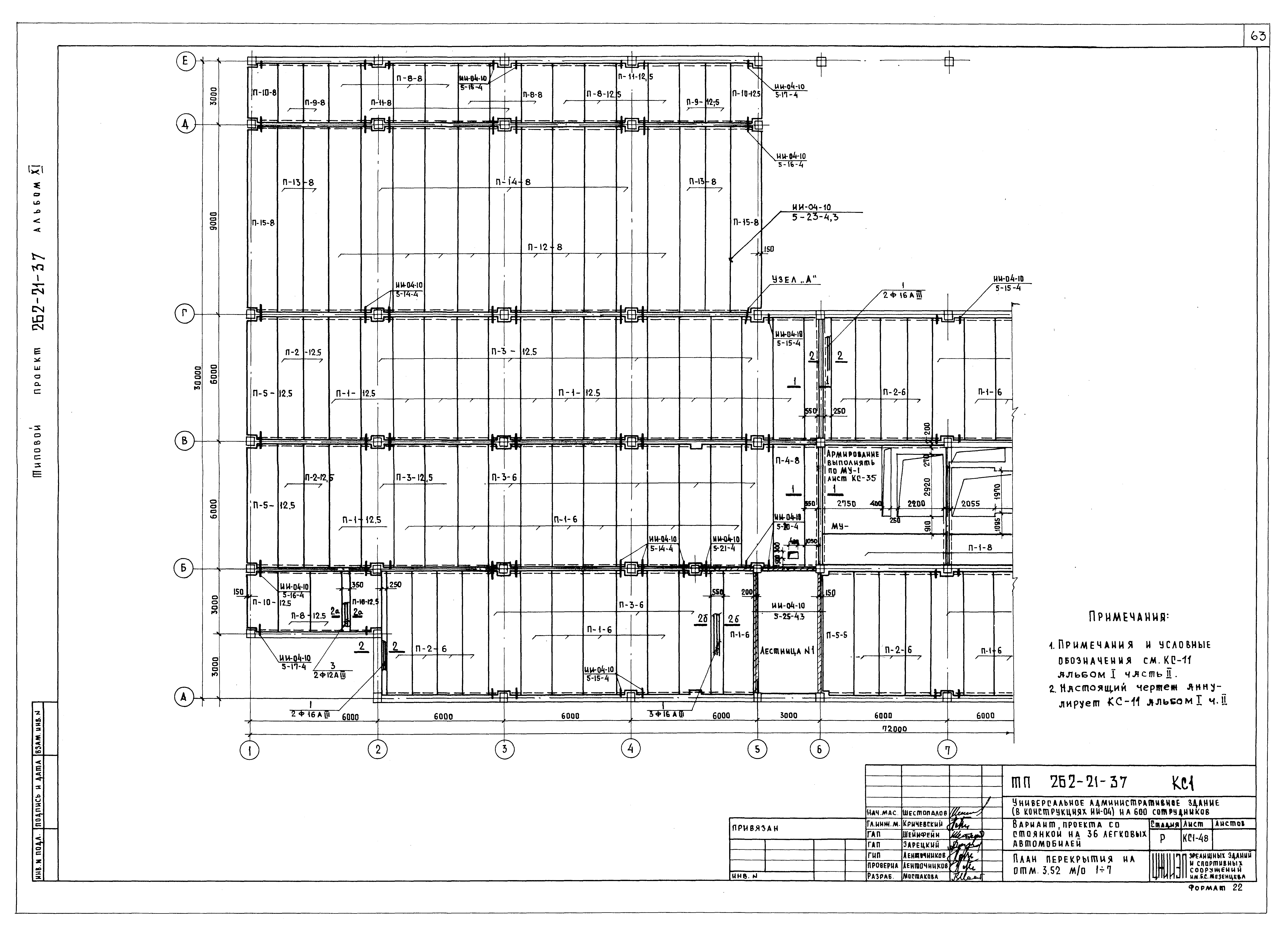
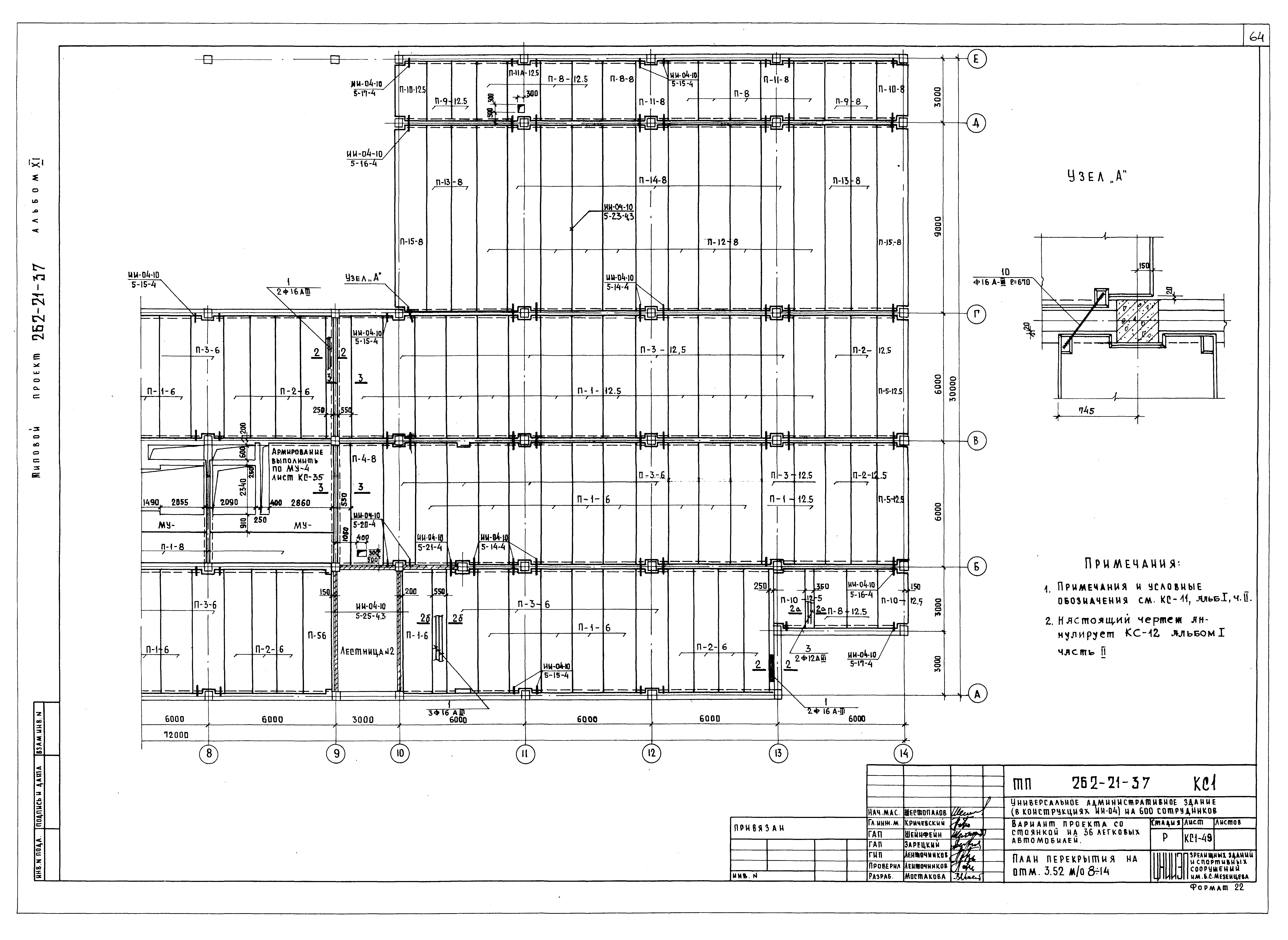
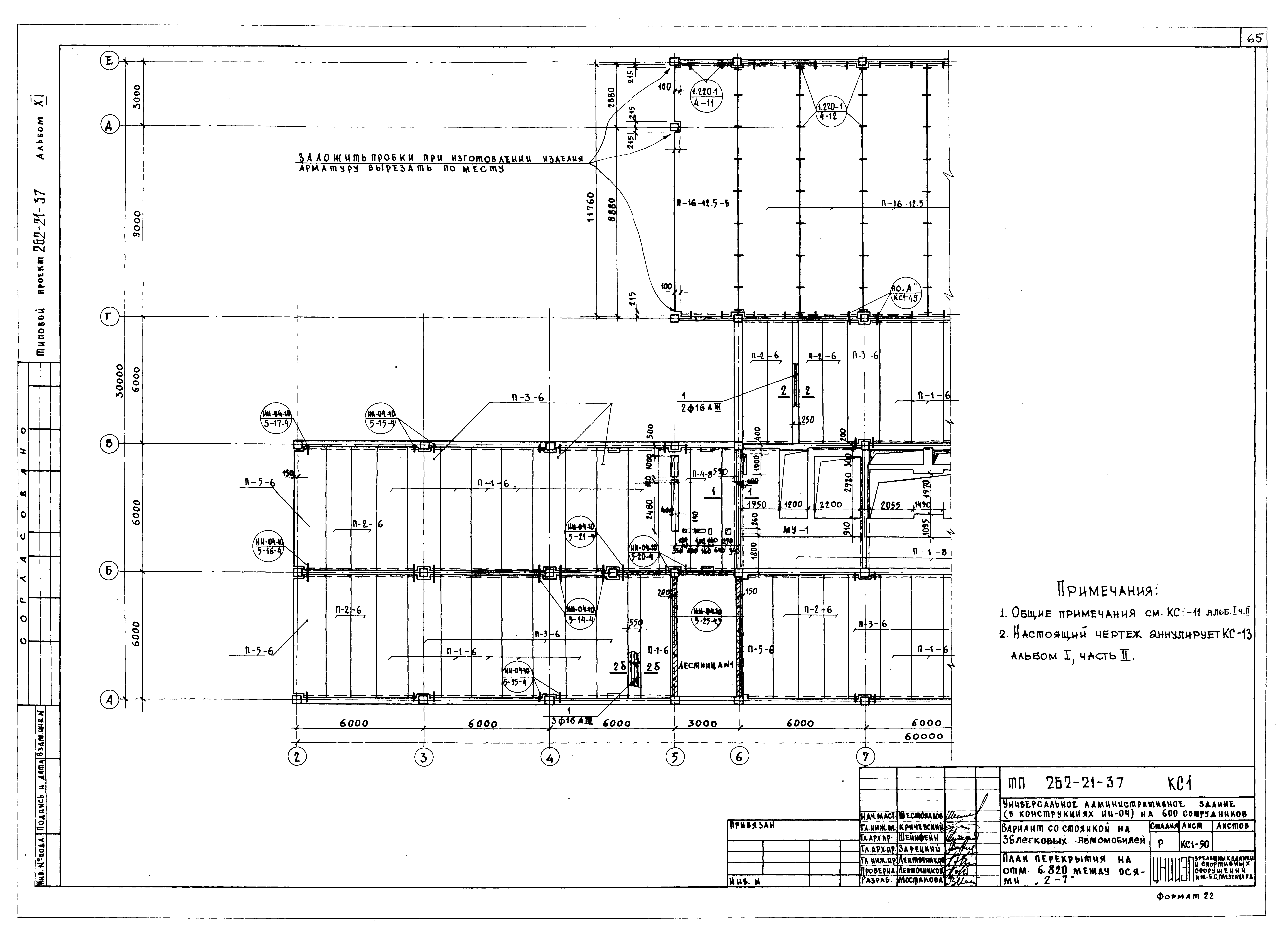
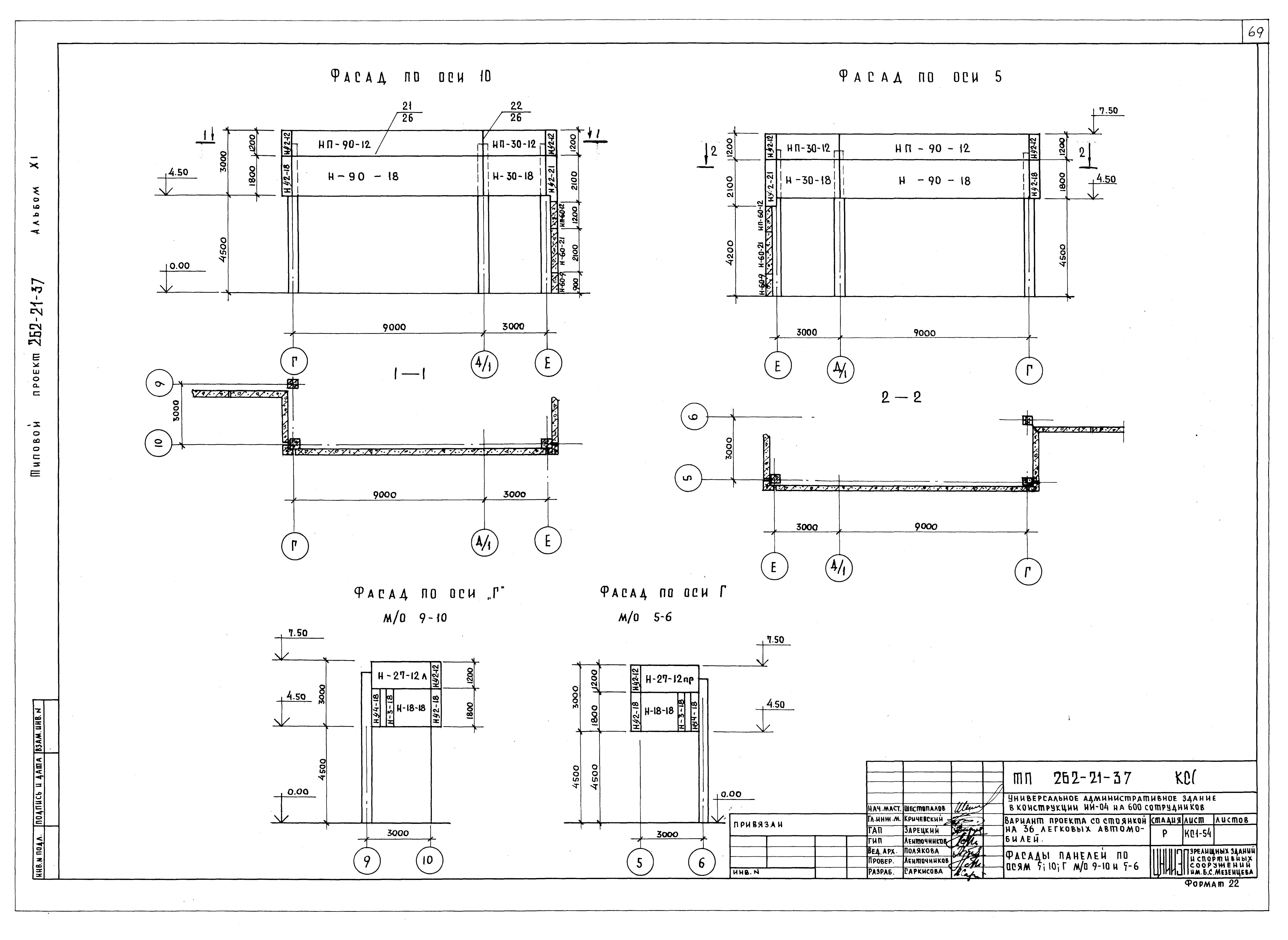
| Оглавление: | Общие данные План техподполья, подвала и стоянки для автомобилей между осями "1 - 5" План техподполья, подвала и стоянки для автомобилей между осями "5 - 10" План техподполья, подвала и стоянки для автомобилей между осями "10 - 14" План первого этажа между осями "1 - 5" План первого этажа между осями "5 - 10" План первого этажа между осями "10 - 14" Разрез 1-1 Разрез 2-2 Фасады одноэтажной части здания Воздухозаборная шахта №2 и выбросная шахта №2 Дополнительная спецификация столярных изделий. Ведомость отделки помещений стоянки Фундаменты. План м/о 1 - 8 Фундаменты. План м/о 8 - 14 Фундаменты. Сечения 1-1 - 4-4, развертки по осям 13, 14, Б Фундаменты. Развертки по осям Г, 1у, оси Е, ФМВ-22, сечение 6-6 Фундаменты. Развертки по осям В, 9у, оси Е, сечение 5-5 Фундаменты. Развертка по оси 12 общие примечания Монолитные ж/б фундаменты ФМ1 - ФМ3 Монолитные ж/б вставки подпорных стен ФМВ-1 - ФМВ-3; ФМВ-5 ФМВт/н, ФМВ-7 ФМВ-8 - ФМВ-12 ФМВ-13 - ФМВ-17т/н ФМВ-20 - ФМВ-21 ФМВ-18, ФМВ-19. Выборка стали Перечень элементов на ФМВ-1 - ФМВ-11 Перечень элементов на ФМВ-12 - ФМВ-22 Перекрытие на отм. - 0,1. План балок и колонн План балок и колонн. Узлы 1 - 2, деталь Б Перекрытие на отм. - 0,1. БМ-1, БМ-2. Спецификация арматуры и расход материалов Колонны КМ-2, КМ-4. Опалубка и армирование Колонны КМ-1, КМ-3. Опалубка и армирование Колонна КМ-5. Опалубка и армирование Колонны КМ-1 - КМ-5. Ведомость стержней, перечень элементов, выборка стали Колонны КМ-1 - КМ-5. С-1, М-1, М-2, М-3, М-4, М-5, поз. 9 - 15 Перекрытие на отм. - 0,1. План м/о 1 - 8 Перекрытие на отм. - 0,1. План м/о 8 - 14 Перекрытие на отм. - 0,1. Сечения 1-1 - 9-9 Перекрытие на отм. - 0,1. Сечения 10-10 - 13-13, узел 1, деталь А Эвакуационные выходы. Фундаменты. План и развертки по I-I, II-II, III-III Эвакуационные выходы. Фундаменты. Развертки по IV-IV, сечения V-V, VI-VI, ФМ23 - ФМ25, ФМ-27 Эвакуационные выходы. Фундаменты ФМВ-26 т/н; ФМВ-28 т/н - ФМВ-32 т/н Эвакуационные выходы. Перекрытие на отм. - 0.88; 1.0 - 2.36 Эвакуационные выходы. Лестницы Эвакуационные выходы. Перечень элементов на узлы 2, 5, ФМВ-23, ФМВ-24, ФМВ-26 - ФМВ-33 Эвакуационные выходы. ФМВ-33. Перечень элементов на ЭМВ-25 т/н. Выборка стали на 1 элемент Фасад панелей по осям 2, 13, А м/о 2 - 6 и 9 - 13 Конструкция воздухозаборного и выбросного каналов Конструкции камеры глушения Въезды. План подпорных стен Въезды. Развертки подпорных стен Каркас. Монтажная схема на отм. - 0.11; - 0.32 Каркас. Монтажная схема на отм. 3.49 Каркас. Монтажная схема на отм. 6.79; 6.81 Каркас. Монтажная схема по оси Б Каркас. Монтажная схема по оси В Каркас. Разрезы по оси Г и в осях 1 - 2; 13 - 14; А - В Каркас. Монтажные схемы по осям Д, Е План перекрытия на отм. 3.52 м/о 1 - 7 План перекрытия на отм. 3.52 м/о 8 - 14 План перекрытия на отм. 6.82 м/о 2 - 7 План перекрытия на отм. 6.82 м/о 8 - 13 Фасады панелей по осям 1, А/1 м/о 1 - 2 Фасады панелей по осям 14 м/о А - Е, А/1 м/о 13 - 14 Фасады панелей по осям 5, 10, Г м/о 9 - 10 и 5 - 6 Фасады панелей по оси Е Въезды. Сечения 3-3, а-а, б-б, в-в, г-г, д-д, е-е |
| Разработан: | ЦНИИЭП зрелищных зданий и спортивных сооружений Госгражданстроя |
| Утверждён: | 21.02.1980 Госгражданстрой (Gosgrazhdanstroy 64) |






































































