Скачать Серия 07.904-1 Устройства противовзрывные МЗС, УЗС1, УЗС8, УЗС25, УЗС50Дата актуализации: 01.01.2021
|
| Обозначение: | Серия 07.904-1 |
| Обозначение англ: | Series 07.904-1 |
| Статус: | не определен законодательством |
| Название рус.: | Устройства противовзрывные МЗС, УЗС1, УЗС8, УЗС25, УЗС50 |
| Дата добавления в базу: | 01.09.2013 |
| Дата актуализации: | 01.01.2021 |
| Дата введения: | 28.04.1983 |
| Дата окончания срока действия: | 30.06.2003 |
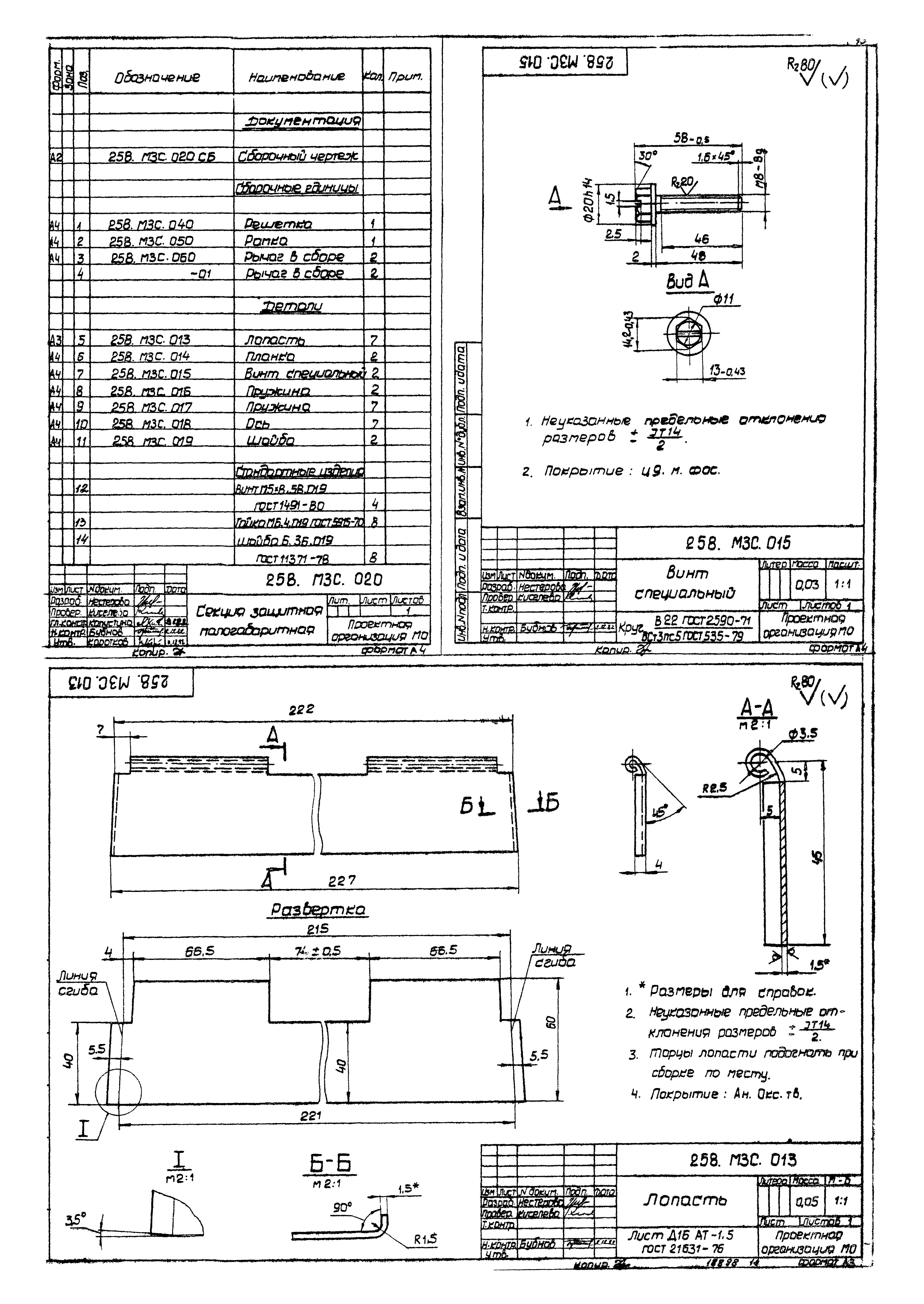
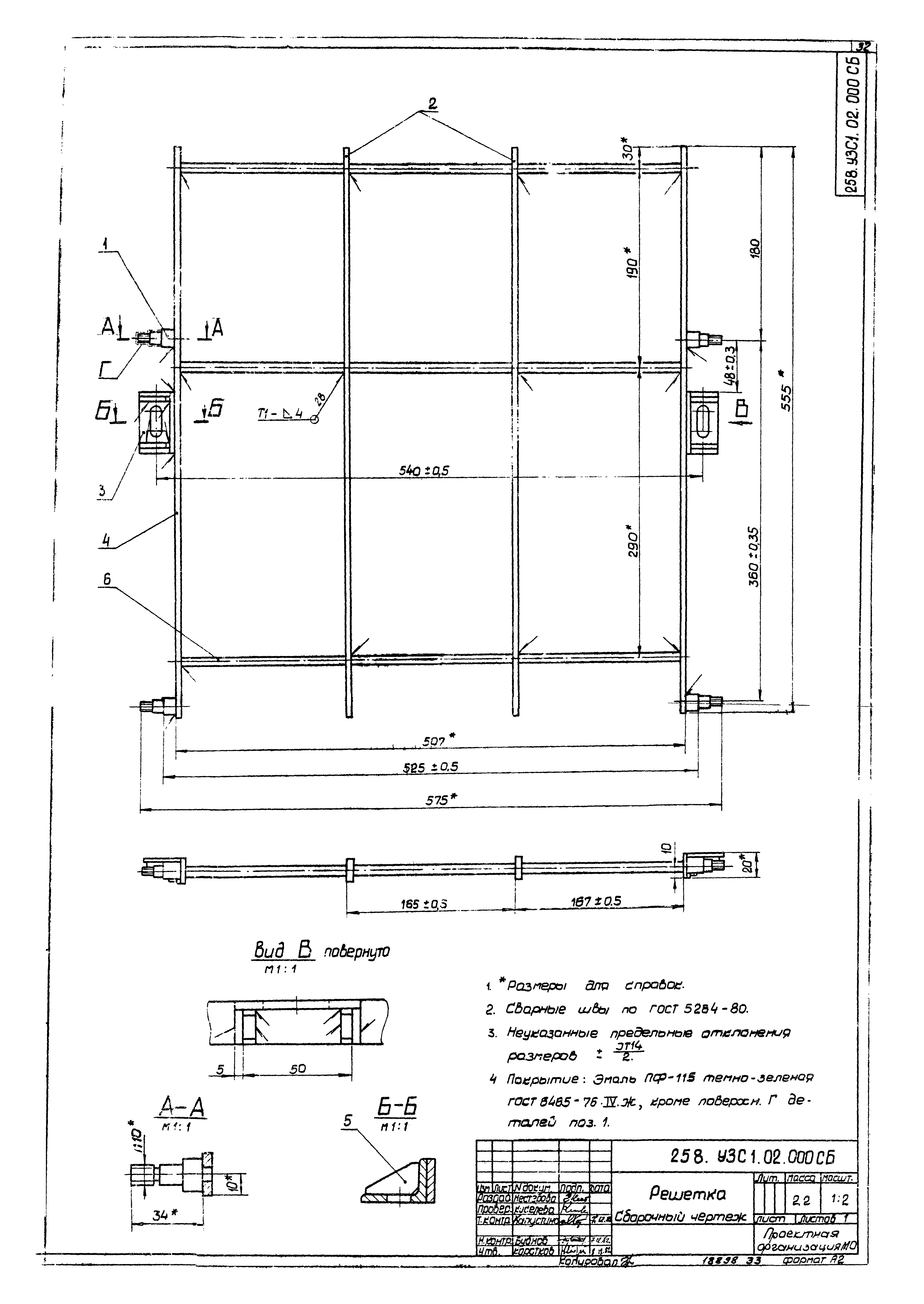
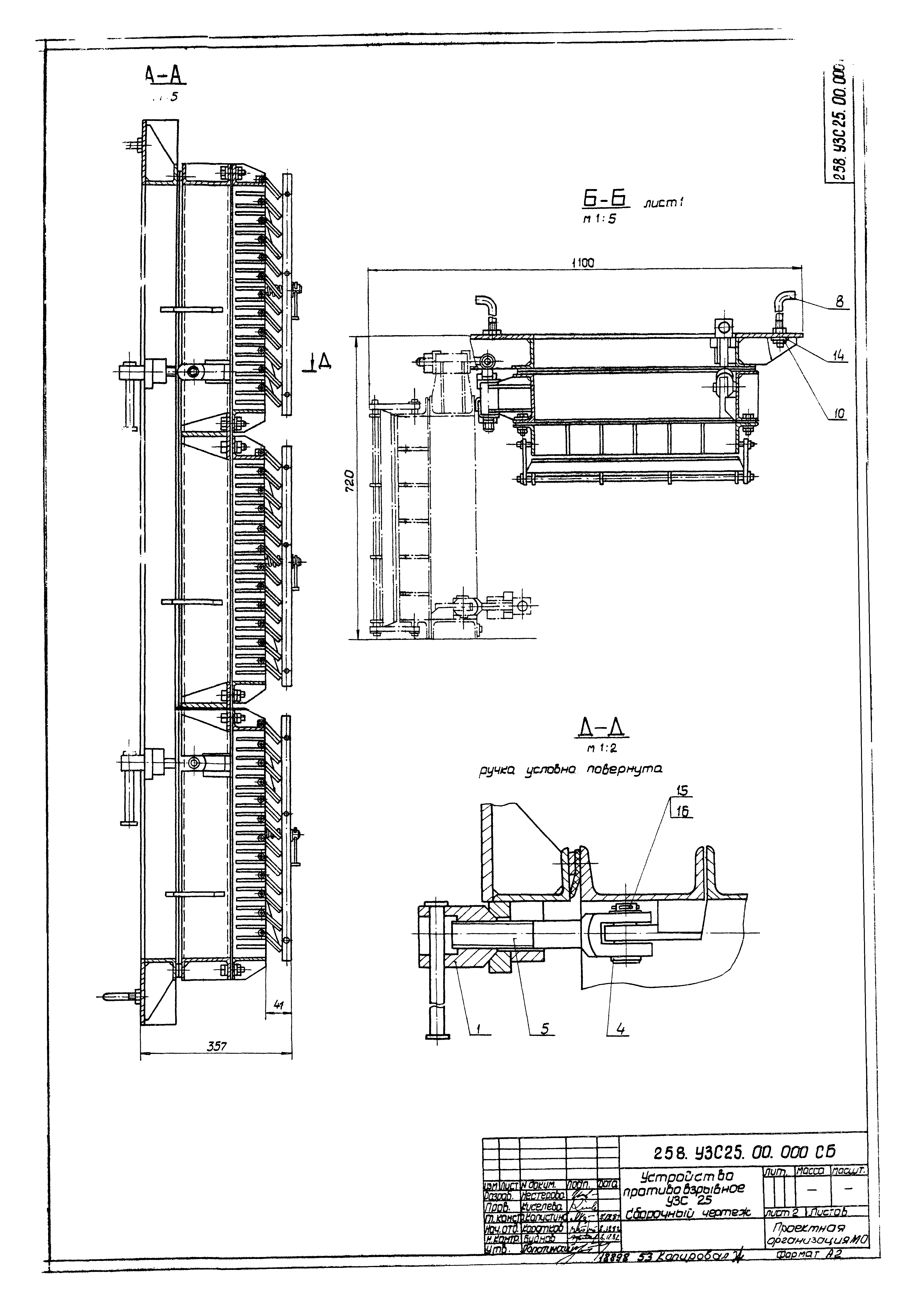
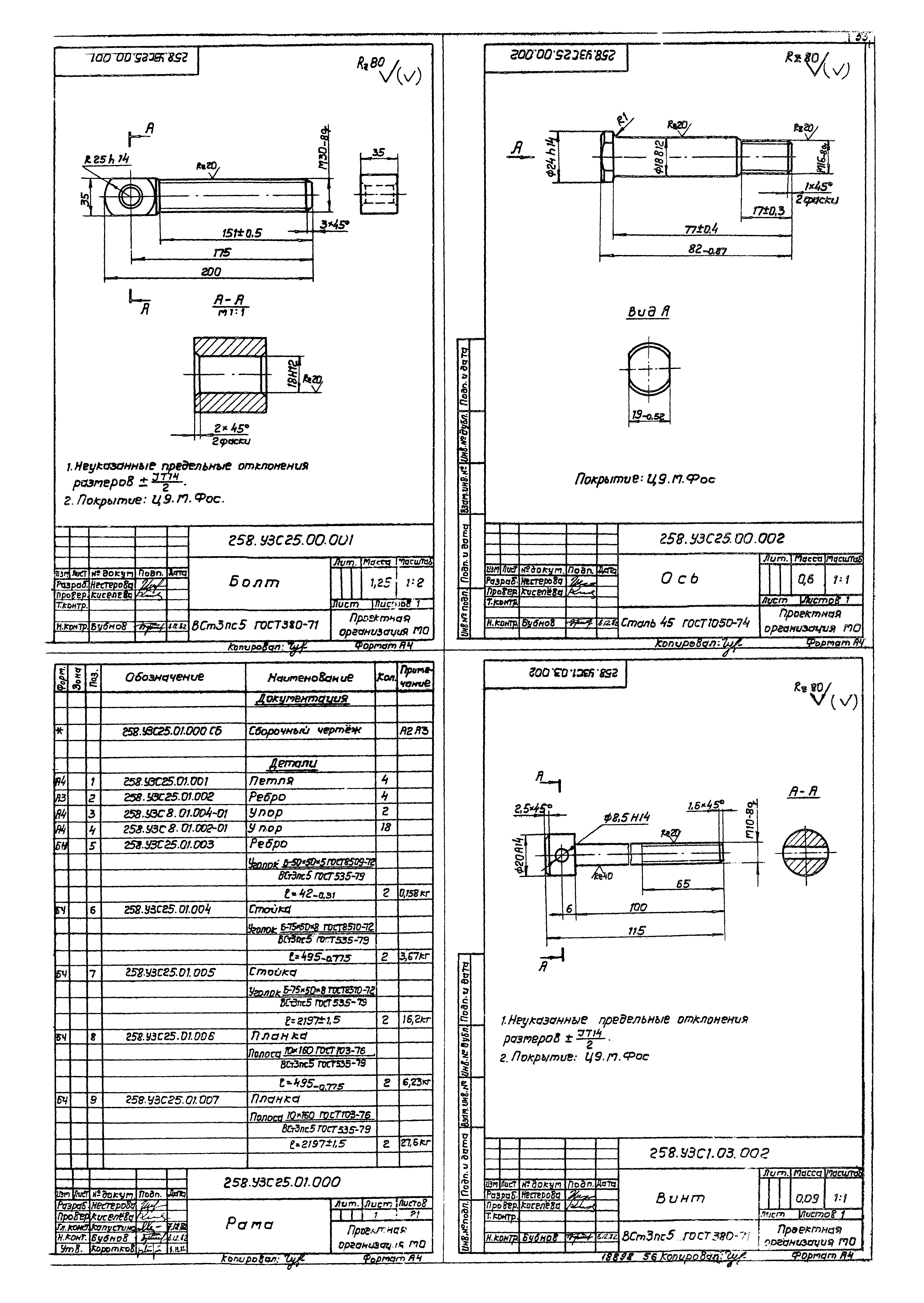
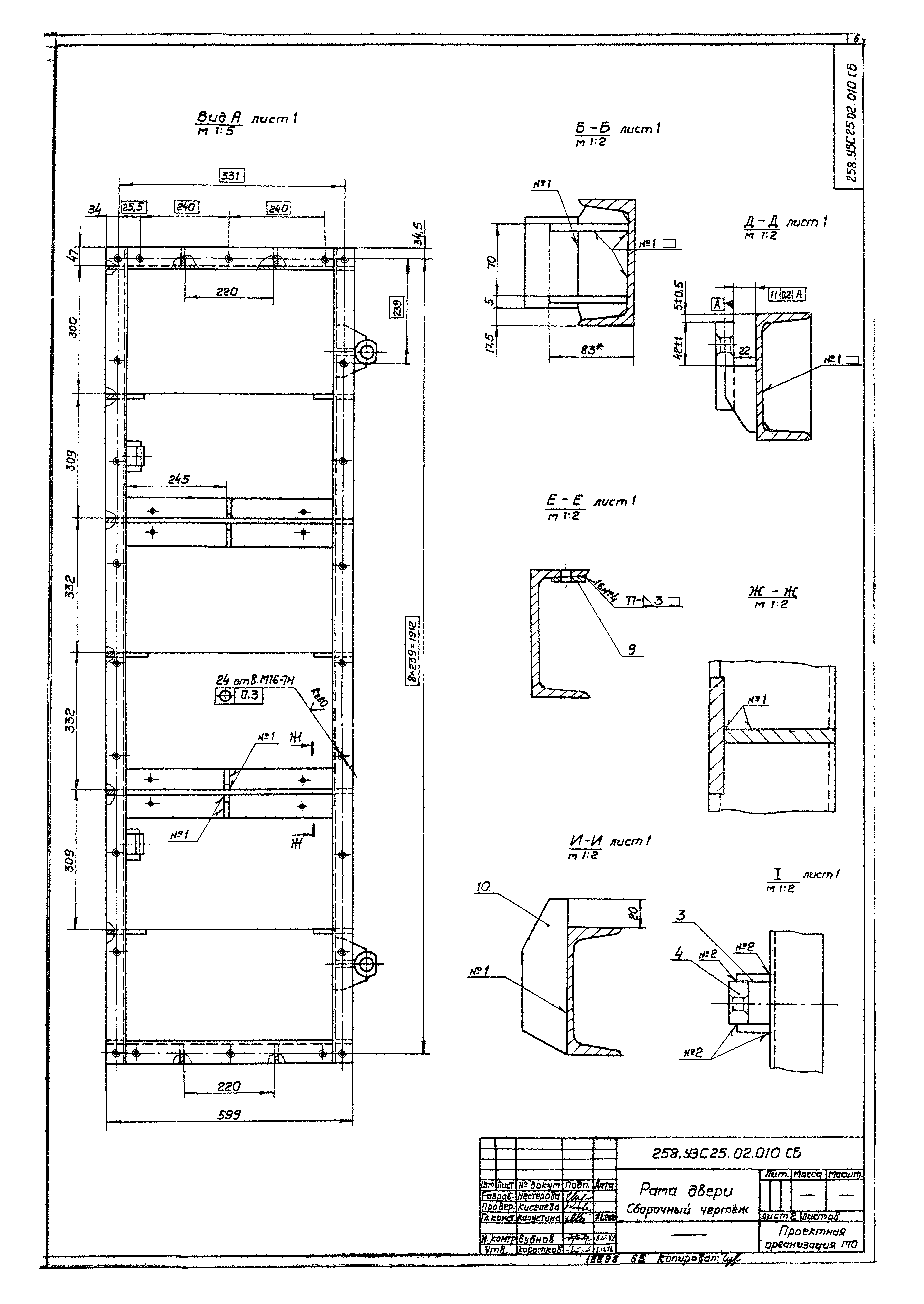
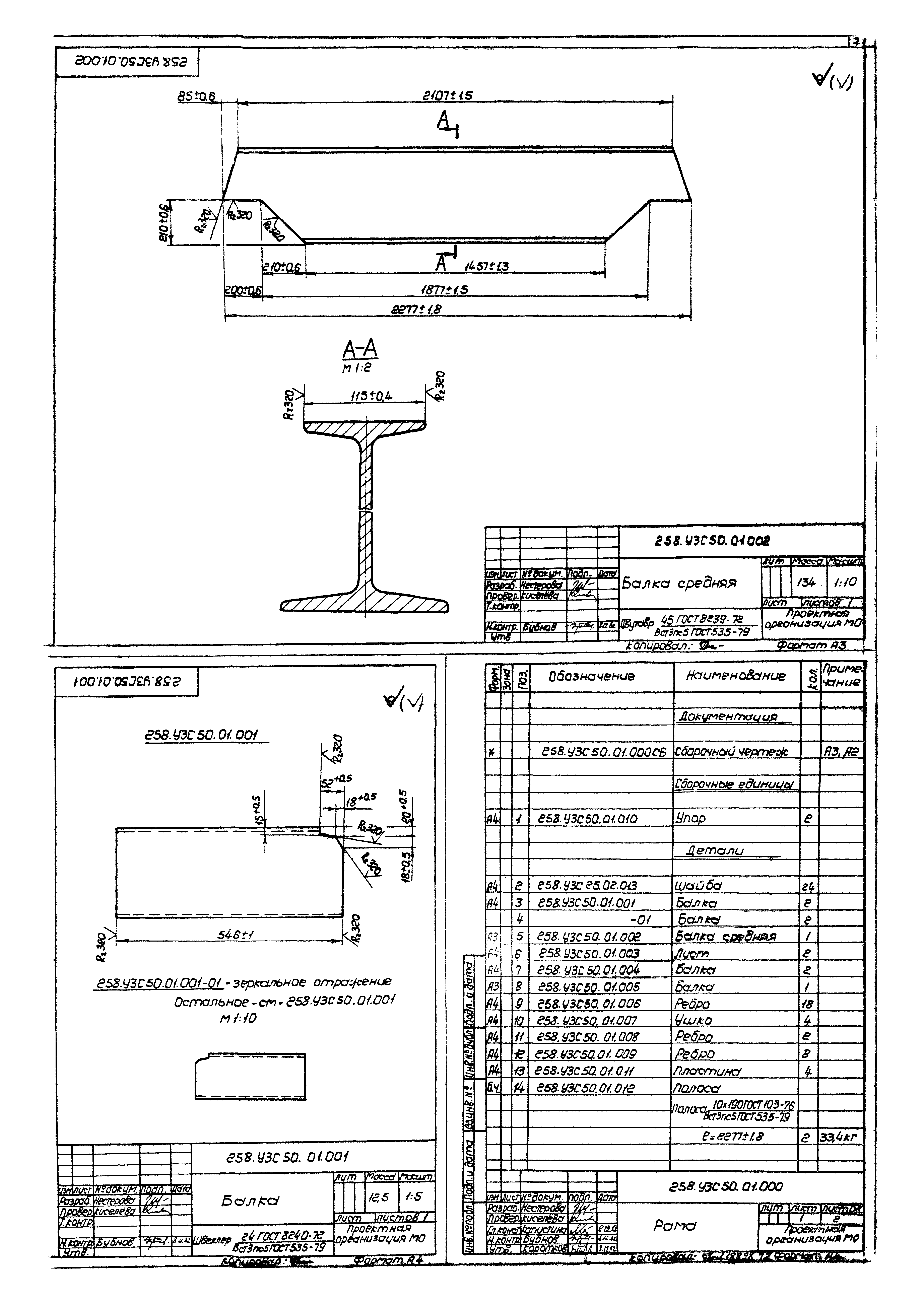
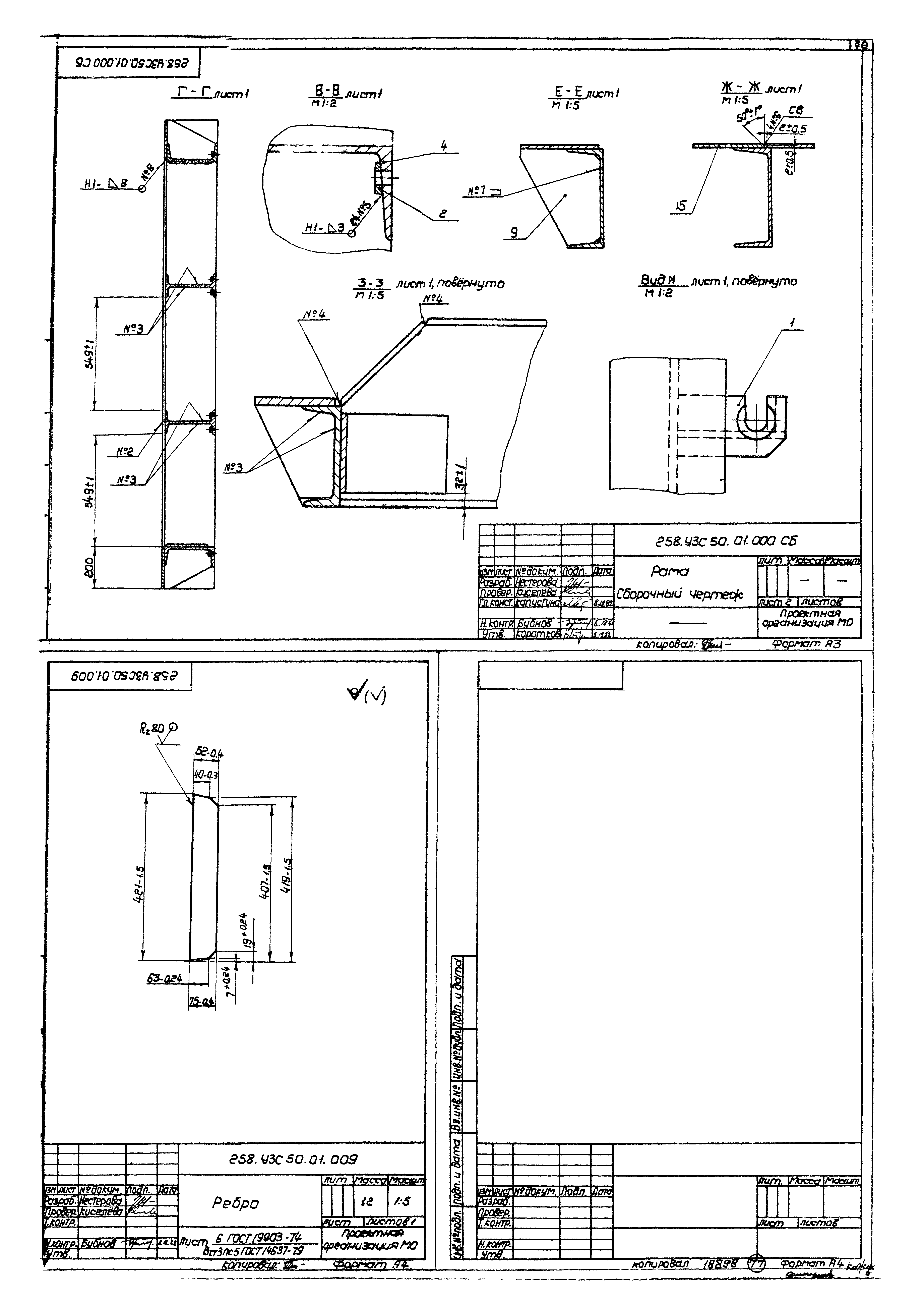
| Оглавление: | 258.МЗС.000ТУ Устройства противовзрывные МЗС, УЗС1, УЗС8, УЗС25, УЗС50 258.МЗС.000 Устройство противовзрывное МЗС 258.МЗС.001 Прокладка 258.МЗС.002 Стенка 258.МЗС.000СБ Устройство противовзрывное МЗС. Сборочный чертеж 258.МЗС.00.000МЧ Устройство противовзрывное МЗС. Монтажный чертеж 258.МЗС.000ВС Устройство противовзрывное МЗС. Ведомость спецификаций 258.МЗС.010 Кожух 258.МЗС.010СБ Кожух. Сборочный чертеж 258.МЗС.020 Секция защитная малогабаритная 258.МЗС.015 Винт специальный 258.МЗС.013 Лопасть 258.МЗС.018 Ось 258.МЗС.014 Планка 258.МЗС.016 Пружина 258.МЗС.020СБ Секция защитная малогабаритная. Сборочный чертеж 258.МЗС.019 Шайба 258.МЗС.021 Ребро 258.МЗС.030 Переходник 258.МЗС.022 Лист 258.МЗС.030СБ Переходник. Сборочный чертеж 258.МЗС.023 Фланец 258.МЗС.040 Решетка 258.МЗС.028 Уголок продольный 258.МЗС.040СБ Решетка. Сборочный чертеж 258.МЗС.032 Платик 258.МЗС.033 Ребро 258.МЗС.034 Ось 258.МЗС.035 Втулка 258.МЗС.050 Рамка 258.МЗС.004 Ребро 258.МЗС.005 Пруток 258.МЗС.060СБ Рычаг в сборе. Сборочный чертеж 258.МЗС.060 Рычаг в сборе 258.МЗС.050СБ Рамка. Сборочный чертеж 258.УЗС1.00.000 Секция защитная унифицированная 258.УЗС1.00.000СБ Секция защитная унифицированная. Сборочный чертеж 258.МЗС.042 Планка 258.МЗС.046 Рычаг 258.УЗС1.00.000ВС Секция защитная унифицированная. Ведомость спецификаций 258.УЗС1.00.000МЧ Устройство противовзрывное УЗС1. Монтажный чертеж 258.УЗС1.00.002 Лопасть 258.УЗС1.00.004 Пружина 258.УЗС1.01.000 Рама 258.УЗС1.01.000СБ Рама. Сборочный чертеж 258.УЗС8.00.000 Устройство противовзрывное УЗС8 258.УЗС1.01.001 Упор 258.УЗС1.01.004 Уголок 258.УЗС1.01.002 Ребро 258.УЗС1.01.005 Ось 258.УЗС1.01.006 Упор 258.УЗС1.02.001 Планка 258.УЗС1.02.000 Решетка 258.УЗС1.02.000СБ Решетка. Сборочный чертеж 258.УЗС1.02.002 Кронштейн 258.УЗС1.02.003 Планка 258.УЗС1.03.000 Винт 258.УЗС1.02.004 Ребро 258.УЗС1.00.001 Рычаг 258.УЗС1.00.003 Пружина 258.УЗС1.03.000СБ Винт. Сборочный чертеж 258.УЗС1.03.001 Ручка 258.УЗС8.00.000СБ Устройство противовзрывное УЗС8. Сборочный чертеж 258.УЗС8.00.000МЧ Устройство противовзрывное УЗС8. Монтажный чертеж 258.УЗС8.00.000ВС Устройство противовзрывное УЗС8. Ведомость спецификаций 258.УЗС8.01.000 Секция 258.УЗС8.01.100 Рама 258.УЗС8.00.001 Болт откидной 258.УЗС8.01.102 Ребро 258.УЗС8.00.002 Ось 258.УЗС8.00.003 Ось 258.УЗС8.01.000СБ Секция. Сборочный чертеж 258.УЗС8.01.001 Планка 258.УЗС8.01.002 Манжета 258.УЗС8.01.101 Втулка 258.УЗС8.01.103 Ушко 258.УЗС8.01.104 Ребро 258.УЗС8.01.105 Упор 258.УЗС8.01.100СБ Рама. Сборочный чертеж 258.УЗС8.02.000СБ Рама. Сборочный чертеж 258.УЗС8.02.000 Рама 258.УЗС8.02.001 Ушко 258.УЗС8.02.002 Ребро 258.УЗС8.02.003 Стойка 258.УЗС8.03.000 Ручка 258.УЗС8.02.004 Упор 258.УЗС8.03.000СБ Ручка. Сборочный чертеж 258.УЗС8.03.001 Гайка специальная 258.УЗС25.00.000 Устройство противовзрывное УЗС25 258.УЗС25.00.000СБ Устройство противовзрывное УЗС25. Сборочный чертеж 258.УЗС25.00.000МЧ Устройство противовзрывное УЗС25. Монтажный чертеж 258.УЗС1.03.002 Винт 258.УЗС25.00.001 Болт 258.УЗС25.00.002 Ось 258.УЗС25.01.000 Рама 258.УЗС25.01.000СБ Рама. Сборочный чертеж 258.УЗС25.00.000ВС Устройство противовзрывное УЗС25. Ведомость спецификаций 258.УЗС25.01.001 Петля 258.УЗС25.01.002 Ребро 258.УЗС25.02.011 Ребро 258.УЗС25.02.000 Дверь 258.УЗС25.02.001 Прокладка 258.УЗС25.02.002 Манжета 258.УЗС25.02.000СБ Дверь. Сборочный чертеж 258.УЗС25.02.010 Рама двери 258.УЗС25.02.013 Шайба 258.УЗС25.02.014 Упор 258.УЗС25.02.010СБ Рама двери. Сборочный чертеж 258.УЗС50.00.000 Устройство противовзрывное УЗС50 258.УЗС50.00.000ВС Устройство противовзрывное УЗС50. Ведомость спецификаций 258.УЗС50.00.000СБ Устройство противовзрывное УЗС50. Сборочный чертеж 258.УЗС50.00.000МЧ Устройство противовзрывное УЗС50. Монтажный чертеж 258.УЗС50.01.001 Балка 258.УЗС50.01.002 Балка средняя 258.УЗС50.01.000 Рама 258.УЗС50.01.003 Лист 258.УЗС50.01.004 Балка 258.УЗС50.01.006 Ребро 258.УЗС50.01.005 Балка 258.УЗС50.01.007 Ушко 258.УЗС50.01.008 Ребро 258.УЗС50.01.010 Упор 258.УЗС50.01.010СБ Упор. Сборочный чертеж 258.УЗС50.01.011 Пластина 258.УЗС50.01.015 Площадка 258.УЗС50.01.000СБ Рама. Сборочный чертеж 258.УЗС50.01.009 Ребро |
| Разработан: | Проектная организация МО |
| Утверждён: | 28.04.1983 Управление ГО СССР (235/11/1164) |











































































