Скачать Типовой проект 902-1-173.91 Альбом 7. Нестандартизированное оборудование (из ТП 902-1-170.91)Дата актуализации: 01.01.2021
|
| Обозначение: | Типовой проект 902-1-173.91 |
| Обозначение англ: | 902-1-173.91 |
| Статус: | не определен законодательством |
| Название рус.: | Альбом 7. Нестандартизированное оборудование (из ТП 902-1-170.91) |
| Дата добавления в базу: | 01.09.2013 |
| Дата актуализации: | 01.01.2021 |
| Дата введения: | 15.05.1991 |
| Дата окончания срока действия: | 30.06.2003 |
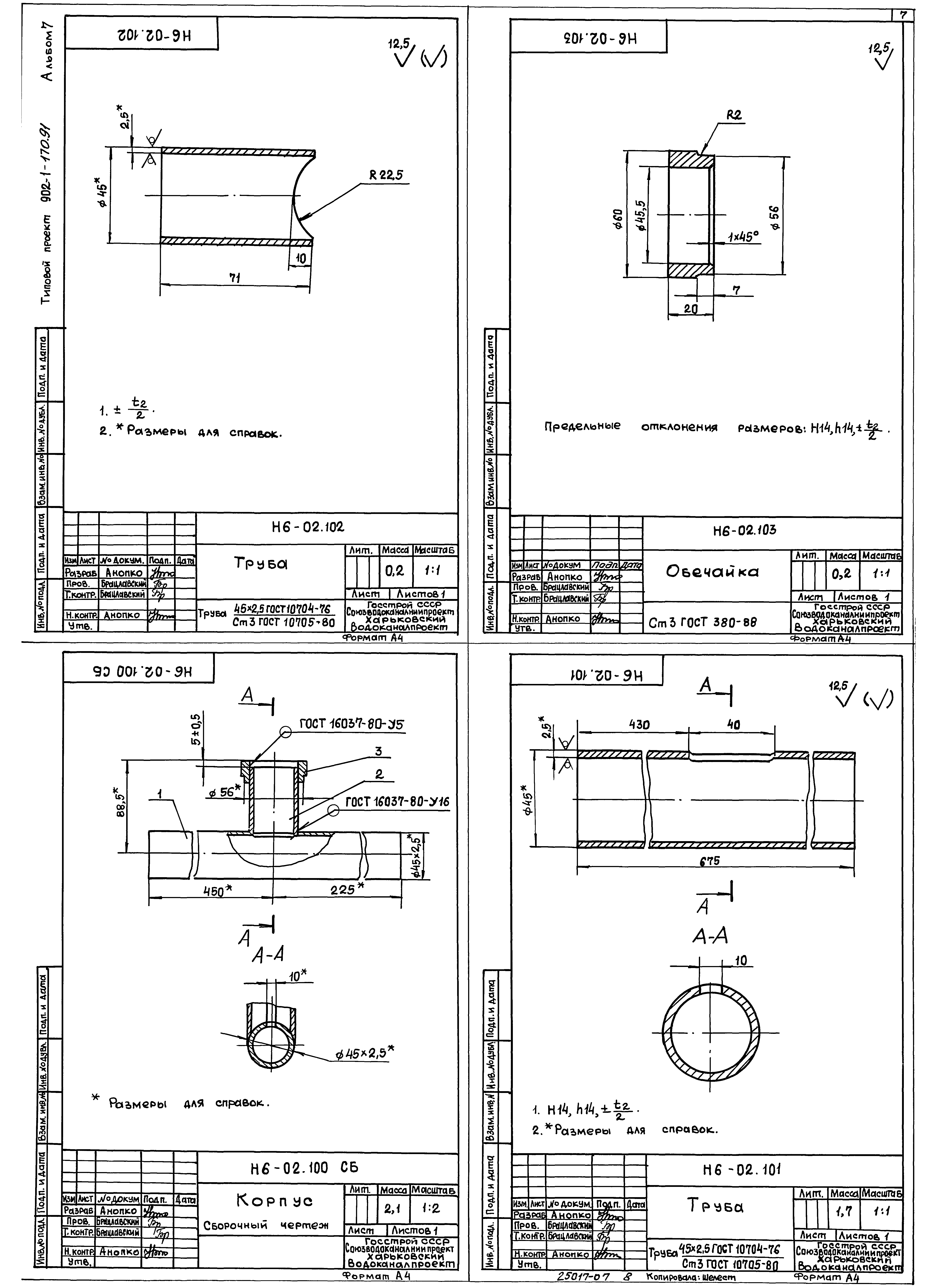
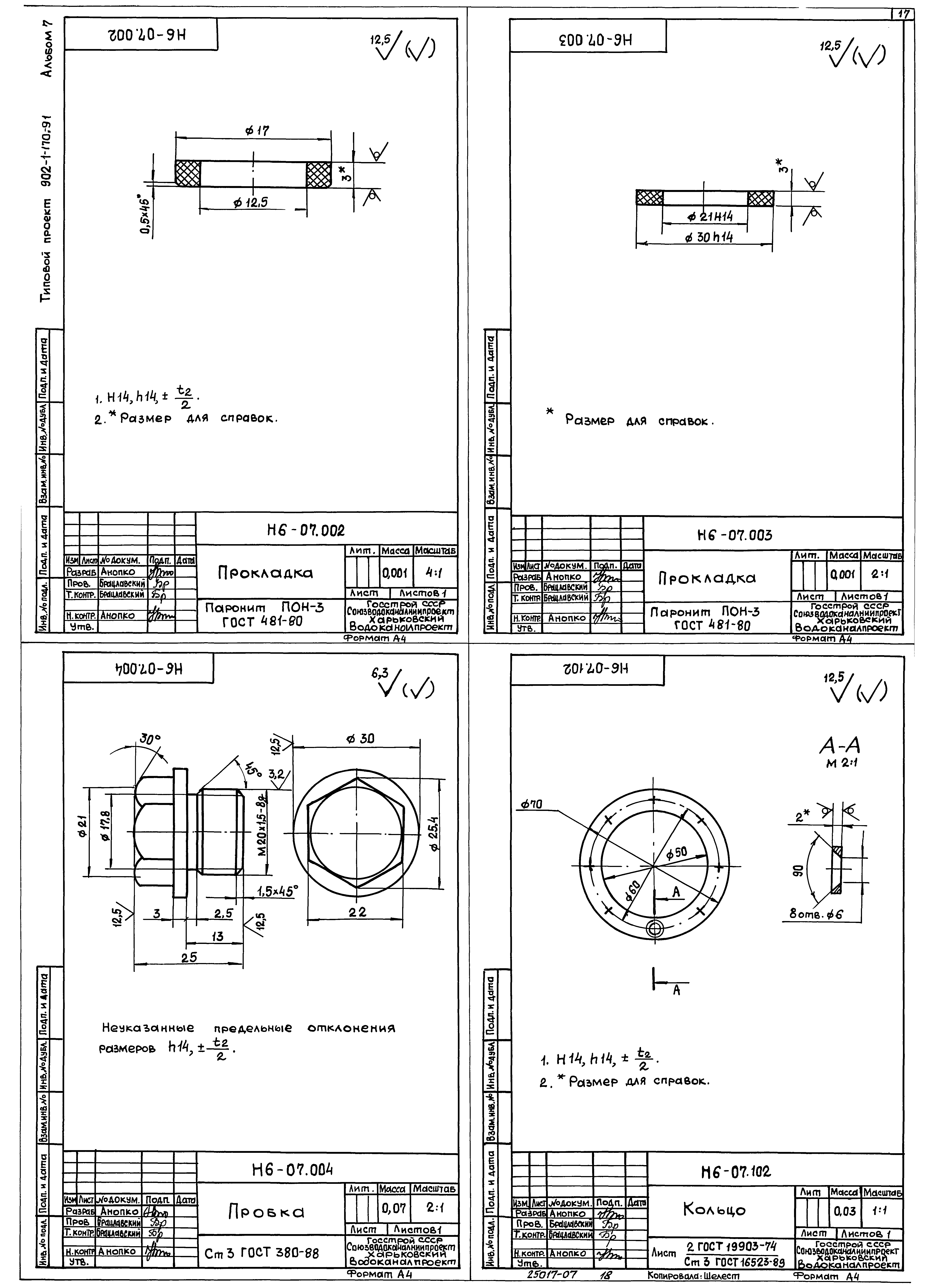
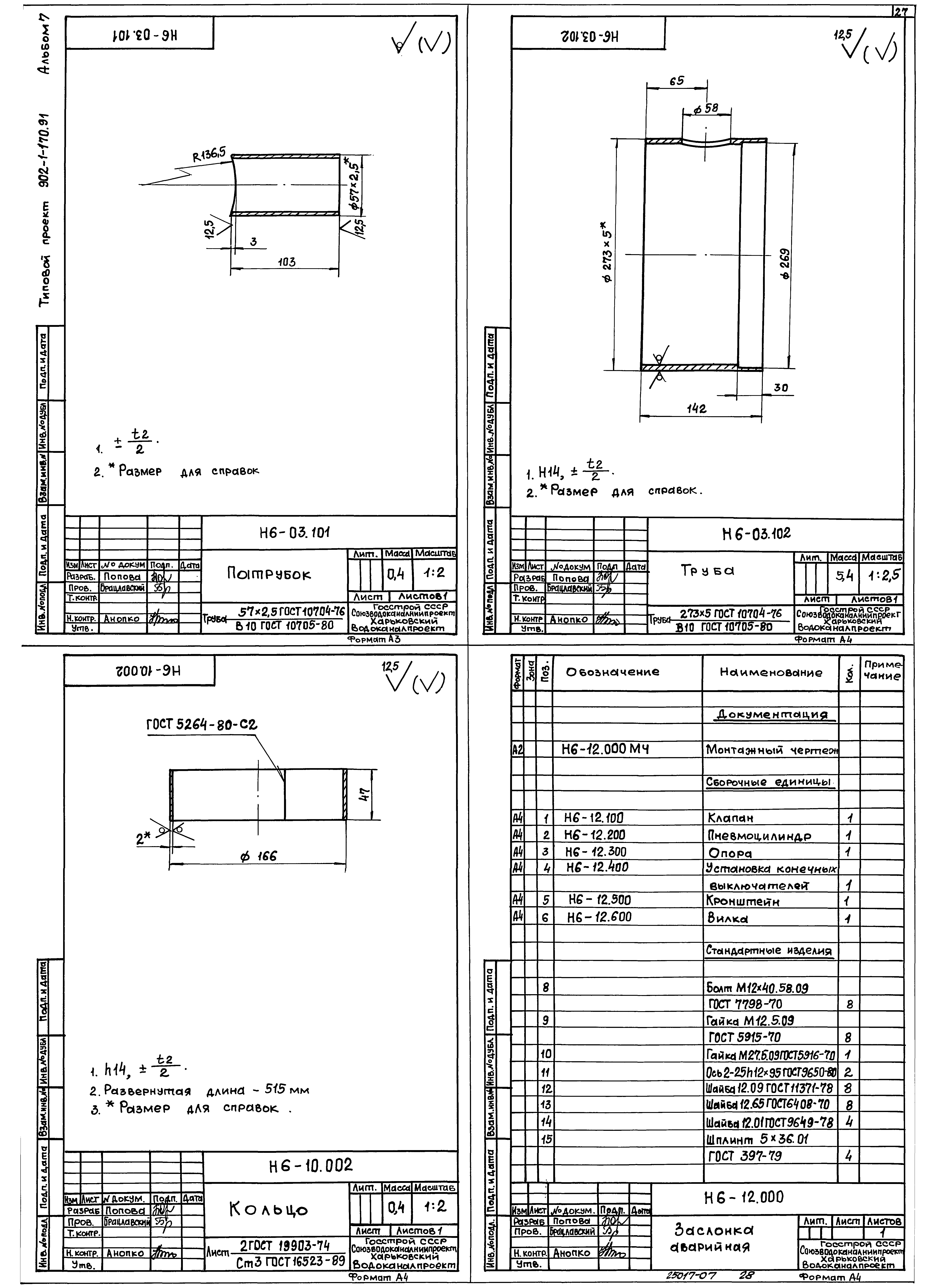
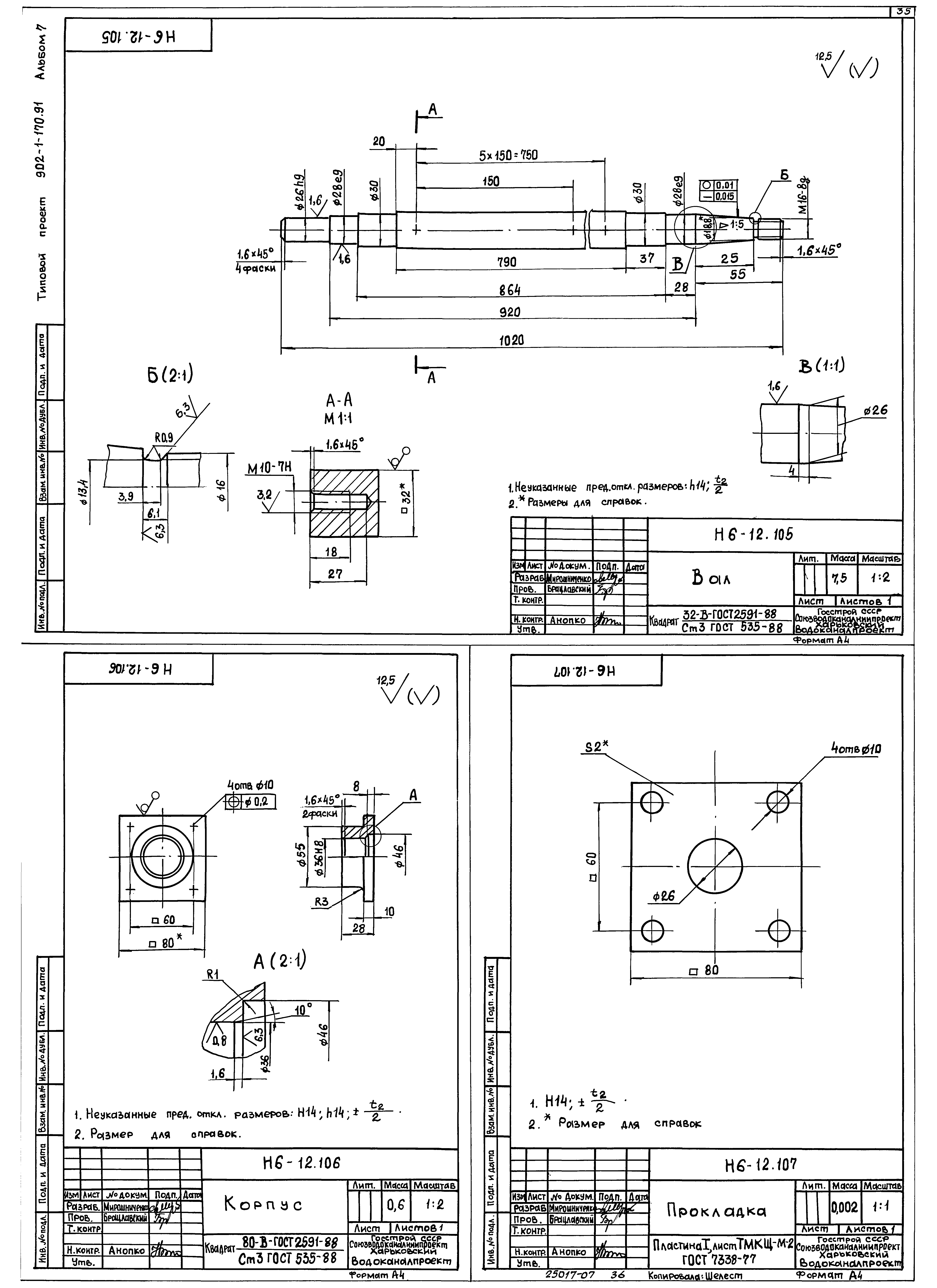
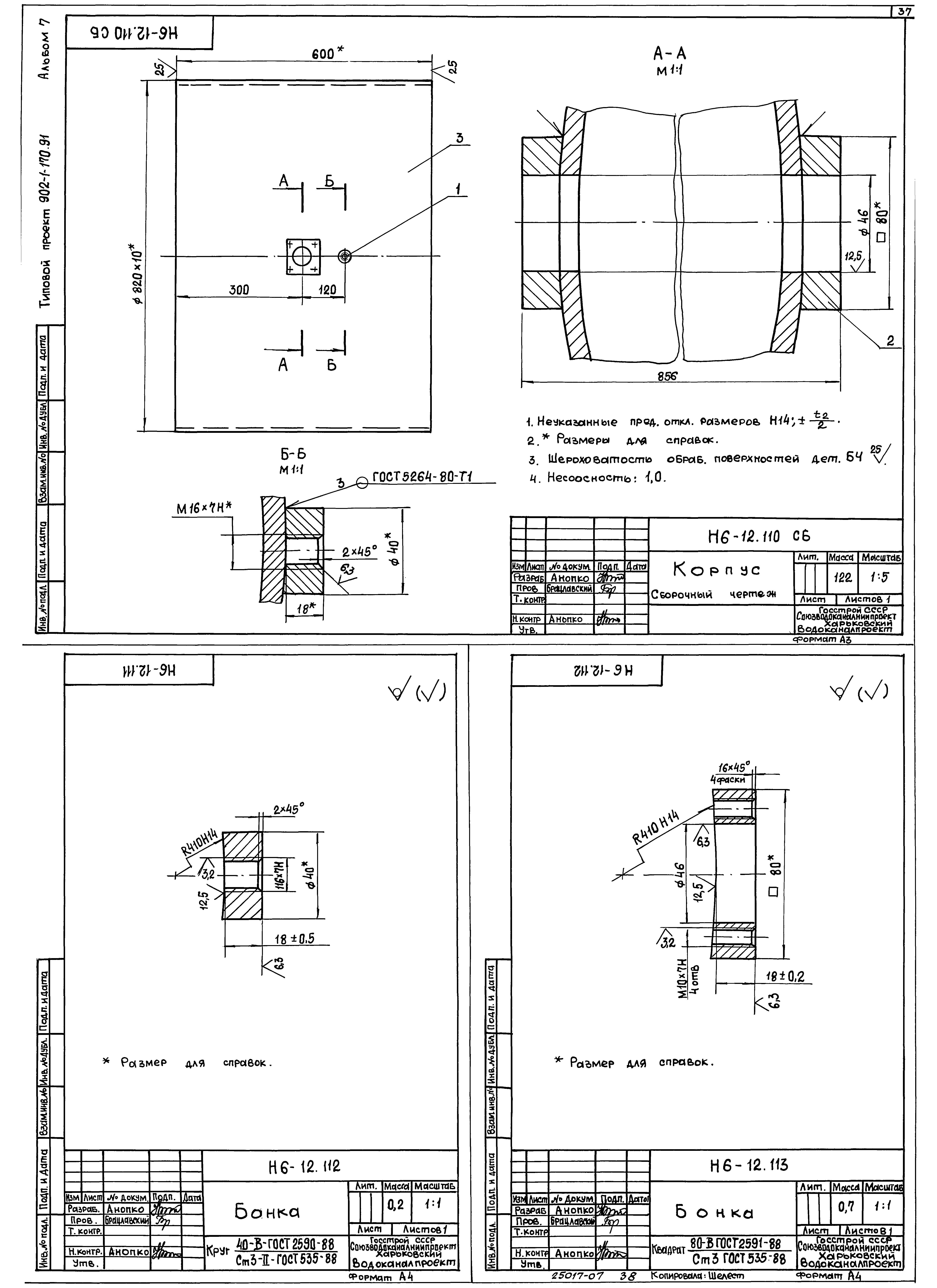
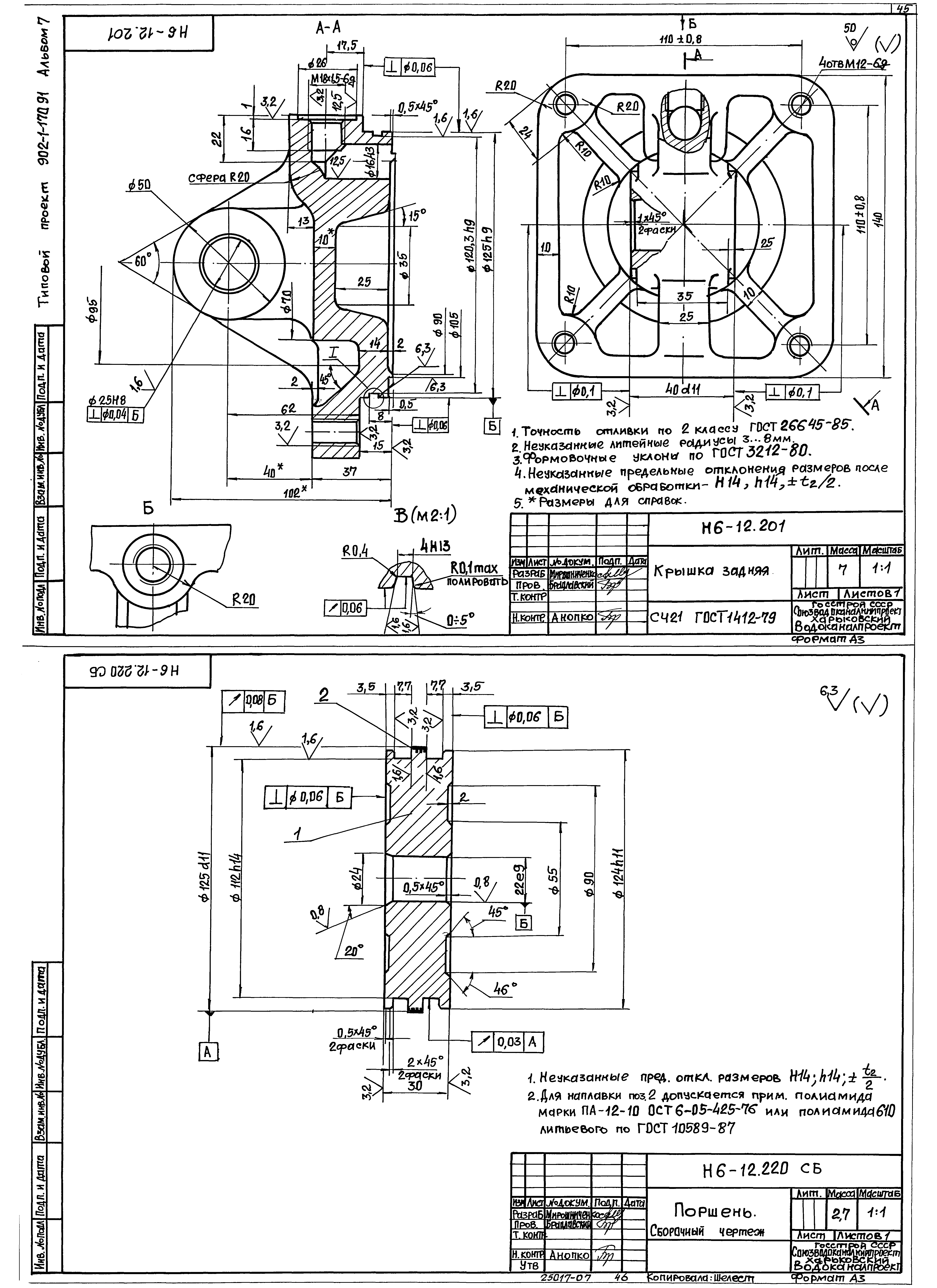
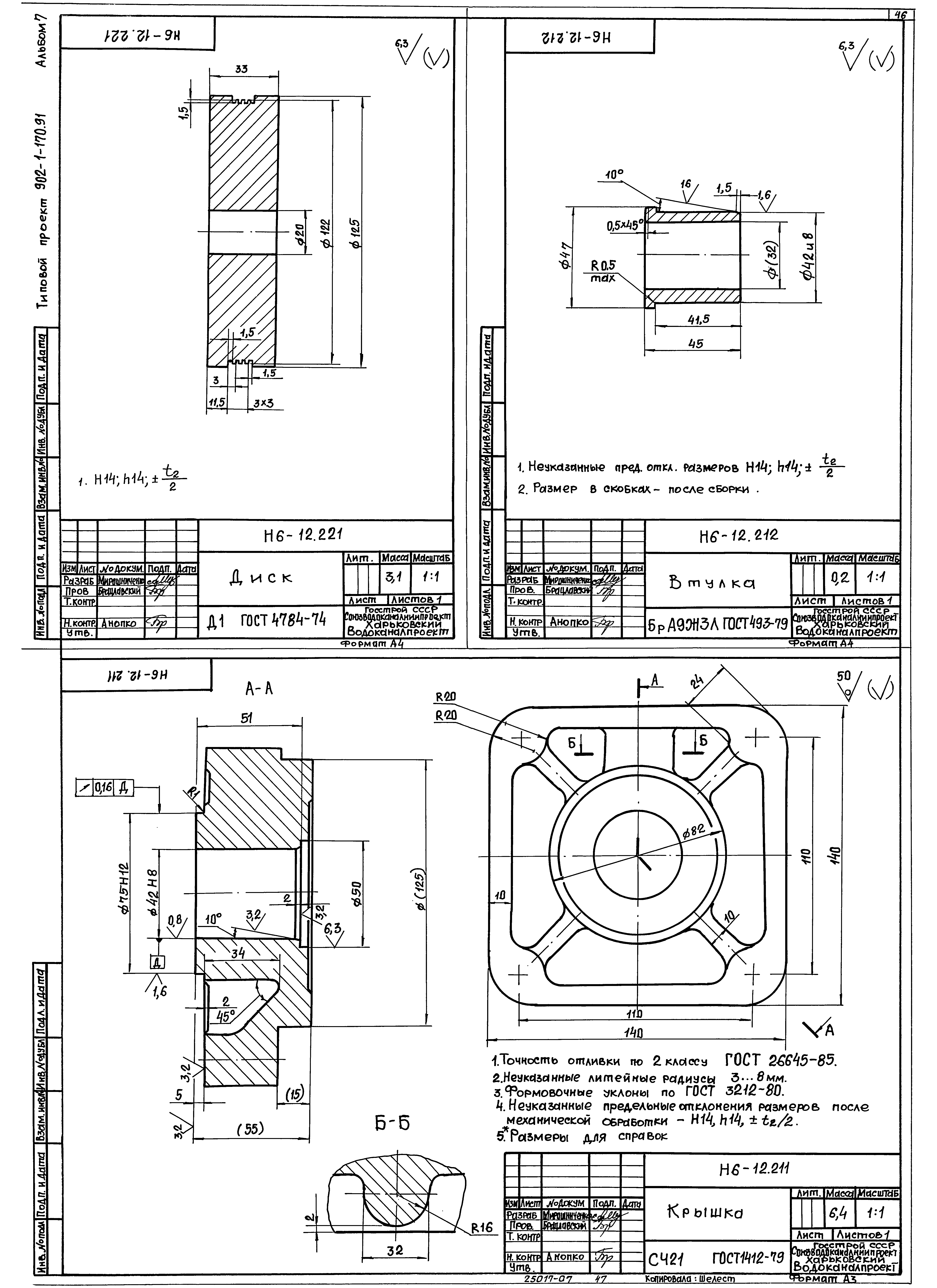
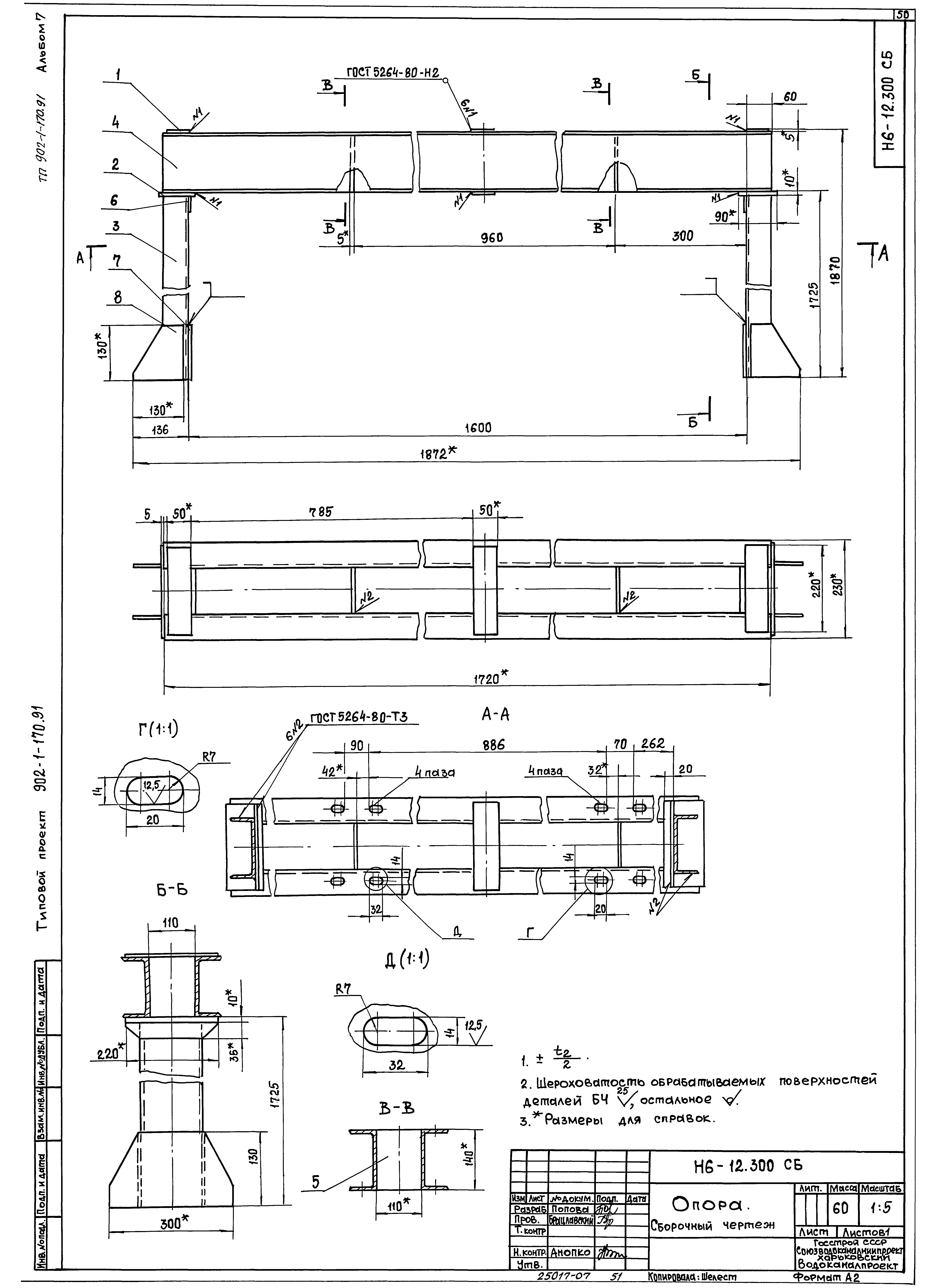
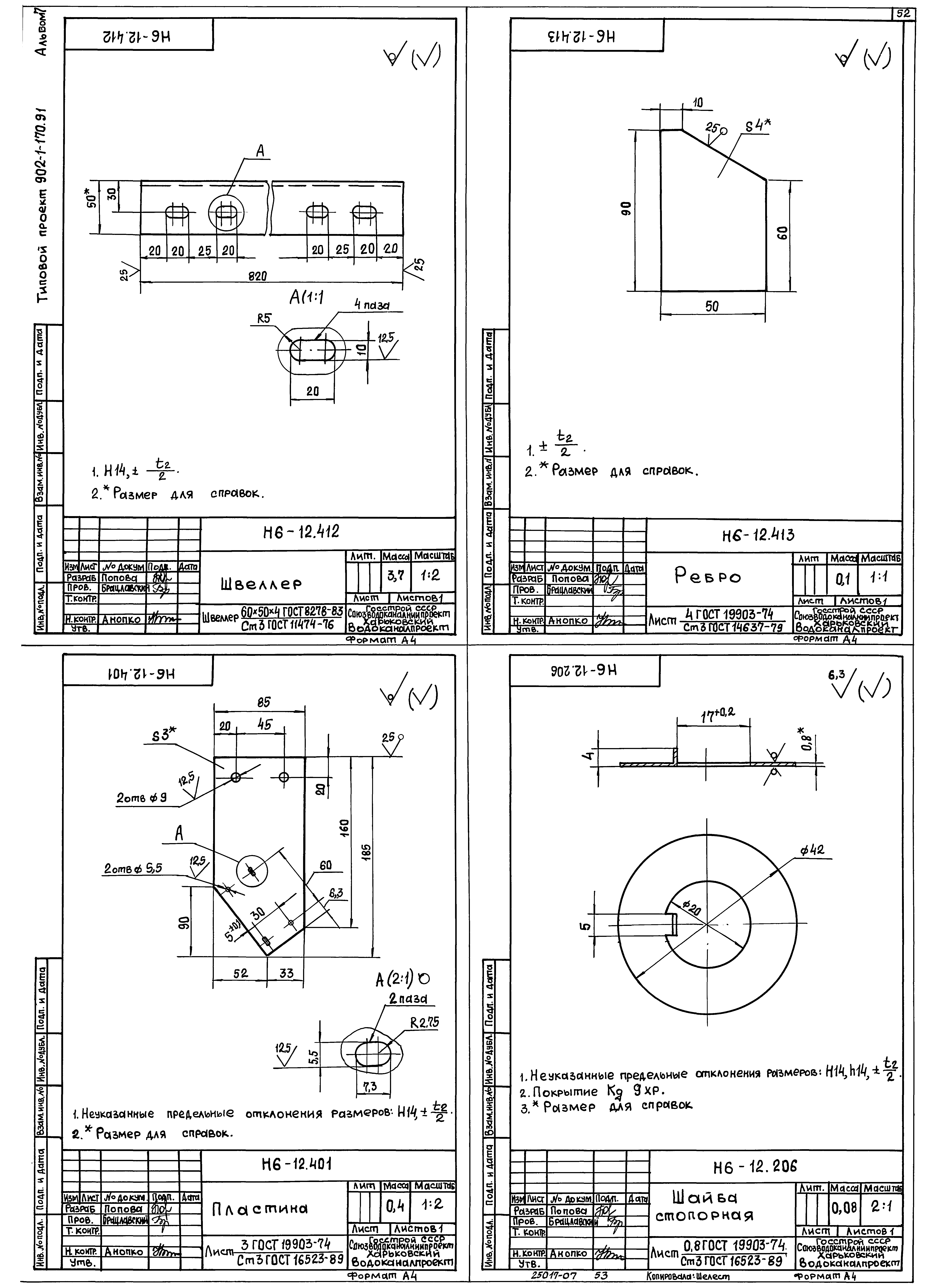
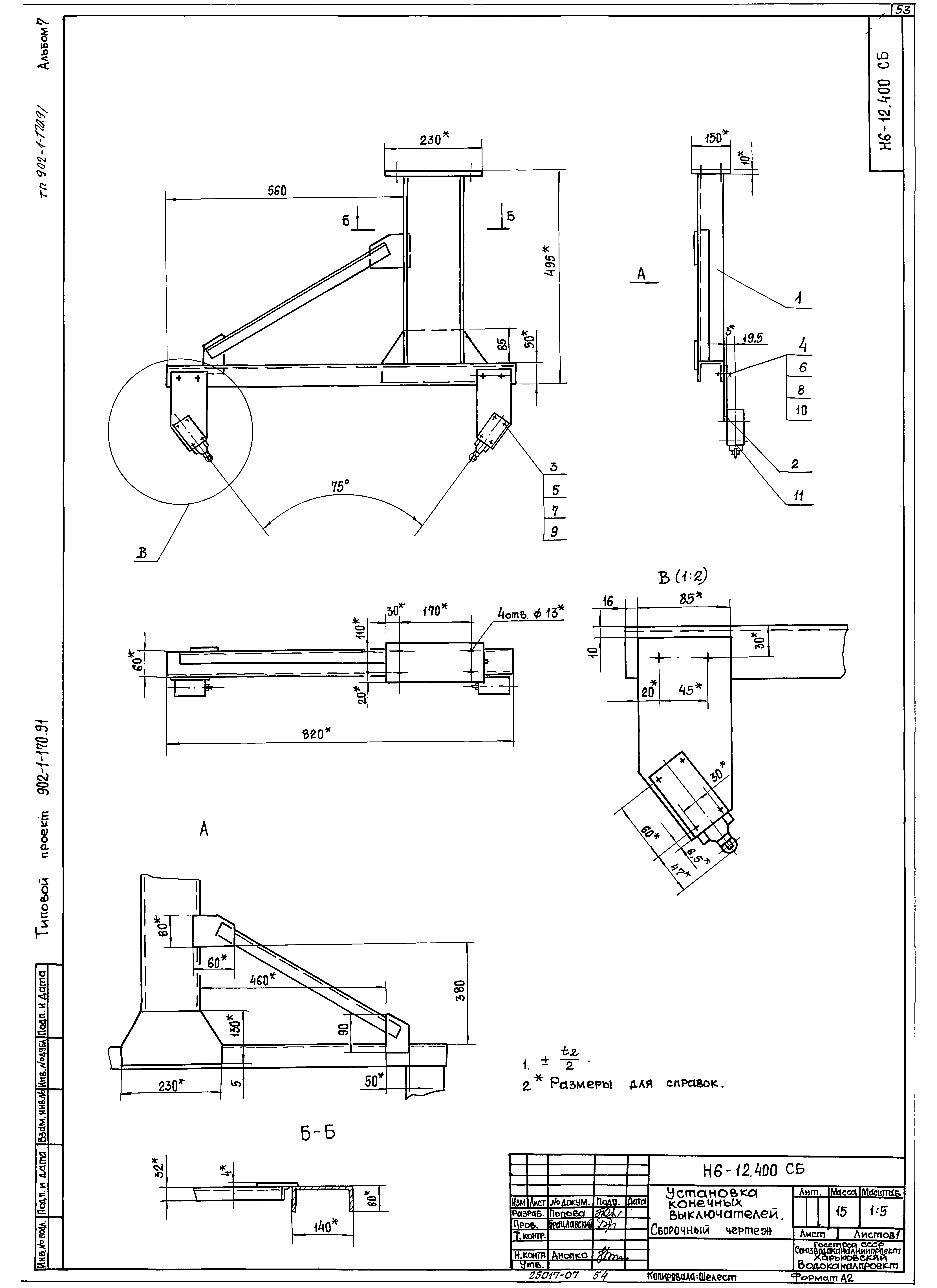
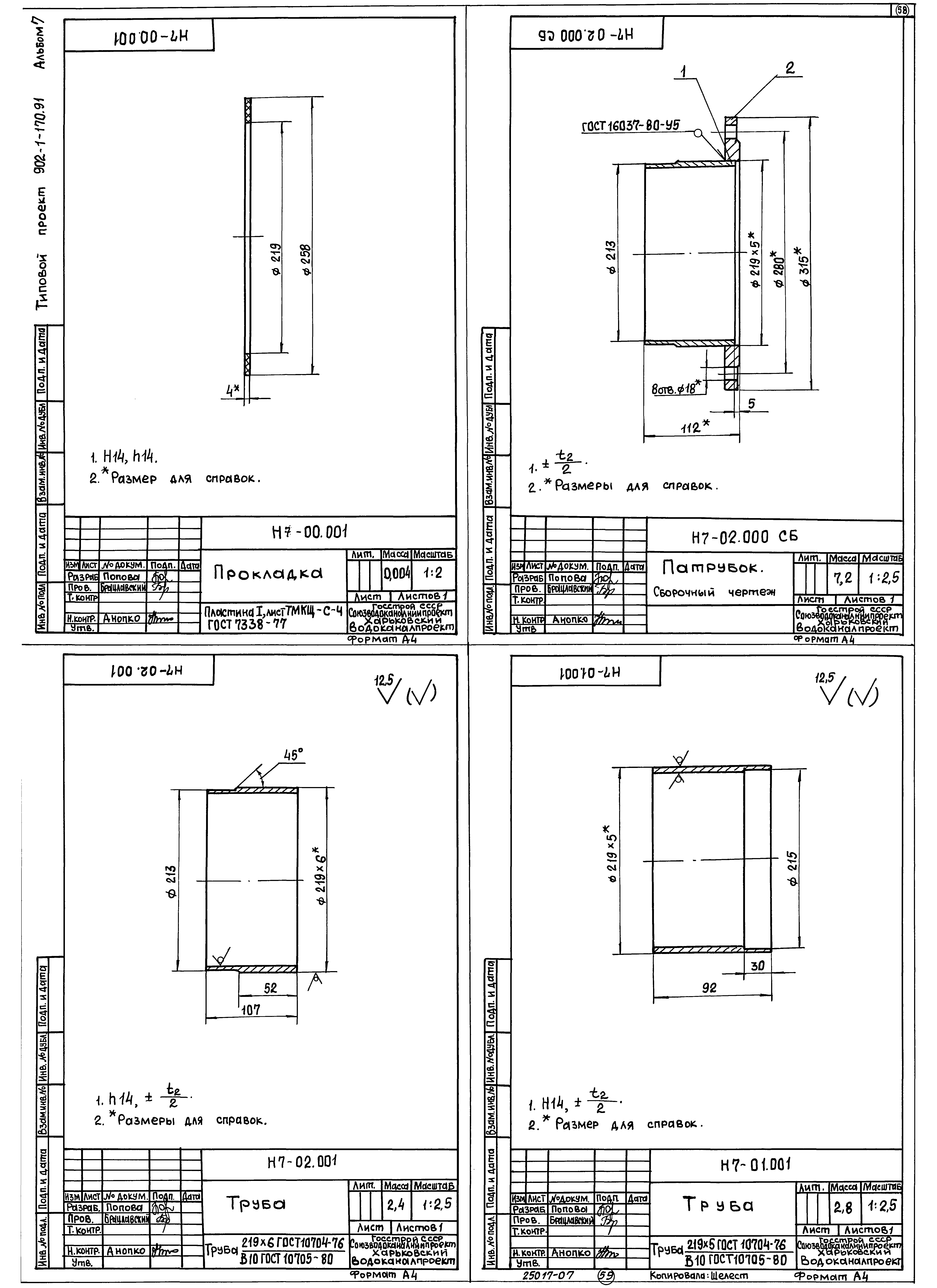
| Оглавление: | Содержание альбома Н6-01.000 Решетка ремонтная Н6-03.100 Патрубок Н6-01.000СБ Решетка ремонтная. Сборочный чертеж Н6-01.001 Скоба Н6-02.000 Тройник Н6-02.000СБ Тройник. Сборочный чертеж Н6-02.001 Гайка накидная Н6-02.002 Кольцо Н6-02.100 Корпус Н6-02.003 Прокладка Н6-02.102 Труба Н6-02.103 Обечайка Н6-02.100СБ Корпус. Сборочный чертеж Н6-02.101 Труба Н7-00.000 Патрубок монтажный Н7-01.000 Патрубок Н7-02.000 Патрубок Н6-03.200 Патрубок Н6-03.000СБ Патрубок монтажный. Сборочный чертеж Н6-03.000 Патрубок монтажный Н6-03.002 Фланец Н6-03.100СБ Патрубок. Сборочный чертеж Н6-03.001 Прокладка Н6-03.200СБ Патрубок. Сборочный чертеж Н6-03.201 Труба Н6-04.001 Конус Н6-04.000СБ Воронка. Сборочный чертеж Н6-05.000СБ Установка патрубка. Сборочный чертеж Н6-05.100 Патрубок Н6-05.000 Установка патрубка Н6-05.110 Патрубок Н6-05.002 Прокладка Н6-05.111 Конус Н6-05.001 Заглушка Н6-05.100СБ Патрубок. Сборочный чертеж Н6-05.110СБ Патрубок. Сборочный чертеж Н6-07.200 Отвод Н6-07.000 Устройство отборное напорное Н6-06.000 Расширитель Н6-07.100 Разделитель мембранный Н6-06.002 Днище Н6-06.001 Корпус Н6-06.000СБ Расширитель. Сборочный чертеж Н6-07.001 Прокладка Н6-07.200СБ Отвод. Сборочный чертеж Н6-07.000СБ Устройство отборное напорное. Сборочный чертеж Н6-07.002 Прокладка Н6-07.003 Прокладка Н6-07.004 Пробка Н6-07.102 Кольцо Н6-07.100СБ Разделитель мембранный. Сборочный чертеж Н6-07.101 Корпус Н6-07.103 Мембрана Н6-07.201 Труба Н6-08.000 Устройство отборное разрежения Н6-07.202 Фланец Н6-08.100СБ Патрубок. Сборочный чертеж Н6-08.101 Фланец Н6-08.102 Корпус Н6-08.100 Патрубок Н6-08.000СБ Устройство отборное разрежения. Сборочный чертеж Н6-09.000 Гильза Н6-09.100 Корпус Н6-09.000СБ Гильза. Сборочный чертеж Н6-09.001 Прокладка Н6-09.002 Прокладка Н6-10.000 Зонт Н6-09.100СБ Корпус. Сборочный чертеж Н6-09.101 Труба Н6-09.102 Дно Н6-10.000СБ Зонт. Сборочный чертеж Н6-10.002 Переход Н6-10.001 Обечайка Н6-10.003 Уголок Н6-11.000СБ Рамка. Сборочный чертеж Н6-11.000 Рамка Н6-11.001 Уголок Н6-12.500 Кронштейн Н6-03.101 Патрубок Н6-03.102 Труба Н6-10.002 Кольцо Н6-12.000 Заслонка аварийная Н6-12.000МЧ Заслонка аварийная. Монтажный чертеж Н6-12.100 Клапан Н6-12.110 Корпус Н6-12.120 Заслонка Н6-12.100СБ Клапан. Сборочный чертеж Н6-12.101 Контргруз Н6-12.102 Крышка Н6-12.103 Фиксатор Н6-12.104 Фиксатор Н6-12.105 Вал Н6-12.107 Прокладка Н6-12.106 Корпус Н6-12.108 Втулка Н6-12.109 Уплотнение Н6-12.111 Кольцо Н6-12.134 Втулка Н6-12.110СБ Корпус. Сборочный чертеж Н6-12.112 Бонка Н6-12.113 Бонка Н6-12.120СБ Заслонка. Сборочный чертеж Н6-12.130СБ Рычаг. Сборочный чертеж Н6-12.121 Ребро Н6-12.122 Диск Н6-12.140СБ Поводок. Сборочный чертеж Н6-12.140 Поводок Н6-12.150 Лыжа Н6-12.141 Ступица Н6-12.142 Швеллер Н6-12.151 Скоба Н6-12.152 Лист Н6-12.150СБ Лыжа. Сборочный чертеж Н6-12.130 Рычаг Н6-12.131 Планка Н6-12.133 Втулка Н6-12.132 Хвостовик Н6-12.200 Пневмоцилиндр Н6-12.210 Крышка передняя Н6-12.220 Поршень Н6-12.200СБ Пневмоцилиндр. Сборочный чертеж Н6-12.201 Крышка задняя Н6-12.220СБ Поршень. Сборочный чертеж Н6-12.221 Диск Н6-12.212 Втулка Н6-12.211 Крышка Н6-12.210СБ Крышка передняя. Сборочный чертеж Н6-12.202 Шток Н6-12.207 Шпилька Н6-12.204 Кольцо Н6-12.203 Крышка Н6-12.205 Гильза Н6-12.300 Опора Н6-12.410 Кронштейн Н6-12.400 Установка конечных выключателей Н6-12.600 Вилка Н6-12.300СБ Опора. Сборочный чертеж Н6-12.308 Ребро Н6-12.306 Косынка Н6-12.307 Косынка Н6-12.414 Ребро Н6-12.412 Швеллер Н6-12.413 Ребро Н6-12.401 Пластина Н6-12.206 Шайба стопорная Н6-12.400СБ Установка конечных выключателей. Сборочный чертеж Н6-12.410СБ Кронштейн. Сборочный чертеж Н6-12.411 Пластина Н6-12.415 Косынка Н6-12.600СБ Вилка. Сборочный чертеж Н6-12.500СБ Кронштейн. Сборочный чертеж Н6-12.502 Плита Н6-12.501 Косынка Н6-12.601 Тяга Н6-12.602 Скоба Н7-01.000СБ Патрубок. Сборочный чертеж Н7-00.002 Фланец Н7-00.000СБ Патрубок монтажный. Сборочный чертеж Н7-00.001 Прокладка Н7-02.000СБ Патрубок. Сборочный чертеж Н7-02.001 Труба Н7-01.001 Труба |
| Разработан: | Харьковский Водоканалпроект |
| Утверждён: | 15.05.1991 СоюзводоканалНИИпроект (SoyuzvodokanalNIIproject 9) |
| Издан: | ГП ЦПП (1995 г. ) |


























































