Скачать Типовой проект 903-9-17сп.86 Альбом IX. Приспособление для монтажаДата актуализации: 01.01.2021
|
| Обозначение: | Типовой проект 903-9-17сп.86 |
| Обозначение англ: | 903-9-17сп.86 |
| Статус: | не определен законодательством |
| Название рус.: | Альбом IX. Приспособление для монтажа |
| Дата добавления в базу: | 01.09.2013 |
| Дата актуализации: | 01.01.2021 |
| Дата введения: | 18.06.1985 |
| Дата окончания срока действия: | 30.06.2003 |
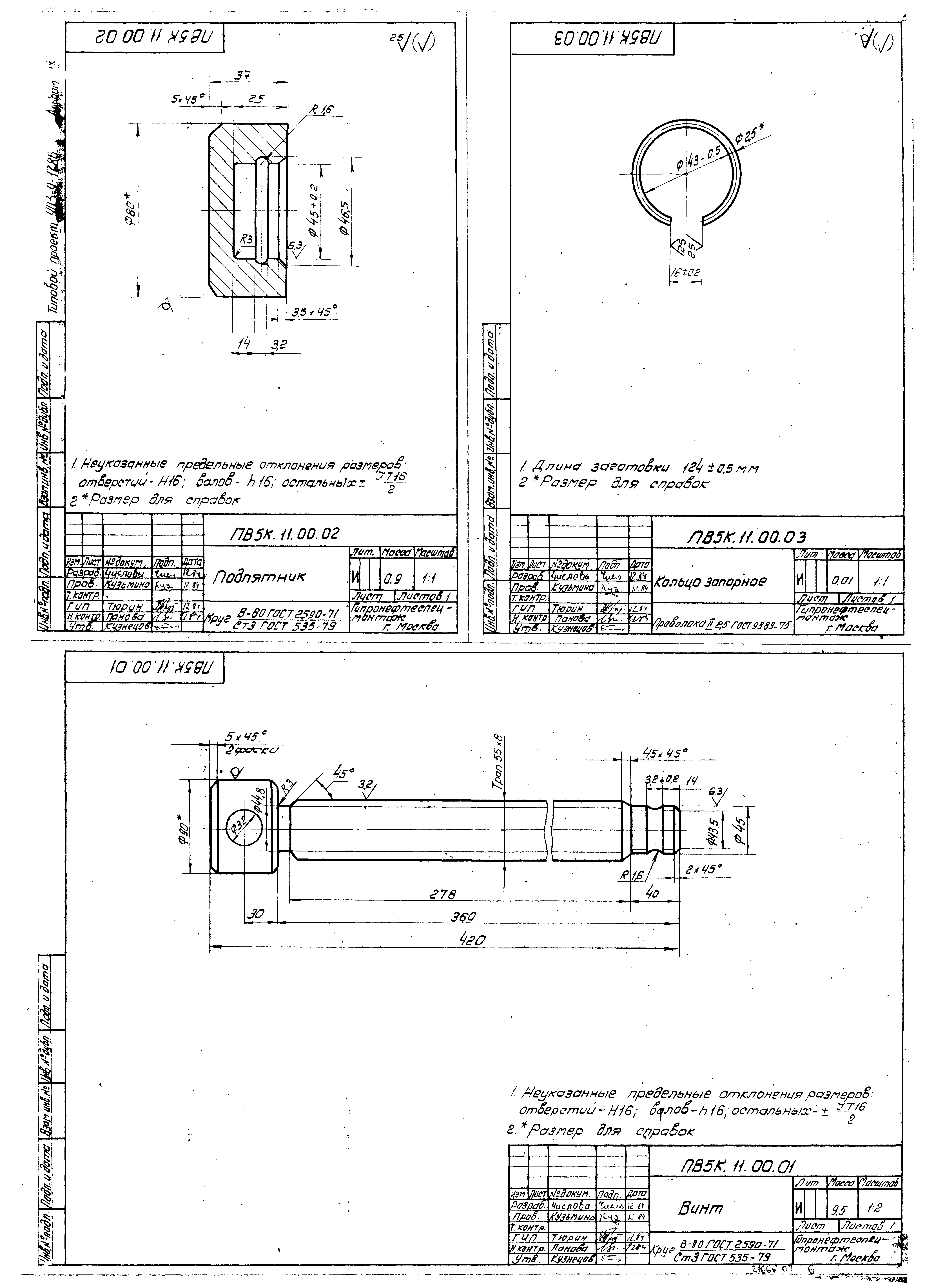
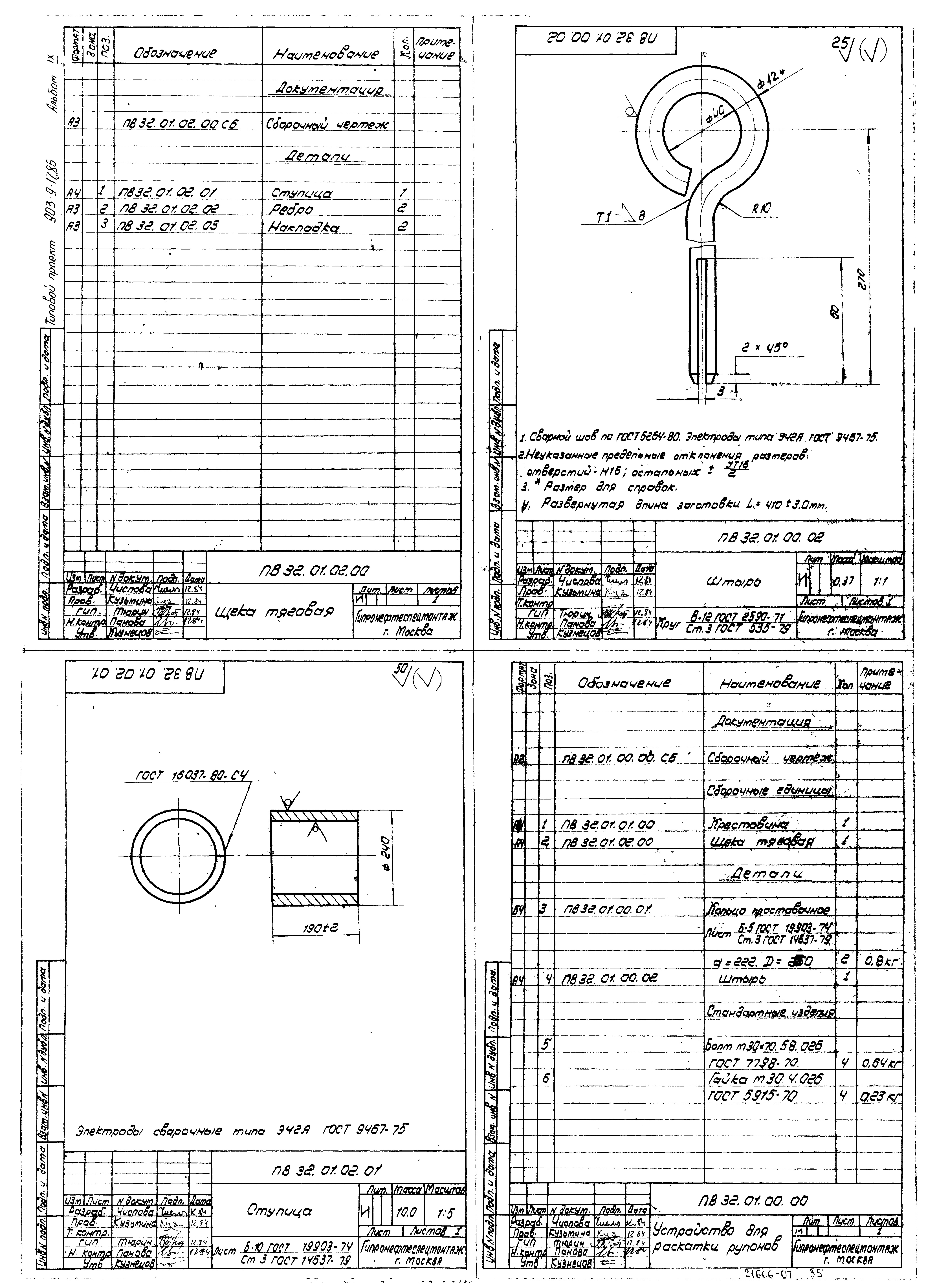
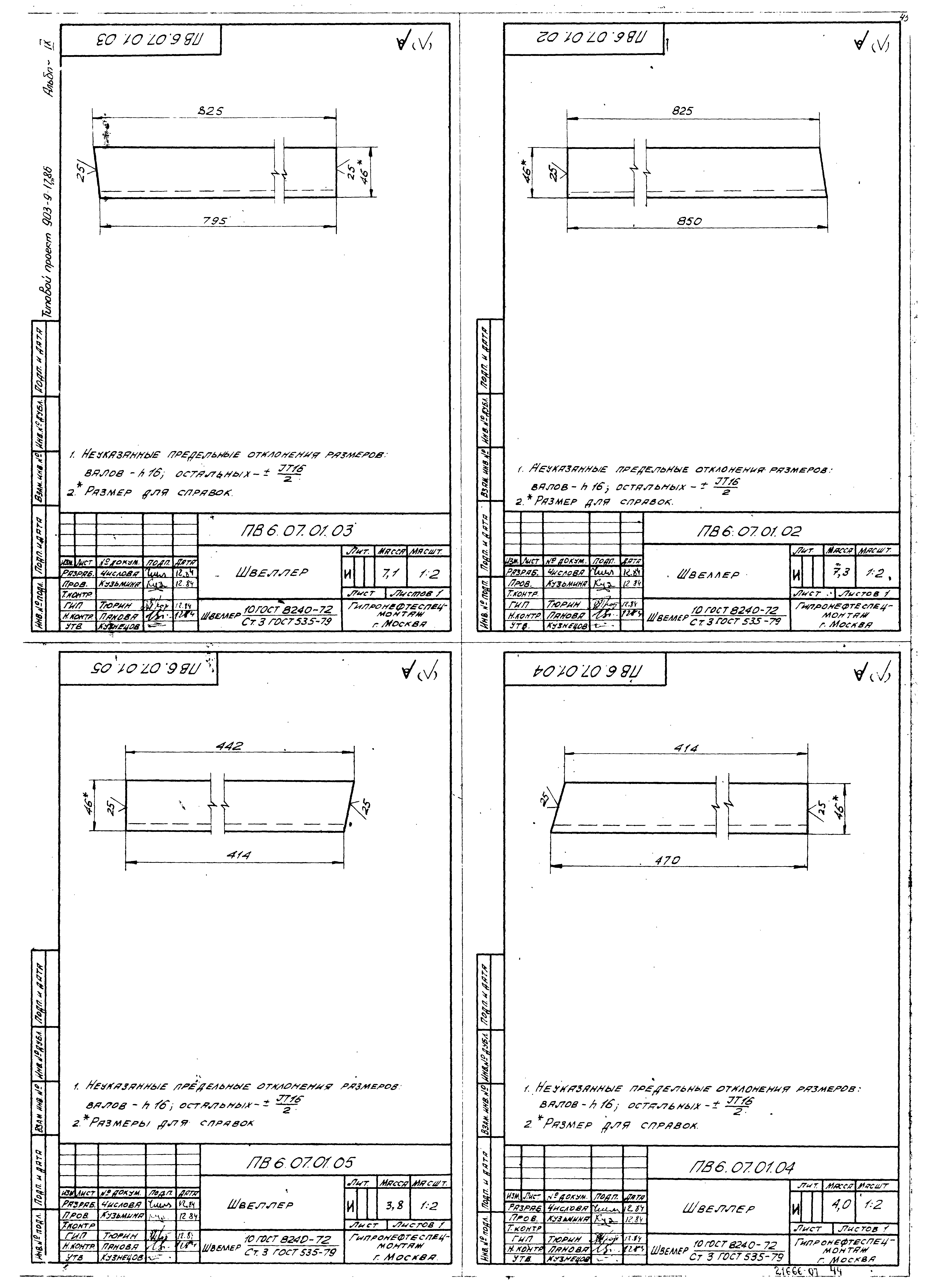
| Оглавление: | Содержание Захват для подъема рулонов массой 45 - 65 тонн краном Шарнир для подъема рулонов массой 45 - 65 тонн краном Упор клиновой Скоба для развертывания рулона Стяжное приспособление Струбцина для прижатия опорного кольца Замерное устройство Клин Устройство для раскатки рулонов Поддон Кронштейн для расчалок Отвес Приспособление для замыкания вертикального монтажного стыка Устройство для формообразования Строп для монтажа окраек Строп 4-х ветвевой Q = 6,5 т Стойка для приварки опорного кольца и кольца жесткости Скоба для навешивания блока Стойка для сборки и сварки вертикального монтажного стыка стенки Приспособление строповочное Строп 3-х ветвевой Строп 4-х ветвевой Звено строповочное Скоба для крепления расчалок к опорному кольцу Ловитель опорного кольца Кронштейн для опорного кольца Пробка для отвеса Лестница переходная Траверса для подъема укрупненных щитов покрытия Ролик поддерживающий Стойка монтажная Ролик для демонтажа монтажной стойки Козлы для демонтажа монтажной стойки Ловитель Стенд для сборки щитов покрытия |
| Разработан: | Гипронефтеспецмонтаж Минмонтажспецстроя СССР (Giproneftespetsmontazh, Minmontazhspetsstroy (USSR) ) |
| Утверждён: | 18.06.1985 Минэнерго СССР (USSR Minenergo 58) |
































































































