Скачать Типовой проект 903-1-158 Альбом XVIII. Отопление и вентиляция. Водопровод и канализацияДата актуализации: 01.01.2021
|
| Обозначение: | Типовой проект 903-1-158 |
| Обозначение англ: | 903-1-158 |
| Статус: | заменен |
| Название рус.: | Альбом XVIII. Отопление и вентиляция. Водопровод и канализация |
| Дата добавления в базу: | 01.09.2013 |
| Дата актуализации: | 01.01.2021 |
| Дата введения: | 15.04.1979 |
| Дата окончания срока действия: | 01.12.1987 |
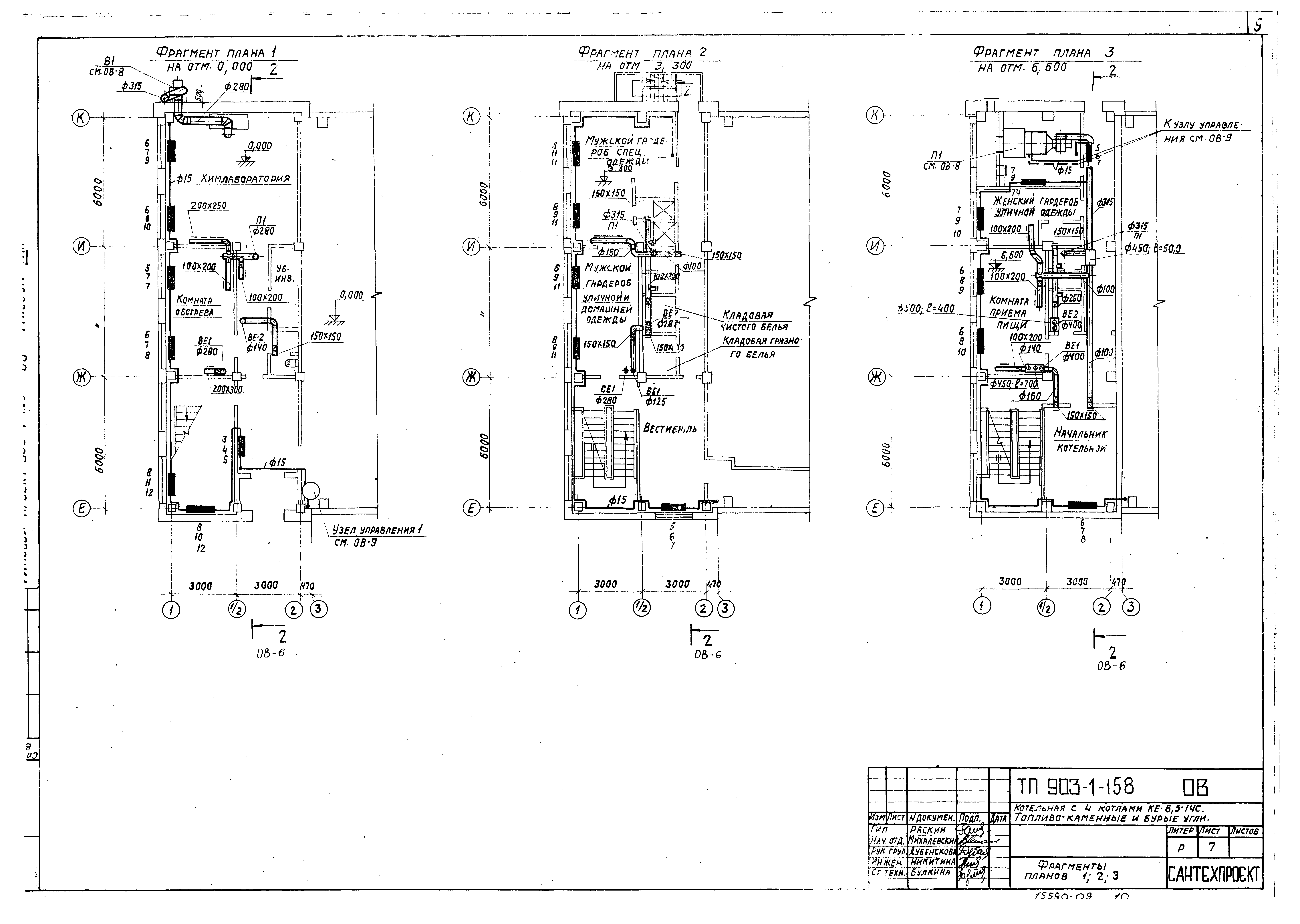
| Оглавление: | Отопление и вентиляция Общие данные План на отм. 0.000; 3.600. Разрезы 1-1, 2-2 Фрагменты планов 1, 2, 3 Установки систем П1, В1 Системы отопления 1, помещение золоудаления. Узел управления 1 Системы теплоснабжения П1, А1 - А7 Схемы систем П1, В1, ВЕ1 - ВЕ4 Лючок для замера воздуха. Воздухосборник вертикальный. Кронштейн для крепления АПВС50-30 Водопровод и канализация Общие данные Генплан с сетями водопровода и канализации План на отм. 0.000 План на отм. 3.600; 7.200; 15.600 Фрагменты планов 1, 2, 3 Схема В1, Т3 Схема К1, К2 Схема В6, К7, К3, В5, К6 Насосная станция оборотного водоснабжения |
| Разработан: | ГПИ Сантехпроект Госстроя СССР Минтяжмаш СССР Союзпроммеханизация |
| Утверждён: | 23.03.1979 ГПИ Сантехпроект (46) |
| Заменяет собой: |
|
| Чем заменён: |





























