Скачать Серия 2.160-КР-1 Выпуск 1. Узлы и деталиДата актуализации: 01.01.2021
|
| Обозначение: | Серия 2.160-КР-1 |
| Обозначение англ: | Series 2.160-КР-1 |
| Статус: | действует |
| Название рус.: | Выпуск 1. Узлы и детали |
| Дата добавления в базу: | 01.09.2013 |
| Дата актуализации: | 01.01.2021 |
| Дата введения: | 01.01.1977 |
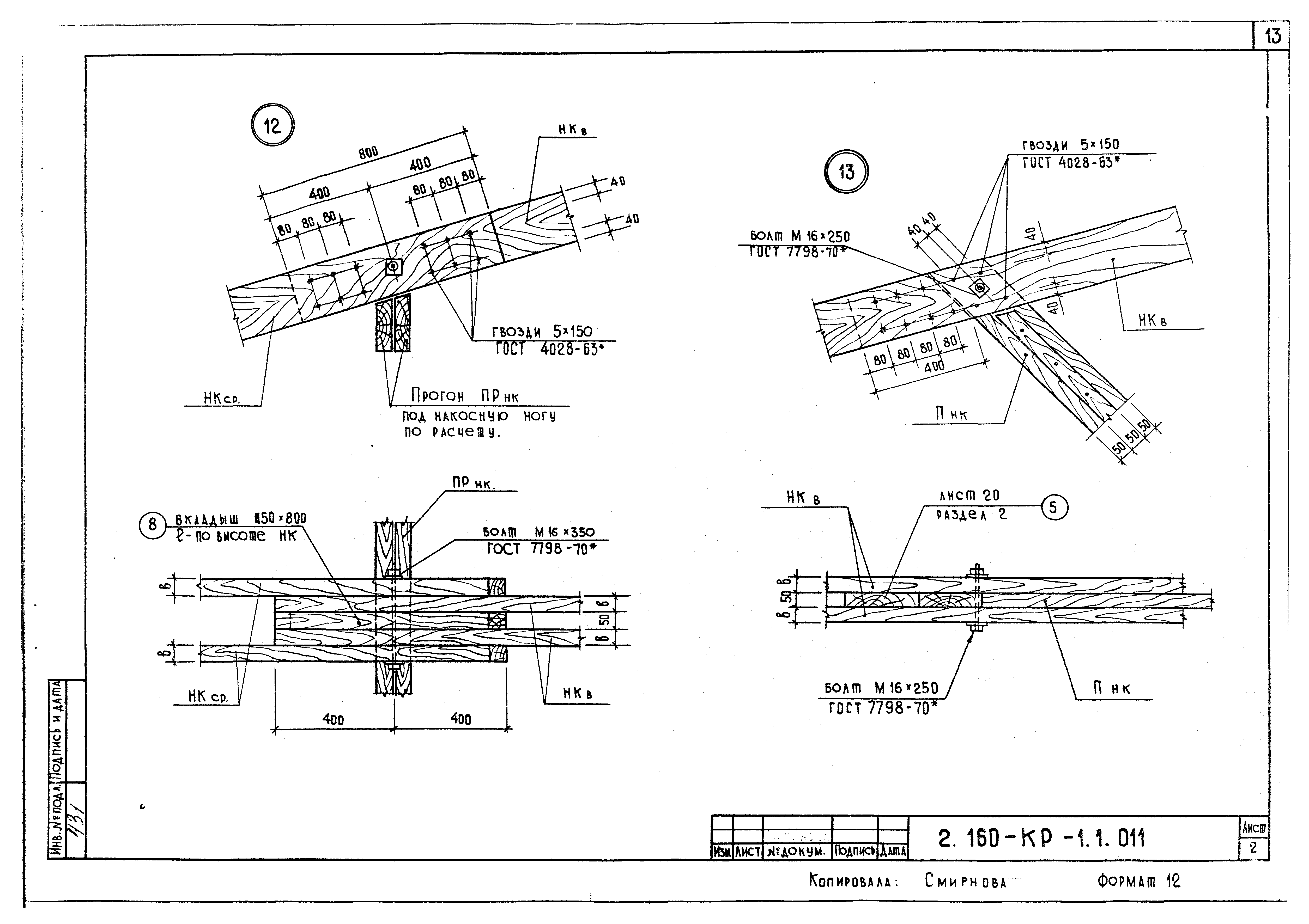
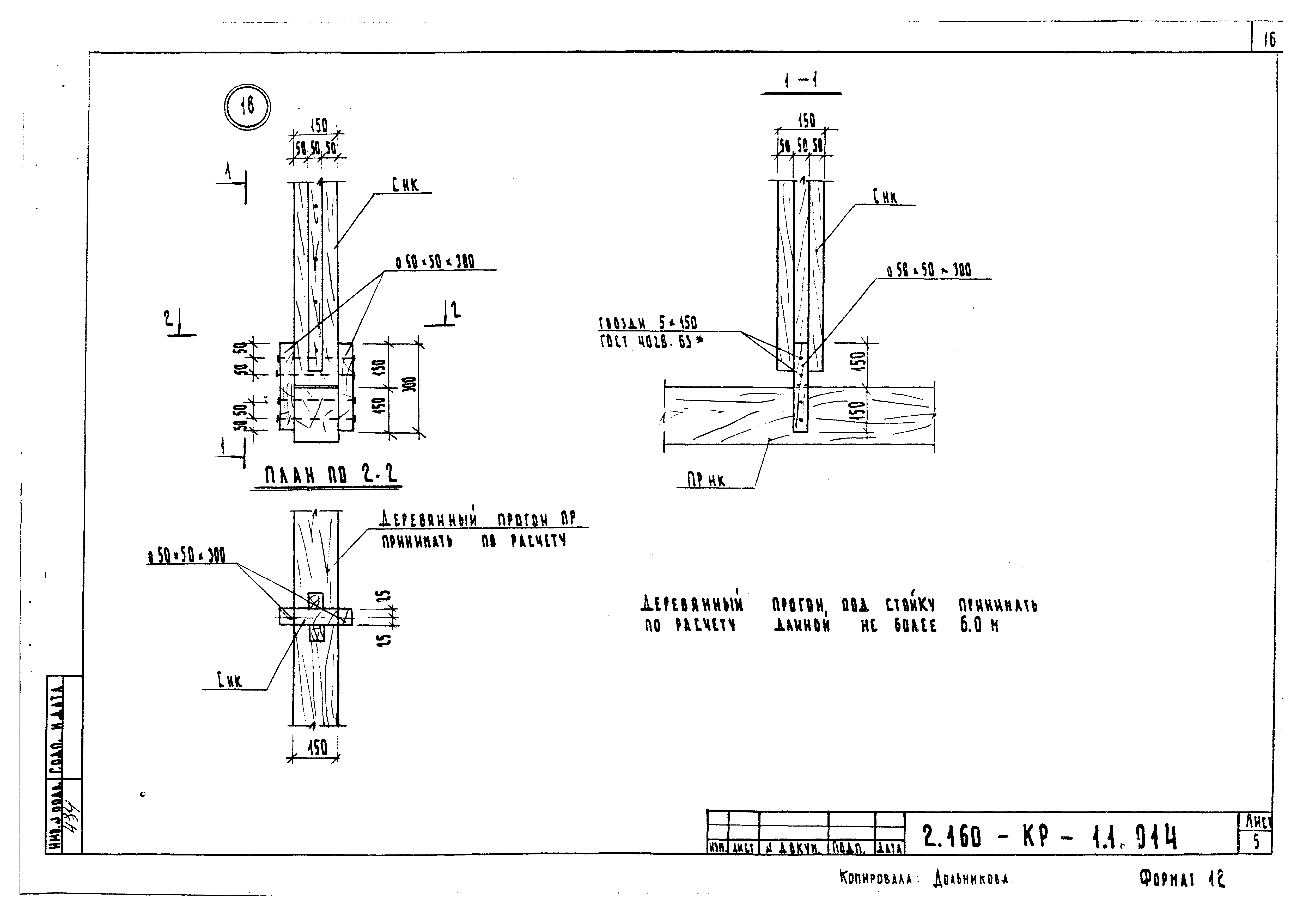
| Оглавление: | 2.160-КР-1.1.001 Содержание выпуска 2.160-КР-1.1.002 Пояснительная записка 2.160-КР-1.1.003 Узлы опирания и соединения элементов стропил №1, 2 2.160-КР-1.1.004 Узлы опирания и соединения элементов стропил №3, 3а 2.160-КР-1.1.005 Узлы опирания и соединения элементов стропил №4, 4а 2.160-КР-1.1.006 Узлы опирания и соединения элементов стропил №4в 2.160-КР-1.1.007 Узлы опирания и соединения элементов стропил №5, 6 2.160-КР-1.1.008 Узлы опирания и соединения элементов стропил №7, 7а 2.160-КР-1.1.009 Узлы опирания и соединения элементов стропил №8, 9 2.160-КР-1.1.010 Узел опирания ноги на стену №10. Узлы соединения элементов вальмы 2.160-КР-1.1.011 Узел опирания ноги на стену №11, 12, 13. Узлы соединения элементов вальмы 2.160-КР-1.1.012 Узел опирания ноги на стену №14, 15. Узлы соединения элементов вальмы 2.160-КР-1.1.013 Узел опирания ноги на стену №16, 17. Узлы соединения элементов вальмы 2.160-КР-1.1.014 Узел опирания ноги на стену №18. Узлы соединения элементов вальмы 2.160-КР-1.1.015 Узлы сопряжения элементов разжелобка (ендовы) №№21, 22 2.160-КР-1.1.016 Узлы сопряжения элементов разжелобка и вальмовой части №№23, 24 2.160-КР-1.1.017 Узлы опирания и детали примыкания разжелобков №№25, 26 2.160-КР-1.1.018 Узлы опирания и детали примыкания разжелобков №№27, 28 2.160-КР-1.1.019 Узлы опирания и детали примыкания разжелобков №№29, 30 2.160-КР-1.1.020 Ветровые связи 2.160-КР-1.1.021 Щит карнизный 2.160-КР-1.1.022 Стальной щит обрешетки |
| Разработан: | Ленжилпроект Ленгорисполкома |
| Утверждён: | 01.01.1977 Ленжилпроект |






















