Скачать Шифр М24.6/2010 Наружные стены, стены подвала, покрытия, потолки, фундаменты и полы с теплоизоляцией из пеностекла FOAMGLAS, производства компании PITTSBURGH CORNING EUROPE S.A./N.V. (Бельгия). Материалы для проектирования и чертежи узловДата актуализации: 01.01.2021
|
| Обозначение: | Шифр М24.6/2010 |
| Обозначение англ: | М24.6/2010 |
| Статус: | не определен законодательством |
| Название рус.: | Наружные стены, стены подвала, покрытия, потолки, фундаменты и полы с теплоизоляцией из пеностекла FOAMGLAS, производства компании PITTSBURGH CORNING EUROPE S.A./N.V. (Бельгия). Материалы для проектирования и чертежи узлов |
| Дата добавления в базу: | 01.09.2013 |
| Дата актуализации: | 01.01.2021 |
| Дата введения: | 21.10.2011 |
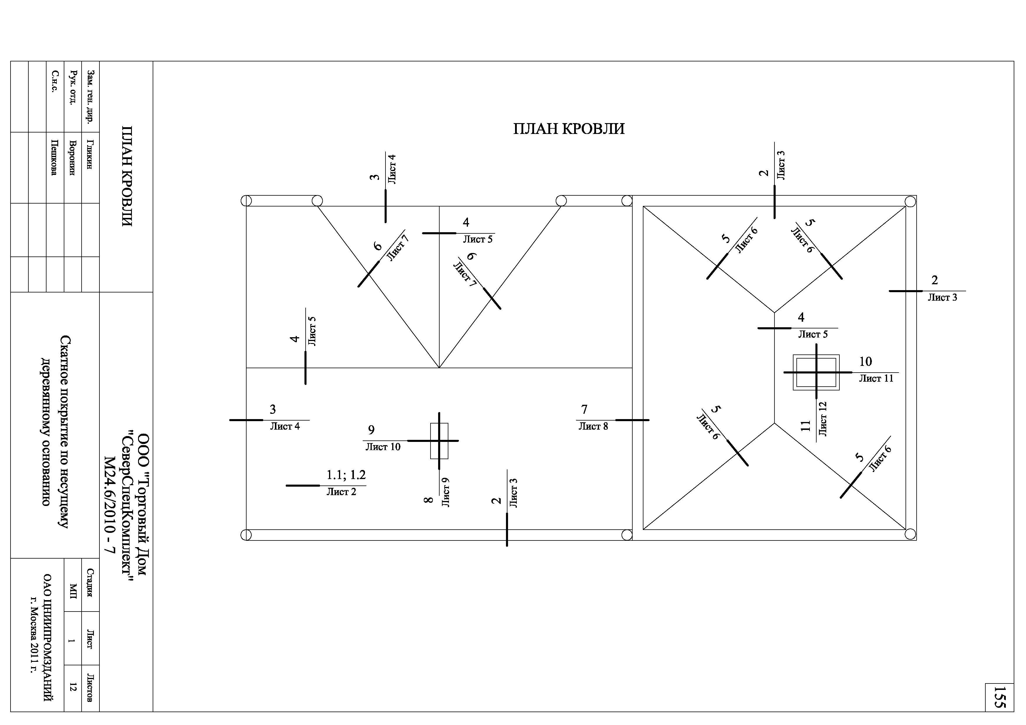
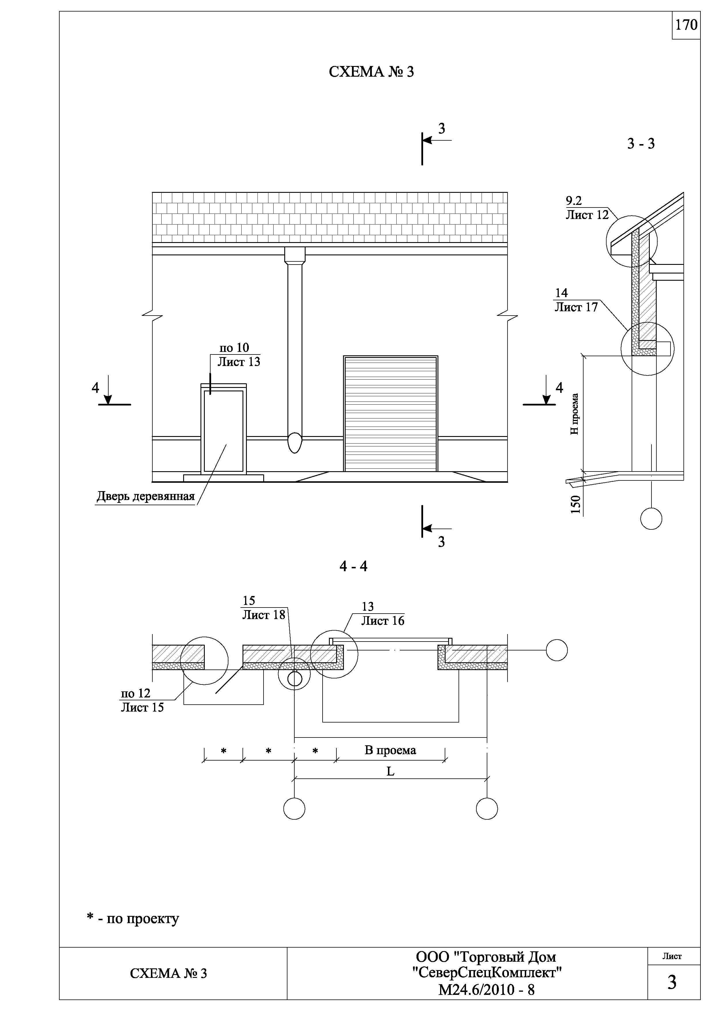
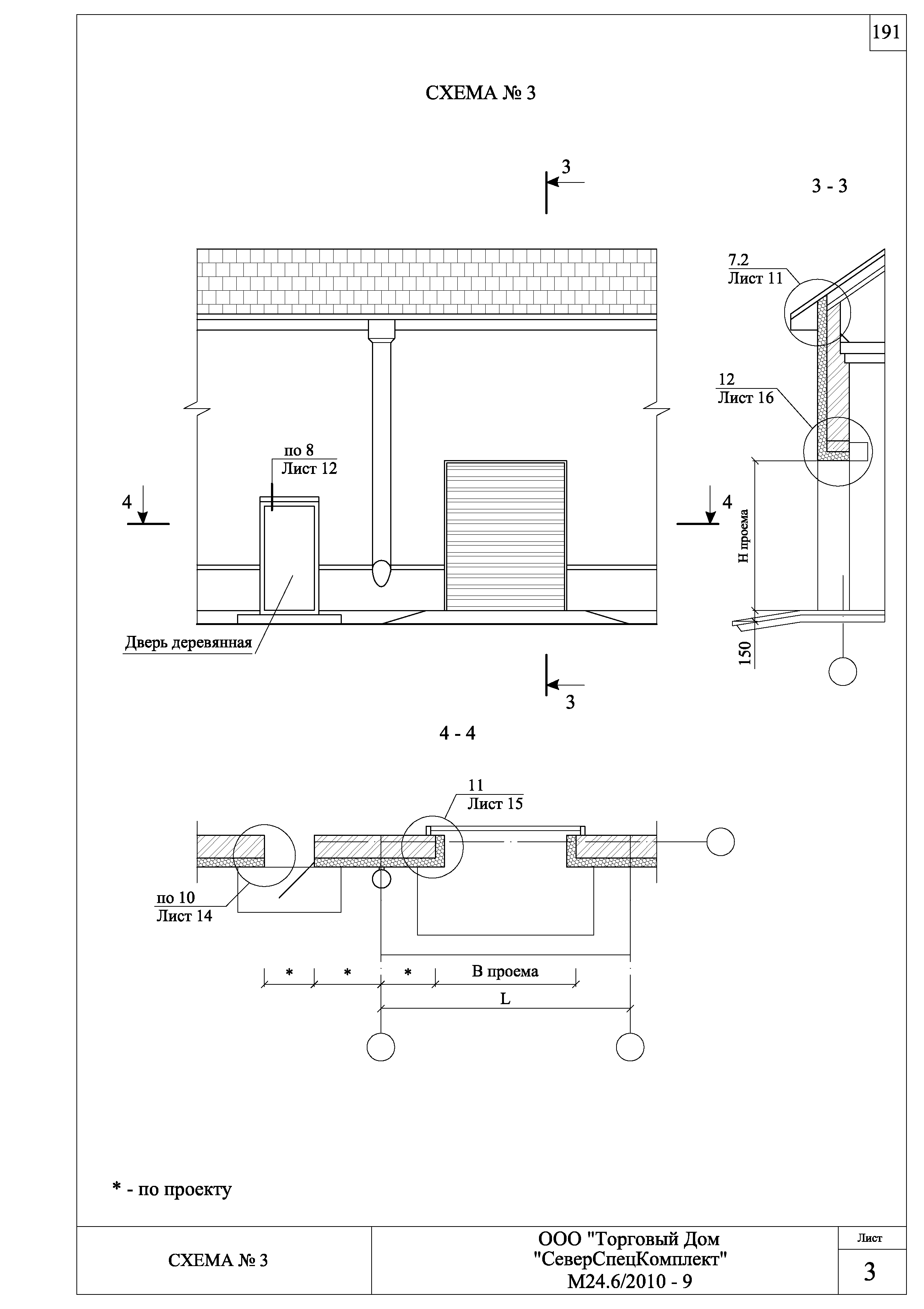
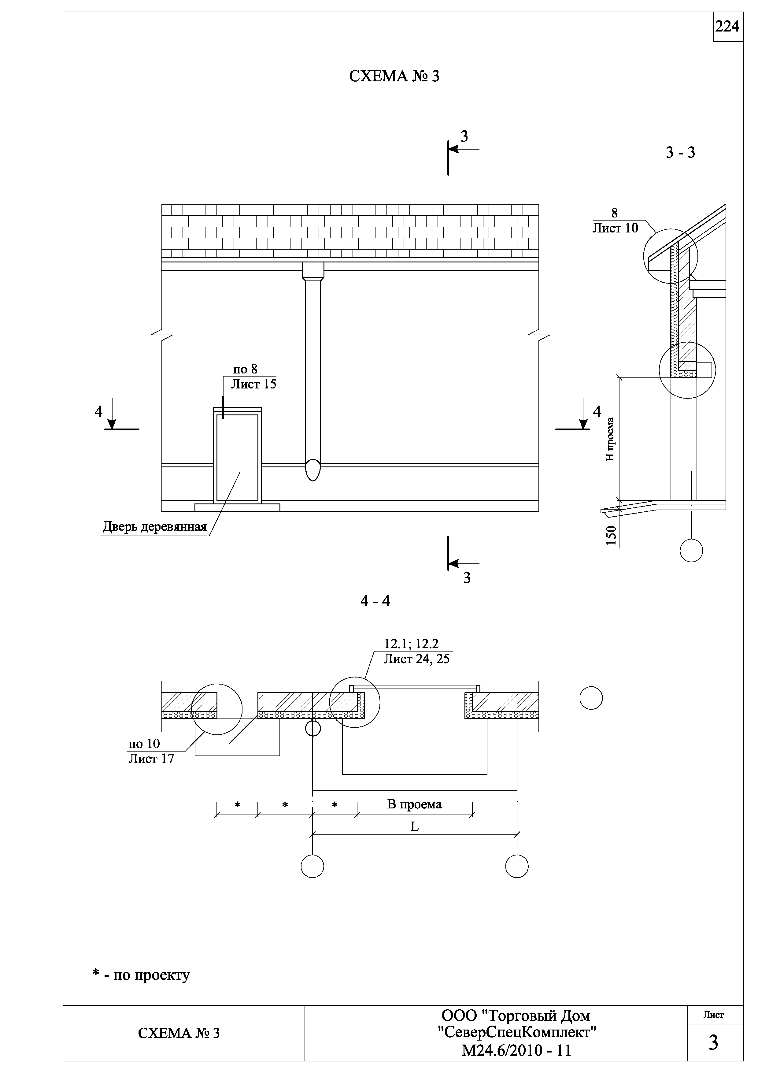
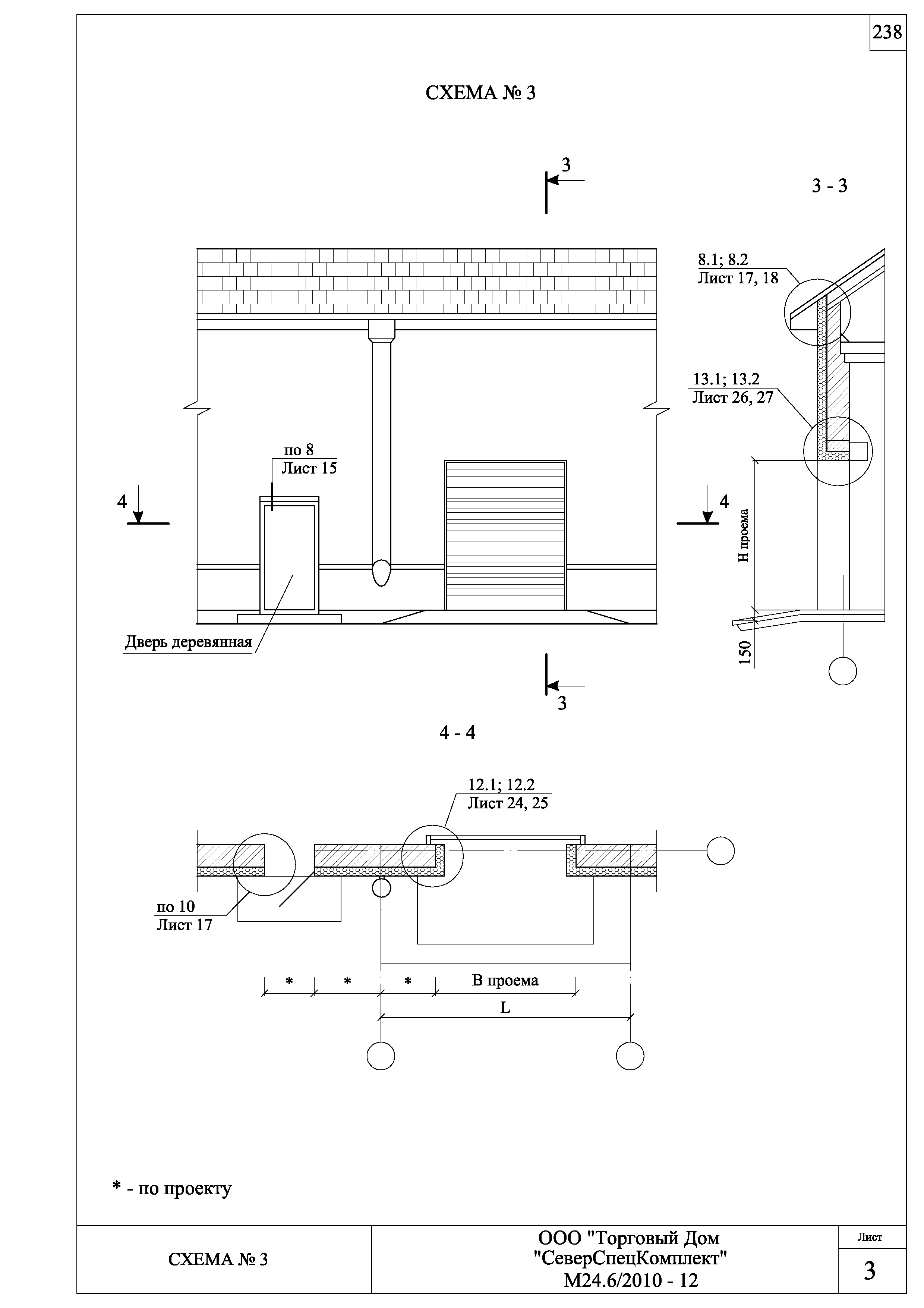
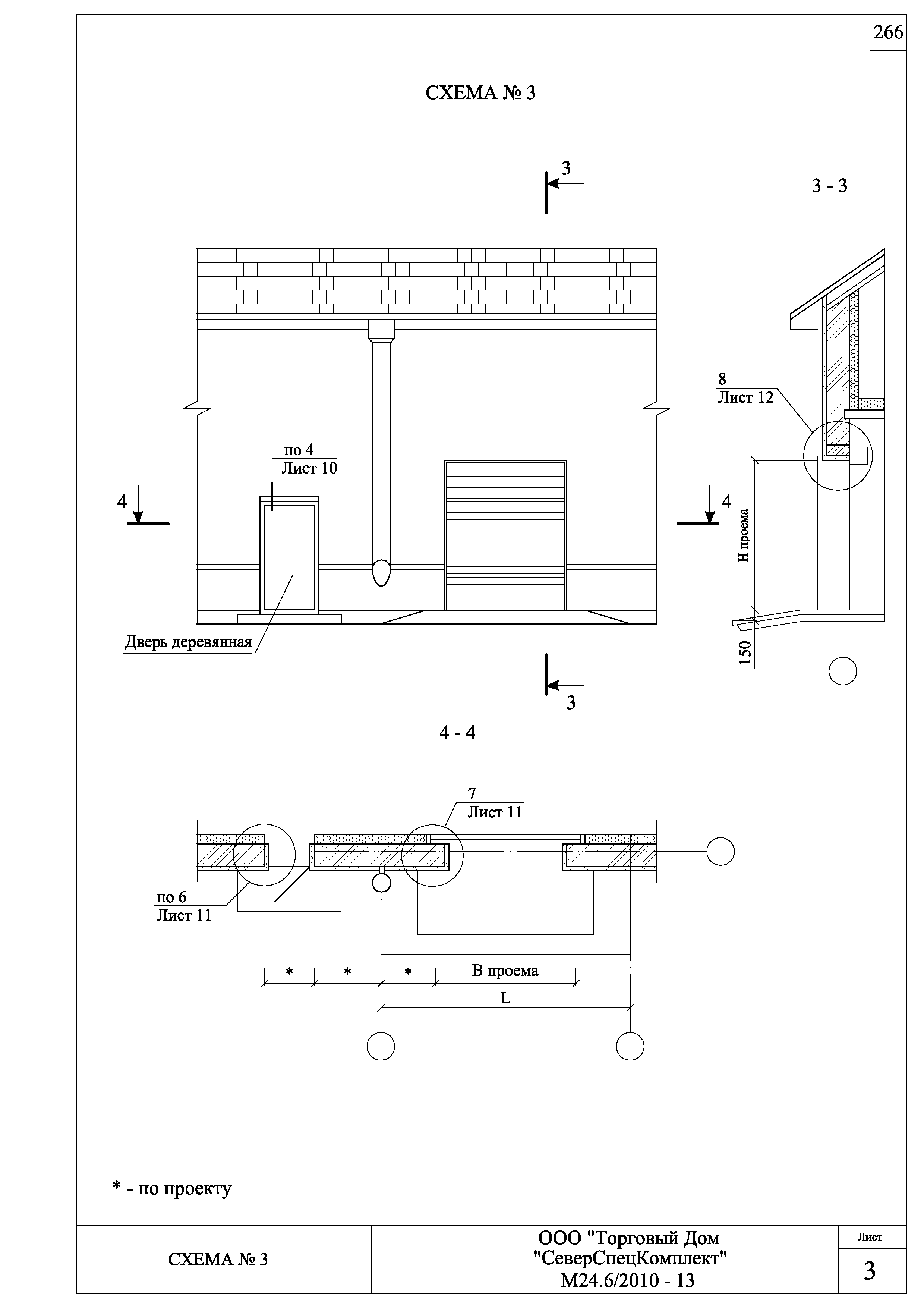
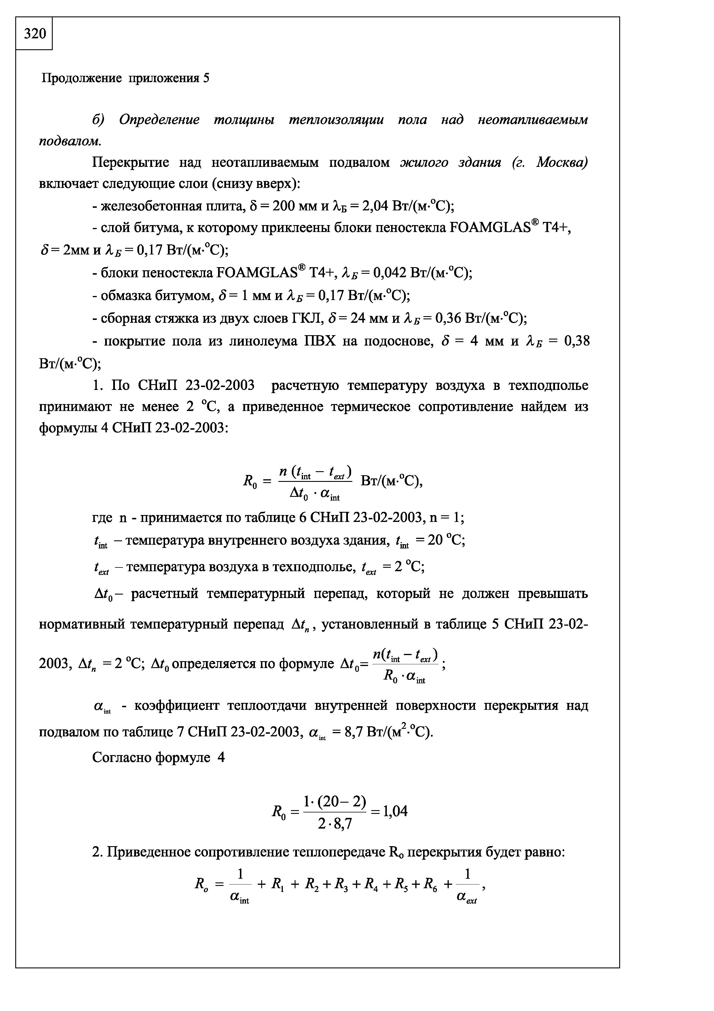
| Область применения: | Альбом содержит материалы для проектирования и чертежи узлов наружных стен, стен подвала, покрытий, потолков, фундаментов и полов зданий различного назначения с теплоизоляцией из плитного пеностекла FOAMGLAS |
| Оглавление: | Сертификат Пояснительная записка 1. Общие положения 2. Применяемые материалы 3. Нормы по теплозащите 4. Конструктивные решения покрытий 5. Конструктивные решения стен 6. Фундаменты мелкого заложения 7. Полы 8. Потолки Раздел 1. Неэксплуатируемое покрытие кровли по основанию из профилированного настила Раздел 2. Неэксплуатируемое покрытие по железобетонному основанию Раздел 3. Эксплуатируемое покрытие по железобетонному основанию (автостоянки, террасы, пешеходные зоны, вертолетные площадки) Раздел 4. Эксплуатируемое покрытие по железобетонному основанию (озелененная кровля) Раздел 5. Скатные покрытия с несущим металлическим профилированным настилом Раздел 6. Скатные покрытия с несущими железобетонными плитами, монолитным железобетоном Раздел 7. Скатные покрытия с несущими деревянными конструкциями Раздел 8. Стены с защитно-декоративной традиционной штукатуркой Раздел 9. Стены с защитно-декоративной тонкослойной штукатуркой Раздел 10. Стены с отделочным слоем из кирпича Раздел 11. Стены с навесной системой облицовки Раздел 12. Стены с облицовкой клинкерной плиткой, керамической плиткой или мозаикой Раздел 13. Стены с теплоизоляционным слоем, размещенным внутри помещения. Реконструкция Раздел 14. Стены подвала (утепление с наружной стороны) Раздел 15. Стены подвала (утепление с внутренней стороны) Раздел 16. Полы Раздел 17. Потолки Раздел 18. Фундаменты мелкого заложения Приложения |
| Разработан: | ООО Торговый Дом СеверСпецКомплект |
| Утверждён: | 21.10.2011 ЦНИИпромзданий (TsNIIpromzdaniy ) |






















































































































































































































































































































































