Скачать Типовые проектные решения 501-7-014.91 Альбом 2. Изделия заводского изготовленияДата актуализации: 01.01.2021
|
| Обозначение: | Типовые проектные решения 501-7-014.91 |
| Обозначение англ: | 501-7-014.91 |
| Статус: | справочные материалы, мп, тпр |
| Название рус.: | Альбом 2. Изделия заводского изготовления |
| Дата добавления в базу: | 01.09.2013 |
| Дата актуализации: | 01.01.2021 |
| Дата введения: | 03.06.1992 |
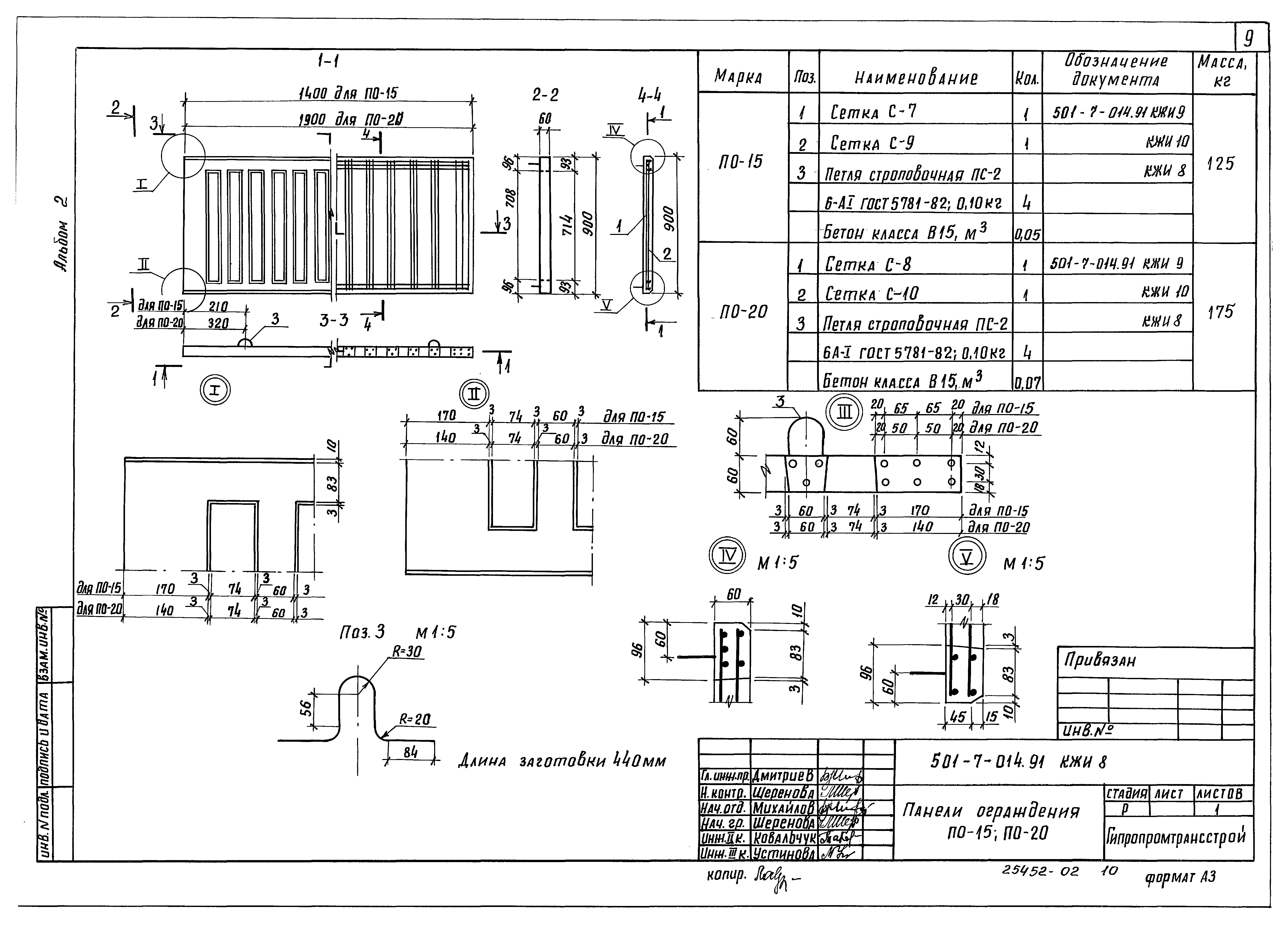
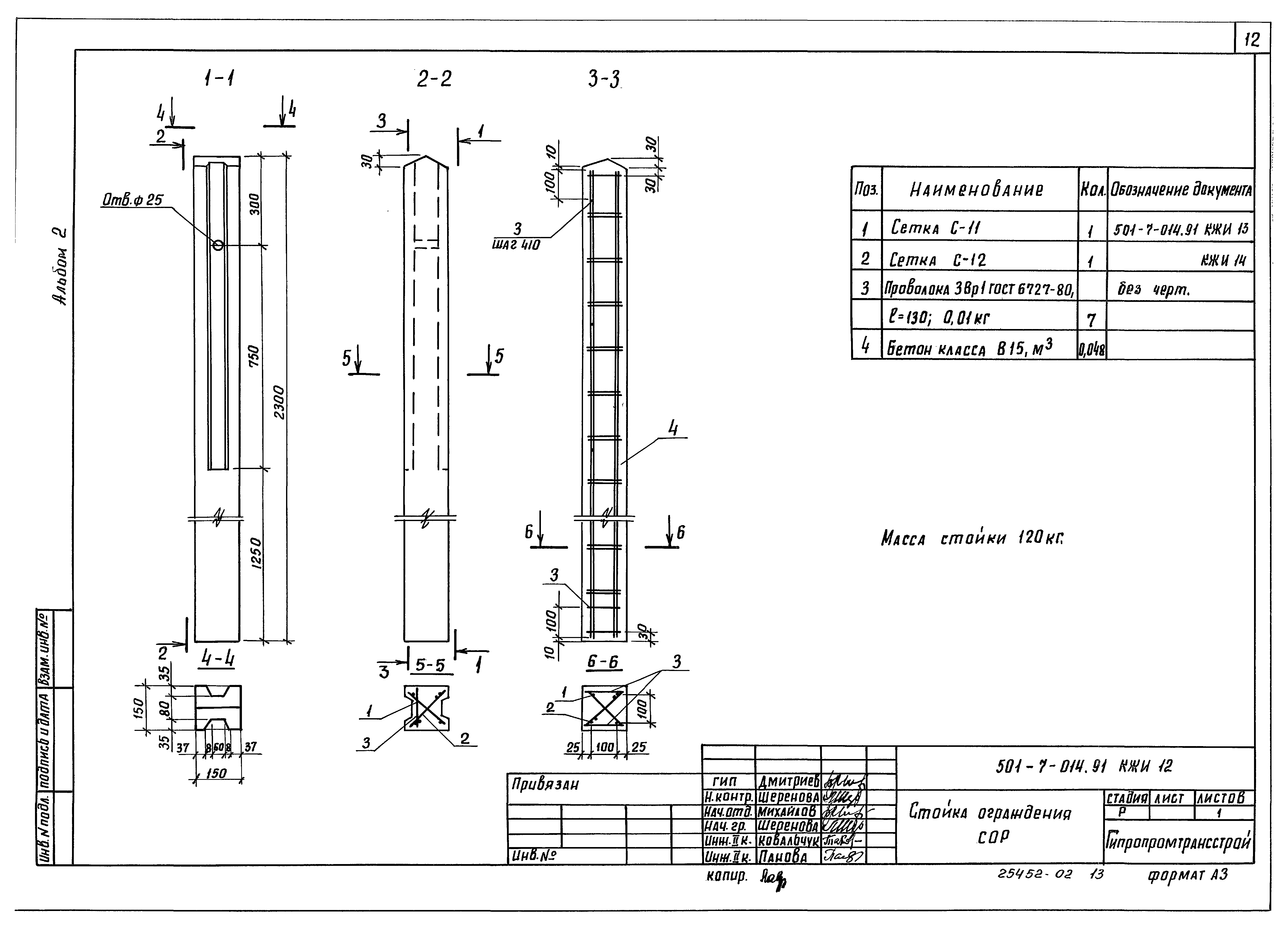
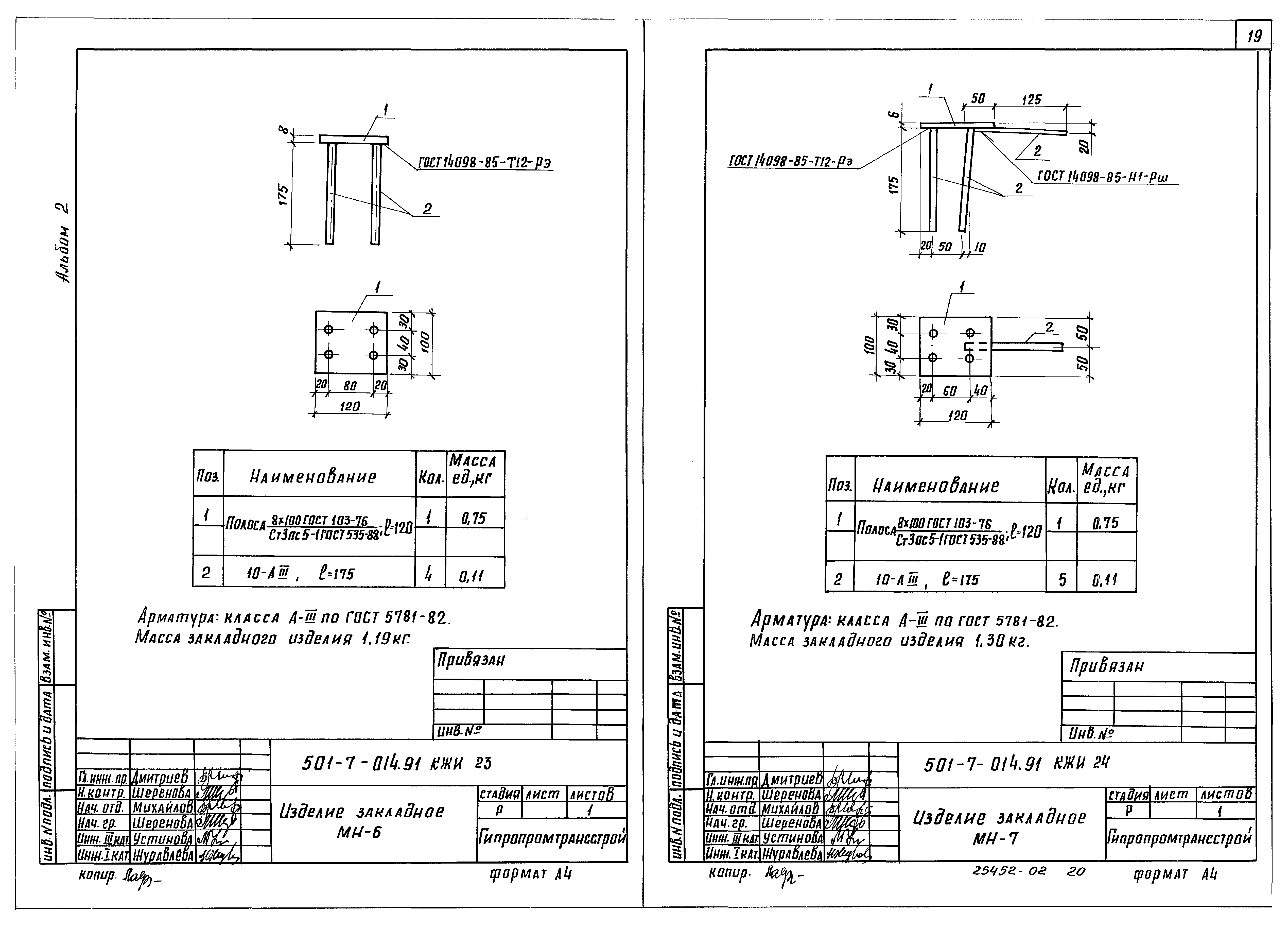
| Оглавление: | Технические требования Номенклатура изделий Стенка бортовая БСТ-30, БСТ-40 Сетка С-1, С-2 Сетка С-3, С-4 Сетка С-5, С-6 Изделие закладное МН-1, МН-2 Анкер Петля строповочная ПС-1 Панель ограждения ПО-15, ПО-20 Сетка С-7, С-8 Сетка С-9, С-10 Стойка ограждения СОУ Стойка ограждения СОР Сетка С-11 Сетка С-12 Блок ФБС9.3.6и; ФБС24.3.6и Изделие закладное МН-3, МН-4 Изделие соединительное МС-1…МС-6 Лестничный марш ЛМ36.15п; ЛМ36.15л Сетка С-13 Сетка С-14 Сетка С-15 Изделие закладное МН-5 Изделие закладное МН-6 Изделие закладное МН-7 Панель лестничного ограждения ОЛ18.12п; ОЛ18.12л Каркас КП1, КП2 Сетка С-16 Сетка С-17, С-18 Сетка С-19 Сетка С-20 Ограждение металлических лестничных маршей Ведомость расхода стали на элемент, кг |
| Разработан: | Гипропромтрансстрой |
| Утверждён: | 03.06.1992 Гипропромтрансстрой (34) |

























