Скачать Типовой проект 272-23-14 Альбом I. Архитектурно-строительные решения. Технология и механизация. Холодоснабжение. ВитражиДата актуализации: 01.01.2021
|
| Обозначение: | Типовой проект 272-23-14 |
| Обозначение англ: | 272-23-14 |
| Статус: | не определен законодательством |
| Название рус.: | Альбом I. Архитектурно-строительные решения. Технология и механизация. Холодоснабжение. Витражи |
| Дата добавления в базу: | 01.09.2013 |
| Дата актуализации: | 01.01.2021 |
| Дата введения: | 26.05.1982 |
| Дата окончания срока действия: | 30.06.2003 |
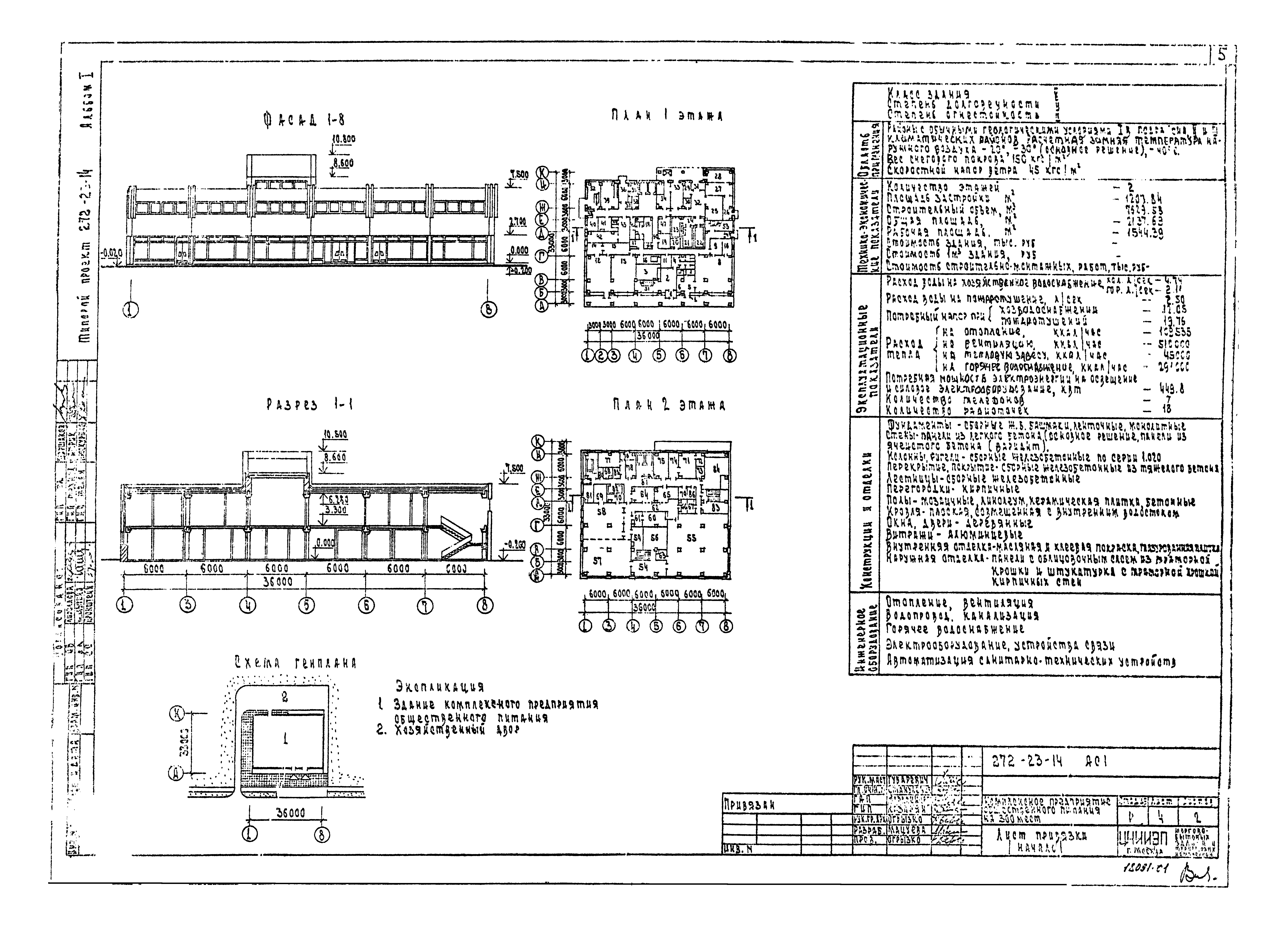
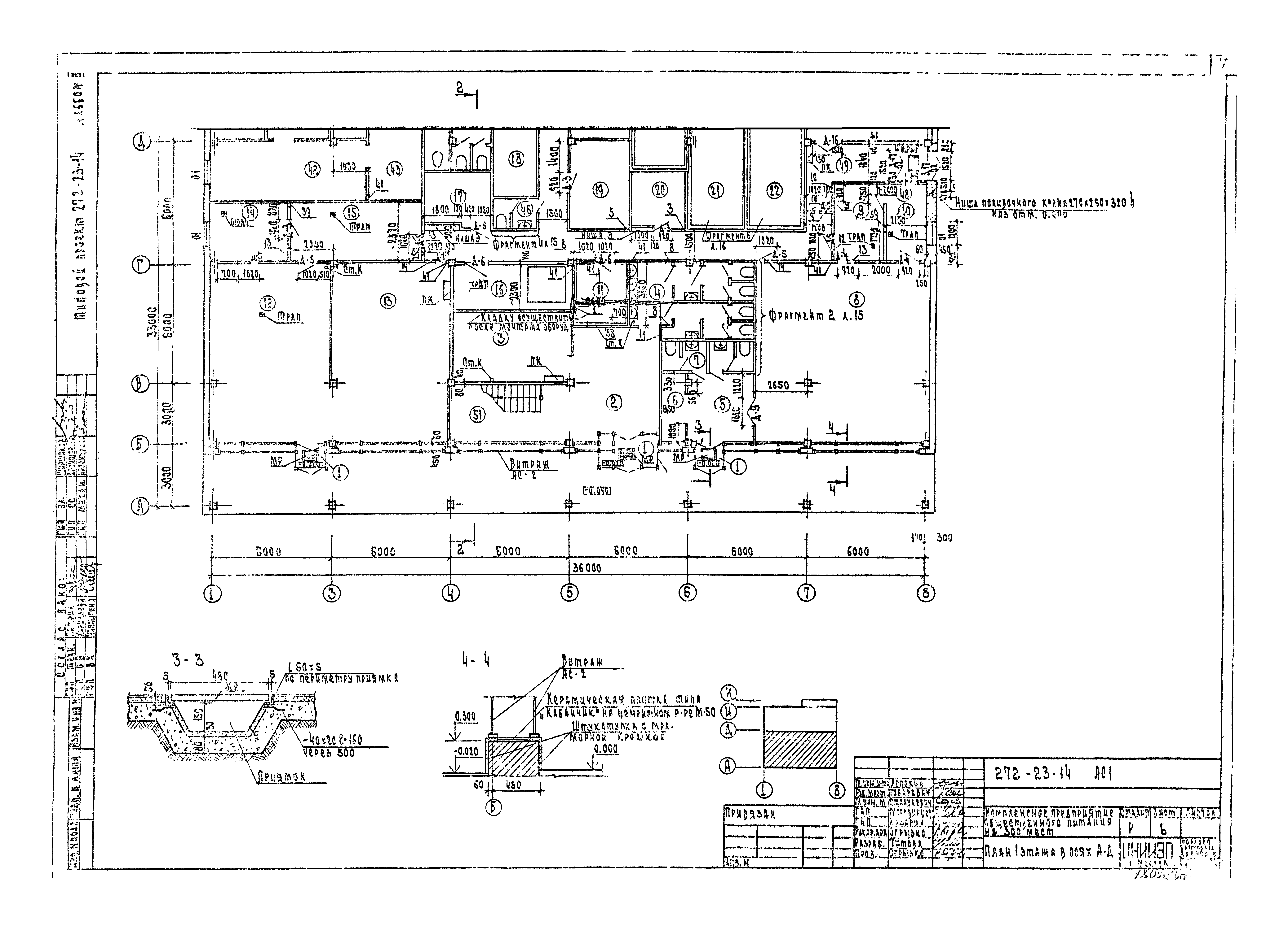
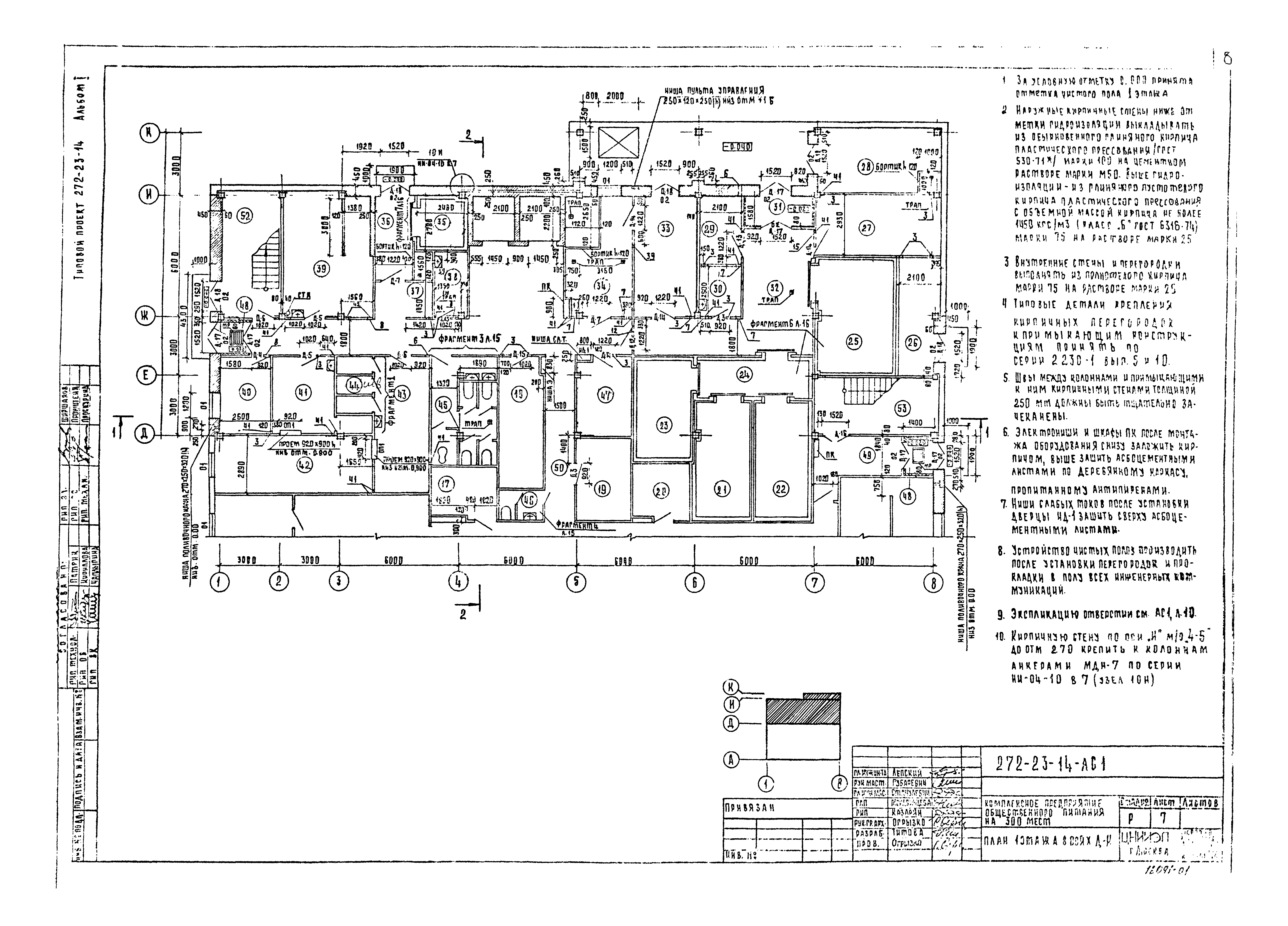
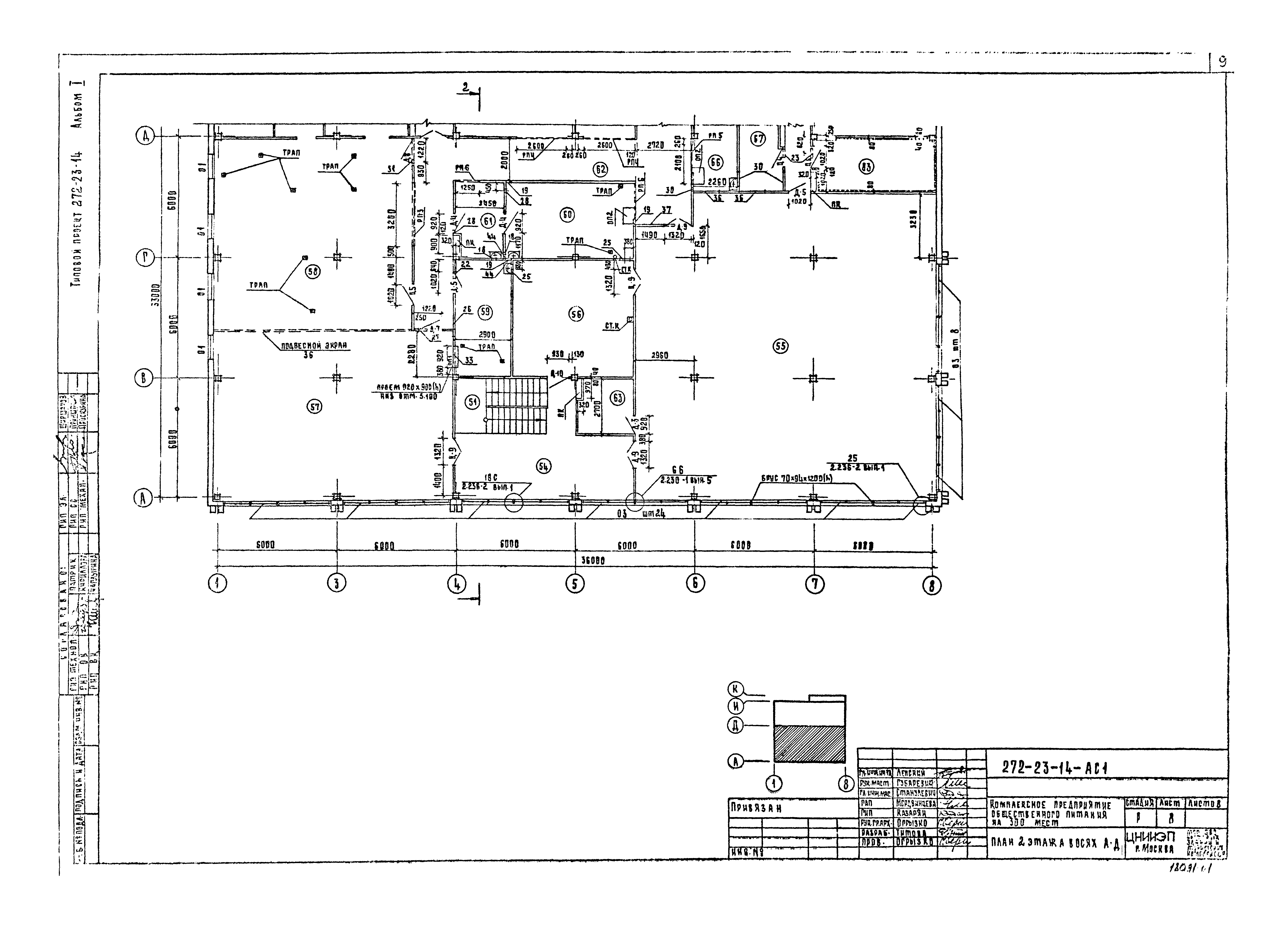
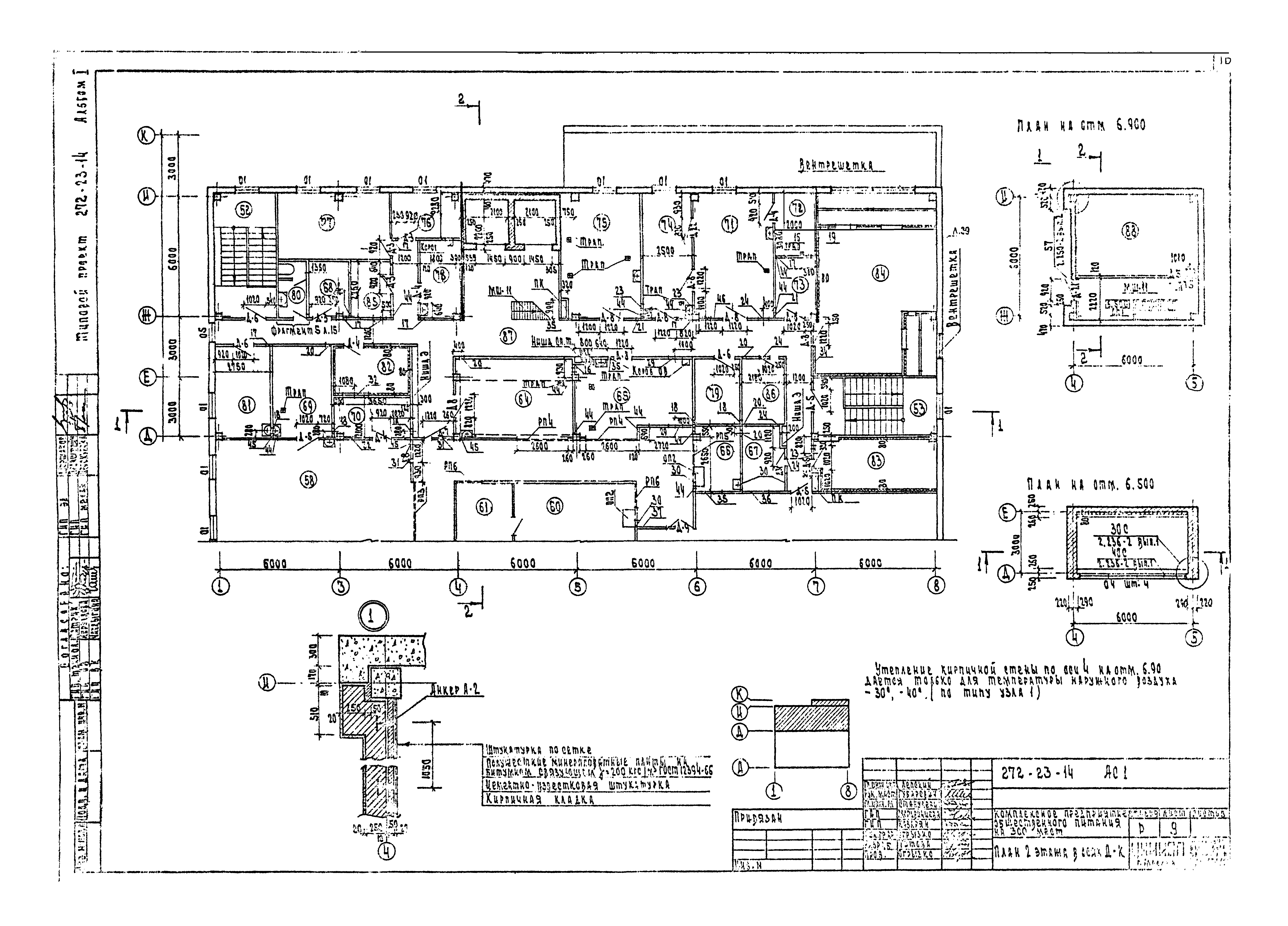
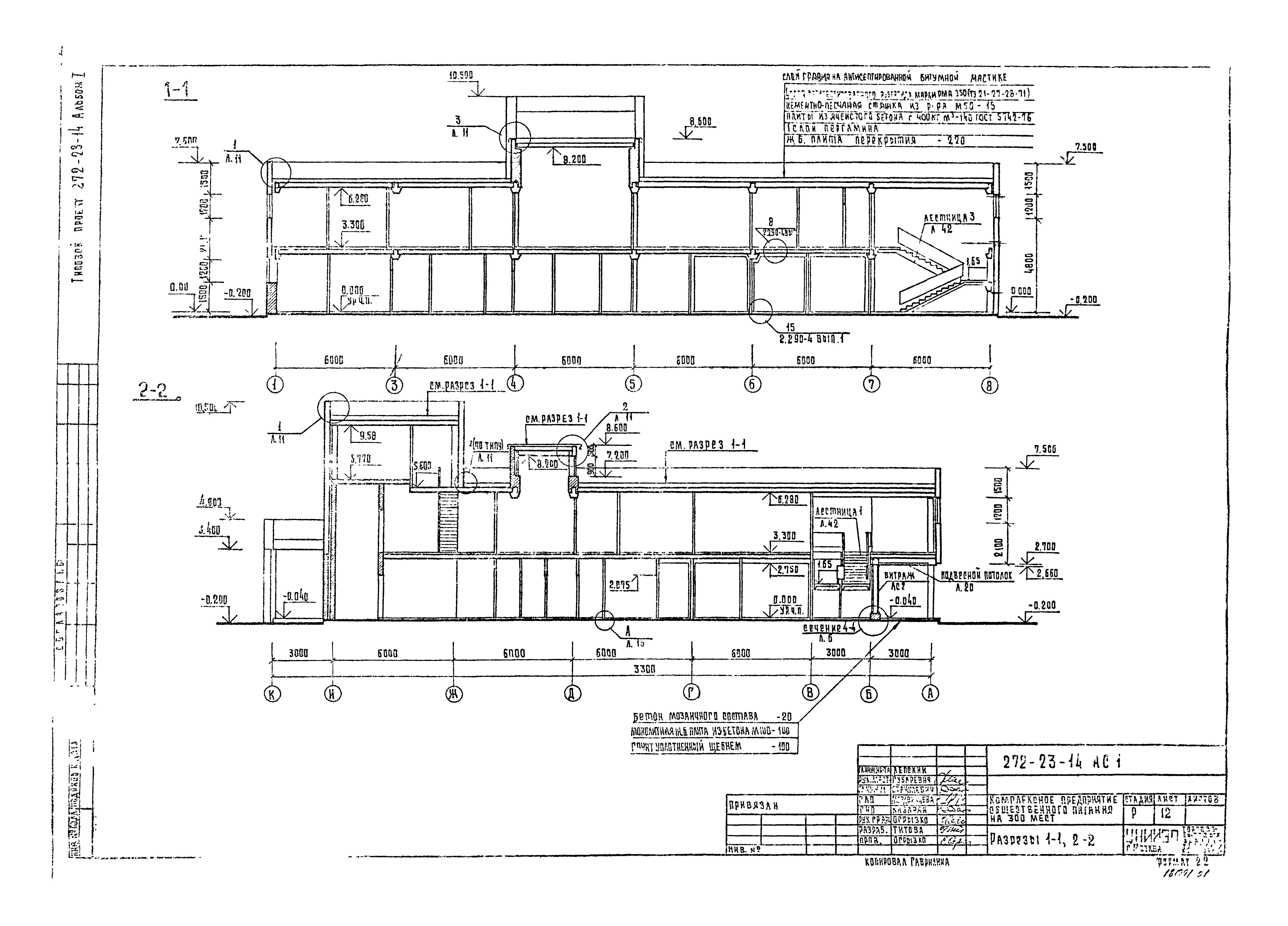
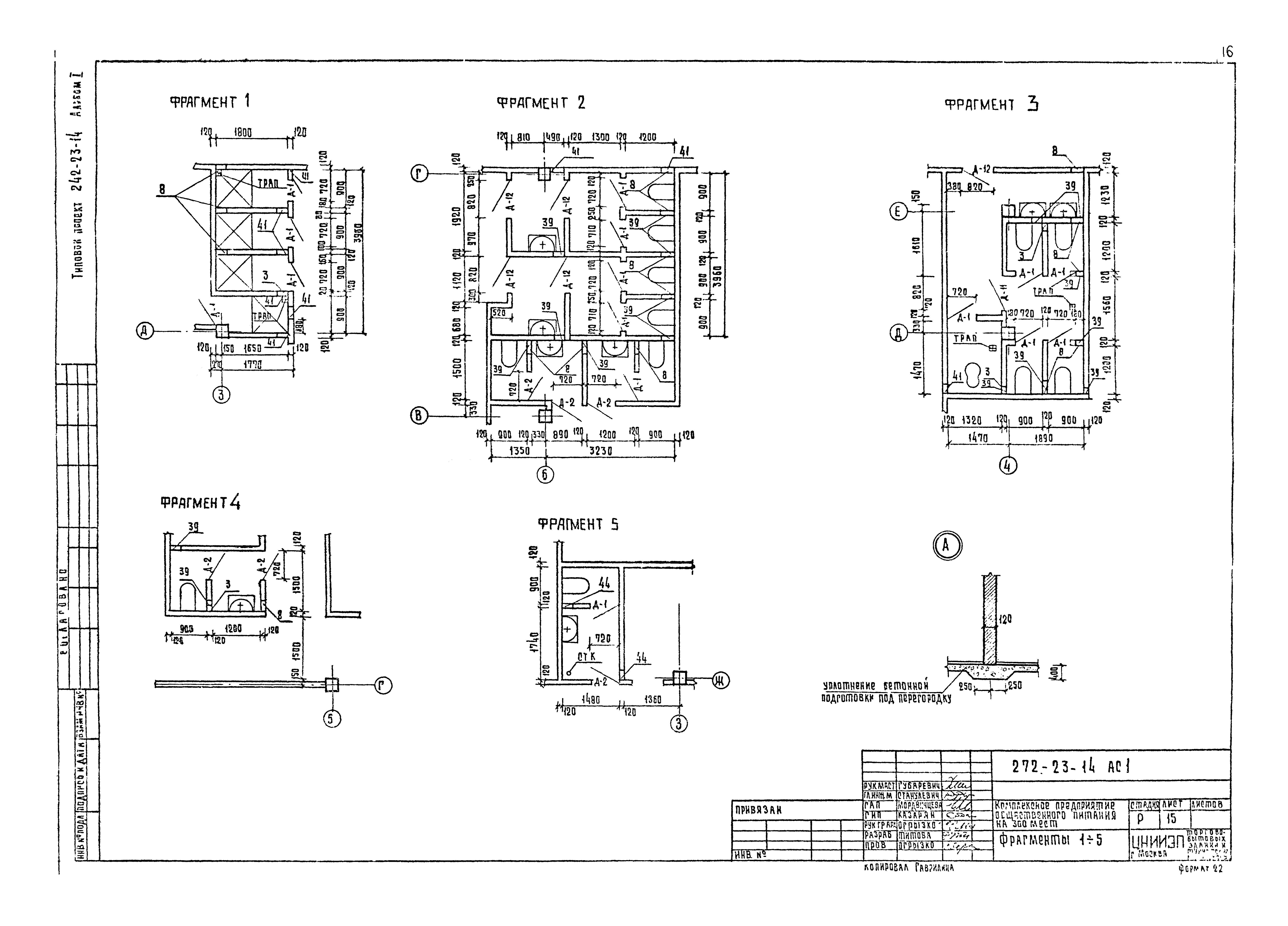
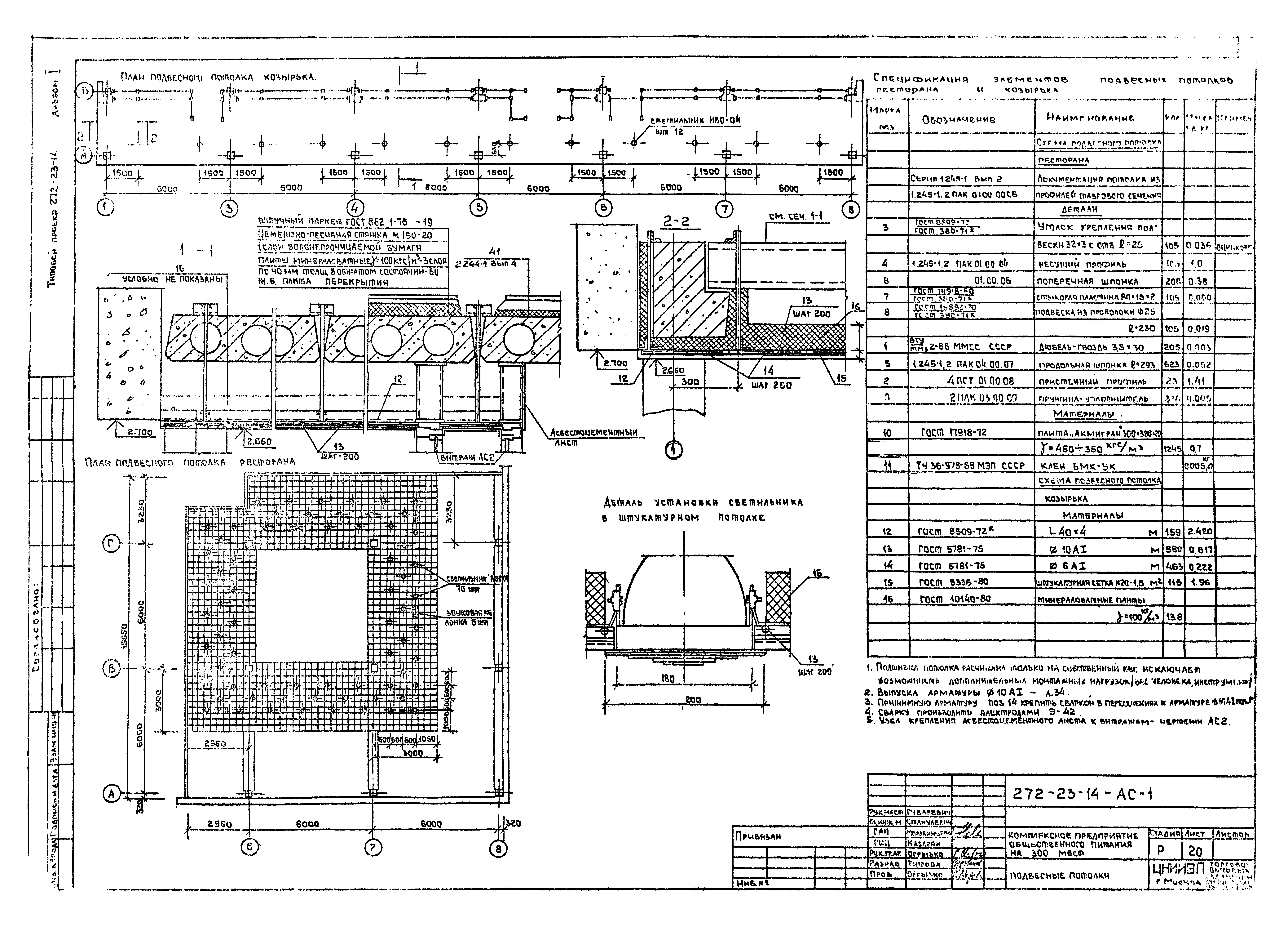
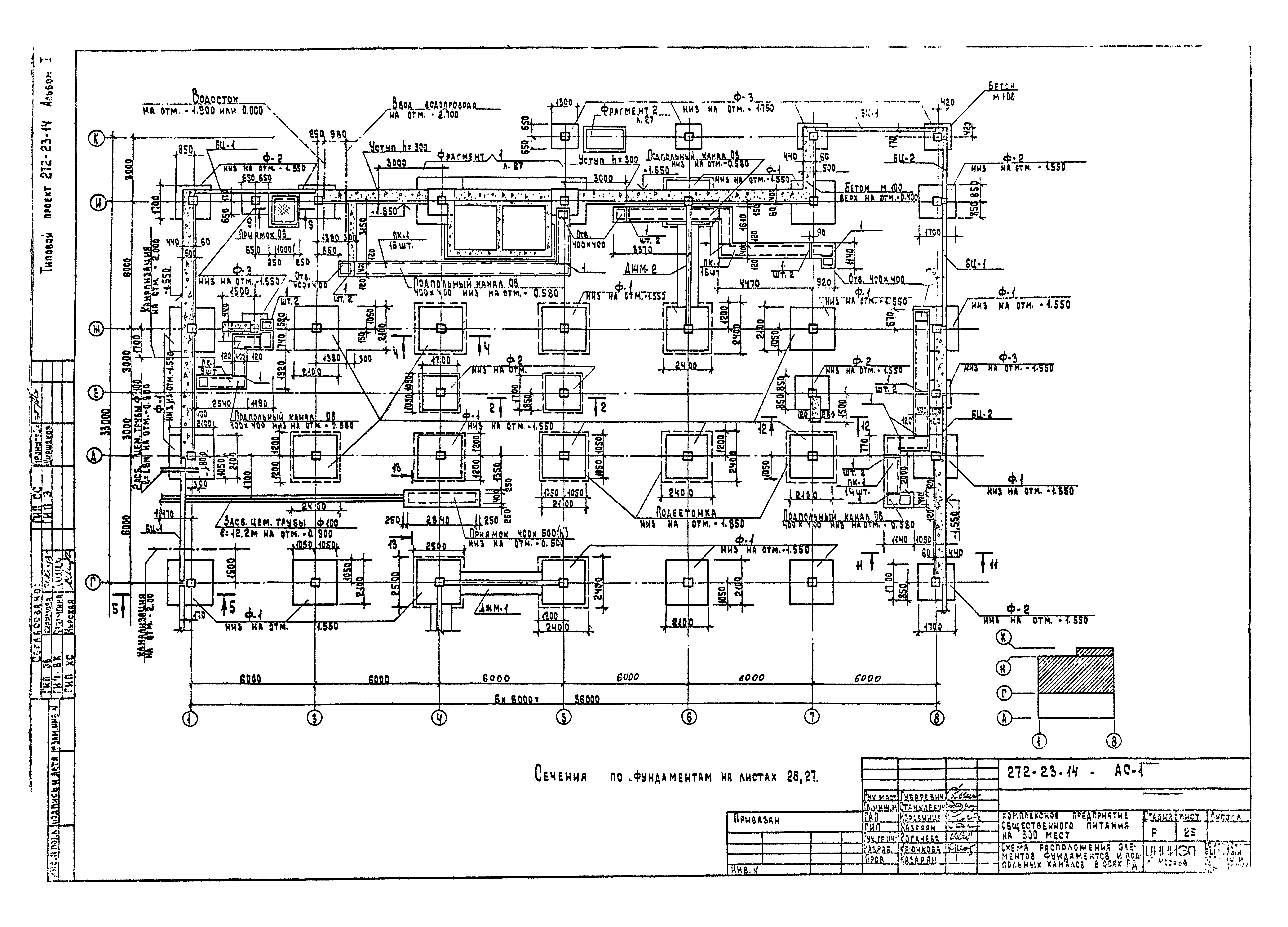
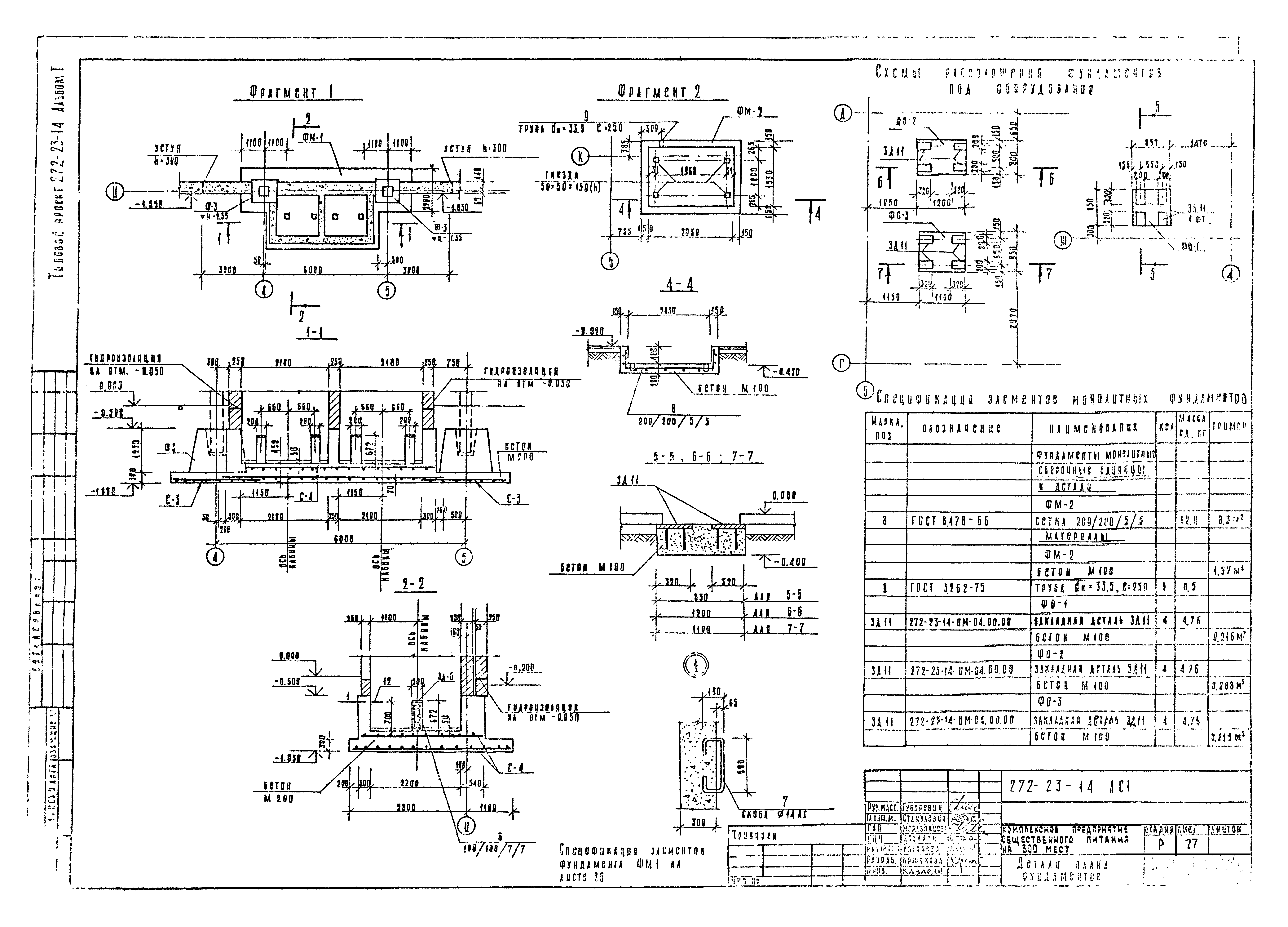
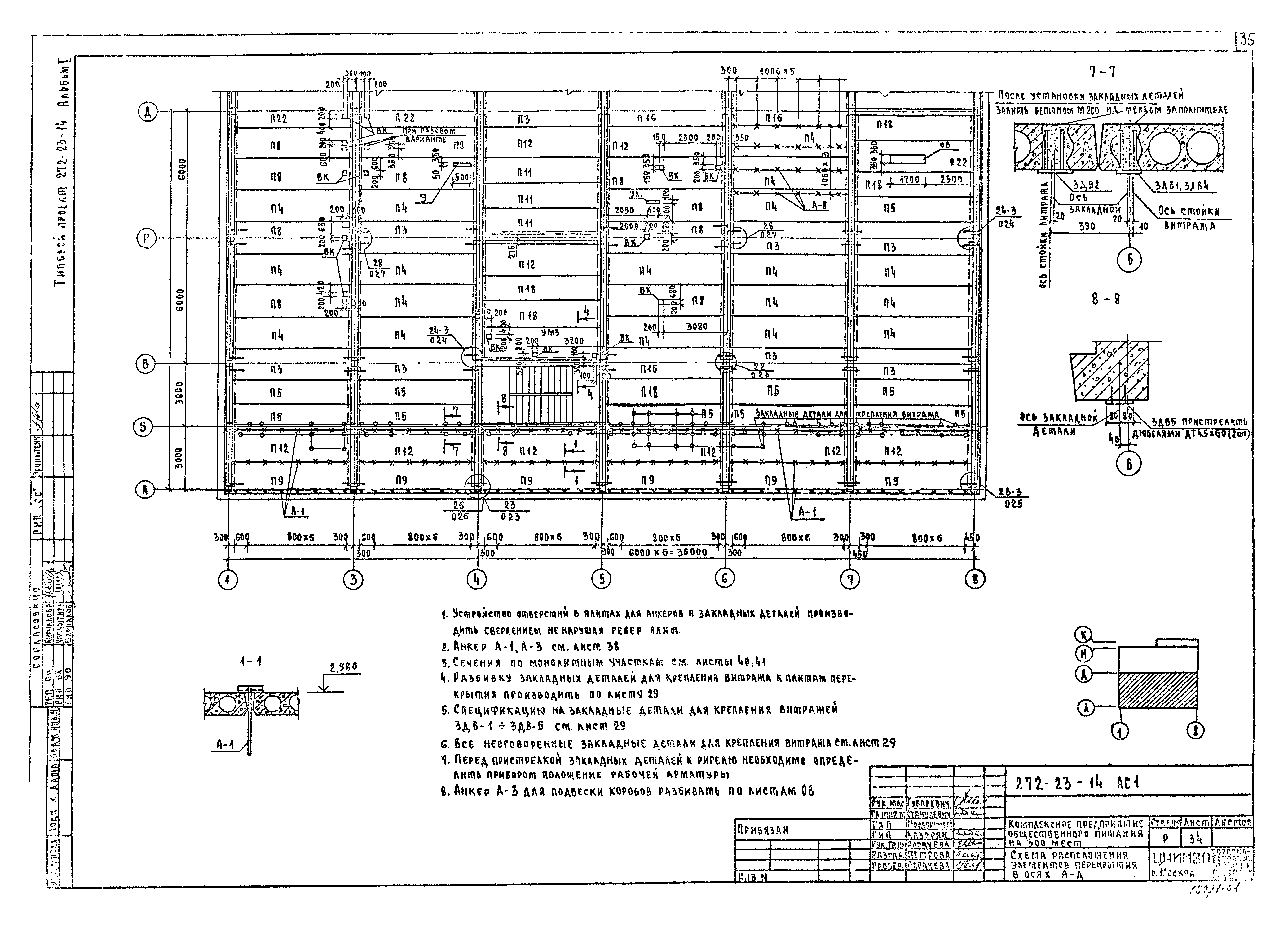
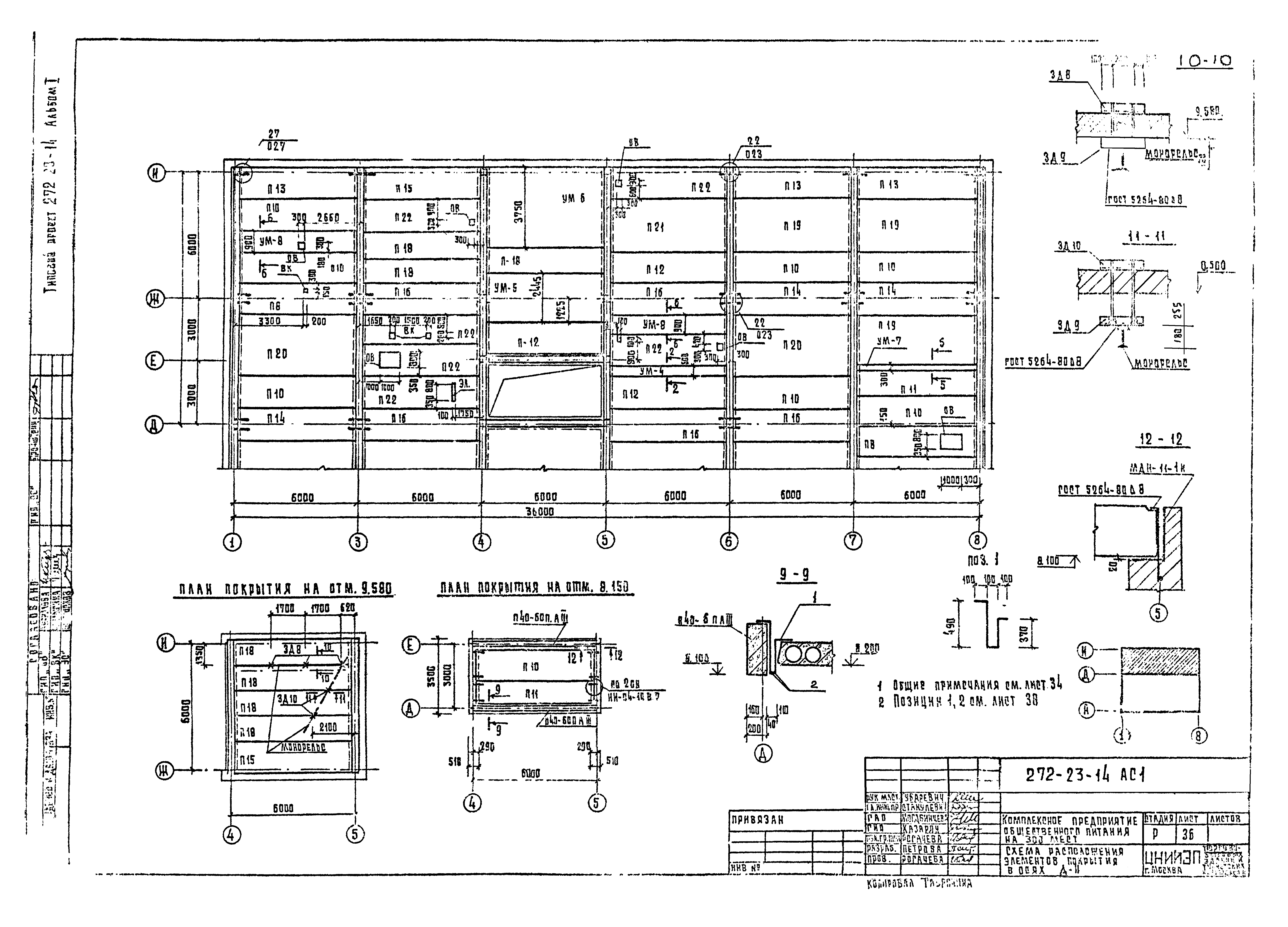
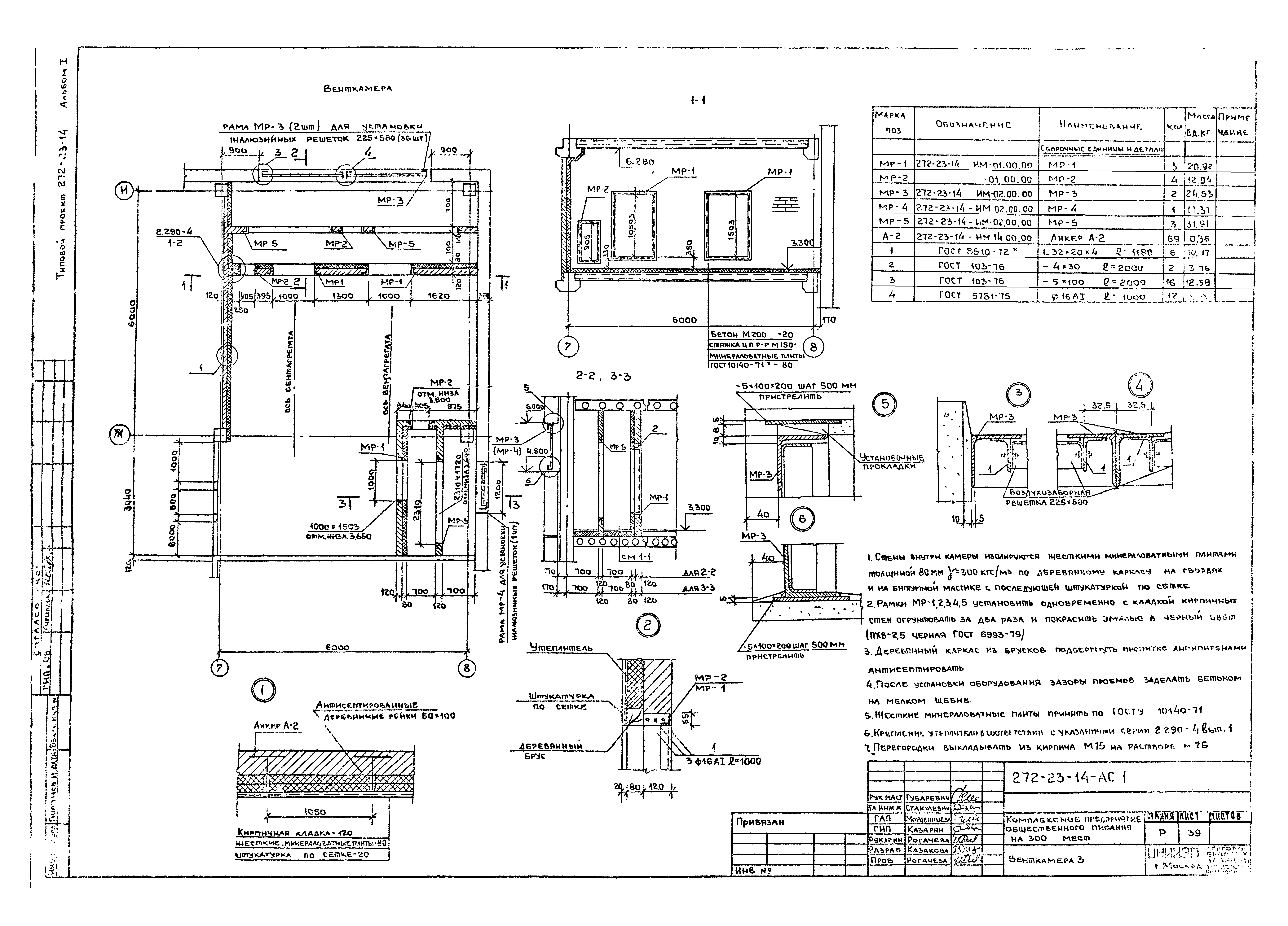
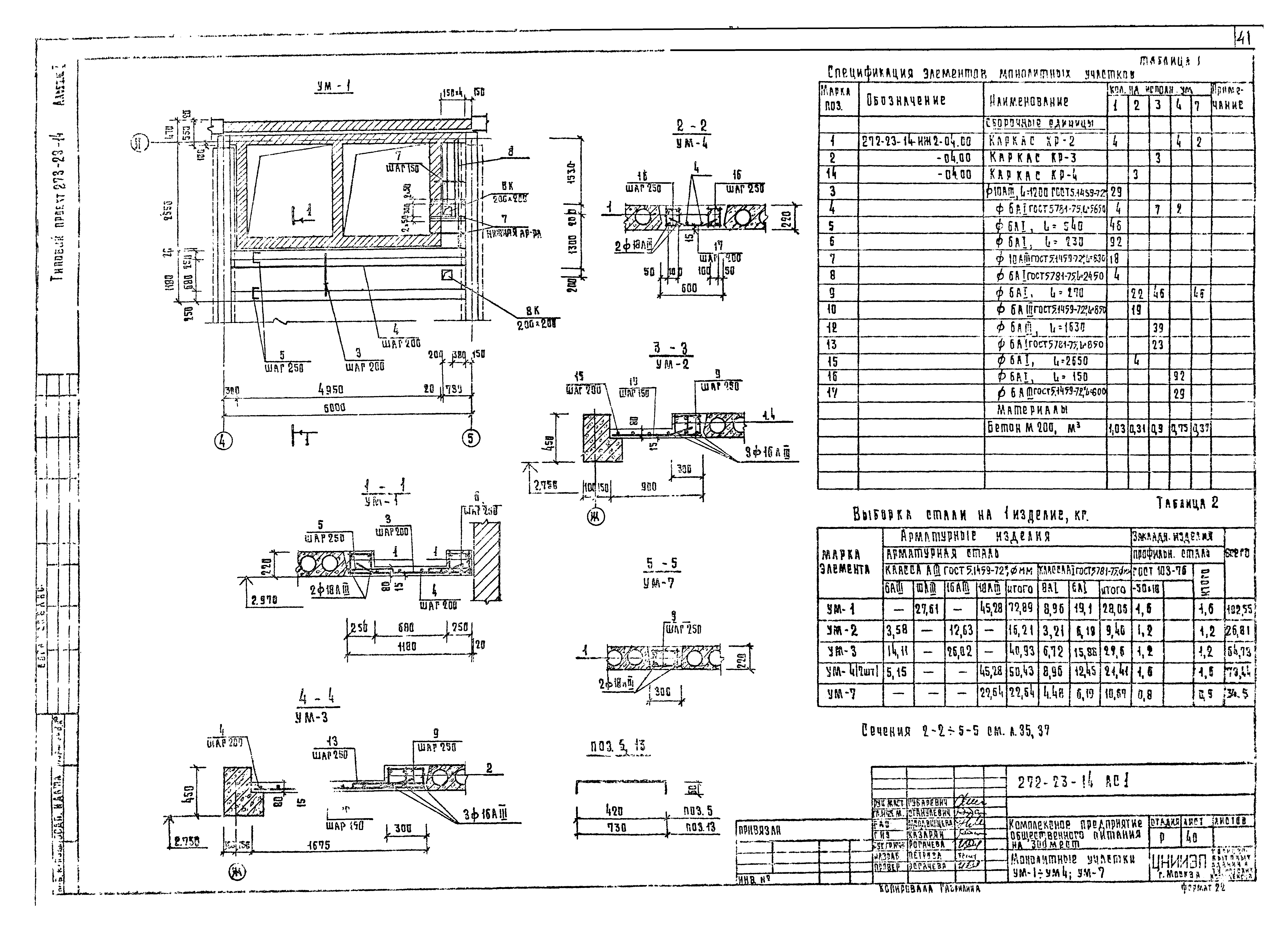
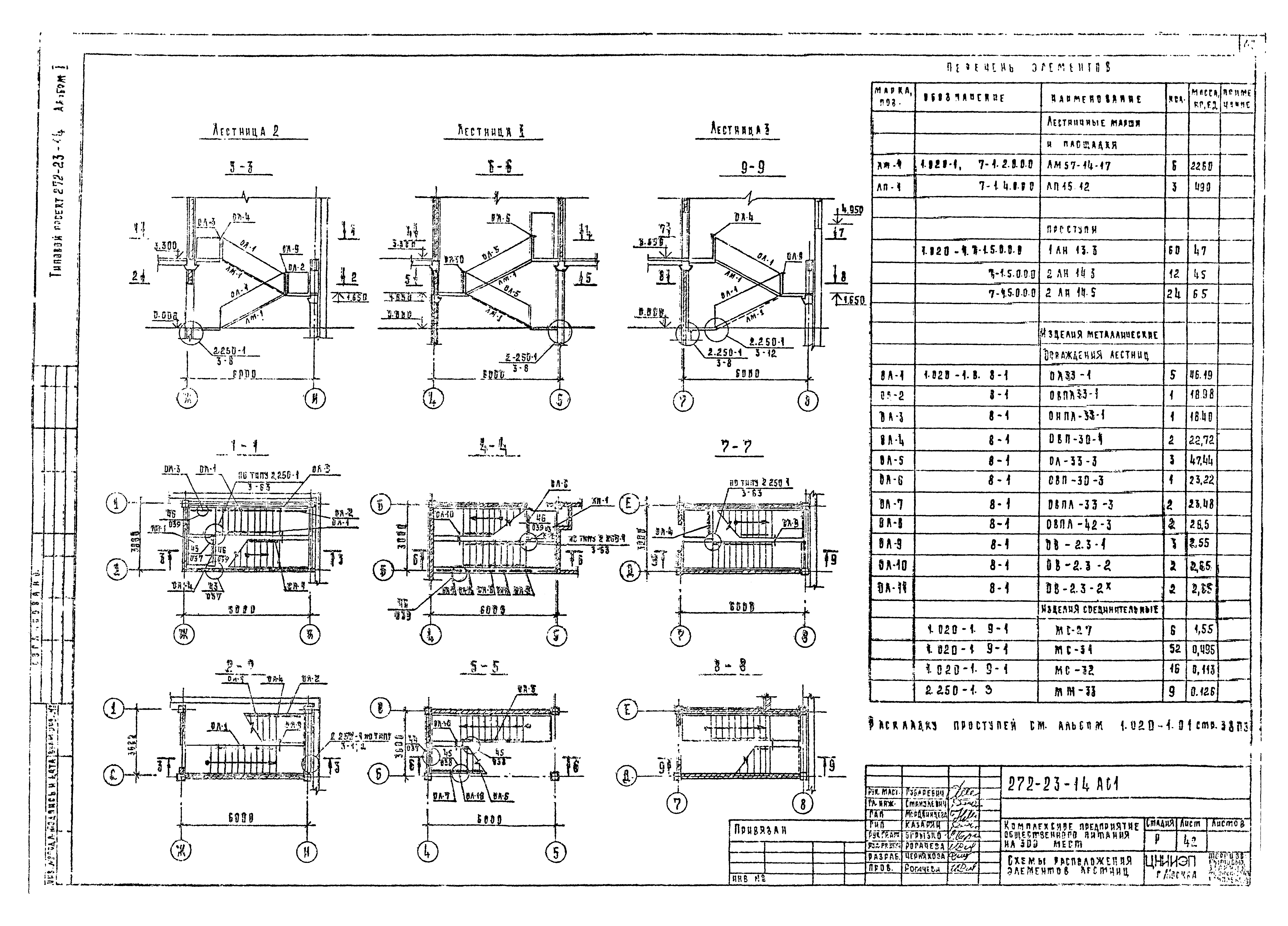
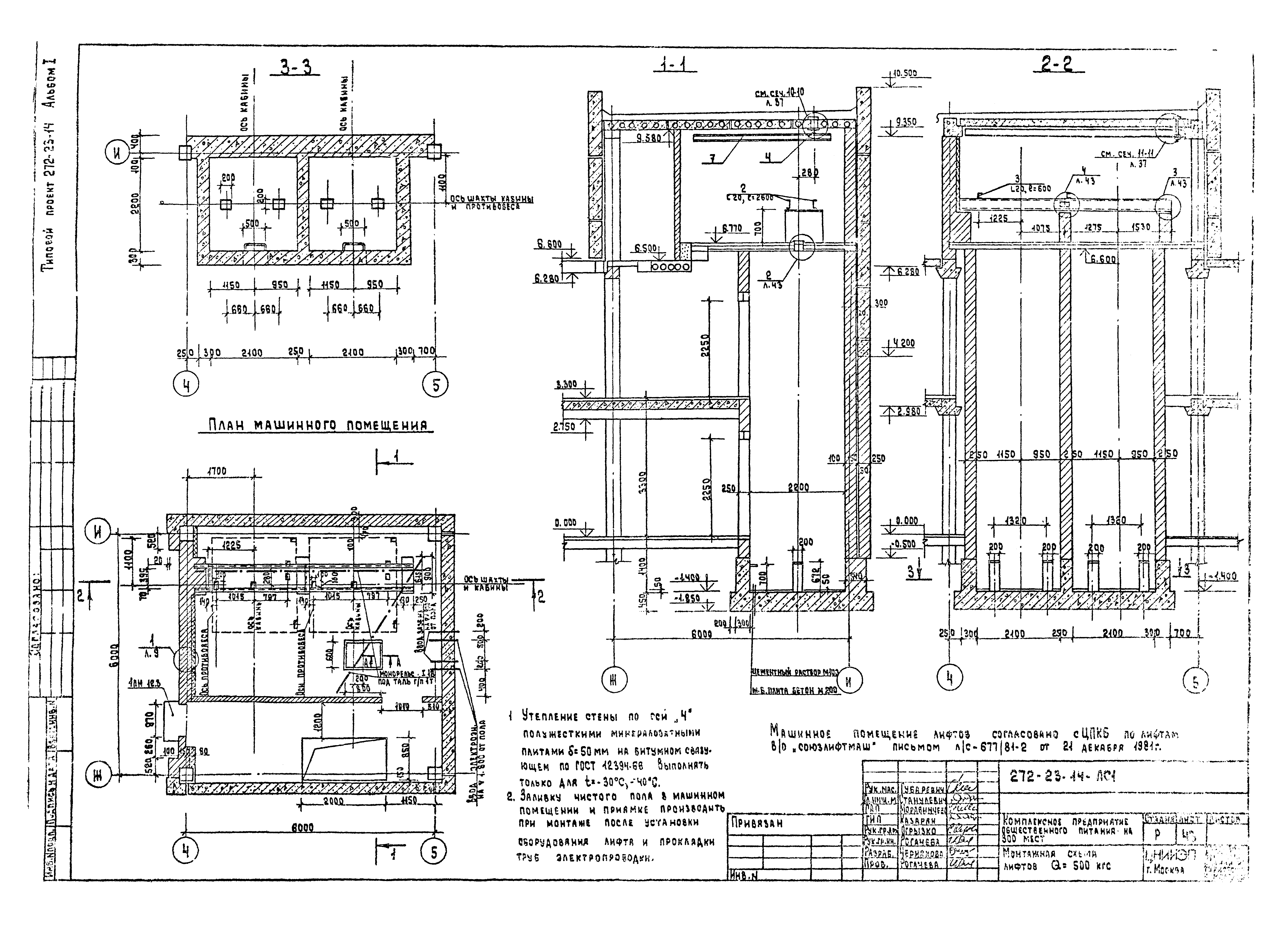
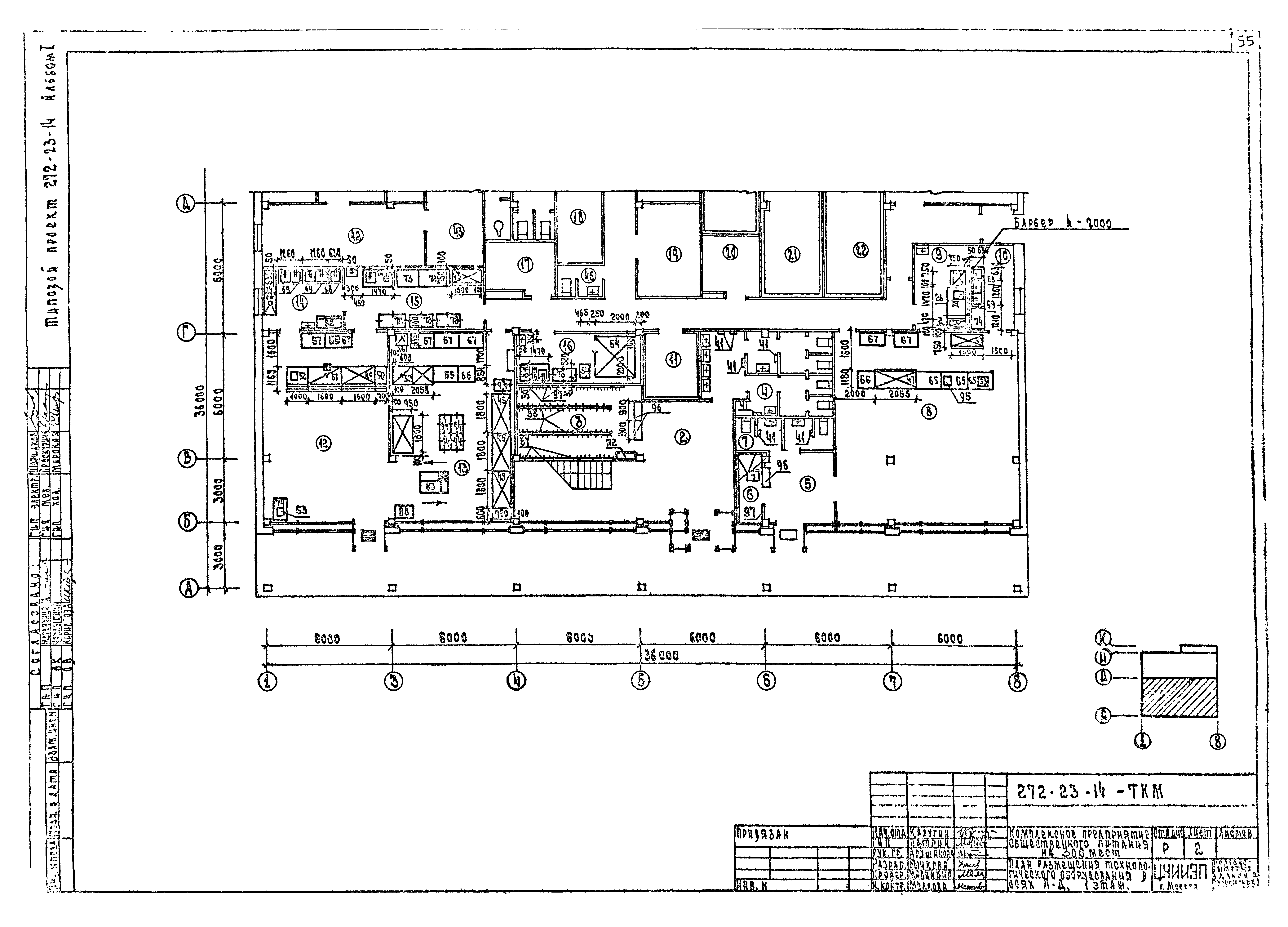
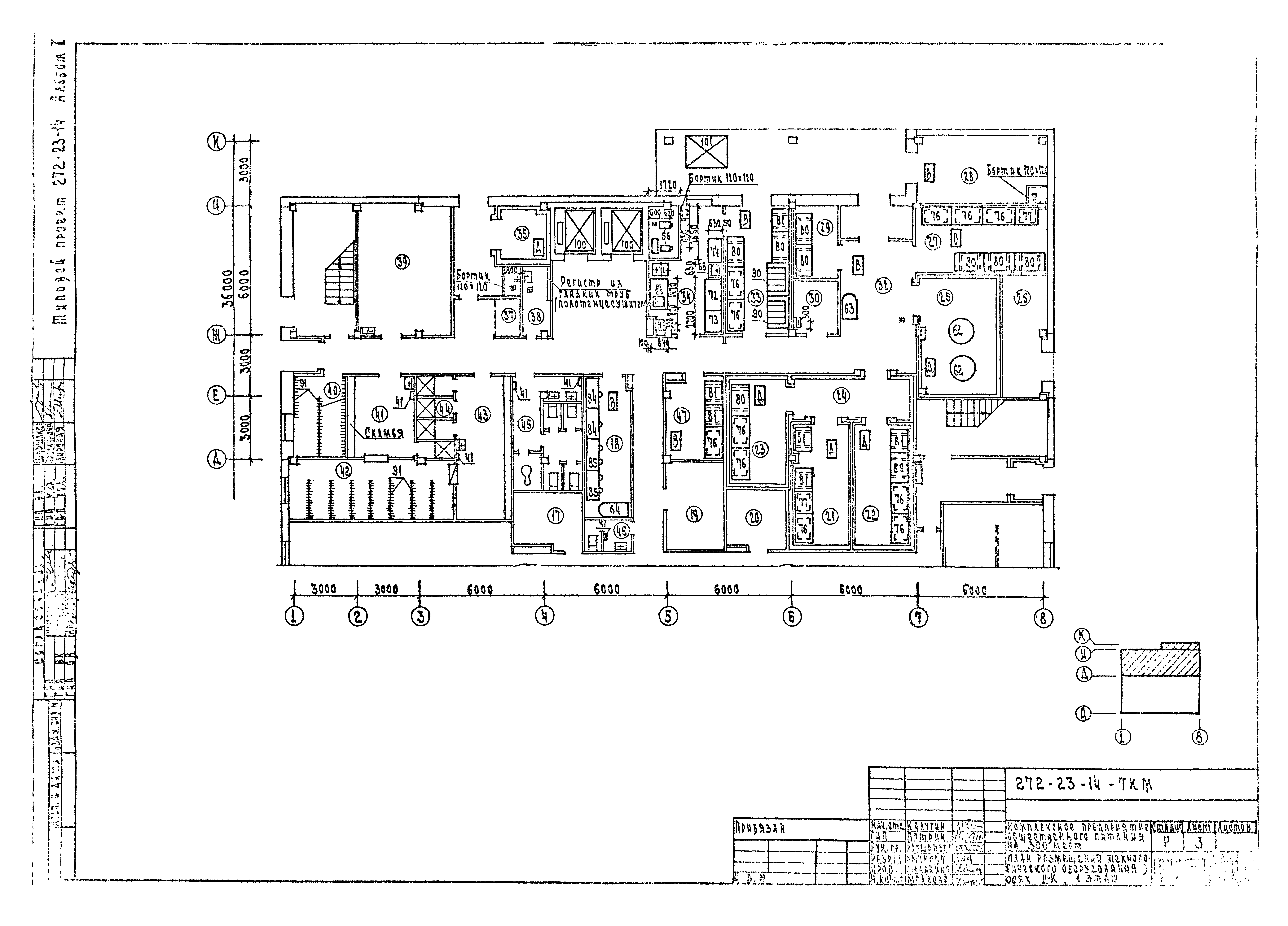
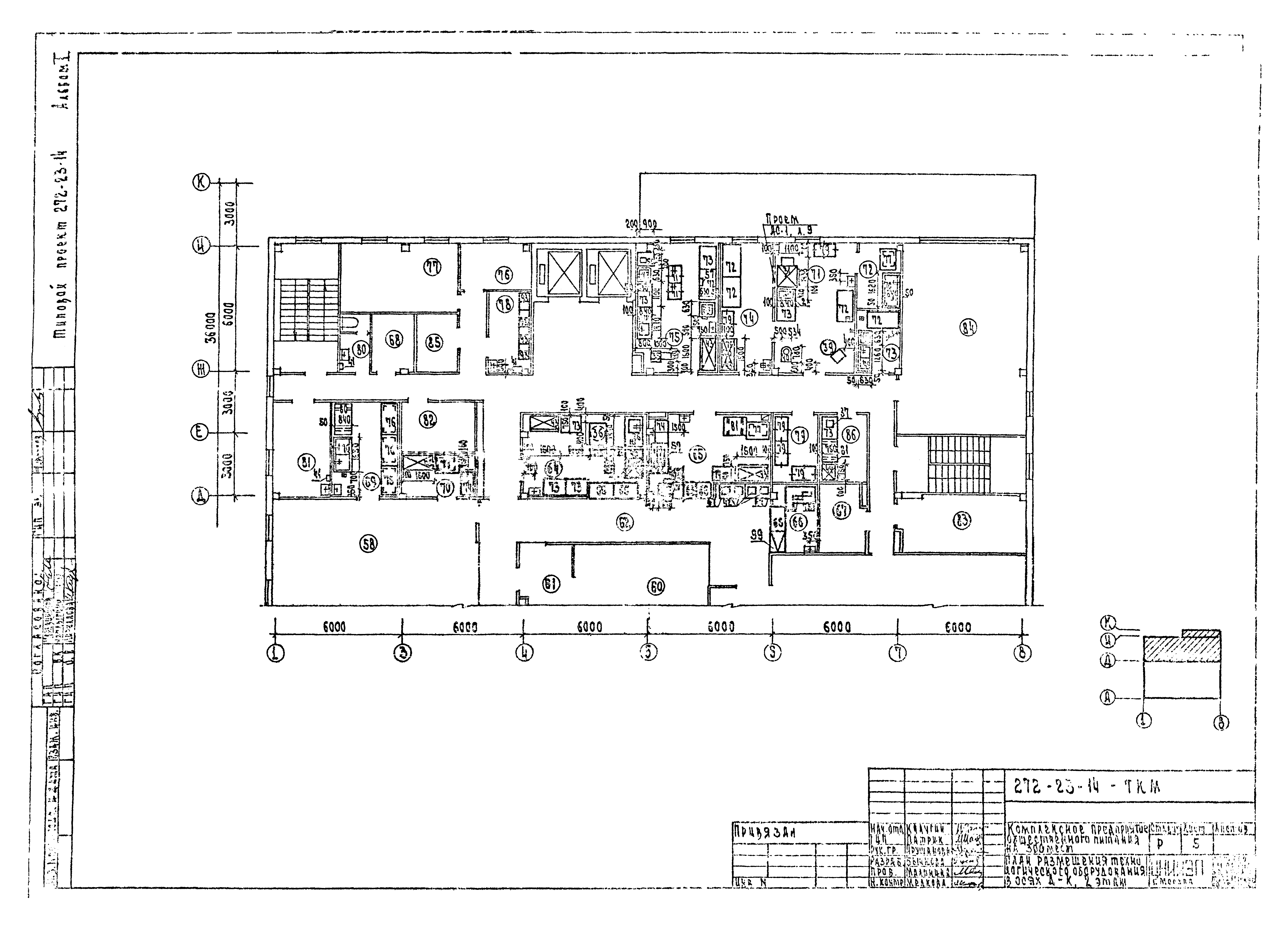
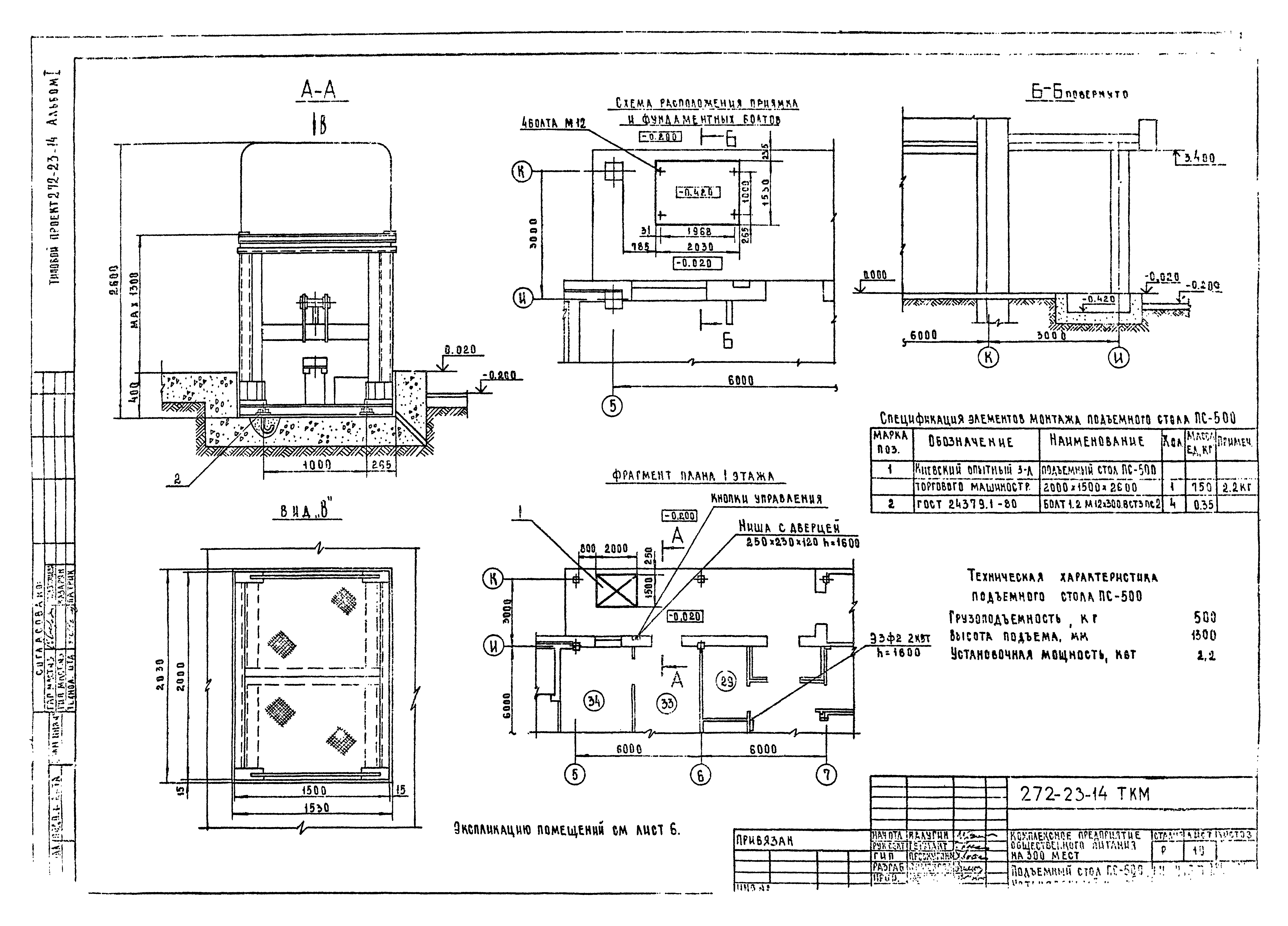
| Оглавление: | Чертежи основного комплекта марки АС1 Общие данные Лист привязки План 1 этажа в осях А - Д План 1 этажа в осях Д - К План 2 этажа в осях А - Д План 2 этажа в осях Д - К Спецификация элементов планов. Экспликация отверстий План крыши Разрезы 1-1, 2-2 Фасады 1 - 8; 8 - 1 Фасады А - К; К - А Фрагменты 1 - 5 Фрагменты 6, 7 Ведомость отделки помещений Развертки стен ресторана и закусочной Подвесные потолки Планы залов кафе, ресторана, закусочной, пивного бара с расстановкой оборудования Эстрада Схема расчетных нагрузок на фундаменты Схема расположения элементов фундаментов и подпольных каналов в осях А - Г Схема расположения элементов фундаментов и подпольных каналов в осях Г - Д Элементы сечений фундаментов Детали плана фундаментов Монолитные фундаменты под диаграммы жесткости Схема расположения закладных деталей для крепления витражей Схема расчетных нагрузок на перекрытие над 1 этажом Схема расположения элементов каркаса 1 этажа Схема расположения элементов каркаса покрытия Схема расположения элементов каркаса для стен из ячеистого бетона Схема расположения элементов перекрытия в осях А - Д Схема расположения элементов перекрытия в осях Д- К Схема расположения элементов покрытия в осях А - Д Схема расположения элементов покрытия в осях Д - И Спецификация плит перекрытия, опорных подушек Венткамера Монолитные участки УМ1 - УМ4; УМ7 Монолитные участки УМ5, УМ6, УМ8 Схемы расположения элементов лестниц Монтажная схема лифтов Q = 500 кгс Развертка стен лифтов Чертежи на заказ лифтов Схема расположения элементов перемычек на 1 этаже Схема расположения элементов перемычек на 2 этаже Схемы расположения панелей стен из легкого бетона Схемы расположения панелей стен из ячеистого бетона Конструкция асбестоцементных воздуховодов Чертежи основного комплекта марки ТКМ Общие данные План размещения технологического оборудования в осях А - Д, 1 этаж План размещения технологического оборудования в осях Д - К, 1 этаж План размещения технологического оборудования в осях А - Д, 2 этаж План размещения технологического оборудования в осях Д - К, 2 этаж Экспликация помещений Спецификация технологического оборудования Разводка технологических трубопроводов. План в осях Б - Ж, 7 - 8, 1 этаж. Схема. Спецификация Подъемный стол ПС-500. Установочный чертеж Чертежи основного комплекта марки ХС Общие данные Планы охлаждаемых камер 1 этажа Разрезы 1-1, 2-2, 3-3, 4-4. Схемы хладоносных трубопроводов холодильных машин ХМ1-9, ФАК-1,5 Чертежи основного комплекта марки АС2 Общие данные Спецификация к схемам расположения элементов витражей, тамбуров Схема расположения витражей по оси Б Схема расположения элементов тамбуров. Монтажный узел XXIII Монтажные узлы XXIV; VI; VII; VIII; IX; X; XI; XII; XIII; XIV Монтажные узлы XV; XVI; XVII; XVIII; XIX; XX; XXI; XXII |
| Разработан: | ЦНИИЭП торгово-бытовых зданий и туристских комплексов |
| Утверждён: | 04.08.1980 Госгражданстрой (Gosgrazhdanstroy 201) |









































































