Скачать Типовой проект 221-1-384.85 Альбом I. Архитектурно-строительные решенияДата актуализации: 01.01.2021
|
| Обозначение: | Типовой проект 221-1-384.85 |
| Обозначение англ: | 221-1-384.85 |
| Статус: | действует |
| Название рус.: | Альбом I. Архитектурно-строительные решения |
| Дата добавления в базу: | 01.09.2013 |
| Дата актуализации: | 01.01.2021 |
| Дата введения: | 27.03.1985 |
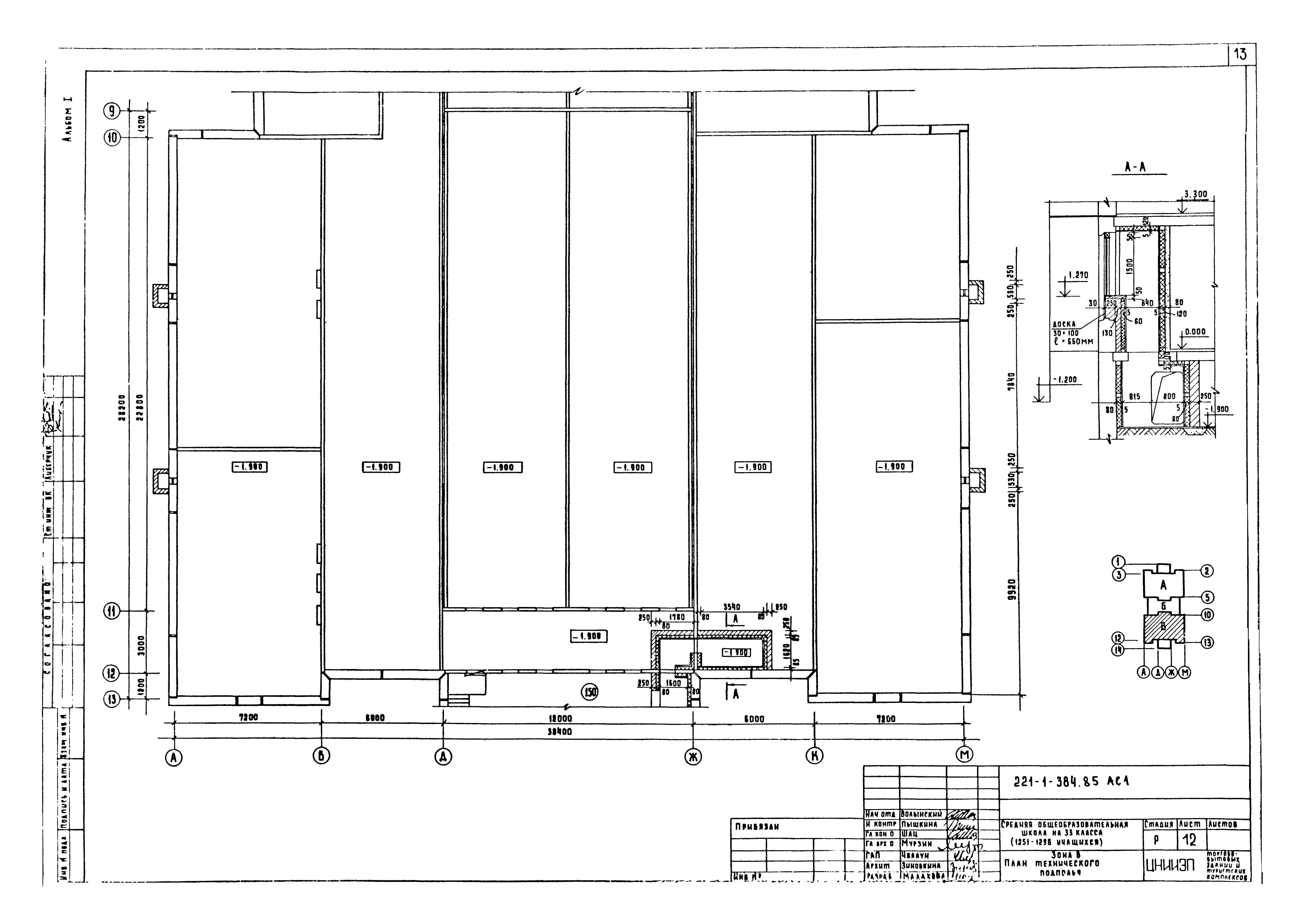
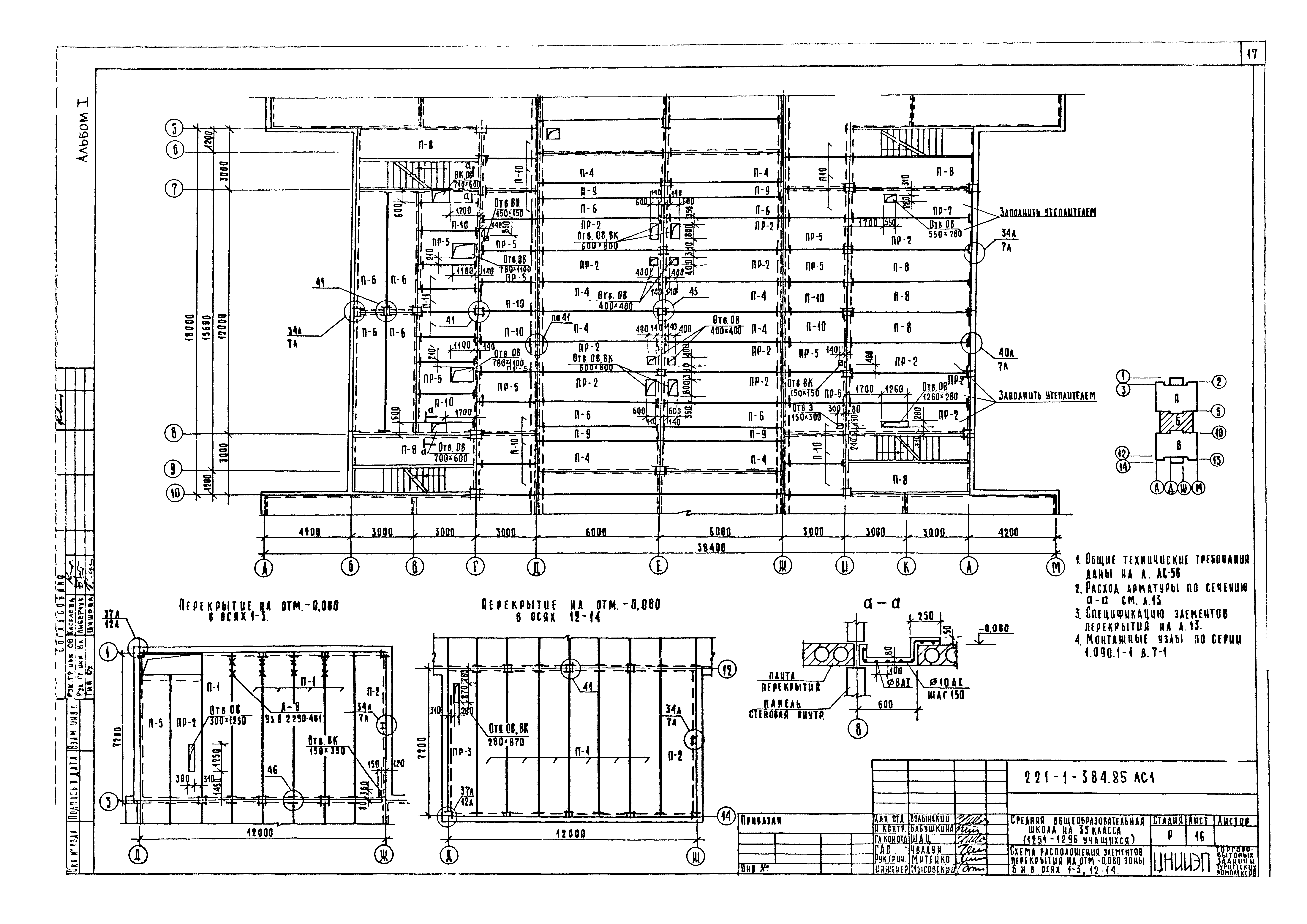
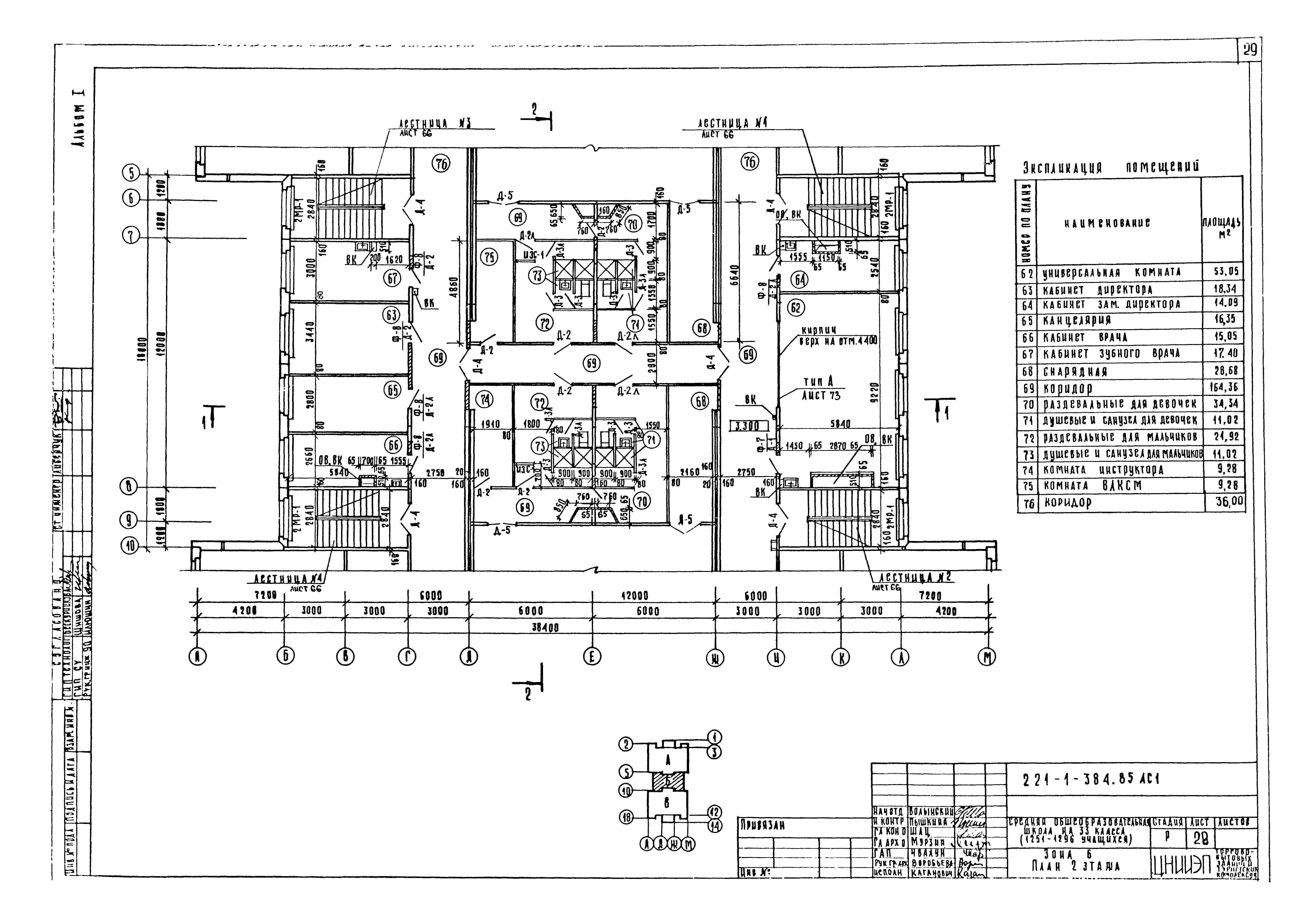
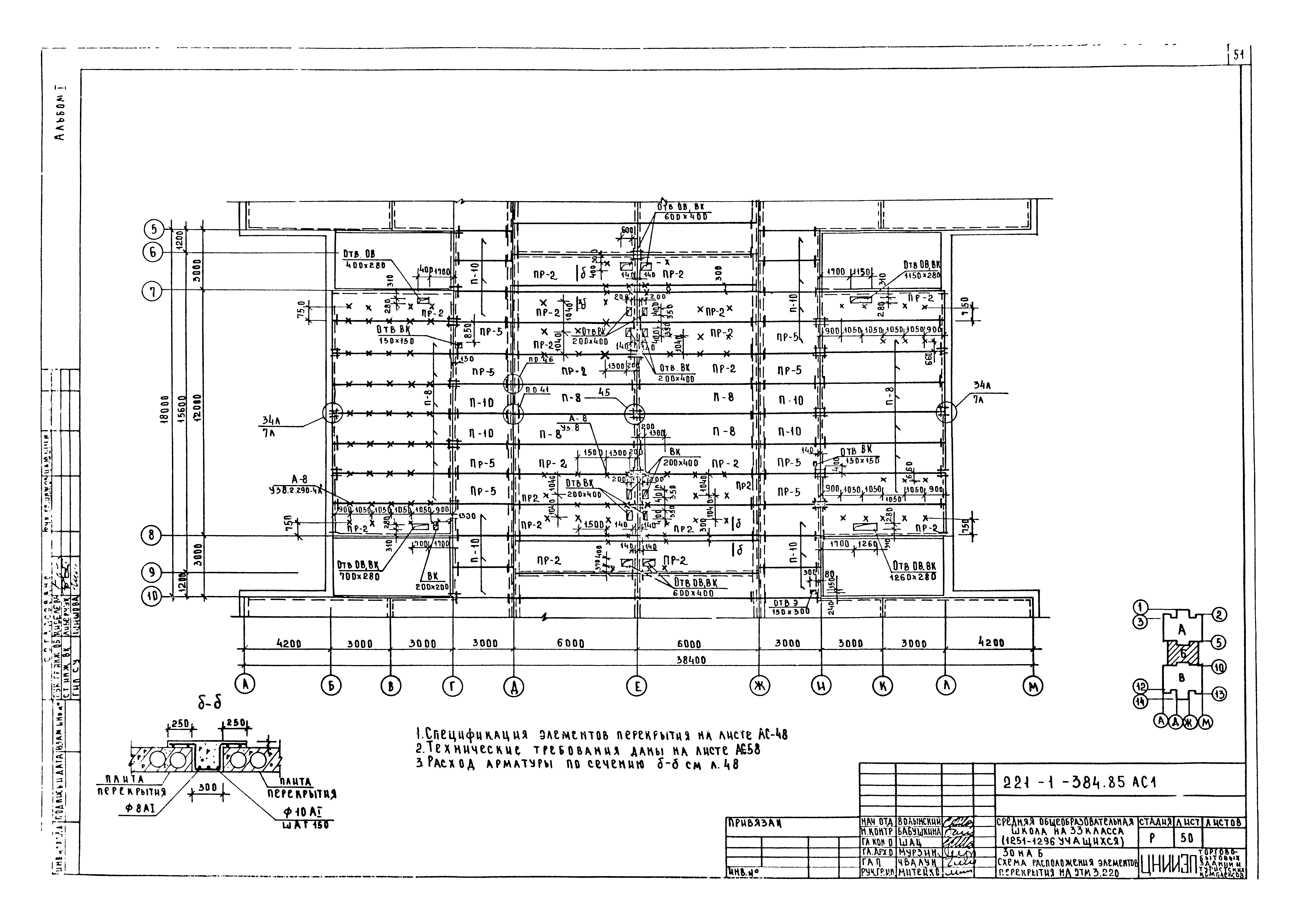
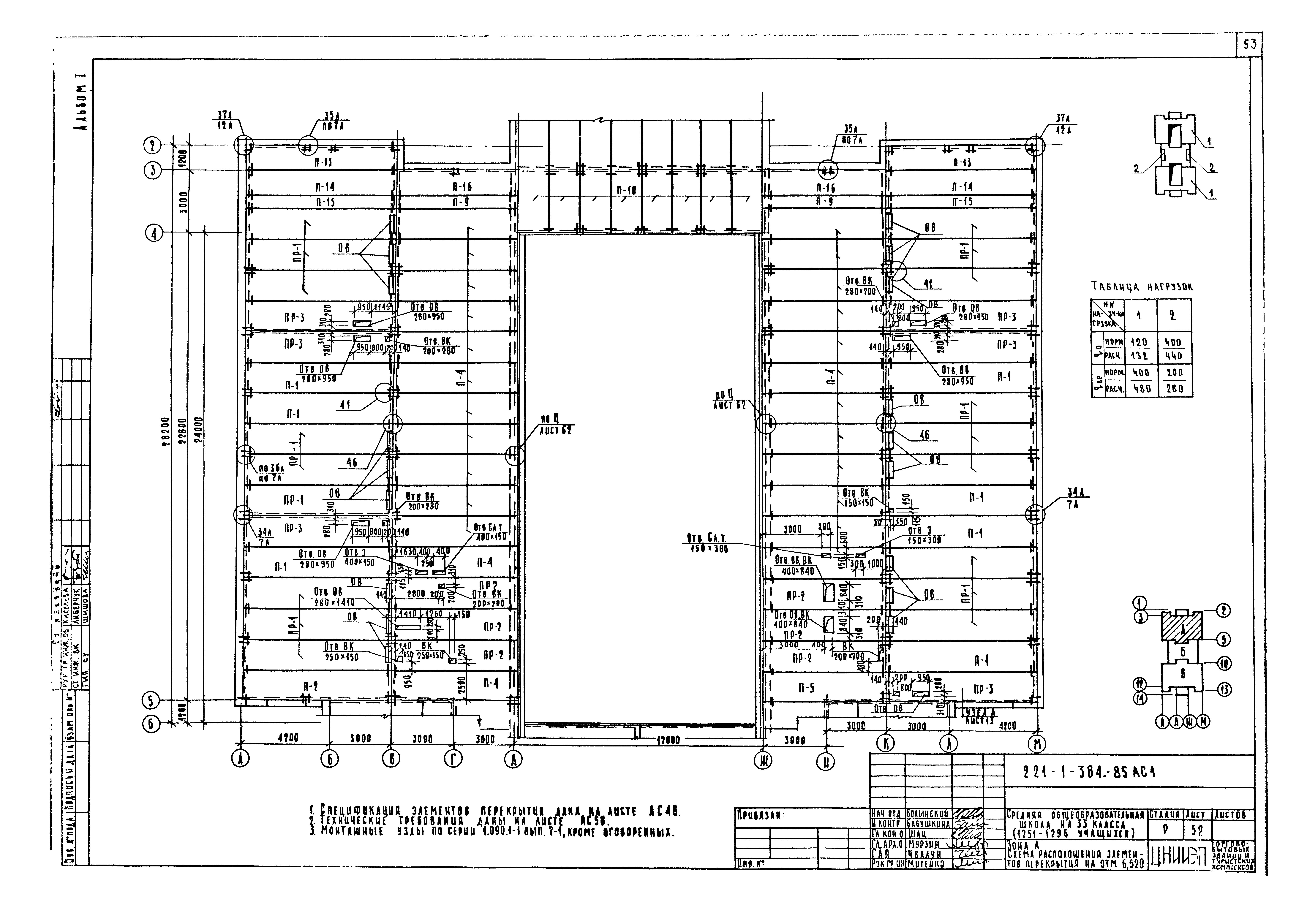
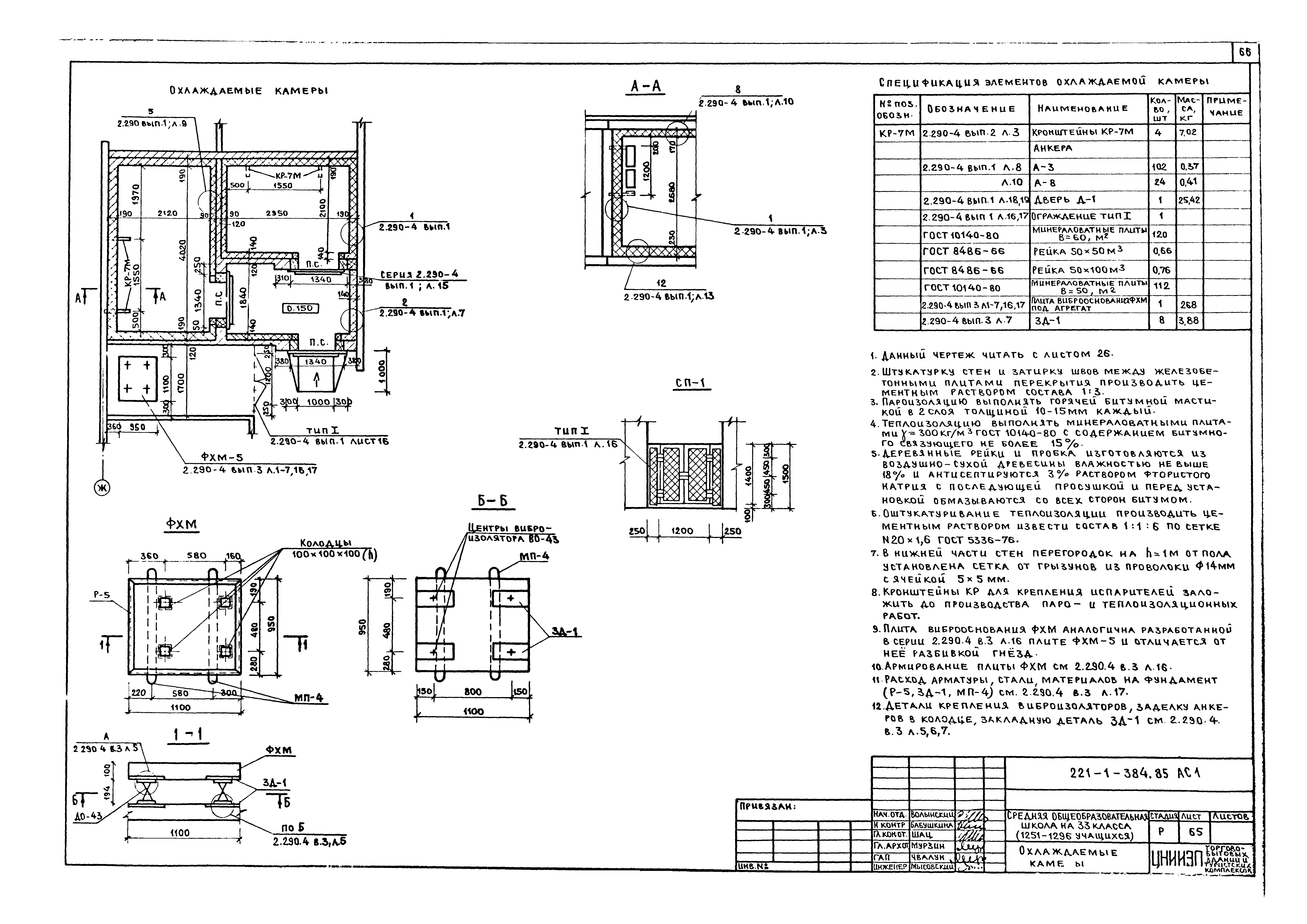
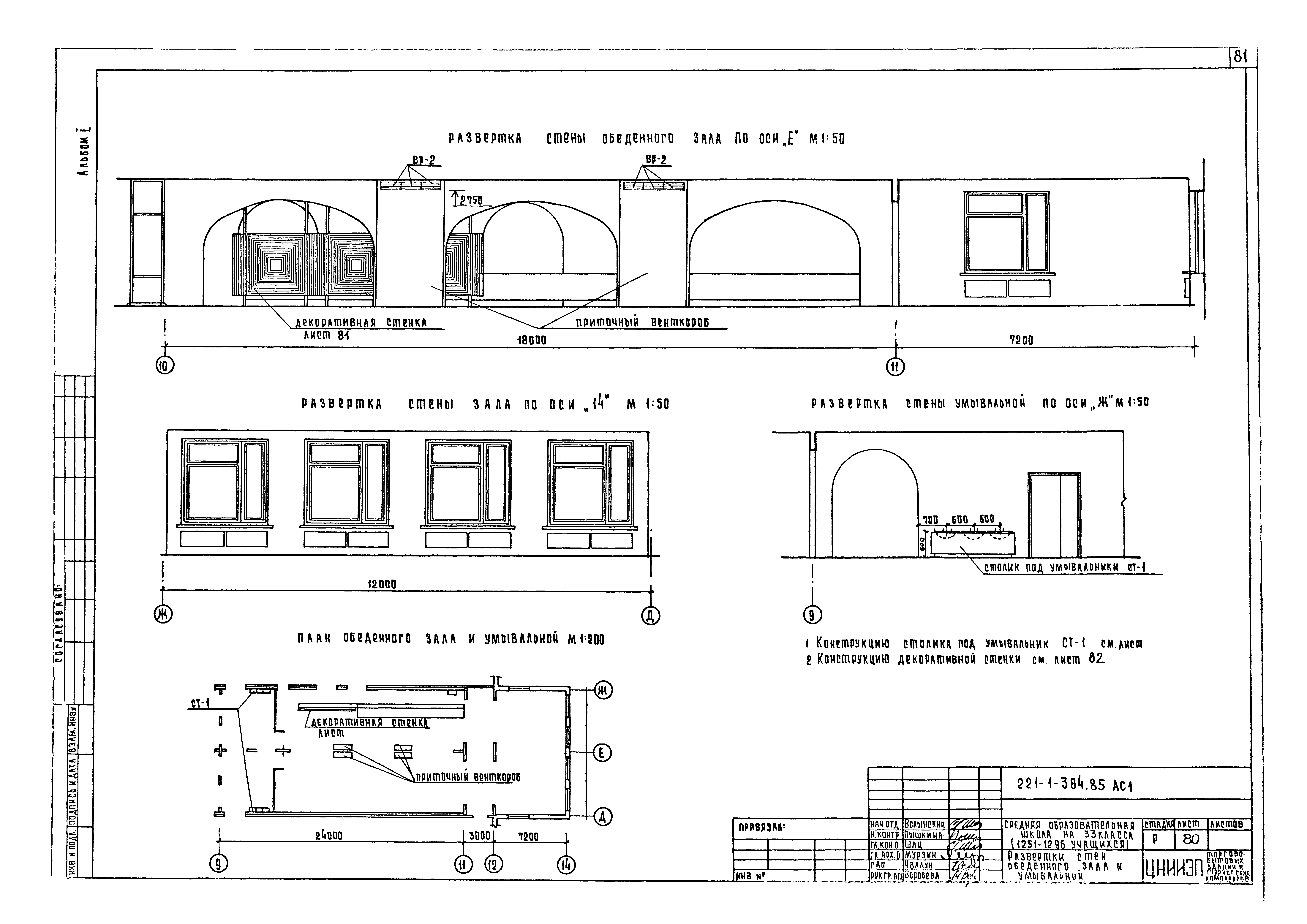
| Оглавление: | Общие данные Схема генерального плана Схемы нагрузок на элементы фундаментов Схема расположения элементов фундаментов Сечения и развертки к схеме расположения элементов фундаментов Зона А. План технического подполья Зона Б. План технического подполья. Планы подвала в осях 1 - 3 и 12 - 14 Зона В. План технического подполья Спецификация к схемам расположения панелей стен технического подполья и перекрытий на отм. - 0.080 Схема расположения панелей наружных и внутренних стен технического подполья Зона А. Схема расположения элементов перекрытия на отм. - 0.080 Схема расположения элементов перекрытия на отм. - 0.080. Зоны Б и В в осях 1 - 3; 12 - 14 Зона В. Схема расположения элементов перекрытия на отм. - 0.080 Схемы расположения элементов входов №1 - №4. Главный вход Схемы расположения элементов входов №5 - №7 Приточные венткамеры. Развертки стен по осям 3, 4, 12, Ж, Д Фасады Вариант отделки фасадов. Фрагмент монтажной схемы фасадов в осях 5 - 7; 8 - 10 Спецификация элементов планов. Спецификация перегородок Зона А. План 1 этажа Зона Б. План 1 этажа Зона В. План 1 этажа Зона А. План 2 этажа Зона Б. План 2 этажа Зона В. План 2 этажа Зона А. План 3 этажа Зона Б. План 3 этажа Зона В. План 3 этажа Зона Б. План 4 этажа Планы 1, 2 и 3 этажей в осях 1 - 3 и 12 - 14 Фрагменты планов санузлов Разрез 1-1 Разрез 2-2. Подвесной потолок в гардеробе Разрез 3-3 Спецификация к схемам расположения наружных стеновых панелей Спецификация к схемам расположения внутренних и парапетных стеновых панелей Схема расположения панелей и внутренних стен и перегородок 1 этажа Схема расположения панелей наружных и внутренних стен и перегородок 2 этажа Схема расположения панелей наружных и внутренних стен и перегородок 3 этажа Схема расположения панелей наружных и внутренних стен и перегородок 4 этажа и парапетных панелей зоны А и В Фрагменты схем расположения перегородок Развертки внутренних стен по осям 4 - 11; Е, Д со стороны оси Е, Ж со стороны оси Е Развертки внутренних стен по осям В, Г, И, К, 3, 12, Д со стороны оси В, Ж со стороны оси К, стен жесткости Спецификация к схемам расположения элементов перекрытия Зона А. Схема расположения элементов перекрытия на отм. 3.220 Зона Б. Схема расположения элементов перекрытия на отм. 3.220 Зона В. Схема расположения элементов перекрытия на отм. 3.220 Зона А. Схема расположения элементов перекрытия на отм. 6.520 Зона Б. Схема расположения элементов перекрытия на отм. 6.520 Зона В. Схема расположения элементов перекрытия на отм. 6.520 Зона А. Схема расположения элементов покрытия на отм. 9.820 Зона Б. Схема расположения элементов покрытия на отм. 9.820 Зона В. Схема расположения элементов покрытия на отм. 9.820 Зона Б. Схема покрытия на отм. 13.120 Перекрытия на отм. 3.220; 6.220; 9.820 в осях 1 - 3; 12 - 14 Узлы А - Г; Е; М; Н; П - С Узлы Д; Ж; И; К; Л; Т Узлы У; Ф; Ш Узел Ц План кровли Охлаждаемые камеры Схема расположения контактных элементов лестниц Главный вход Входы №1 и №2 Входы №3 и №4 Подшивные потолки в тамбурах главного входа и входах №1, №2 Вентшахты ВШ-1 - ВШ-4 Пример установки вентиляционных каналов вентшахты ВШ-5 - ВШ-7 Установка остекленных перегородок типов А, Б, В Подвесной потолок на отм. 8.950. Узлы изоляции венткамеры 3 этажа, ИЭС-1 Эстрада Конструктивные элементы эстрады Ниши Э и СС. Карниз. Декоративный короб ДКЭ Развертки стен актового зала. План подвески светильников Развертки стен спортивного зала. Привязка креплений спортивного оборудования Развертка стен обеденного зала и умывальной Декоративная стенка. Стол туалетный СТ-1 Развертки стен вестибюля. Узлы крепления вешалок Развертки стен вестибюля. Установка витрины |
| Разработан: | ЦНИИЭП торгово-бытовых зданий и туристских комплексов |
| Утверждён: | 27.11.1981 Госгражданстрой (Gosgrazhdanstroy 324) |





















































































