Скачать Типовой проект 221-1-384.85 Альбом III. Отопление и вентиляцияДата актуализации: 01.01.2021
|
| Обозначение: | Типовой проект 221-1-384.85 |
| Обозначение англ: | 221-1-384.85 |
| Статус: | действует |
| Название рус.: | Альбом III. Отопление и вентиляция |
| Дата добавления в базу: | 01.09.2013 |
| Дата актуализации: | 01.01.2021 |
| Дата введения: | 27.03.1985 |
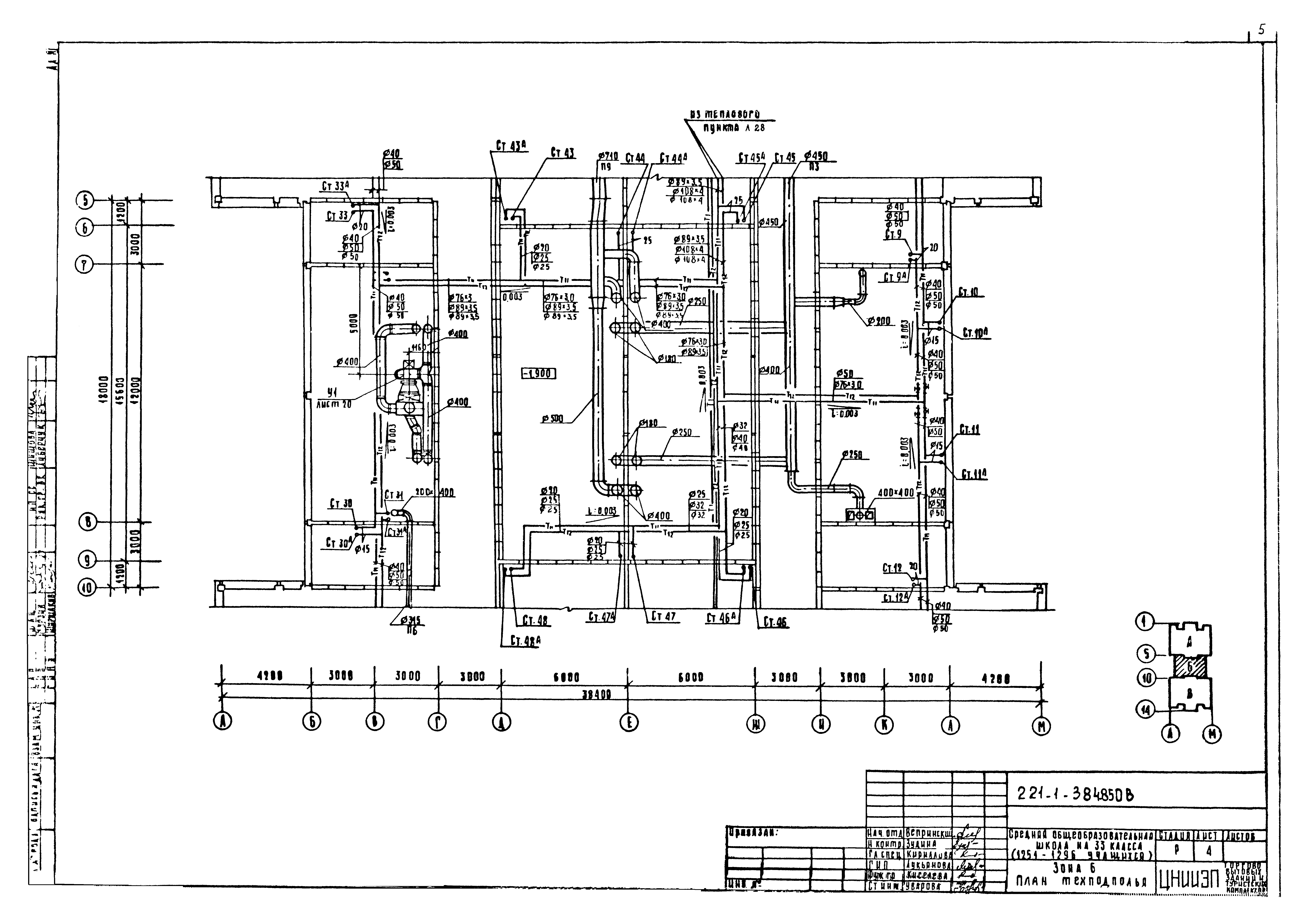
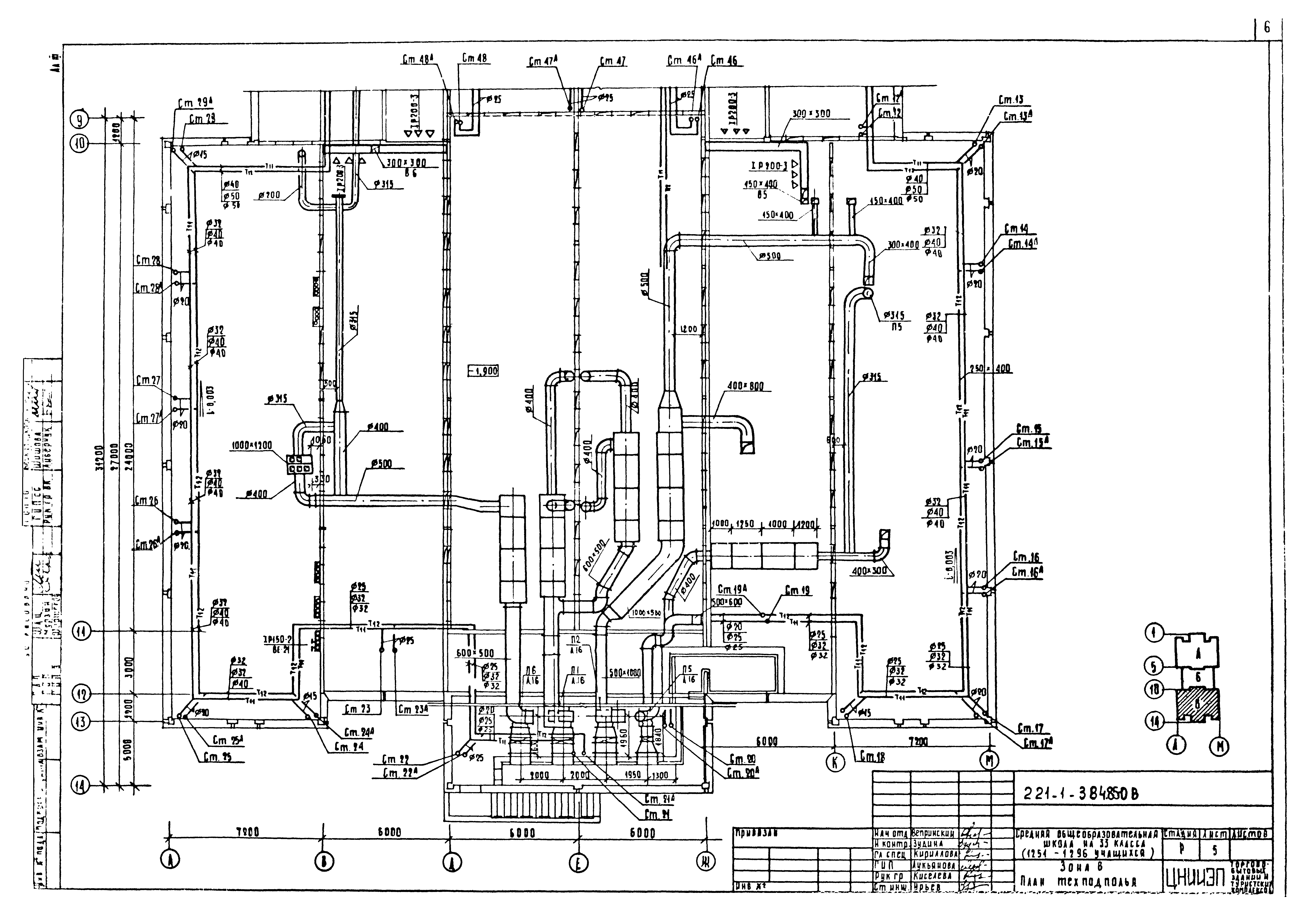
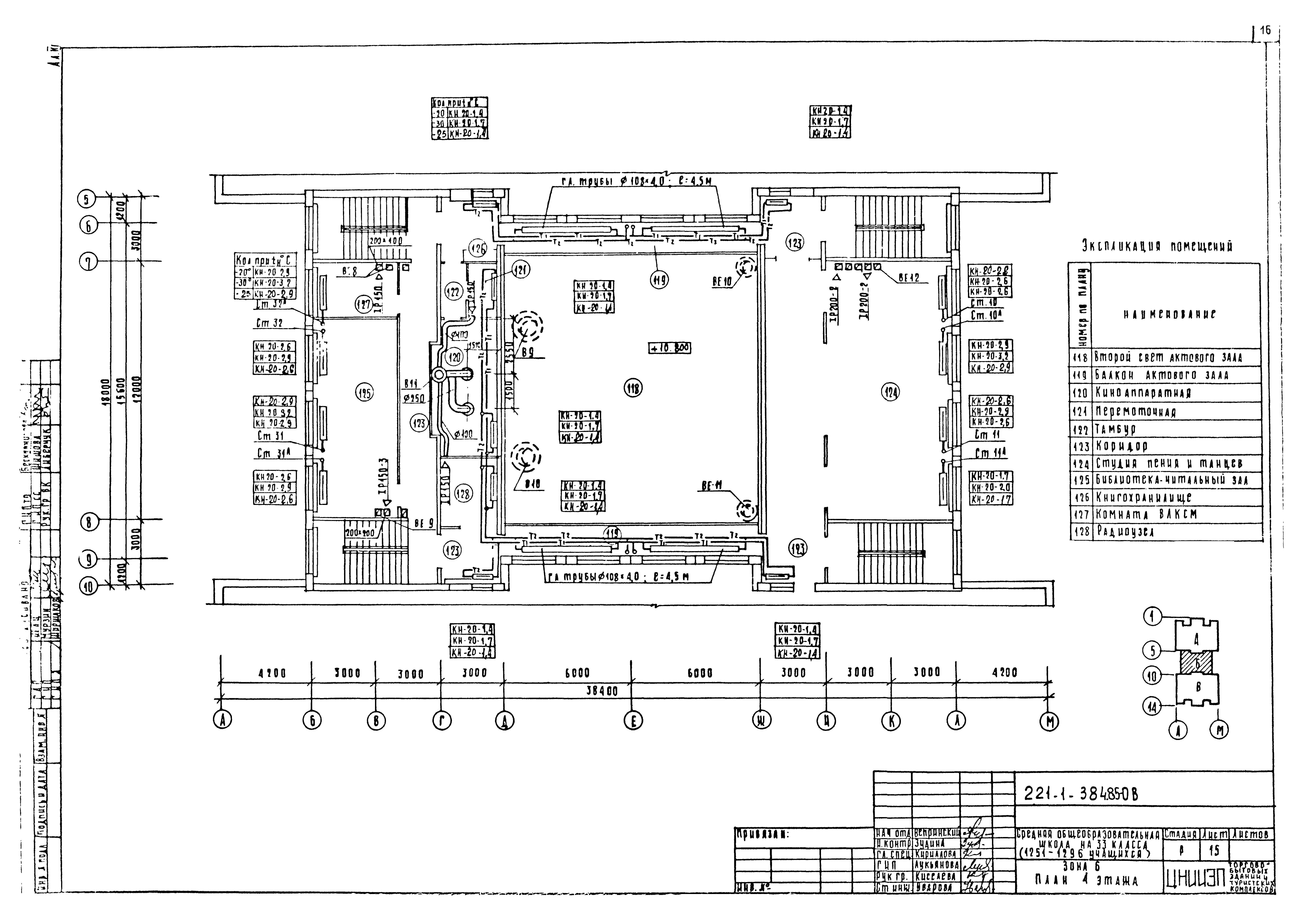
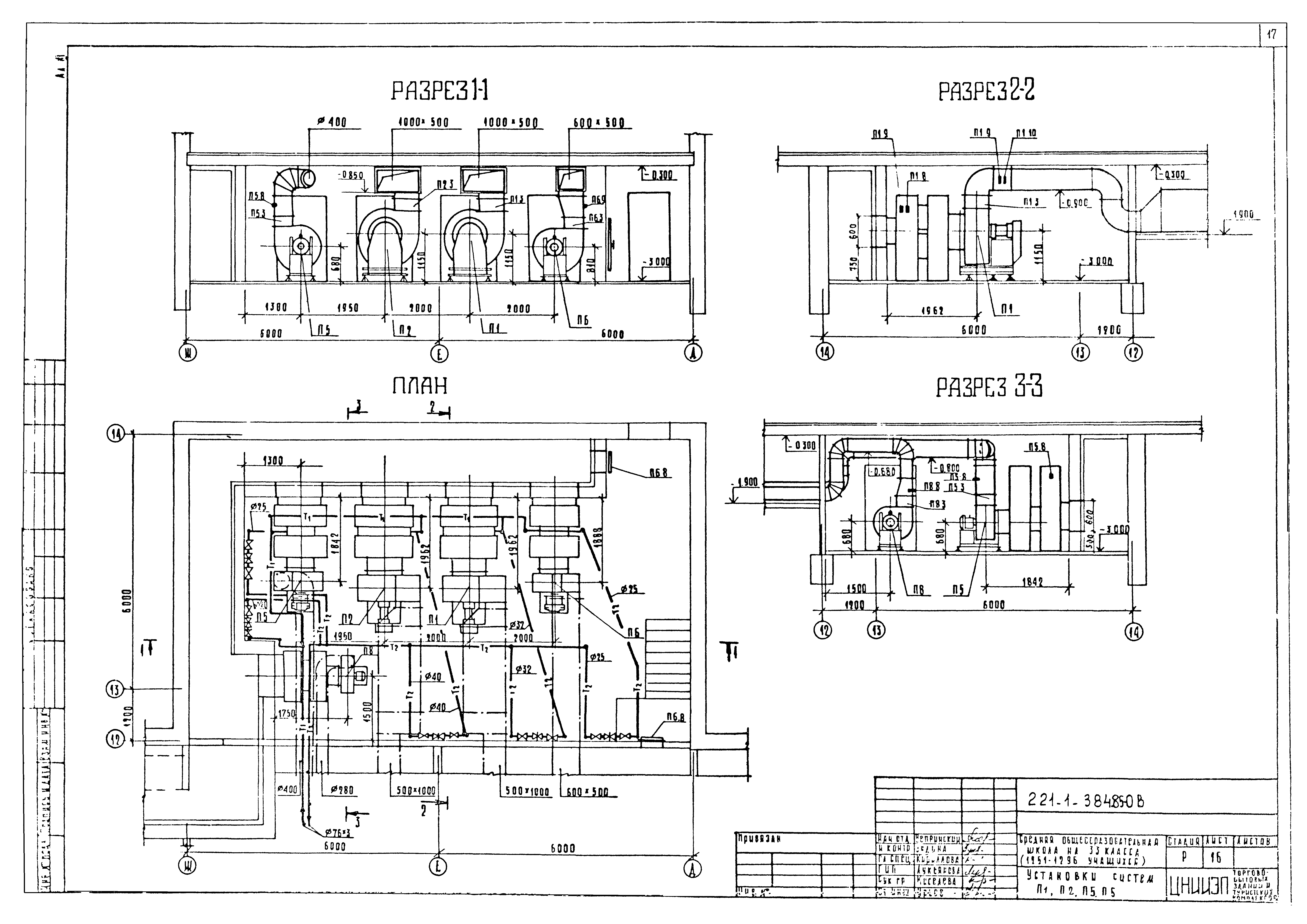
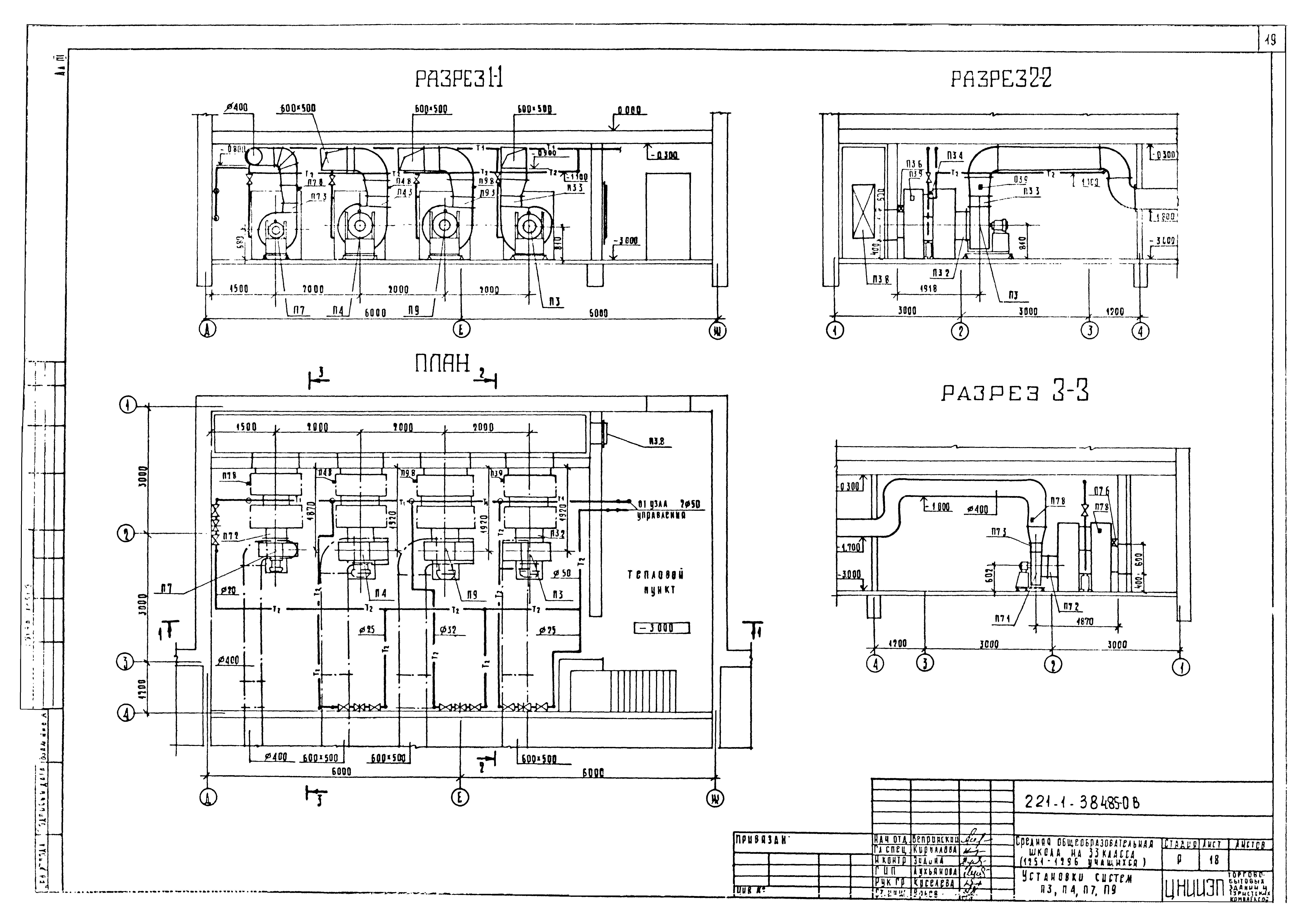
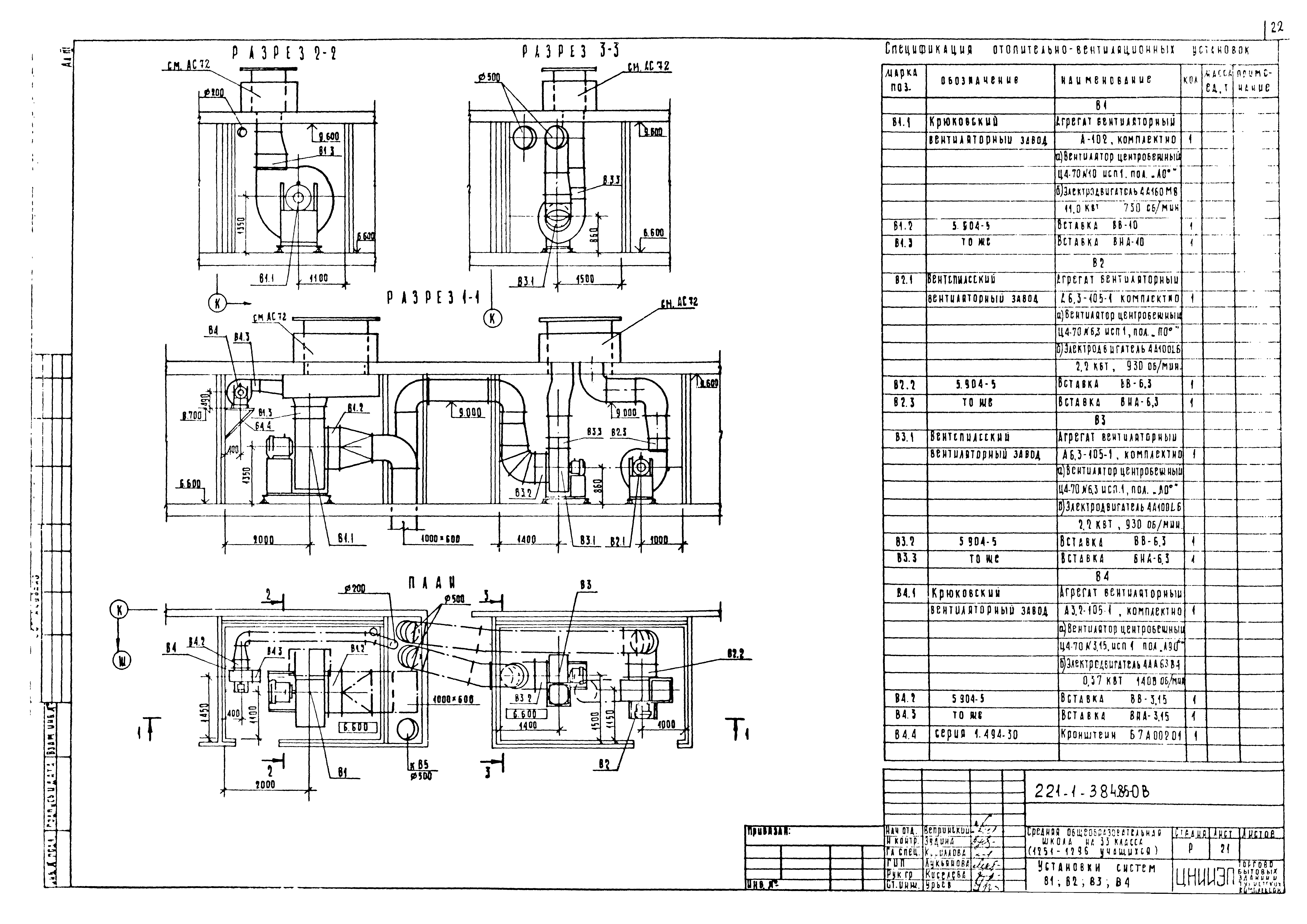
| Оглавление: | Чертежи основного комплекта марки ОВ Общие данные План технического подполья. Зона А План технического подполья. Зона Б План технического подполья. Зона В План 1 этажа. Зона А План 1 этажа. Зона Б План 1 этажа. Зона В План 2 этажа. Зона А План 2 этажа. Зона Б План 2 этажа. Зона В План 3 этажа. Зона А План 3 этажа. Зона Б План 3 этажа. Зона В План 4 этажа. Зона Б Установка систем П1, П2, П3, П6, П8 Спецификация установок отопительно-вентиляционных систем П1, П2, П5, П6, П8 Установка систем П3, П4, П7, П9 Спецификация установок отопительно-вентиляционных систем П3, П4, П7, П9 Установка системы У1 Установка систем В1, В2, В3, В4 Схемы систем П1, П2, П5, П6, П8, У1 Схемы систем П3, П4, П7, П9 Схемы систем В1, В2, В3, В4, ВЕ6, ВЕ7, ВЕ10, ВЕ11 Схемы систем В5, В6, В8, В11, В13, В14 Схема системы отопления №1 Схема системы отопления №2 Схема системы отопления №3 Схема систем теплоснабжения установок П1 - П9, У1 Чертежи основного комплекта марки ОВН Ведомость чертежей Секция переходная установки системы У1 Тепловая изоляция трубопроводов Тепловая изоляция воздуховодов |
| Разработан: | ЦНИИЭП торгово-бытовых зданий и туристских комплексов |
| Утверждён: | 27.11.1981 Госгражданстрой (Gosgrazhdanstroy 324) |

































