Скачать Типовой проект 221-1-384.85 Альбом V. Изделия железобетонные сборные. Изделия металлические. Зенитные фонариДата актуализации: 01.01.2021
|
| Обозначение: | Типовой проект 221-1-384.85 |
| Обозначение англ: | 221-1-384.85 |
| Статус: | действует |
| Название рус.: | Альбом V. Изделия железобетонные сборные. Изделия металлические. Зенитные фонари |
| Дата добавления в базу: | 01.09.2013 |
| Дата актуализации: | 01.01.2021 |
| Дата введения: | 27.03.1985 |
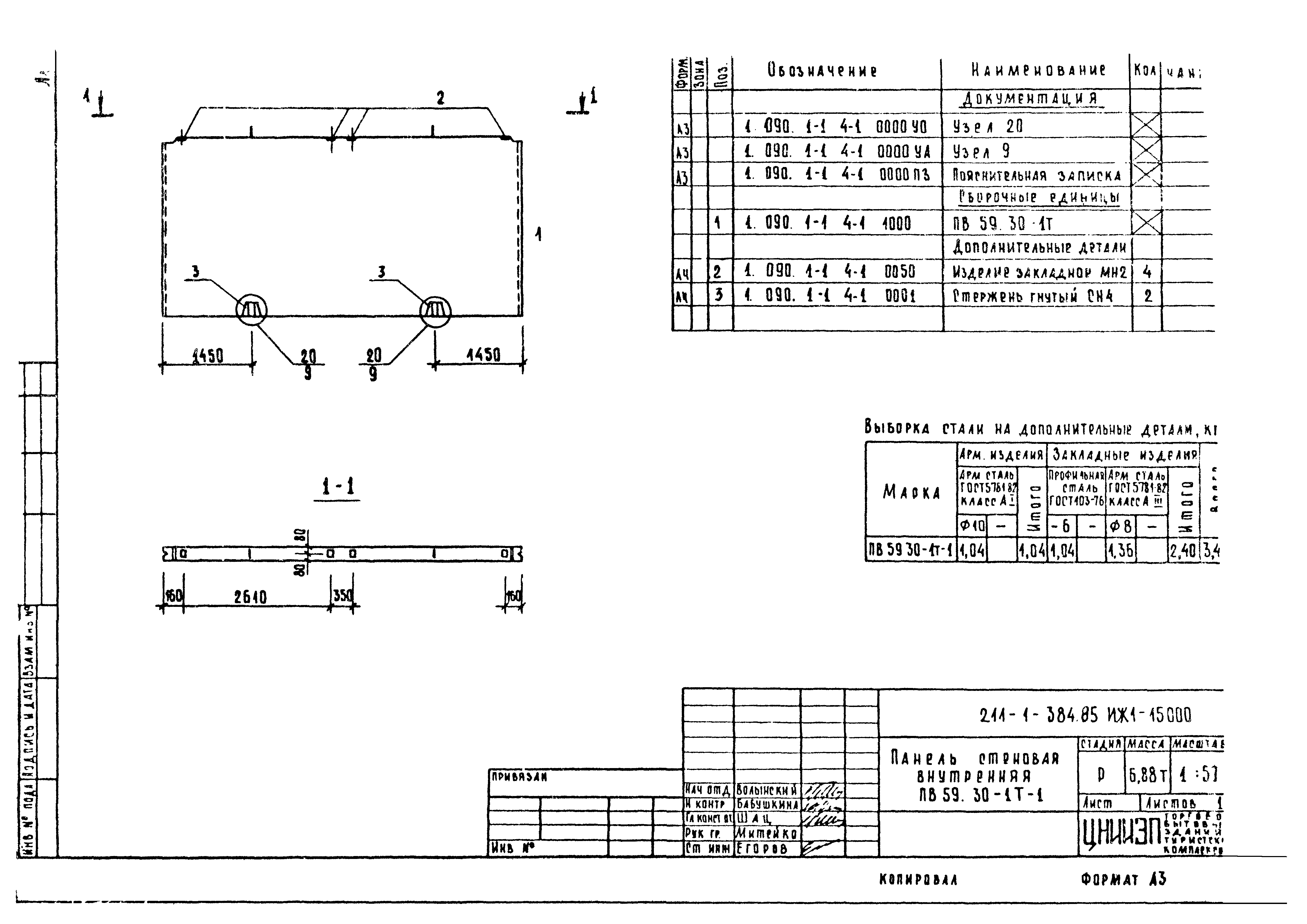
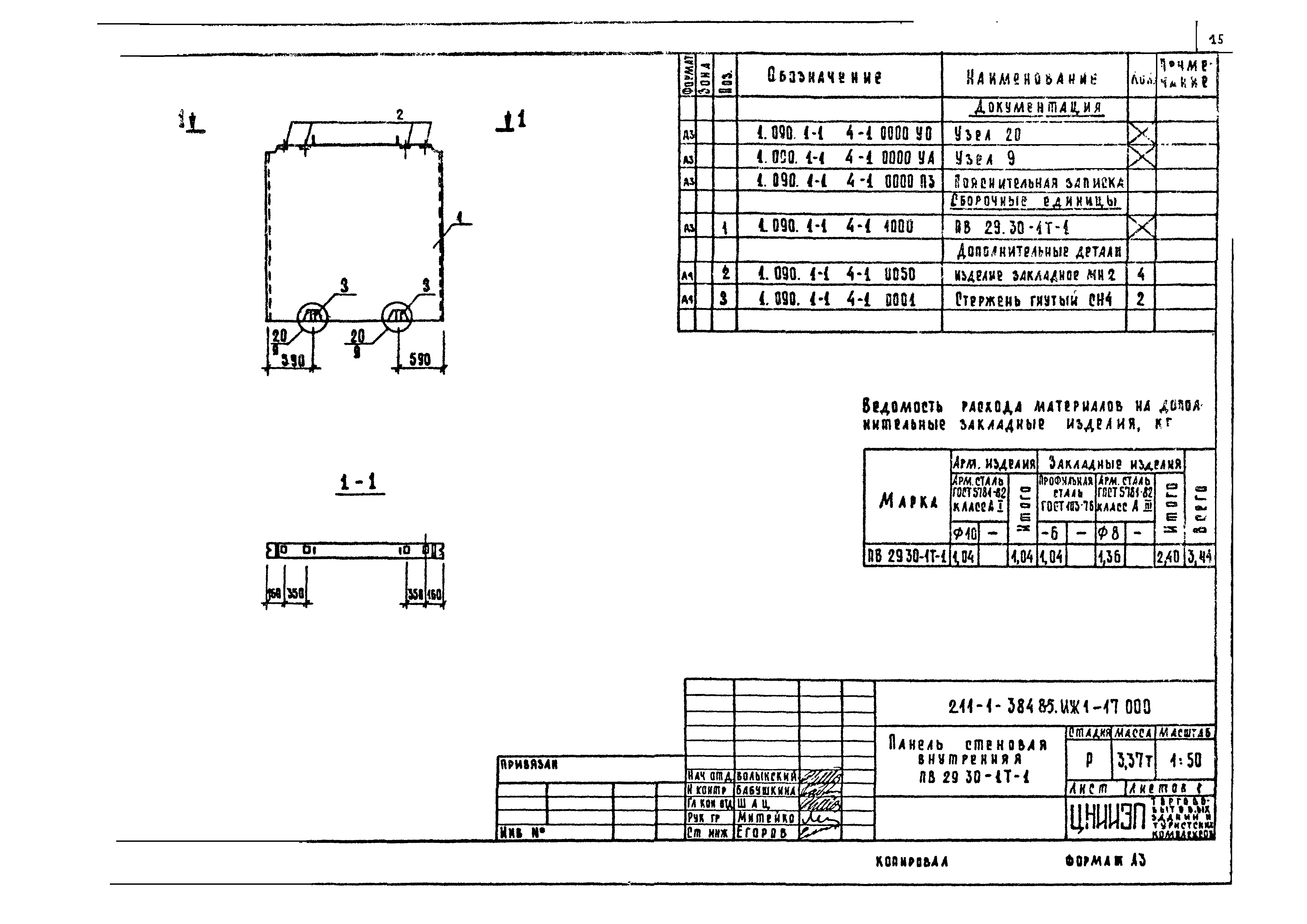
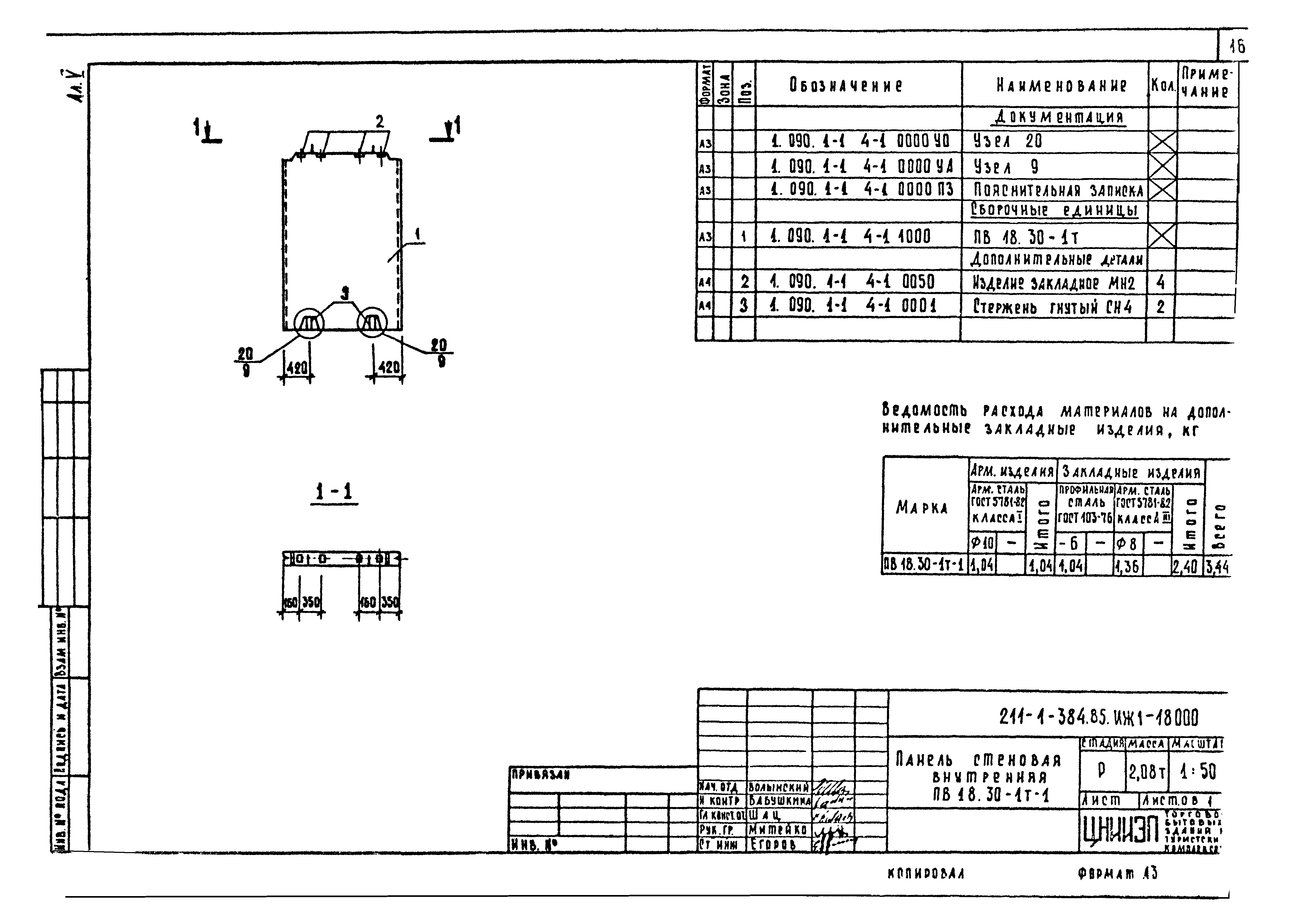
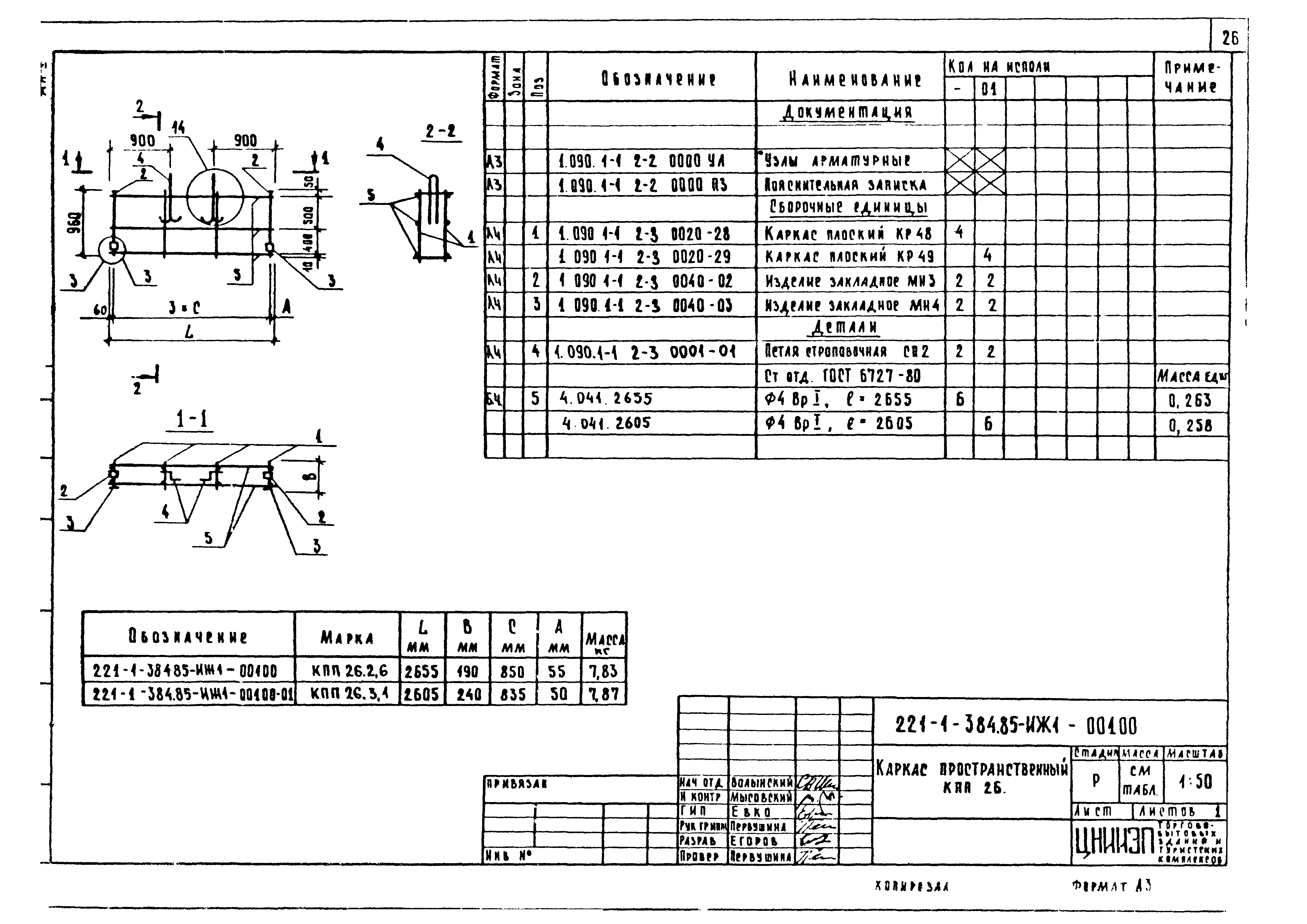
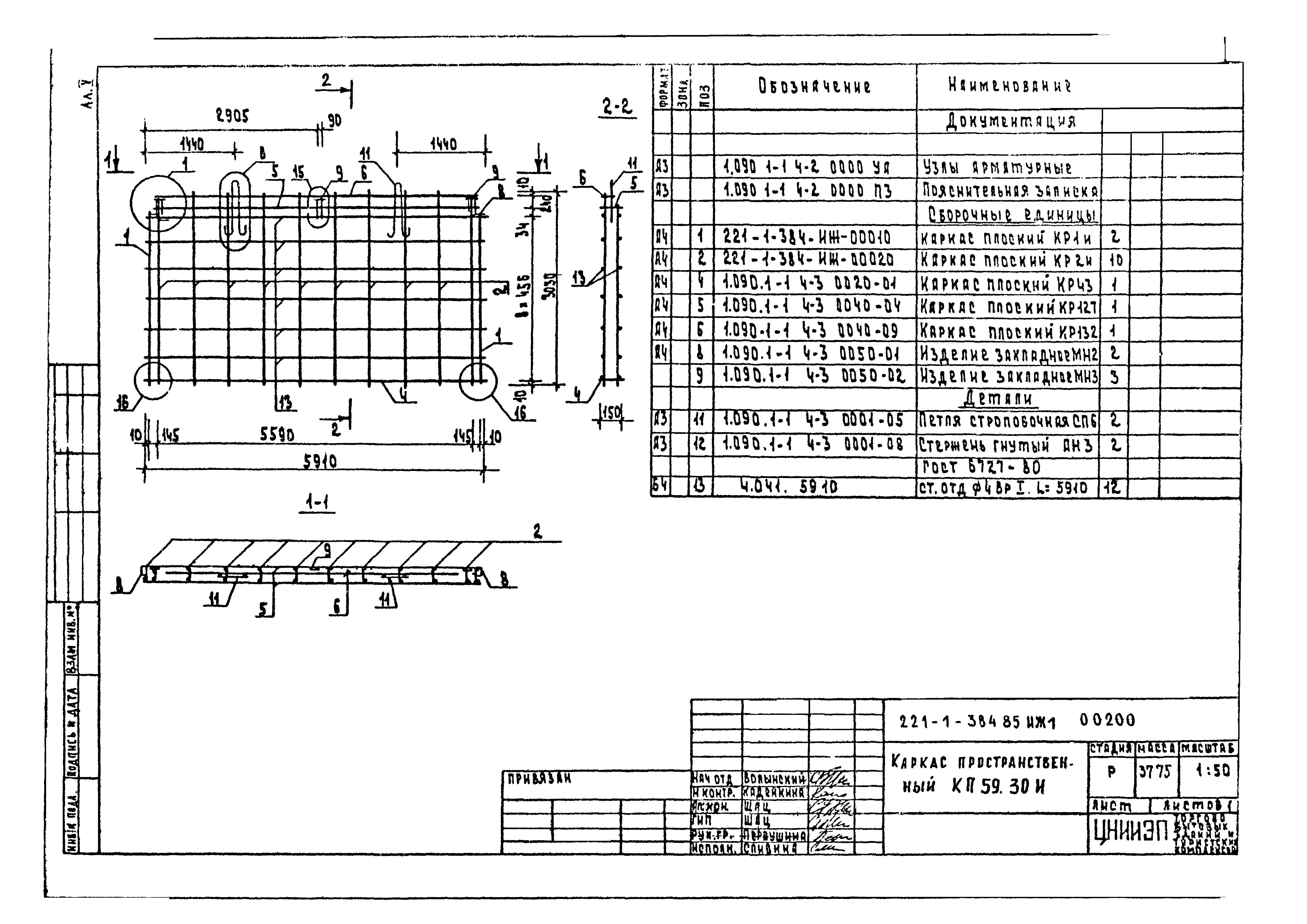
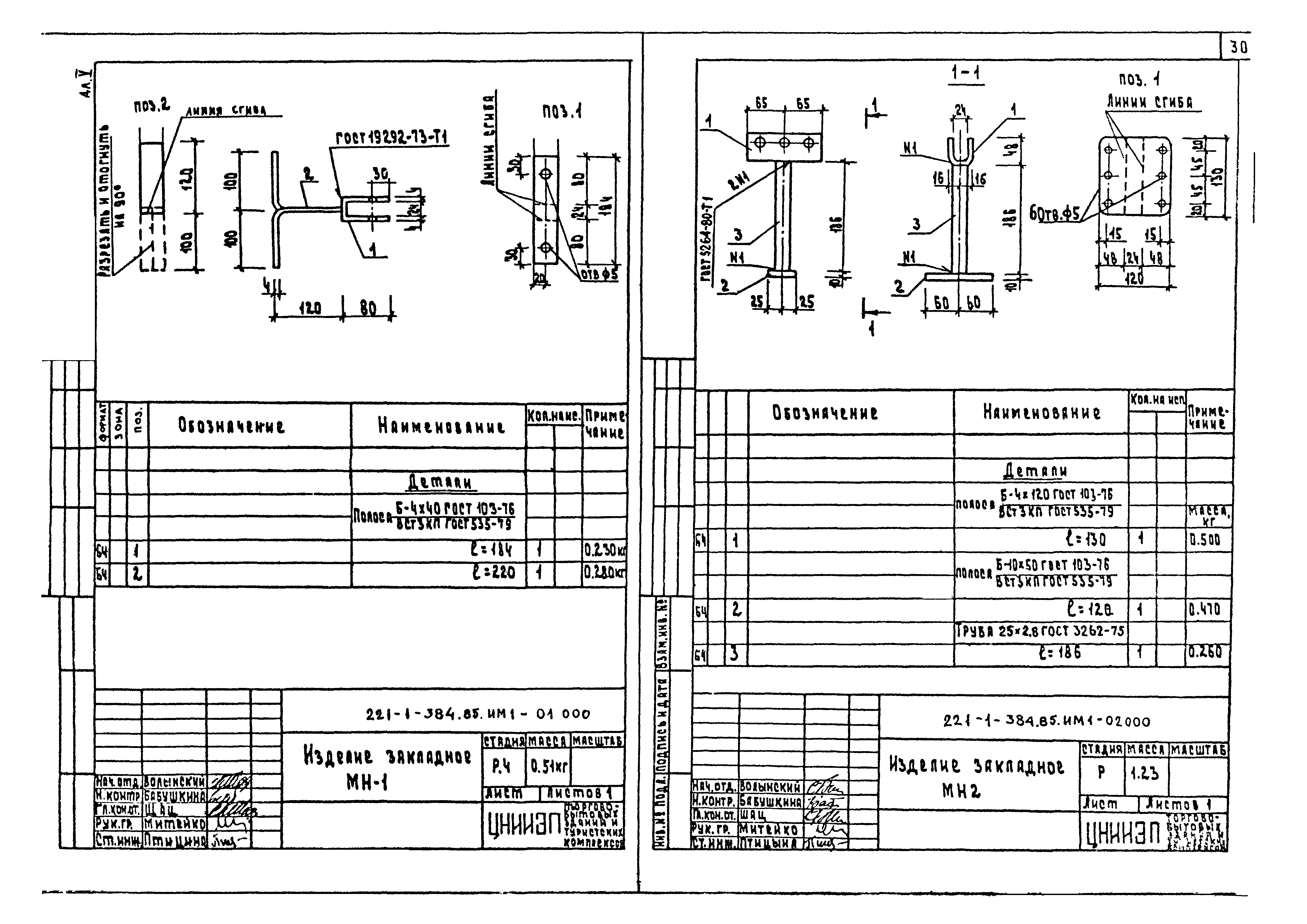
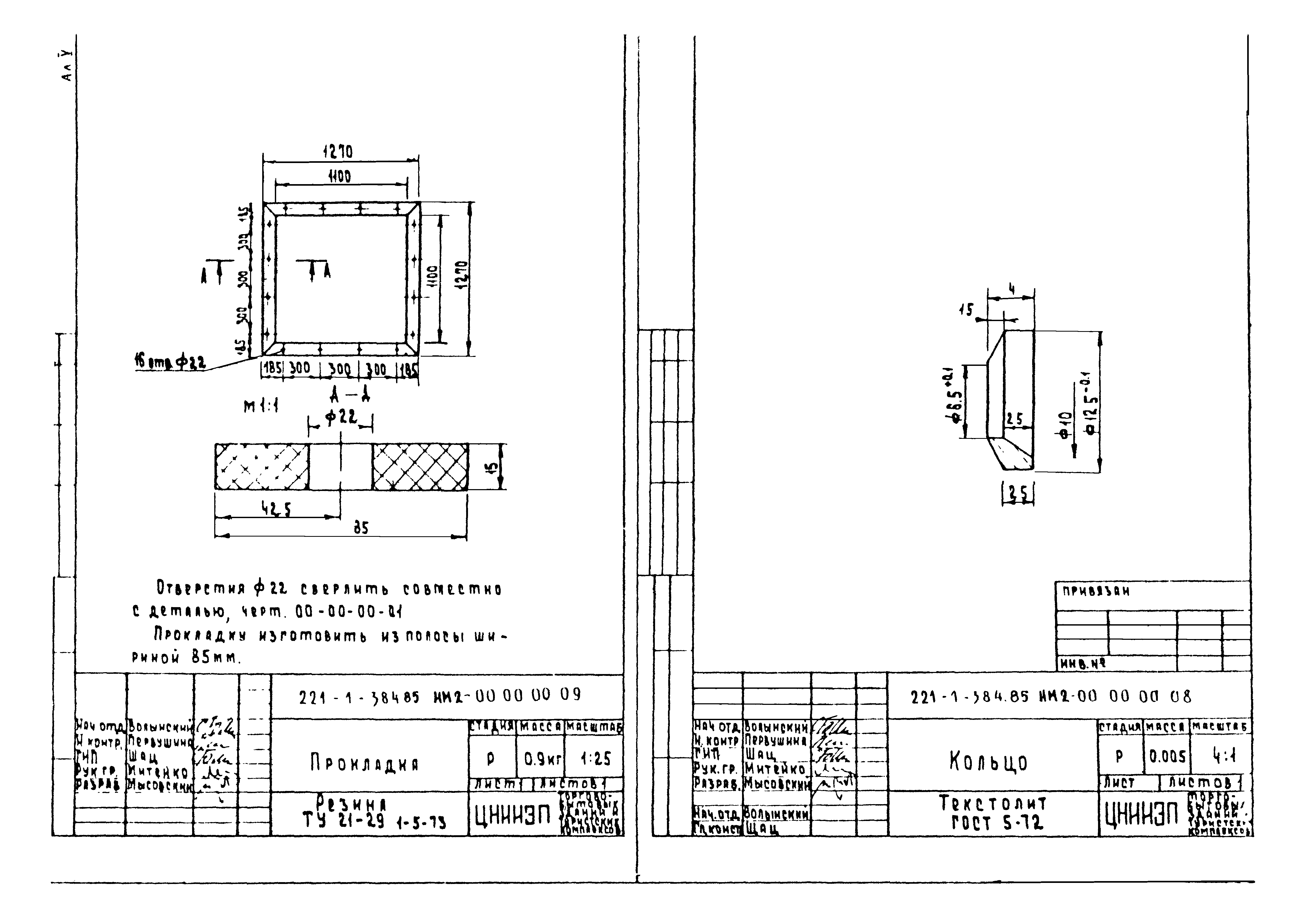
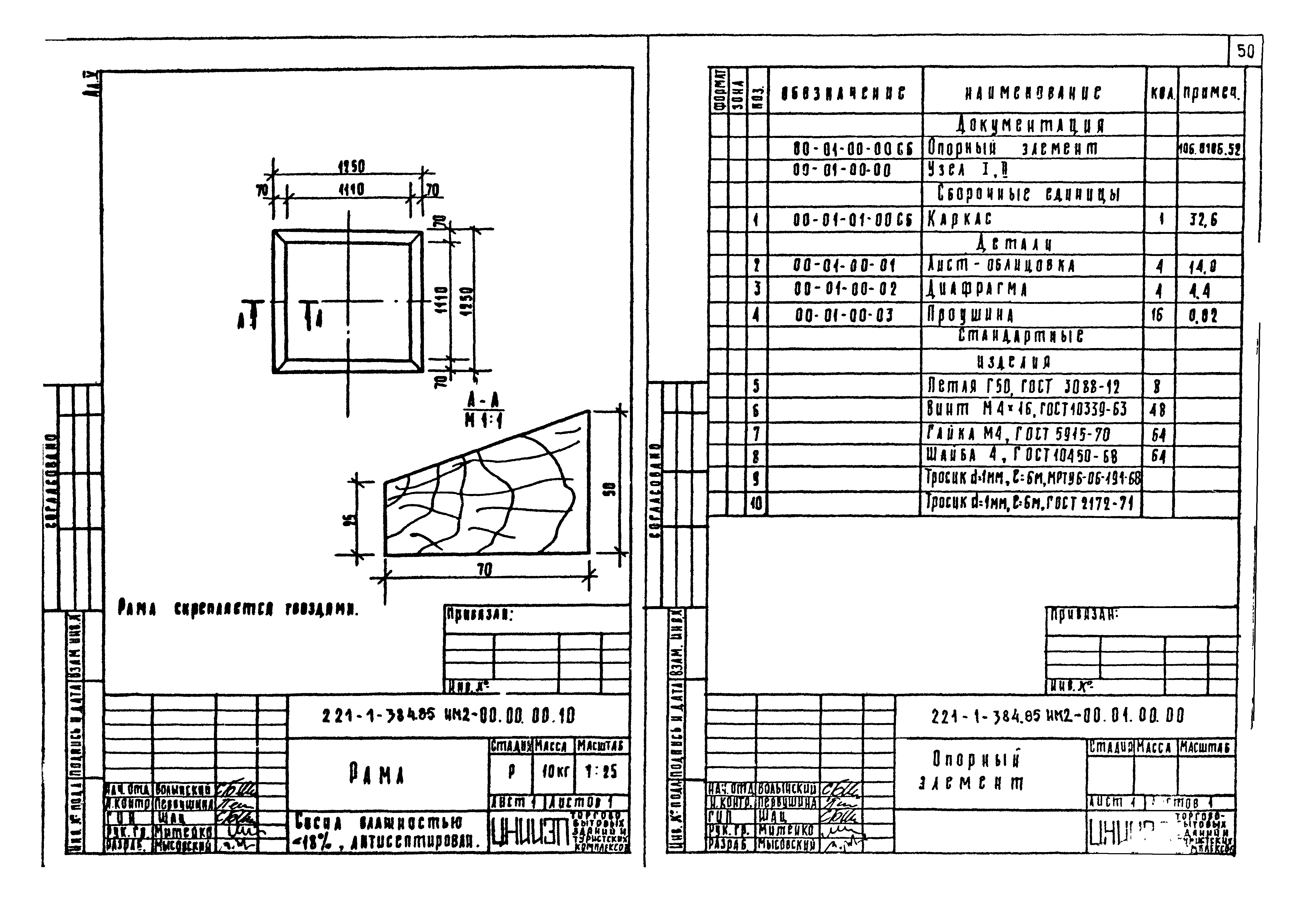
| Оглавление: | 221-1-384.85 ИЖ1-00000ДО Ведомость чертежей 221-1-384.85 ИЖ1-00000ТТ Технические требования 221-1-384.85 ИЖ1-01000 1ПСО30.33.4.0-П-1а 221-1-384.85 ИЖ1-02000 1ПСО30.33.4.0-П-1б 221-1-384.85 ИЖ1-03000 1ПСО60.33.4.0-П-1а 221-1-384.85 ИЖ1-04000 1ПСО60.33.4.0-П-1б 221-1-384.85 ИЖ1-05000 1ПСО60.33.4.0-П-1аб 221-1-384.85 ИЖ1-06000 6ПСО30.33.4.0-П-1в 221-1-384.85 ИЖ1-07000 2ПСО29.33.4.0-П-1а 221-1-384.85 ИЖ1-08000 1ПСО29.33.4.0-П-1б 221-1-384.85 ИЖ1-09000 1ПСЛ29.33.4.0-П-2г 221-1-384.85 ИЖ1-10000 2ПСЛ29.33.4.0-П-2г 221-1-384.85 ИЖ1-11000 ПСЛ30.33.4.0-П-2г 221-1-384.85 ИЖ1-12000 ПСП27.10.3,1-п; ПСП27.10.2,6-п 221-1-384.85 ИЖ1-13000 ПВ60.33-1т-1 221-1-384.85 ИЖ1-14000 ПВ60.30-1т-1 221-1-384.85 ИЖ1-15000 ПВ59.30-1т-1 221-1-384.85 ИЖ1-16000 ПВ60.30-1т-2 221-1-384.85 ИЖ1-17000 ПВ29.30-1т-1 221-1-384.85 ИЖ1-18000 ПВ18.30-1т-1 221-1-384.85 ИЖ1-19000 ПВ30.30-1т-1 221-1-384.85 ИЖ1-20000 1ПСО30.33.3,5-П-1а 221-1-384.85 ИЖ1-21000 1ПСО30.33.3,5-П-1б 221-1-384.85 ИЖ1-22000 1ПСО60.33.3,5-П-1а 221-1-384.85 ИЖ1-23000 1ПСО60.33.3,5-П-1б 221-1-384.85 ИЖ1-24000 1ПСО60.33.3,5-П-1аб 221-1-384.85 ИЖ1-25000 6ПСО30.33.3,5-П-1в 221-1-384.85 ИЖ1-26000 2ПСО29.33.3,5-П-1а 221-1-384.85 ИЖ1-27000 1ПСО29.33.3,5-П-1в 221-1-384.85 ИЖ1-28000 1ПСЛ29.33.3,5-П-2г 221-1-384.85 ИЖ1-29000 2ПСЛ29.33.3,5-П-2г 221-1-384.85 ИЖ1-30000 ПСЛ30.33.3,5-П-2г 221-1-384.85 ИЖ1-31000 1ПГ12-4АтVт-1 221-1-384.85 ИЖ1-32000 1ПФ12-4АтVт-5-1 221-1-384.85 ИЖ1-00100 Каркас пространственный КПП26 221-1-384.85 ИЖ1-00200 Каркас пространственный КП59.30и 221-1-384.85 ИЖ1-00010 Каркас плоский КР-1и 221-1-384.85 ИЖ1-00020 Каркас плоский КР-2и 221-1-384.85 ИМ1-00000ДО Ведомость чертежей 221-1-384.85 ИМ1-01000 Изделие закладное МН-1 221-1-384.85 ИМ1-02000 Изделие закладное МН2 221-1-384.85 ИМ1-03000 Элемент соединительный ИМС-2 221-1-384.85 ИМ1-04000 Элемент соединительный ИМС-3 221-1-384.85 ИМ1-05000 Элемент соединительный ИМС-4 221-1-384.85 ИМ1-06000 Элемент соединительный ИМС-6 221-1-384.85 ИМ1-07000 Элемент соединительный ИМС-1 221-1-384.85 ИМ1-08000 Элемент соединительный ИМС-5 221-1-384.85 ИМ1-09000 Элемент соединительный ИМС-7 221-1-384.85 ИМ1-10000 Рама Р-1 221-1-384.85 ИМ1-11000 Решетка металлическая РМ-1 221-1-384.85 ИМ1-12000 Решетка металлическая РМ-2 221-1-384.85 ИМ1-13000 Кронштейн КР-7м 221-1-384.85 ИМ2-00000000 Ведомость чертежей 221-1-384.85 ИМ2-00000000 Технические требования 221-1-384.85 ИМ2-00000000 Ведомость покупных изделий 221-1-384.85 ИМ2-00000000 Зенитный фонарь 221-1-384.85 ИМ2-00000000 Зенитный фонарь. Спецификация 221-1-384.85 ИМ2-00000000СБ Зенитный фонарь. Сборочный чертеж 221-1-384.85 ИМ2-00000000СБ Зенитный фонарь. Узел 1 221-1-384.85 ИМ2-00000001 Купол 221-1-384.85 ИМ2-00000002 Фартук 221-1-384.85 ИМ2-00000003 Колпачок 221-1-384.85 ИМ2-00000004 Пробка 221-1-384.85 ИМ2-00000005 Гайка 221-1-384.85 ИМ2-00000006 Прокладка 221-1-384.85 ИМ2-00000007 Втулка 221-1-384.85 ИМ2-00000008 Кольцо 221-1-384.85 ИМ2-00000009 Прокладка 221-1-384.85 ИМ2-00000010 Рама 221-1-384.85 ИМ2-00010000 Опорный элемент 221-1-384.85 ИМ2-00010100СБ Опорный элемент. Сборочный чертеж 221-1-384.85 ИМ2-00010100СБ Опорный элемент. Узел I, II 221-1-384.85 ИМ2-00010001 Лист облицовки 221-1-384.85 ИМ2-00010002 Диаграмма 221-1-384.85 ИМ2-00010003 Проушина 221-1-384.85 ИМ2-00010100 Каркас. Спецификация 221-1-384.85 ИМ2-00010100СБ Каркас. Сборочный чертеж 221-1-384.85 ИМ2-00010101 Элемент верхний 221-1-384.85 ИМ2-00010102 Элемент нижний 221-1-384.85 ИМ2-00010103 Элемент вертикальный |
| Разработан: | ЦНИИЭП торгово-бытовых зданий и туристских комплексов |
| Утверждён: | 27.11.1981 Госгражданстрой (Gosgrazhdanstroy 324) |



























































