Скачать Типовой проект 271-28-13.84 Альбом II. Изделия железобетонные заводского изготовления. Изделия металлическиеДата актуализации: 01.01.2021
|
| Обозначение: | Типовой проект 271-28-13.84 |
| Обозначение англ: | 271-28-13.84 |
| Статус: | не определен законодательством |
| Название рус.: | Альбом II. Изделия железобетонные заводского изготовления. Изделия металлические |
| Дата добавления в базу: | 01.09.2013 |
| Дата актуализации: | 01.01.2021 |
| Дата введения: | 08.10.1984 |
| Дата окончания срока действия: | 30.06.2003 |
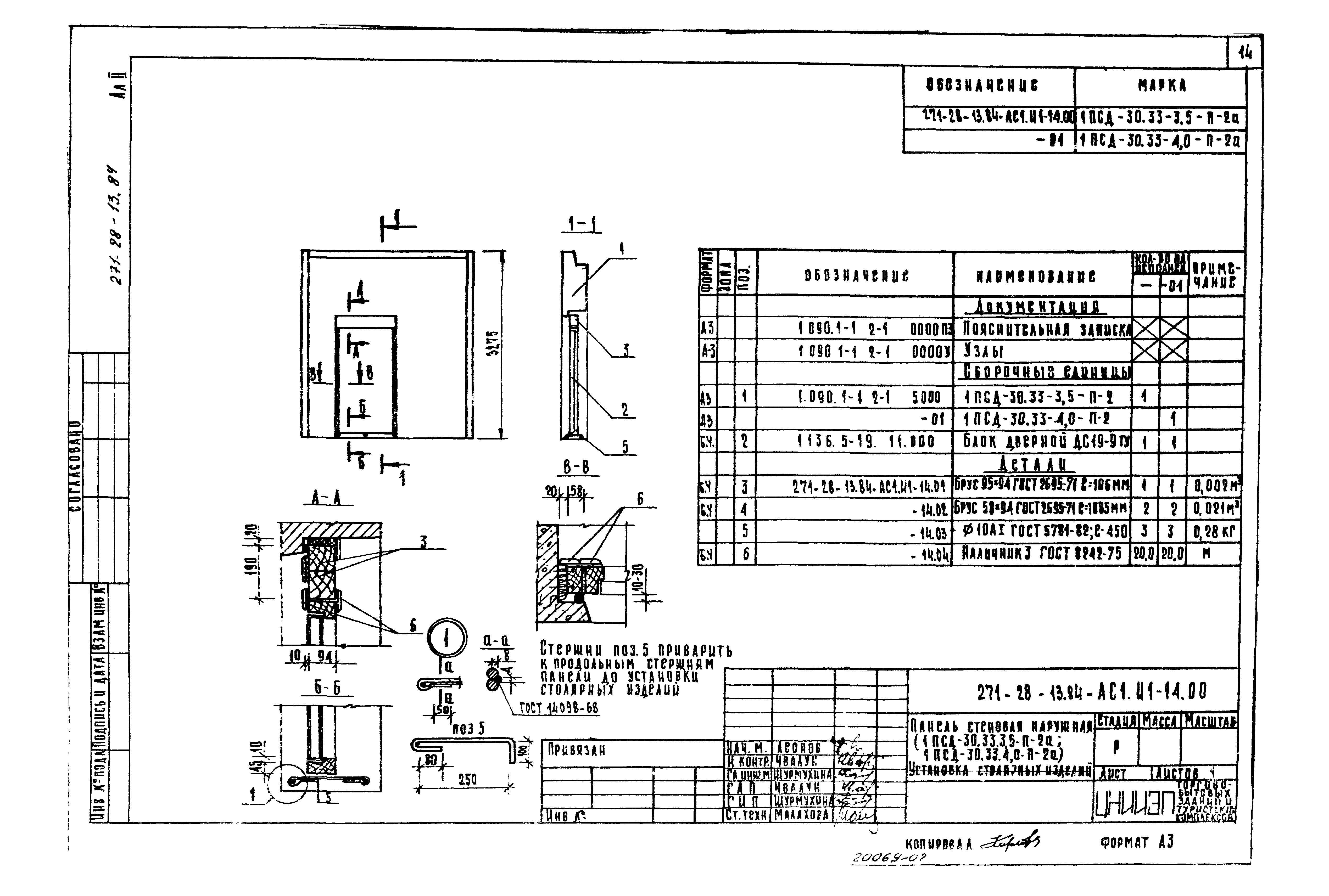
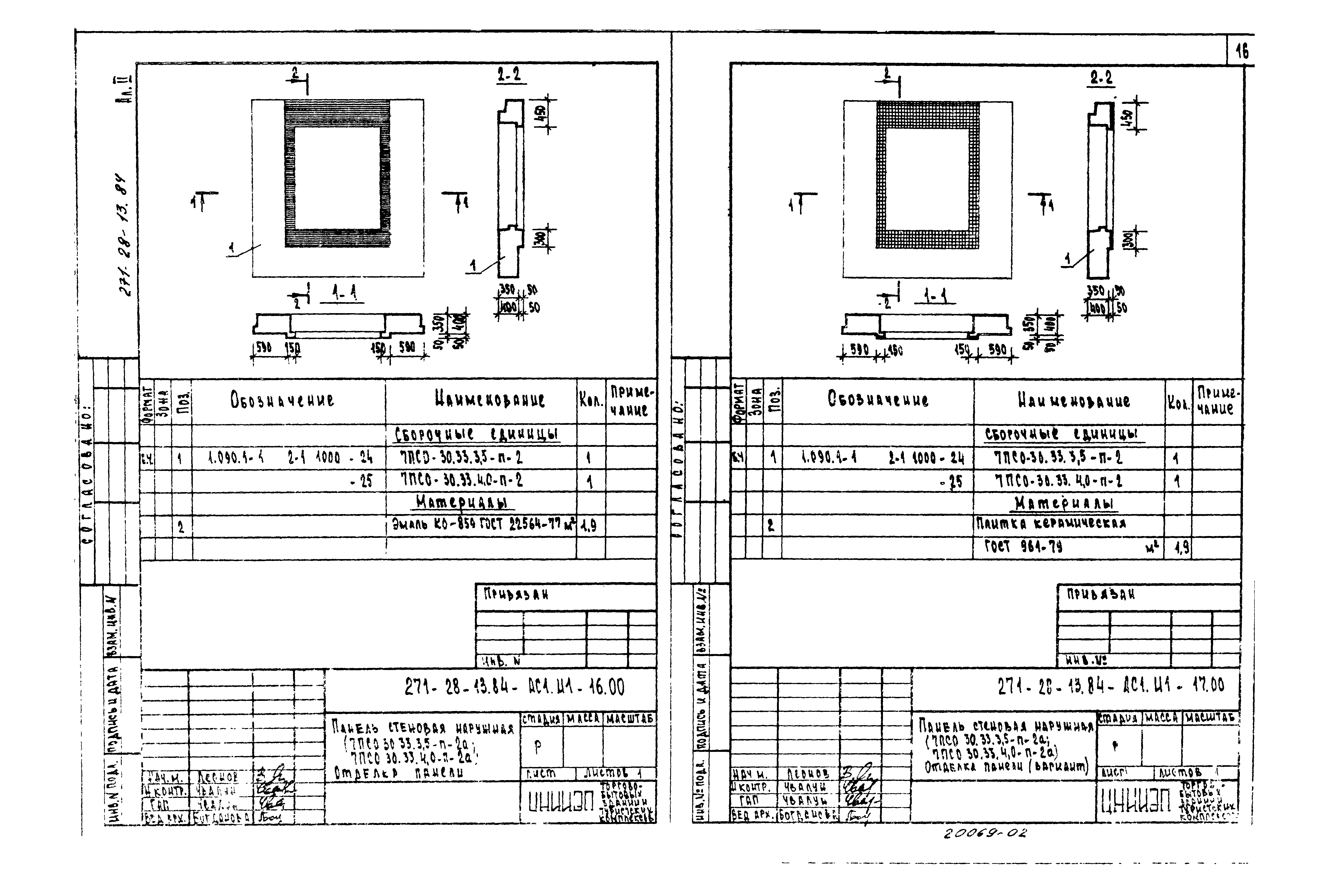
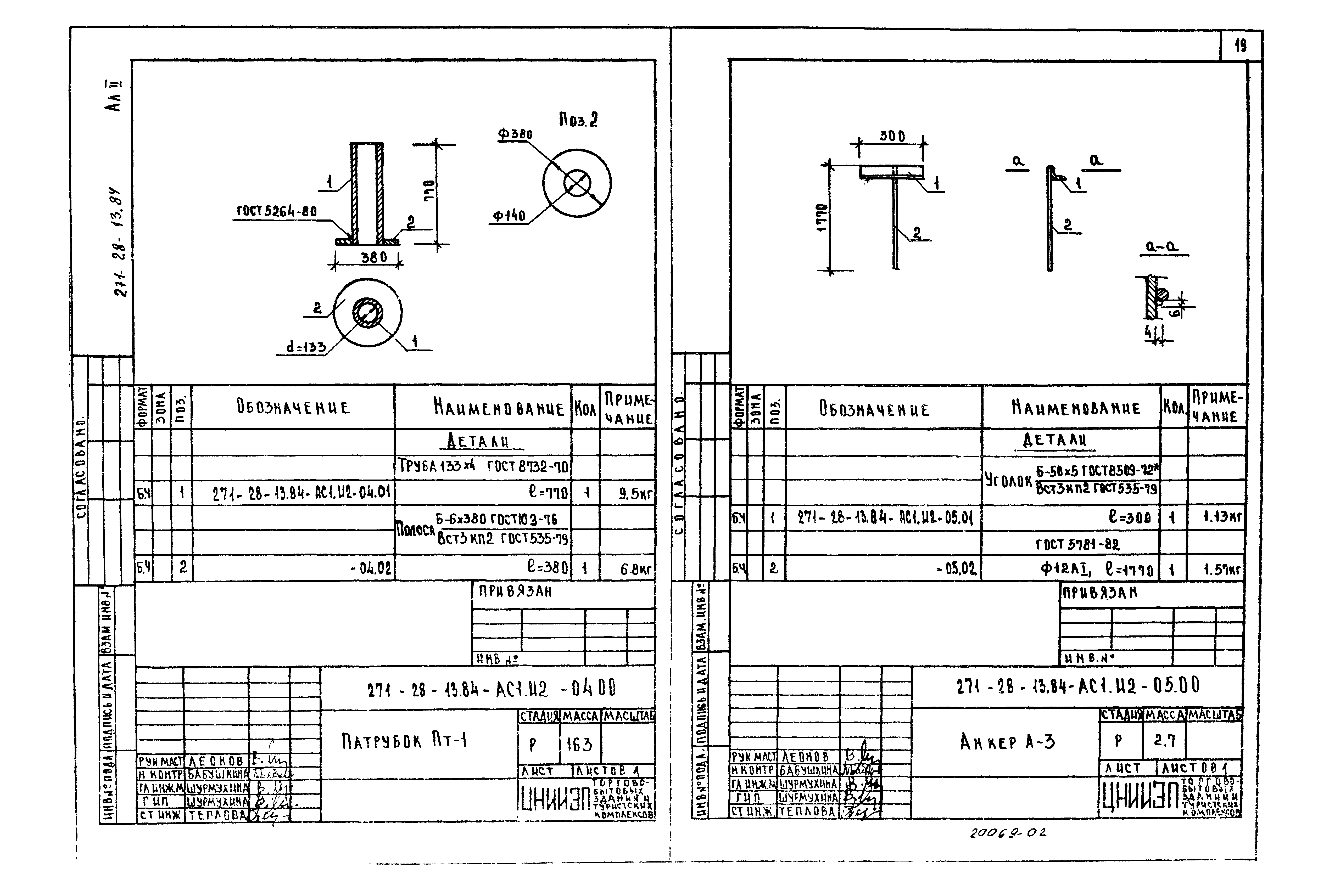
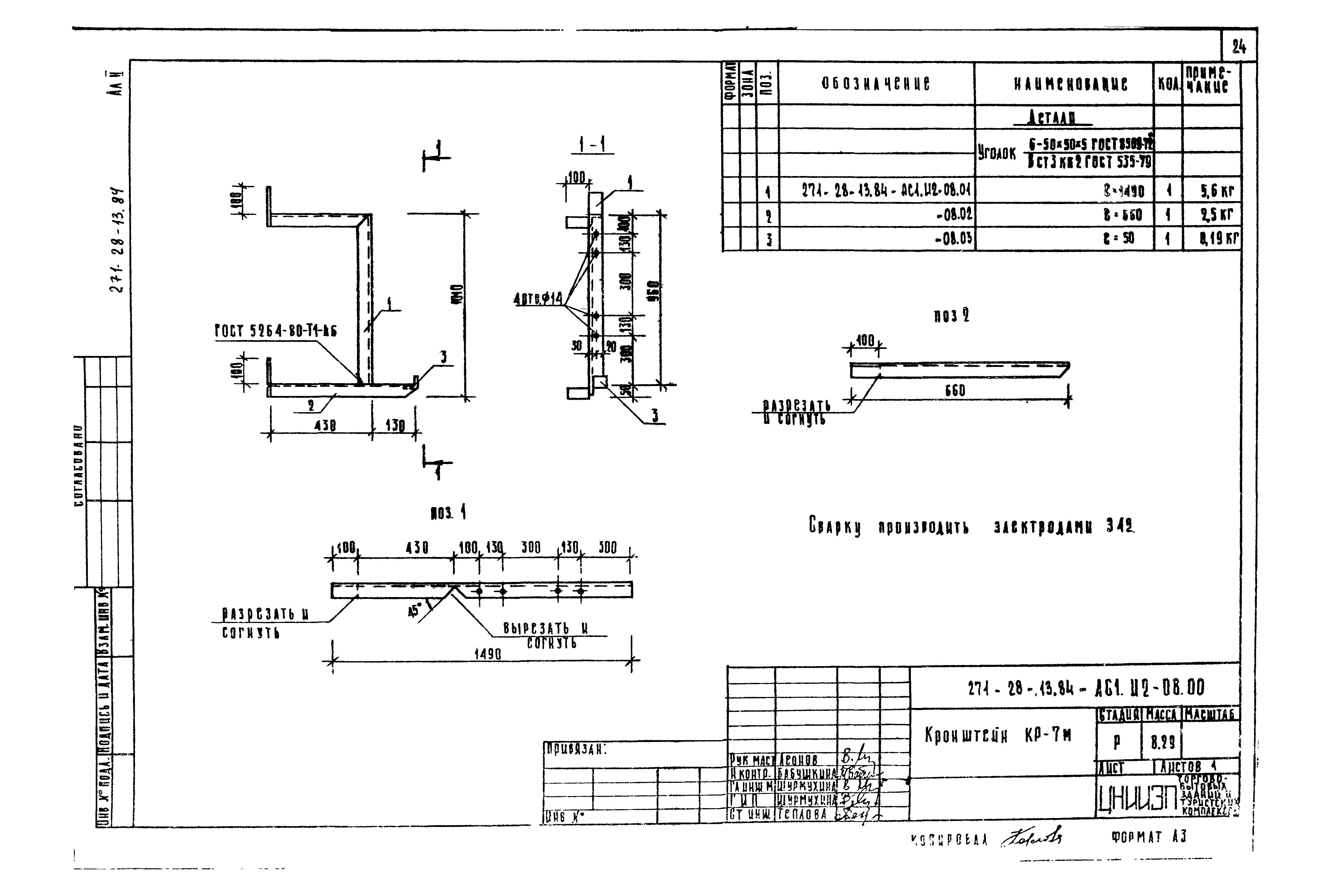
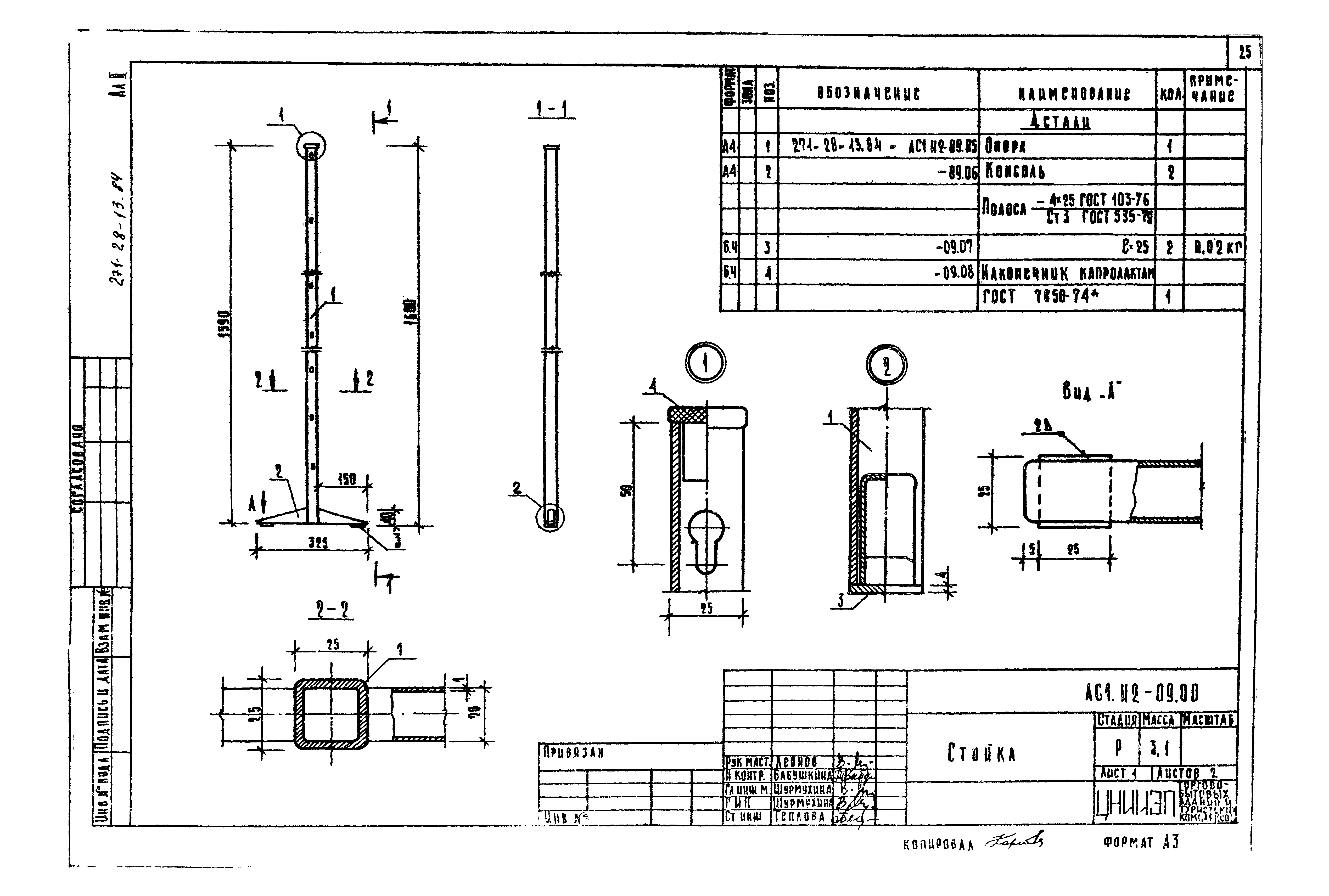
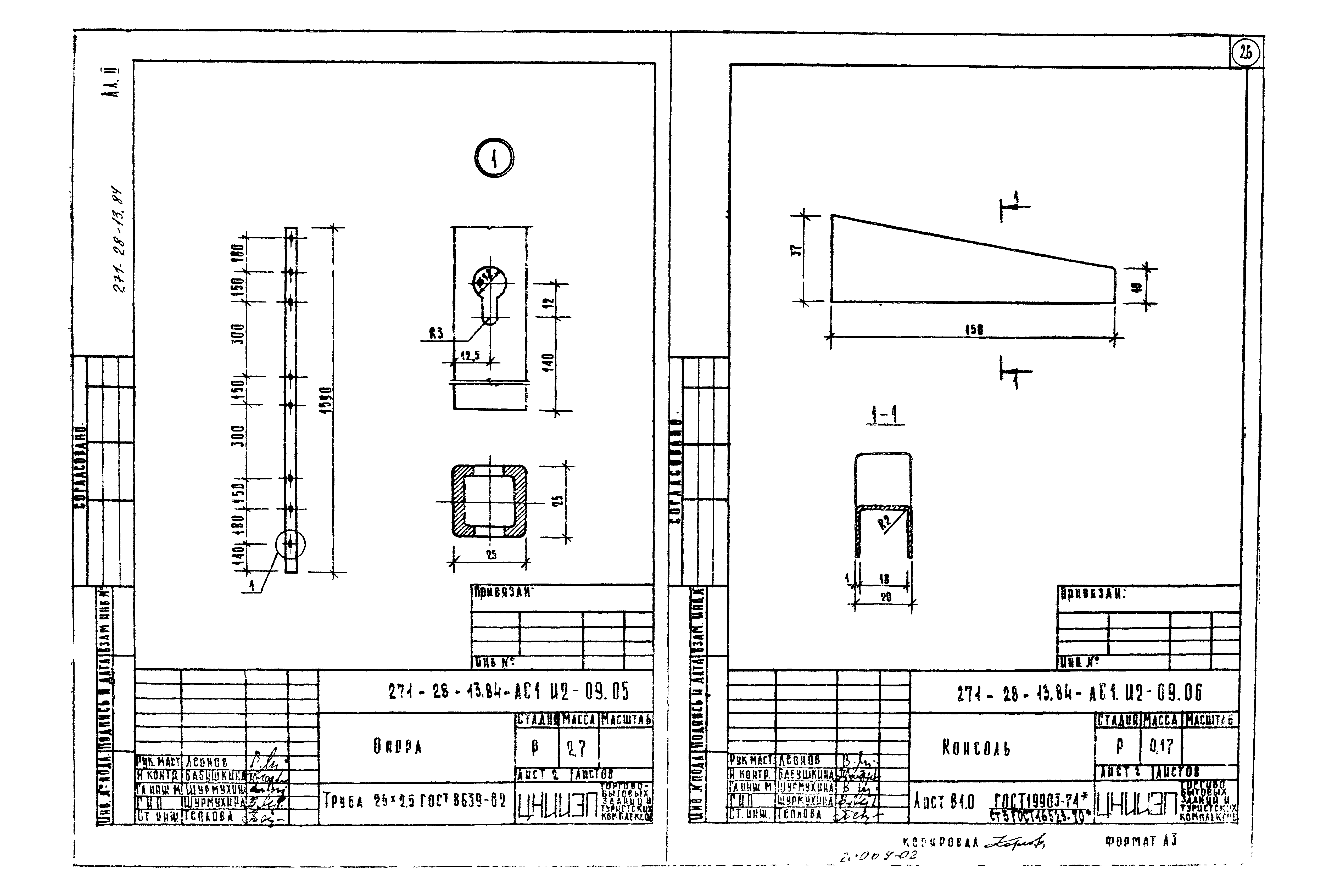
| Оглавление: | Панели стеновые наружные Каркас пространственный Изделие соединительное Панели стеновые наружные Анкер Патрубок Анкер Рама металлическая Кронштейн Стойка Опора Консоль |
| Разработан: | ЦНИИЭП торгово-бытовых зданий и туристских комплексов |
| Утверждён: | 30.07.1982 Госгражданстрой (Gosgrazhdanstroy 200) |



























