Скачать Типовой проект 407-3-589.90 Альбом 3. Строительные изделия (из ТП 407-3-585.90)Дата актуализации: 01.01.2021
|
| Обозначение: | Типовой проект 407-3-589.90 |
| Обозначение англ: | 407-3-589.90 |
| Статус: | не определен законодательством |
| Название рус.: | Альбом 3. Строительные изделия (из ТП 407-3-585.90) |
| Дата добавления в базу: | 01.09.2013 |
| Дата актуализации: | 01.01.2021 |
| Дата введения: | 05.04.1991 |
| Дата окончания срока действия: | 30.06.2003 |
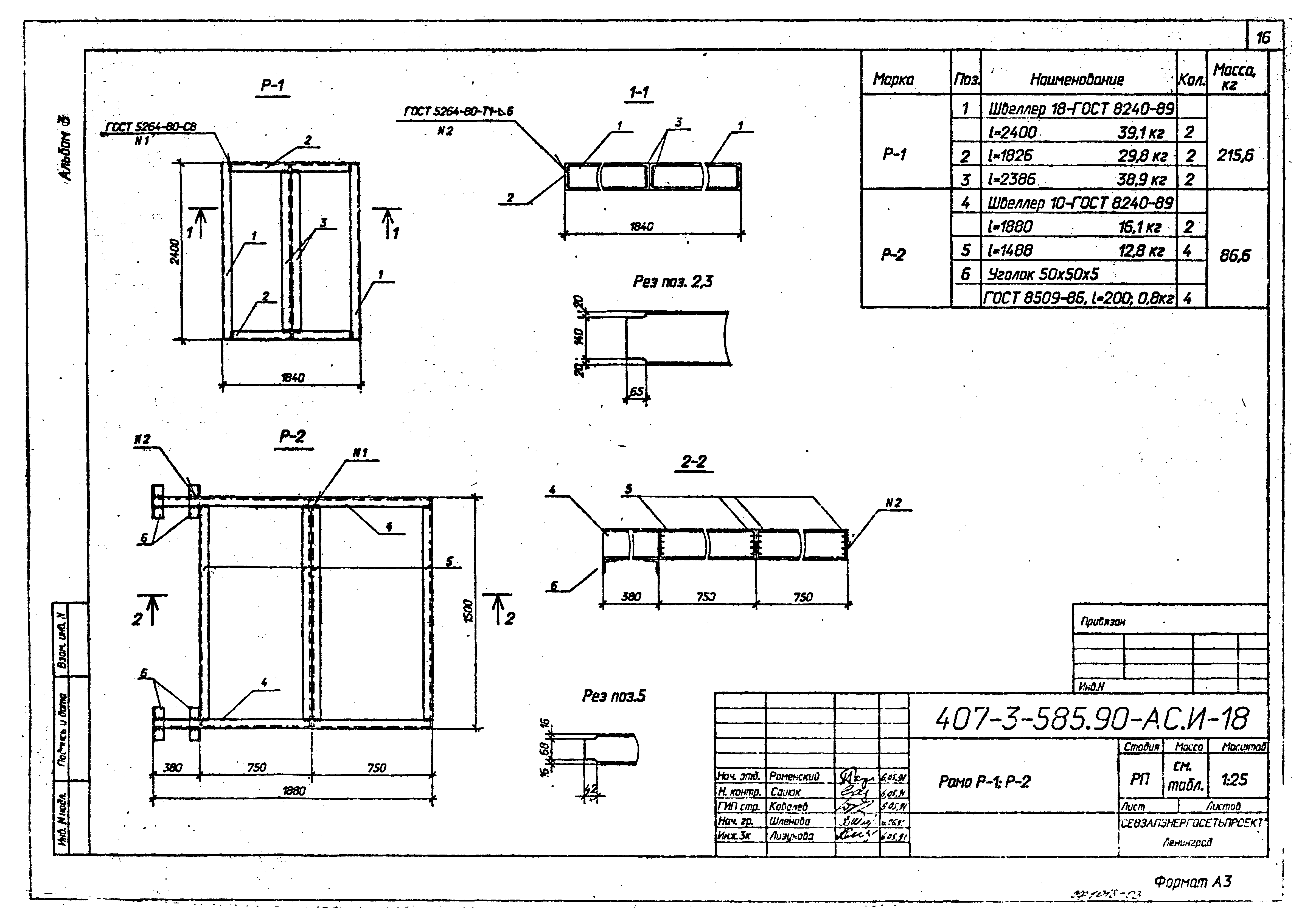
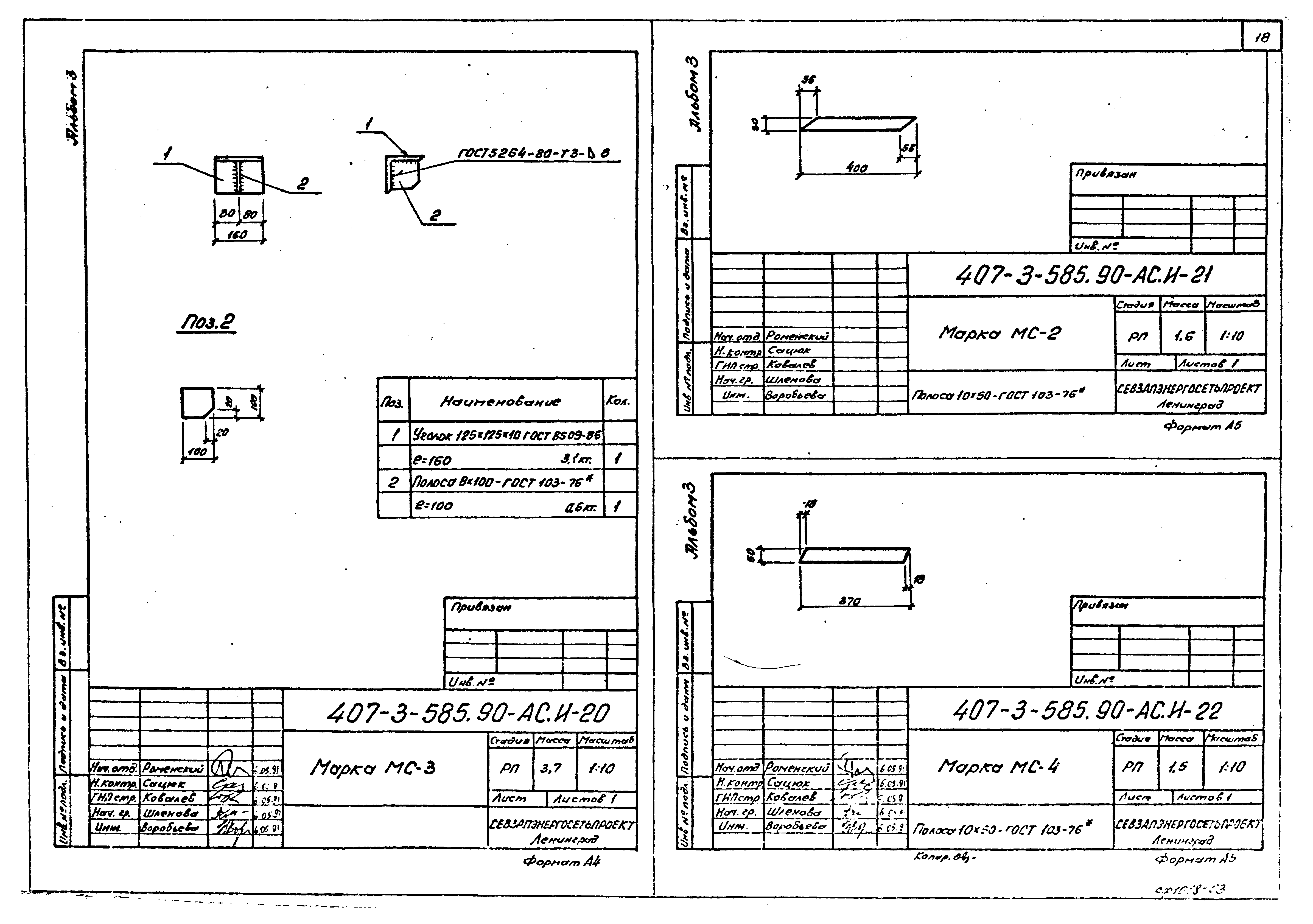
| Оглавление: | 407-3-585.90-АС.И Содержание альбома 407-3-585.90-АС.И-ТТ Технические требования 407-3-585.90-АС.И-1 Плита сантехническая ПРС56.15-6А-IVm-А 407-3-585.90-АС.И-2 Колонна 2КБО4.42-2.1-А 407-3-585.90-АС.И-3 Колонна 2КБО4.42-2.1-Б 407-3-585.90-АС.И-4 Колонна 2КБО4.42-2.1-В 407-3-585.90-АС.И-5 Изделия закладные МН-50, МН-51, МН-15 407-3-585.90-АС.И-6 Марка М-3 407-3-585.90-АС.И-7 Марка М-4 407-3-585.90-АС.И-8 Марка М-20 407-3-585.90-АС.И-9 Марка М-25 407-3-585.90-АС.И-10 Марка М-8 407-3-585.90-АС.И-11 Марка М-11 407-3-585.90-АС.И-12 Марка М-9 407-3-585.90-АС.И-13 Марка М-13 407-3-585.90-АС.И-14 Марки М-17, М-18 407-3-585.90-АС.И-15 Марка М-19 407-3-585.90-АС.И-16 Марка М-24 407-3-585.90-АС.И-17 Ограждение кровли М-22 407-3-585.90-АС.И-18 Рама Р-1, Р-2 407-3-585.90-АС.И-19 Рама Р-4 407-3-585.90-АС.И-20 Марка МС-3 407-3-585.90-АС.И-21 Марка МС-2 407-3-585.90-АС.И-22 Марка МС-4 407-3-585.90-АС.И-23 Марка МС-6 407-3-585.90-АС.И-24 Оголовок ОГ-1 407-3-585.90-АС.И-25 Марка МЛ-1 407-3-585.90-АС.И-26 Марка МЛ-4 407-3-585.90-АС.И-27 Марка МЛ-5 407-3-585.90-АС.И-28 Марка МС-10 407-3-585.90-АС.И-29 Каркас КР-1 407-3-585.90-АС.И-30 Марка М-35 |
| Разработан: | Севзапэнергосетьпроект |
| Утверждён: | 05.04.1991 Минэнерго СССР (USSR Minenergo 6) |
| Заменяет собой: |
|






















