Скачать Типовой проект 212-2-41/75 Альбом IV. Изделия заводского изготовленияДата актуализации: 01.01.2021
|
| Обозначение: | Типовой проект 212-2-41/75 |
| Обозначение англ: | 212-2-41/75 |
| Статус: | действует |
| Название рус.: | Альбом IV. Изделия заводского изготовления |
| Дата добавления в базу: | 01.09.2013 |
| Дата актуализации: | 01.01.2021 |
| Дата введения: | 10.07.1975 |
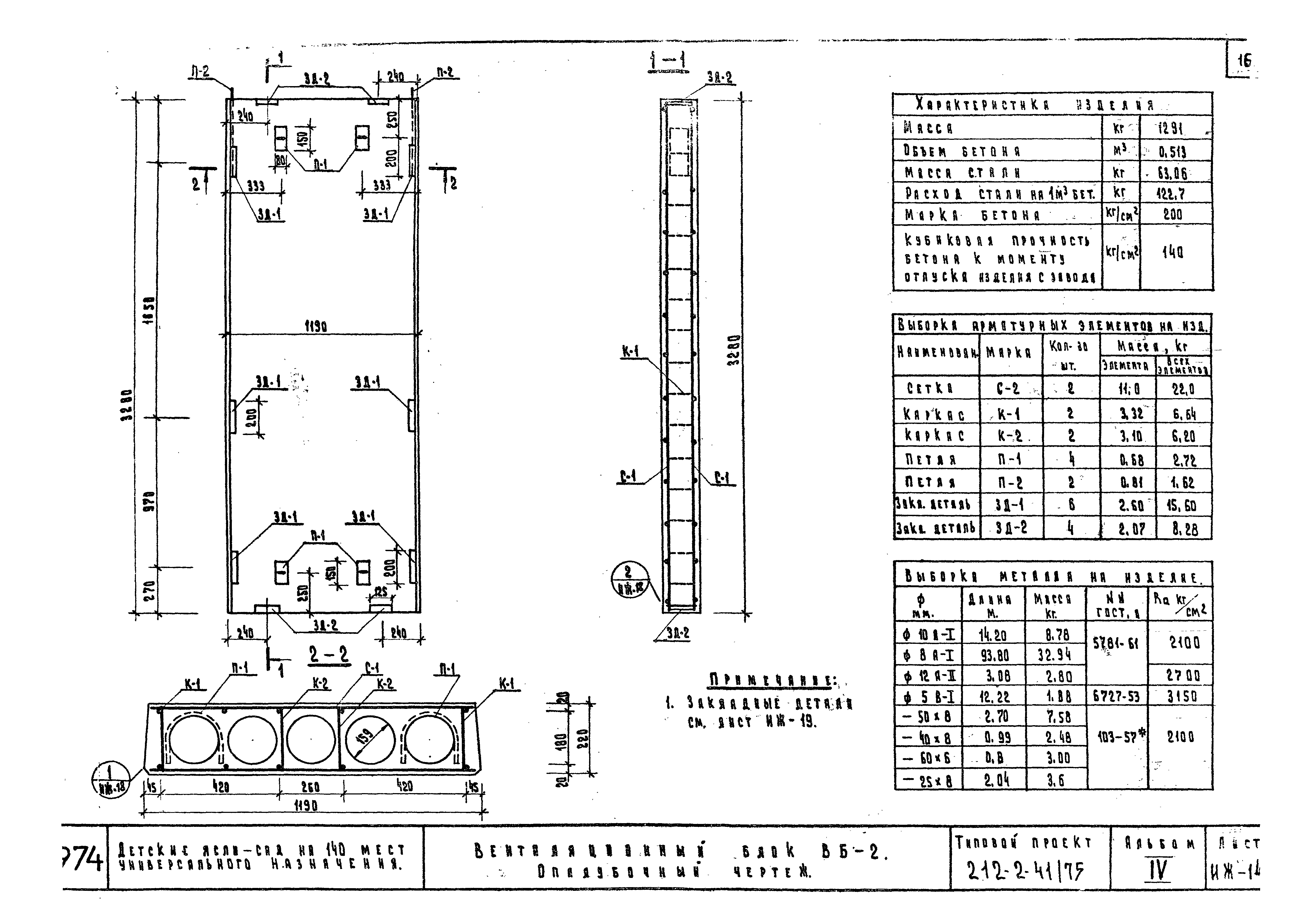
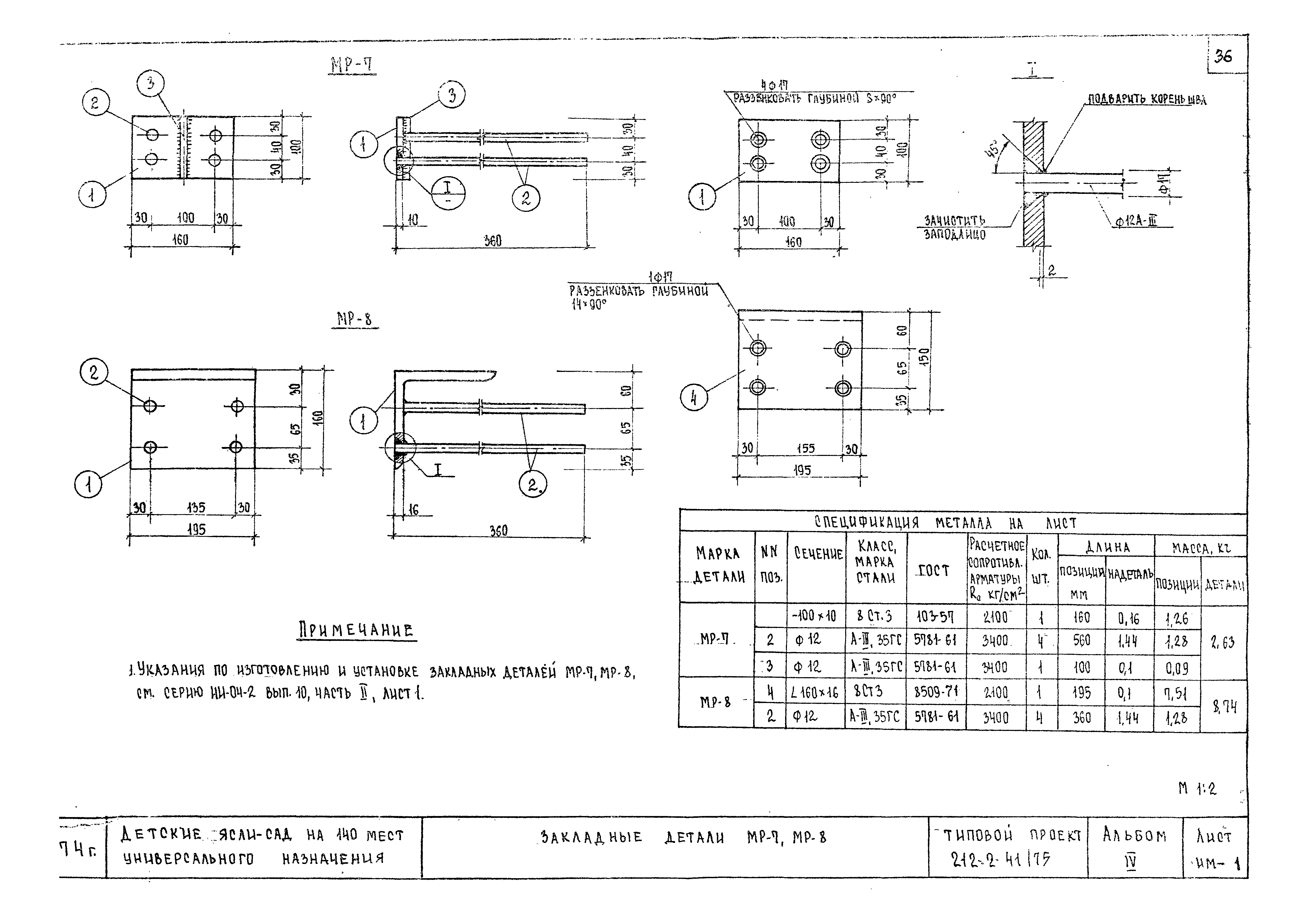
| Оглавление: | Содержание альбома Железобетонные изделия Колонны Фризовый камень Вентиляционный блок Арматурные изделия Плита жесткости Арматурные изделия Вентиляционный блок. Плита жесткости. Узлы 1 - 4 Вентиляционный блок. Плита жесткости. Закладные детали Цокольные панели Пространственные каркасы Ригели Панель Стакан. Подстаканник Отопительные панели Армирование колонн Металлические изделия Закладные детали Ограждения лестниц Объемный каркас. Плоский каркас Деревянные изделия Экран для санузлов Блок внутренней двери с раздаточным окном |
| Разработан: | ЦНИИЭП учебных зданий |
| Утверждён: | 20.07.1971 Госгражданстрой (Gosgrazhdanstroy 125) |








































