Скачать Типовой проект 901-3-236.87 Альбом II. Архитектурно-строительные решенияДата актуализации: 01.01.2021
|
| Обозначение: | Типовой проект 901-3-236.87 |
| Обозначение англ: | 901-3-236.87 |
| Статус: | не определен законодательством |
| Название рус.: | Альбом II. Архитектурно-строительные решения |
| Дата добавления в базу: | 01.09.2013 |
| Дата актуализации: | 01.01.2021 |
| Дата введения: | 27.04.1987 |
| Дата окончания срока действия: | 30.06.2003 |
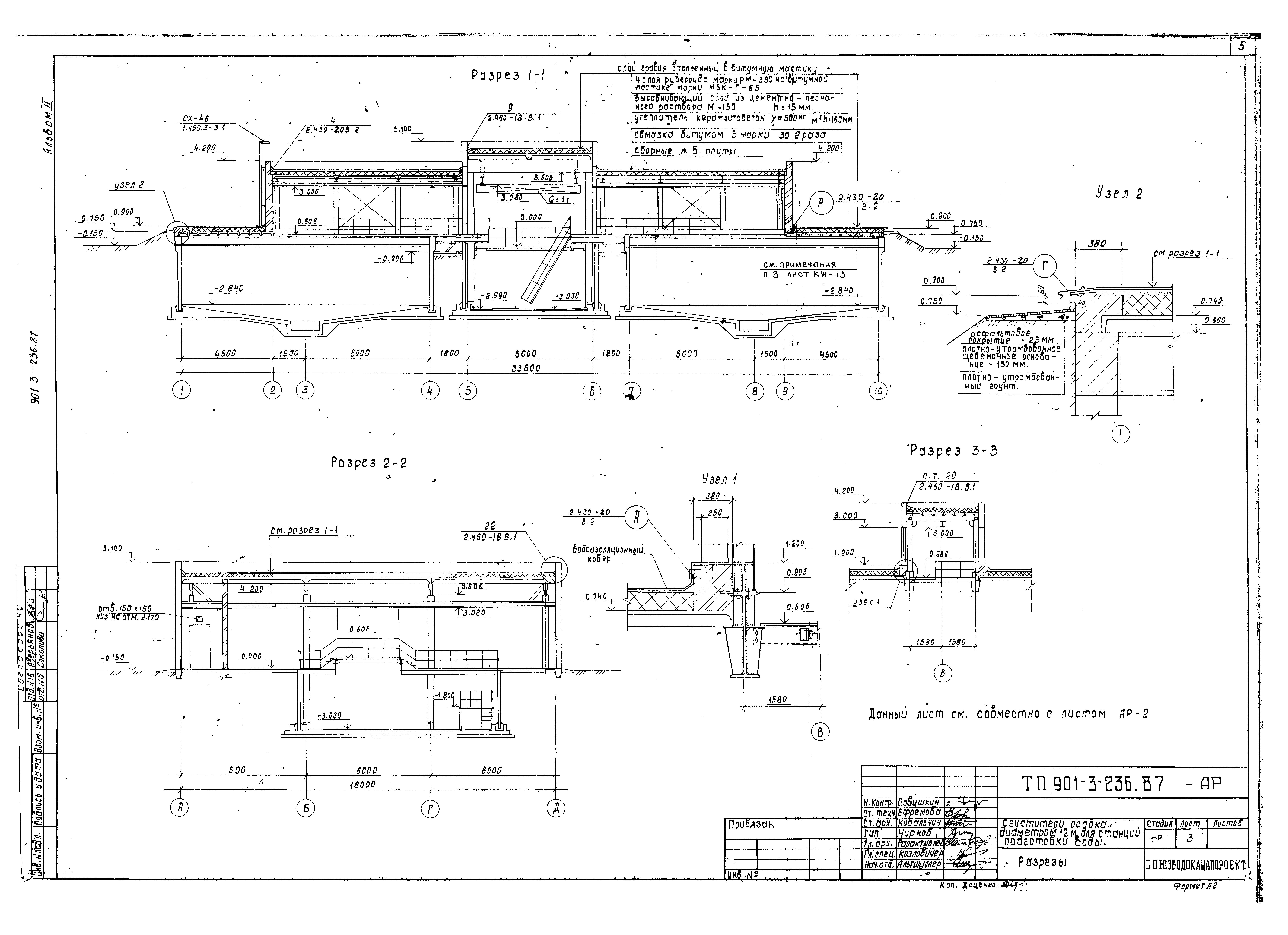
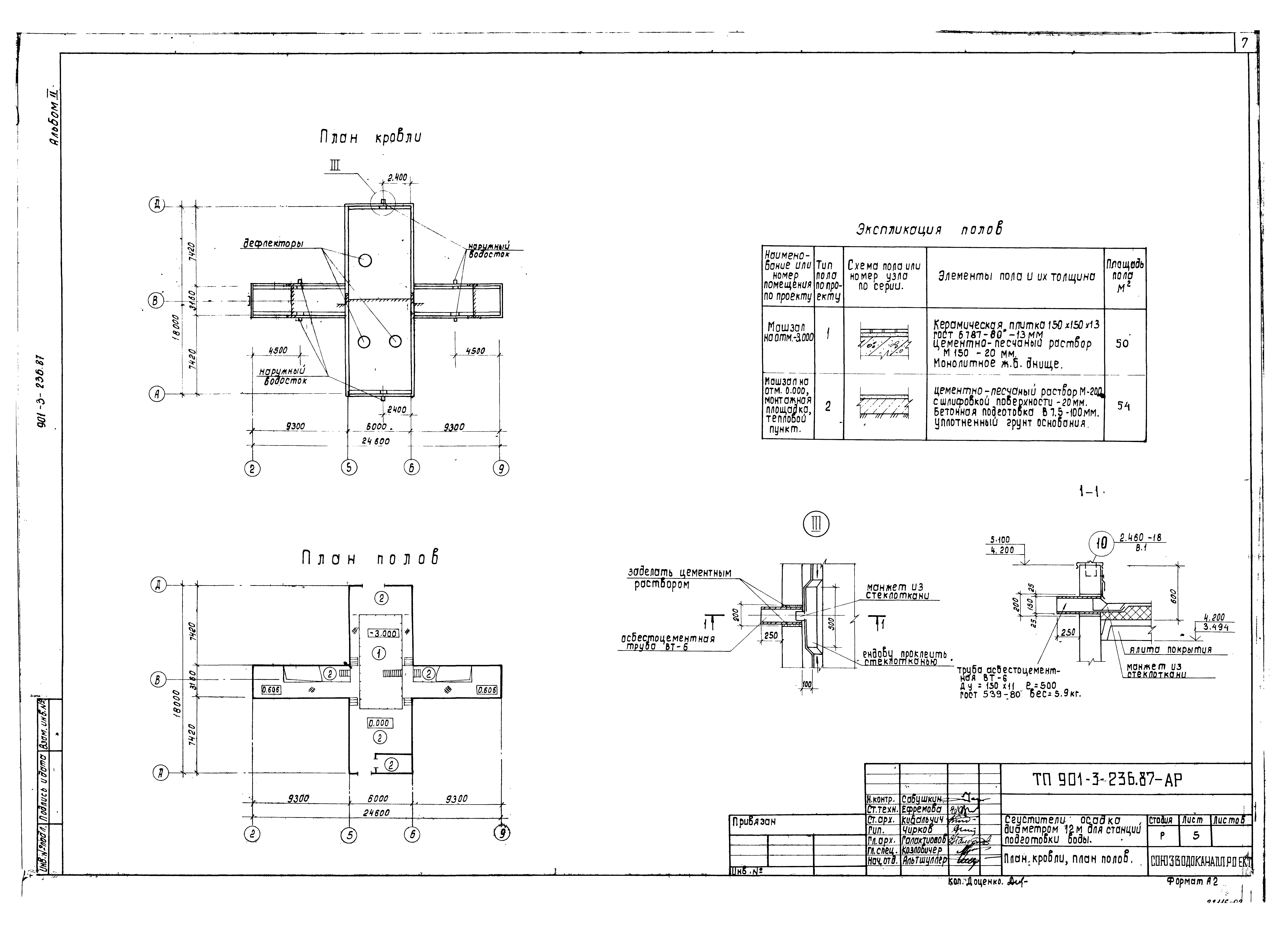
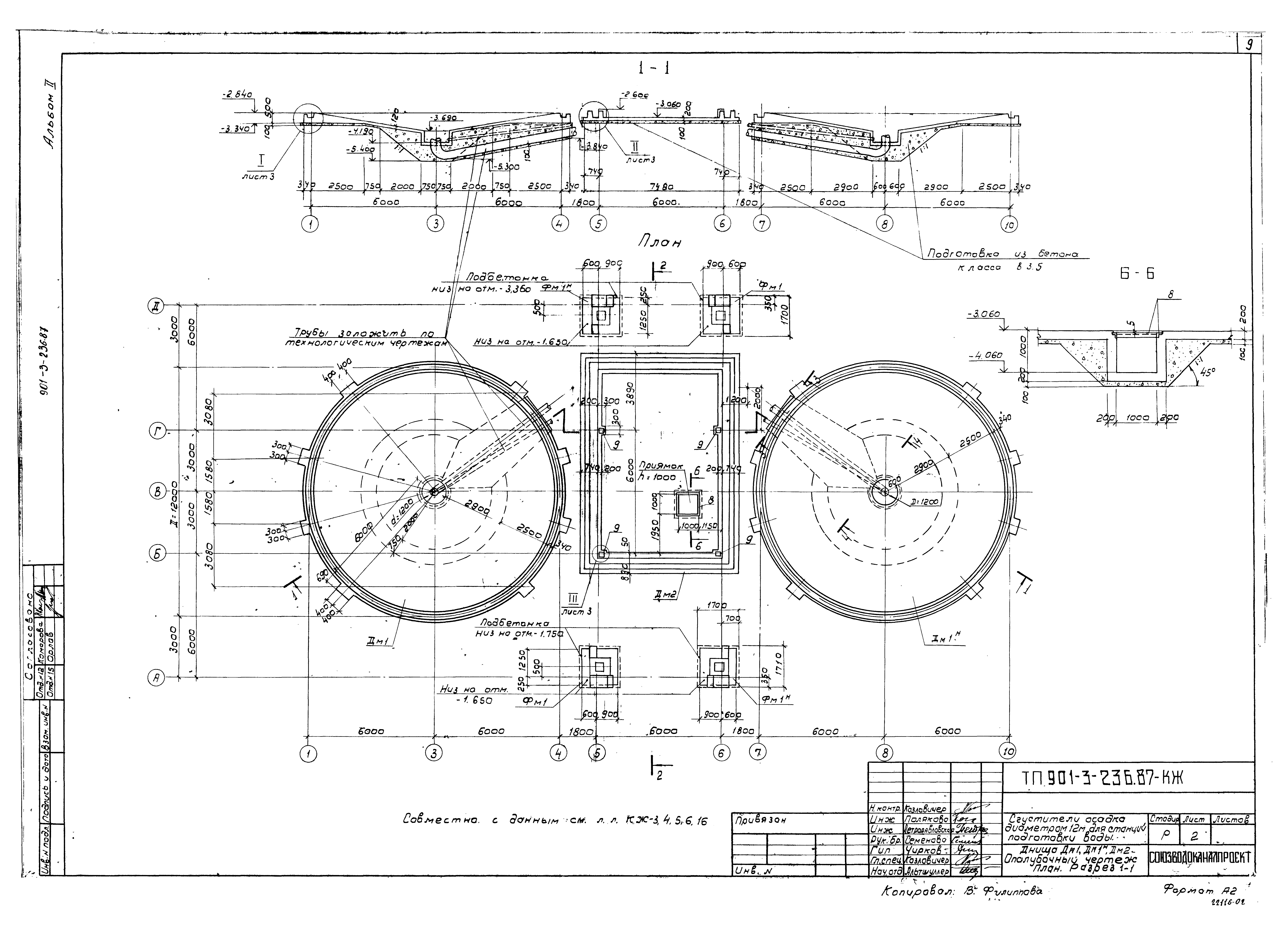
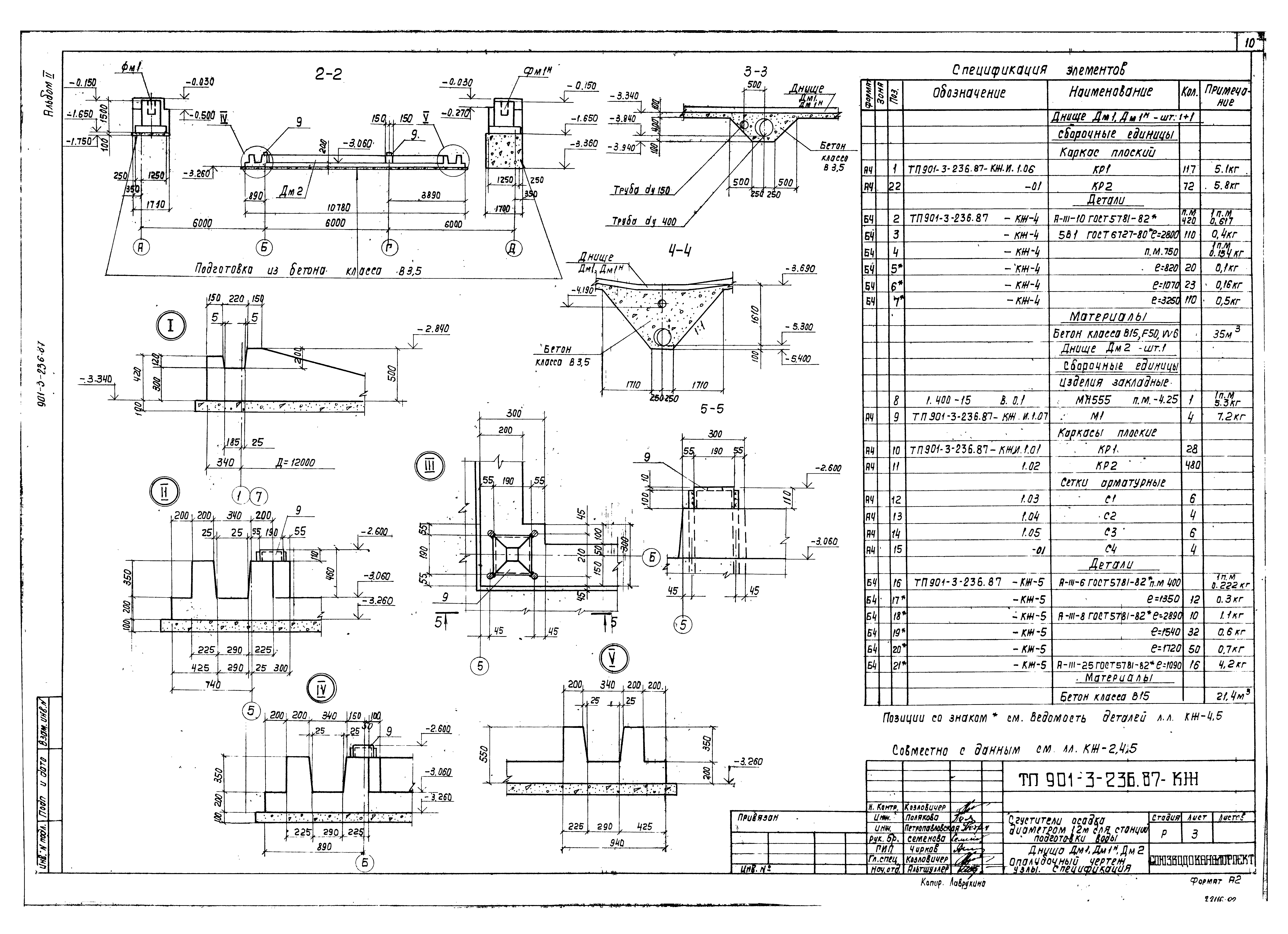
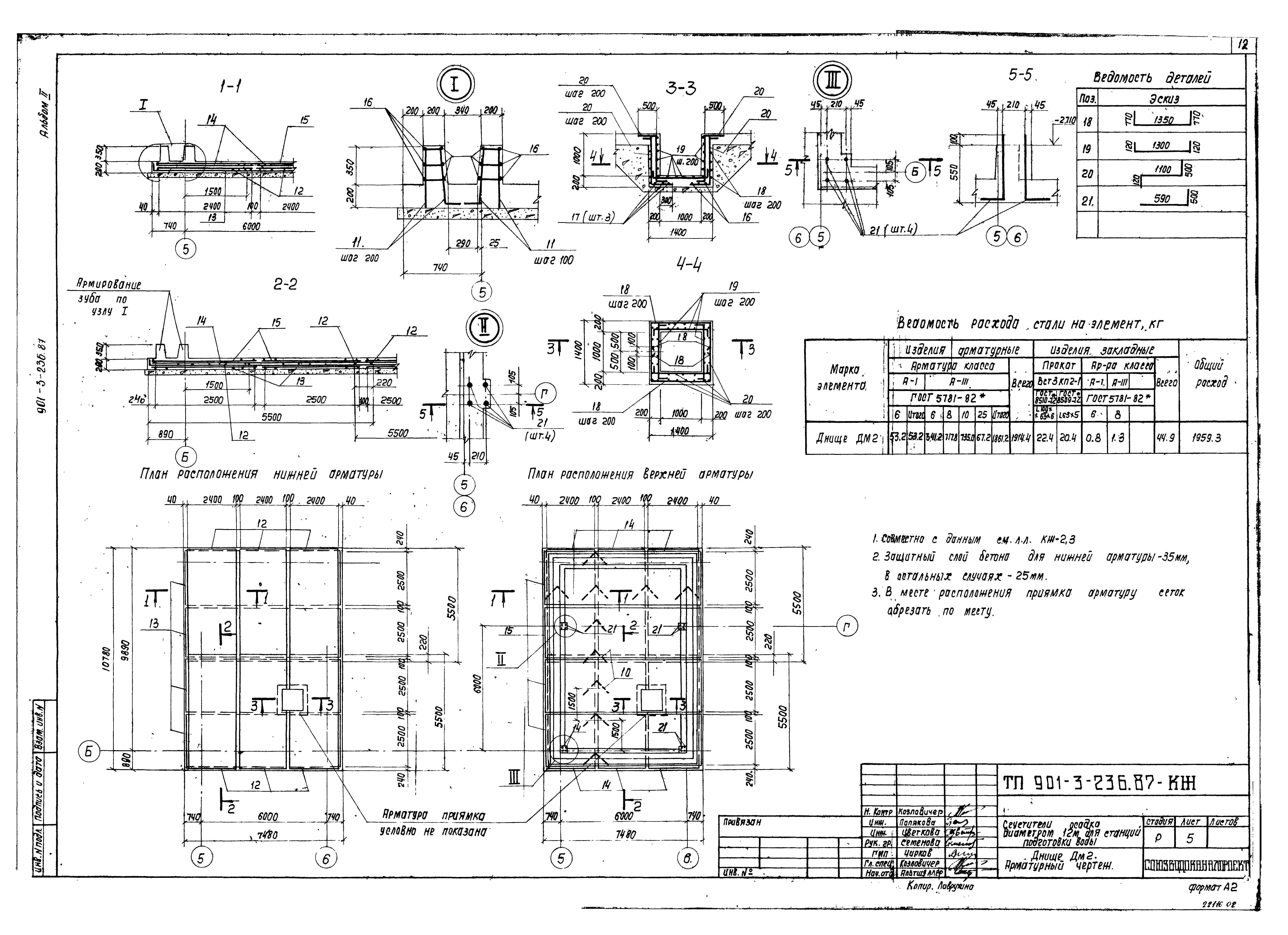
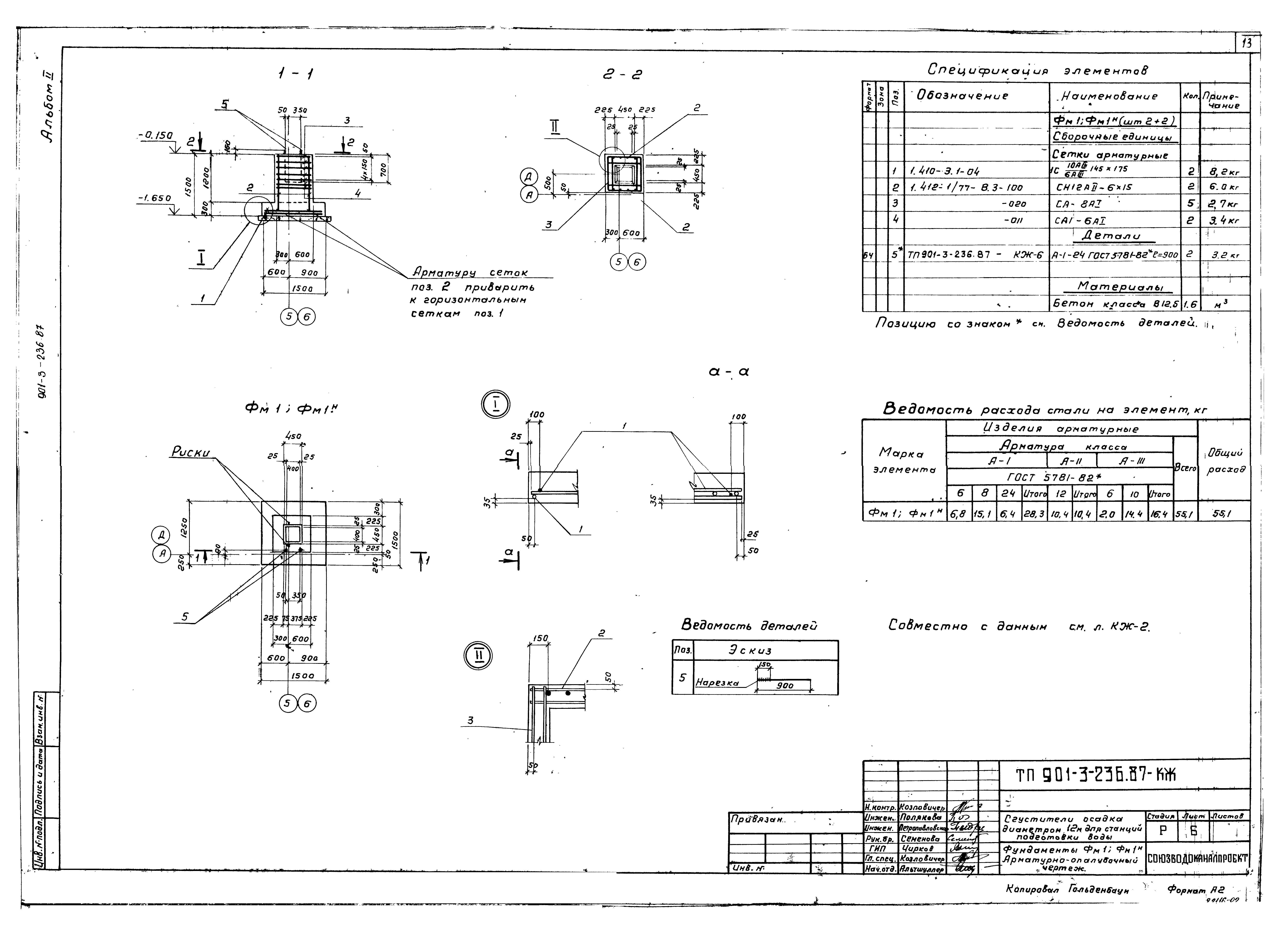
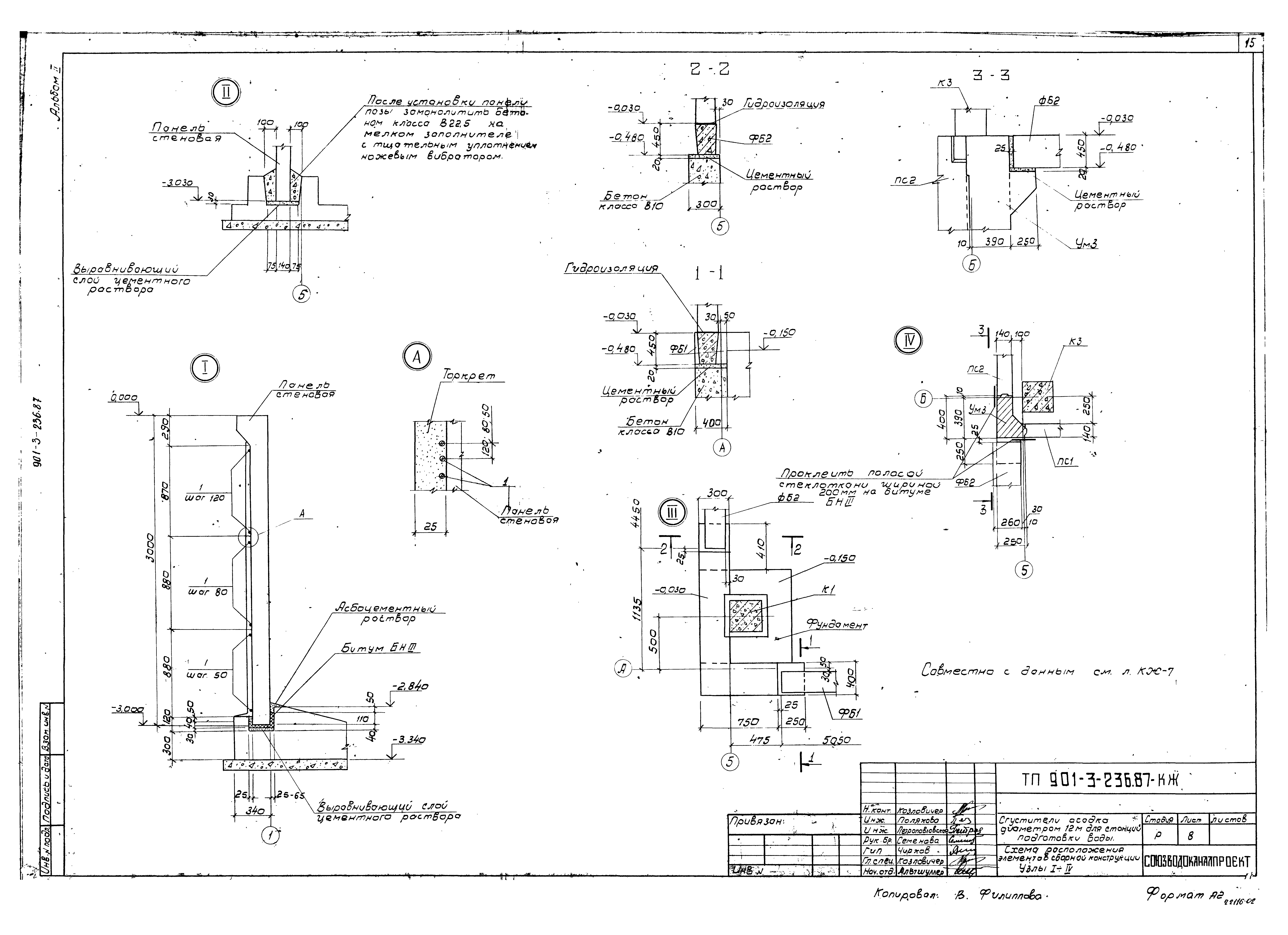
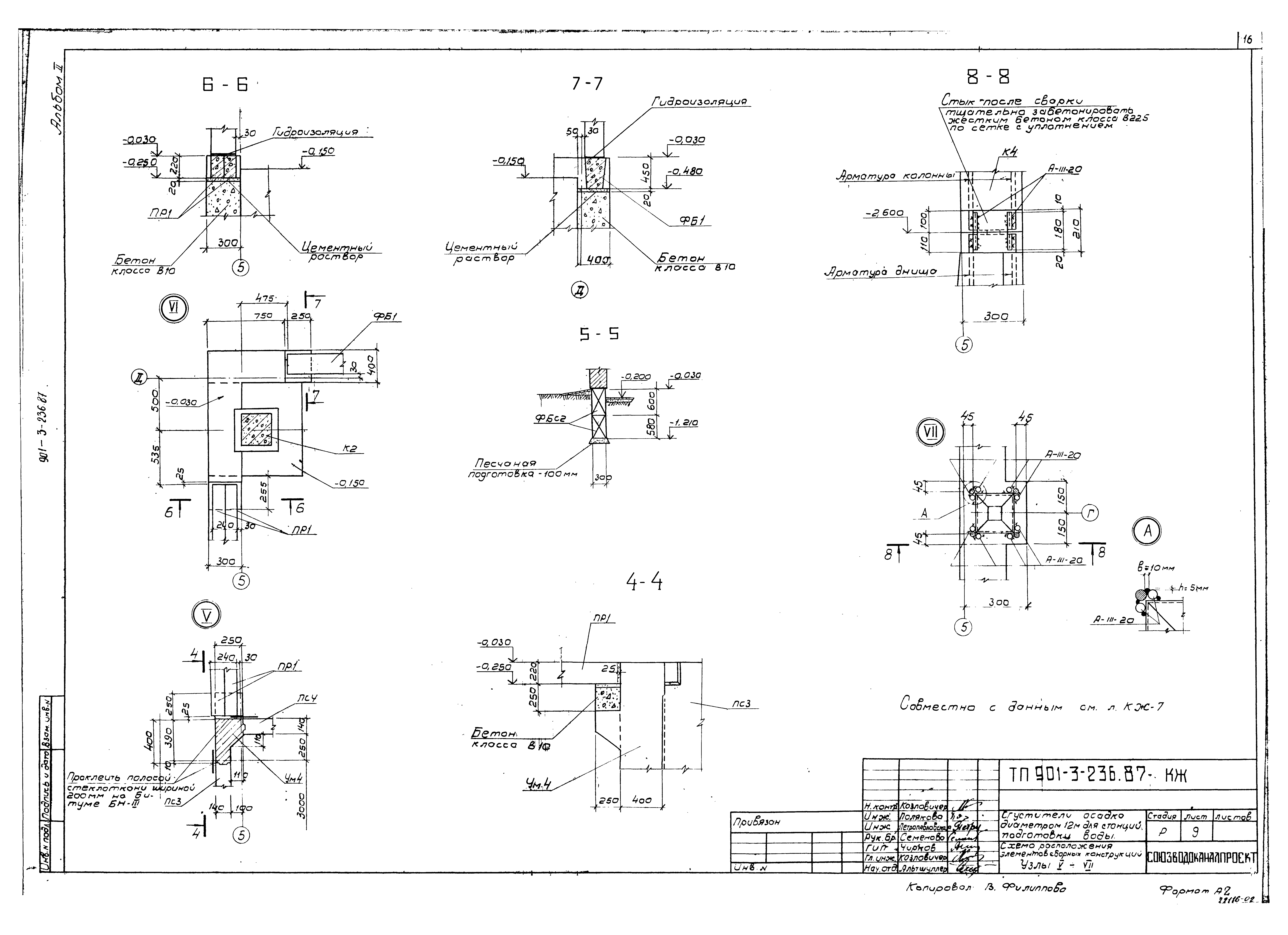
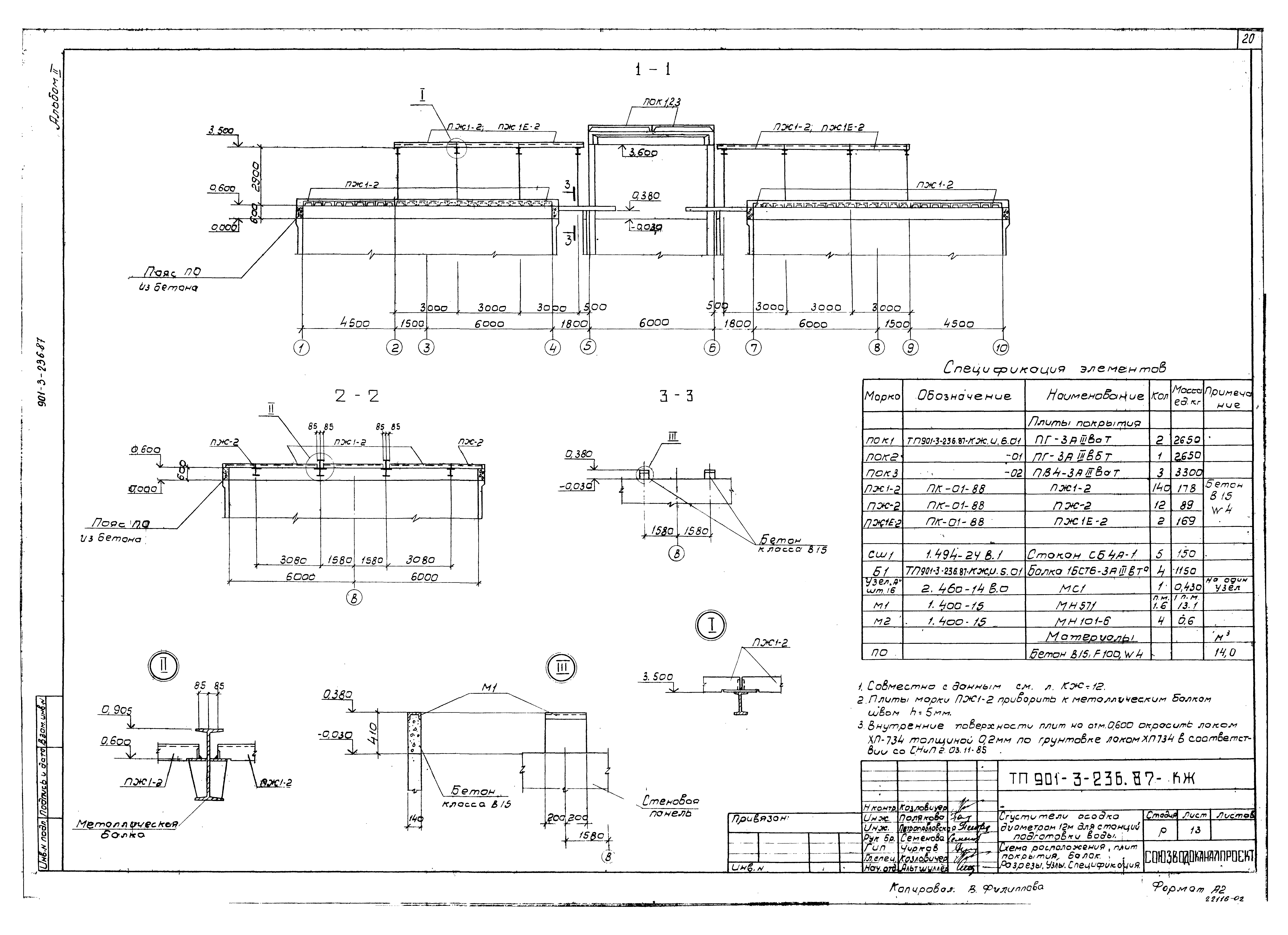
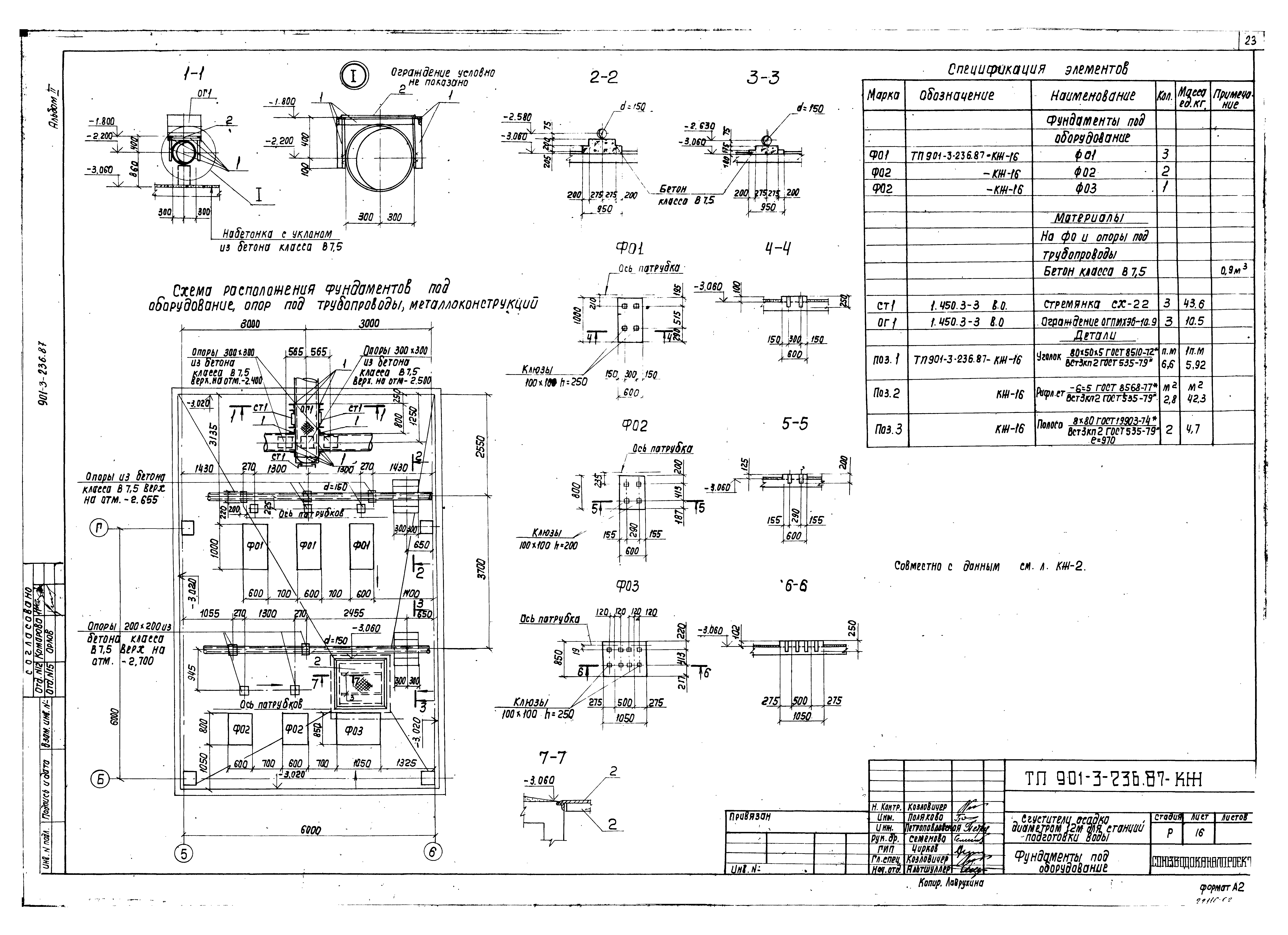
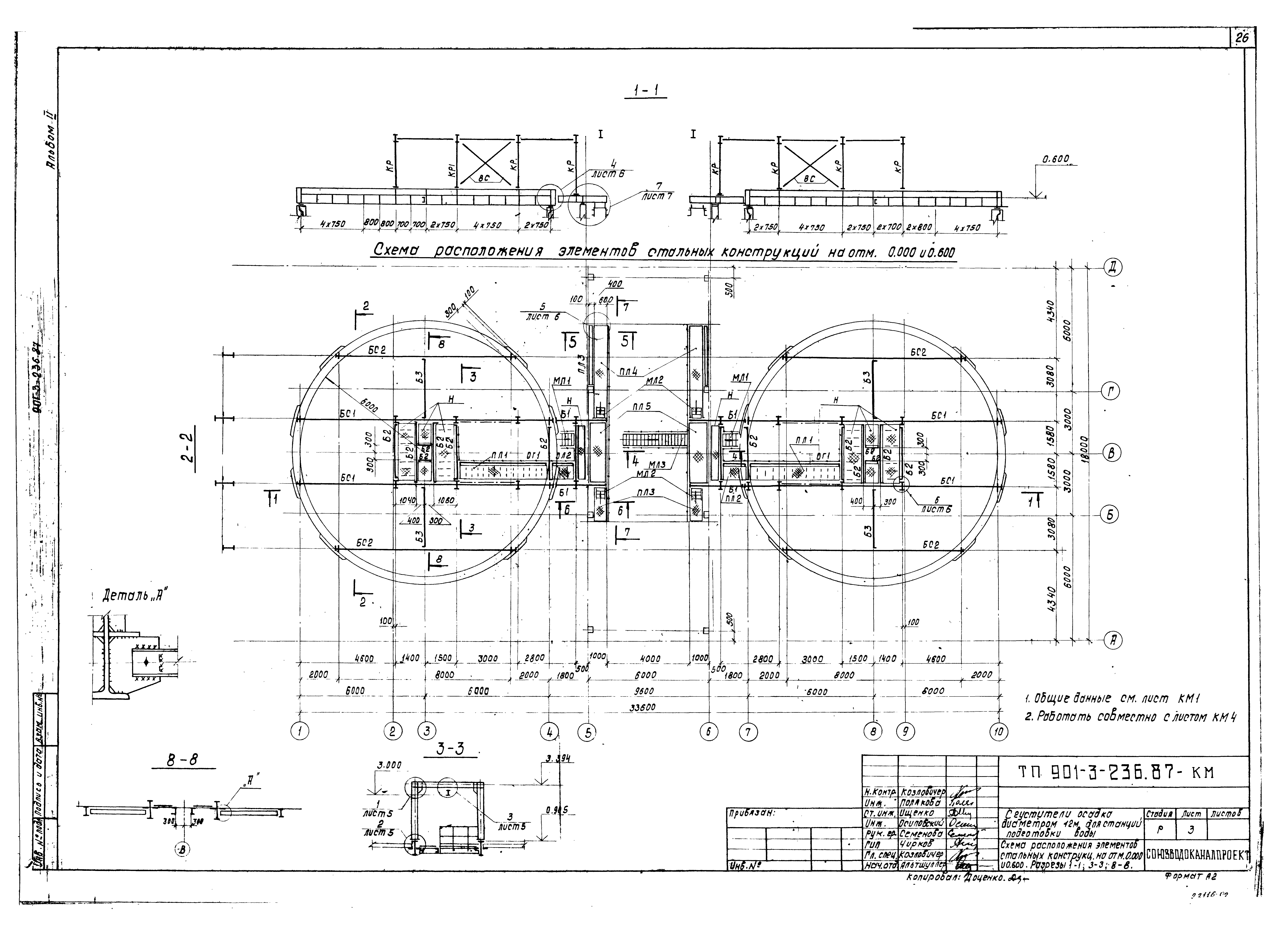
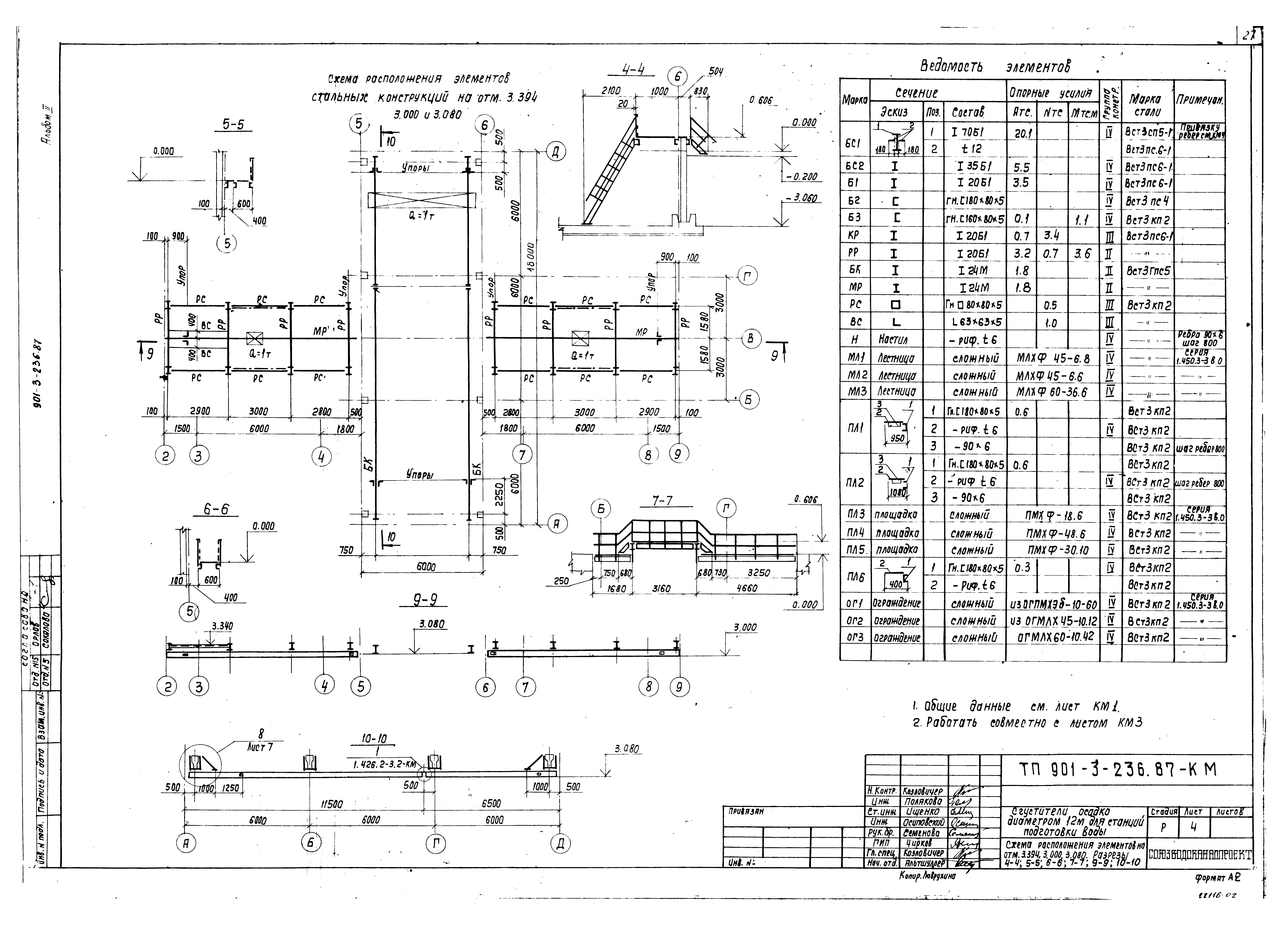
| Оглавление: | Содержание альбома Чертежи основного комплекта марки АР Общие данные План Разрезы Фасады План кровли, план полов Чертежи основного комплекта марки КЖ Общие данные Днища Дм1, Дм1н, Дм2. Опалубочный чертеж. План. Разрез 1-1 Днища Дм1, Дм1н, Дм2. Опалубочный чертеж. Узлы. Спецификация Днища Дм1, Дм1н. Арматурный чертеж Днище Дм2. Арматурный чертеж Фундаменты Фм1, Фм1н. Арматурно-опалубочный чертеж Схема расположения элементов сборных конструкций. План. Разрез 1-1 Схема расположения элементов сборных конструкций. Узлы I - IV Схема расположения элементов сборных конструкций. Узлы V - VII Схема расположения элементов сборных конструкций. Сечения. Спецификации Монолитные участки Ум1, 2, 3, 4. Арматурный чертеж Схема расположения плит покрытия, балок. План Схема расположения плит покрытия, балок. Разрезы. Узлы. Спецификация Схемы расположения стеновых панелей. Фрагменты Схемы расположения стеновых панелей. Спецификации Фундаменты под оборудование Чертежи основного комплекта марки КМ Общие данные Техническая спецификация стали Схема расположения элементов стальных конструкций на отм. 0.000 и 0.600. Разрезы 1-1, 3-3, 8-8 Схема расположения элементов на отм. 3.394; 3.000; 3.080. Разрезы 4-4, 5-5, 6-6, 7-7, 9-9, 10-10 Узлы 1, 2, 3 Узлы 4, 5, 6 Узлы 7, 8 |
| Разработан: | Союзводоканалпроект ВНИИ ВОДГЕО |
| Утверждён: | 25.12.1986 Госстрой СССР (Государственный комитет Совета Министров СССР по делам строительства) (USSR Gosstroy АЧ-95) |






























