Скачать Серия 1.420-4 Выпуск 3. Железобетонные капители, надколонные и пролетные плитыДата актуализации: 01.01.2021
|
| Обозначение: | Серия 1.420-4 |
| Обозначение англ: | Series 1.420-4 |
| Статус: | заменен |
| Название рус.: | Выпуск 3. Железобетонные капители, надколонные и пролетные плиты |
| Дата добавления в базу: | 01.09.2013 |
| Дата актуализации: | 01.01.2021 |
| Дата введения: | 01.10.1970 |
| Дата окончания срока действия: | 01.07.1979 |
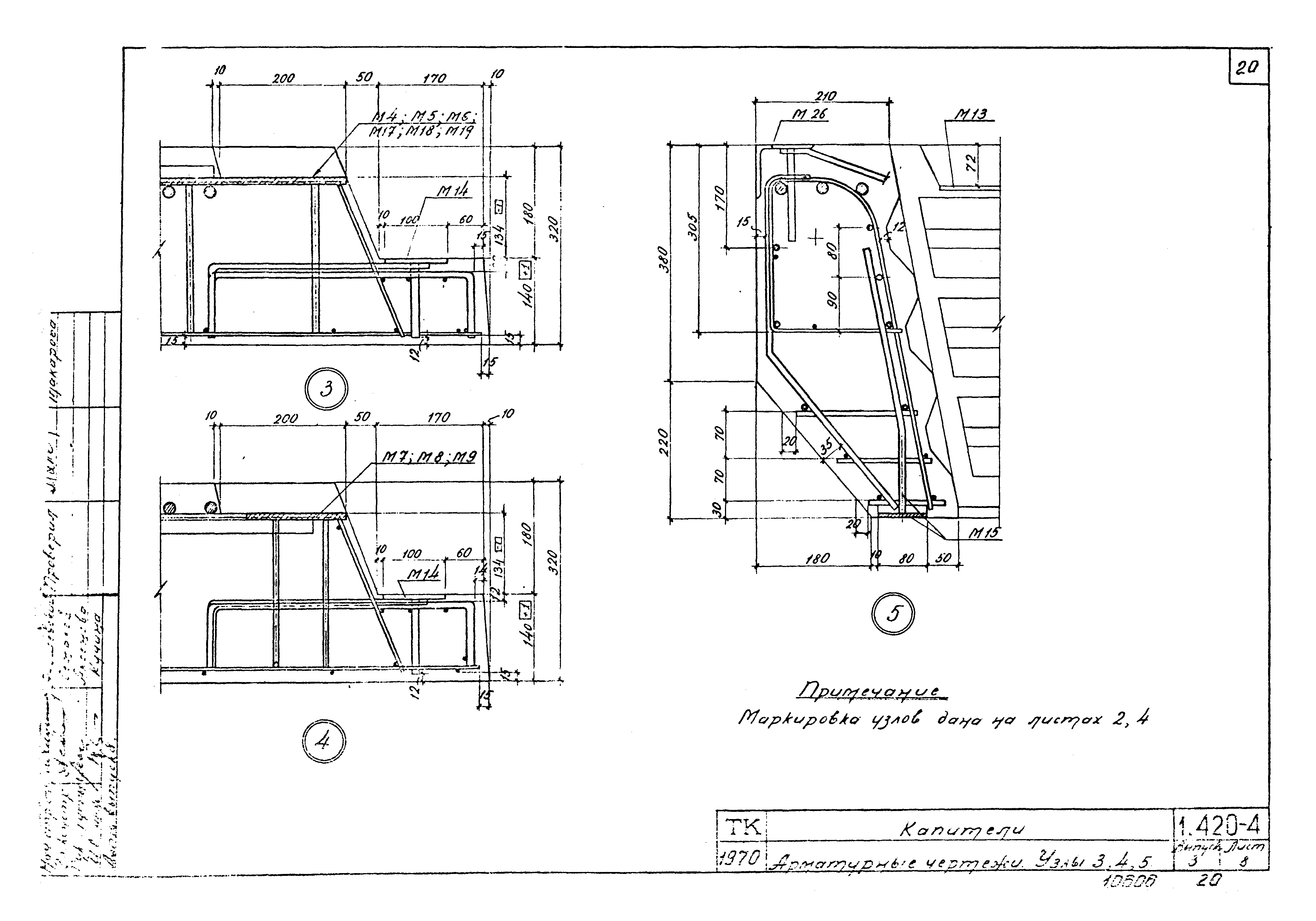
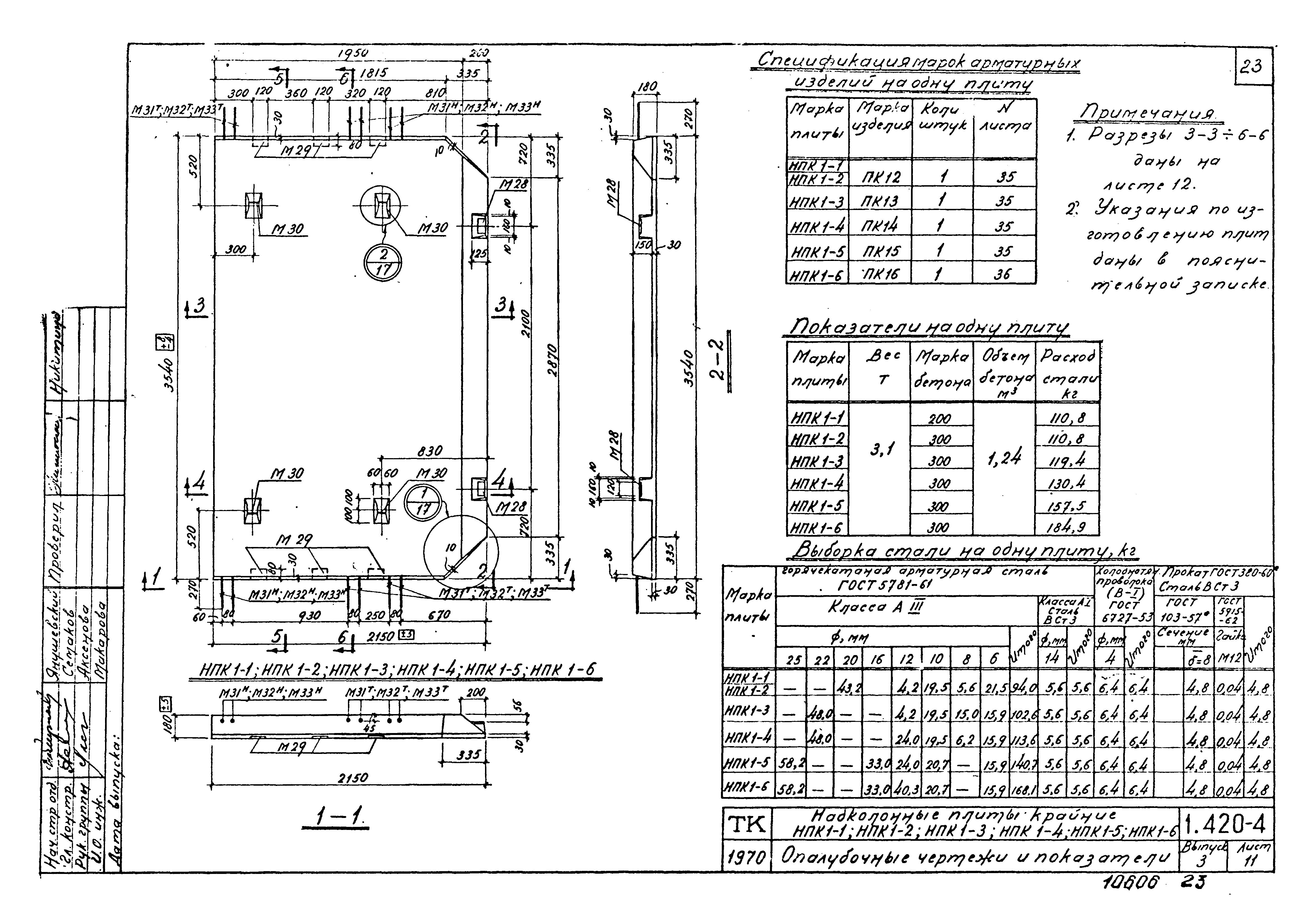
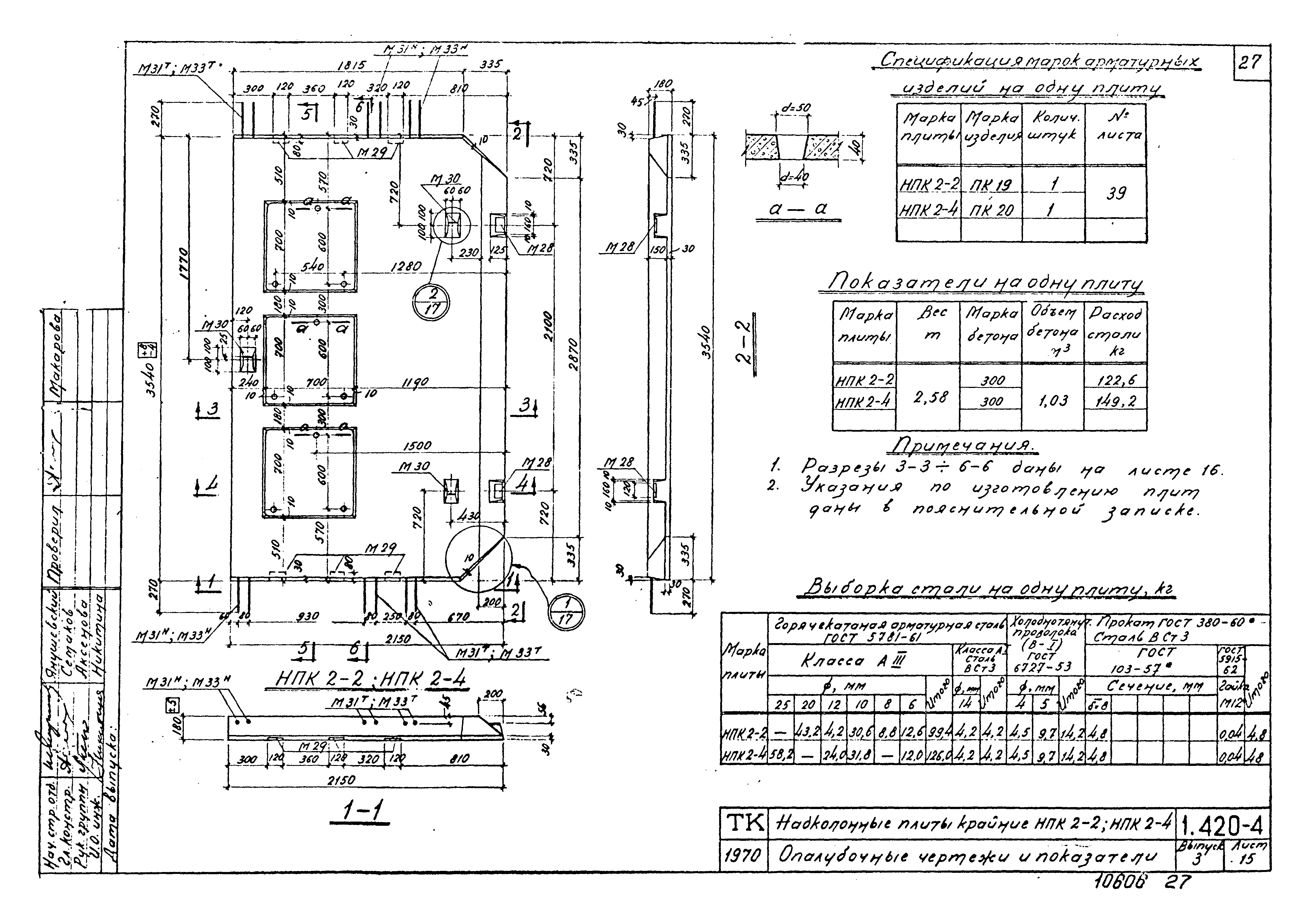
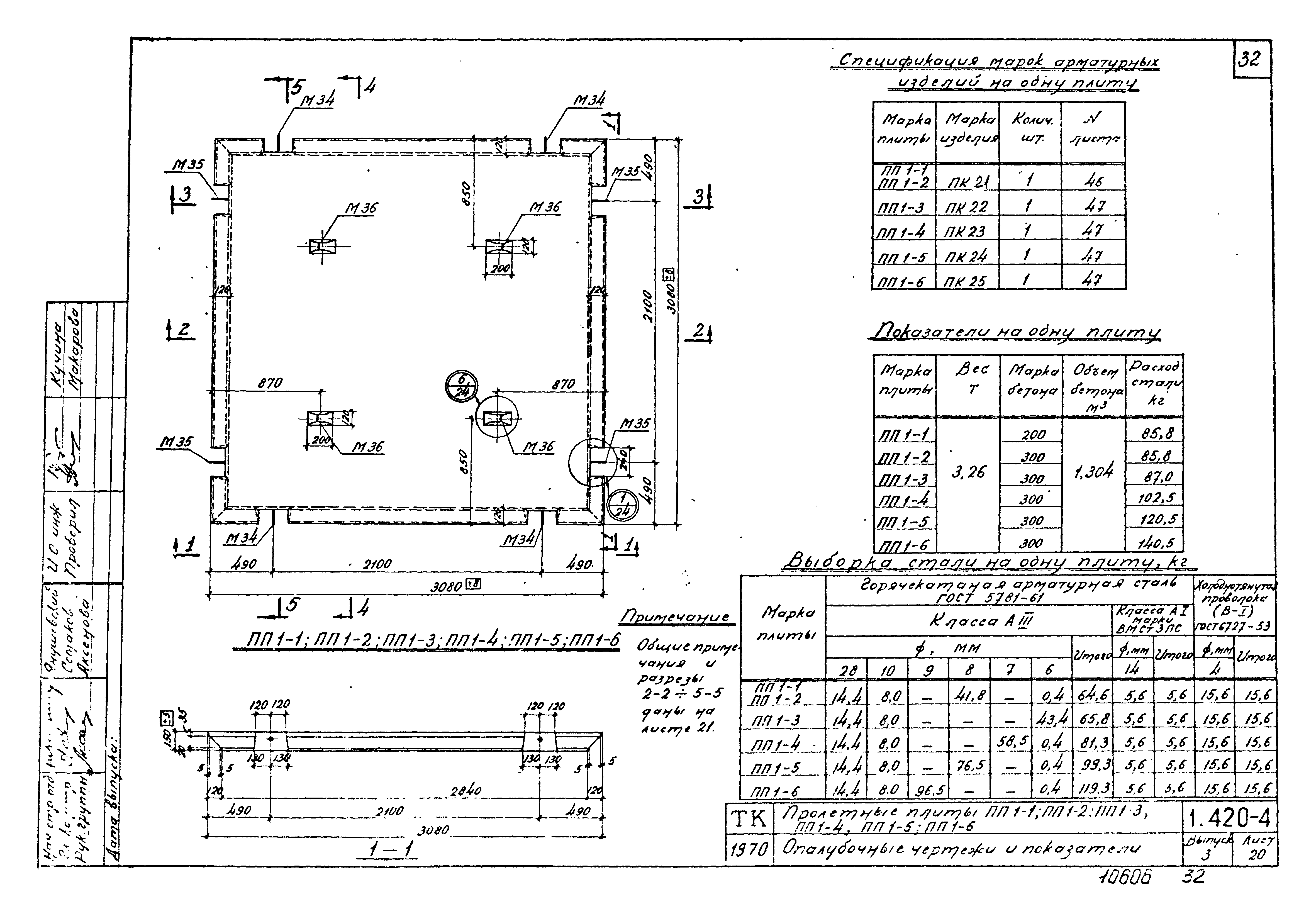
| Оглавление: | Пояснительная записка Капители Капители крайние Надколонные плиты Надколонные плиты крайние Пролетные плиты Капители. Пространственные каркасы Надколонные плиты. Пространственные каркасы Надколонные плиты крайние. Пространственные каркасы Пролетные плиты. Пространственные каркасы Спецификация марок арматурных изделий и закладных элементов на пространственные каркасы Сетки Каркасы Спецификация и выборка стали на одно арматурное изделие (сетки, каркасы) Спецификация отдельных стержней Закладные элементы Заготовительные чертежи отдельных позиций Спецификация стали на закладные элементы |
| Разработан: | ЦНИИпромзданий Гипромясо Госагропрома СССР НИИЖБ |
| Утверждён: | 08.05.1970 Госстрой СССР (Государственный комитет Совета Министров СССР по делам строительства) (USSR Gosstroy ) |
| Чем заменён: |

























































































