Скачать Технические указания по содержанию узкоколейных железных лесовозных дорогДата актуализации: 01.01.2021 |
| Статус: | справочные материалы, мп, тпр |
| Название рус.: | Технические указания по содержанию узкоколейных железных лесовозных дорог |
| Дата добавления в базу: | 01.02.2020 |
| Дата актуализации: | 01.01.2021 |
| Область применения: | В Технических указаниях приведены нормы и допуски содержания пути, основные данные по элементам верхнего строения пути, определены порядок и сроки проведения обследований по состоянию путей, очередность проведения работ, балльная система оценки состояния пути, особенности содержания пути с длинными сварными рельсами, даны технологические карты производства путевых работ, основные требования правил техники безопасности при производстве путевых работ и т. д. Предназначены для мастеров и бригадиров пути, руководящих ИТР узкоколейных железных дорог в качестве обязательной инструкции наравне с Правилами технической эксплуатации узкоколейных железных дорог. |
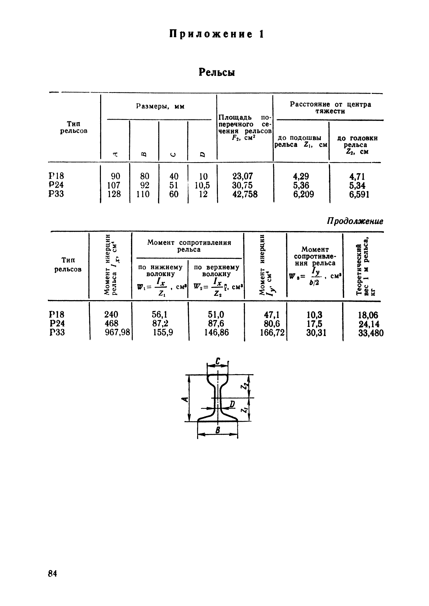
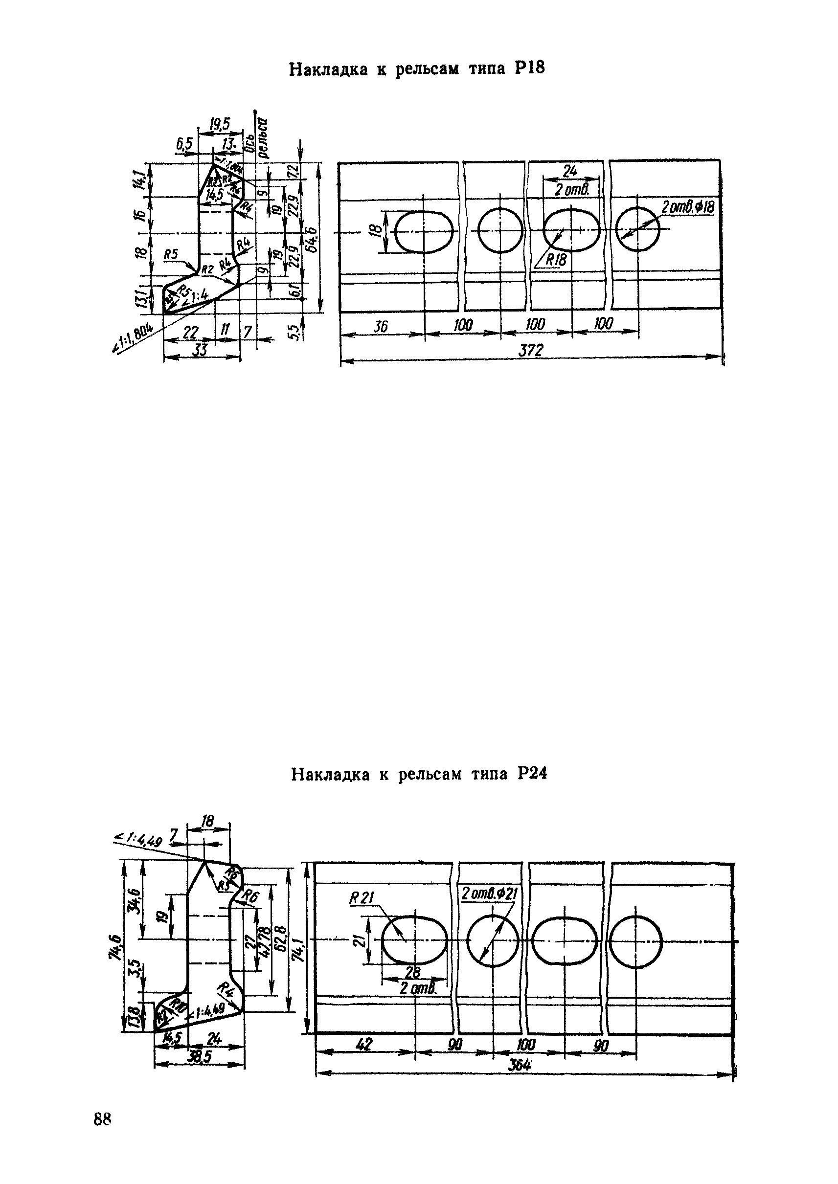
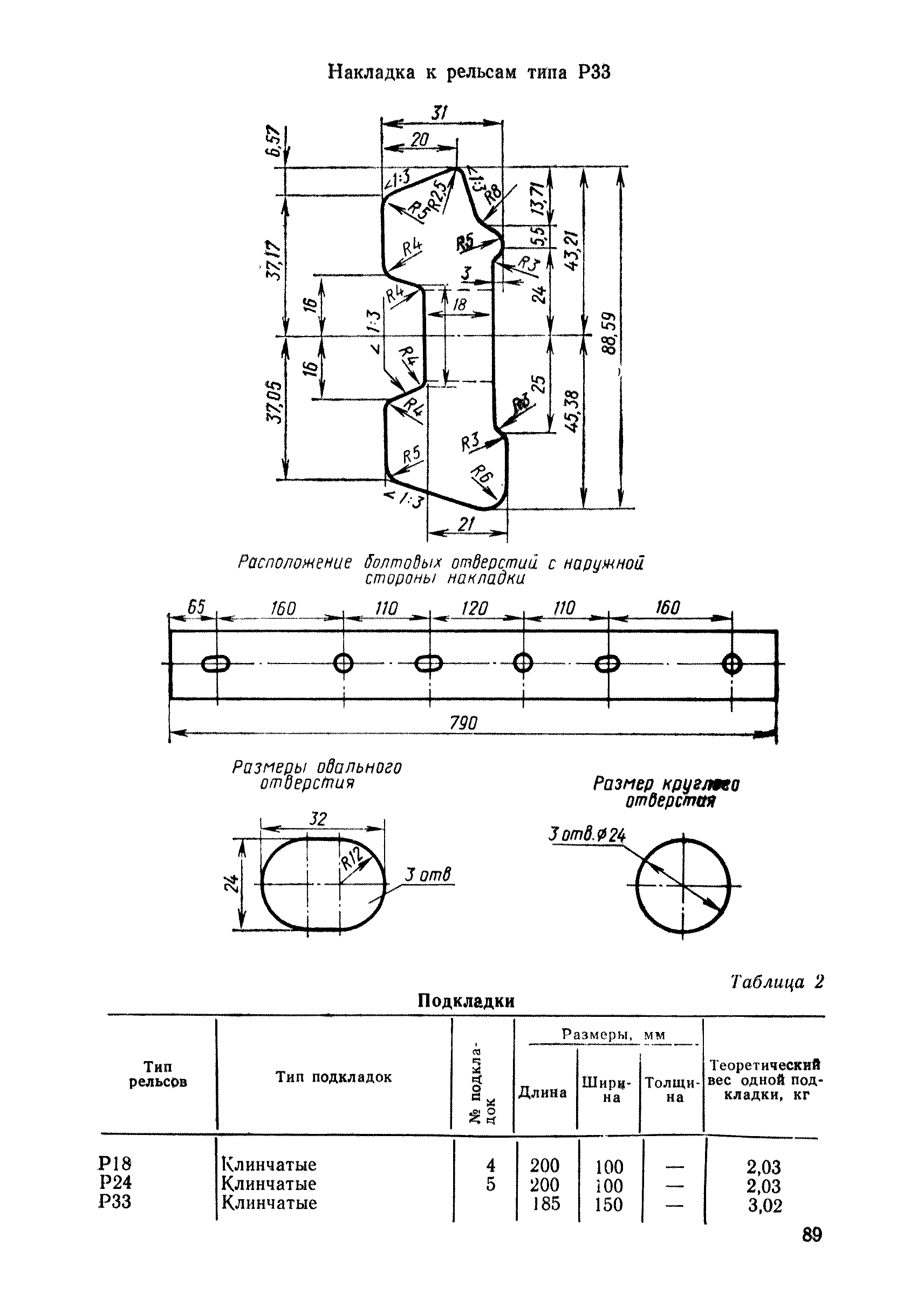
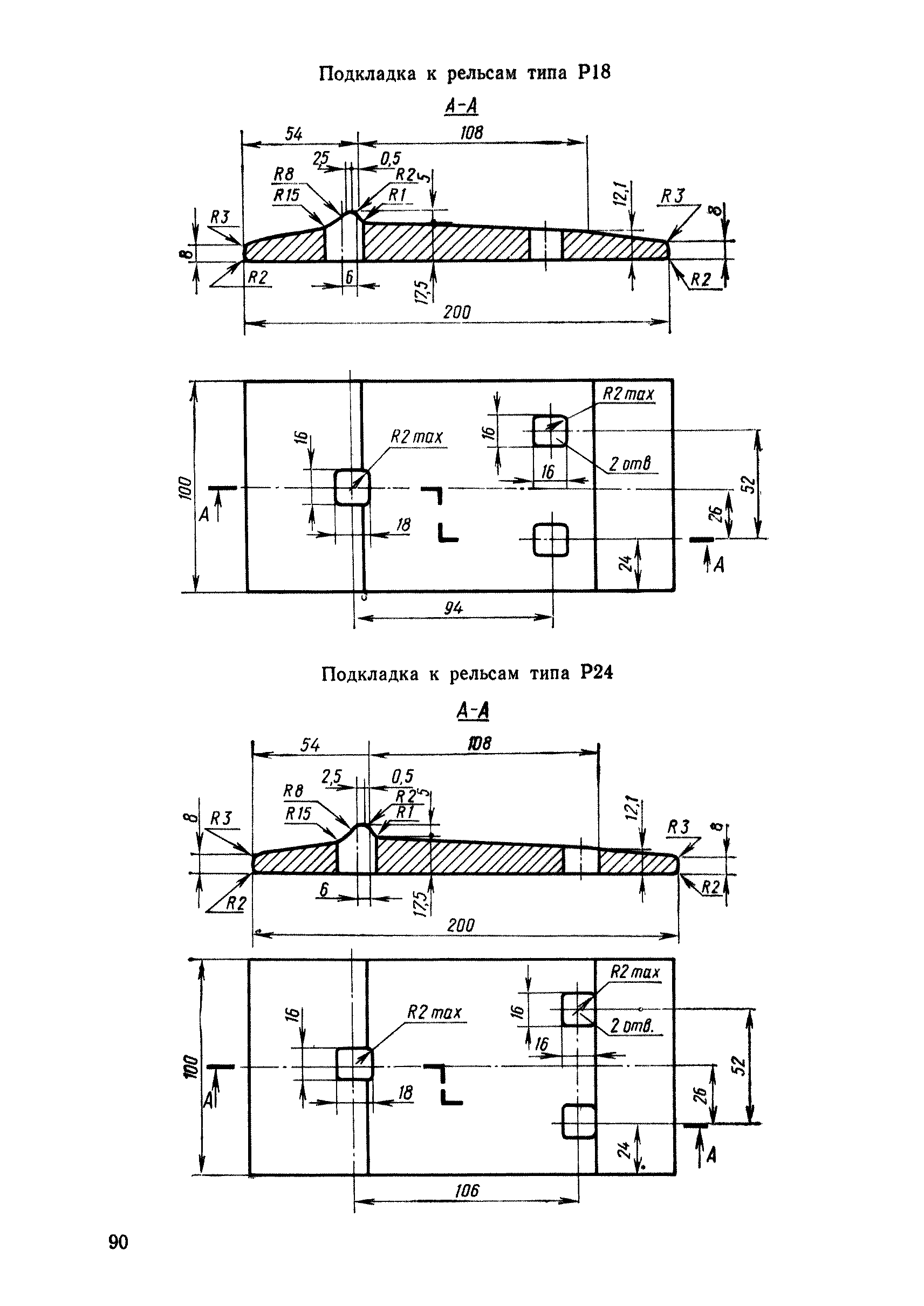
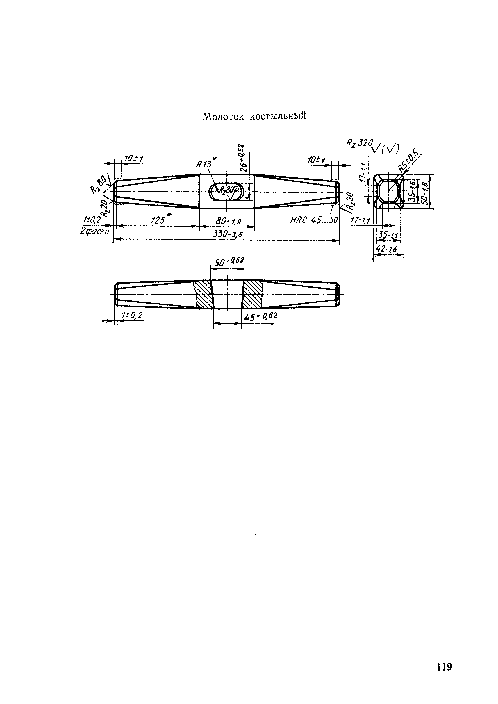
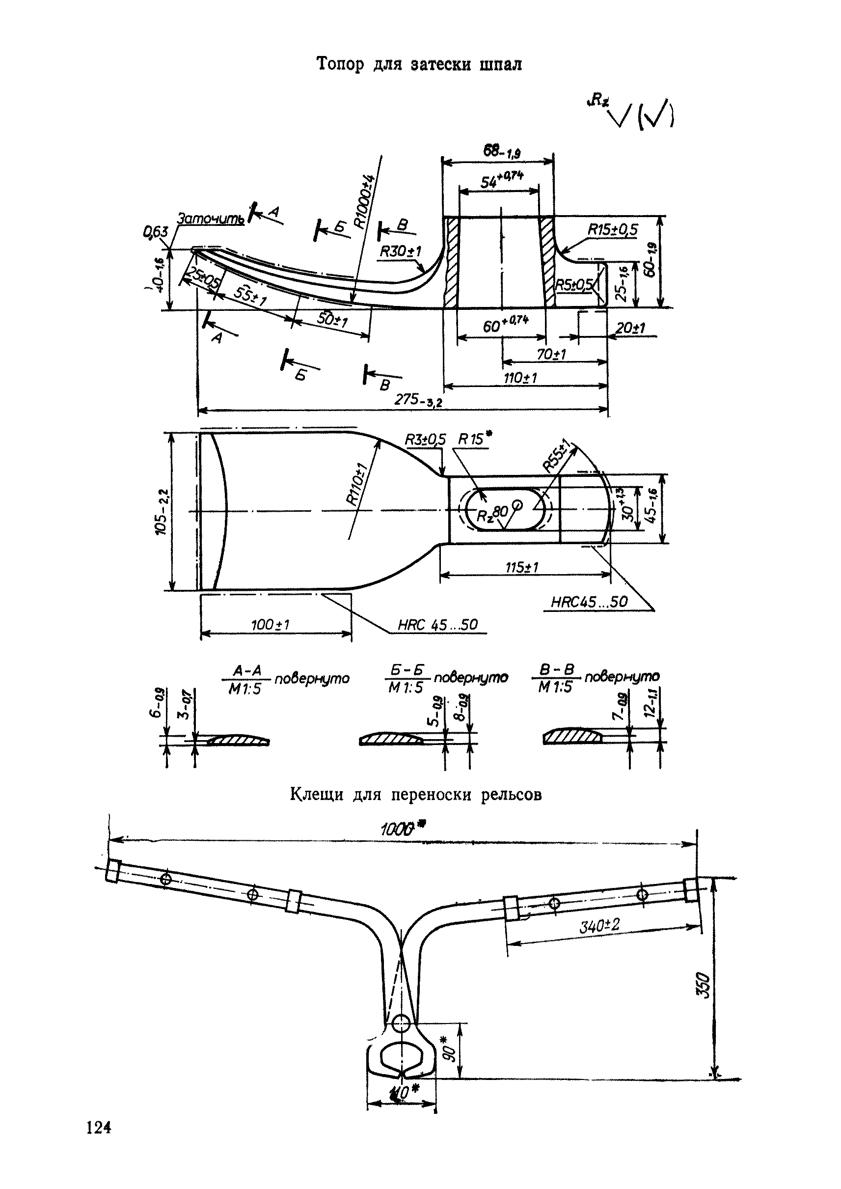
| Оглавление: | 1 Основные положения 2 Технические условия и нормы содержания пути 3 Предупреждение появления в пути неисправностей 4 Планирование и организация работ но текущему содержанию пути 5 Подъемочный ремонт пути 6 Капитальный ремонт и реконструкция пути 7 Звеньевая укладка и разборка временных путей и блочных стрелочных переводов 8 Особенности содержания пути на усах 9 Организация консервирования шпал 10 Периодические проверки и оценка состояния пути 11 Содержание и хранение механизмов, приборов, инструментов и материалов 12 Организация снегоборьбы 13 Основные правила техники безопасности Приложение 1. Рельсы Приложение 2. Скрепления. Накладки Приложение 3. Типовые поперечные профили верхнего строения узкоколейных железных лесовозных дорог Приложение 4. Порядок размещения шпал на звене Приложение 5. Шпалы и переводные брусья Приложение 6. Переезды Приложение 7. Типовые поверечные профили земляного полотна узкоколейных железных лесовозных дорог Приложение 8. Стрелочные переводы Приложение 9. График работ по текущему содержанию и оценке состояния пути и путевых устройств Приложение 10. Технические характеристики шпалоподбивочной машины ЛД-22, путевой машины ДМ-7 и шпалопропиточной установки Приложение 11. Технические характеристики путевых механизмов Приложение 12. Табель инструмента, сигнальных принадлежностей и инвентаря для бригад по текущему содержанию пути Приложение 13. Технические характеристики строительно-ремонтного поезда ТУ6СП, путеперекладчика ППР-2МА, крановой установки ЛТ-110 Приложение 14. Книга осмотра пути и сооружений Приложение 15. Книга проверки пути Приложение 16. Характеристика тягового и подвижного состава Приложение 17. Нормы расхода материалов на текущее содержание узкоколейных железных лесовозных дорог и нормы покилометрового запаса Приложение 18. Снеговые щиты Приложение 19. Книга записи предупреждений, выдаваемых на поезда Приложение 20. Обязательство |
| Разработан: | СевНИИП |
| Утверждён: | 26.11.1982 Министерство лесной, целлюлозно-бумажной и деревообрабатывающей промышленности СССР (USSR Ministry of the Wood, Wood Processing, Pulp and Paper Industries ) |
| Издан: | Издательство Лесная промышленность (1985 г. ) |
| Нормативные ссылки: |
|









































































































































