Скачать Типовой проект 224-1-454.85 Альбом I. Архитектурно-строительные и технологические чертежиДата актуализации: 01.01.2021
|
| Обозначение: | Типовой проект 224-1-454.85 |
| Обозначение англ: | 224-1-454.85 |
| Статус: | не определен законодательством |
| Название рус.: | Альбом I. Архитектурно-строительные и технологические чертежи |
| Дата добавления в базу: | 01.09.2013 |
| Дата актуализации: | 01.01.2021 |
| Дата введения: | 18.12.1985 |
| Дата окончания срока действия: | 30.06.2003 |
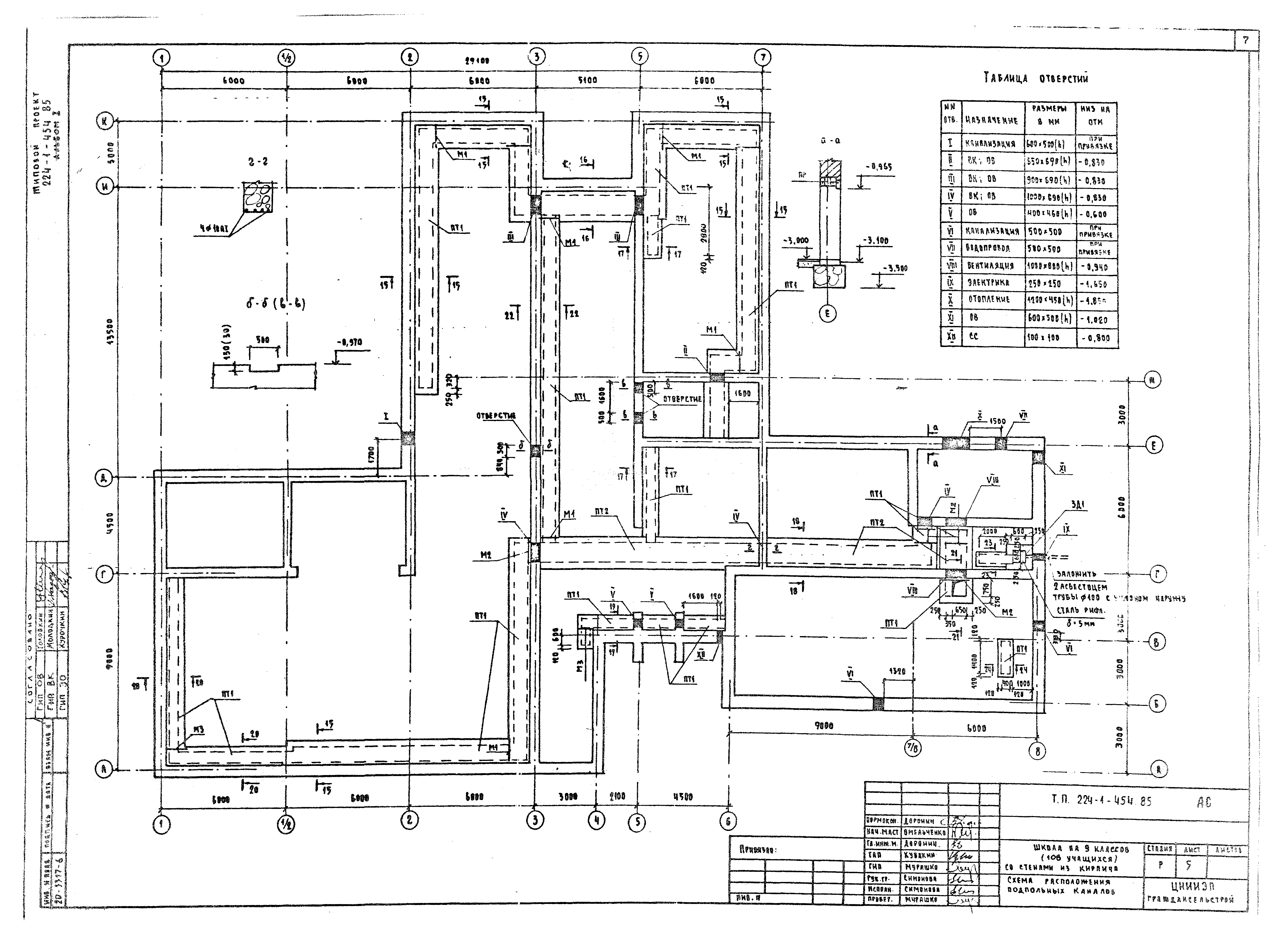
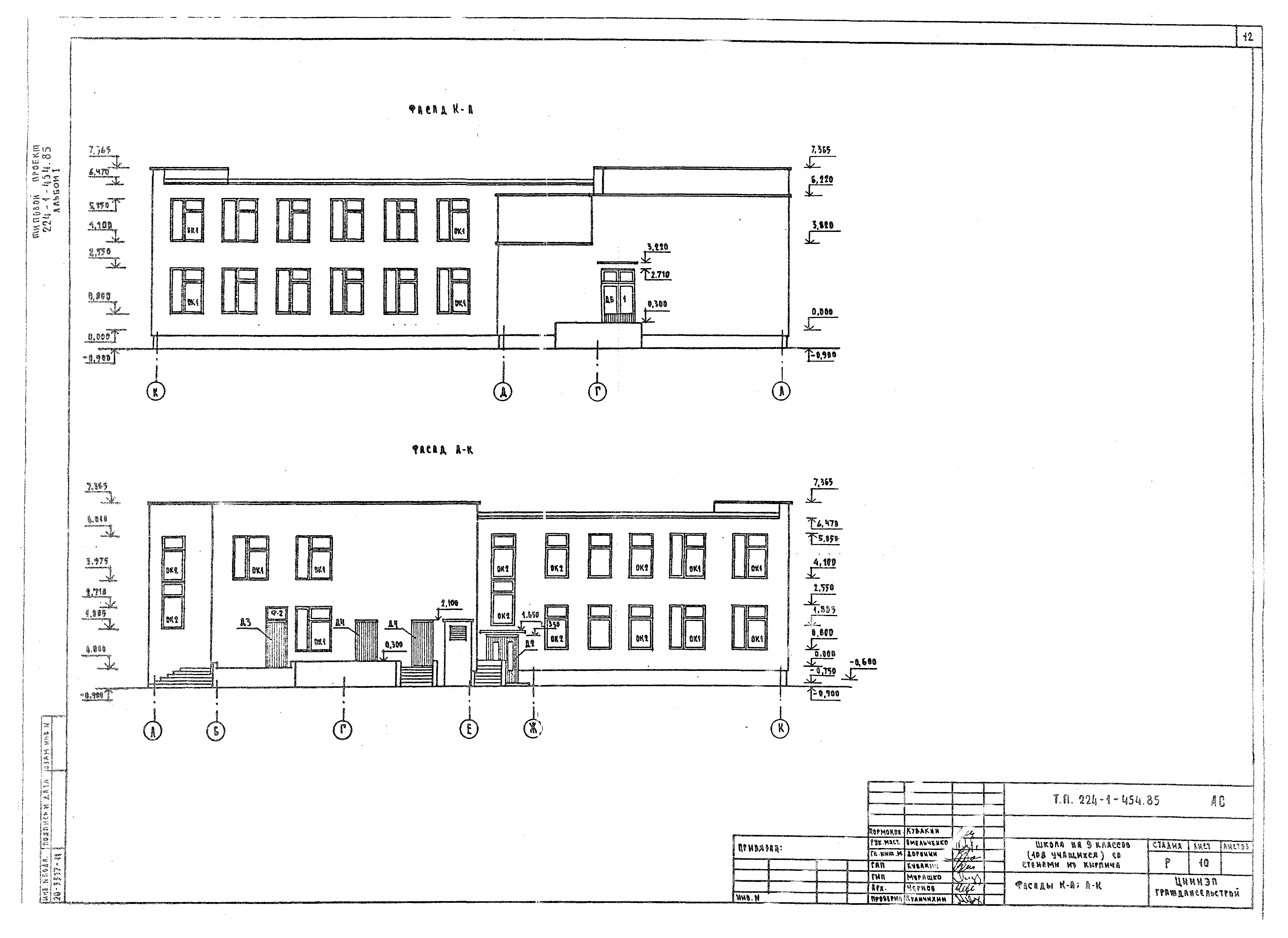
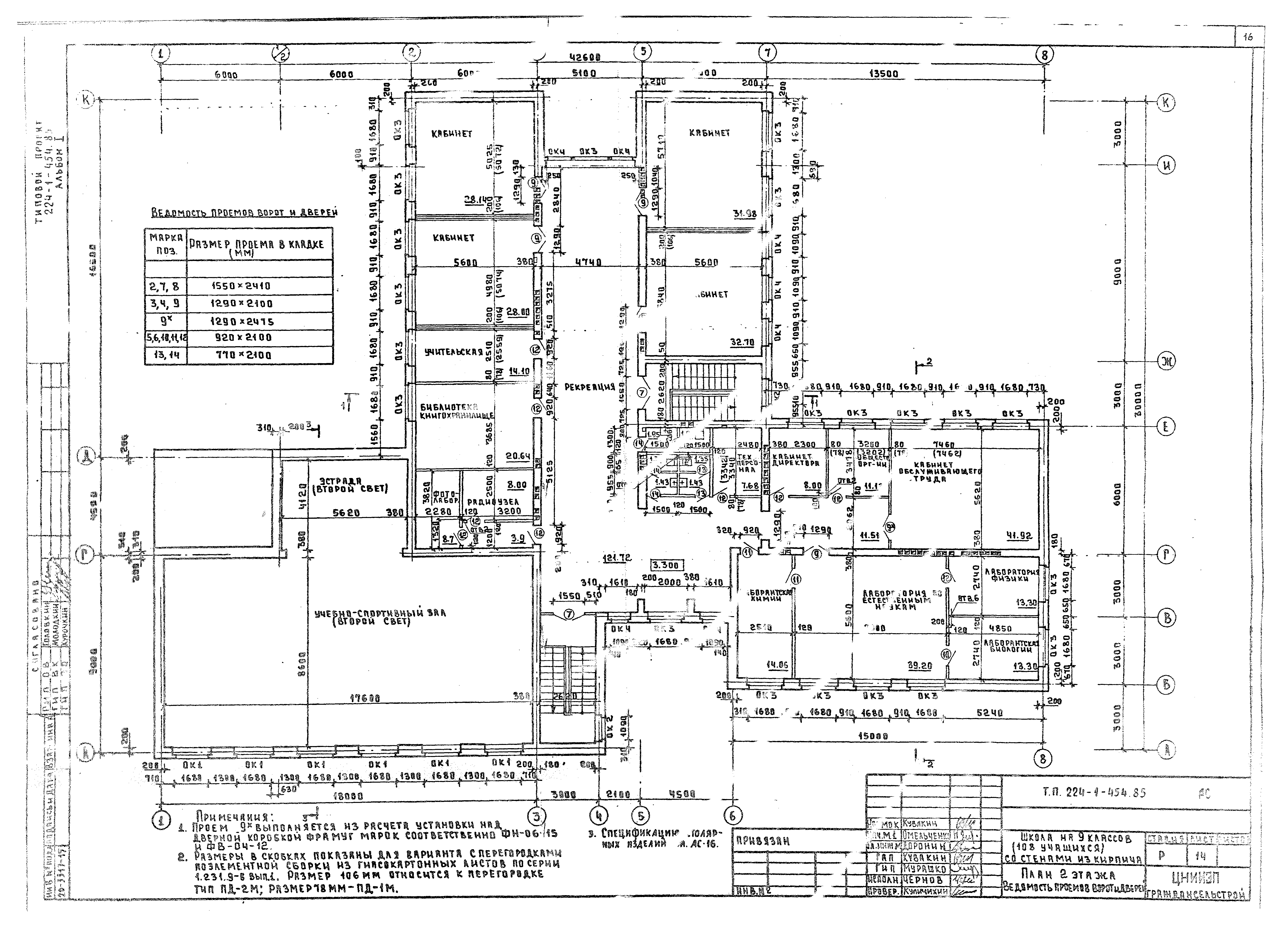
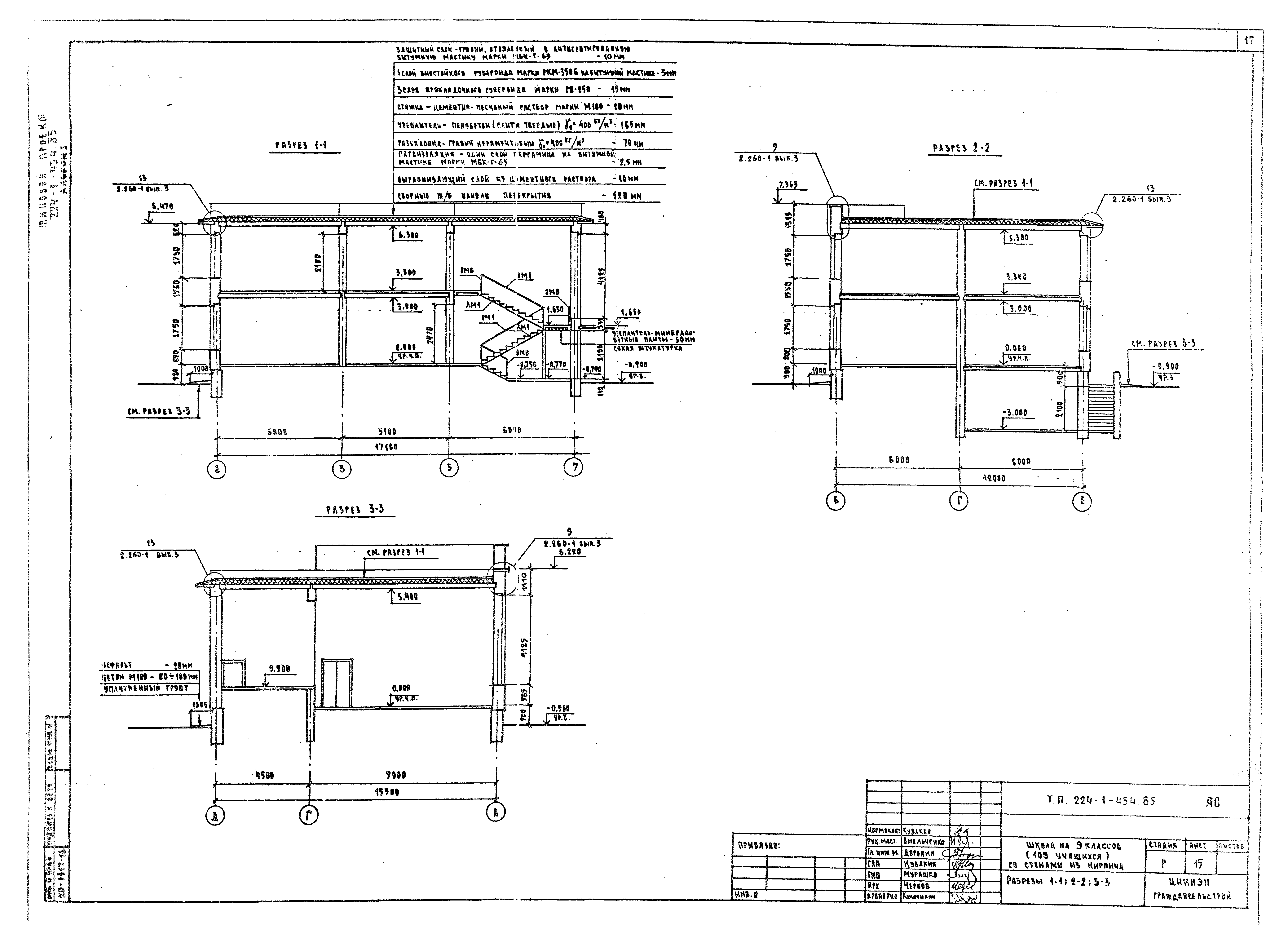
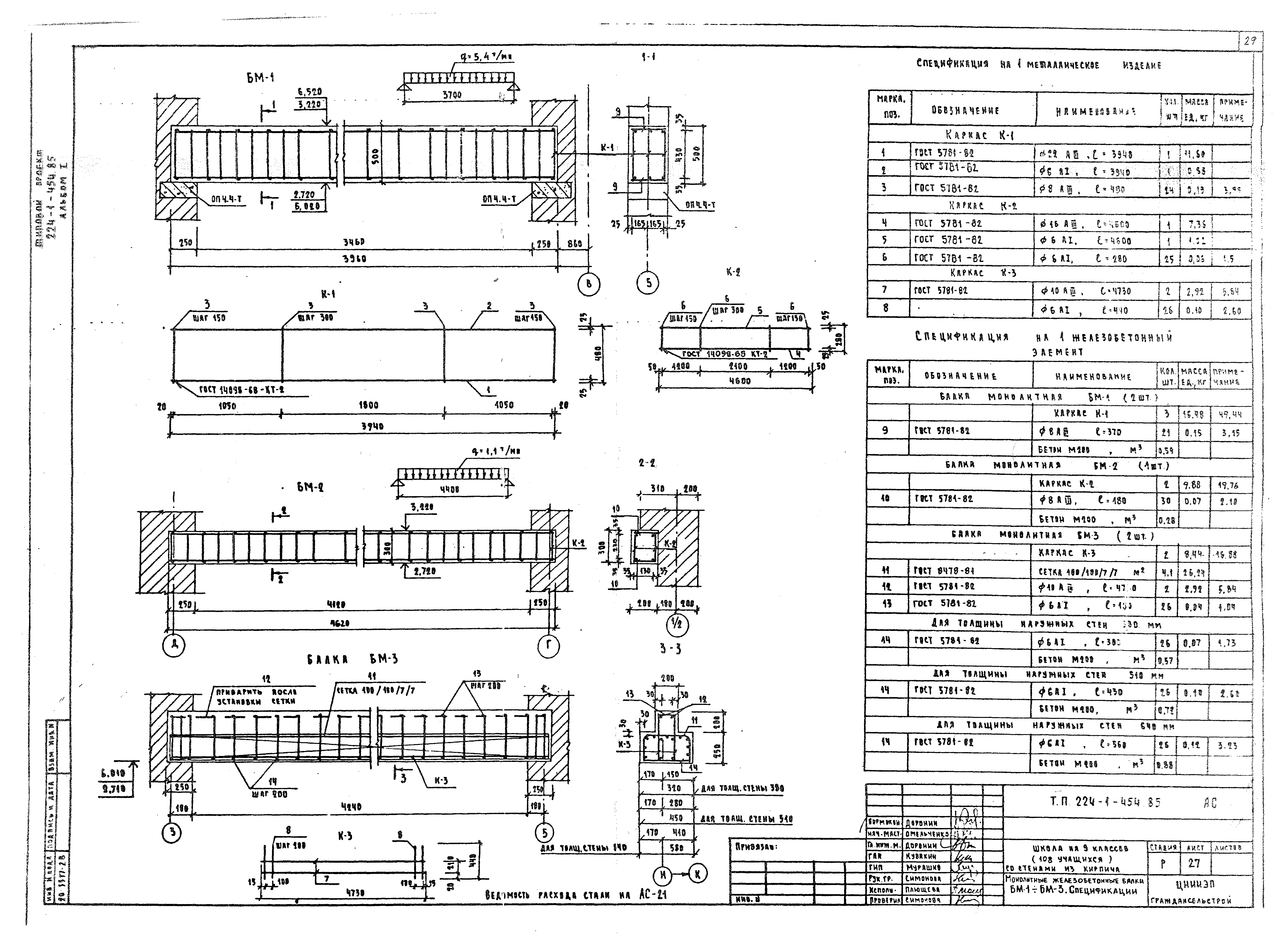
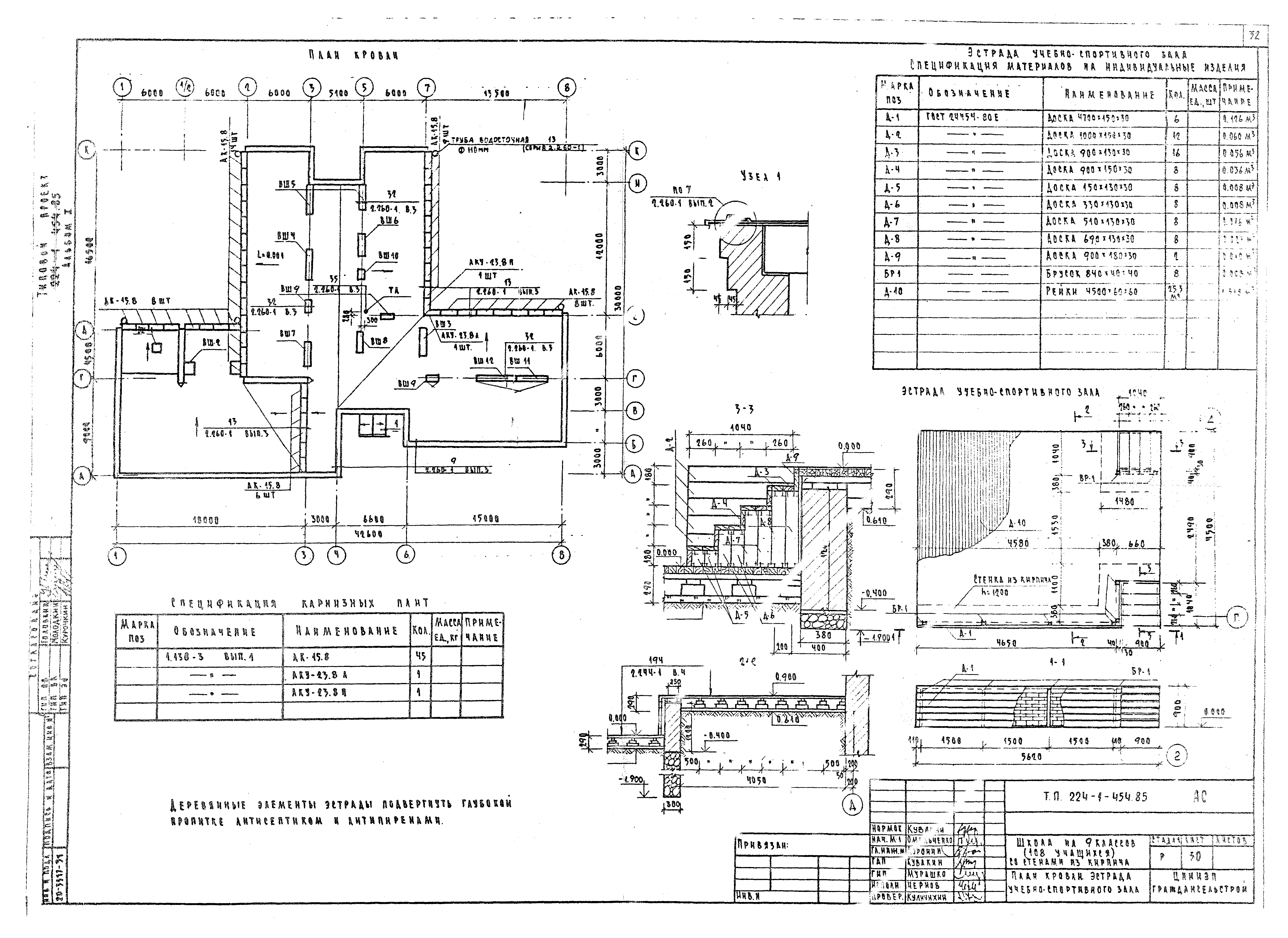
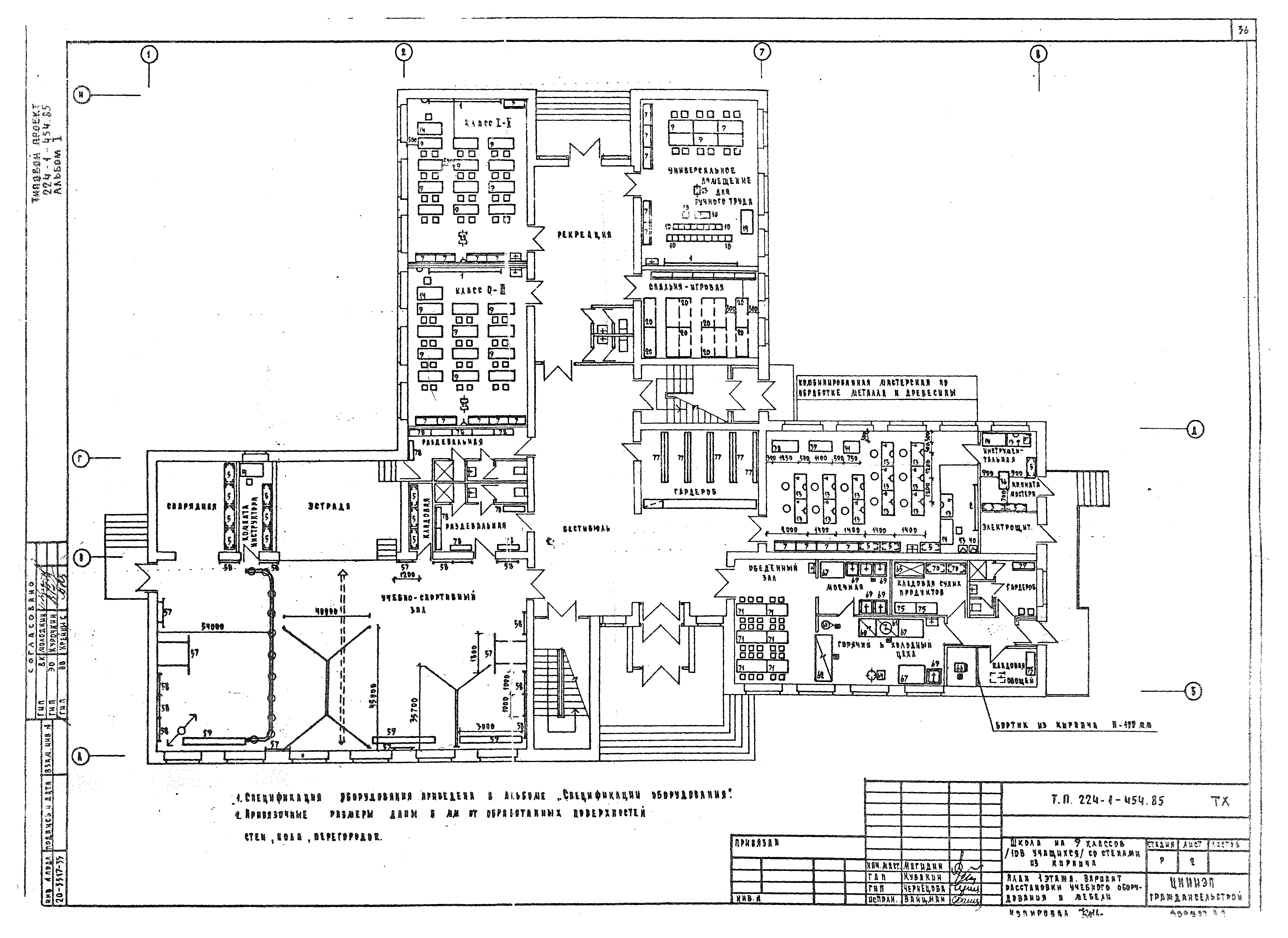
| Оглавление: | Содержание альбома Чертежи марки АС Общие данные Схема плана фундаментов и сечений. Таблица нагрузок Схема расположения фундаментов Схема расположения подпольных каналов Сечения 1-1 - 24-24 План лестницы в подвал. Крыльца 1, 3 Входы №1, №2. Крыльцо 2. Спецификация Фасады 1 - 8; 8 - 1 Фасады К - А; А - К Фасады 1 - 8; 8 - 1 (вариант) Фасады К - А; А - К (вариант) План подвала. План 1-го этажа. Экспликация отверстий План 2-го этажа. Ведомость проемов ворот и дверей Разрезы 1-1, 2-2, 3-3 Спецификация столярных изделий. Ведомость отделки помещений Монтажный план перемычек и козырьков Ведомость перемычек Ведомость перемычек. Узлы Спецификация перемычек План перекрытия над 1-ым этажом План покрытия на отм. 6.300 и 5.400 Ум1 - Ум4. Спецификации Развертки каналов по осям "Г", "7", "3", "5", "Е" Вентшахты ВШ-1 - ВШ-12. Спецификация Монолитные железобетонные балки БМ1 - БМ3. Спецификации Лестницы Л-1 и Л-2. Спецификации Венткамера План кровли. Эстрада учебно-спортивного зала Фрагменты фасадов 1, 2 Фрагменты планов 1 и 2 этажей. Развертки стен. Спецификация оборудования Чертежи марки ТХ Общие данные План 1 этажа. Вариант расстановки учебного оборудования и мебели План 2 этажа. Вариант расстановки учебного оборудования и мебели Фрагмент плана с привязкой подводов электроэнергии и воды к оборудованию |
| Разработан: | ЦНИИЭП граждансельстрой |
| Утверждён: | 05.02.1985 Госгражданстрой (Gosgrazhdanstroy 34) |






































