Скачать Руководство по проектированию учреждений автотуризмаДата актуализации: 01.01.2021 |
| Статус: | справочные материалы, мп, тпр |
| Название рус.: | Руководство по проектированию учреждений автотуризма |
| Дата добавления в базу: | 01.09.2013 |
| Дата актуализации: | 01.01.2021 |
| Область применения: | Документ распространяется на типы учреждений автотуризма — мотели и кемпинги. На основании анализа существующего положения дается классификация и характеристика типов учреждений автотуризма. Даны рекомендации по проектированию различных типов мотелей и кемпингов, формированию функциональной структуры, номенклатуры зданий и сооружений, состава и площади помещений; приведены основные требования к объемно-планировочным решениям учреждений автотуризма, композиции и средствам архитектурно-художественной выразительности зданий и сооружений; освещены конструктивные в инженерно-технические вопросы строительства мотелей и кемпингов, вопросы технического обслуживания легковых автомобилей в учреждениях автотуризма. Для архитекторов и инженеров, проектирующих мотели и кемпинги, а также для работников системы автосервиса. |
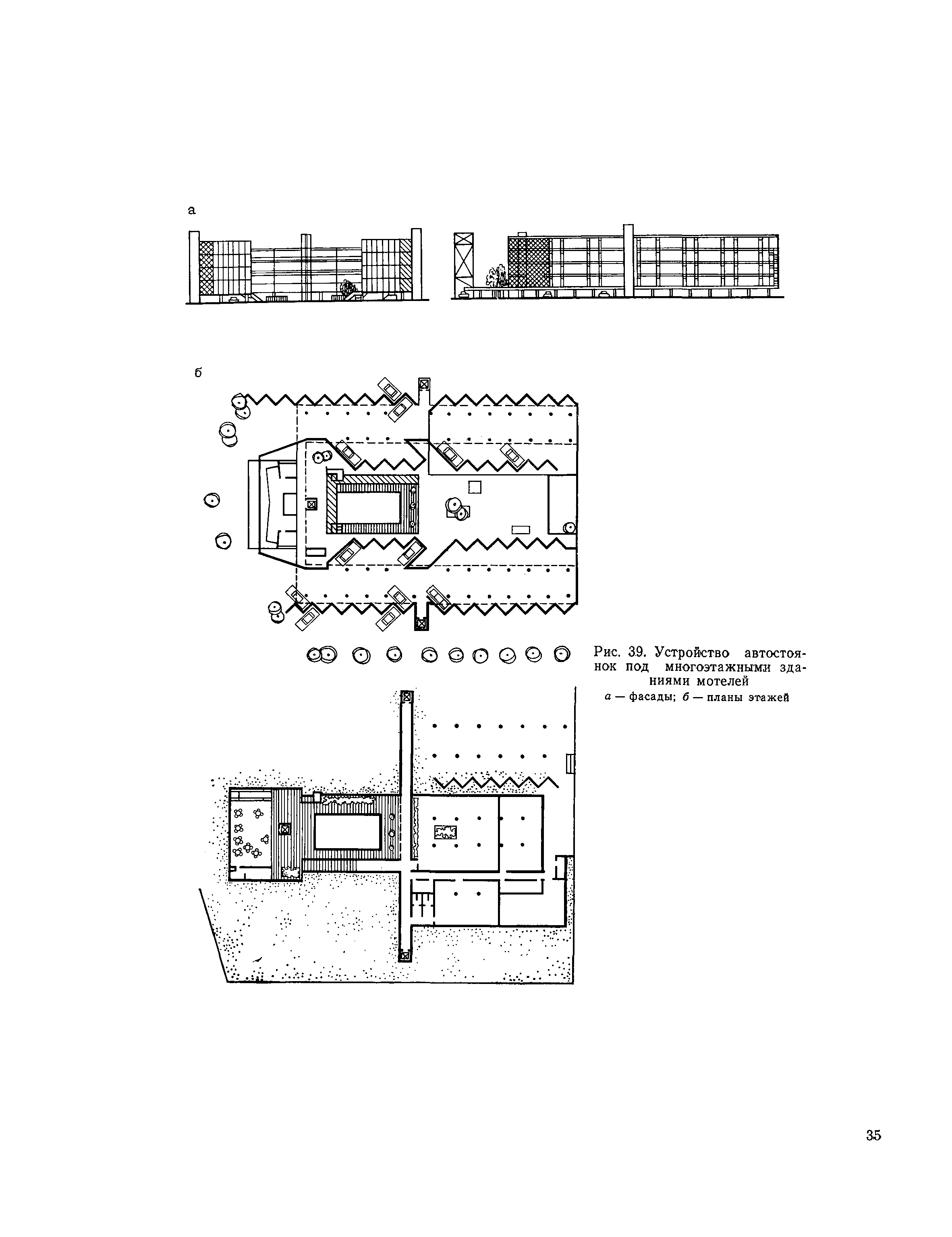
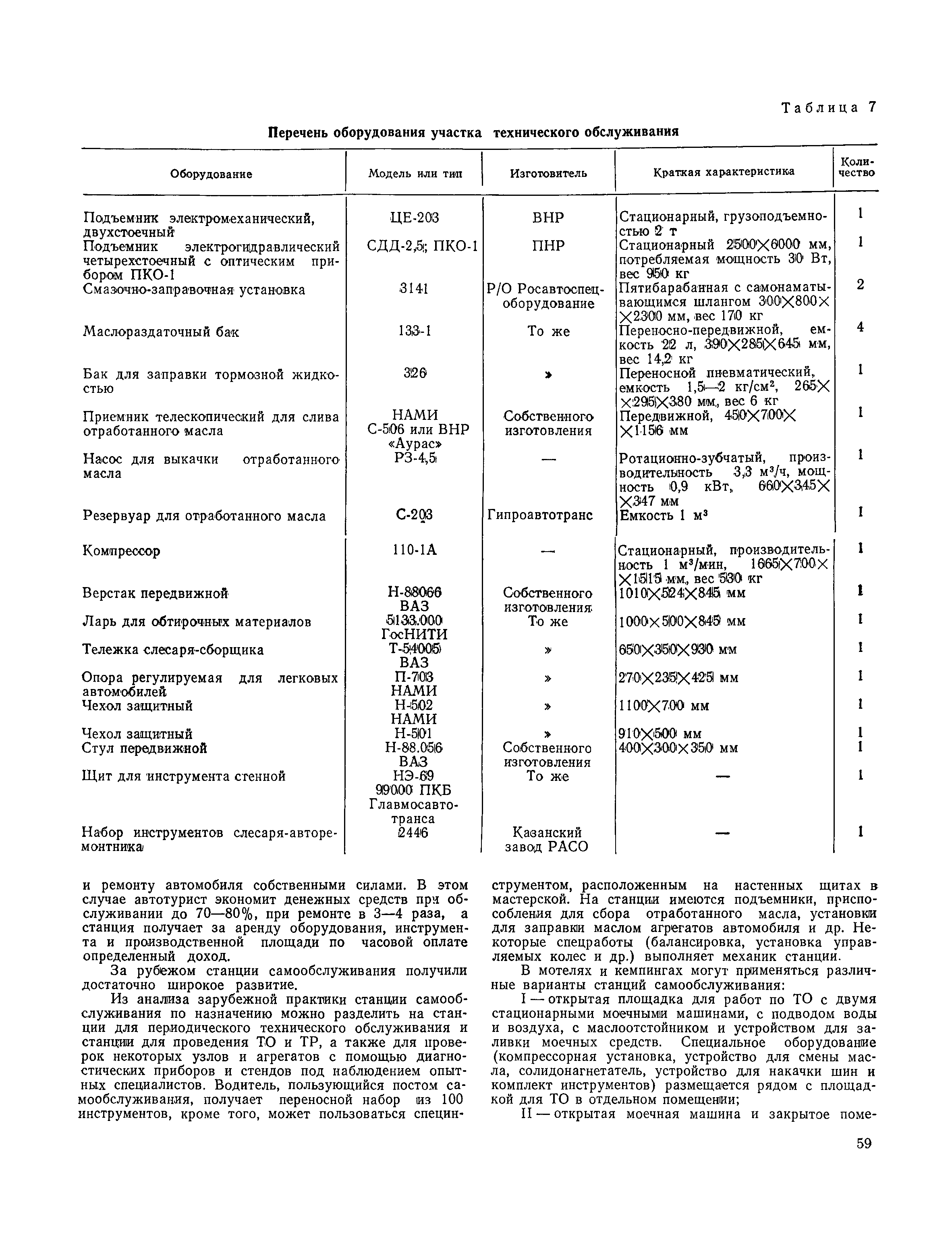
| Оглавление: | Введение 1. Мотели Типологическая классификация Планировочная организация участка Основные группы помещений Объемно-пространственная композиция Инженерное оборудование Водоснабжение и канализация Теплоснабжение, отопление и вентиляция Электроснабжение и электротехнические устройства Противопожарные требования 2. Кемпинги Типологическая классификация Планировочная организация участка Здания и сооружения Противопожарные и санитарные требования 3. Техническое обслуживание легковых автомобилей в учреждениях автотуризма Приложение. Рекомендации по техническому обслуживанию автомобилей в мотелях и кемпингах |
| Разработан: | ЦНИИЭП курортно-туристских зданий и комплексов Госгражданстроя |
| Утверждён: | ЦНИИЭП курортно-туристских зданий и комплексов Госгражданстроя |
| Издан: | Стройиздат (1980 г. ) |
| Нормативные ссылки: |
|


































































