Скачать Руководство по проектированию санаториевДата актуализации: 01.01.2021 |
| Статус: | справочные материалы, мп, тпр |
| Название рус.: | Руководство по проектированию санаториев |
| Дата добавления в базу: | 01.09.2013 |
| Дата актуализации: | 01.01.2021 |
| Область применения: | В документе рассмотрены основные положения СНиП II-70-74 "Санатории" и даны методические указания по их применению. Приведены примеры прогрессивных решений санаторных учреждений из отечественной и зарубежной практики; рекомендации по планировке и застройке территории, оптимальным и функциональным, объемно-планировочным и конструктивным схемам. Рассмотрены вопросы определения ориентировочной стоимости зданий на предпроектной стадии. Для инженерно-технических работников проектных и строительных организаций. |
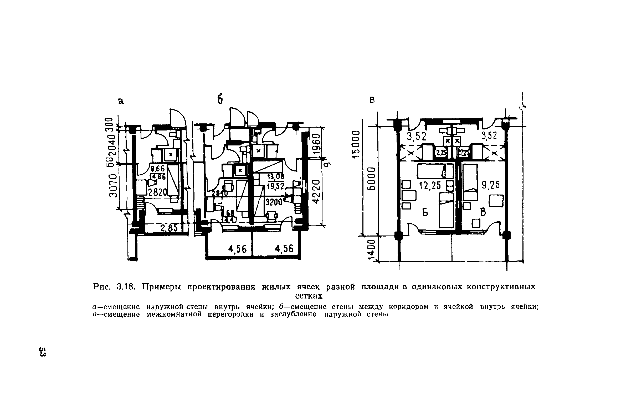
| Оглавление: | Введение 1. Общие положения 2. Приемно-вестибюльная группа помещений 3. Группа спальных помещений 4. Группа помещений лечебно-диагностического назначения 5. Сооружения и устройства для климатолечения 6. Помещения столовой 7. Помещения культурно-массового назначения, административные и хозяйственные 8. Конструктивные решения основных зданий и сооружений Список литературы |
| Разработан: | ЦНИИЭП курортно-туристских зданий и комплексов Госгражданстроя |
| Утверждён: | ЦНИИЭП курортно-туристских зданий и комплексов Госгражданстроя |
| Издан: | Стройиздат (1980 г. ) |
| Нормативные ссылки: |
|






































































































































