Скачать Типовые проектные решения 503-04-32.85 Альбом I. Технология производства. Спецификация оборудованияДата актуализации: 01.01.2021
|
| Обозначение: | Типовые проектные решения 503-04-32.85 |
| Обозначение англ: | 503-04-32.85 |
| Статус: | справочные материалы, мп, тпр |
| Название рус.: | Альбом I. Технология производства. Спецификация оборудования |
| Дата добавления в базу: | 01.09.2013 |
| Дата актуализации: | 01.01.2021 |
| Дата введения: | 26.07.1984 |
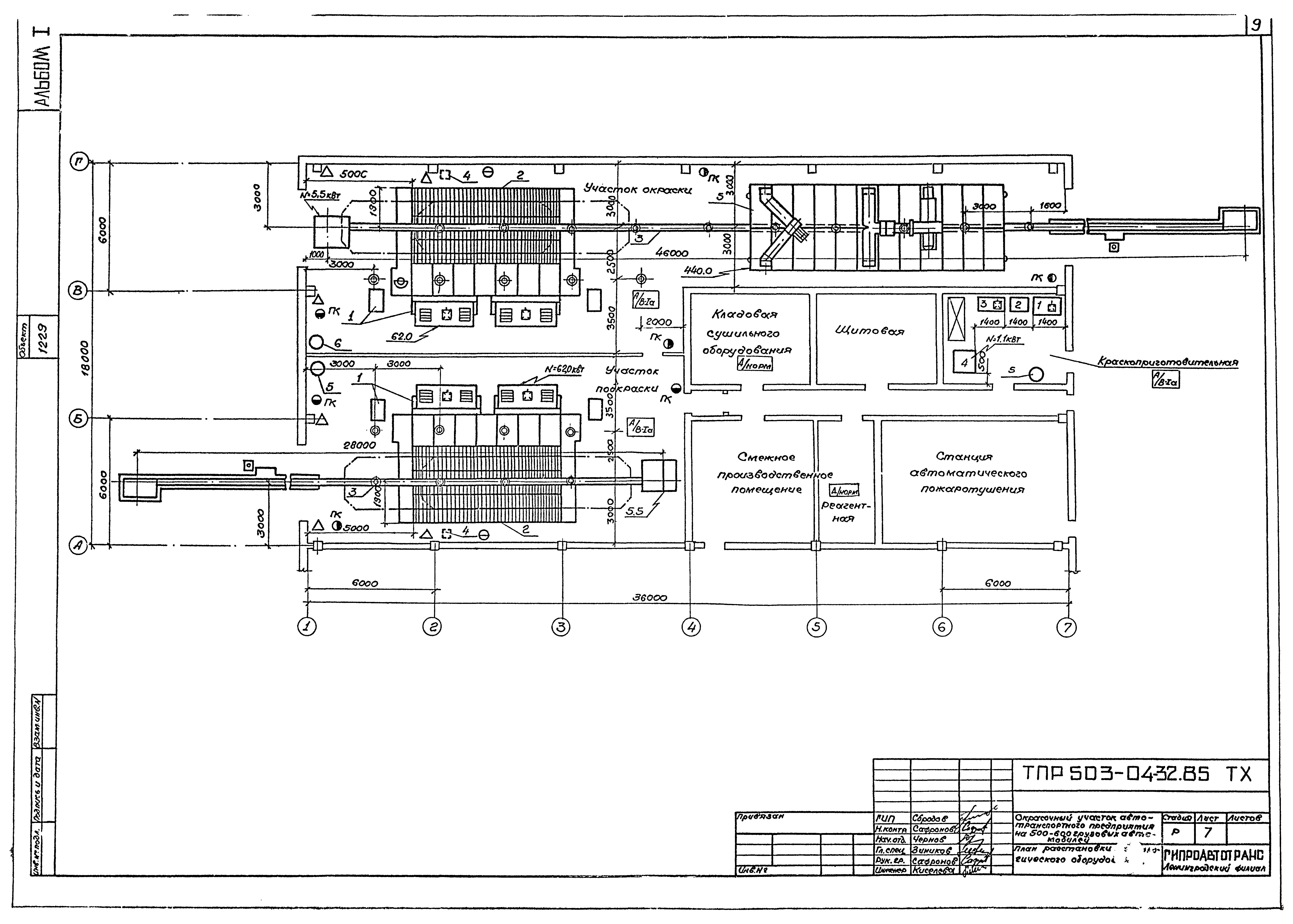
| Оглавление: | Содержание альбома Общие данные План расстановки технологического оборудования Экспликация технологического оборудования План и схема разводки трубопроводов сжатого воздуха План расстановки технологического оборудования Спецификация оборудования по основному комплекту чертежей марки ТХ |
| Разработан: | Гипроавтотранс |
| Утверждён: | 26.07.1984 Минавтотранс РСФСР (Russian Federation Minavtotrans 53) |














