Скачать Типовой проект 407-3-598.91 Альбом 1. Общая пояснительная записка. Архитектурно-строительные решения. Отопление и вентиляция. Электротехнические решенияДата актуализации: 01.01.2021
|
| Обозначение: | Типовой проект 407-3-598.91 |
| Обозначение англ: | 407-3-598.91 |
| Статус: | действует |
| Название рус.: | Альбом 1. Общая пояснительная записка. Архитектурно-строительные решения. Отопление и вентиляция. Электротехнические решения |
| Дата добавления в базу: | 01.09.2013 |
| Дата актуализации: | 01.01.2021 |
| Дата введения: | 17.04.1991 |
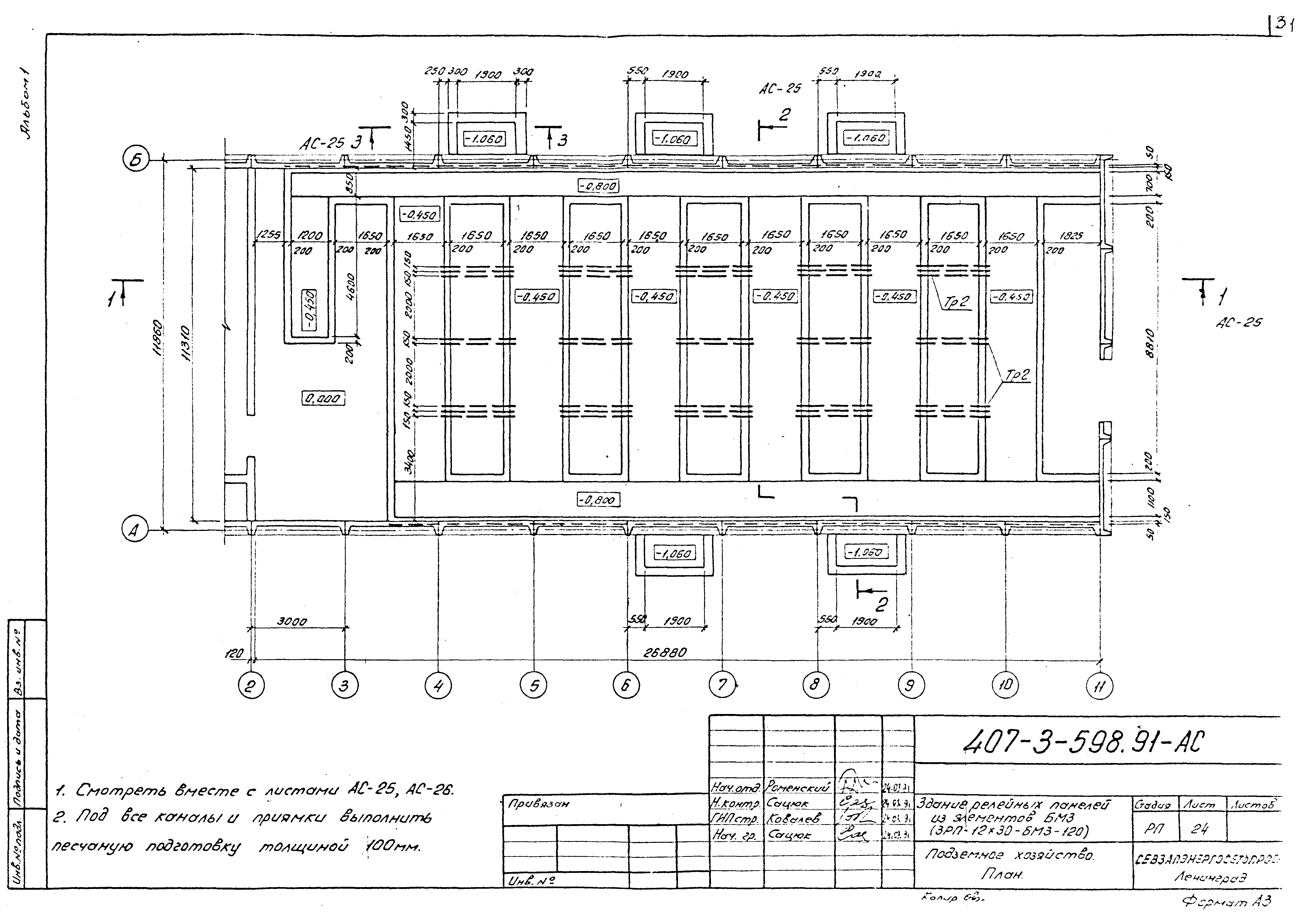
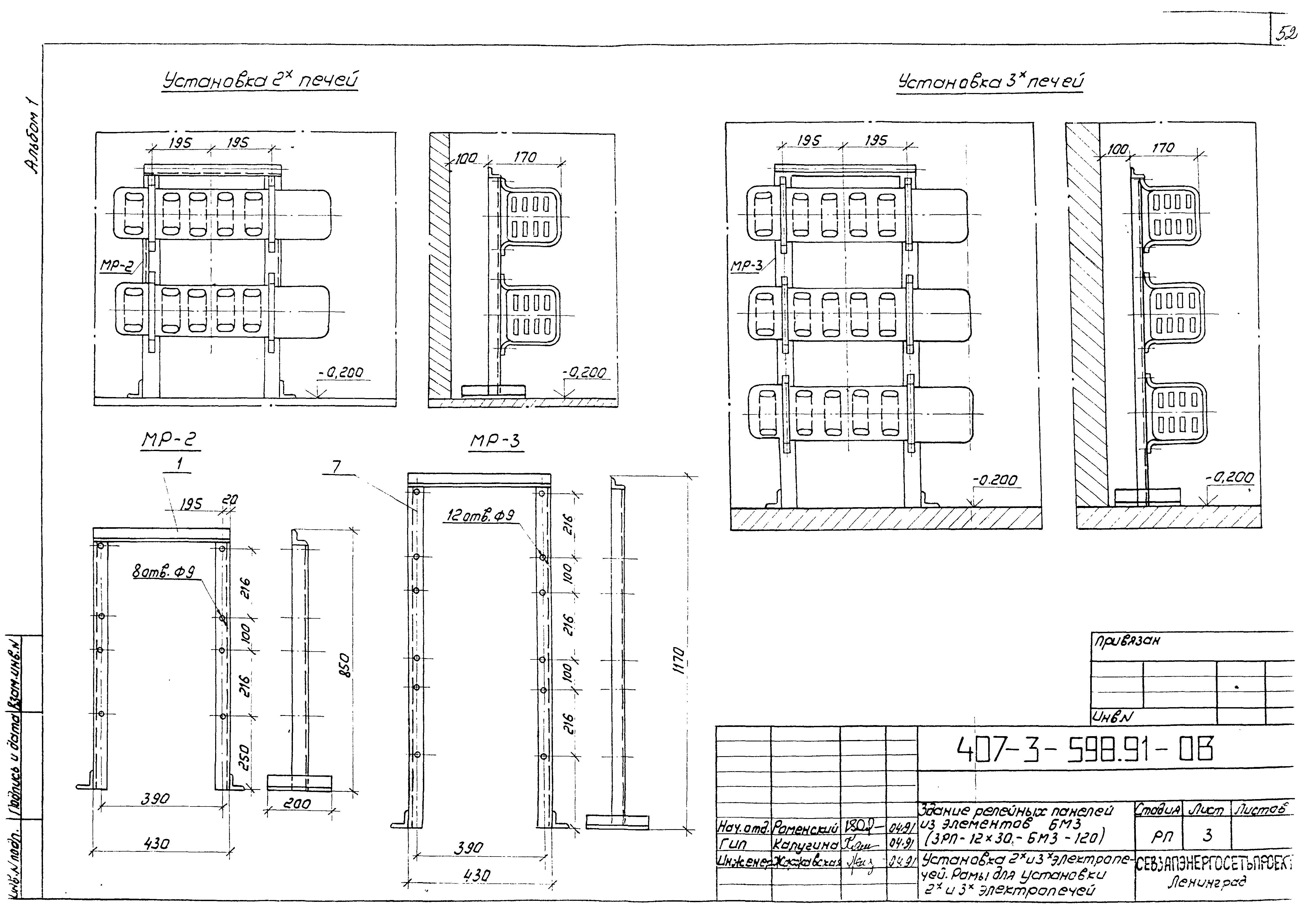
| Оглавление: | Пояснительная записка Архитектурно-строительные решения Общие данные План на отм. 0.000 План на отм. 0.000. Спецификации Разрезы 1-1, 2-2 Архитектурные узлы Фасады Фрагмент фасада 1 Фрагмент фасада 2 Фрагмент фасада 2. Узлы План полов. План кровли Схема расположения фундаментов. Сечения 1-1, 2-2 Схема расположения фундаментов. Сечения 3-3, 4-4. Узел 1 Схема расположения фундаментов. Узлы 2, 3 Монолитные фундаменты Фм1, Фм2. Сечение 1-1, 2-2 Монолитные фундаменты Фм1, Фм2. Сечение 3-3…5-5 Схема расположения фундаментов (вариант). Сечение 1-1 Схема расположения фундаментов (вариант). Сечение 2-2. Узел 3 Схемы расположения элементов БМЗ Схемы расположения элементов БМЗ. Спецификация Схемы расположения закладных изделий в покрытии Подземное хозяйство. План Подземное хозяйство. Разрезы Подземное хозяйство. Узлы Подземное хозяйство. Схема расположения металлоконструкций Подземное хозяйство. Схема расположения элементов покрытия каналов и приямков Подземное хозяйство. Схема расположения металлоконструкций. Узлы. Спецификация Строительные изделия Технические требования Каркас КР1…КР3 Изделие закладное М1 Изделие закладное М2 Решетка М3 Изделие закладное М4 Изделие закладное М5 Стойка М6 Изделие опорное М7 Изделие закладное М15 Изделие закладное М9…М11 Изделие закладное М12, М13 Элемент опорный М14 Ведомость потребности в материалах Отопление и вентиляция Общие данные План на отм. 0.000 Установка 2-х и 3-х электропечей. Рамы для установки 2-х и 3-х электропечей Спецификация оборудования Электротехнические решения Общие данные План расположения оборудования. Заземление Расстановка кабельных конструкций в кабельном канале. План Расстановка кабельных конструкций в кабельном канале. Разрезы 1-1, 2-2 Освещение ЗРП. Схемы щитков рабочего и аварийного освещения Освещение ЗРП. План Электрическое отопление. План, распределение электропечей по фазам Спецификация оборудования Ведомость потребности в материалах |
| Разработан: | Севзапэнергосетьпроект |
| Утверждён: | 17.04.1991 Минэнерго СССР (USSR Minenergo 7) |
| Издан: | Севзапэнергосетьпроект (1991 г. ) |





































































