Скачать Типовой проект 501-3-9 Альбом I. Общая пояснительная записка. Технологические, строительные, санитарно-технические и электротехнические чертежиДата актуализации: 01.01.2021
|
| Обозначение: | Типовой проект 501-3-9 |
| Обозначение англ: | 501-3-9 |
| Статус: | не определен законодательством |
| Название рус.: | Альбом I. Общая пояснительная записка. Технологические, строительные, санитарно-технические и электротехнические чертежи |
| Дата добавления в базу: | 01.09.2013 |
| Дата актуализации: | 01.01.2021 |
| Дата введения: | 16.11.1979 |
| Дата окончания срока действия: | 30.06.2003 |
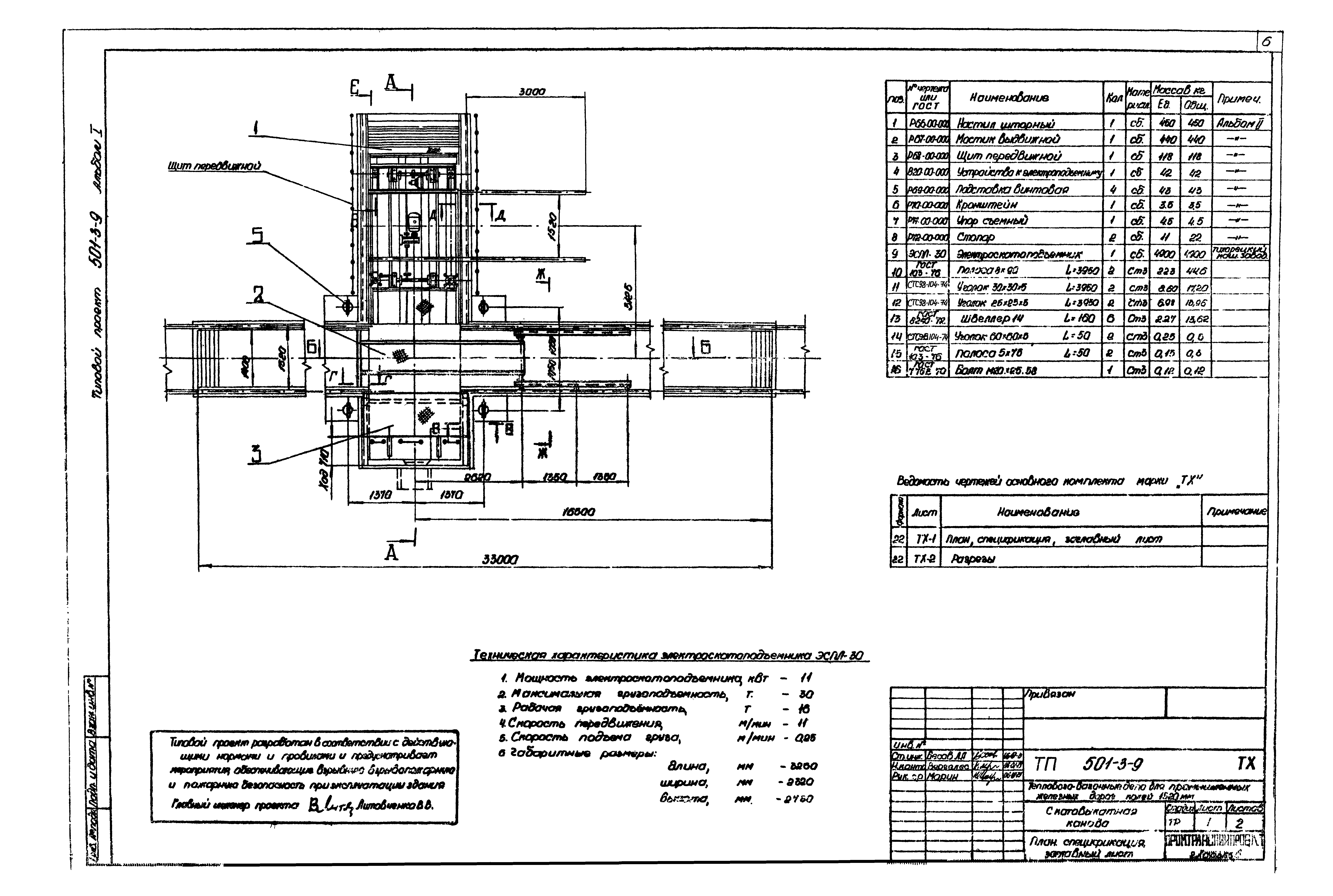
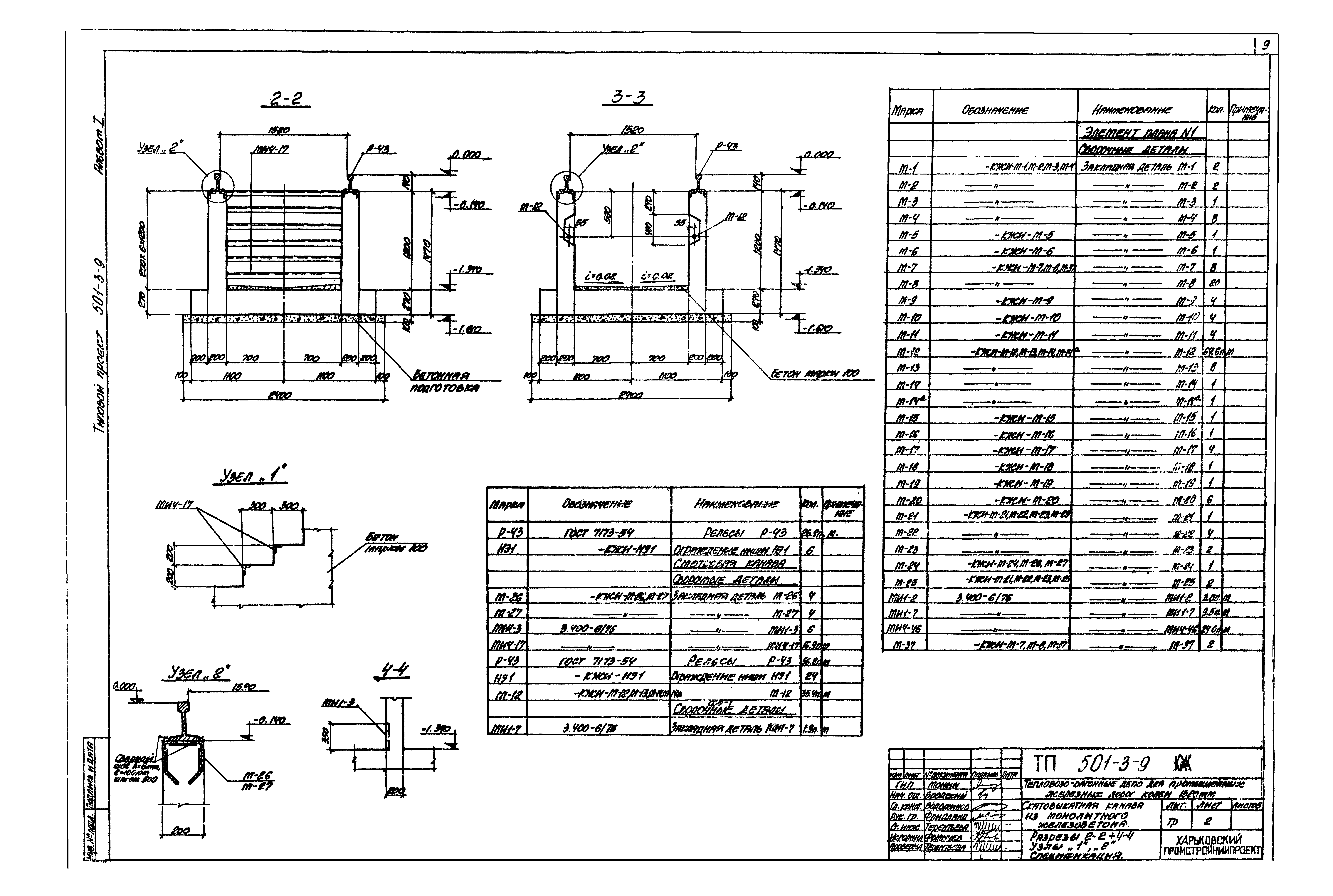
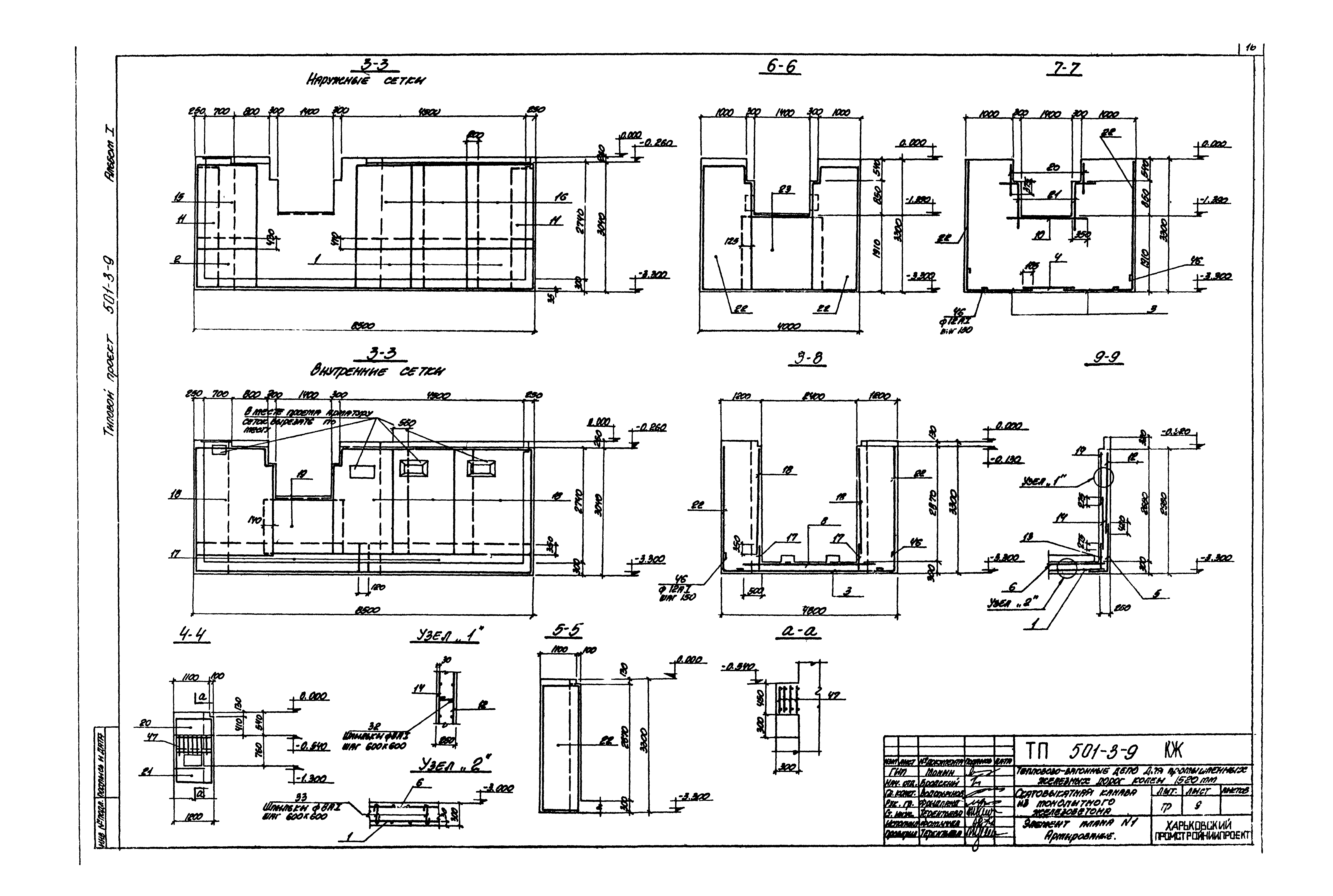
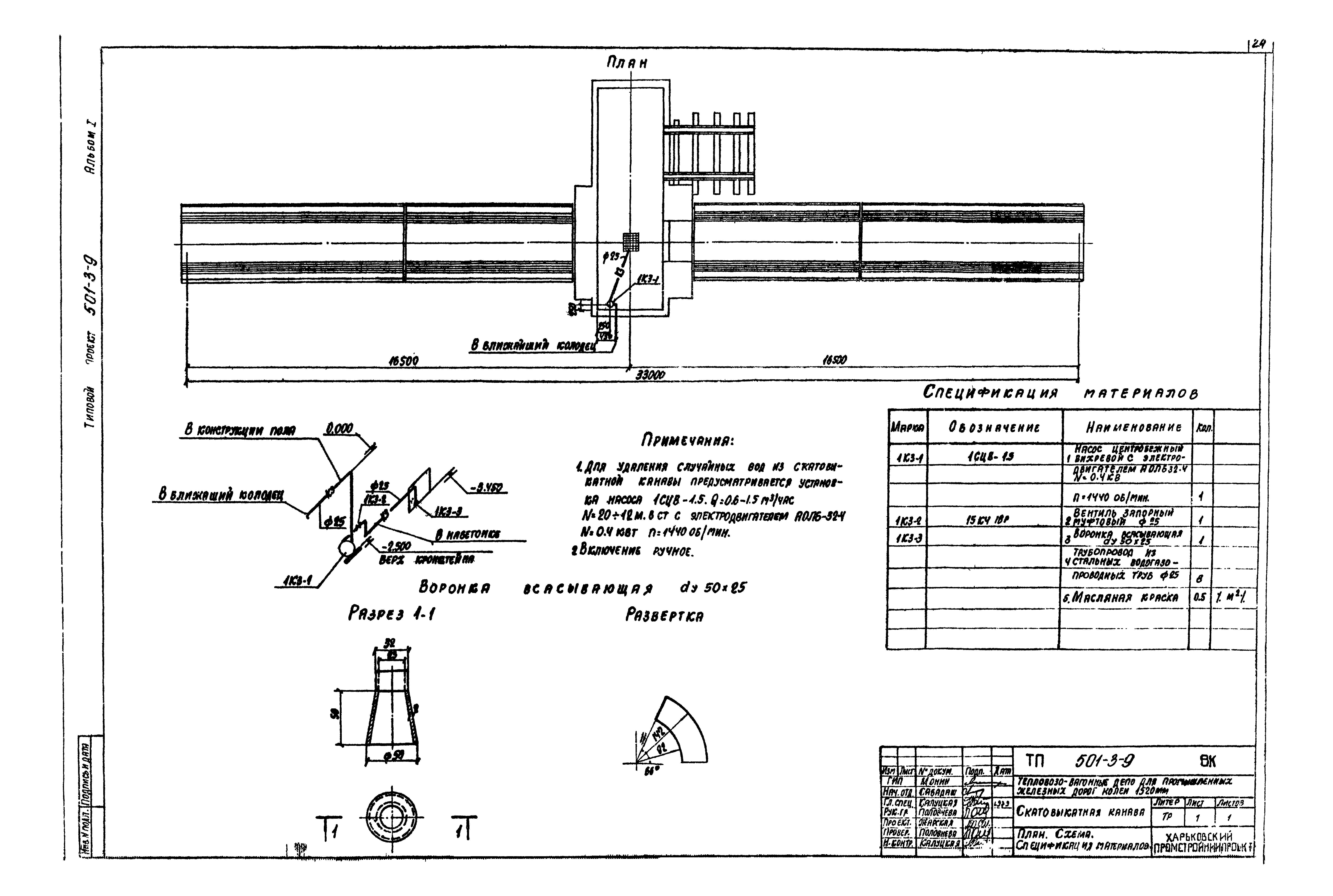
| Оглавление: | Содержание альбома Общая пояснительная записка Чертежи основного комплекта марки ТХ План, спецификация, заглавный лист Разрезы Чертежи основного комплекта марки КЖ Скатовыкатная канава из монолитного железобетона. План. Разрез 1-1 Скатовыкатная канава из монолитного железобетона. Разрезы 2-2 - 4-4. Узлы "1", "2". Спецификация Скатовыкатная канава из монолитного железобетона. Элемент плана №1 Скатовыкатная канава из монолитного железобетона. Элемент плана №1. Разрез 5-5 Скатовыкатная канава из монолитного железобетона. Элемент плана №1. Разрезы 6-6, 7-7 Скатовыкатная канава из монолитного железобетона. Элемент плана №1. Узлы "3", "4", "5" Скатовыкатная канава из монолитного железобетона. Разводка труб электропроводки Скатовыкатная канава из монолитного железобетона. Элемент плана №1. Армирование Скатовыкатная канава из монолитного железобетона. Армирование Скатовыкатная канава из монолитного железобетона. Спецификации Скатовыкатная канава со смотровыми канавами из сборного железобетона. План. Разрез 1-1 Скатовыкатная канава со смотровыми канавами из сборного железобетона. Узел "7". Деталь замоноличивания стеновых панелей СП-СК, НСП-СК Чертежи основного комплекта марки ОВ Скатовыкатная канава. Вентиляция скатовыкатной канавы Чертежи основного комплекта марки ВК Скатовыкатная канава. План, схема. Спецификация материалов Чертежи основного комплекта марки ЭЛ Заглавный лист Электроосвещение и силовое электрооборудование. План и кабельный журнал Электроосвещение и силовое электрооборудование. Однолинейная схема распредсети и схема сигнализации Электроосвещение. Установка светильника и штепсельной розетки в нише |
| Разработан: | Промтрансниипроект |
| Утверждён: | 26.07.1979 Госстрой СССР (Государственный комитет Совета Министров СССР по делам строительства) (USSR Gosstroy 38) |





























