Скачать Типовой проект Серия 467А Альбом III. Часть 3Б. Железобетонные панели внутренних стен толщиной 140 мм и вентиляционные блокиДата актуализации: 01.01.2021
|
| Обозначение: | Типовой проект Серия 467А |
| Обозначение англ: | Серия 467А |
| Статус: | действует |
| Название рус.: | Альбом III. Часть 3Б. Железобетонные панели внутренних стен толщиной 140 мм и вентиляционные блоки |
| Дата добавления в базу: | 01.09.2013 |
| Дата актуализации: | 01.01.2021 |
| Дата введения: | 30.10.1964 |
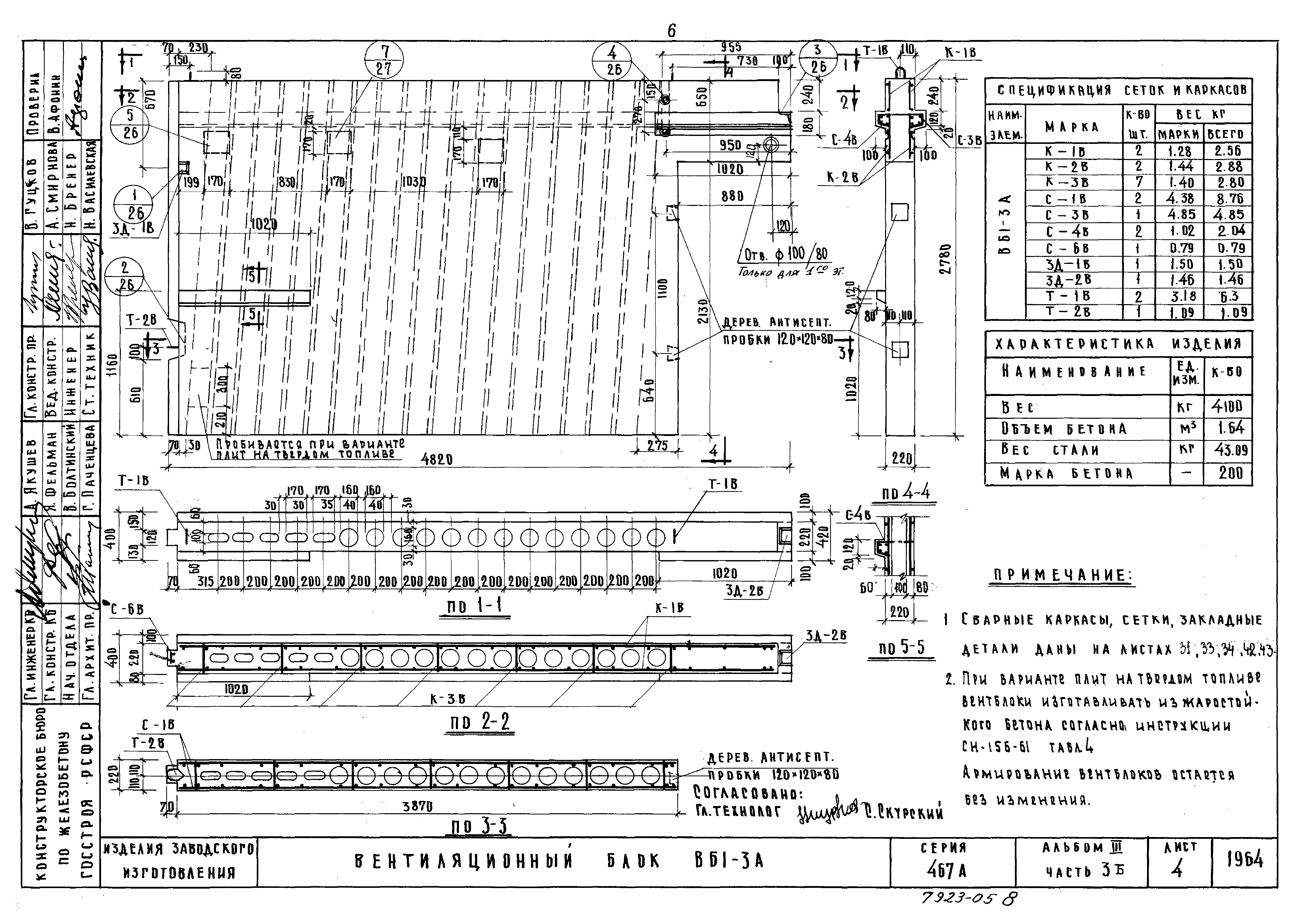
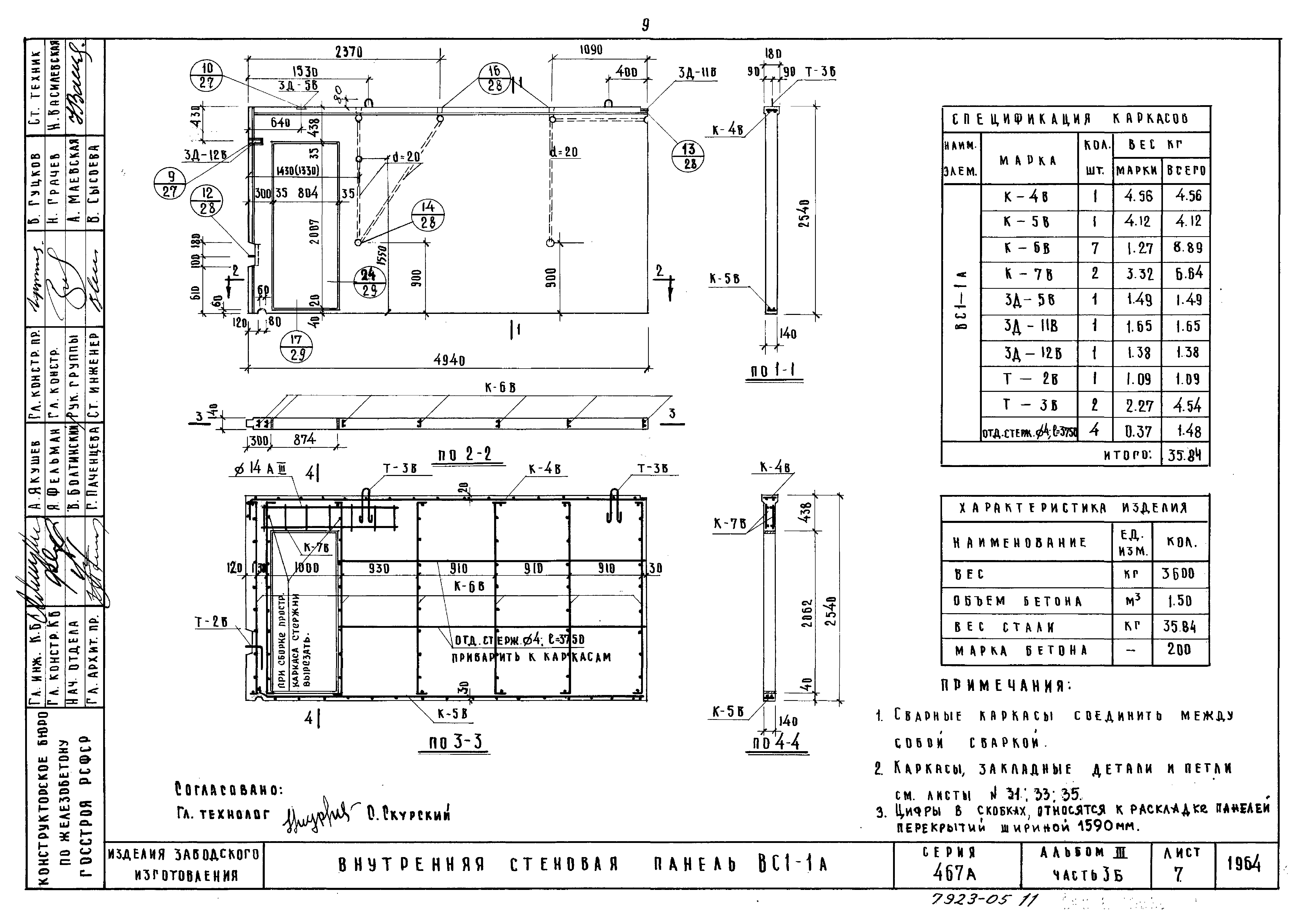
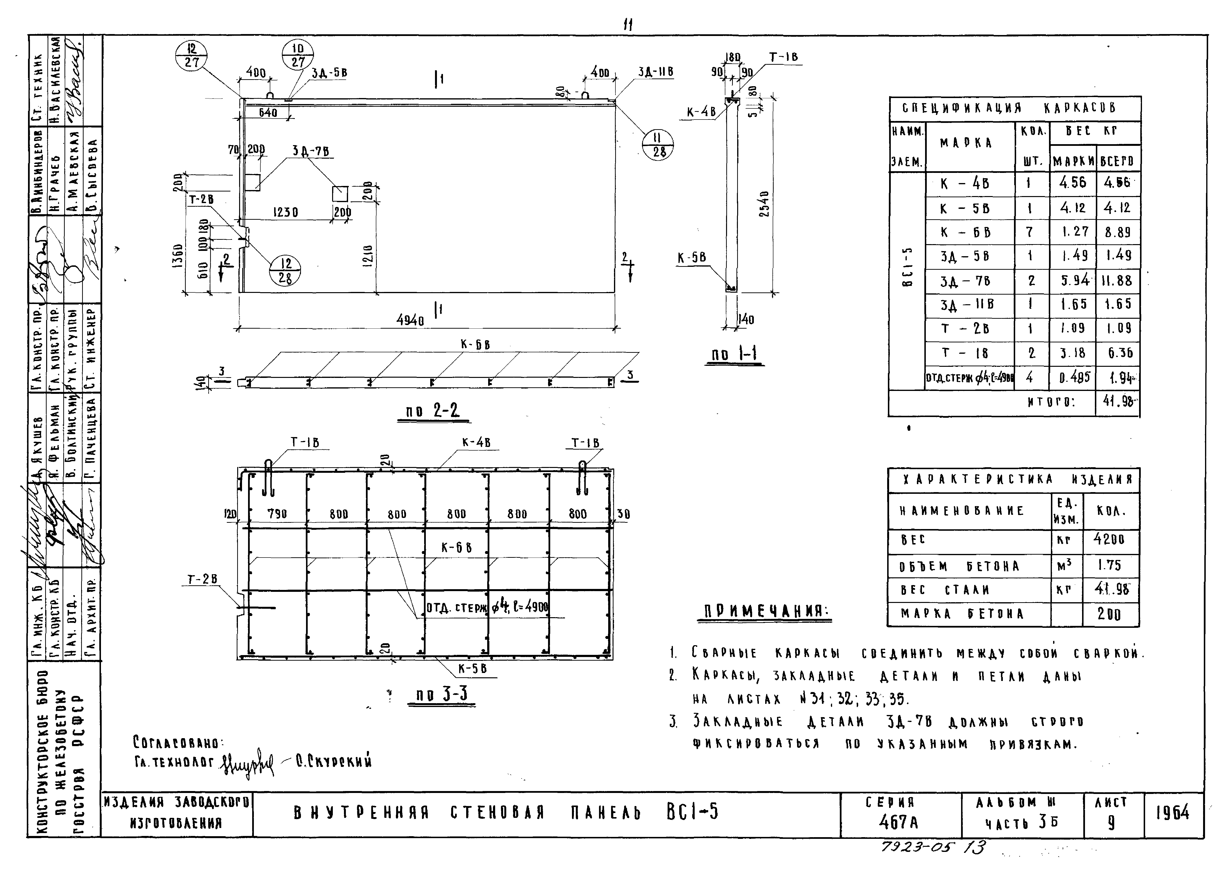
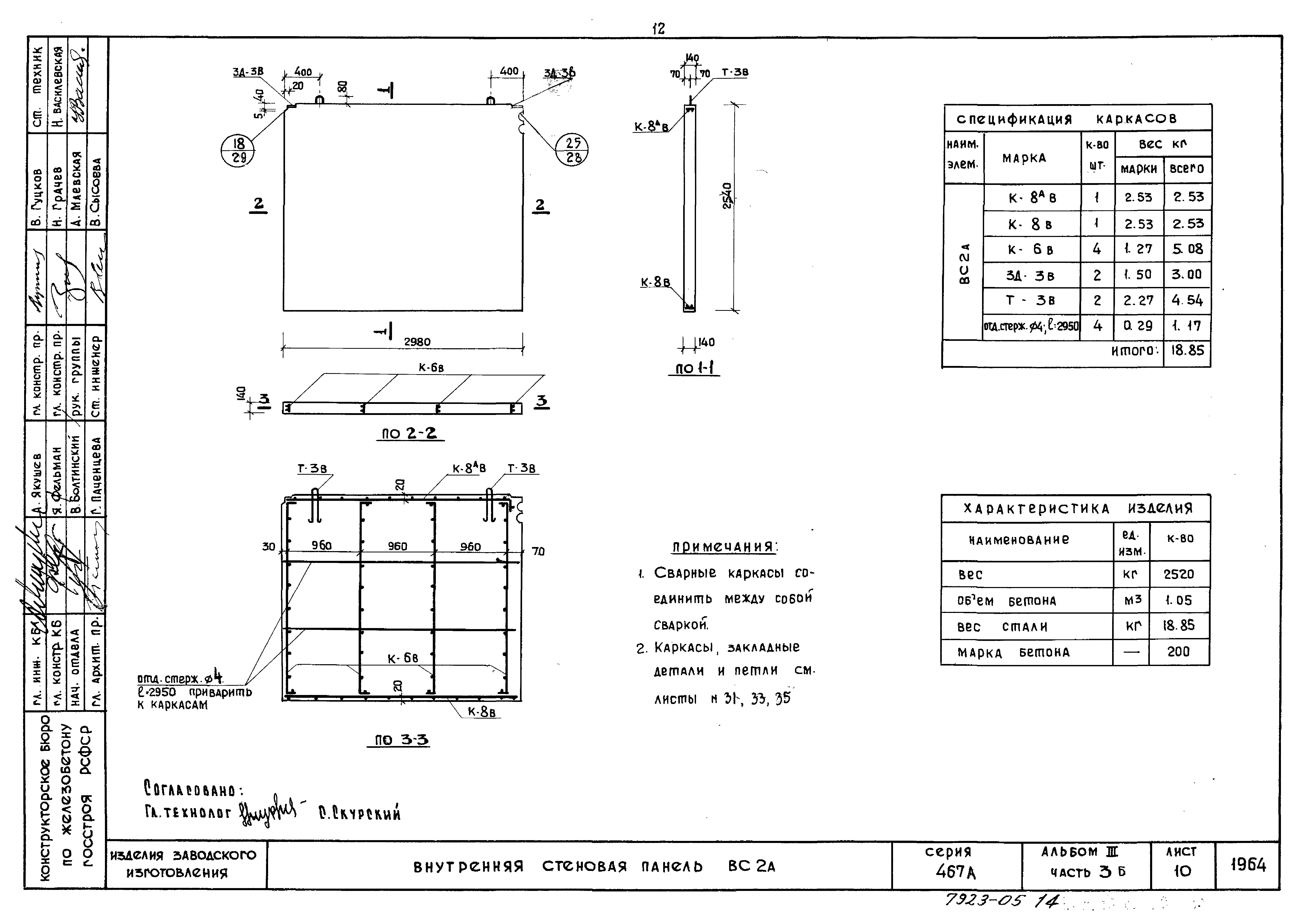
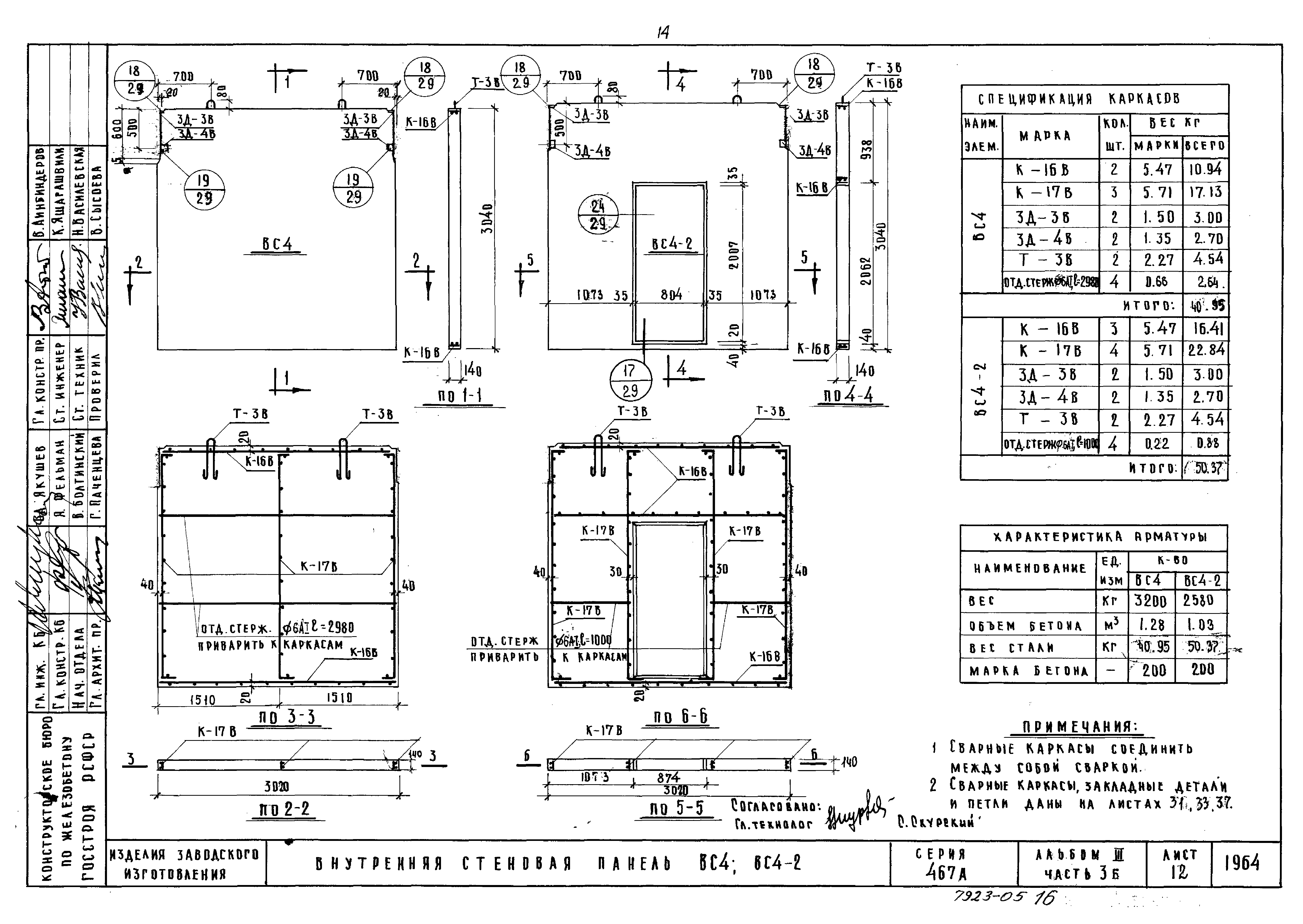
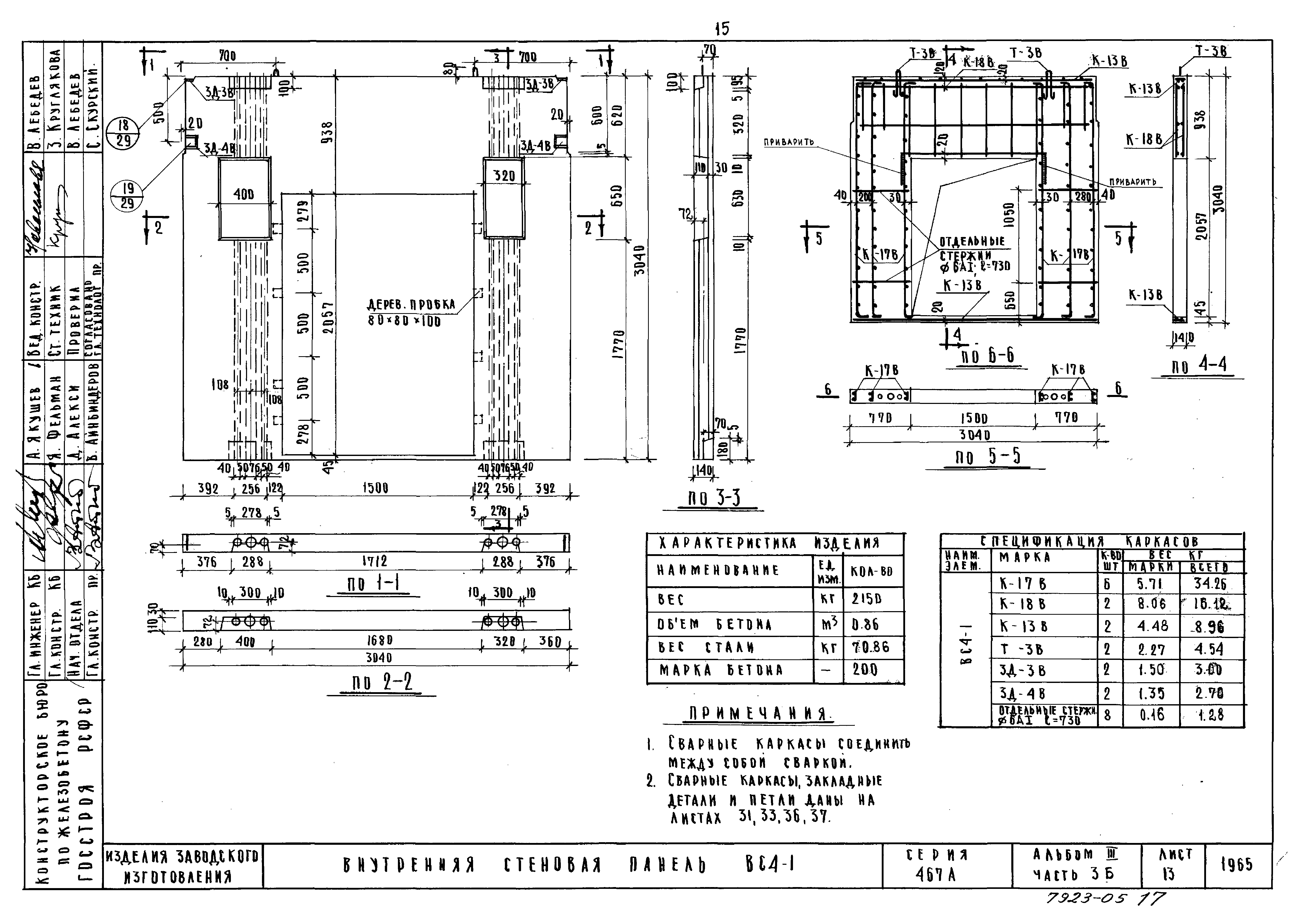
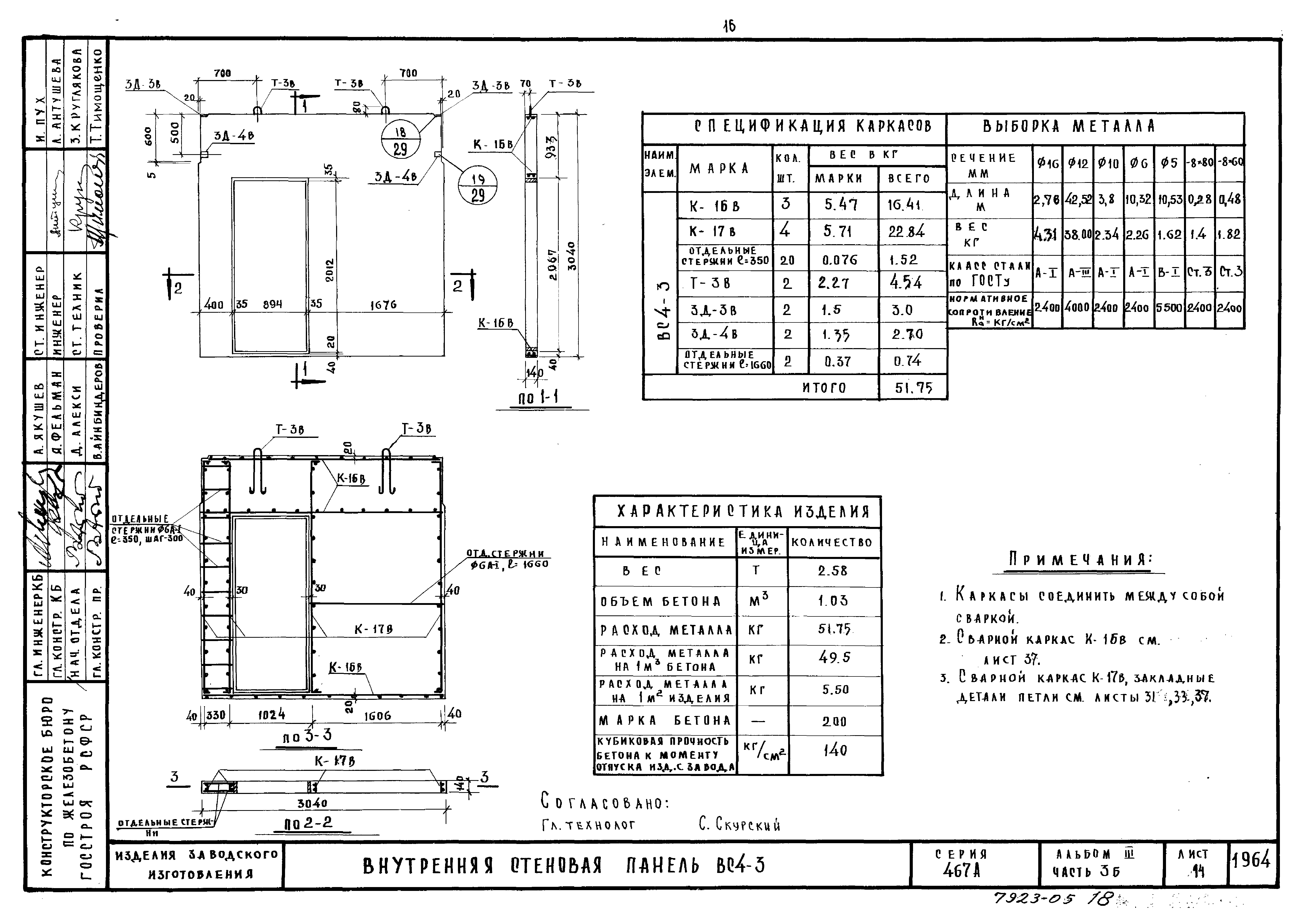
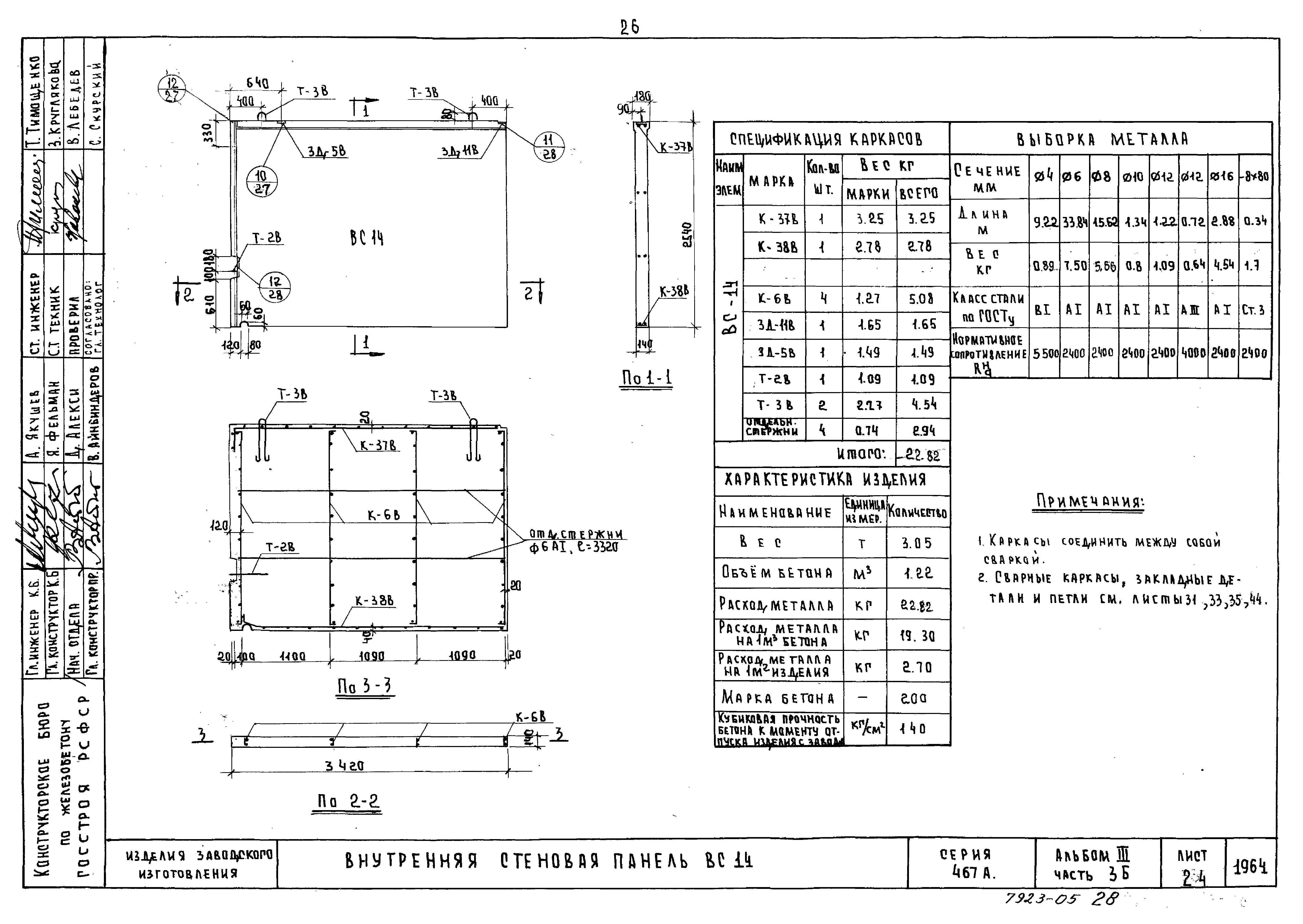
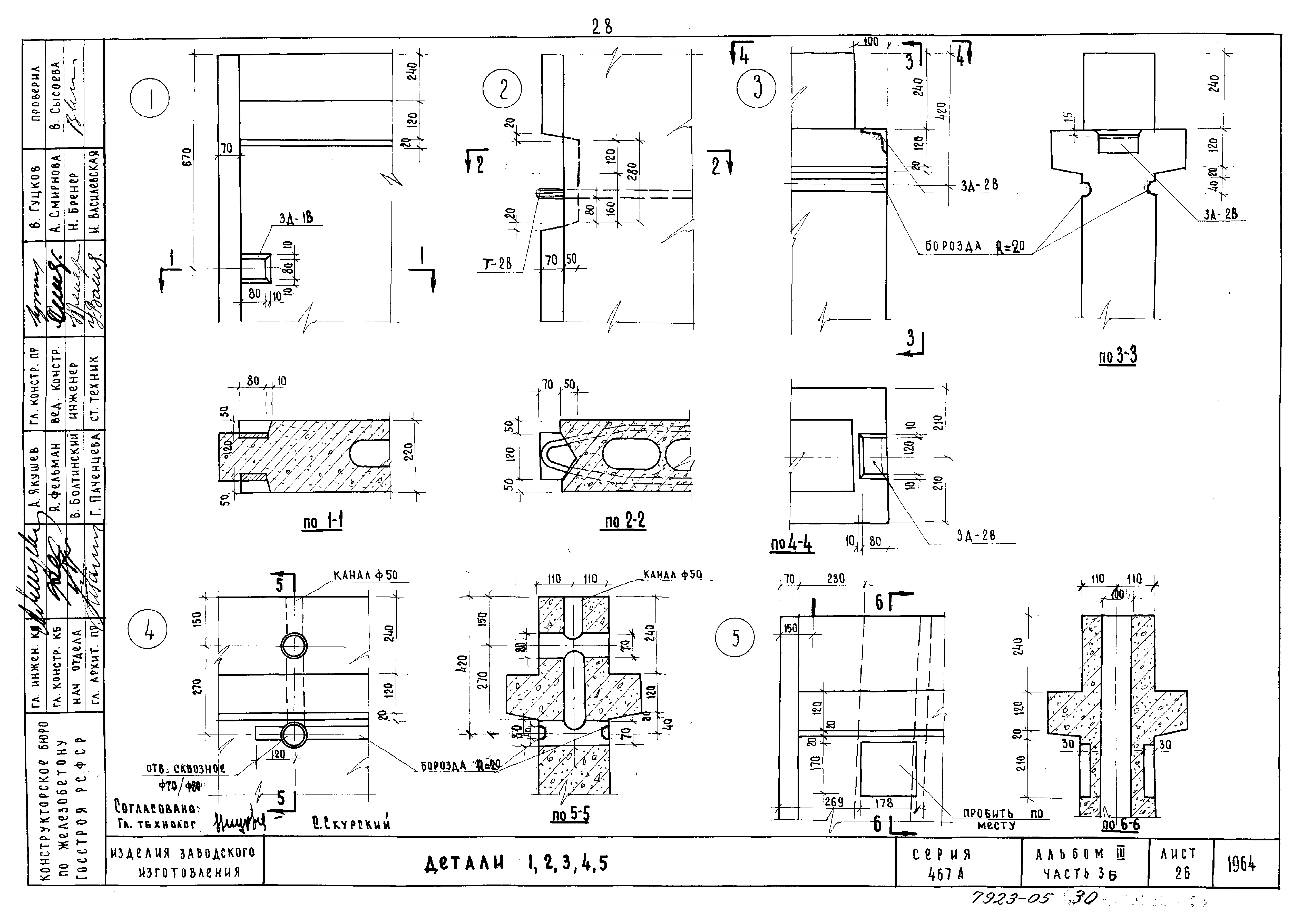
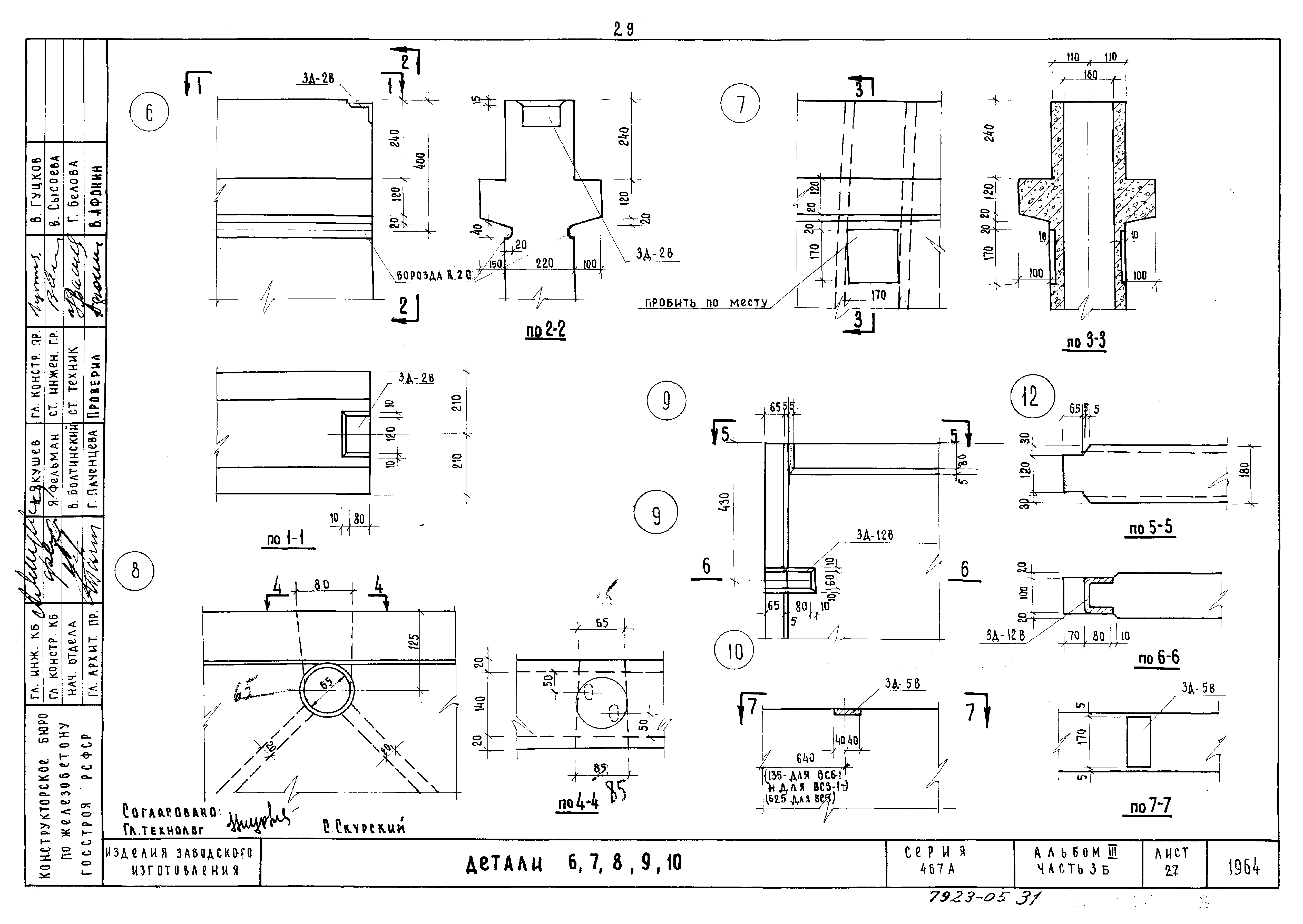
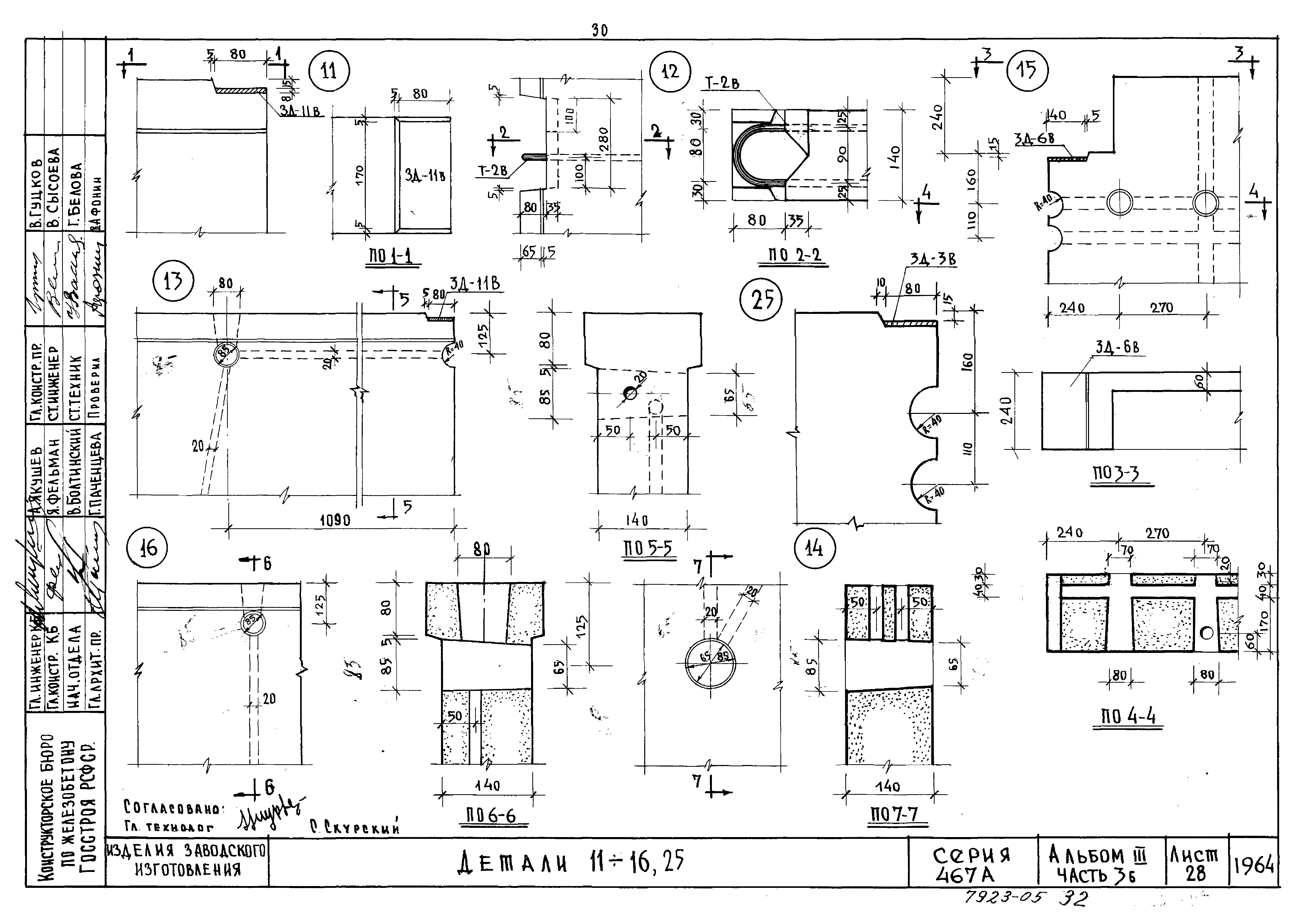
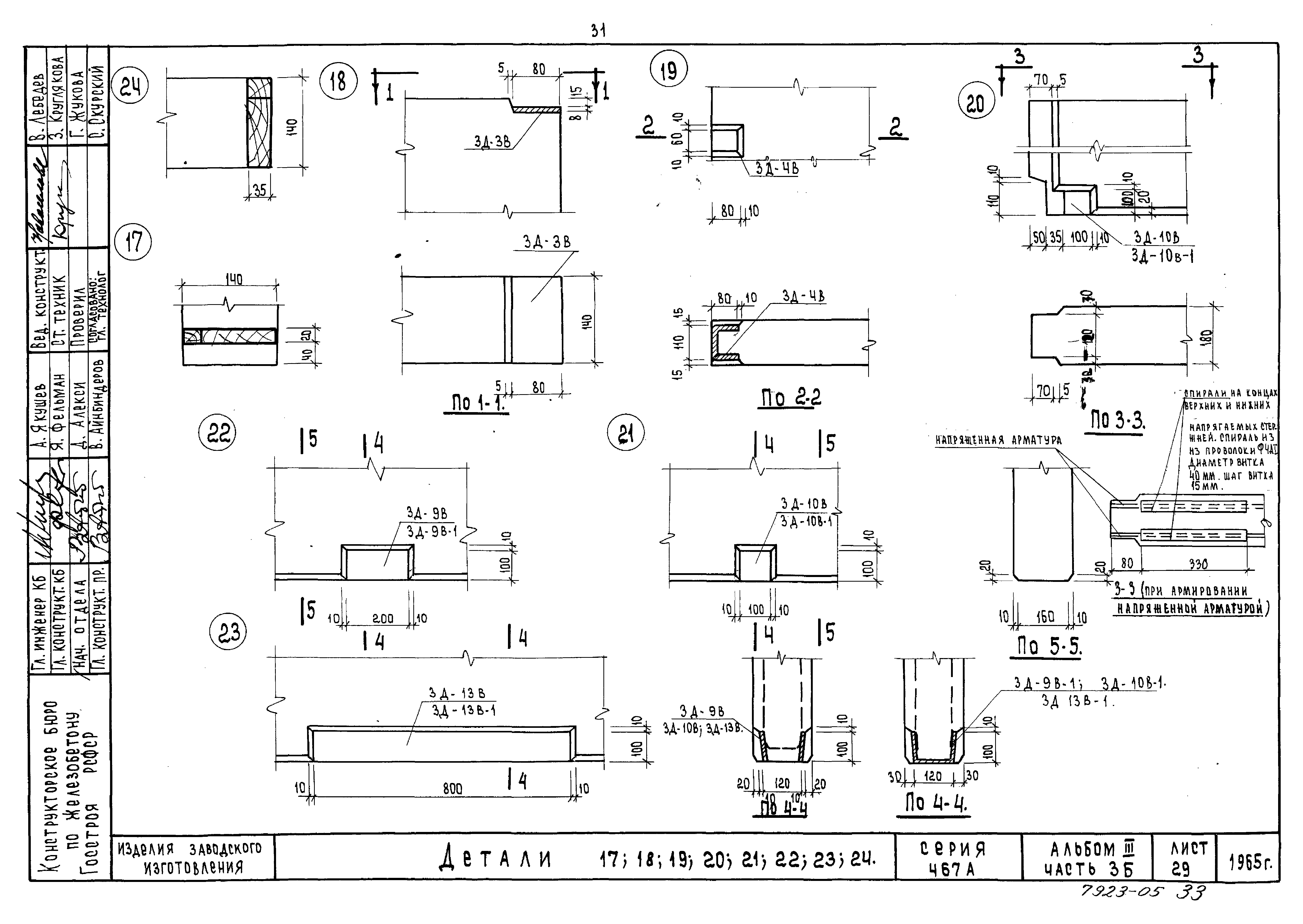
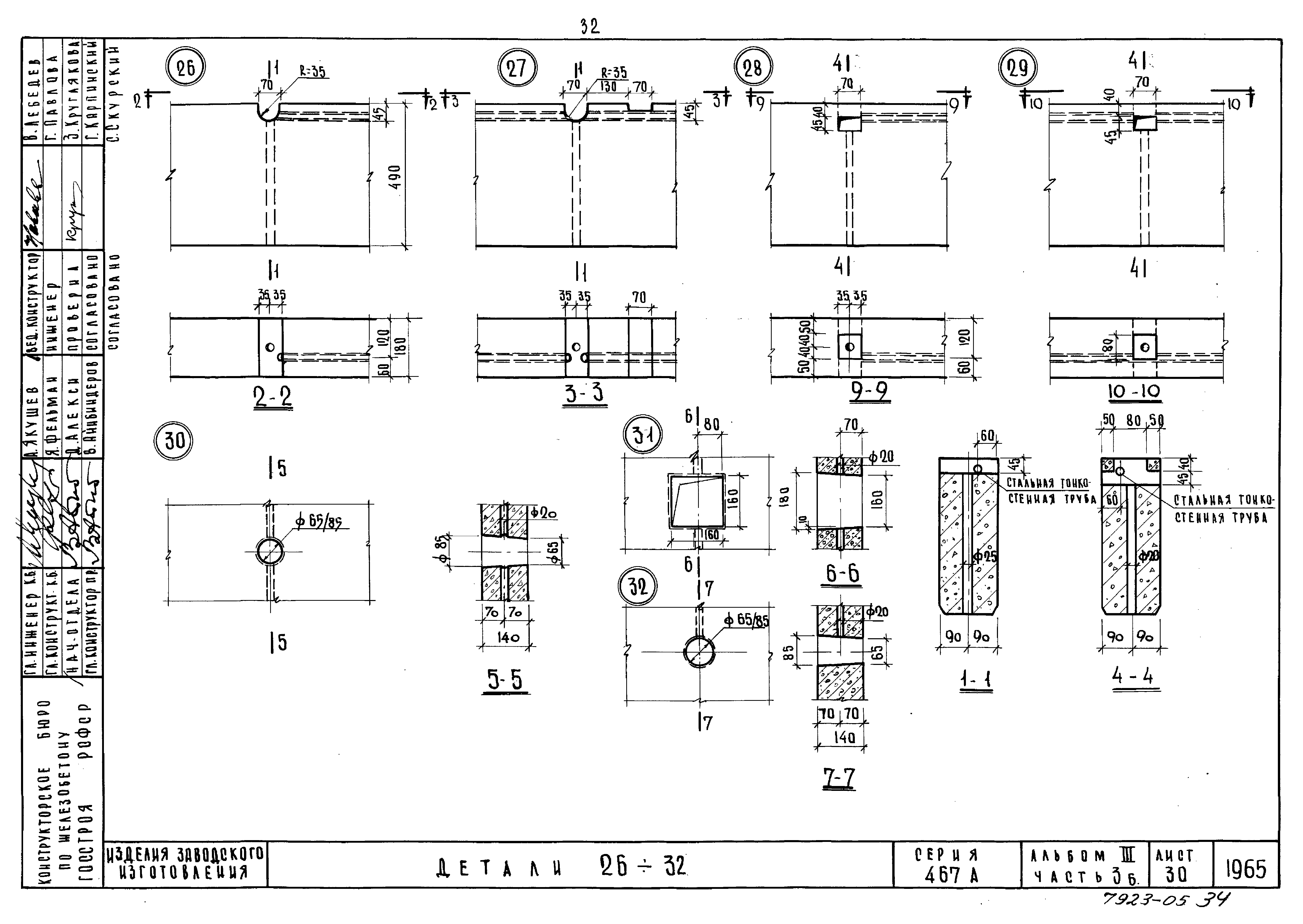
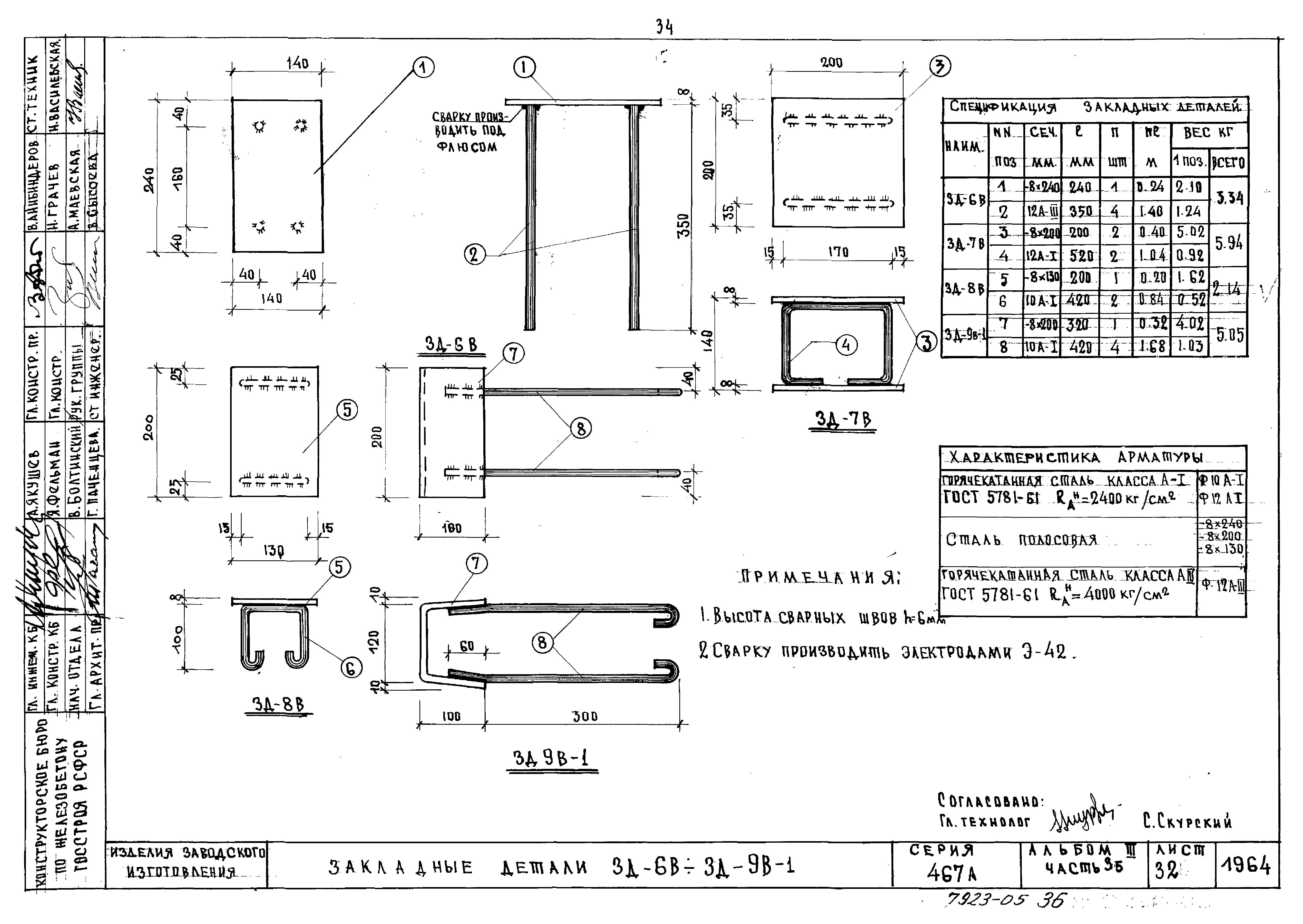
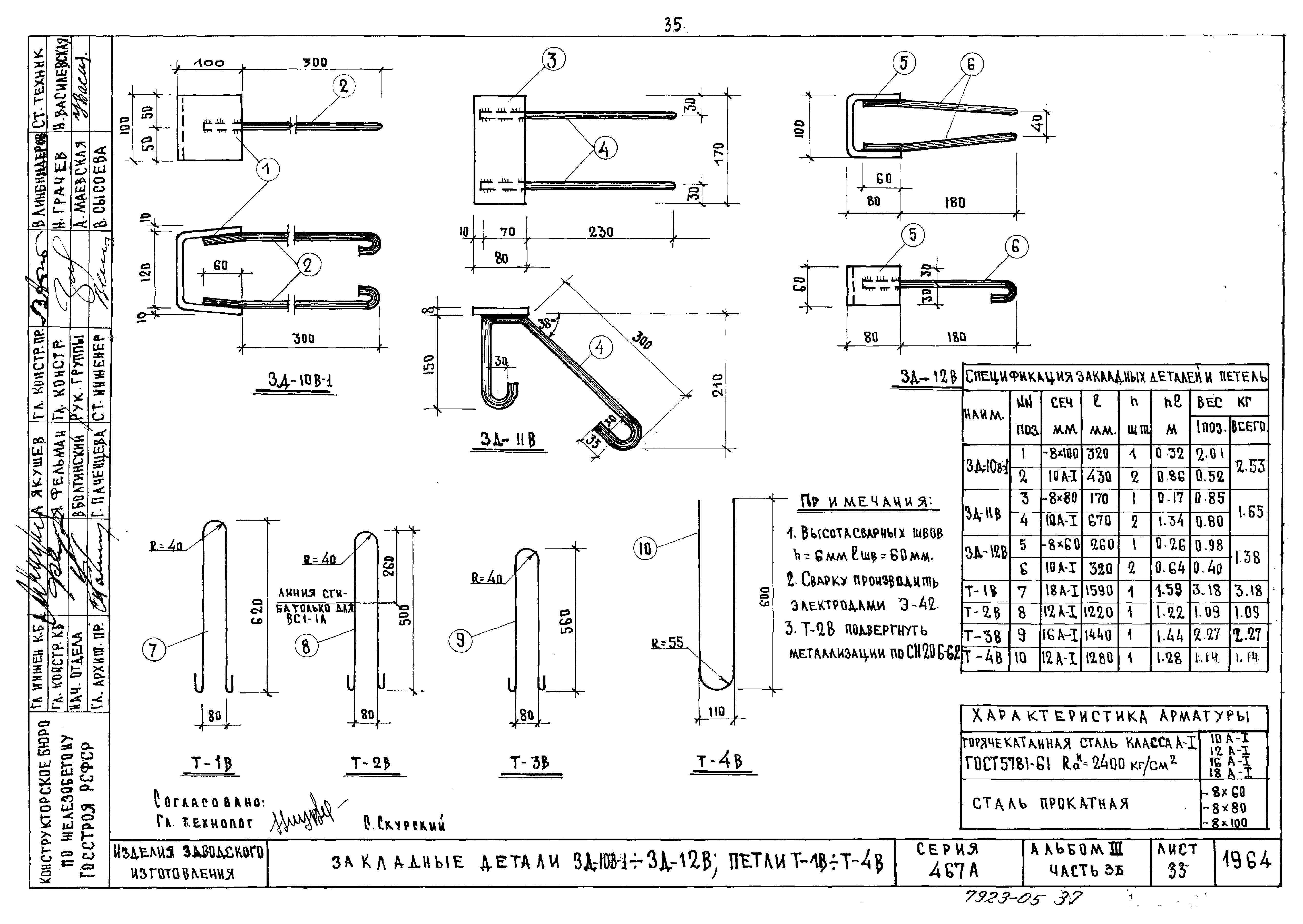
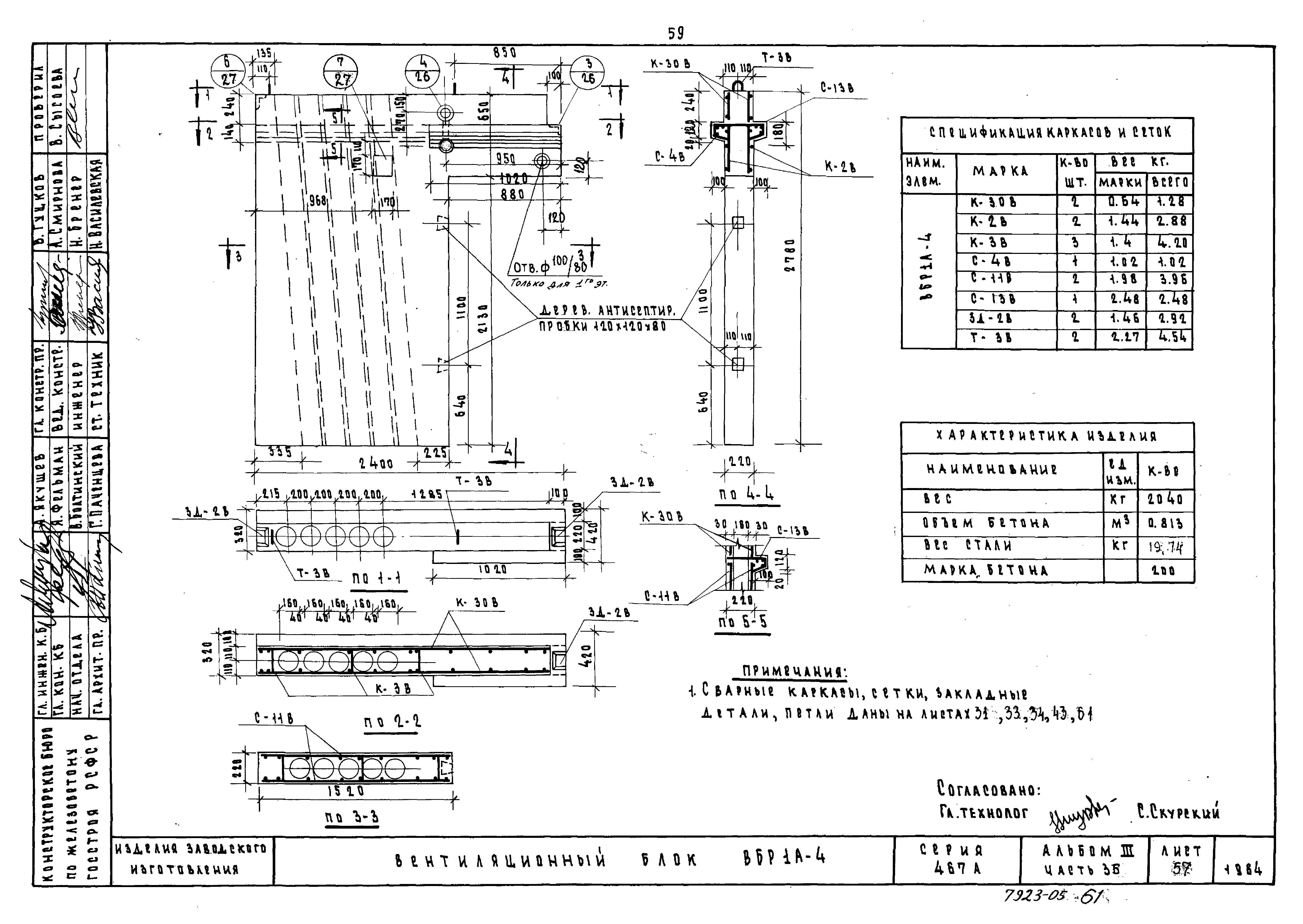
| Оглавление: | Содержание альбома Пояснительная записка Вентиляционные блоки Внутренние стеновые панели Ригели Внутренняя стеновая панель Ригели Внутренняя стеновая панель Детали Закладные детали Сварные каркасы Сварные сетки Ригели Сварные каркасы Вентиляционные блоки Сварные сетки и каркасы |
| Разработан: | КБ по железобетону Госстроя РСФСР |
| Утверждён: | 30.10.1964 КБ по железобетону Госстроя РСФСР (16) |
| Издан: | ЦИТП Госстроя СССР (CITP, Gosstroy (USSR) 1965 г. ) |































































