Скачать Типовой проект 264-12-318.92 Альбом 1. Часть 1. Пояснительная записка архитектурных решений. Архитектурные решенияДата актуализации: 01.01.2021
|
| Обозначение: | Типовой проект 264-12-318.92 |
| Обозначение англ: | 264-12-318.92 |
| Статус: | не определен законодательством |
| Название рус.: | Альбом 1. Часть 1. Пояснительная записка архитектурных решений. Архитектурные решения |
| Дата добавления в базу: | 01.10.2014 |
| Дата актуализации: | 01.01.2021 |
| Дата введения: | 17.09.1992 |
| Дата окончания срока действия: | 30.06.2003 |
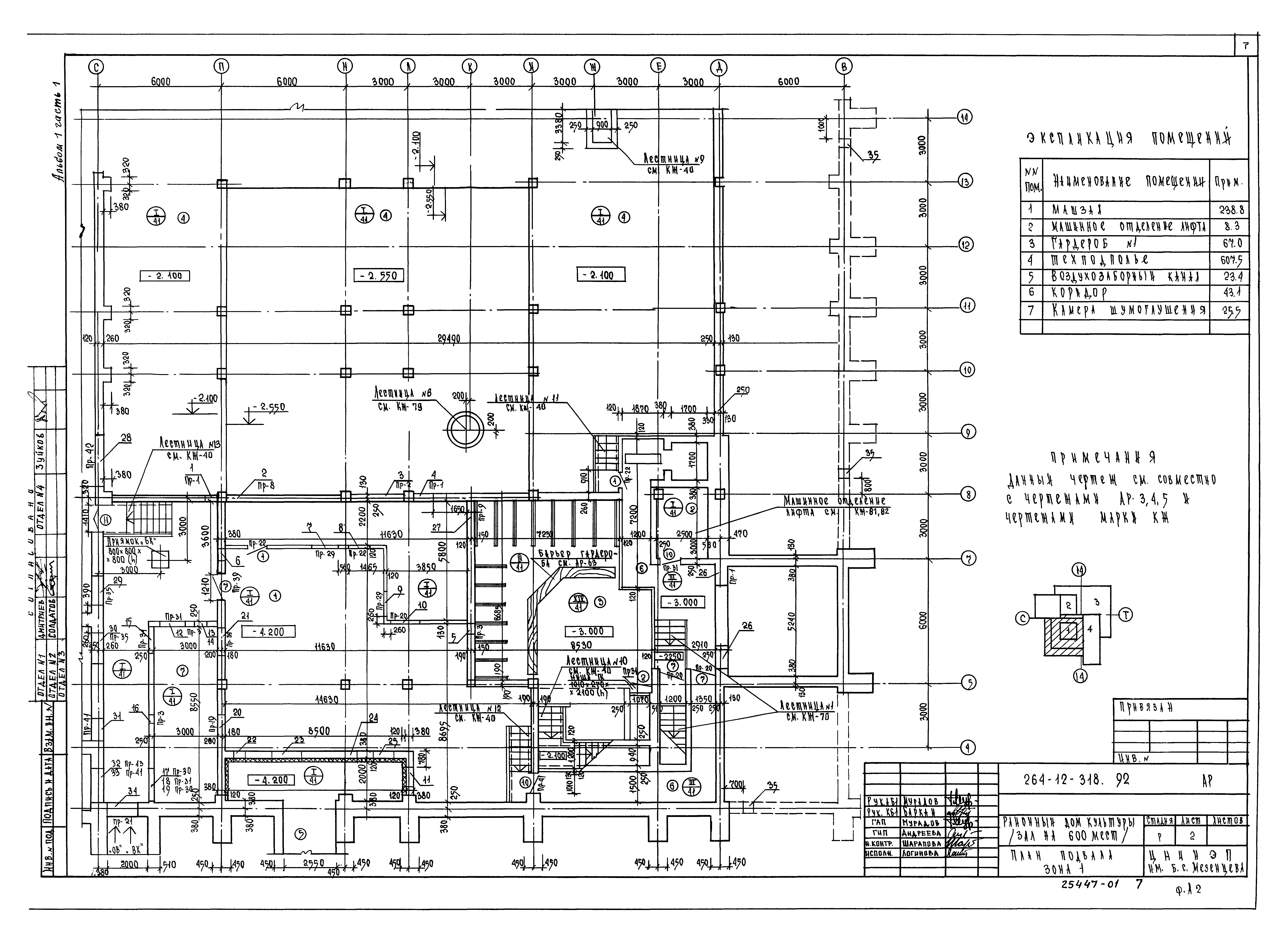
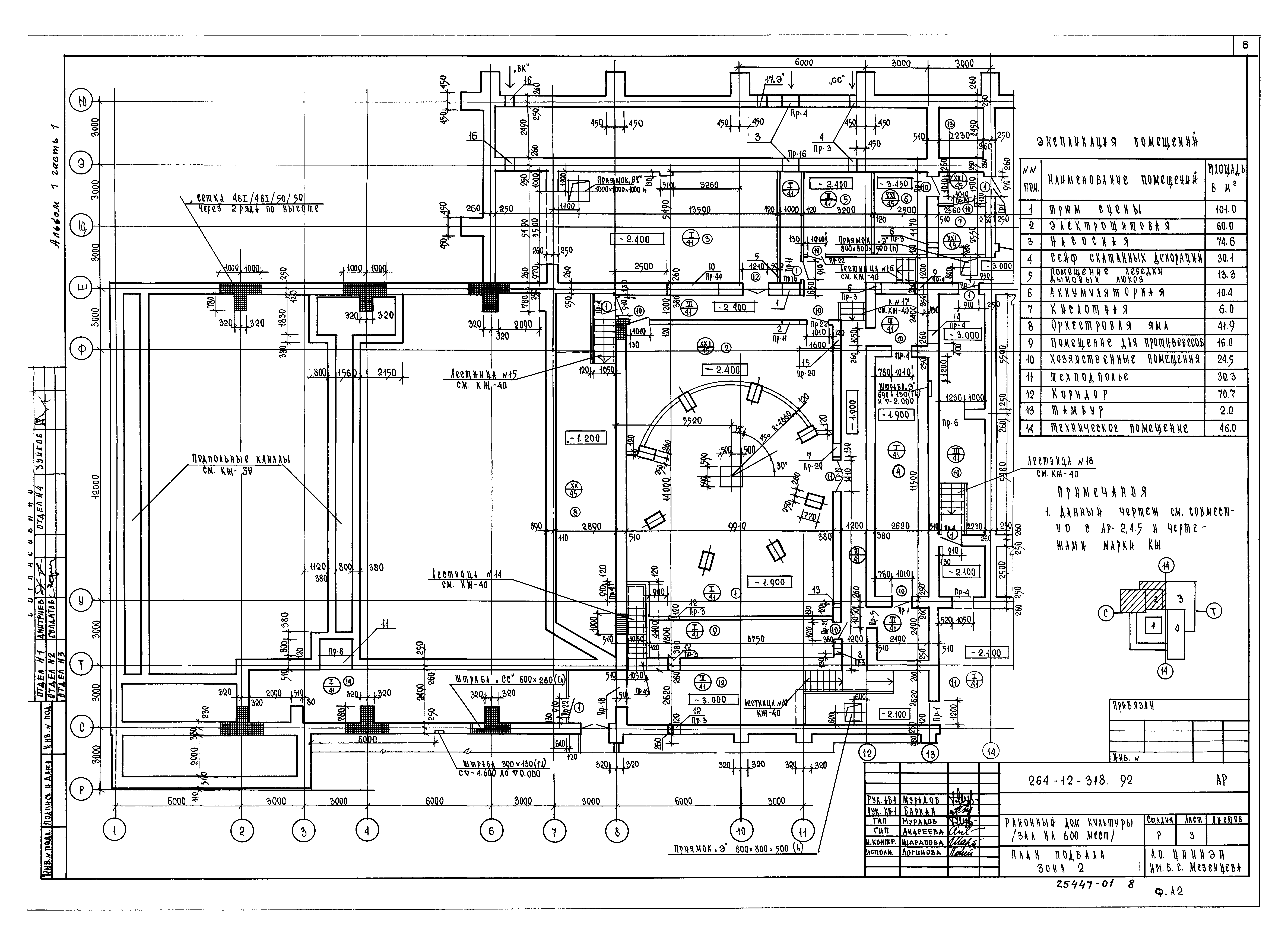
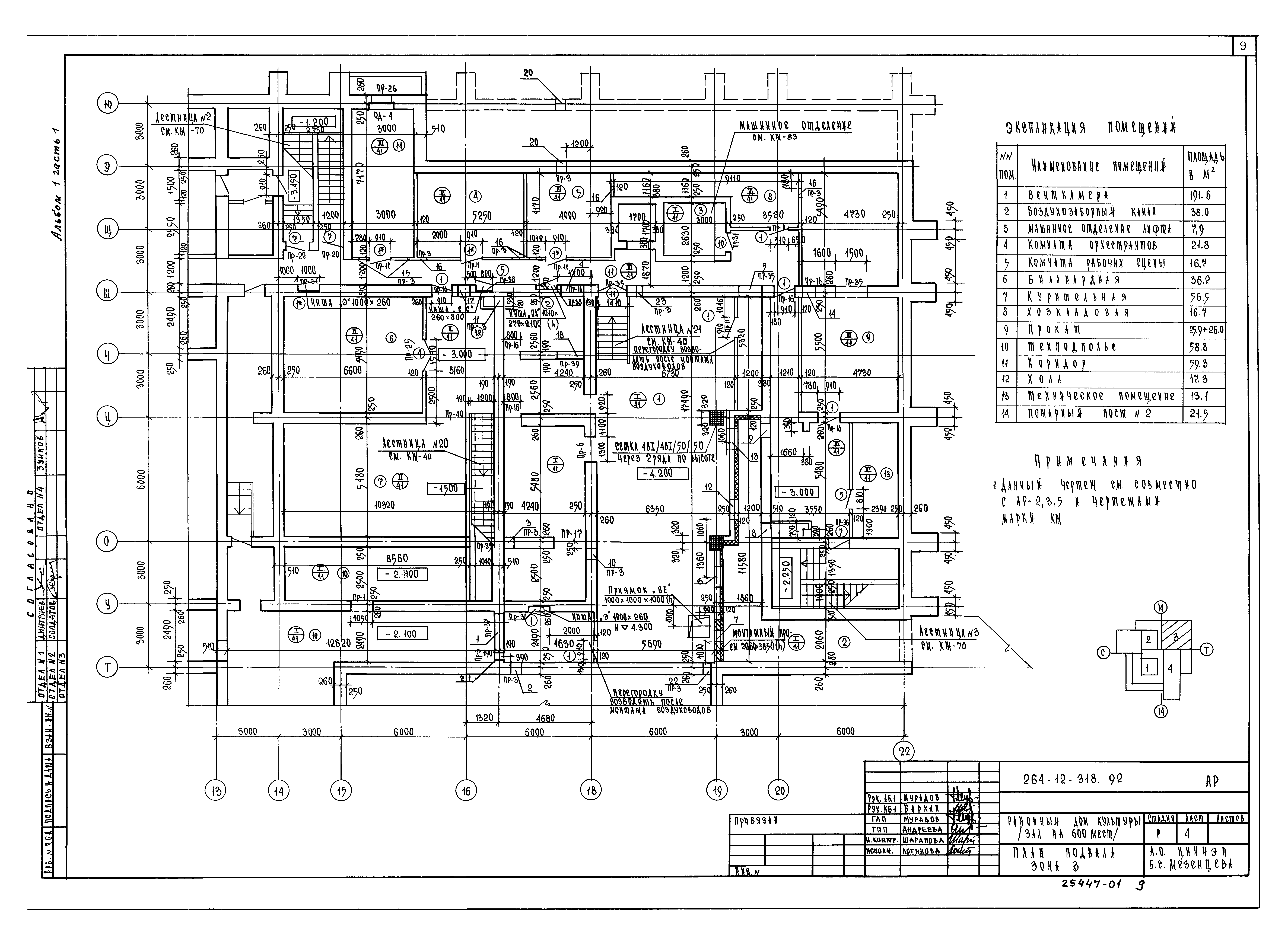
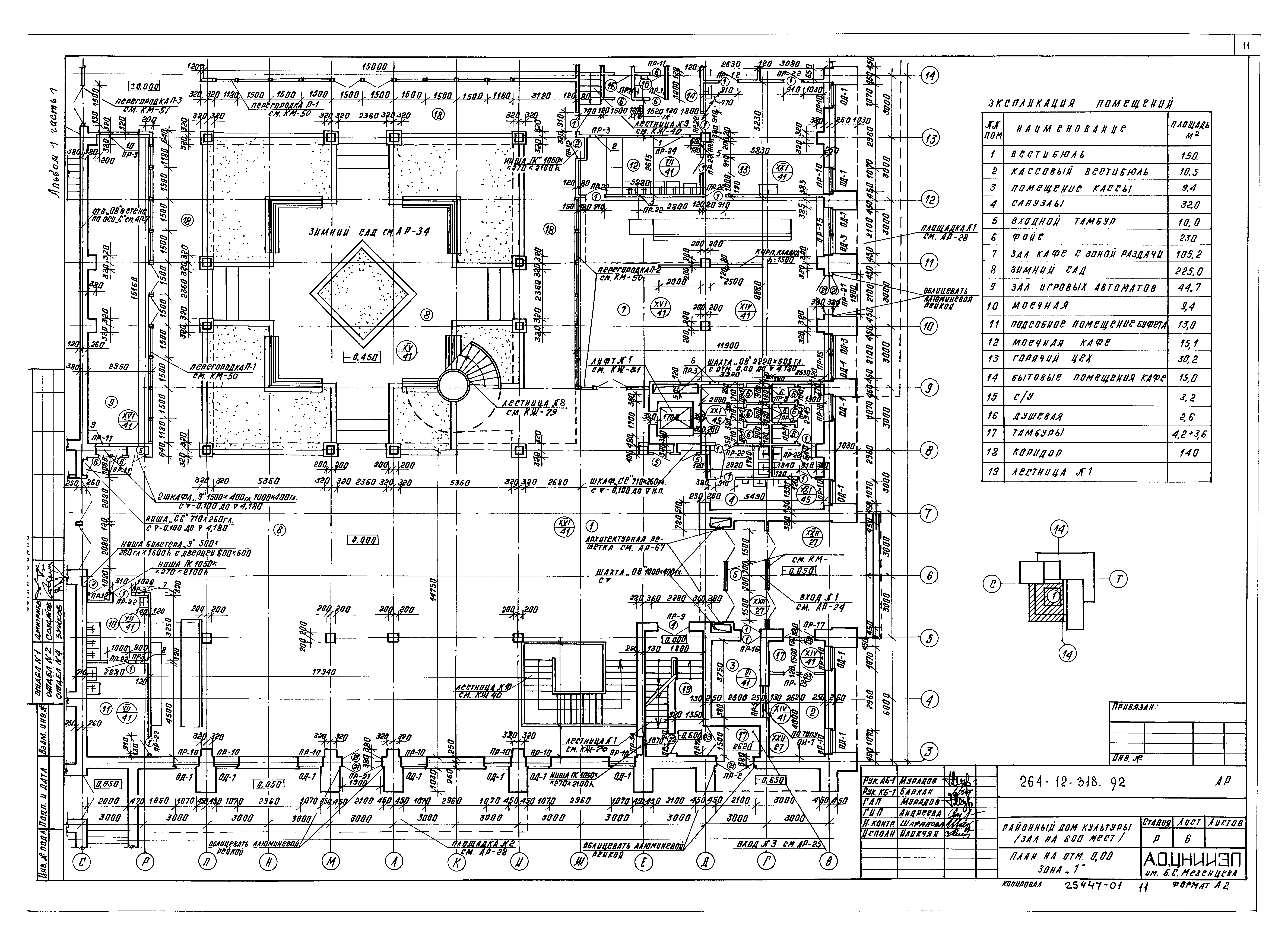
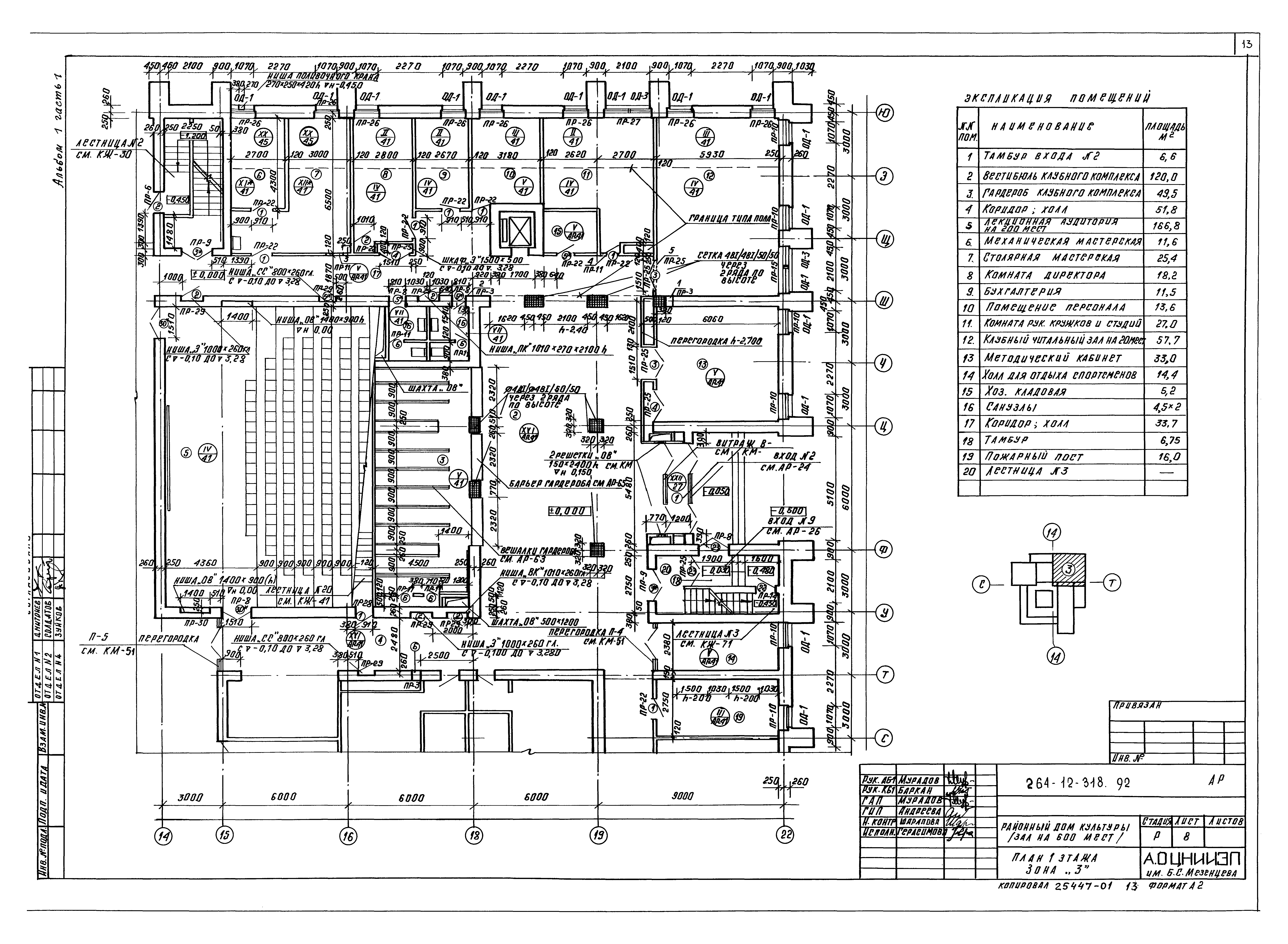
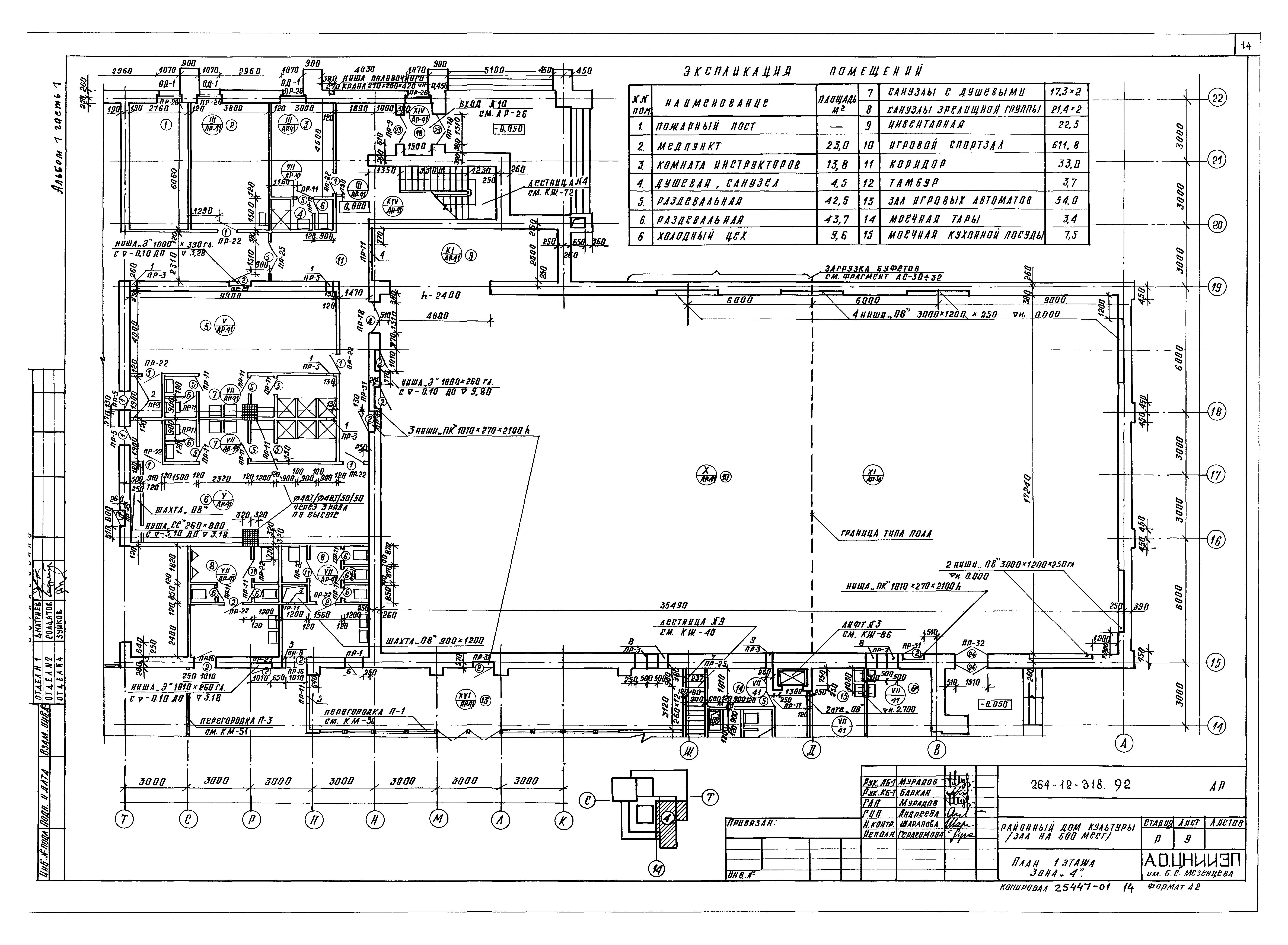
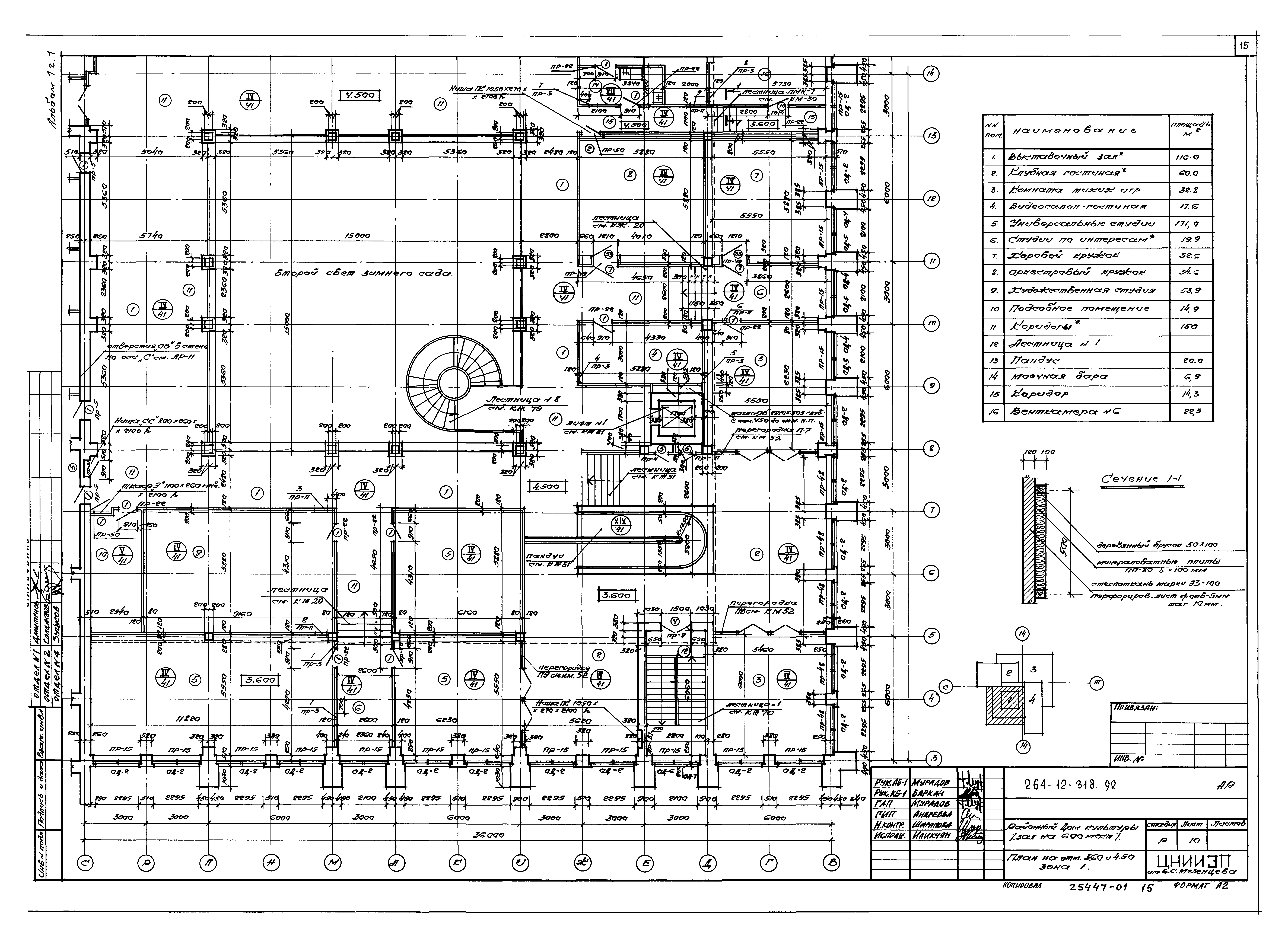
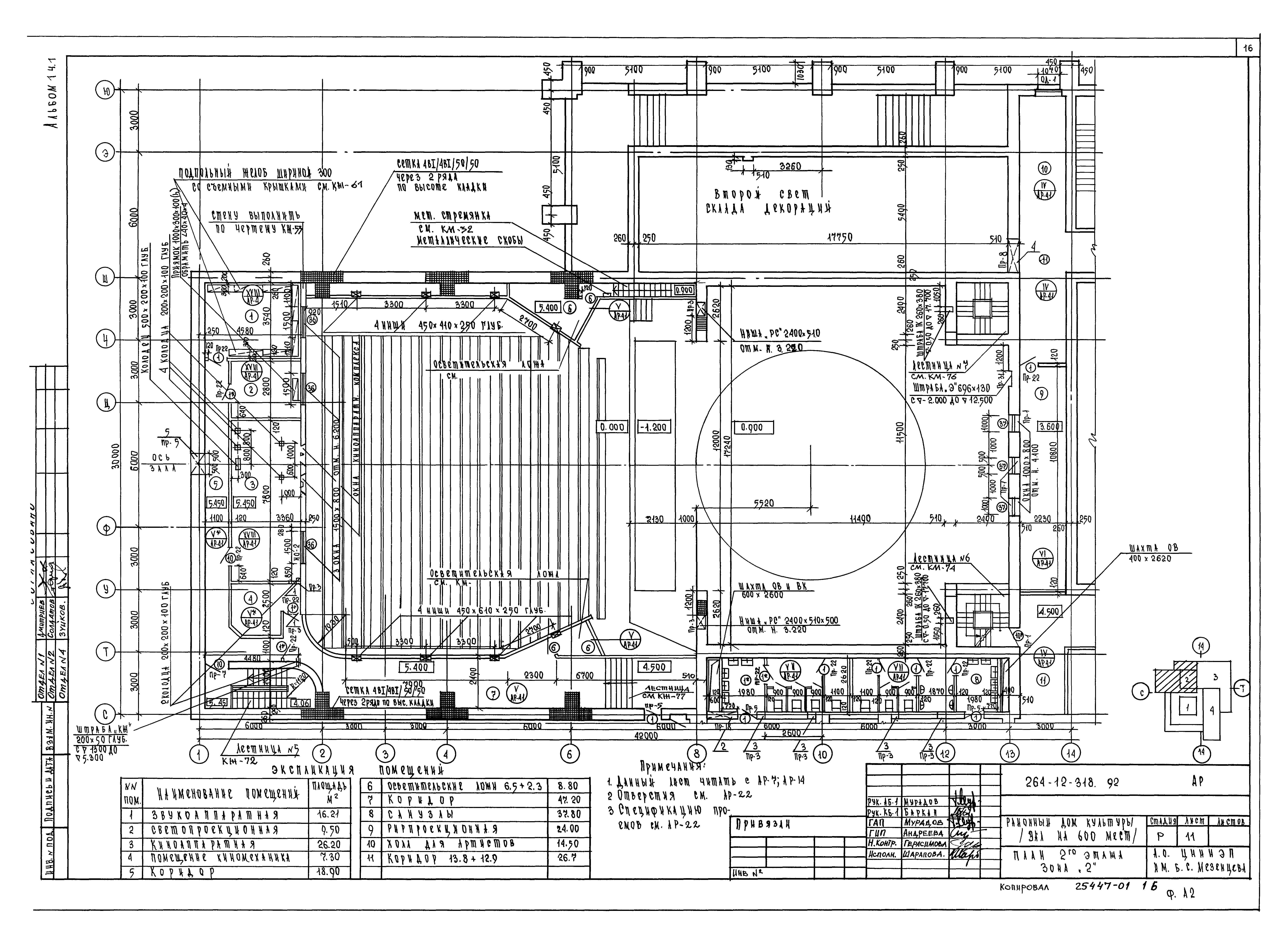
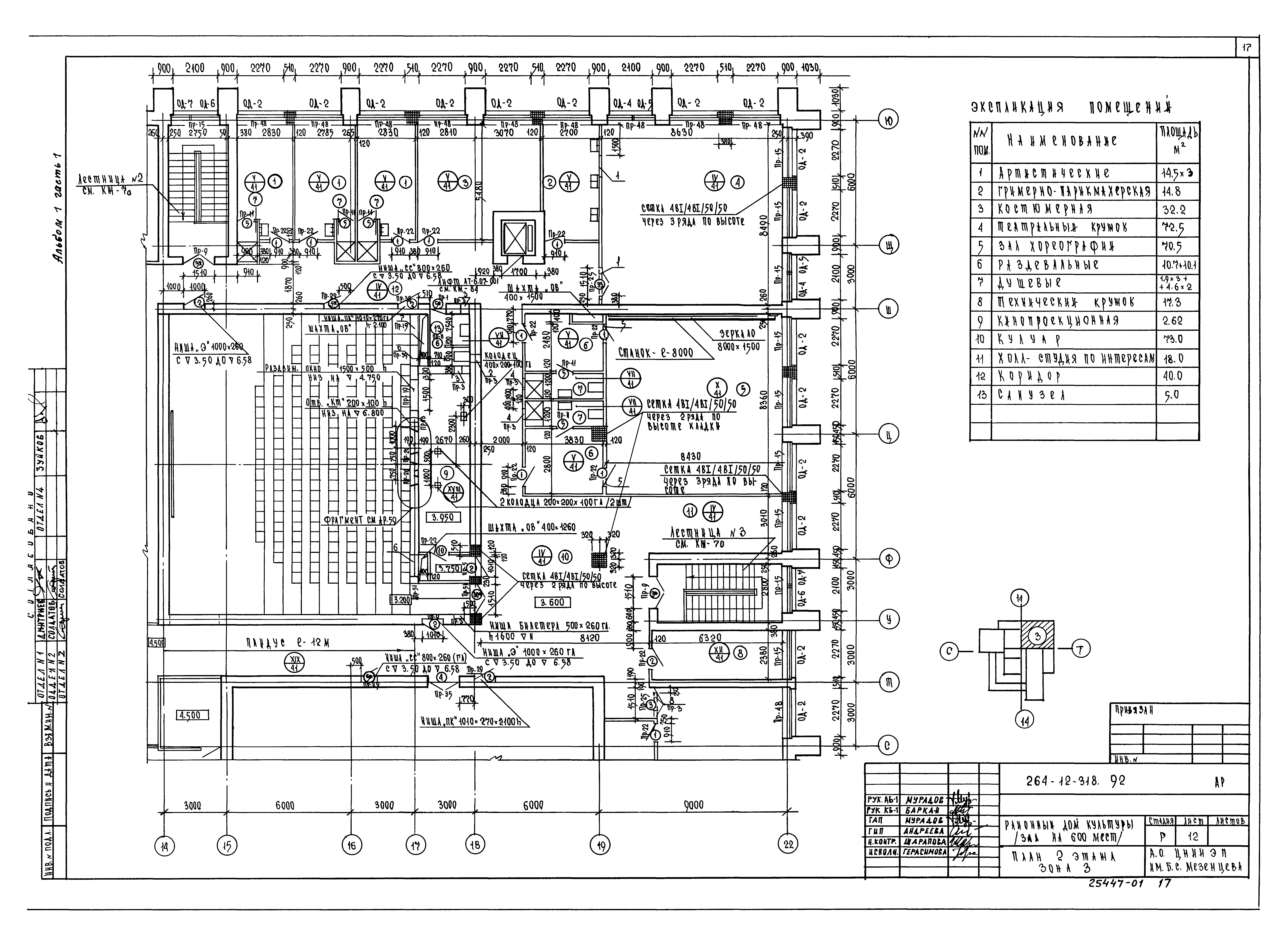
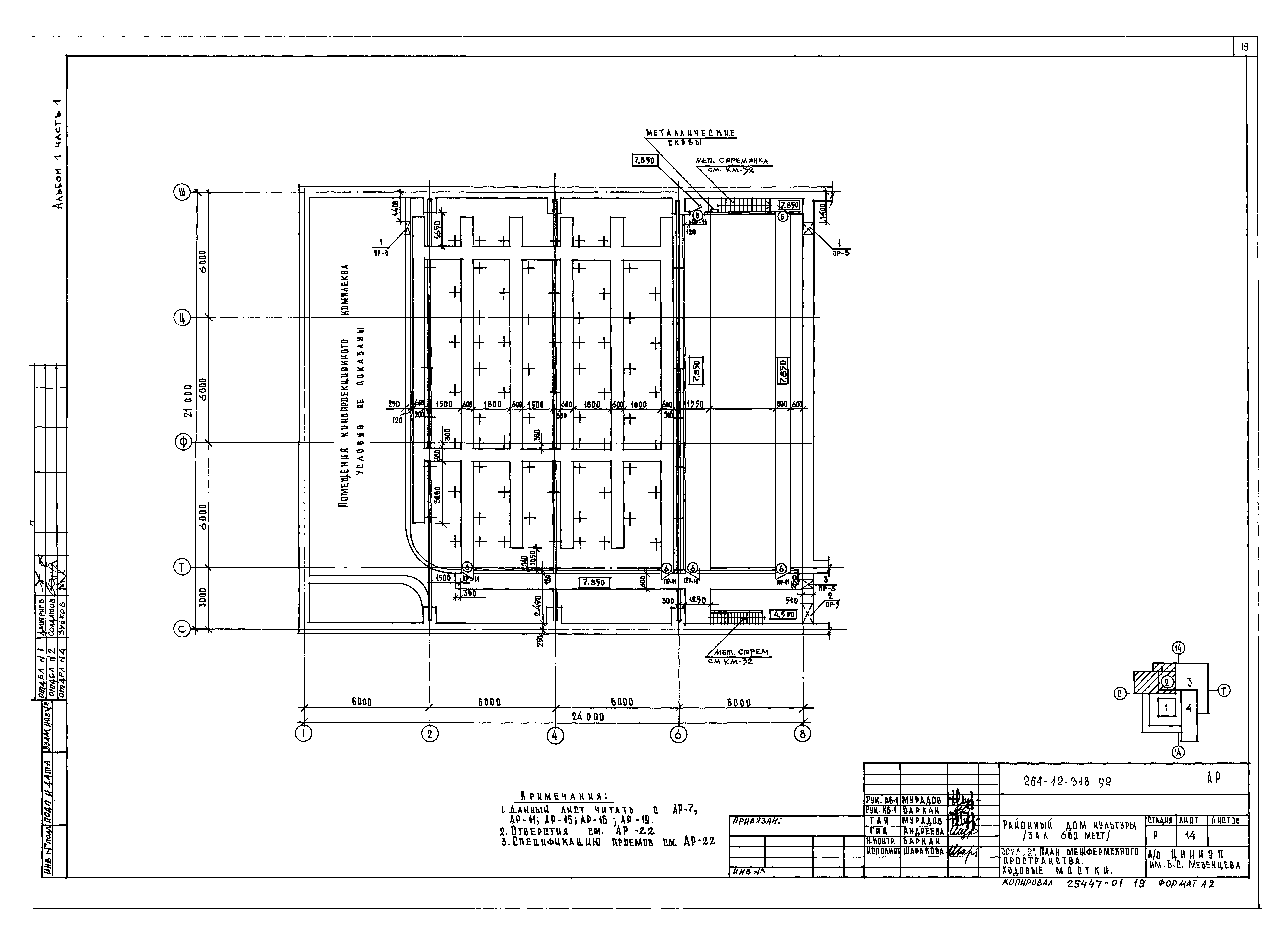
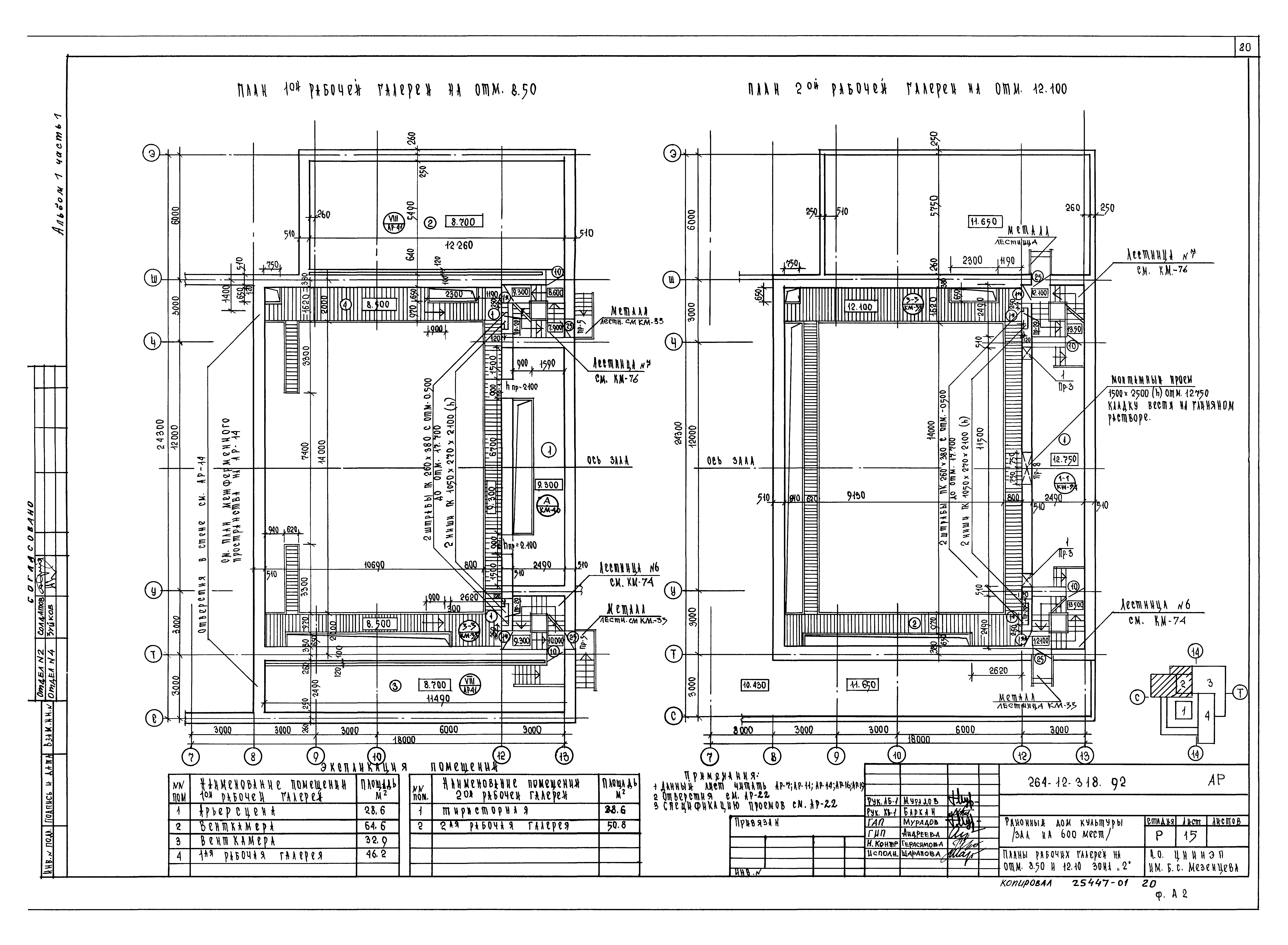
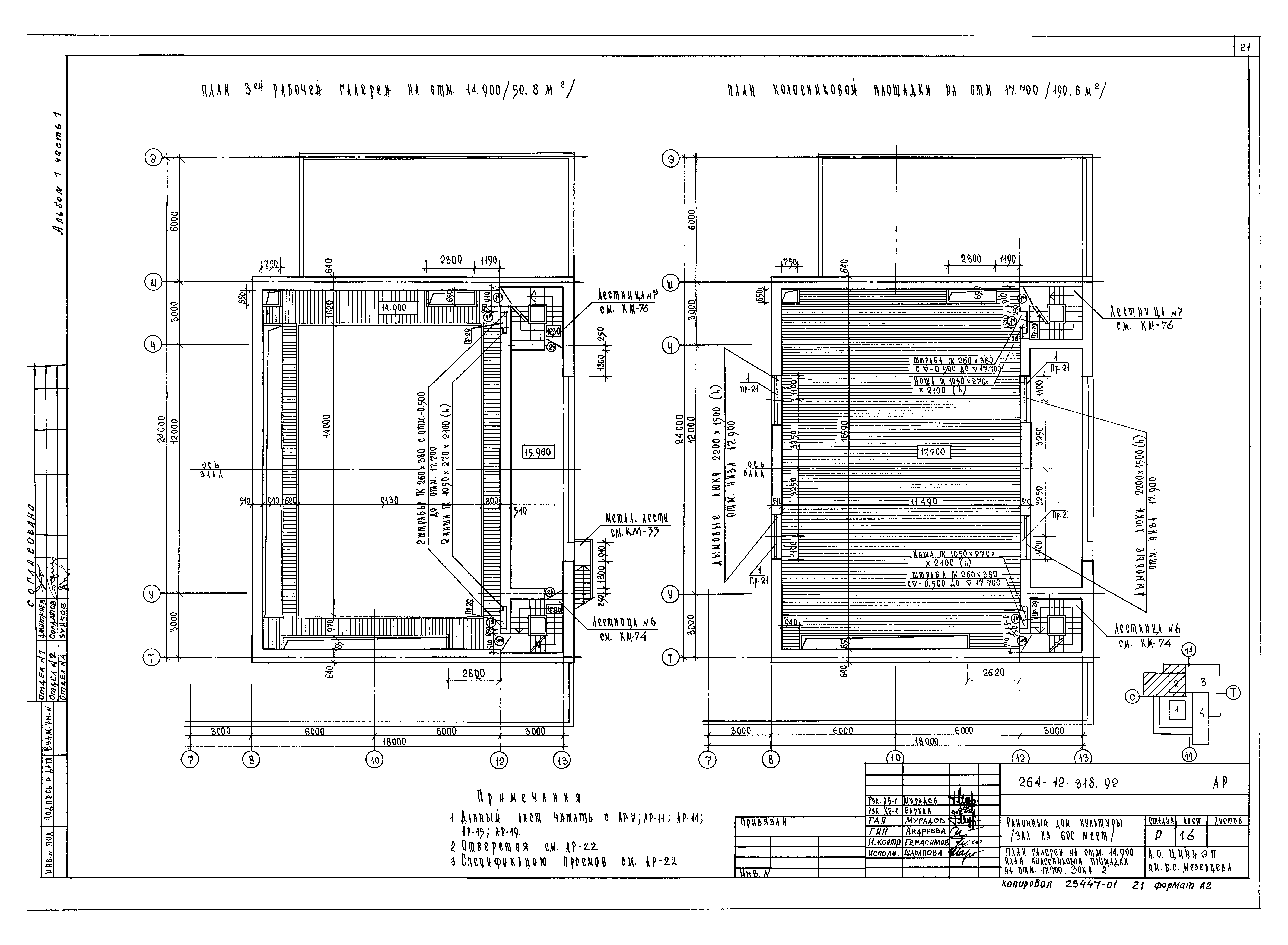
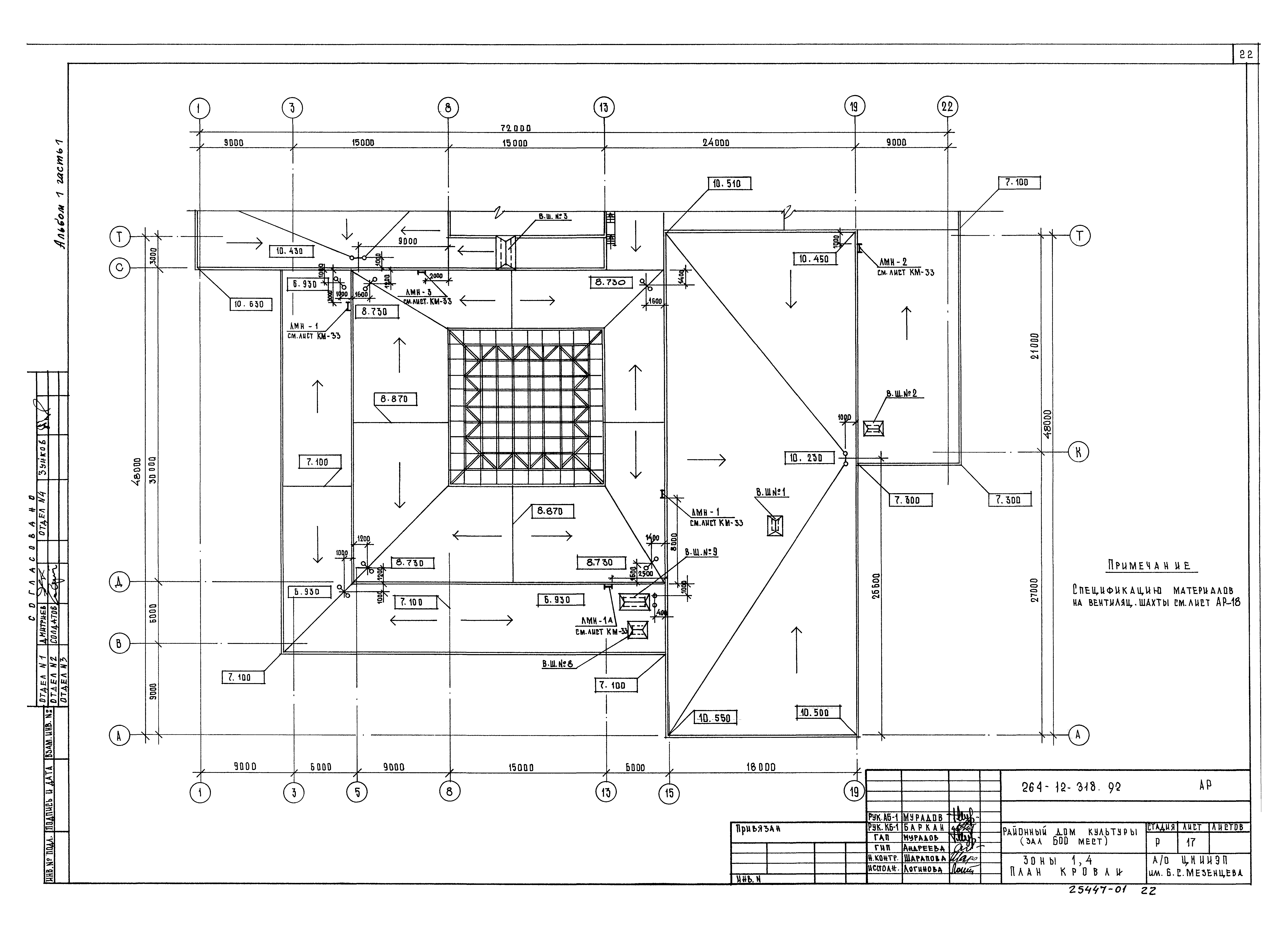
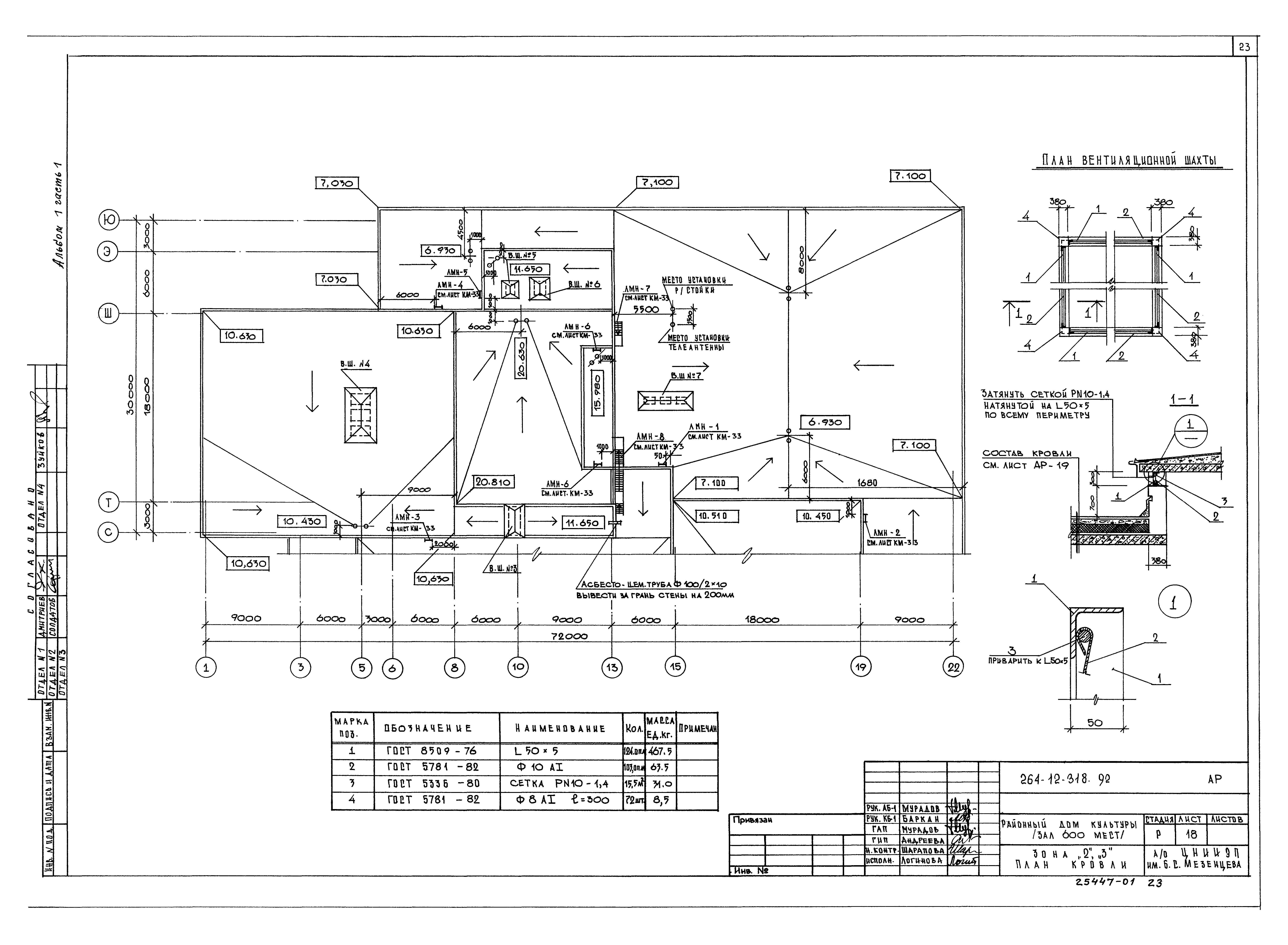
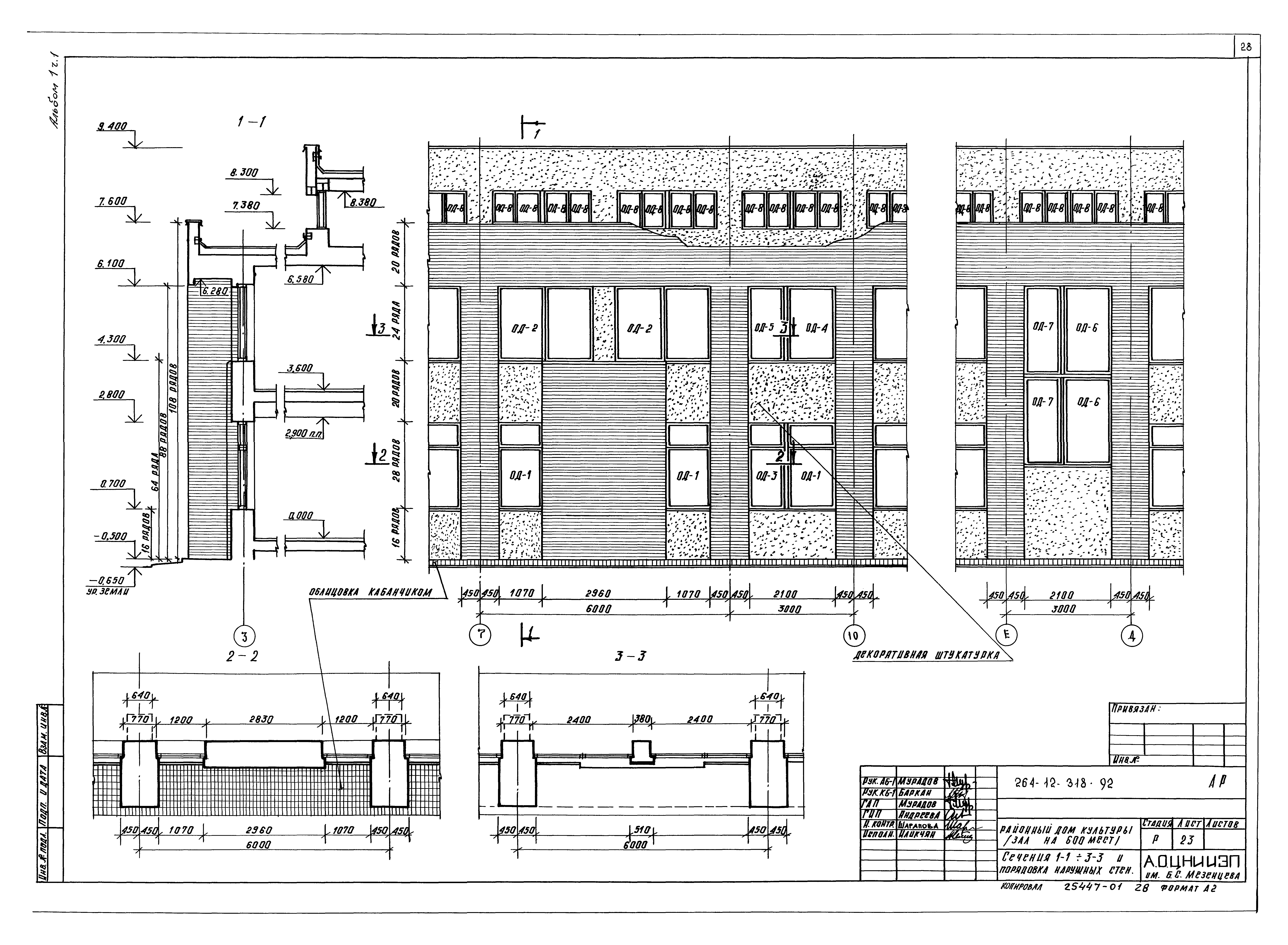
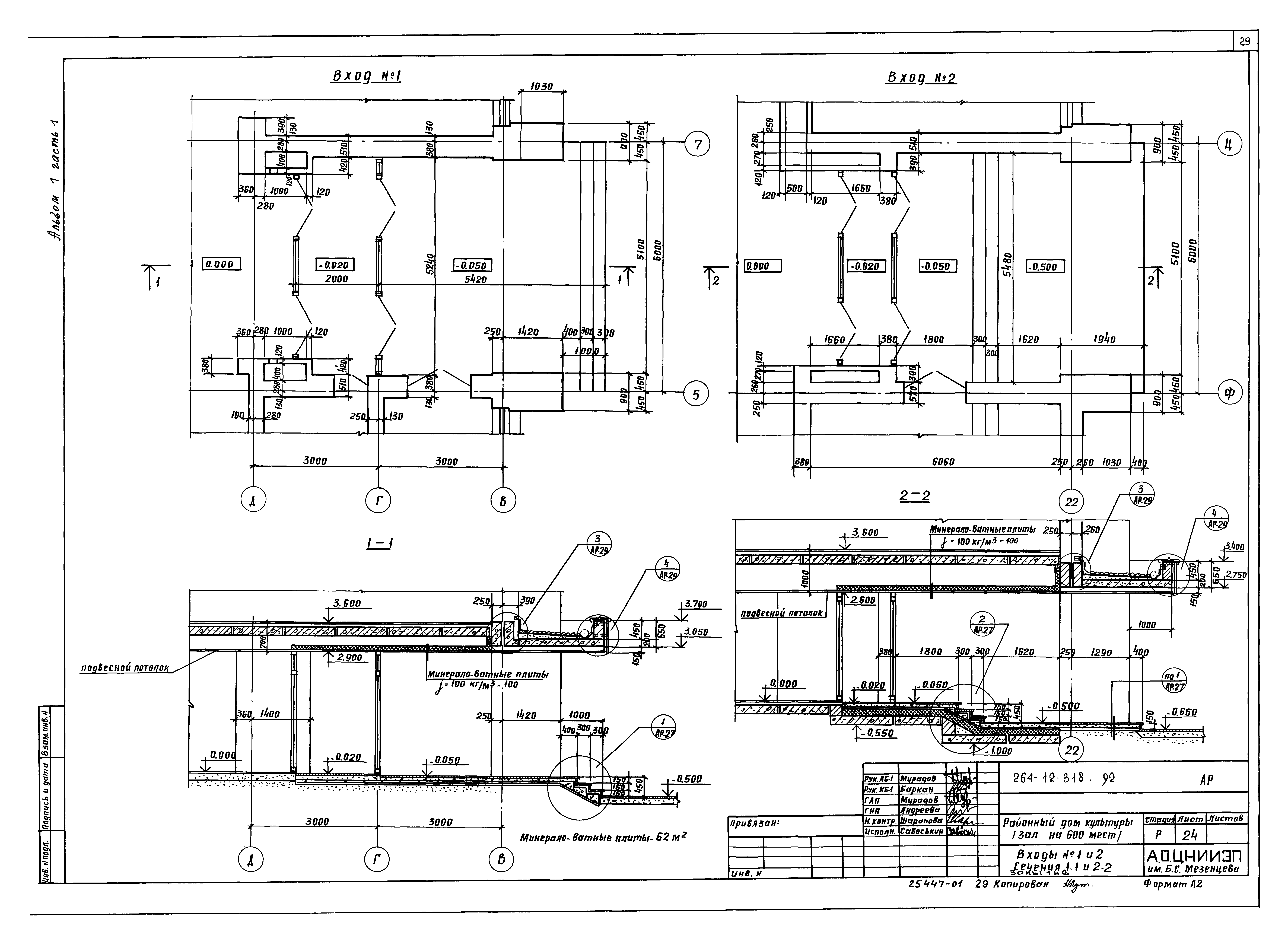
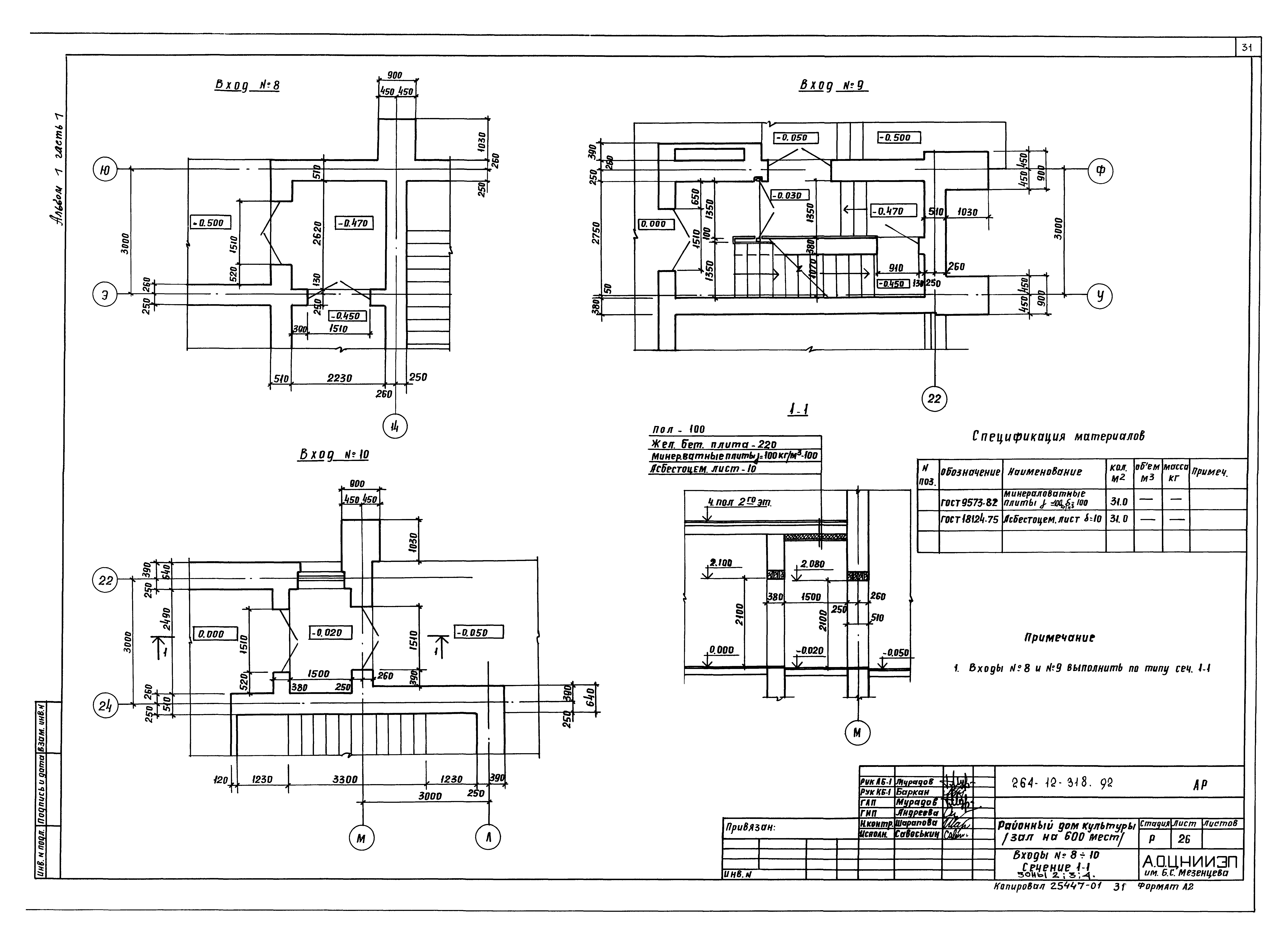
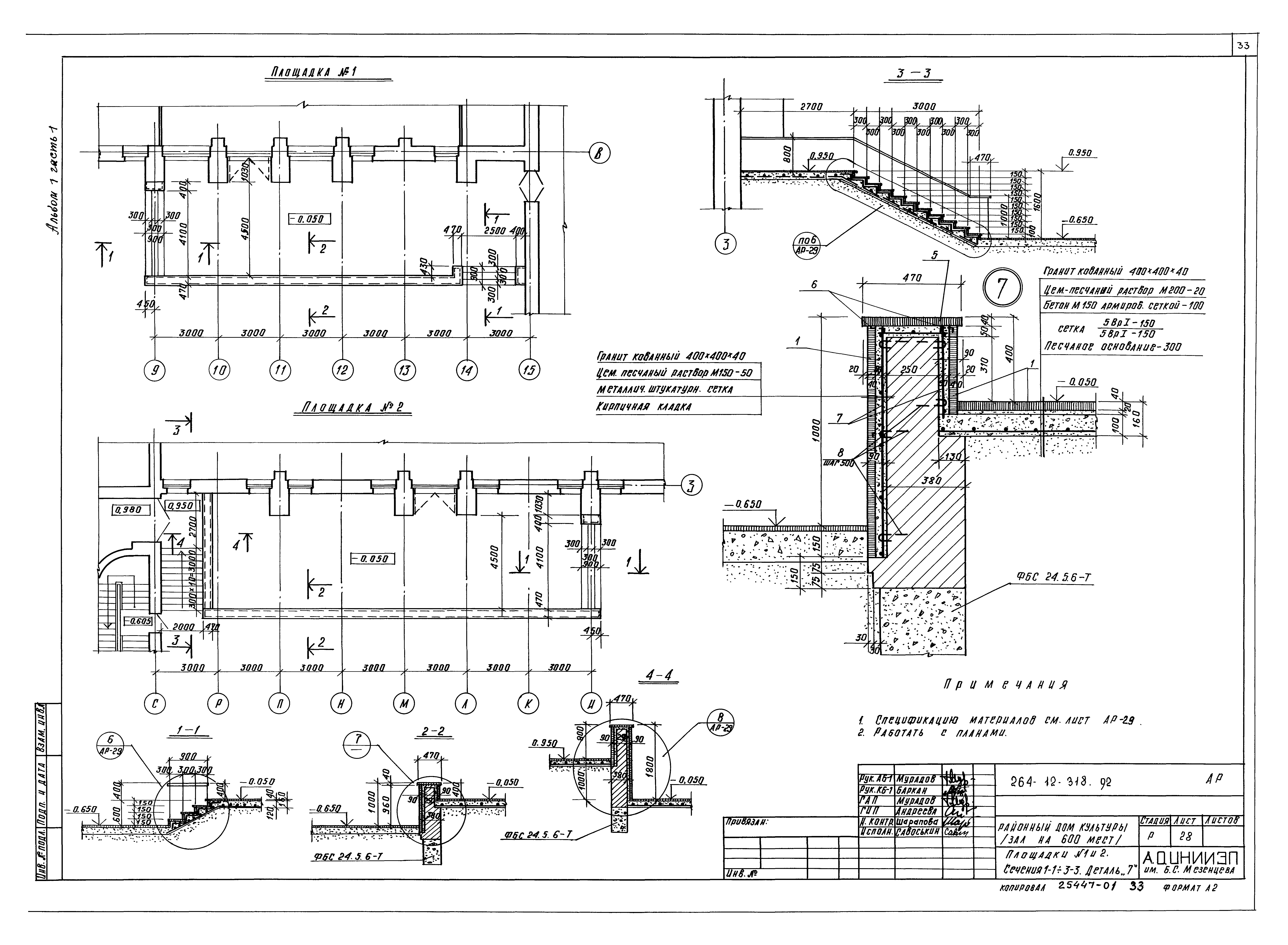
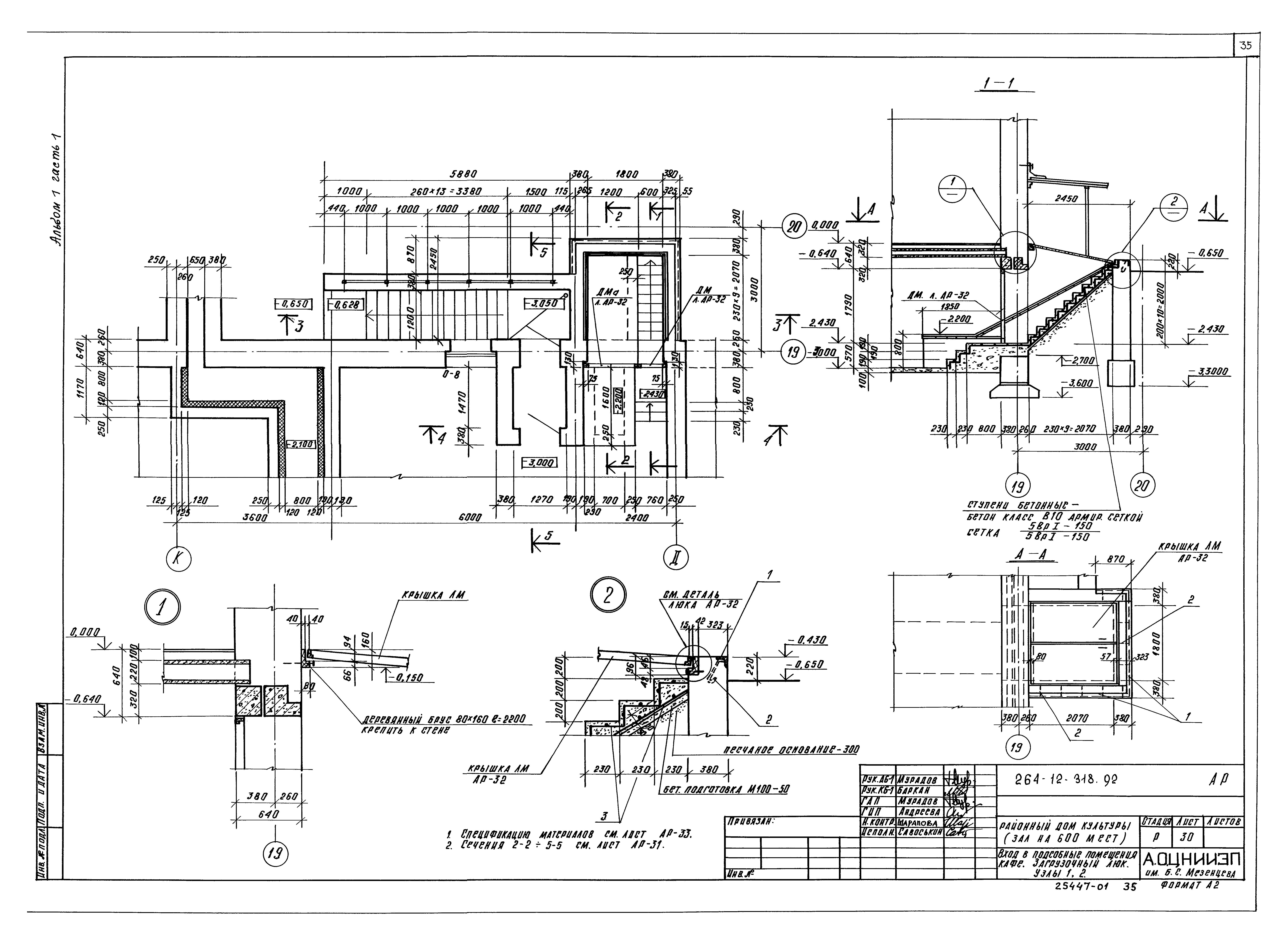
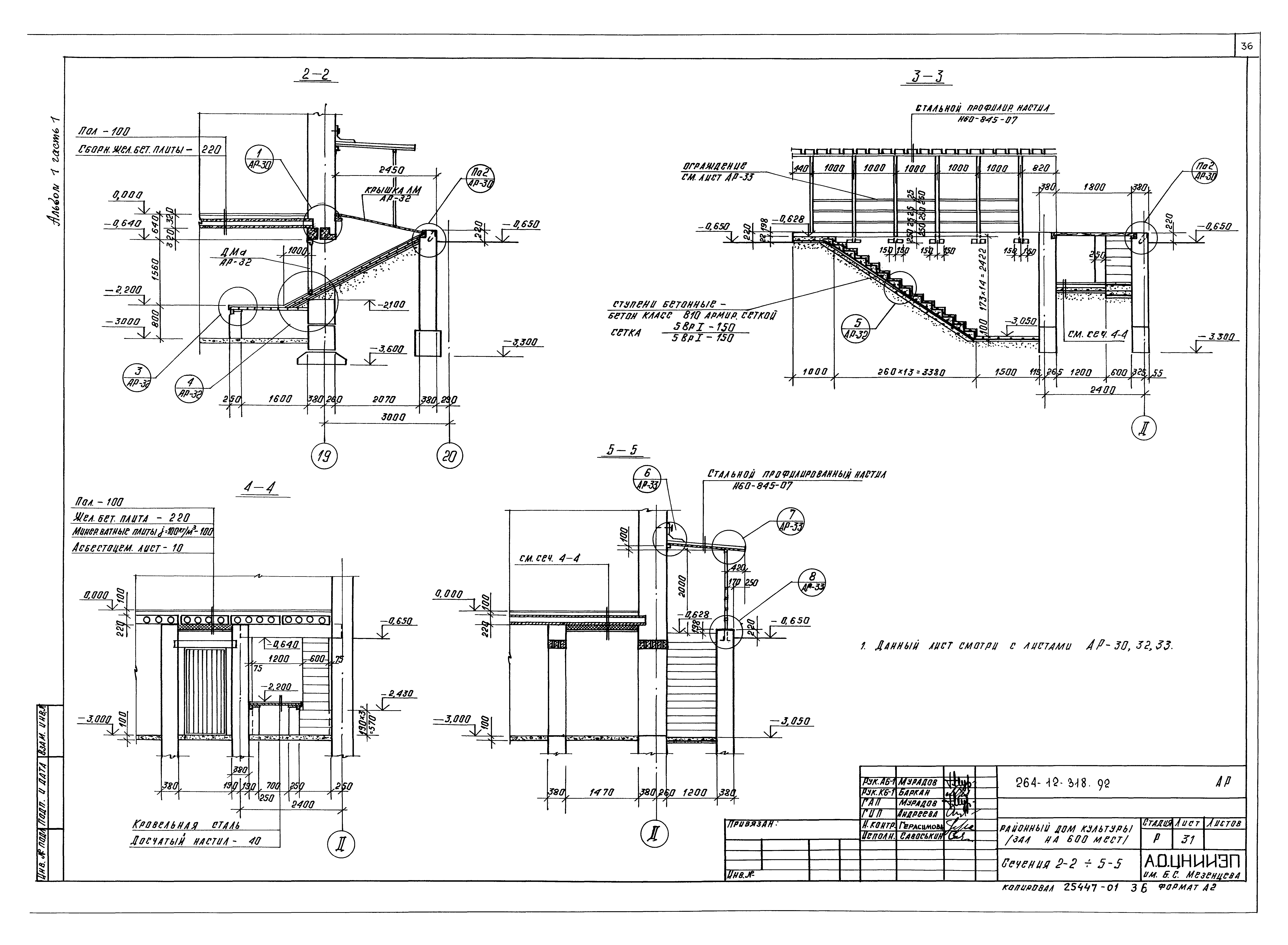
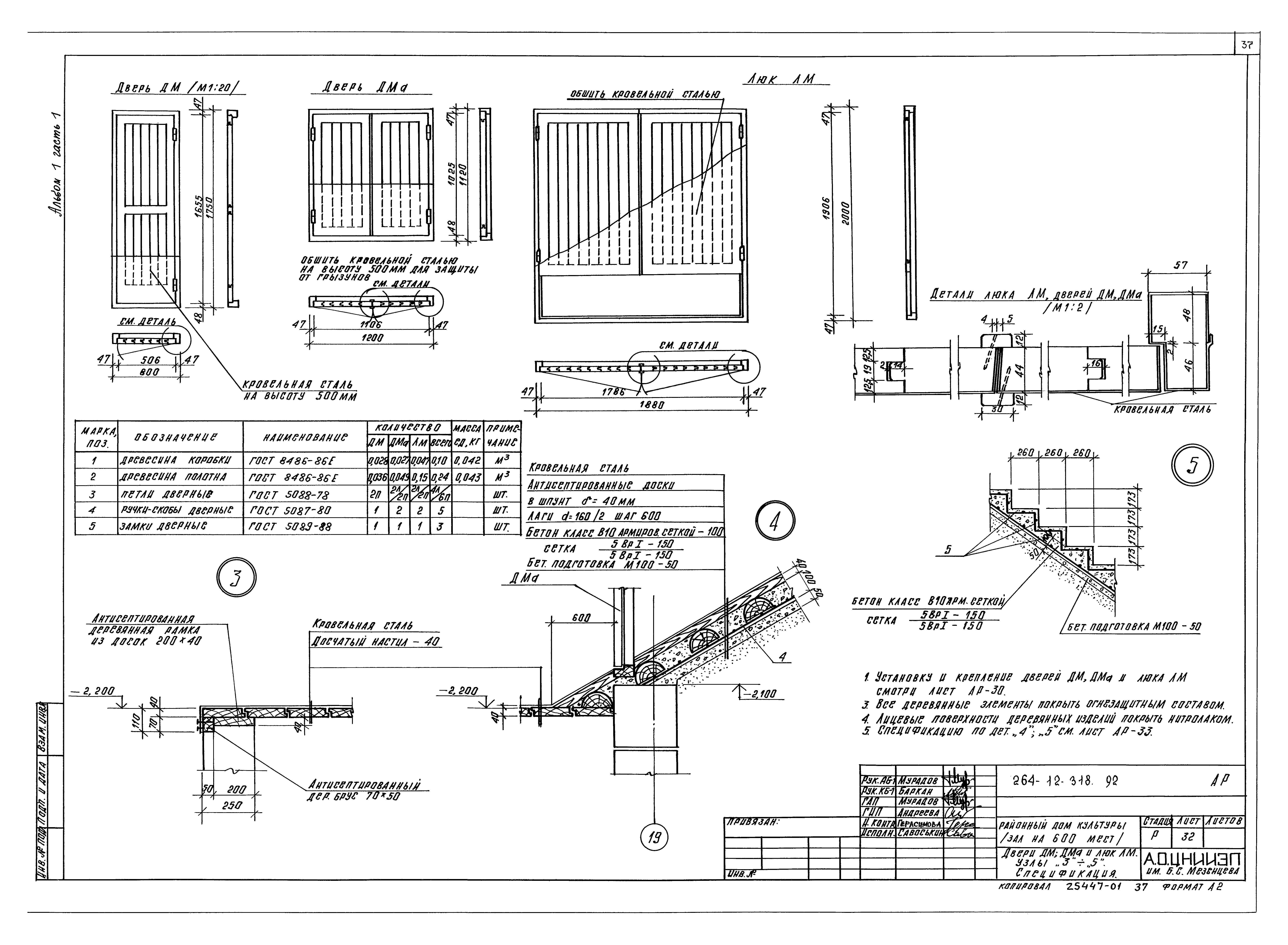
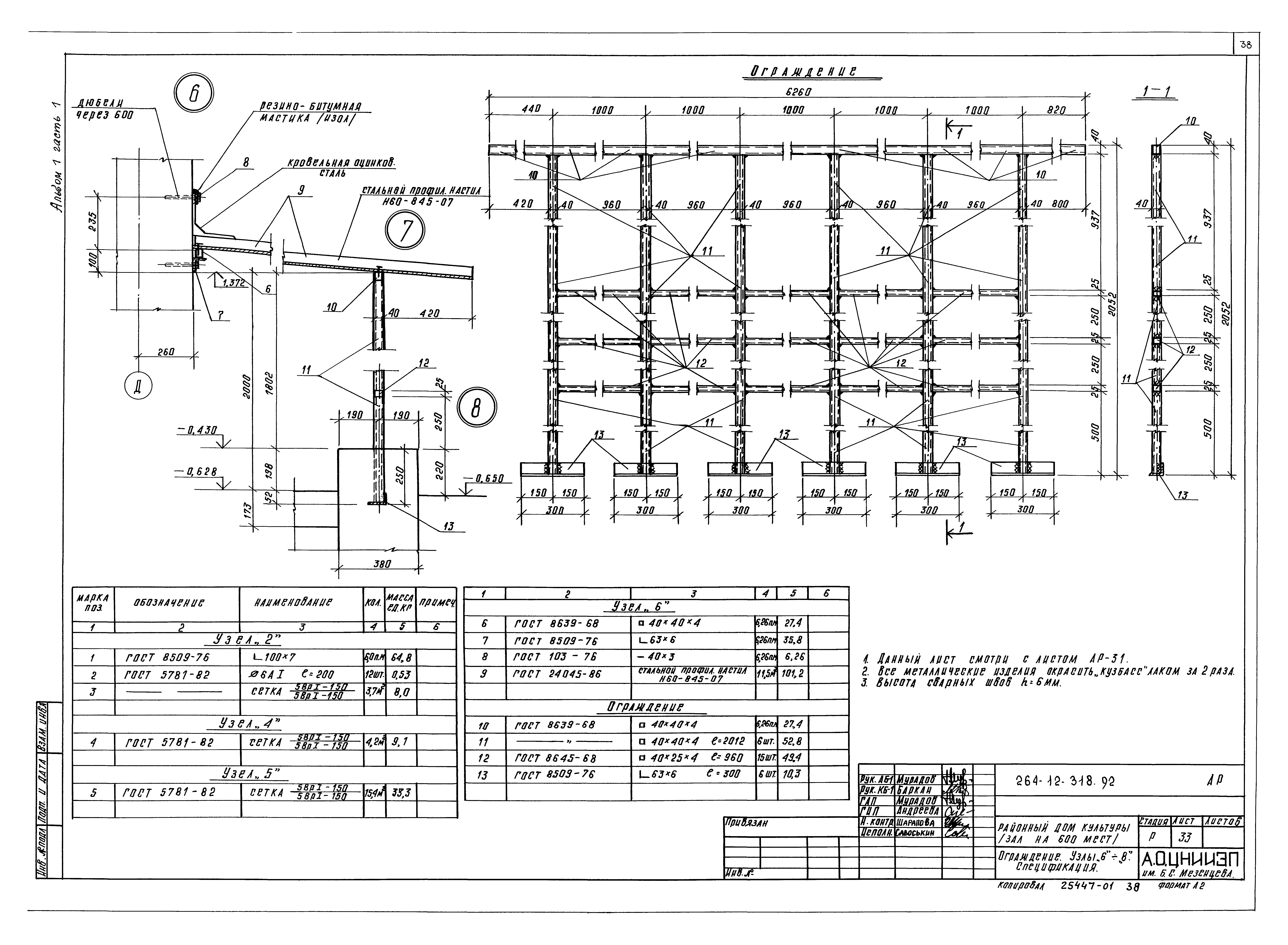
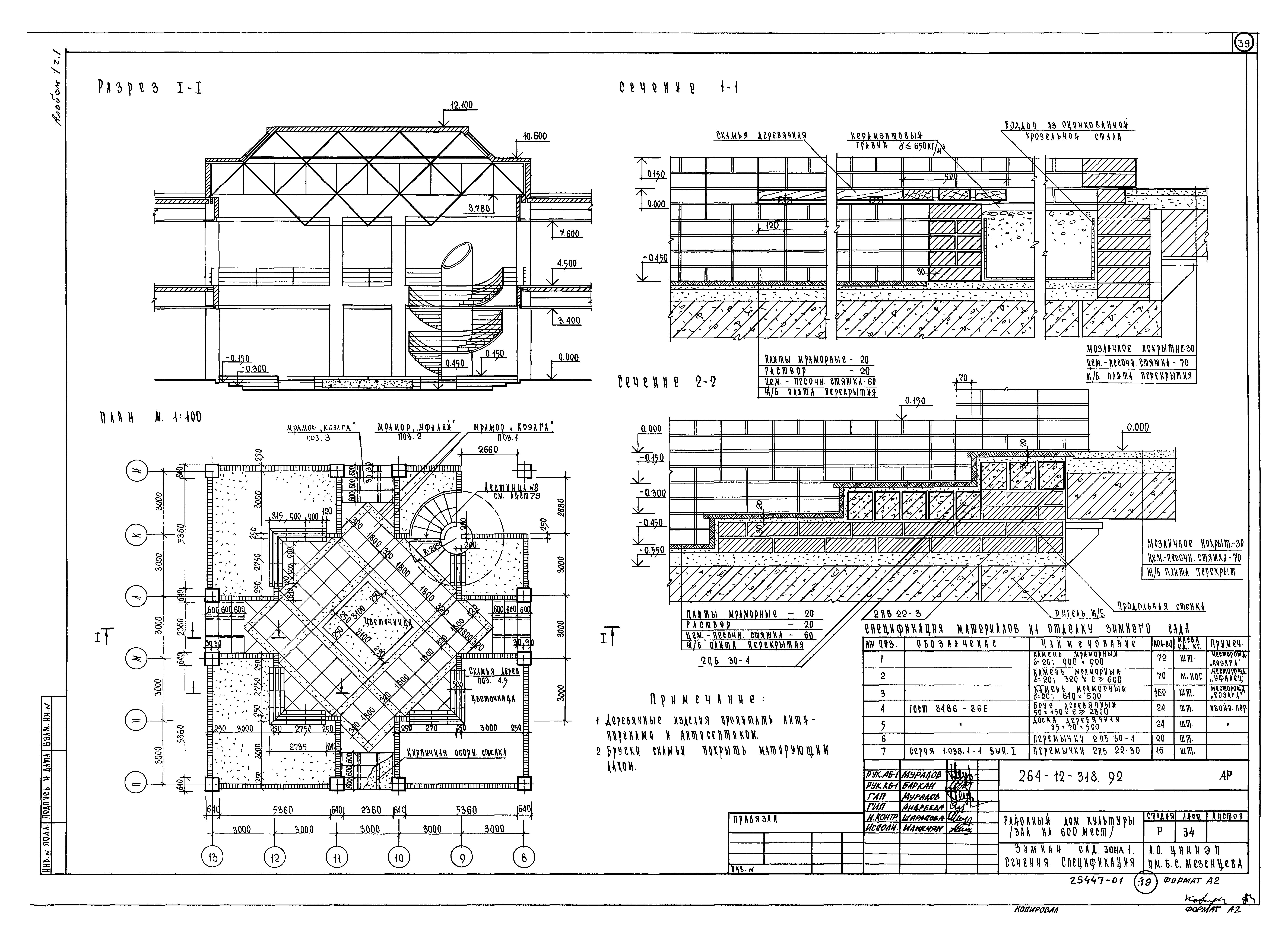
| Оглавление: | Пояснительная записка Чертежи основного комплекта марки АР Общие данные План подвала. Зона 1 План подвала. Зона 2 План подвала. Зона 3 План подвала. Зона 4 План на отм. 0.000. Зона 1 План 1-го этажа. Зона 2 План 1-го этажа. Зона 3 План 1-го этажа. Зона 4 План на отм. 3.600 и 4.500. Зона 1 План 2-го этажа. Зона 2 План 2-го этажа. Зона 3 План 2-го этажа. Зона 4 План межферменного пространства. Ходовые мостики. Зона 2 План рабочих галерей на отм. 8.500 и 12.100. Зона 2 План галерей на отм. 14.000. План колосниковой площадки на отм. 17.700. Зона 2 План кровли. Зоны 1 и 4 План кровли. Зоны 2 и 3 Разрезы I-I и II-II Фасады в осях А - Ю, 22 - 1 Фасады в осях 1 - 22, Ю - А Таблицы отверстий и проемов Сечения 1-1 - 3-3 и порядовка наружных стен Входы №1 и 2. Сечения 1-1, 2-2, зоны 1 и 2 Входы №3 - 7. Сечения 1-1, 2-2, зоны 1 и 2 Входы №8 - 10. Сечение 1-1, зоны 2, 3, 4 Детали 1, 2, 5. Спецификация Площадки №1 и №2, сечения 1-1 - 3-3. Деталь 7 Детали 3, 4, 6, 8. Спецификация Вход в подсобные помещения кафе. Загрузочный люк. Узлы 1, 2 Сечения 2-2 - 5-5 Двери ДМ, ДМа и люк ЛМ. Узлы 3 - 5. Спецификация Ограждение. Узлы 6 - 8. Спецификация Зимний сад. Сечения. Спецификация. Зона 1 |
| Разработан: | ЦНИИЭП им. Б.С. Мезенцева Госкомархитектуры |
| Утверждён: | 29.11.1991 Госкомархитектура (2-129) |






































