Скачать Типовой проект 264-12-318.92 Альбом 1. Часть 2. Пояснительная записка технологической части. Технология пищеблока. Технологическое оборудование. Спортивная технология. Технология игровых автоматовДата актуализации: 01.01.2021
|
| Обозначение: | Типовой проект 264-12-318.92 |
| Обозначение англ: | 264-12-318.92 |
| Статус: | не определен законодательством |
| Название рус.: | Альбом 1. Часть 2. Пояснительная записка технологической части. Технология пищеблока. Технологическое оборудование. Спортивная технология. Технология игровых автоматов |
| Дата добавления в базу: | 01.10.2014 |
| Дата актуализации: | 01.01.2021 |
| Дата введения: | 17.09.1992 |
| Дата окончания срока действия: | 30.06.2003 |
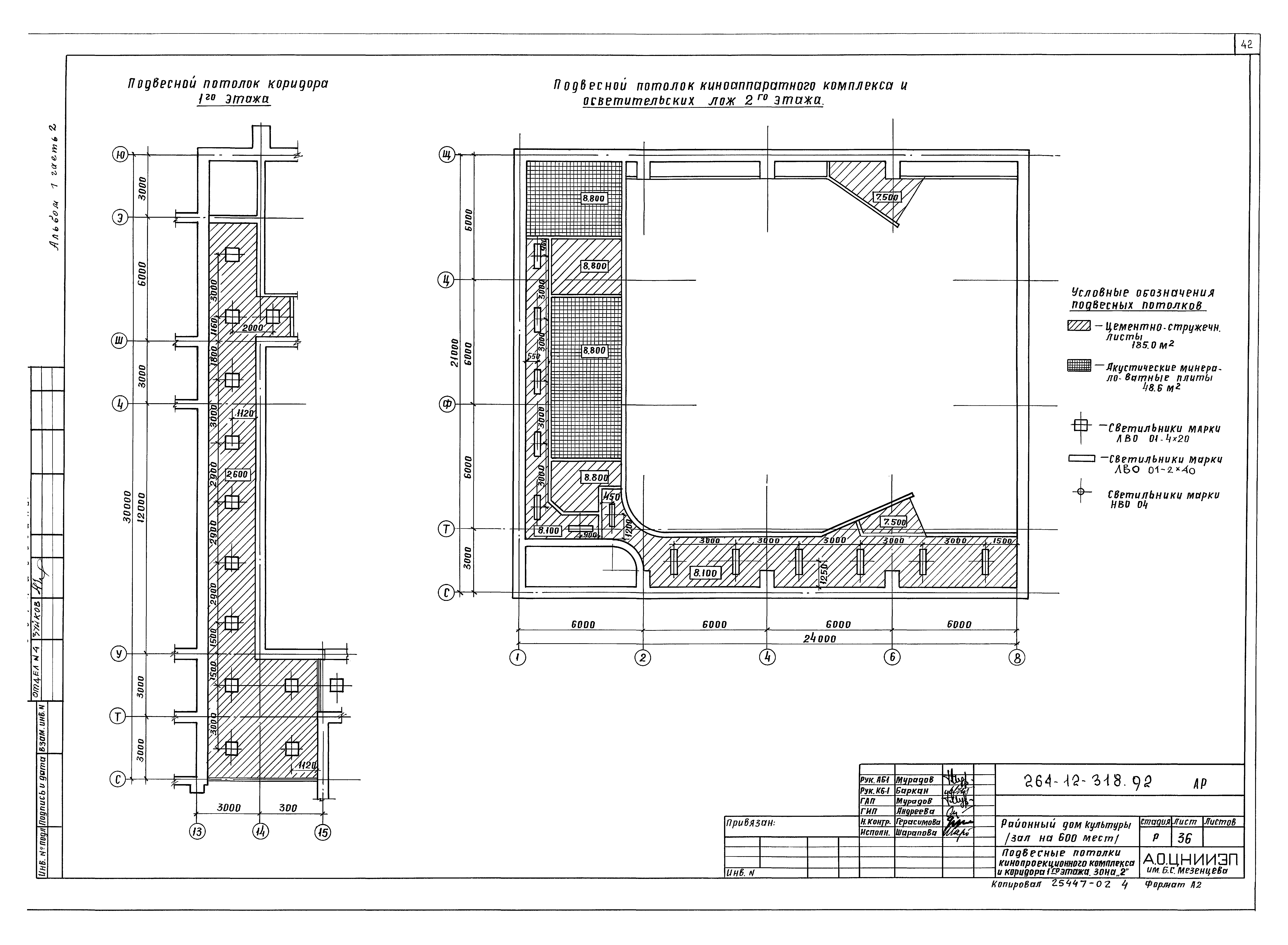
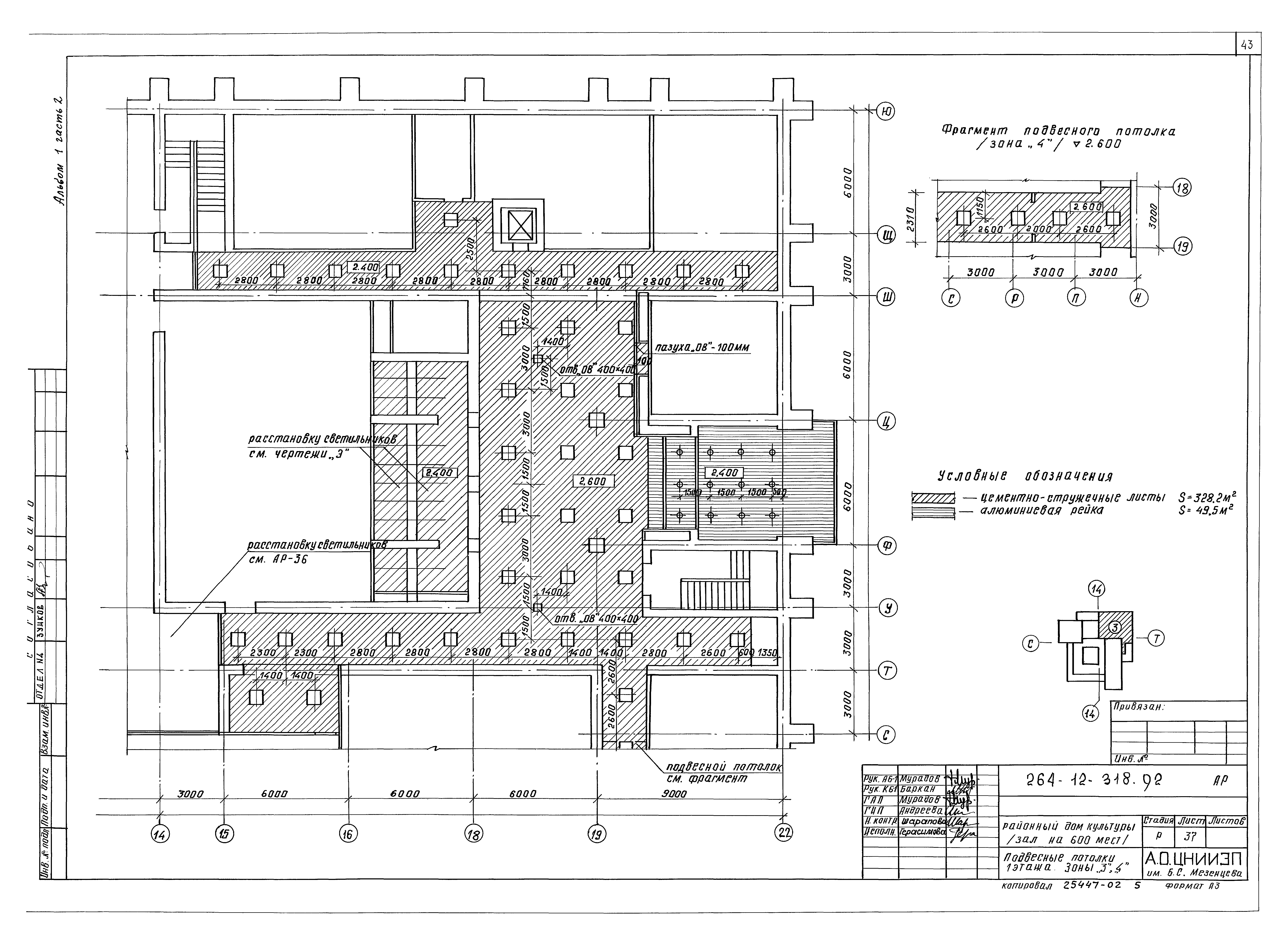
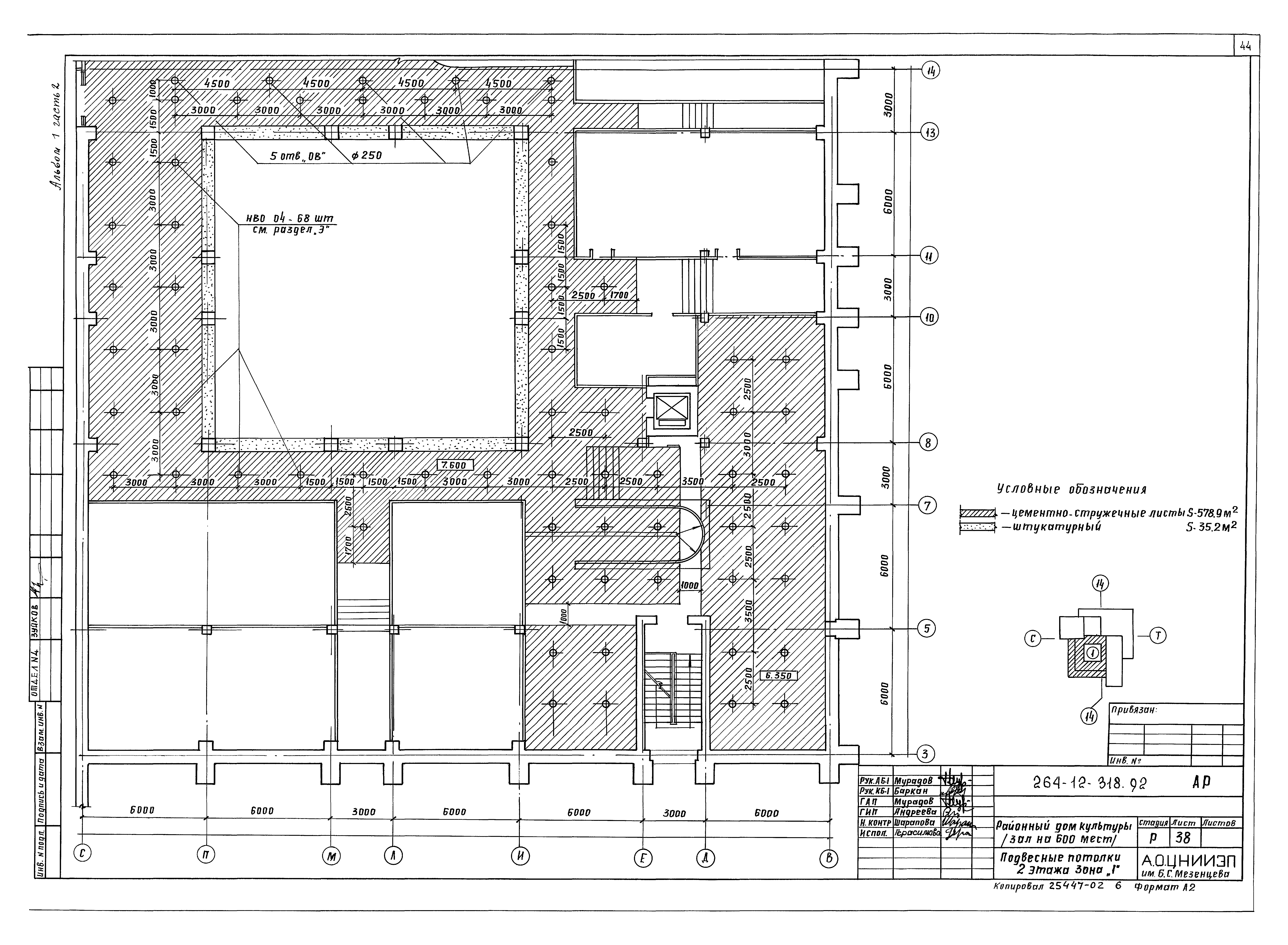
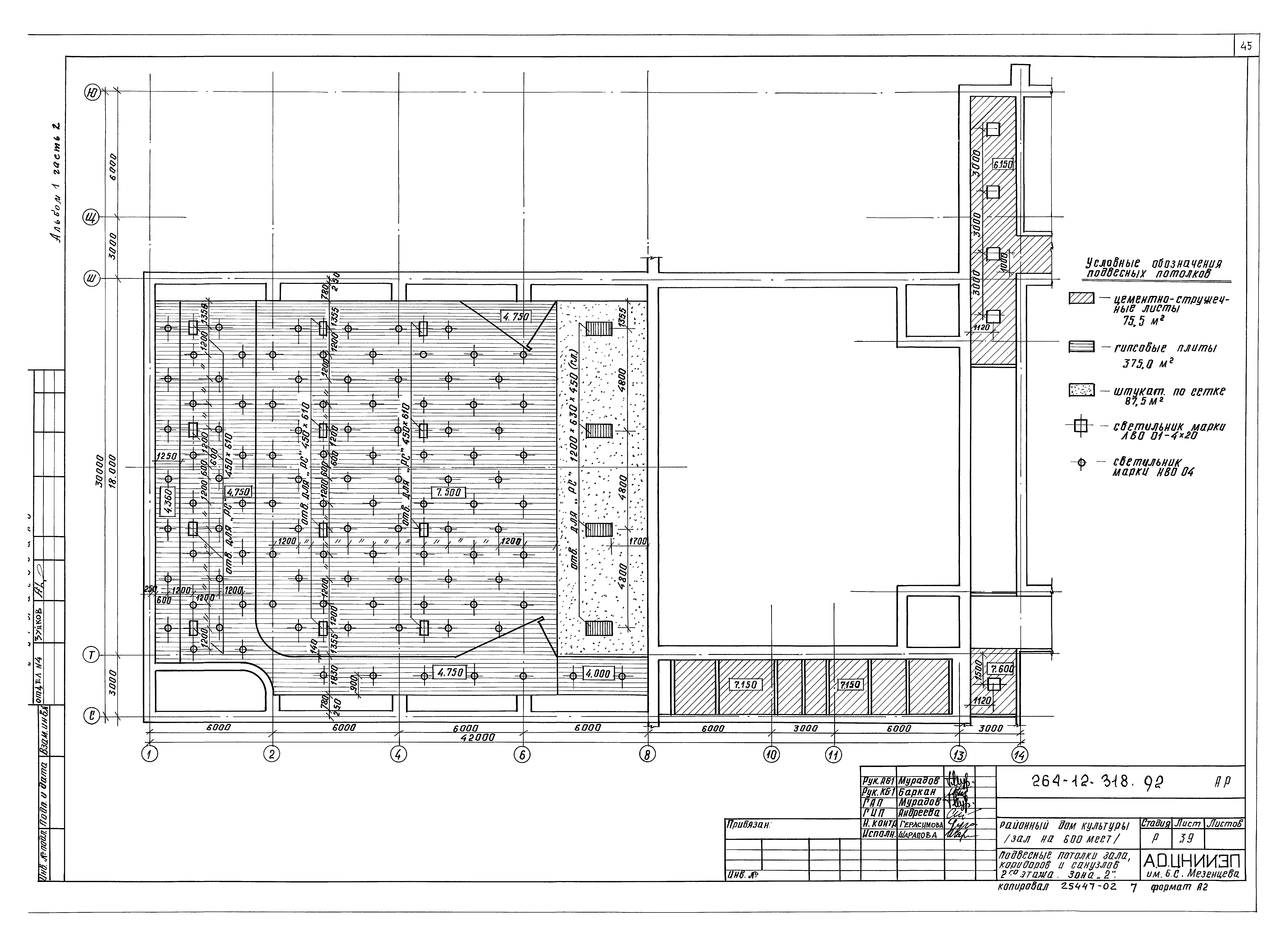
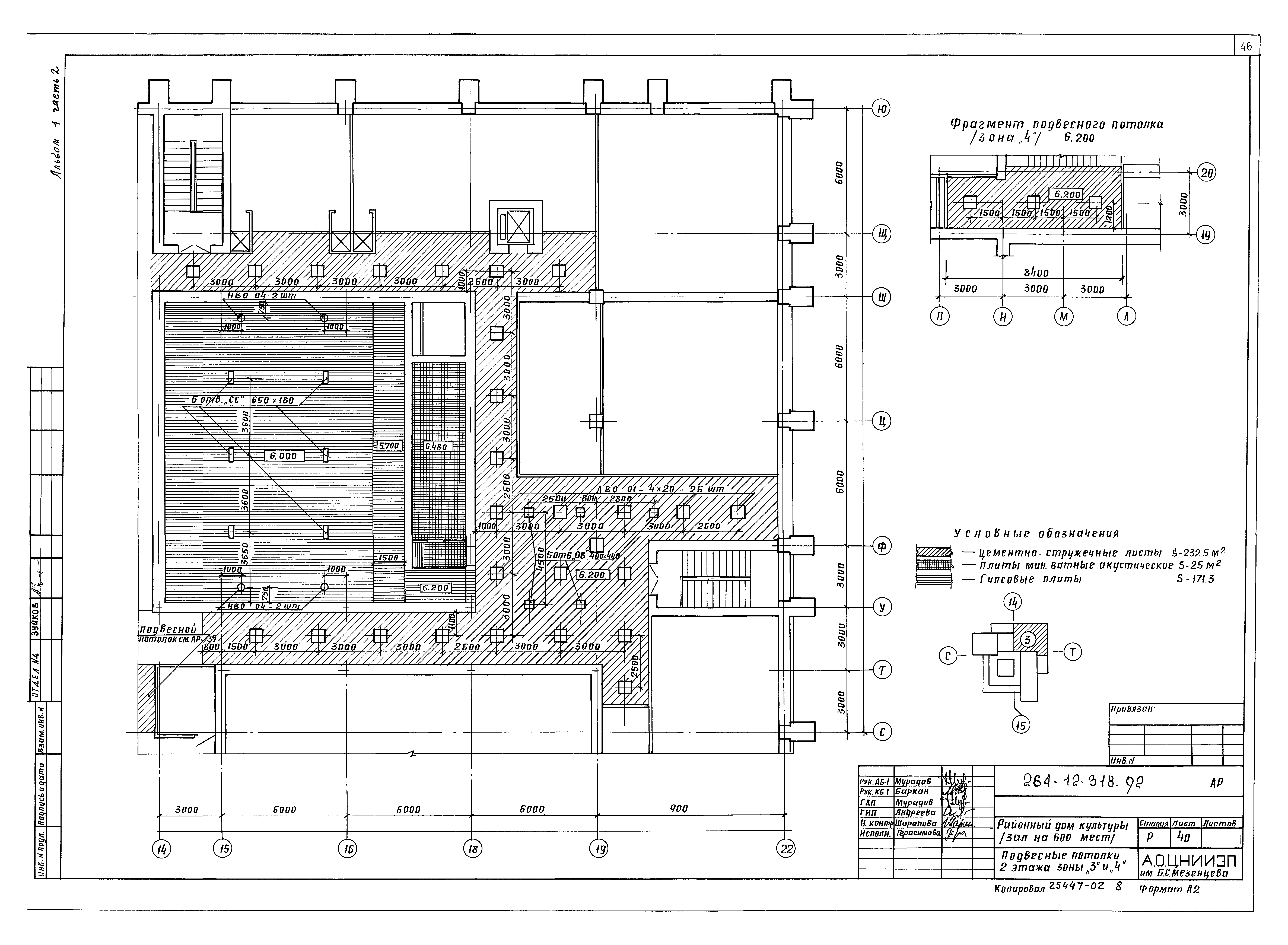
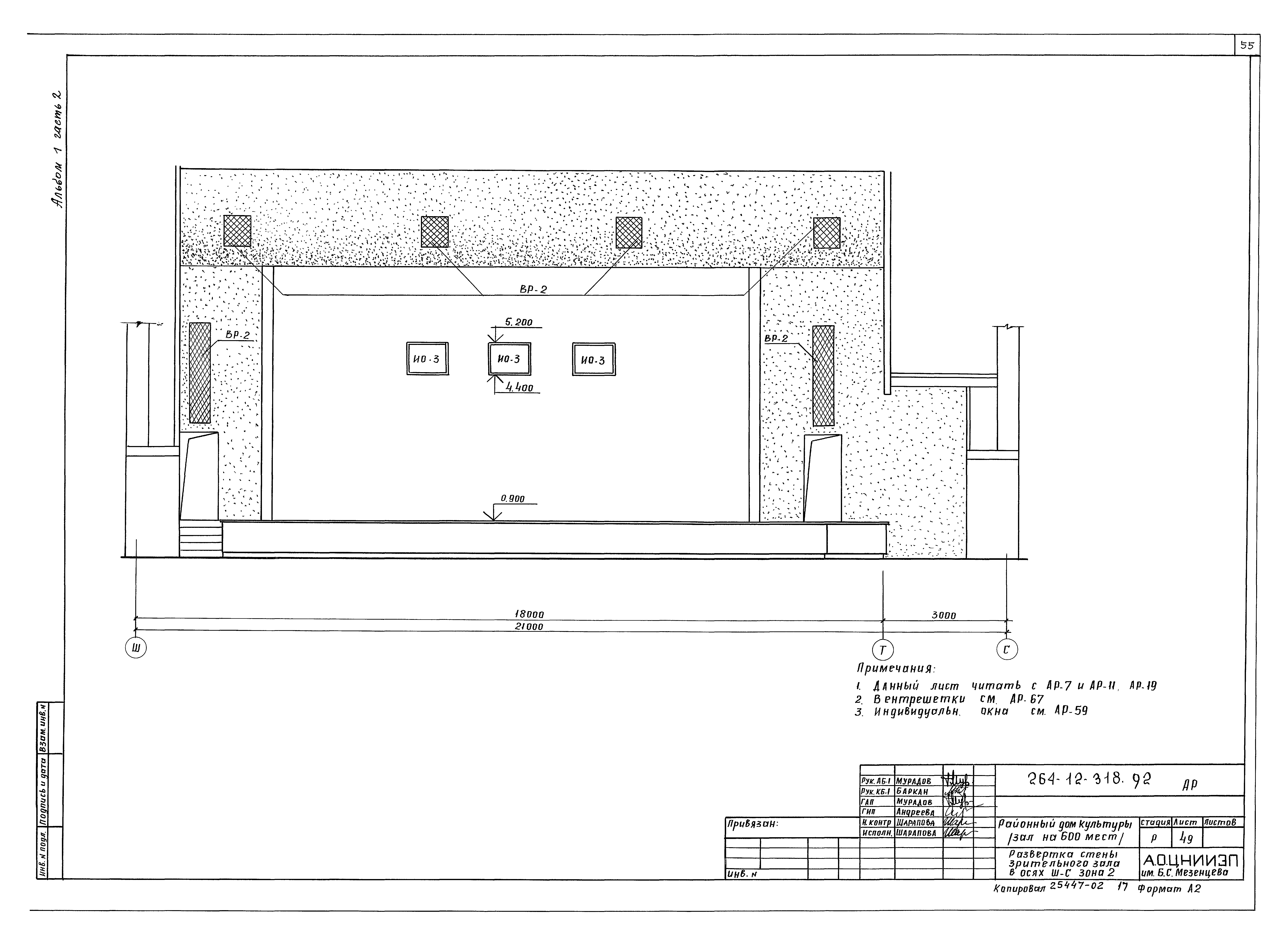
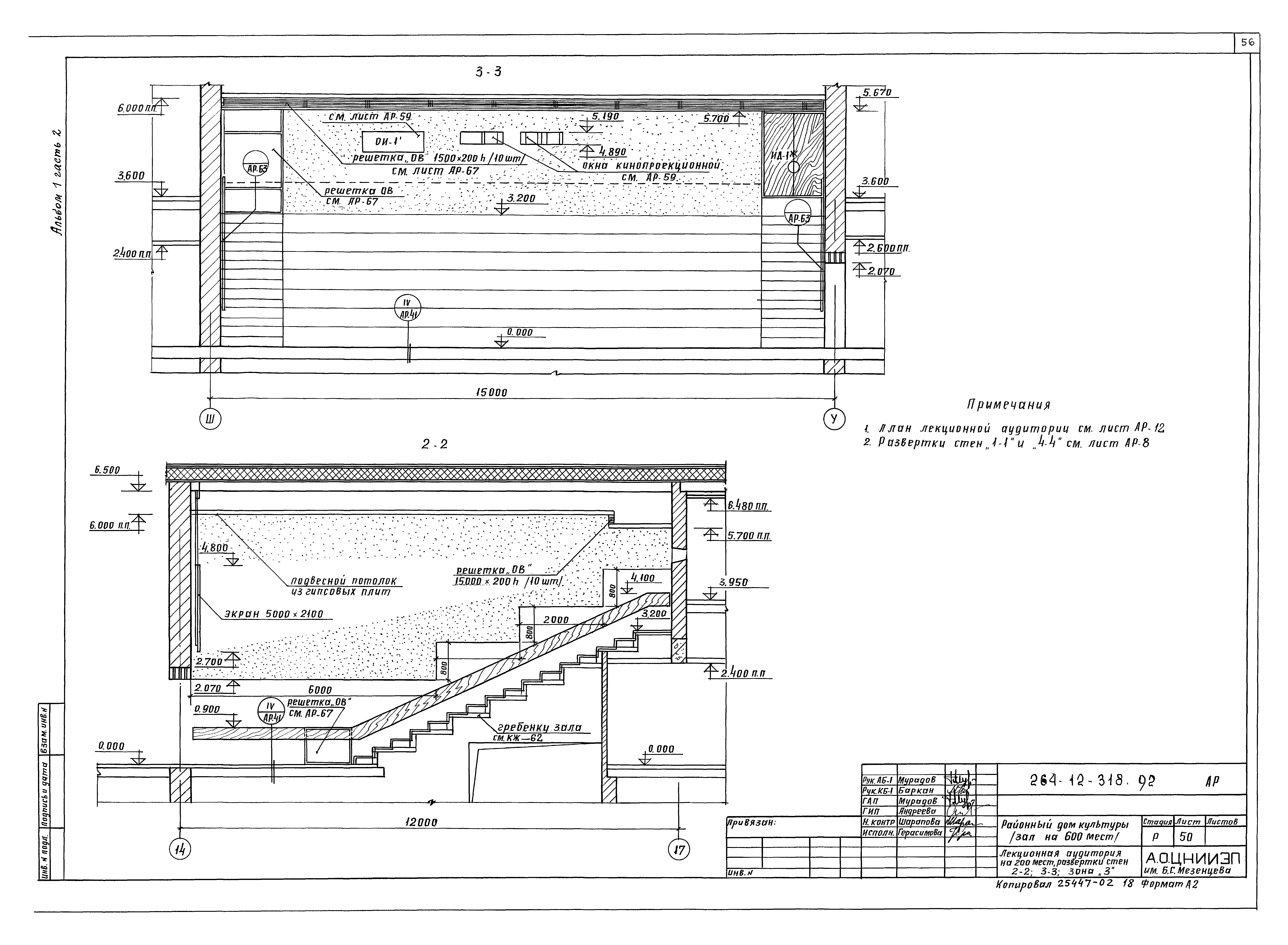
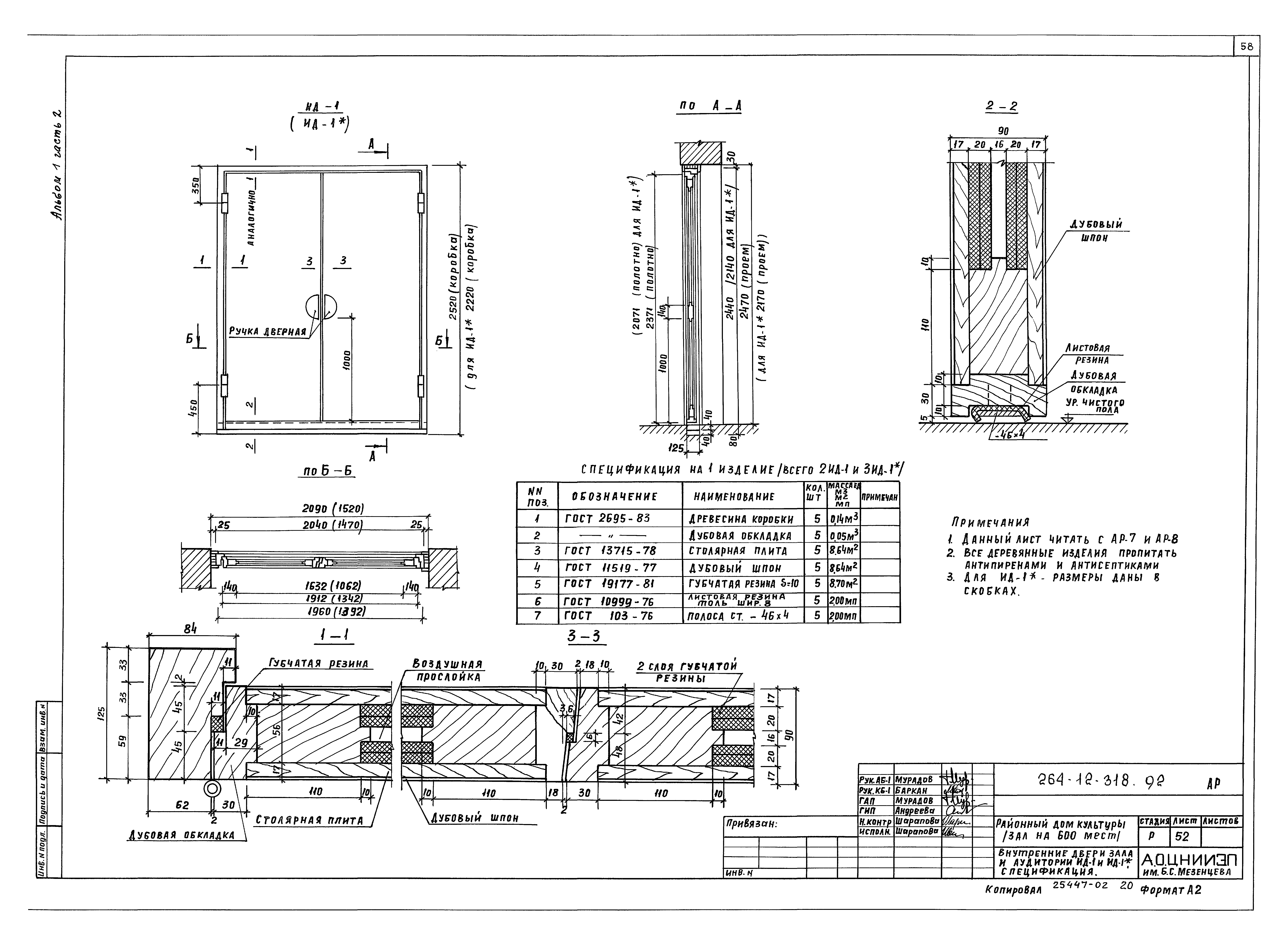
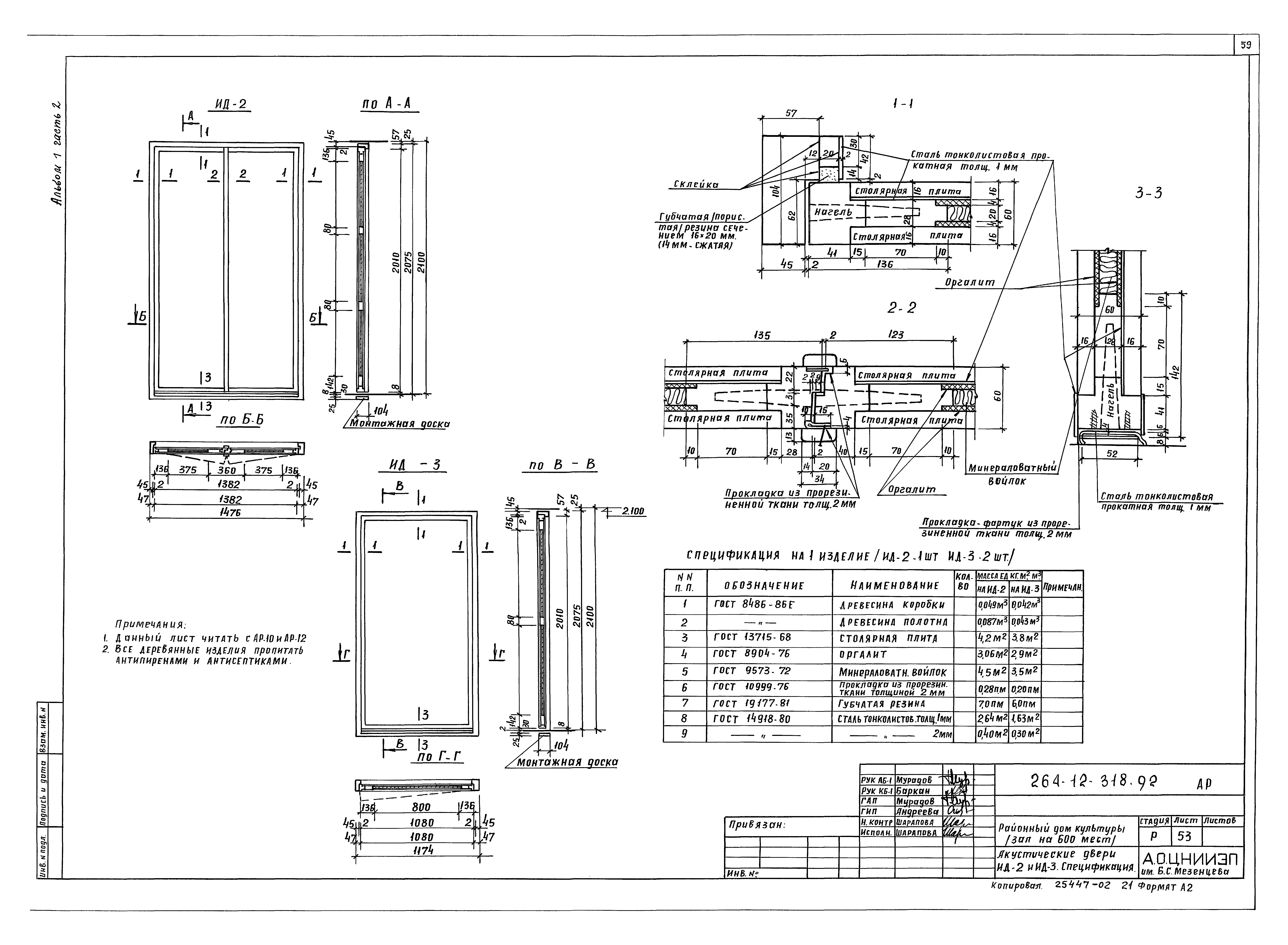
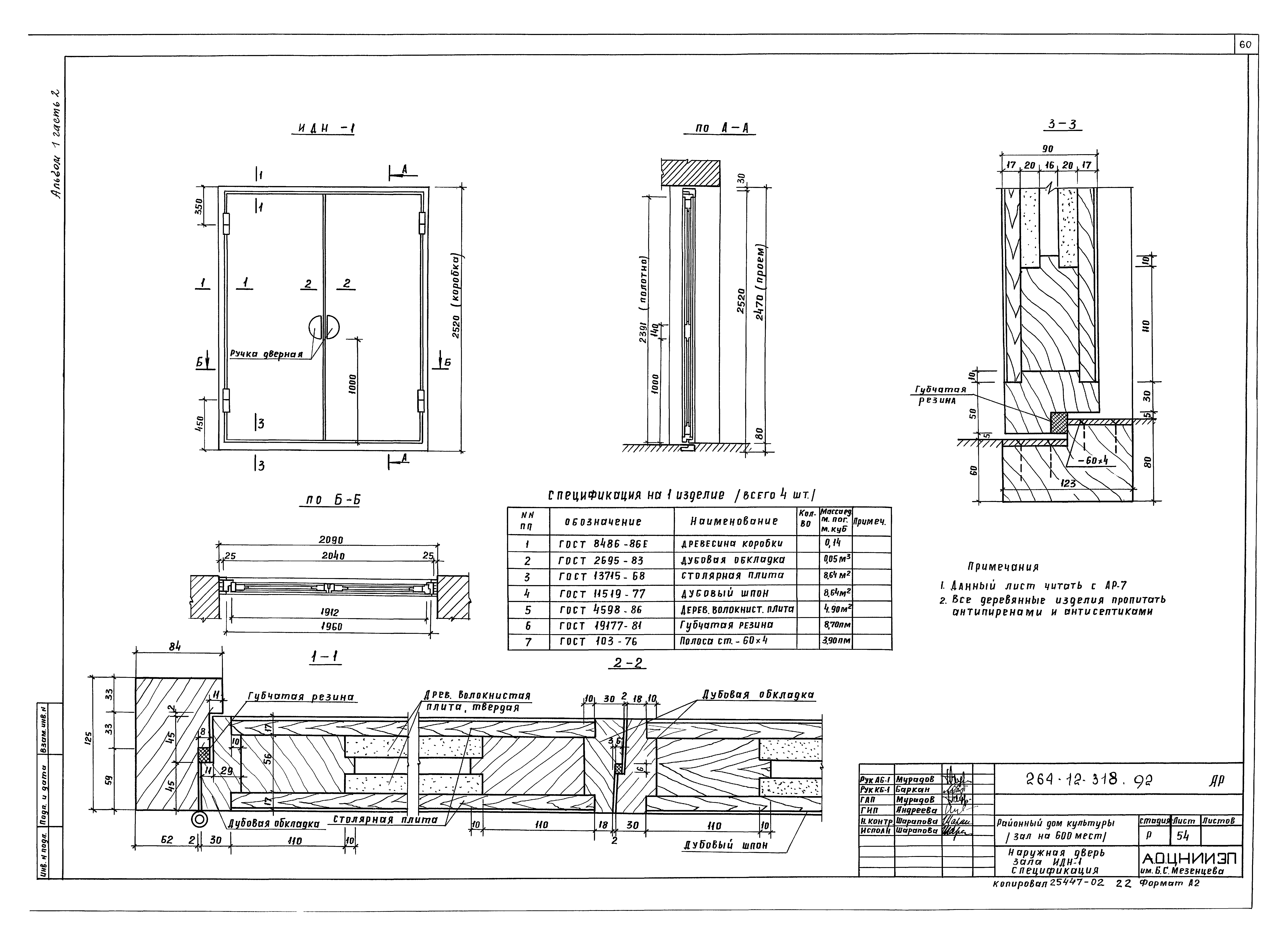
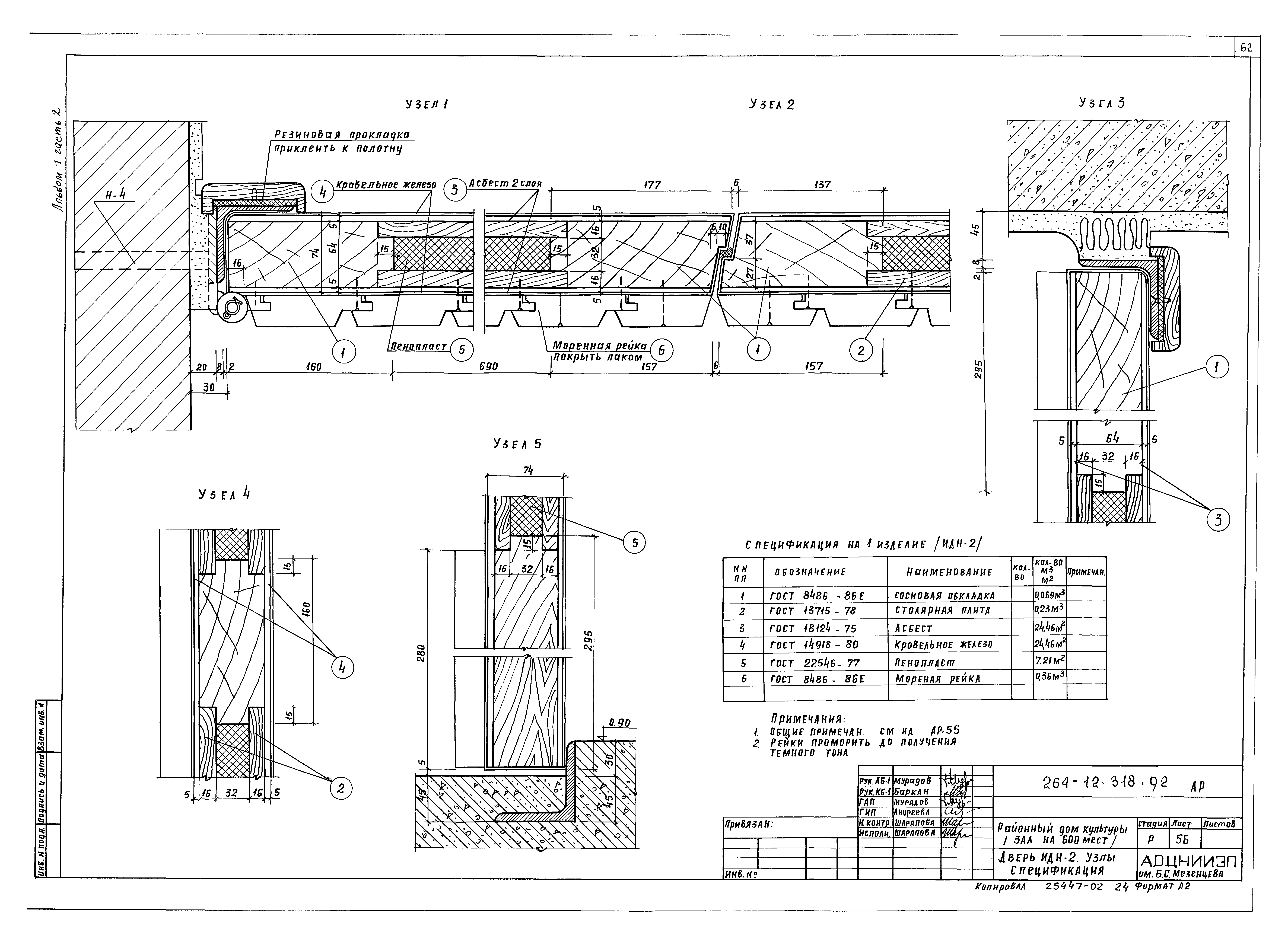
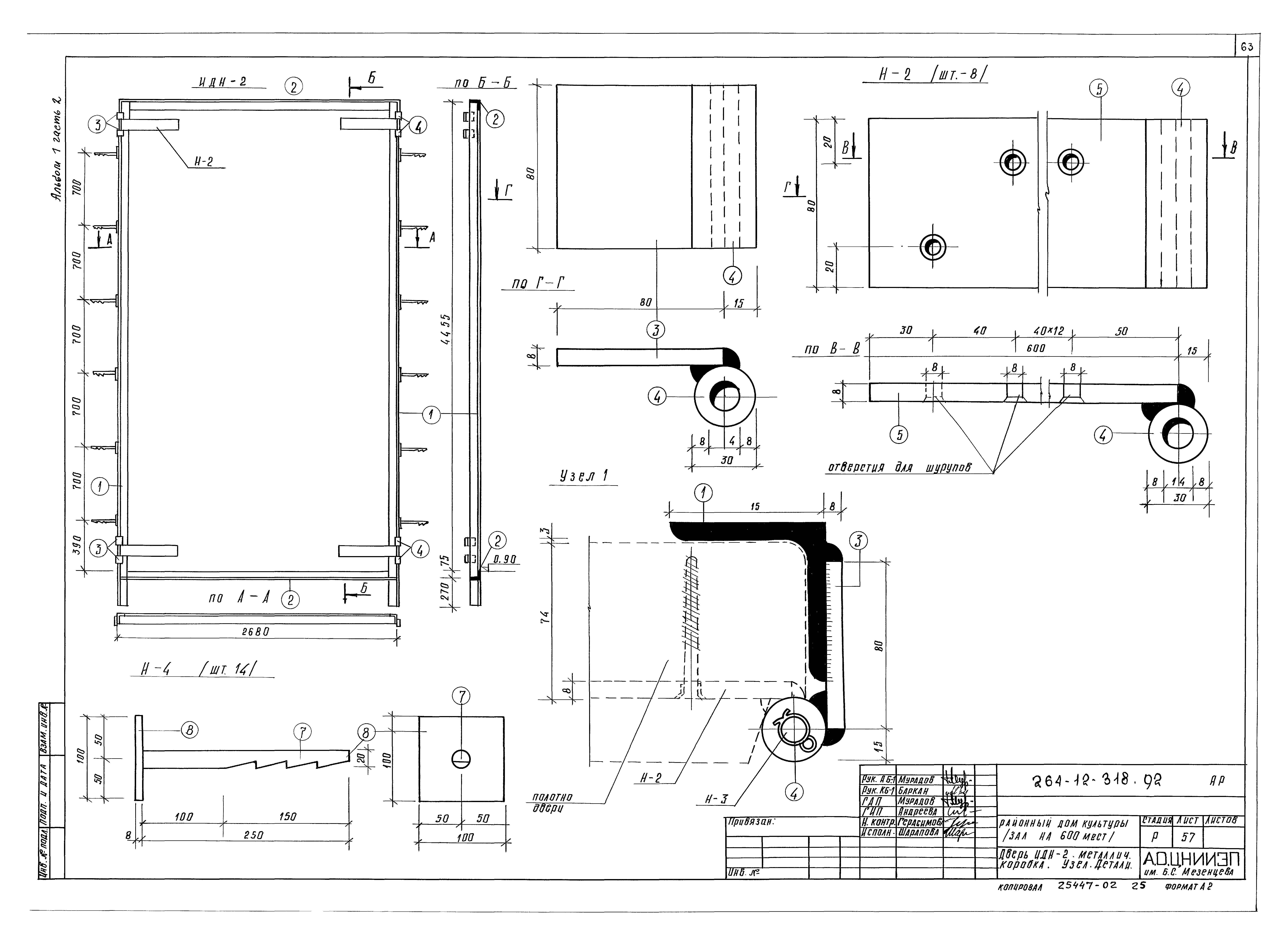
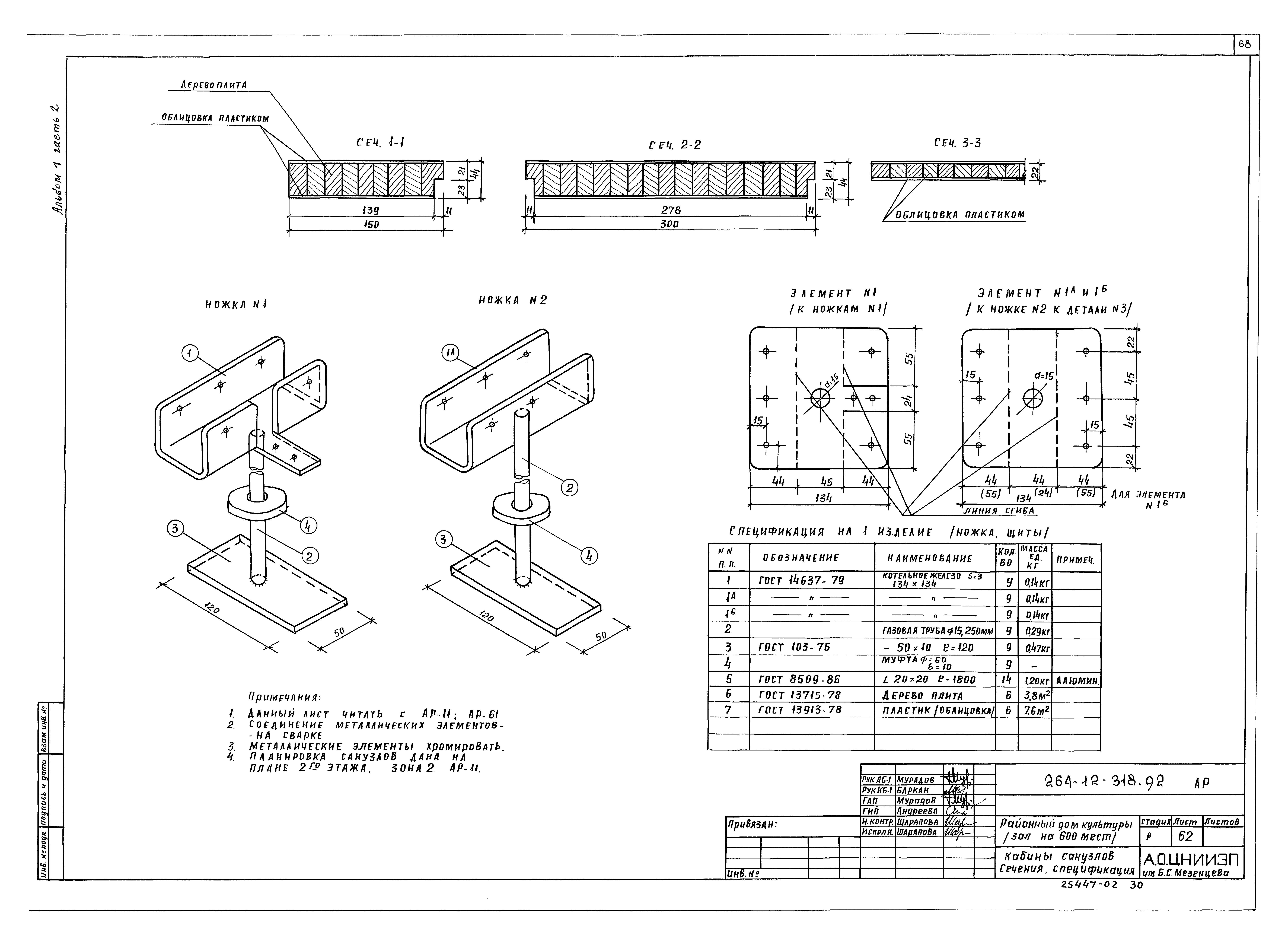
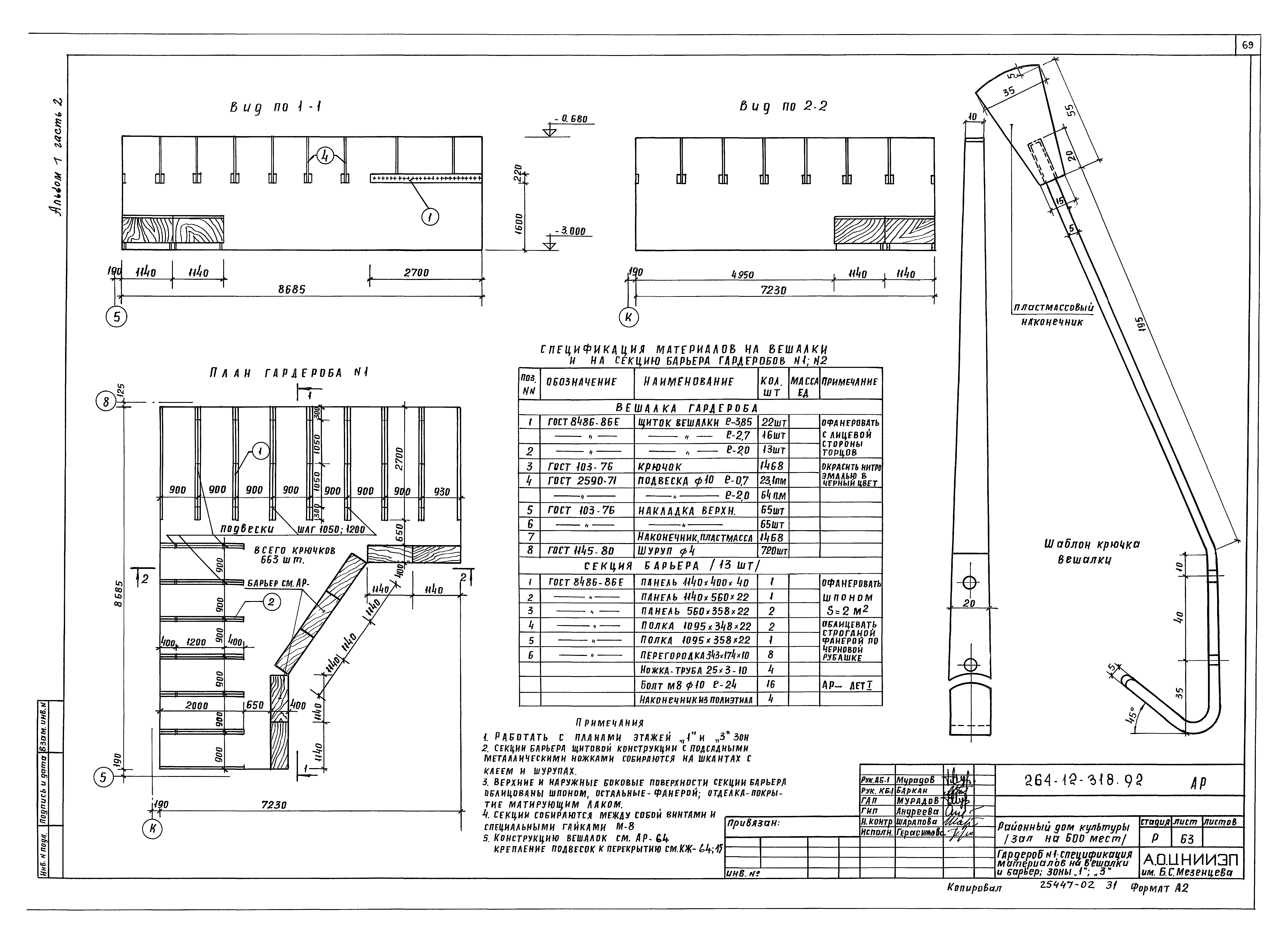
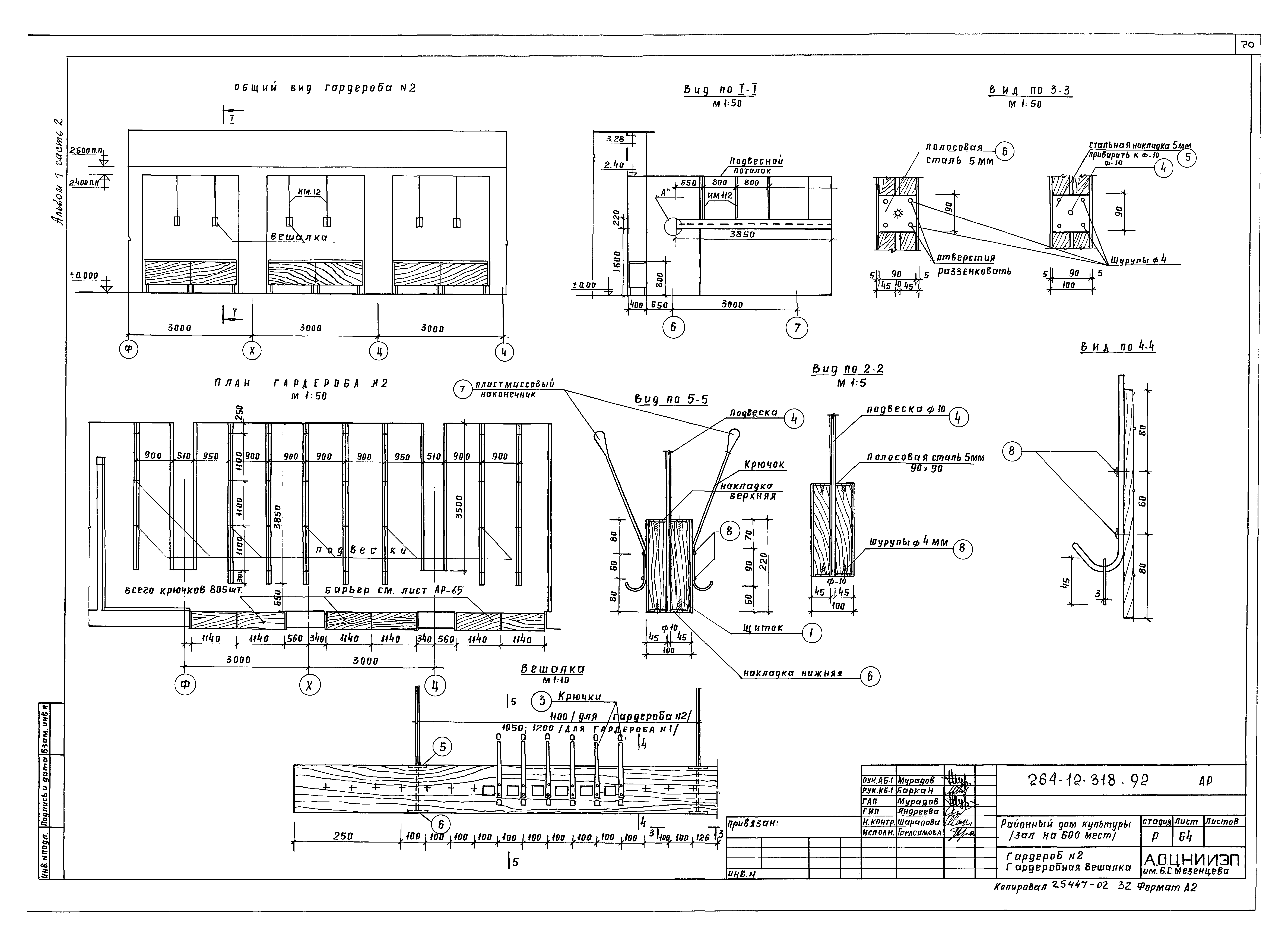
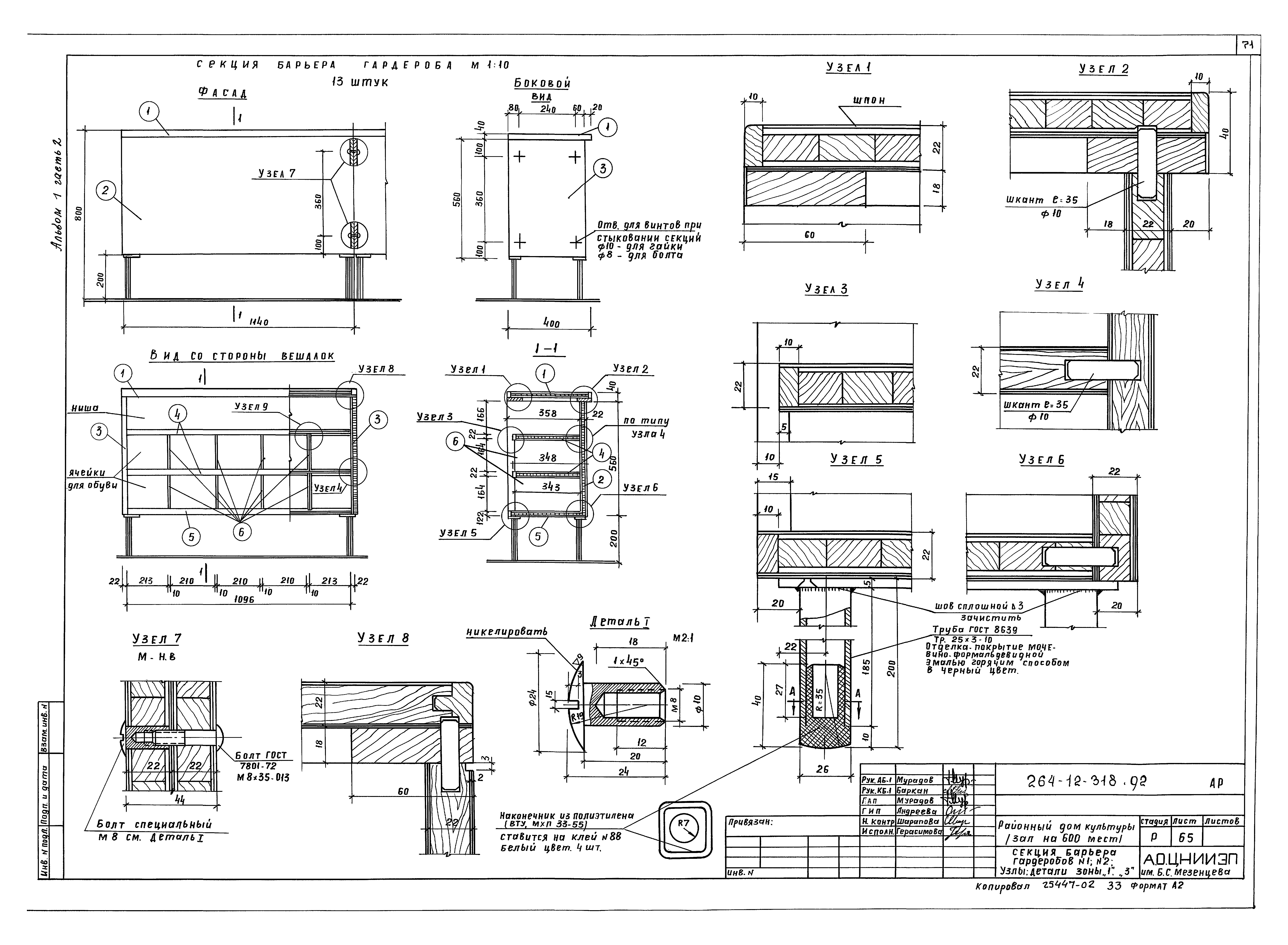
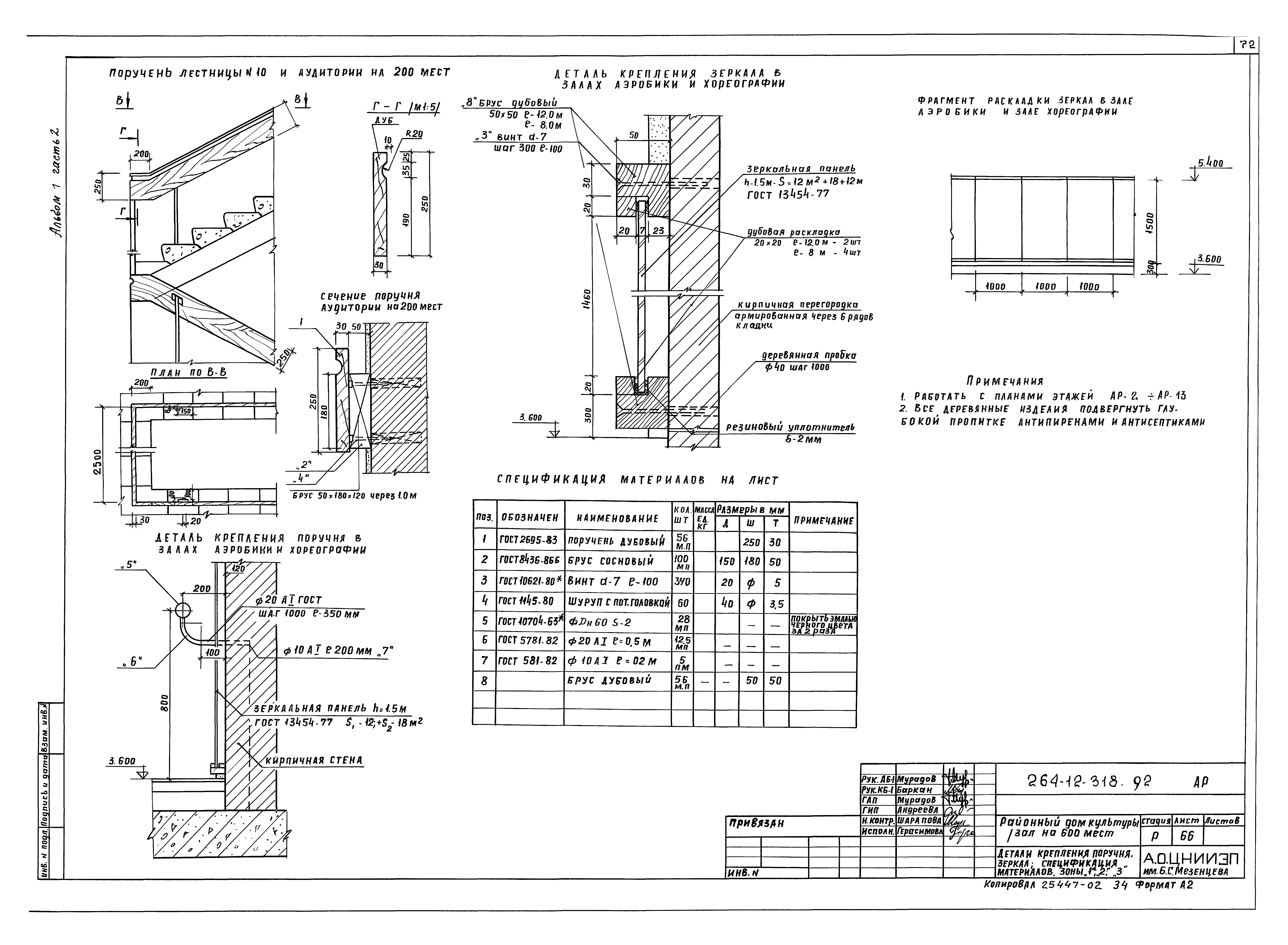
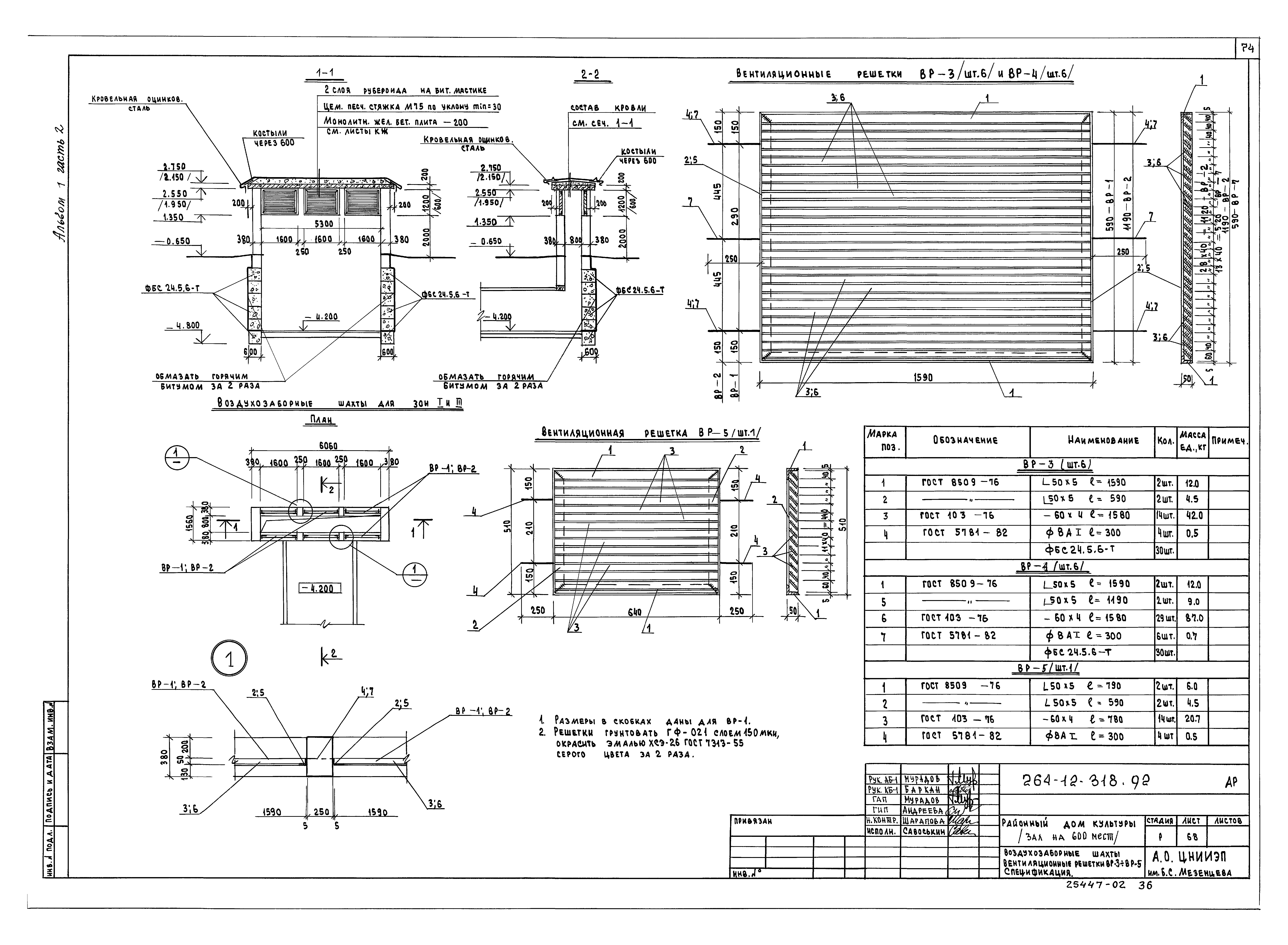
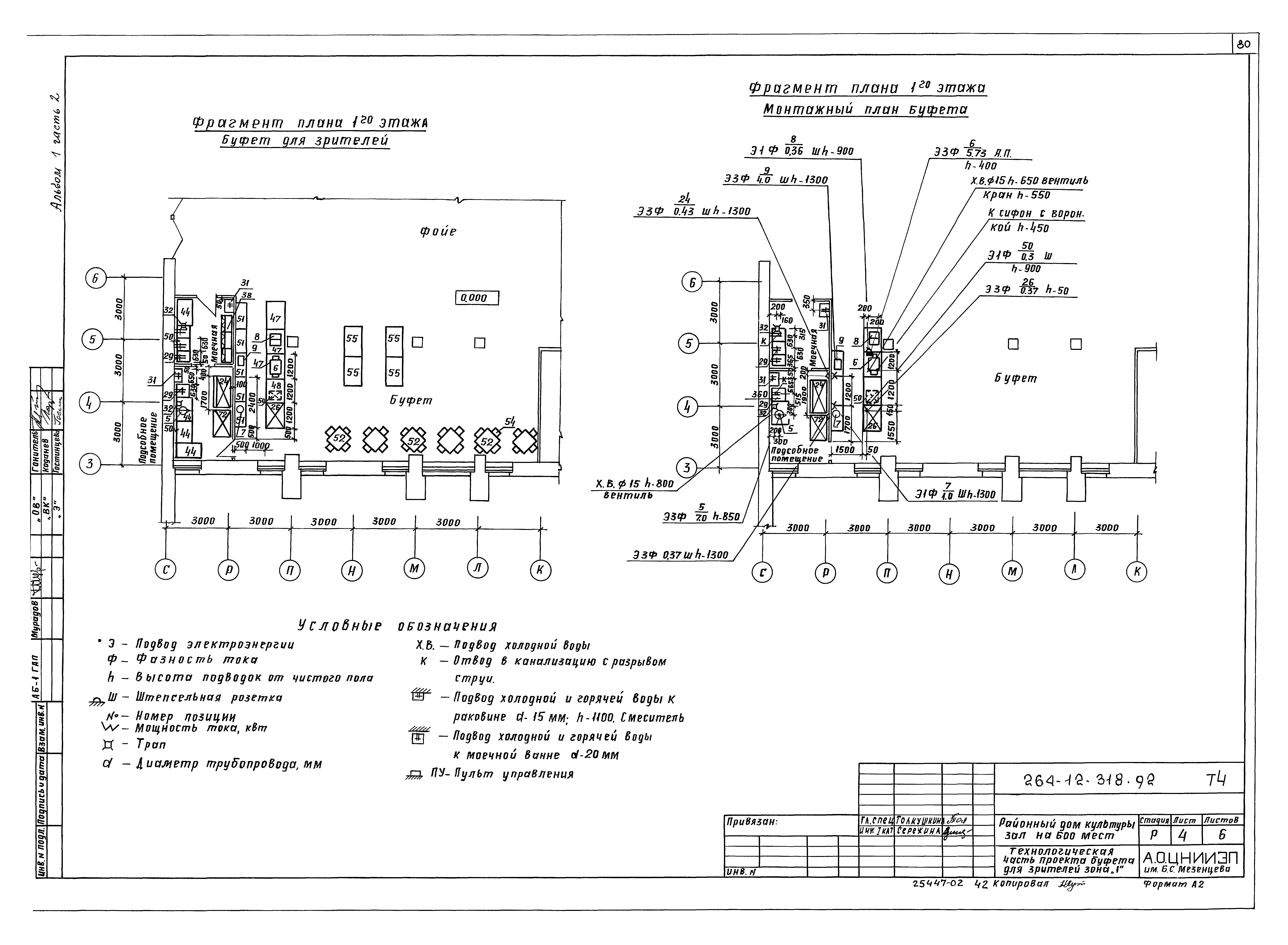
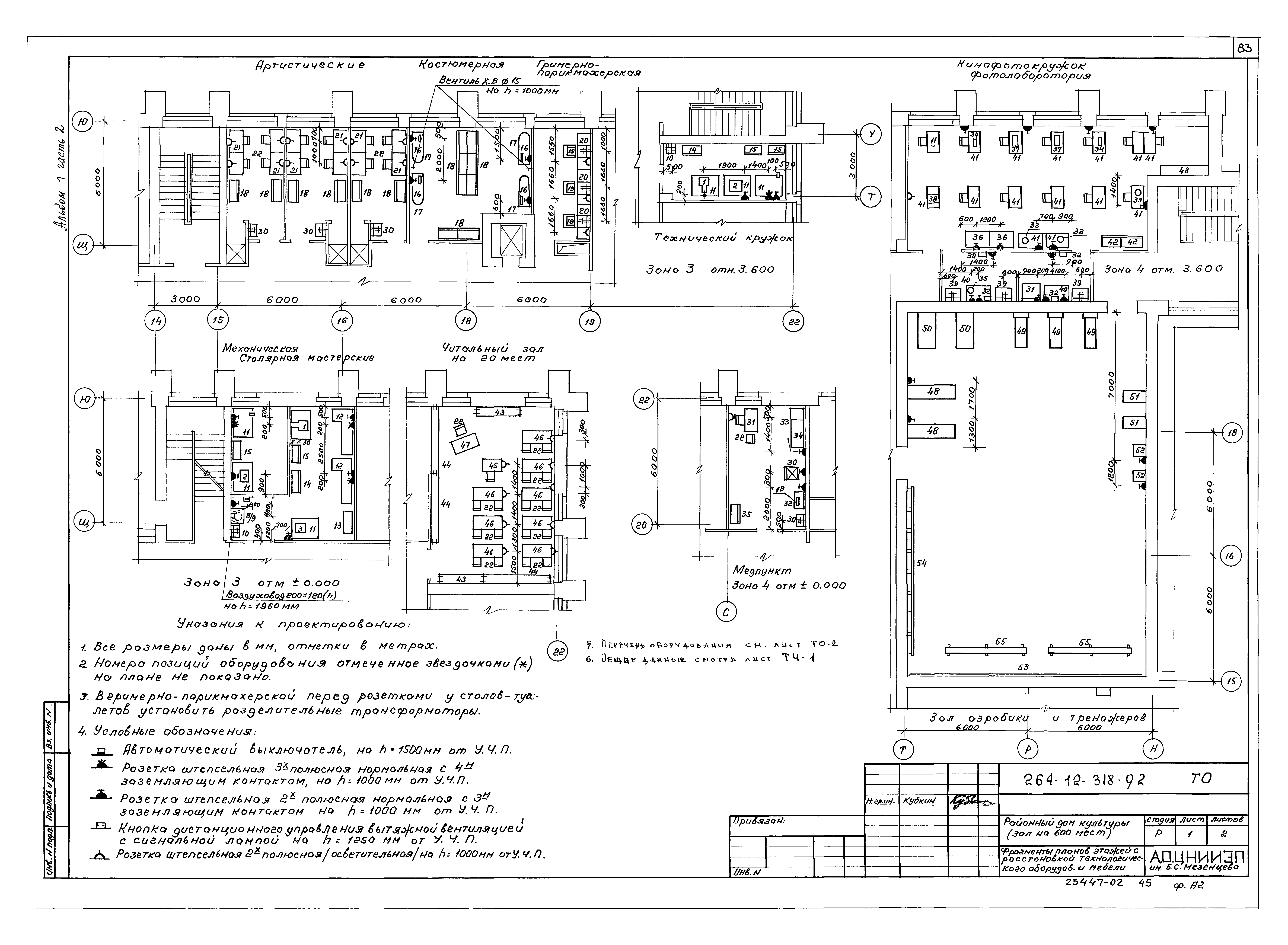
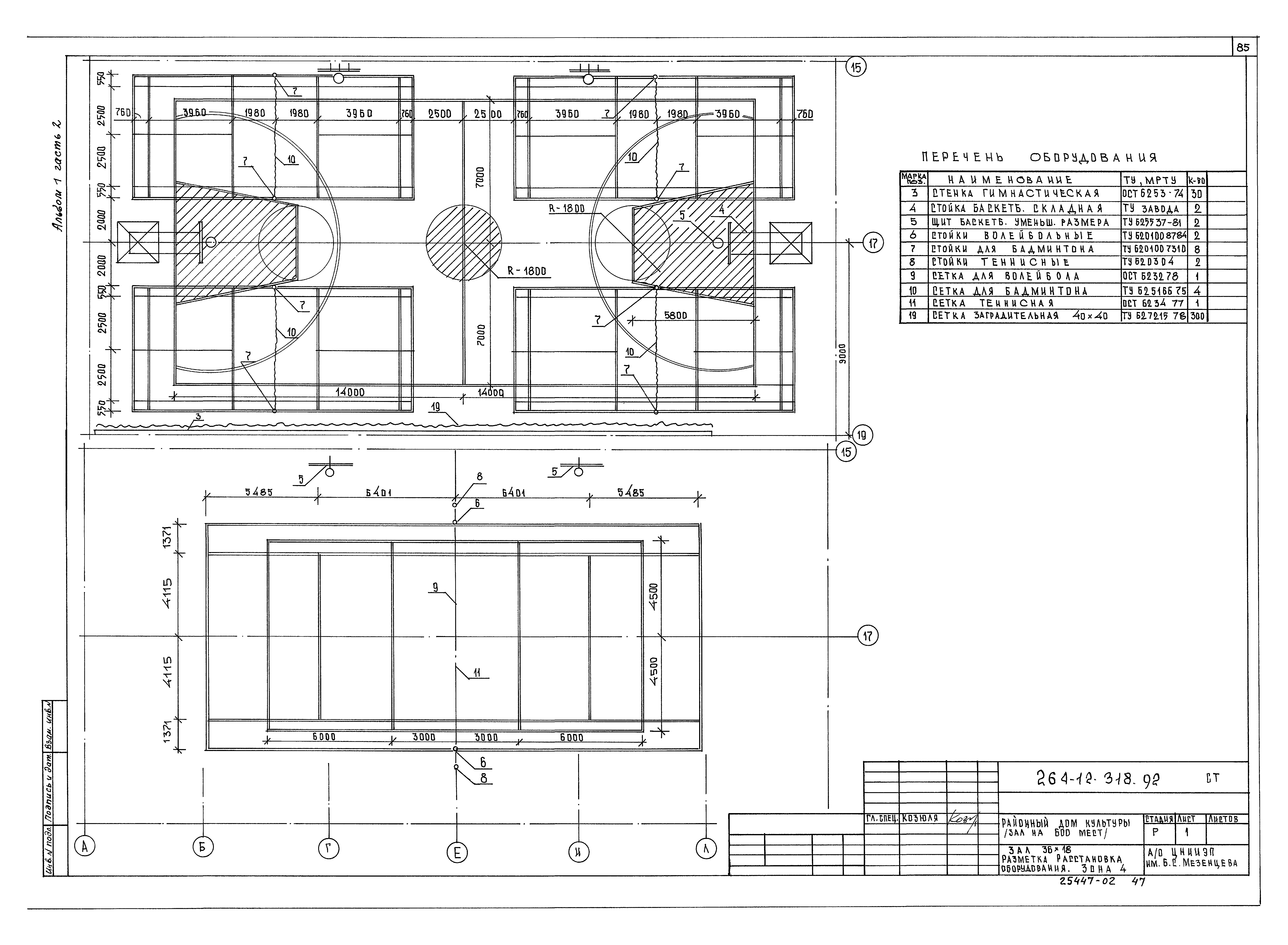
| Оглавление: | Чертежи основного комплекта марки АР (продолжение) Подвесные потолки кинопроекционного комплекса и коридора 1-го этажа. Зона 2 Подвесные потолки 1-го этажа. Зоны 3, 4 Подвесные потолки 2-го этажа. Зона 1 Подвесные потолки зала, коридоров и с/у 2-го этажа. Зона 2 Подвесные потолки 2-го этажа. Зоны 3, 4 Экспликация полов Ведомость отделки помещений Развертка стены зрительного зала в осях 8 - 1. Зона 2 Развертка стены зрительного зала в осях С - Ш. Зона 2 Развертка стены зрительного зала в осях Ш - С. Зона 2 Лекционная аудитория на 200 мест. Развертки стен 3-3 и 2-2. Зона 3 Лекционная аудитория на 200 мест. Развертки стен 1-1 и 4-4. Зона 3 Внутренние двери зала и аудитории ИД-1, ИД-1*. Спецификация Акустические двери ИД-2, ИД-3. Спецификация Наружная дверь зала ИДИ-1. Спецификация Наружная дверь склада декорации ИДИ-2 Дверь ИДИ-2. Узлы, спецификация Дверь ИДИ-2. Металлическая коробка. Узлы, детали Дверь ИДИ-2. Детали. Спецификация Индивидуальные окна ИО-1, ИО-2, ИО-3, ИО-2*. Спецификация Сводная спецификация столярных изделий Кабины санузлов. Щиты. Детали Кабины санузлов. Сечения. Спецификация Гардероб №1. Спецификация материалов на вешалки и барьер. Зоны 1 и 3 Гардероб №2. Гардеробная вешалка Секция барьера гардеробов №1 и №2. Узлы. Детали. Зоны 1 и 3 Детали крепления поручня. Зеркала. Спецификация материалов. Зоны 1, 2, 3 Решетки ВР-1, ВР-2, ВР-3. Спецификация Воздухозаборы. Шахты. Вентиляционные решетки ВР-3, ВР-5. Спецификация Фасады Ю - А, 1 - 22 (вариант) Чертежи основного комплекта марки ТЧ Пояснительная записка Общие данные Технологическая часть проекта кафе. Зоны 1, 4 Монтажный план кафе. Зона 1 Технологическая часть проекта буфета для зрителей. Зона 1 Технологическая часть проекта бара. Зона 4 Перечень технологического оборудования Чертежи основного комплекта марки ТО Фрагменты планов этажей с расстановкой технологического оборудования и мебели Перечень оборудования и мебели Чертежи основного комплекта марки СТ Зал 36х18. Разметка. Расстановка оборудования. Зона 4 Чертежи основного комплекта марки ТИА Зона 1 и 4. Зал игровых автоматов |
| Разработан: | ЦНИИЭП им. Б.С. Мезенцева Госкомархитектуры |
| Утверждён: | 29.11.1991 Госкомархитектура (2-129) |















































