Скачать Типовой проект 264-12-318.92 Альбом 2. Часть 1. Пояснительная записка. Конструкции железобетонныеДата актуализации: 01.01.2021
|
| Обозначение: | Типовой проект 264-12-318.92 |
| Обозначение англ: | 264-12-318.92 |
| Статус: | не определен законодательством |
| Название рус.: | Альбом 2. Часть 1. Пояснительная записка. Конструкции железобетонные |
| Дата добавления в базу: | 01.10.2014 |
| Дата актуализации: | 01.01.2021 |
| Дата введения: | 17.09.1992 |
| Дата окончания срока действия: | 30.06.2003 |
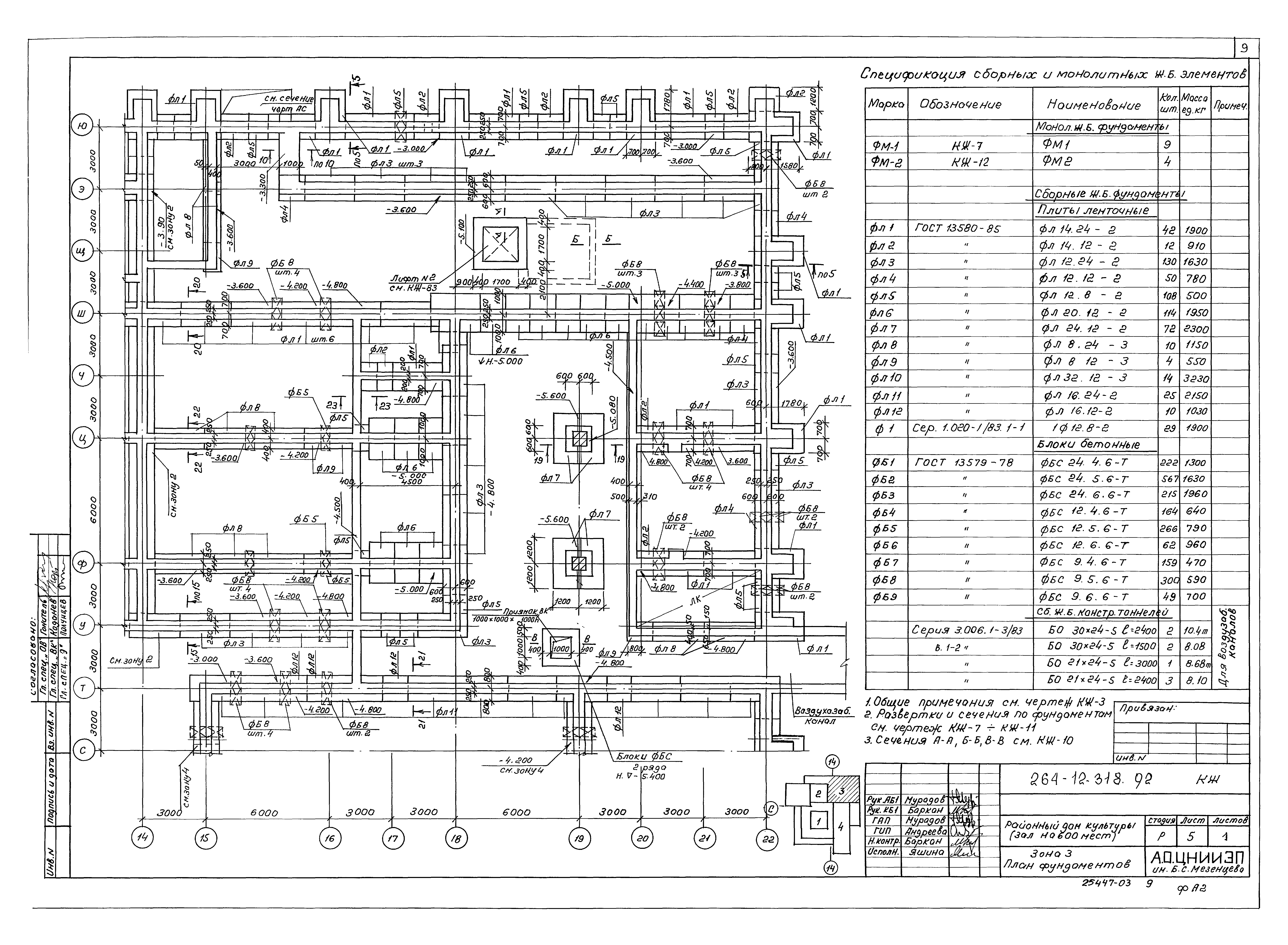
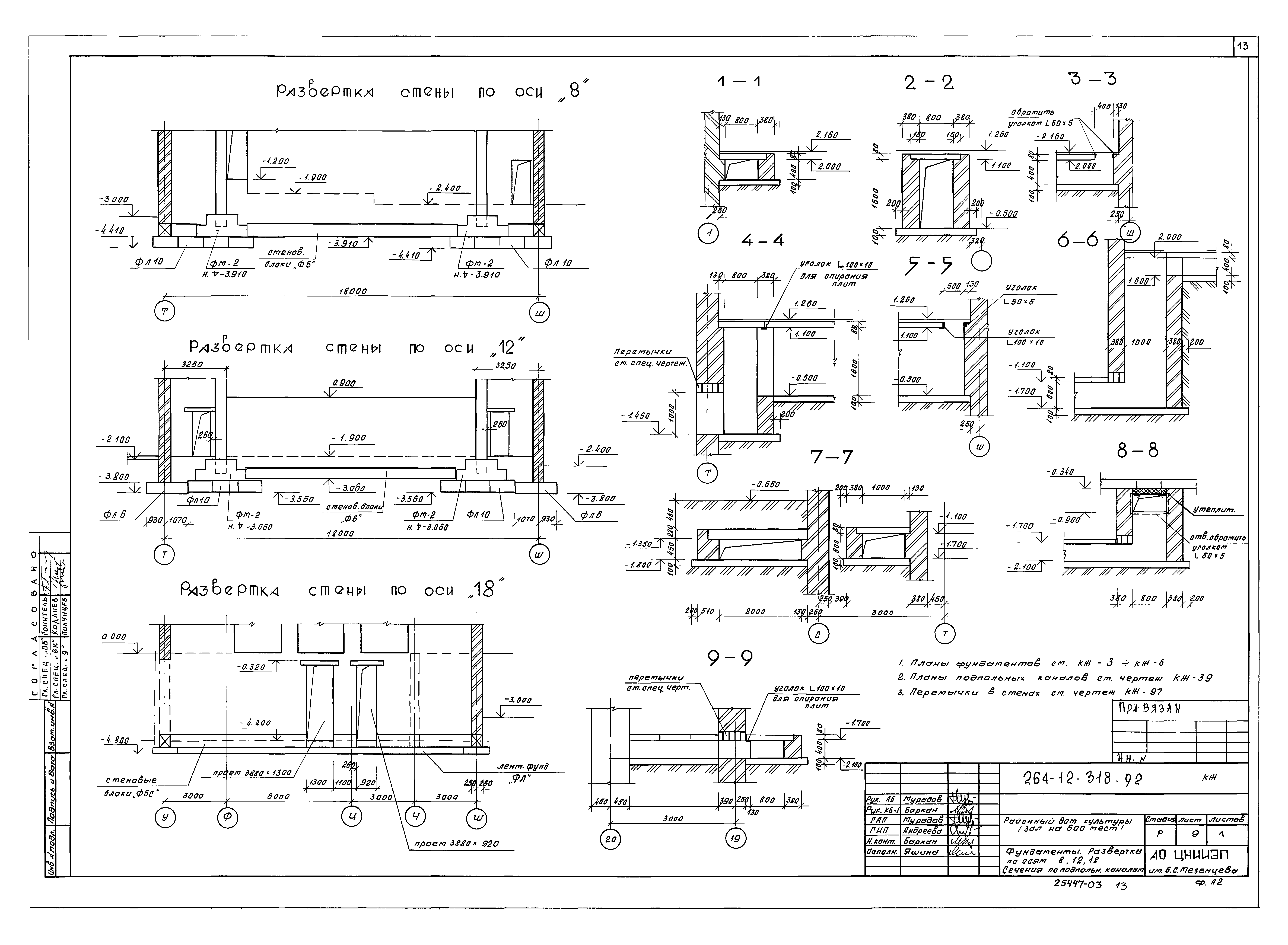
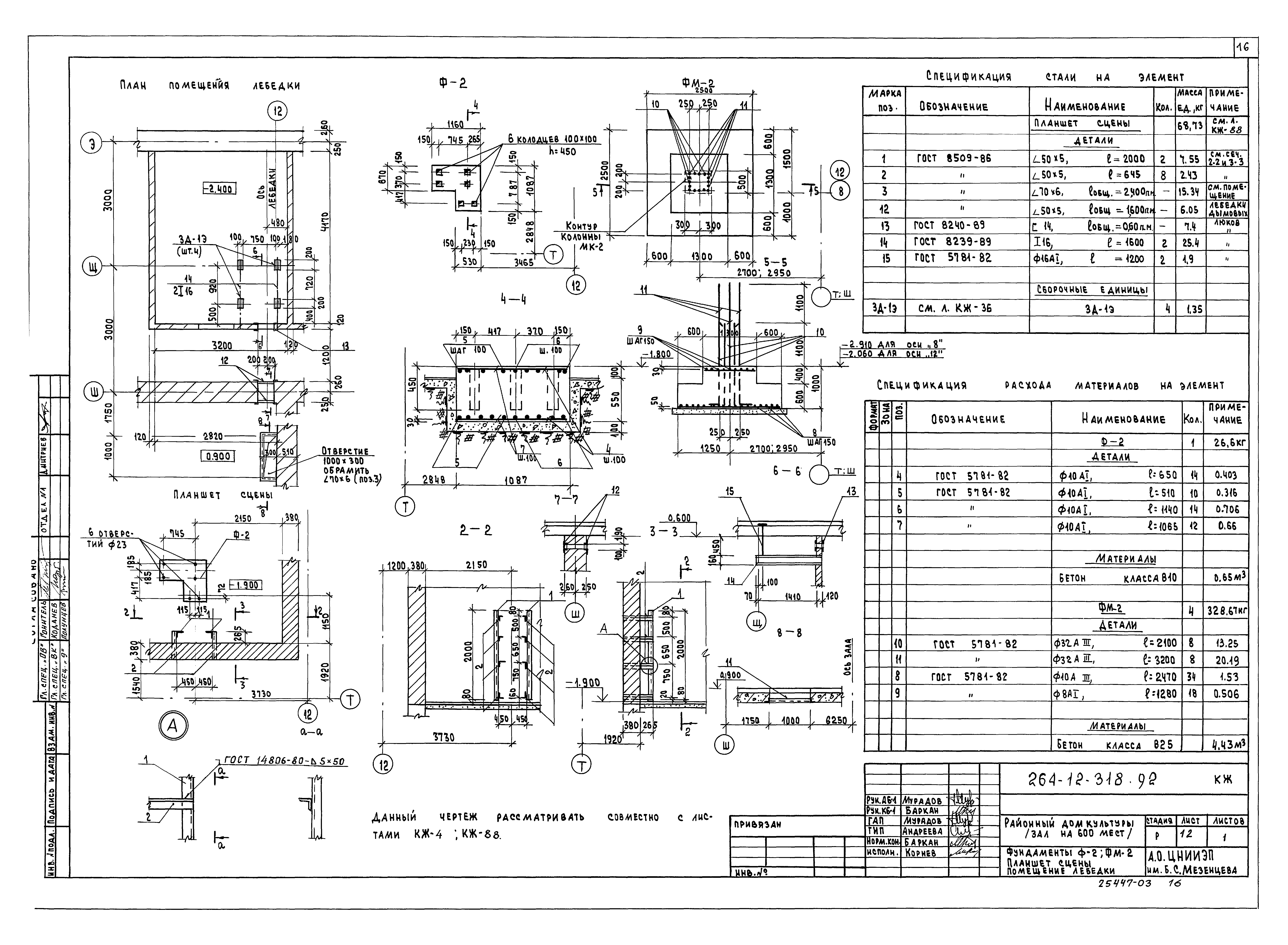
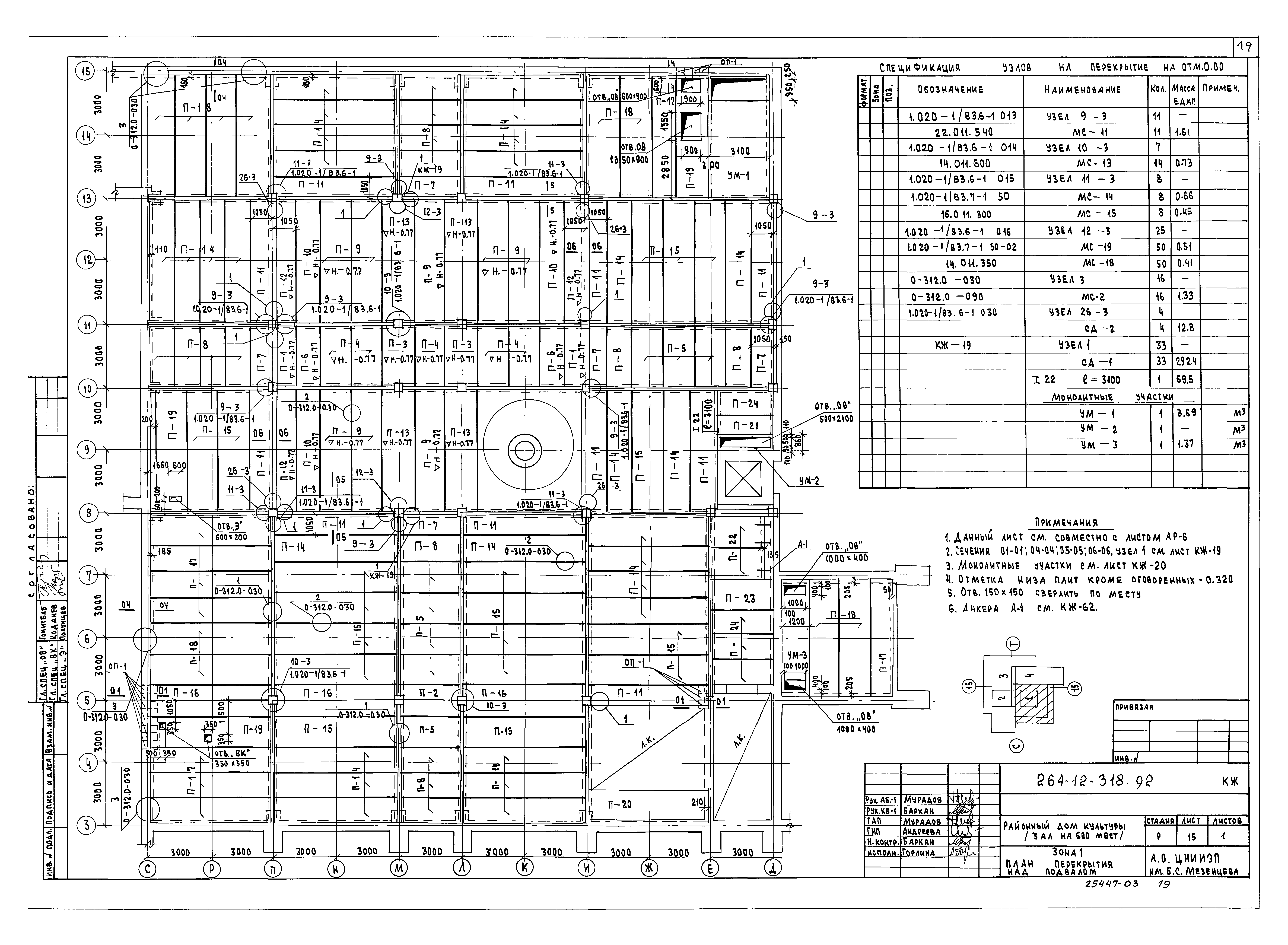
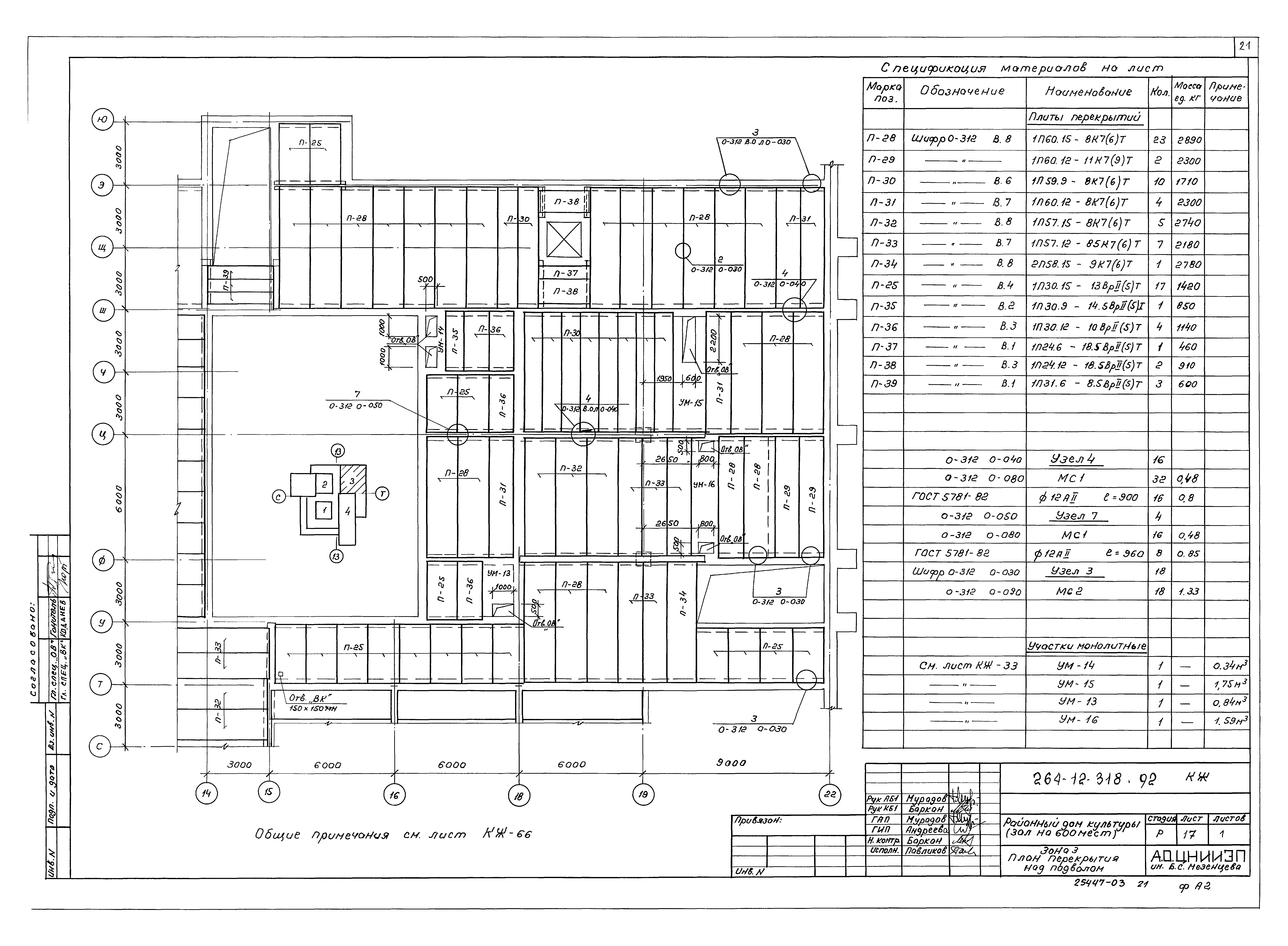
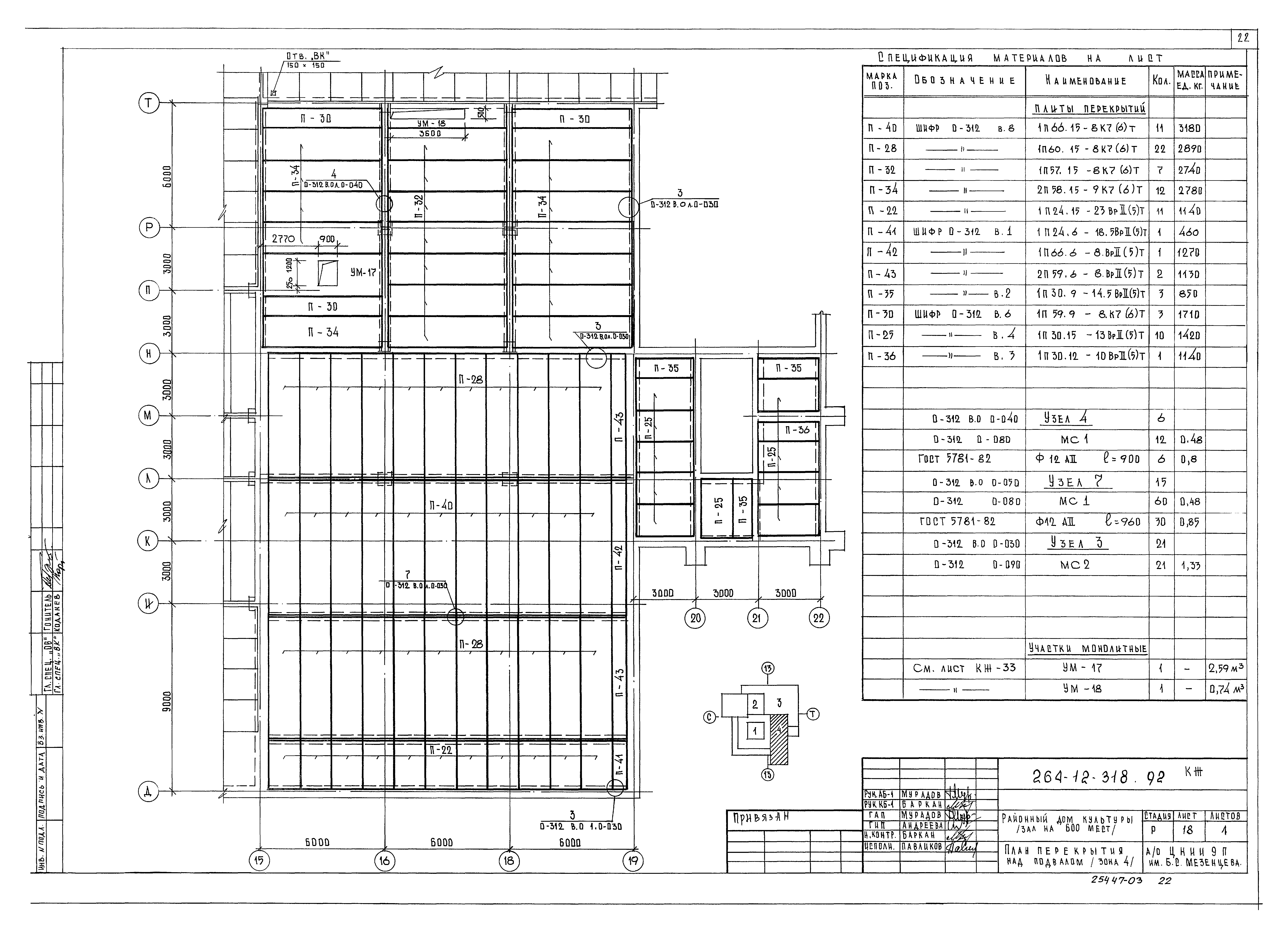
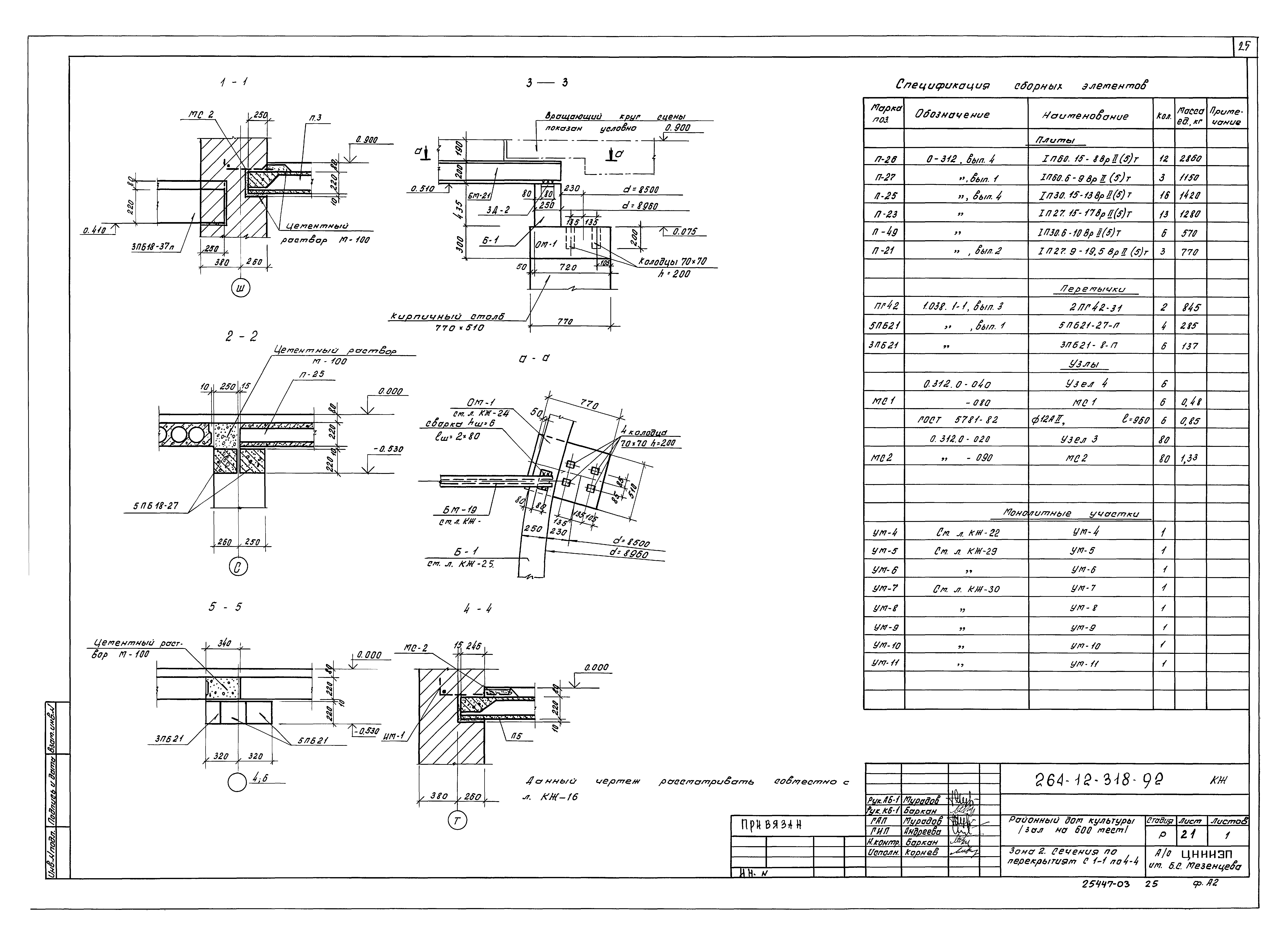
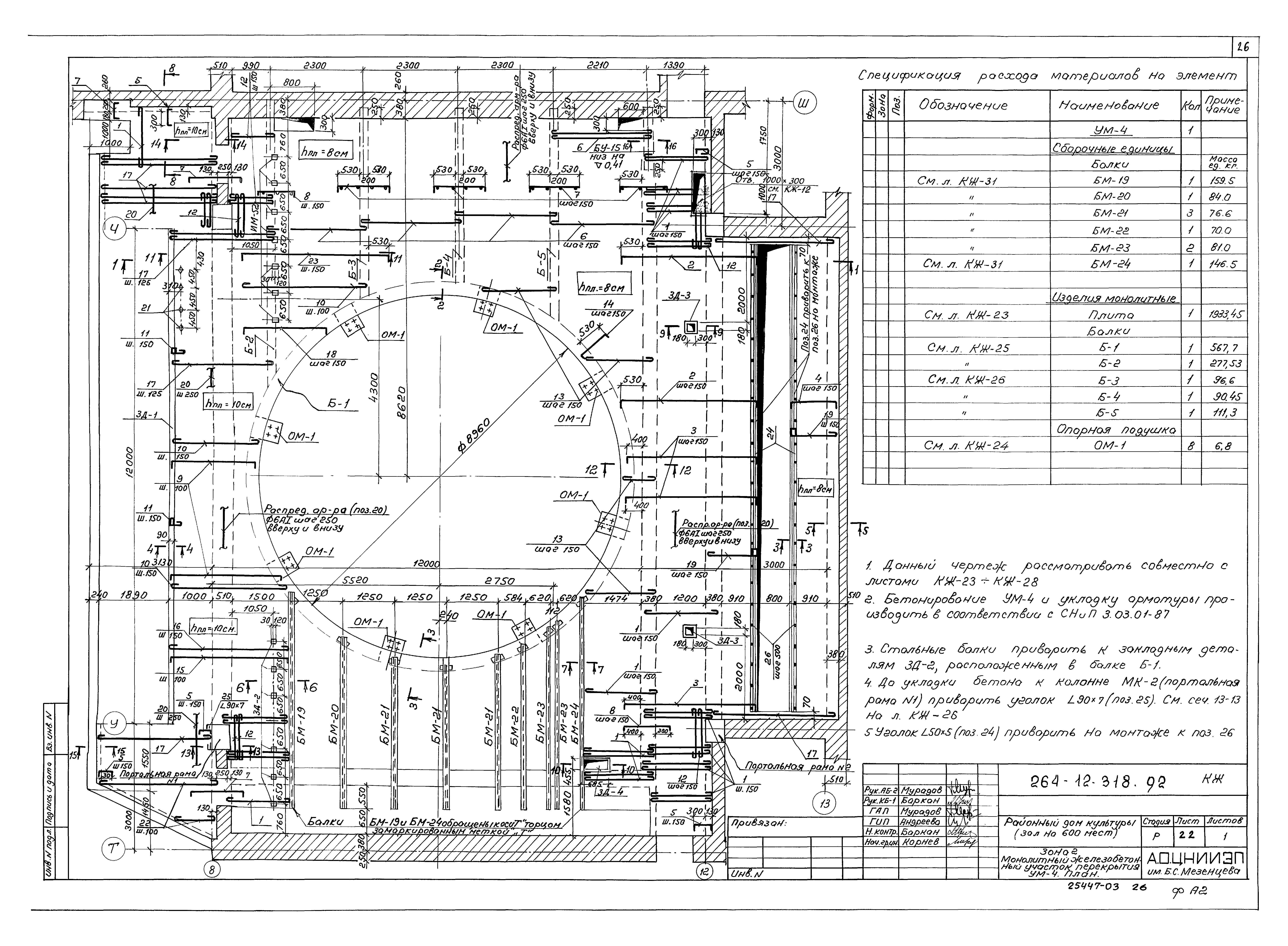
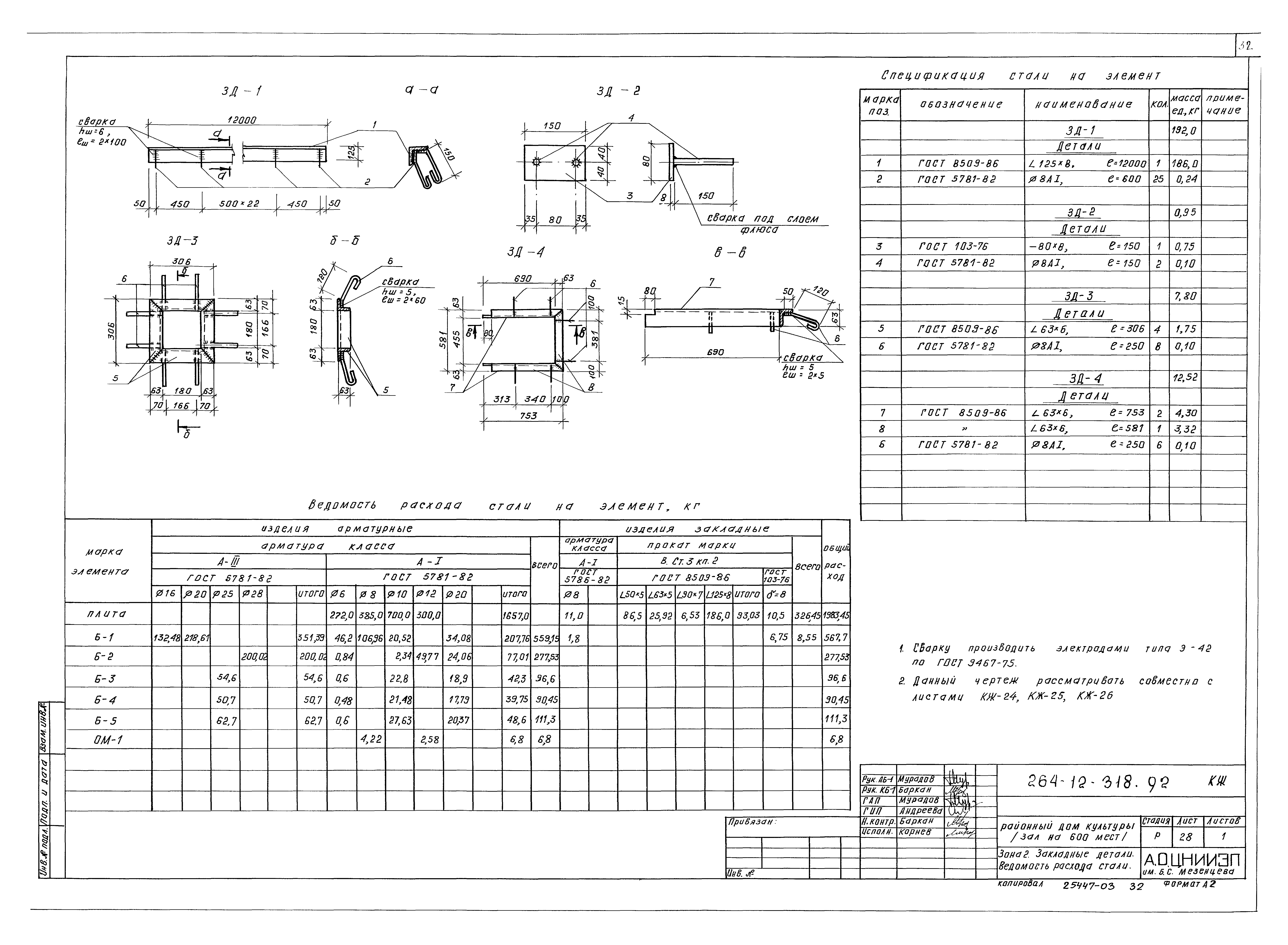
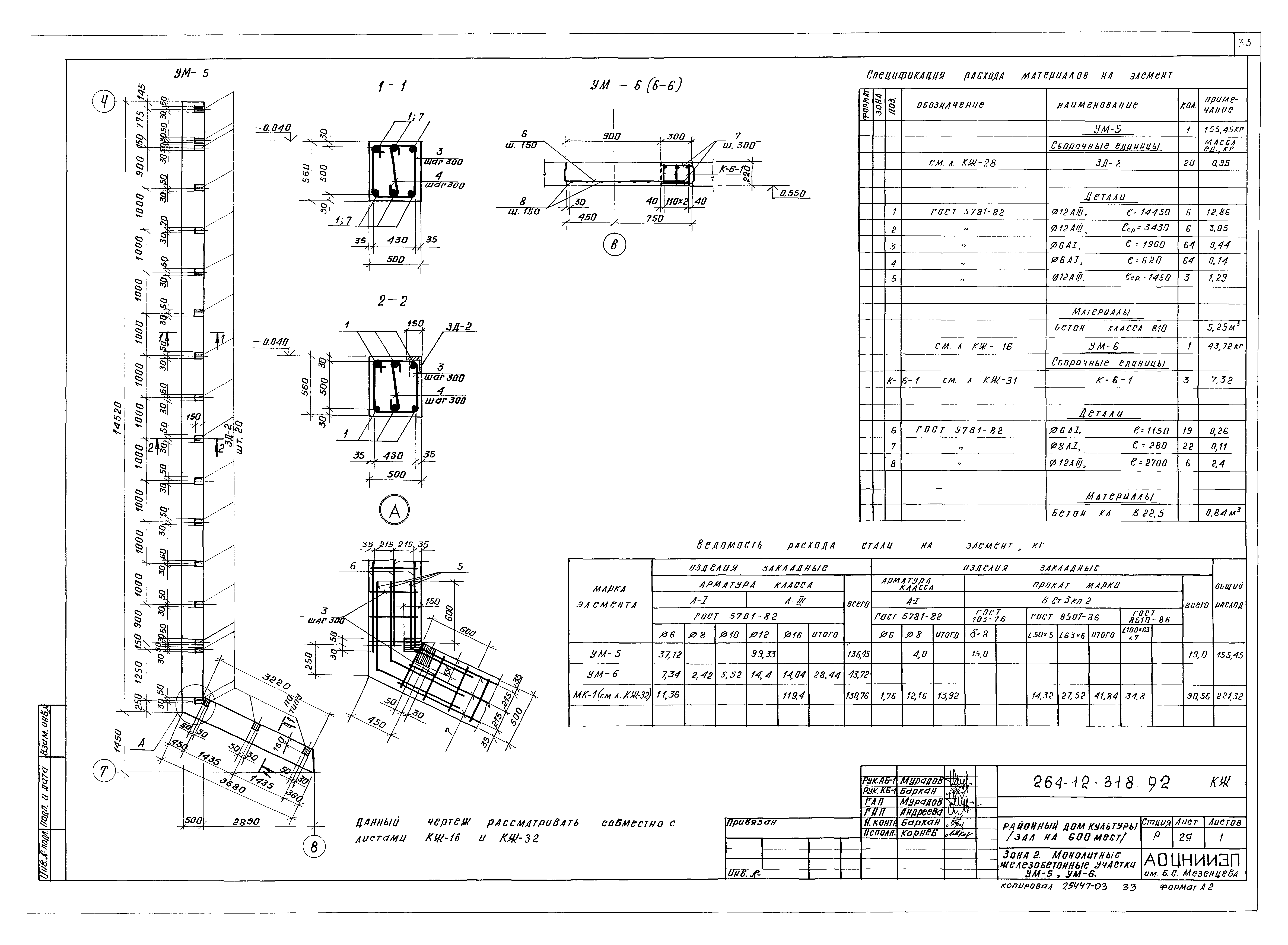
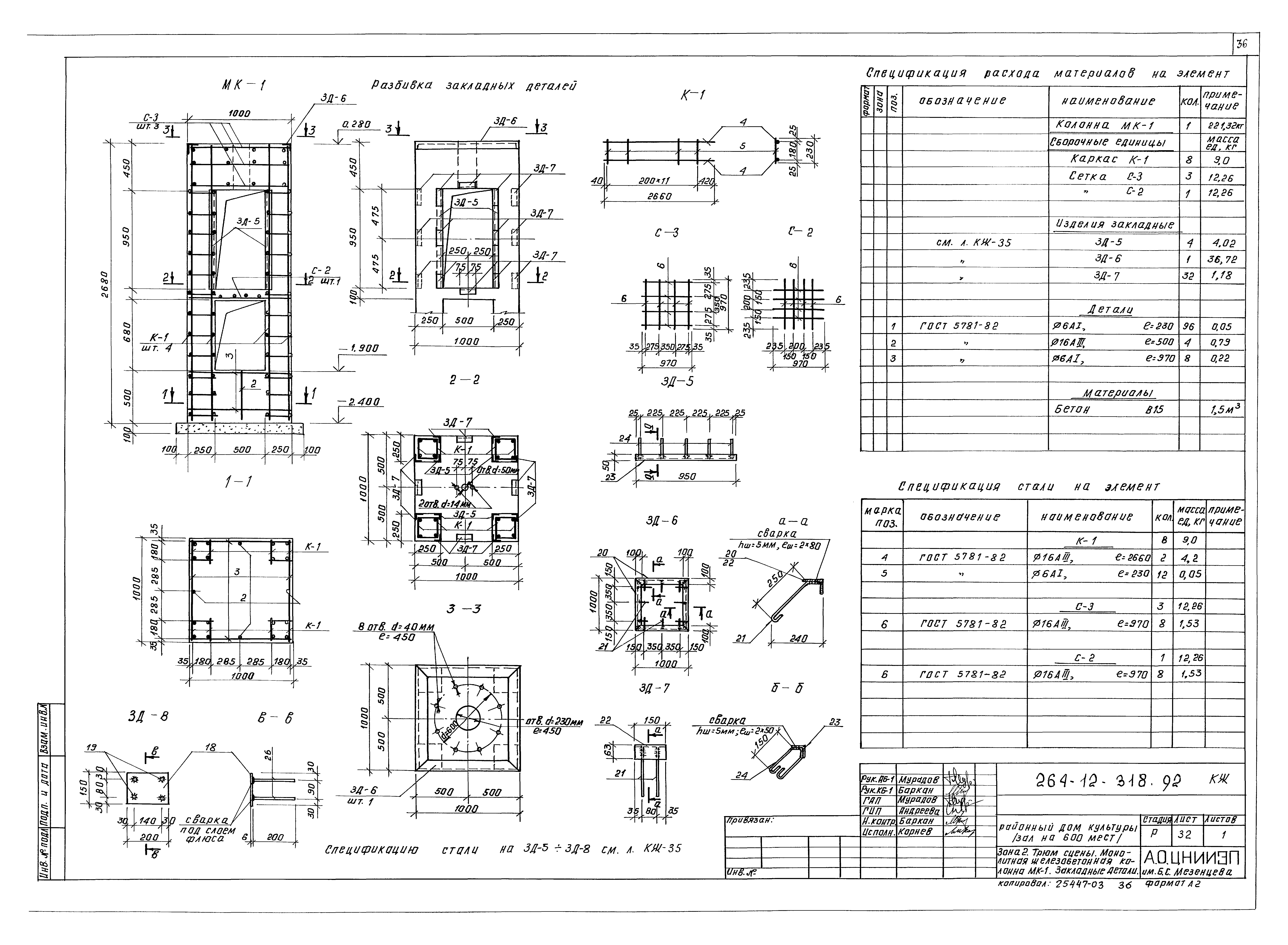
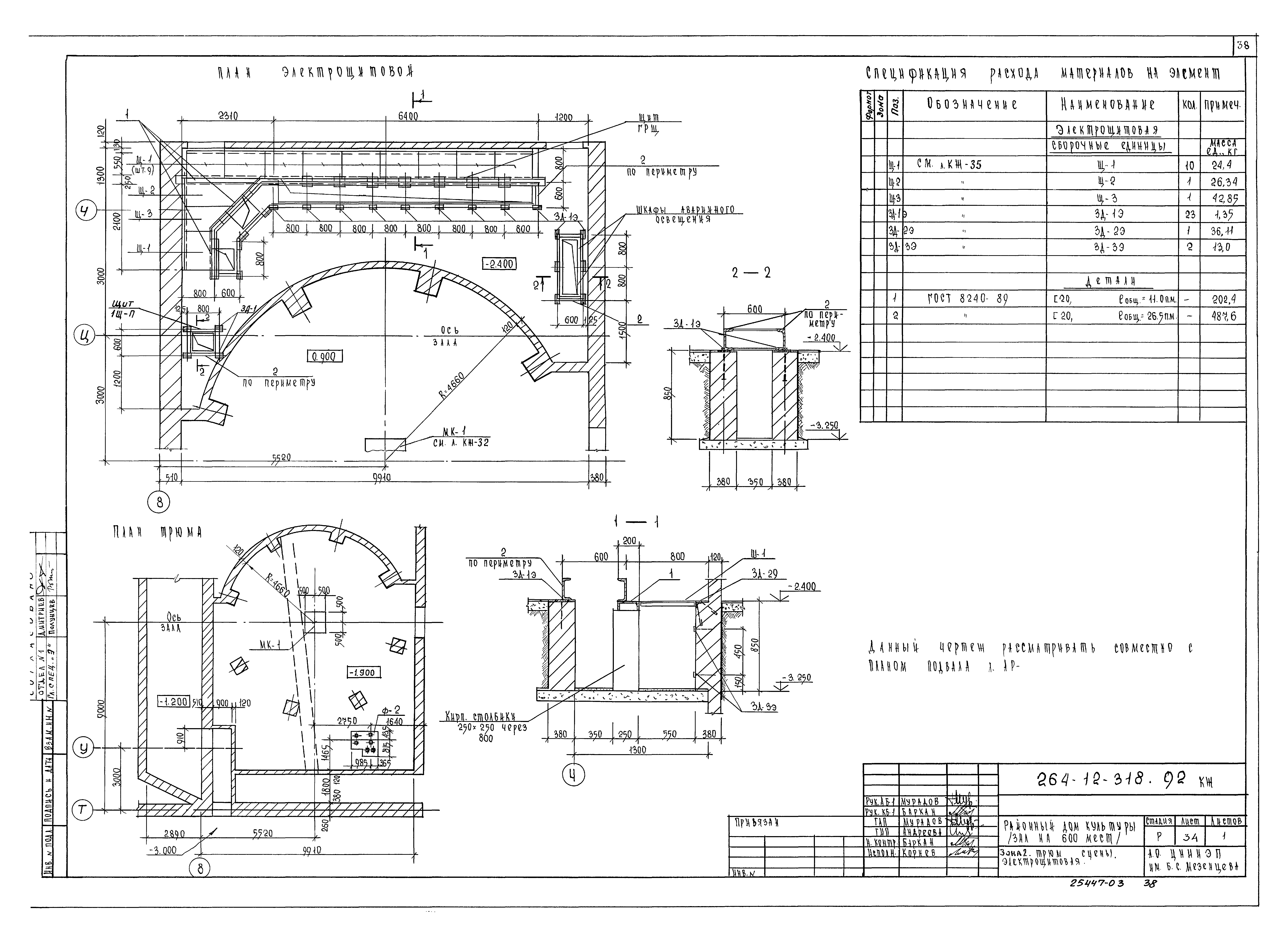
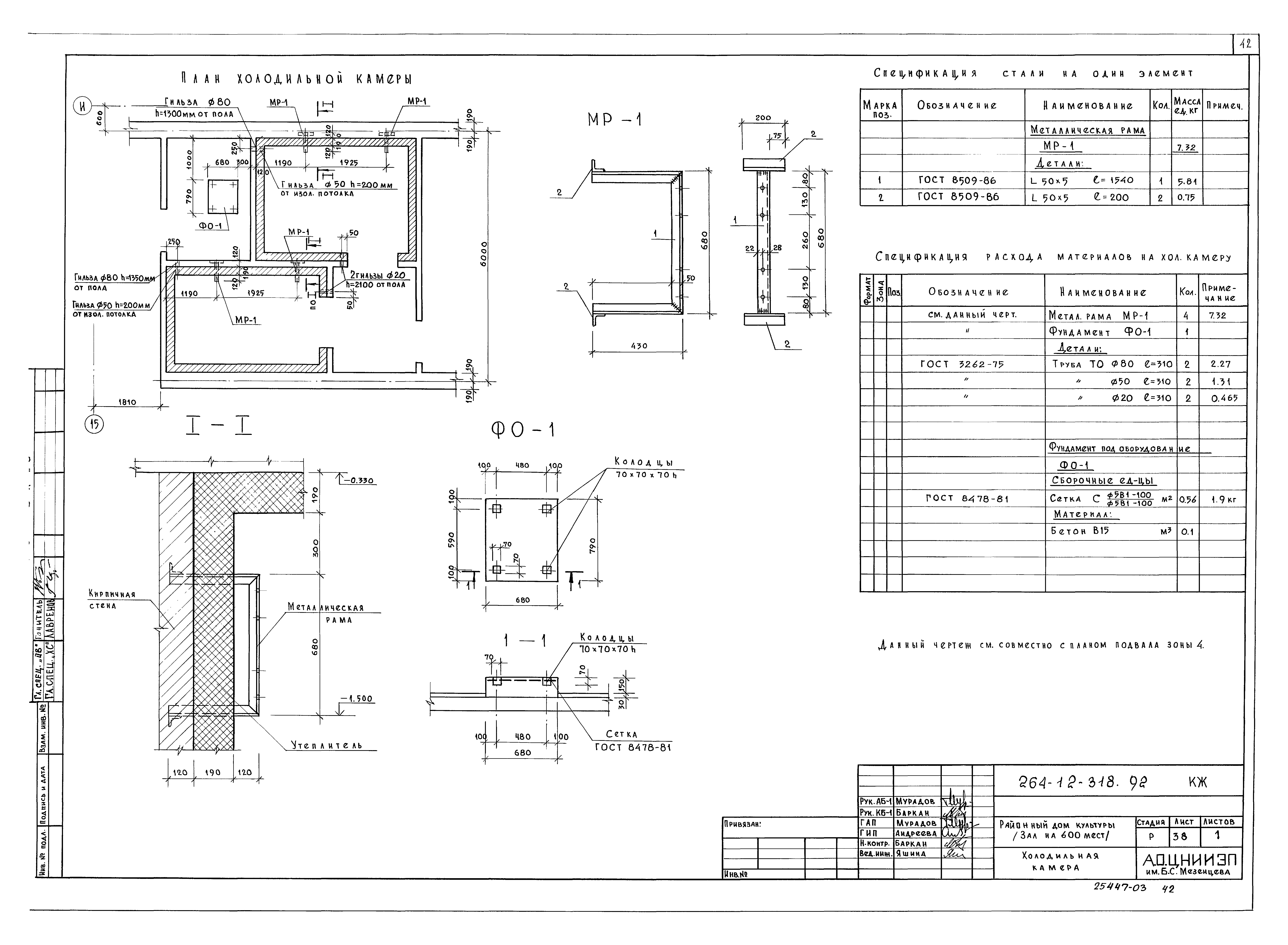
| Оглавление: | Пояснительная записка Конструкции железобетонные Общие данные Схема нагрузок на фундаменты Зона 1. План фундаментов Зона 2. План фундаментов Зона 3. План фундаментов Зона 4. План фундаментов Фундаменты. Развертки по осям "15", "19". Фундамент Фм1 Фундаменты. Развертки по осям "С", "Ш" Фундаменты. Развертки по осям "8", "12", "18". Сечения по подпольным каналам Фундаменты. Сечения с 1-1 по 10-10, "А-А" Фундаменты. Сечения с 11-11 по 28-28 Фундаменты Ф-2 и Фм-2. Планшет сцены, помещение лебедки Зона 1. Схема каркаса на отм. 0.000 Зоны 3, 4. Схема балок. Узлы Зона 1. План перекрытия над подвалом Зона 2. План перекрытия над подвалом Зона 3. План перекрытия над подвалом Зона 4. План перекрытия над подвалом Зона 1. Сечения по перекрытиям с 01-01 по 06-06. Спецификация железобетонных изделий Зона 1. Монолитные железобетонные участки перекрытий УМ-1 - УМ-3; УМ-19 - УМ-23 Зона 2. Сечения по перекрытиям с 1-1 по 4-4 Зона 2. Монолитный железобетонный участок перекрытия УМ-4. План Зона 2. УМ-4. Плита. Сечения с 1-1 по 10-10 Зона 2. УМ-4. Плита. Сечения с 11-11 - 16-16. Опорная плита ОМ-1 Зона 2. УМ-4. Балки Б-1, Б-2. Сечения с 1-1 по 7-7 Зона 2. УМ-4. Балки Б-3 - Б-5. Сечения с 8-8 по 15-15 Зона 2. УМ-4. Арматурные изделия Зона 2. УМ-4. Закладные детали. Ведомость расхода стали Зона 2. Монолитные железобетонные участки УМ-5 и УМ-6 Зона 2. Монолитные железобетонные участки УМ-7 и УМ-11 Зона 2. УМ-4. Стальные балки с БМ-19 по БМ-24. Ведомость расхода стали на УМ-6 - УМ-11 Зона 2. Трюм сцены. Монолитная железобетонная колонна МК-1. Закладные детали Зона 3, 4. Монолитные участки перекрытий с УМ-13 по УМ-18 Зона 2. Трюм сцены. Электрощитовая Зона 2. Трюм сцены. Электрощитовая. Щиты Щ-1 - Щ-4. Закладные детали ЗД-1э - ЗД-5э Воздухозаборные камеры Камера глушения №1. Конструкции Холодильная камера Планы подпольных каналов Лестницы подвала |
| Разработан: | ЦНИИЭП им. Б.С. Мезенцева Госкомархитектуры |
| Утверждён: | 29.11.1991 Госкомархитектура (2-129) |











































