Скачать Типовой проект 264-12-318.92 Альбом 9. Пояснительная записка. Кинотехнология. Связь и сигнализация. Пожарная сигнализацияДата актуализации: 01.01.2021
|
| Обозначение: | Типовой проект 264-12-318.92 |
| Обозначение англ: | 264-12-318.92 |
| Статус: | не определен законодательством |
| Название рус.: | Альбом 9. Пояснительная записка. Кинотехнология. Связь и сигнализация. Пожарная сигнализация |
| Дата добавления в базу: | 01.10.2014 |
| Дата актуализации: | 01.01.2021 |
| Дата введения: | 17.09.1992 |
| Дата окончания срока действия: | 30.06.2003 |
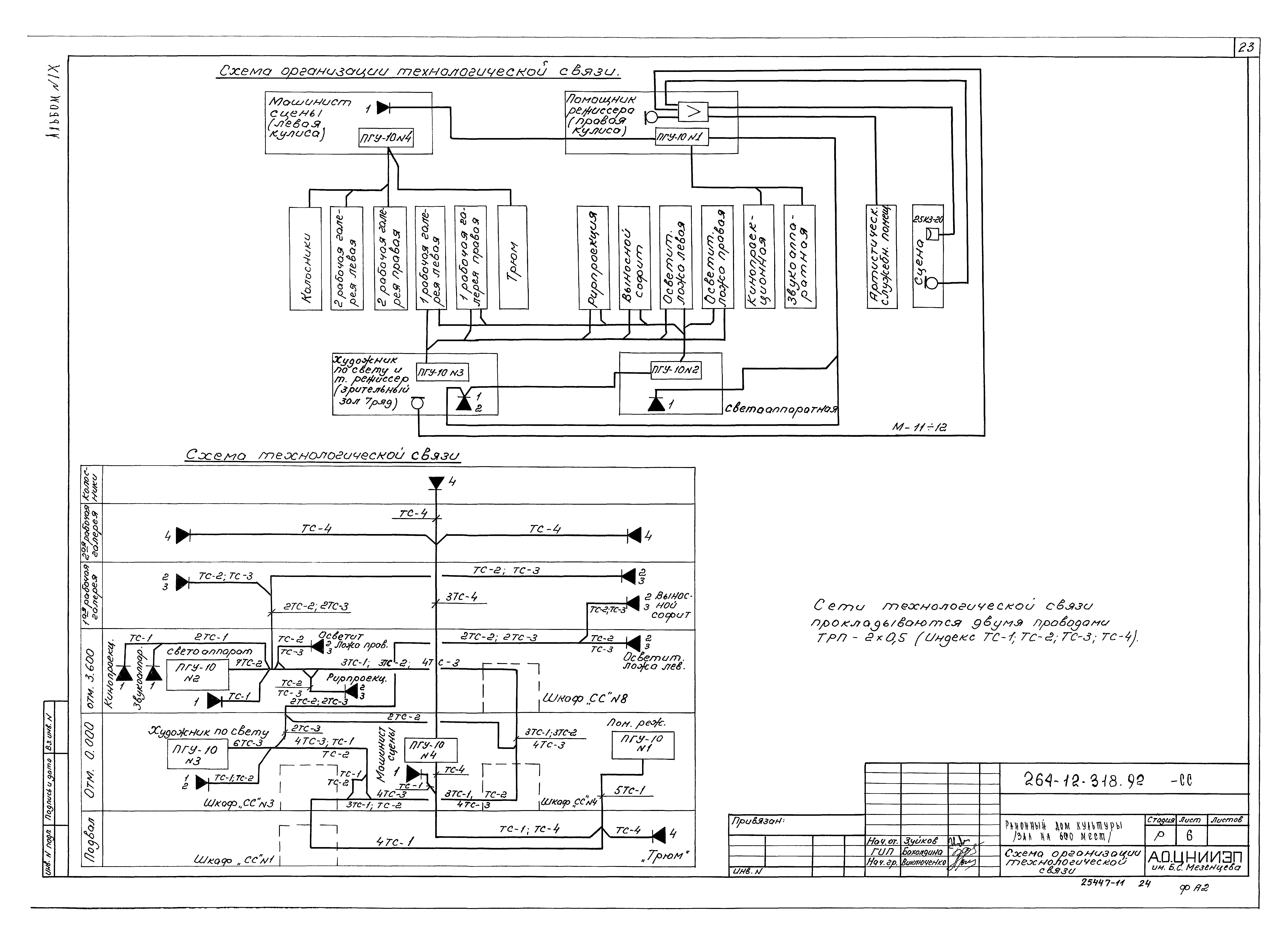
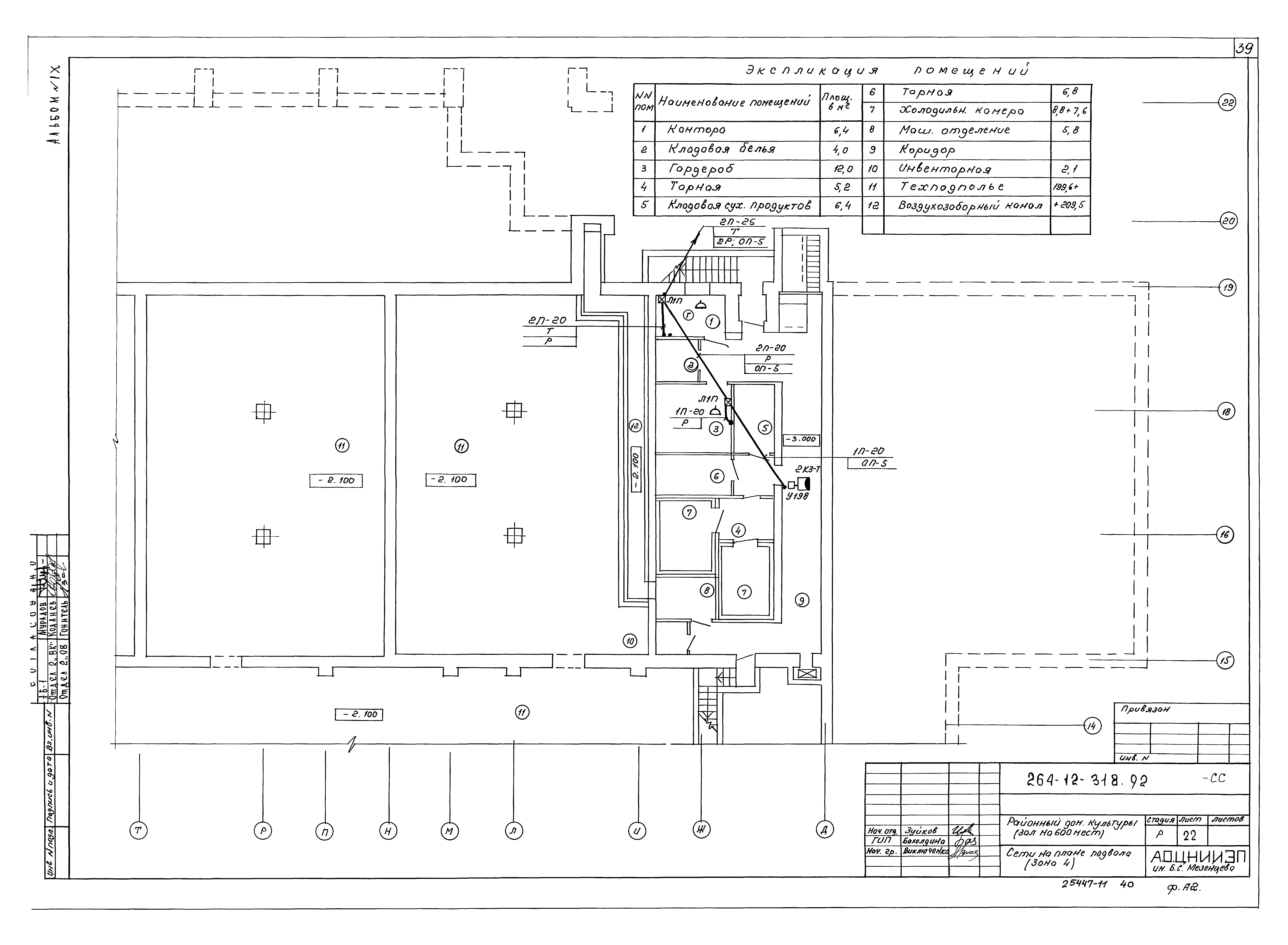
| Оглавление: | Содержание альбома Пояснительная записка Кинотехнология КТ Общие данные План зала на 600 мест с расположением оборудования и трубной разводкой Разрез 1-1 зала на 600 мест План кинопроекционной зала на 600 мест с расположением оборудования и трубной разводкой Разрез 2-2 кинопроекционной зала на 600 мест с расположением оборудования и трубной разводкой Схема подключений электросилового оборудования зала на 600 мест Схема подключений электроакустического оборудования зала на 600 мест План и разрез 3-3 зала-аудитории с расположением оборудования и трубной разводкой План кинопроекционной зала-аудитории с расположением оборудования и трубной разводкой Разрез 4-4 кинопроекционной зала-аудитории с расположением оборудования и трубной разводкой Схема подключений электросилового оборудования зала-аудитории Схема подключений электроакустического оборудования зала-аудитории Установка киноэкрана и предэкранного занавеса в зале-аудитории Узлы. Разрезы (зал-аудитория) Связь и сигнализация СС Общие данные Схема стояков и схема сети радиофикации Схемы сетей телефонизации и телевидения Схема сети электрочасофикации Схема сети оповещения о пожаре Схема организации технологической связи Схемы сетей системы звукоусиления и трансляции спектакля Блок-схема системы звукоусиления зрительного зала План расположения оборудования в звукоаппаратной Сети на плане подвала (зона 1) Сети на плане отм. 0.000 (зона 1) Сети на плане отм. 3.600 и 4.500 (зона 1) Сети на плане подвала (зона 2) Сети на плане отм. 0.000 (зона 2) Сети на плане отм. 3.600 (зона 2) Сети на плане подвесного потолка (зона 2) Сети на планах 1-ой и 2-ой рабочих галерей (зона 2) Сети на планах 3-ей рабочей галереи и колосников (зона 2) Сети на плане подвала (зона 3) Сети на плане отм. 0.000 (зона 3) Сети на плане отм. 3.600 (зона 3) Сети на плане подвала (зона 4) Сети на плане отм. 0.000 (зона 4) Сети на плане отм. 3.600 (зона 4) План кровли. Контур заземления р/стойки и телеантенны Пожарная сигнализация ПС Общие данные Схема сети пожарной сигнализации Сети на плане подвала (зона 1) Сети на плане подвала (зона 2) Сети на плане подвала (зона 3) Сети на плане подвала (зона 4) Сети на плане отм. 0.000 (зона 1) Сети на плане отм. 0.000 (зона 2) Сети на плане отм. 0.000 (зона 3) Сети на плане отм. 0.000 (зона 4) Сети на плане отм. 3.600 и 4.500 (зона 1) Сети на плане отм. 3.600 (зона 2) Сети на плане отм. 3.600 (зона 3) Сети на плане отм. 3.600 (зона 4) Чертежи основного комплекта марки КТН Каркас киноэкрана зала-аудитории |
| Разработан: | ЦНИИЭП им. Б.С. Мезенцева Госкомархитектуры |
| Утверждён: | 29.11.1991 Госкомархитектура (2-129) |

























































