Скачать Типовой проект 264-12-318.92 Альбом 13. Часть 1. Технологические условия механооборудования. МеханооборудованиеДата актуализации: 01.01.2021
|
| Обозначение: | Типовой проект 264-12-318.92 |
| Обозначение англ: | 264-12-318.92 |
| Статус: | не определен законодательством |
| Название рус.: | Альбом 13. Часть 1. Технологические условия механооборудования. Механооборудование |
| Дата добавления в базу: | 01.10.2014 |
| Дата актуализации: | 01.01.2021 |
| Дата введения: | 17.09.1992 |
| Дата окончания срока действия: | 30.06.2003 |
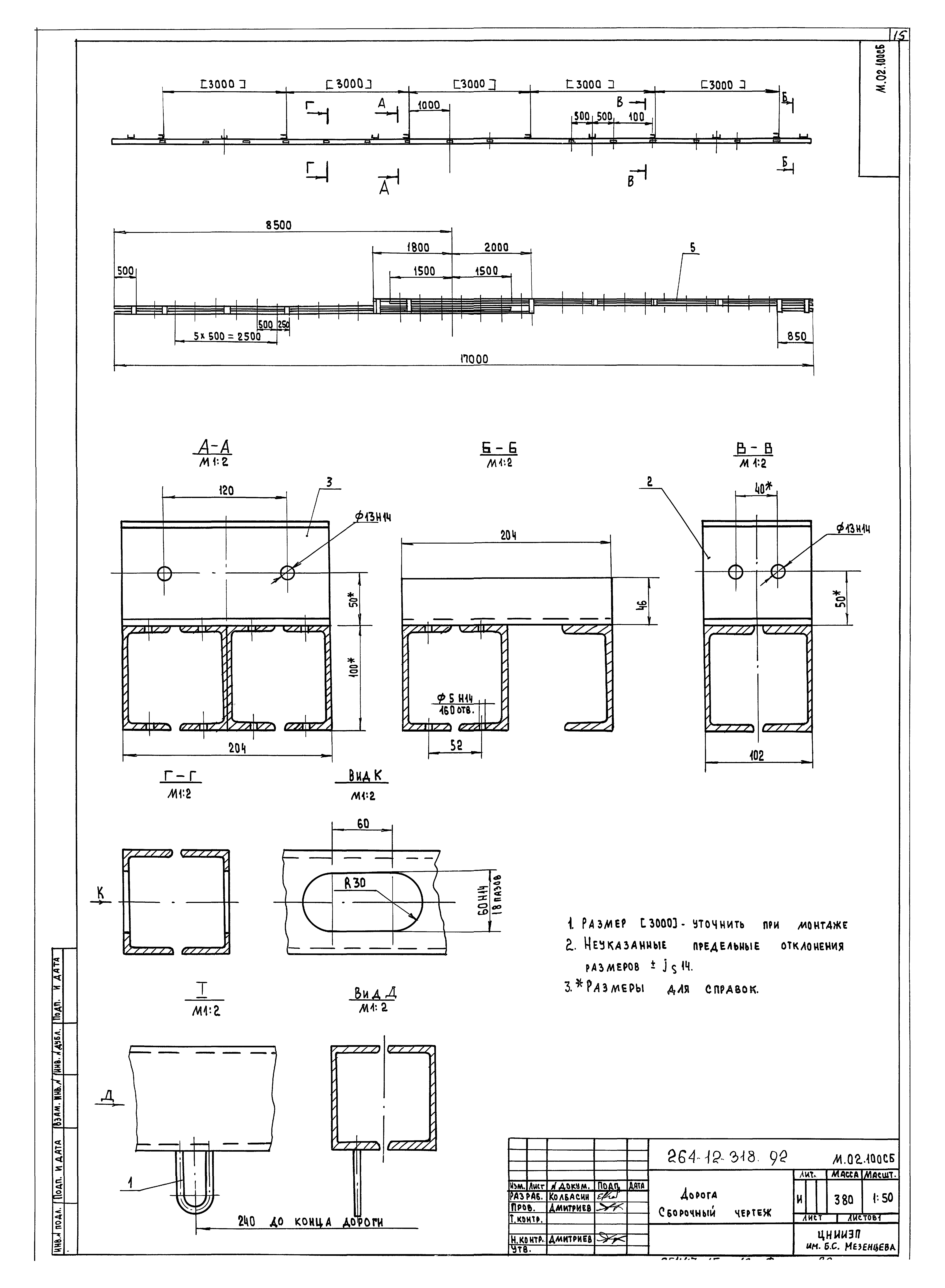
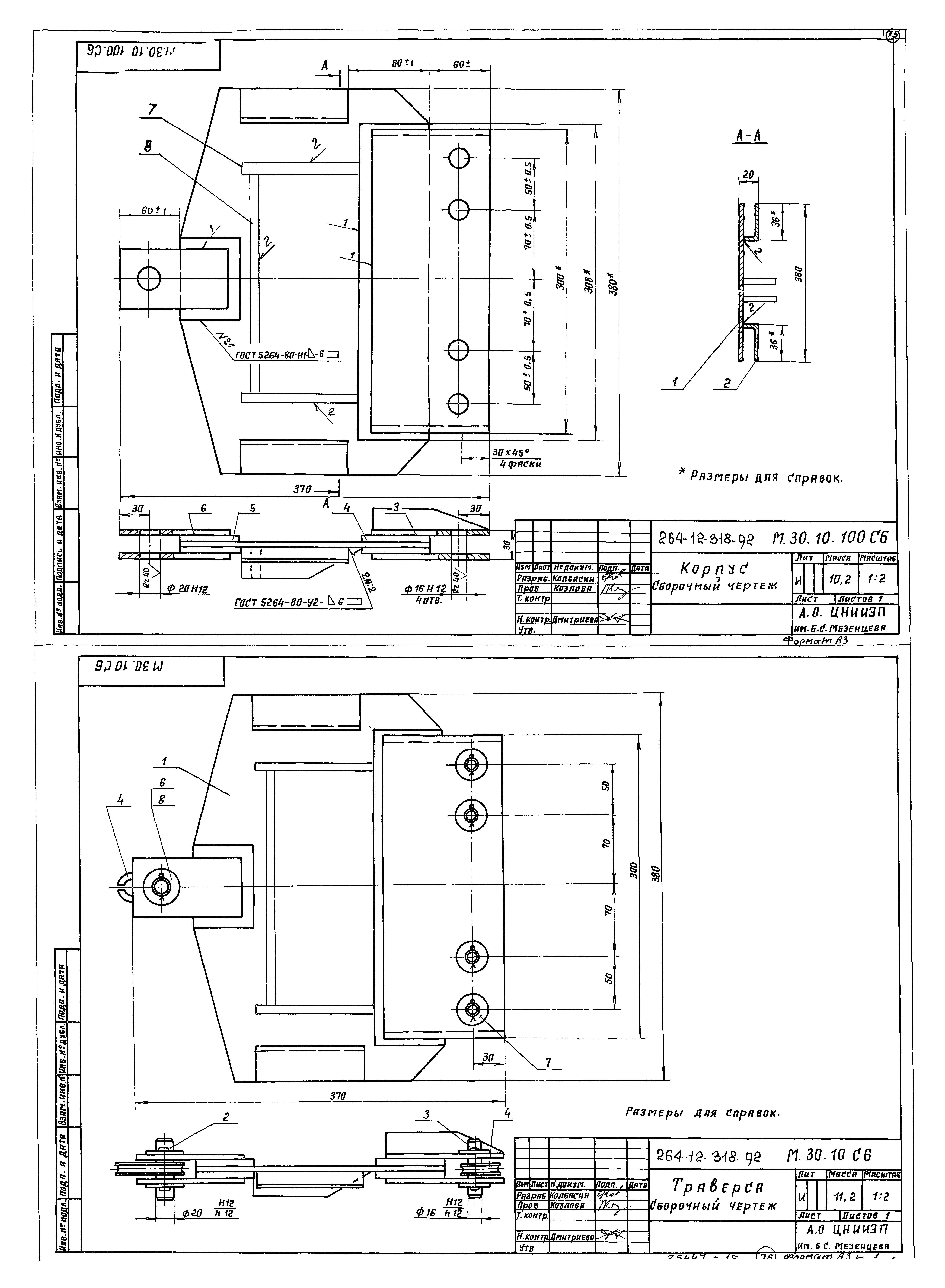
| Оглавление: | Содержание альбома М.ТУ Технические условия М.00 Установка механооборудования сцены М.00СБ Установка механооборудования сцены. Сборочный чертеж М.01 Подвеска М.01.100 Рамка М.01.100СБ Рамка. Сборочный чертеж М.01СБ Подвеска. Сборочный чертеж М.02 Занавес антрактный раздвижной М.02.100 Дорога М.02.200 Рама М.02СБ Занавес антрактный раздвижной. Сборочный чертеж М.02.100СБ Дорога. Сборочный чертеж М.02.200СБ Рама. Сборочный чертеж М.02.201 Ребро М.02.202 Окантовка М.03 Кулисы портальные М.03.10 Кулиса М.03СБ Кулисы портальные. Сборочный чертеж М.03.10СБ Кулиса. Сборочный чертеж М.03.10.100 Каркас М.03.20.001 Стержень М.03.20.002 Кольцо М.02.001 Упор М.03.10.100СБ Каркас. Сборочный чертеж М.03.11 Фартук М.03.001 Поводок М.03.11СБ Фартук. Сборочный чертеж М.03.20 Направляющая М.03.20СБ Направляющая. Сборочный чертеж М.04 Подъем декорационный М.01.001 Хомут М.01.002 Ось М.04СБ Подъем декорационный. Сборочный чертеж М.04.100 Штанга М.04.100СБ Штанга. Сборочный чертеж М.05 Падуга М.06.001 Серьга М.06.10.001 Прижим М.05СБ Падуга. Сборочный чертеж М.05.100 Рама М.05.101 Ушко М.05.100СБ Рама. Сборочный чертеж М.06 Подъем софитный I плана М.06.10.103 Стойка М.06.10.104 Упор М.06СБ Подъем софитный I плана. Сборочный чертеж М.06.100 Каркас М.06.102 Подвеска М.06.101 Скоба М.06.100СБ Каркас. Сборочный чертеж М.06.10.100 Каркас М.06.10.101 Стойка М.06.10.100СБ Каркас. Сборочный чертеж М.06.103 Подвеска М.06.104 Дуга М.06.106 Связь М.06.105 Связь М.06.200 Рама М.06.201 Стойка М.06.202 Ребро М.06.112 Подвеска М.06.200СБ Рама. Сборочный чертеж М.06.100 Корзина М.06.10.102 Подставка М.06.100СБ Корзина. Сборочный чертеж М.07 Подъем софитный М.07.103 Связь М.07СБ Подъем софитный. Сборочный чертеж М.07.100 Каркас М.07.101 Подвеска М.07.102 Связь М.07.100СБ Каркас. Сборочный чертеж М.08.100 Каркас М.09.102 Скоба М.07.109 Подвеска М.08.100СБ Каркас. Сборочный чертеж М.09 Киноэкран М.09.001 Труба вертикальная М.09.002 Косынка М.09СБ Киноэкран. Сборочный чертеж М.09.100 Труба верхняя М.09.101 Крюк М.09.100СБ Труба верхняя. Сборочный чертеж М.09.200 Труба нижняя М.09.201 Заглушка М.09.200СБ Труба нижняя. Сборочный чертеж М.09.10 Оттяжка М.09.003 Пластина М.09.10СБ Оттяжка. Сборочный чертеж М.09.10.001 Муфта М.09.10.002 Винт-шарик М.09.10.003 Винт-вилка М.09.10.004 Палец М.10 Занавес попланный М.10.10 Дорога М.13.101 Щека М.10СБ Занавес попланный. Сборочный чертеж М.10.10СБ Дорога. Сборочный чертеж М.10.11 Скоба М.10.11СБ Скоба. Сборочный чертеж М.10.11.001 Скоба М.10.11.002 Прут М.10.12 Блок М.10.12СБ Блок. Сборочный чертеж М.10.12.10 Блок М.10.12.10.001 Блок М.10.12.10СБ Блок. Сборочный чертеж М.10.12.100 Рама М.10.12.101 Щека М.10.12.102 Плита М.10.12.001 Распорка М.10.12.100СБ Рама. Сборочный чертеж М.10.13 Блок М.10.13СБ Блок. Сборочный чертеж М.10.12.001 Втулка М.10.12.003 Палец М.10.12.003 Ось М.10.13.100 Рама М.10.13.100СБ Рама. Сборочный чертеж М.10.20 Втулка М.10.20СБ Втулка. Сборочный чертеж М.10.20.002 Втулка М.10.20.003 Кольцо М.20 Горизонт М.02.001 Упор М.02.101 Скоба М.20СБ Горизонт. Сборочный чертеж М.20.100 Дуга горизонта М.20.101 Скоба М.20.100СБ Дуга горизонта. Сборочный чертеж М.30 Подъем софитный арьерсцены М.30.100 Каркас М.30СБ Подъем софитный арьерсцены. Сборочный чертеж М.30.100СБ Каркас. Сборочный чертеж М.30.10 Траверса М.30.10.100 Корпус М.30.10СБ Траверса. Сборочный чертеж М.30.10.100СБ Корпус. Сборочный чертеж |
| Разработан: | ЦНИИЭП им. Б.С. Мезенцева Госкомархитектуры |
| Утверждён: | 29.11.1991 Госкомархитектура (2-129) |











































































