Скачать Типовой проект 416-1-141.83 Альбом III. Архитектурно-строительные решенияДата актуализации: 01.01.2021
|
| Обозначение: | Типовой проект 416-1-141.83 |
| Обозначение англ: | 416-1-141.83 |
| Статус: | действует |
| Название рус.: | Альбом III. Архитектурно-строительные решения |
| Дата добавления в базу: | 01.10.2014 |
| Дата актуализации: | 01.01.2021 |
| Дата введения: | 27.06.1983 |
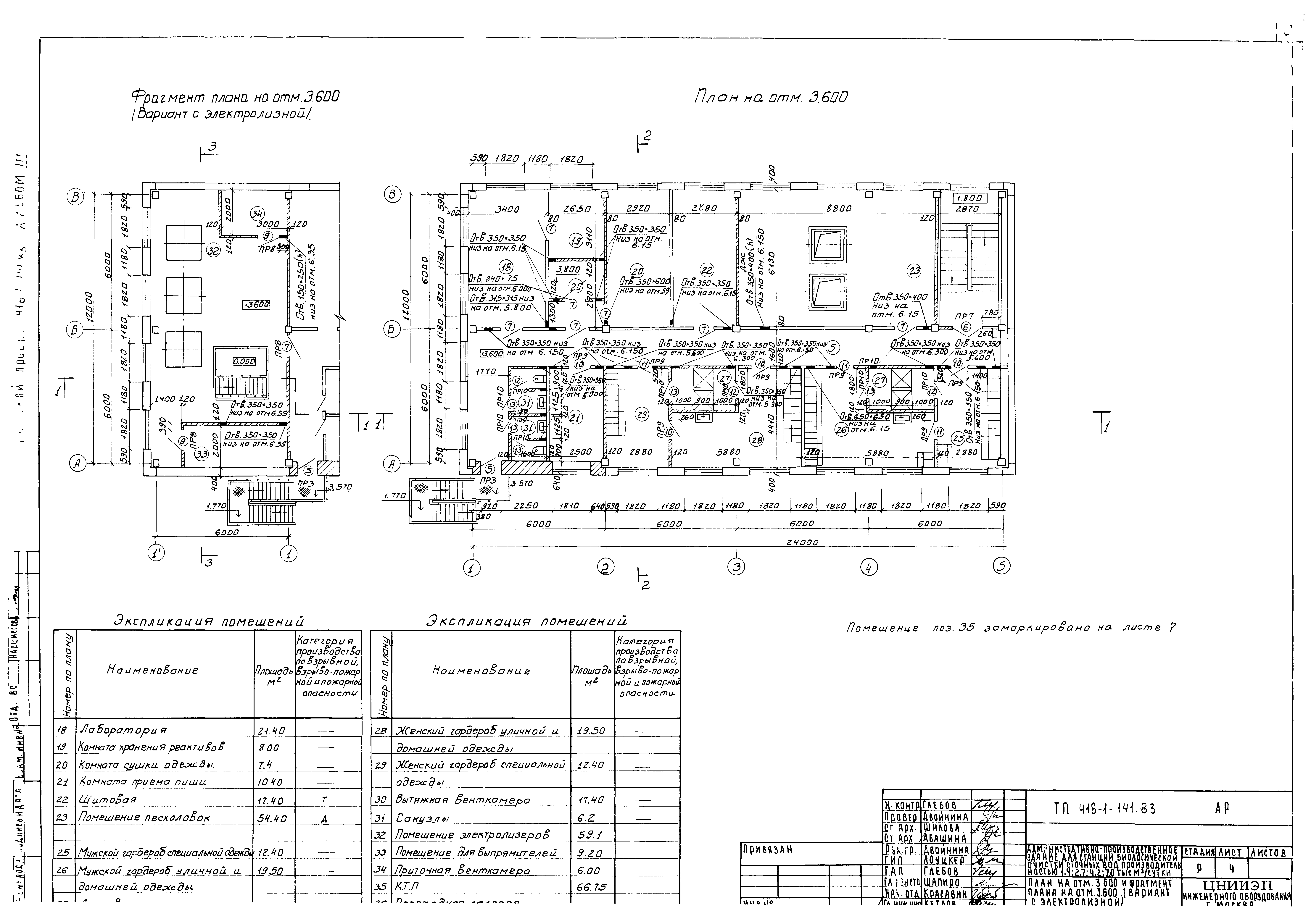
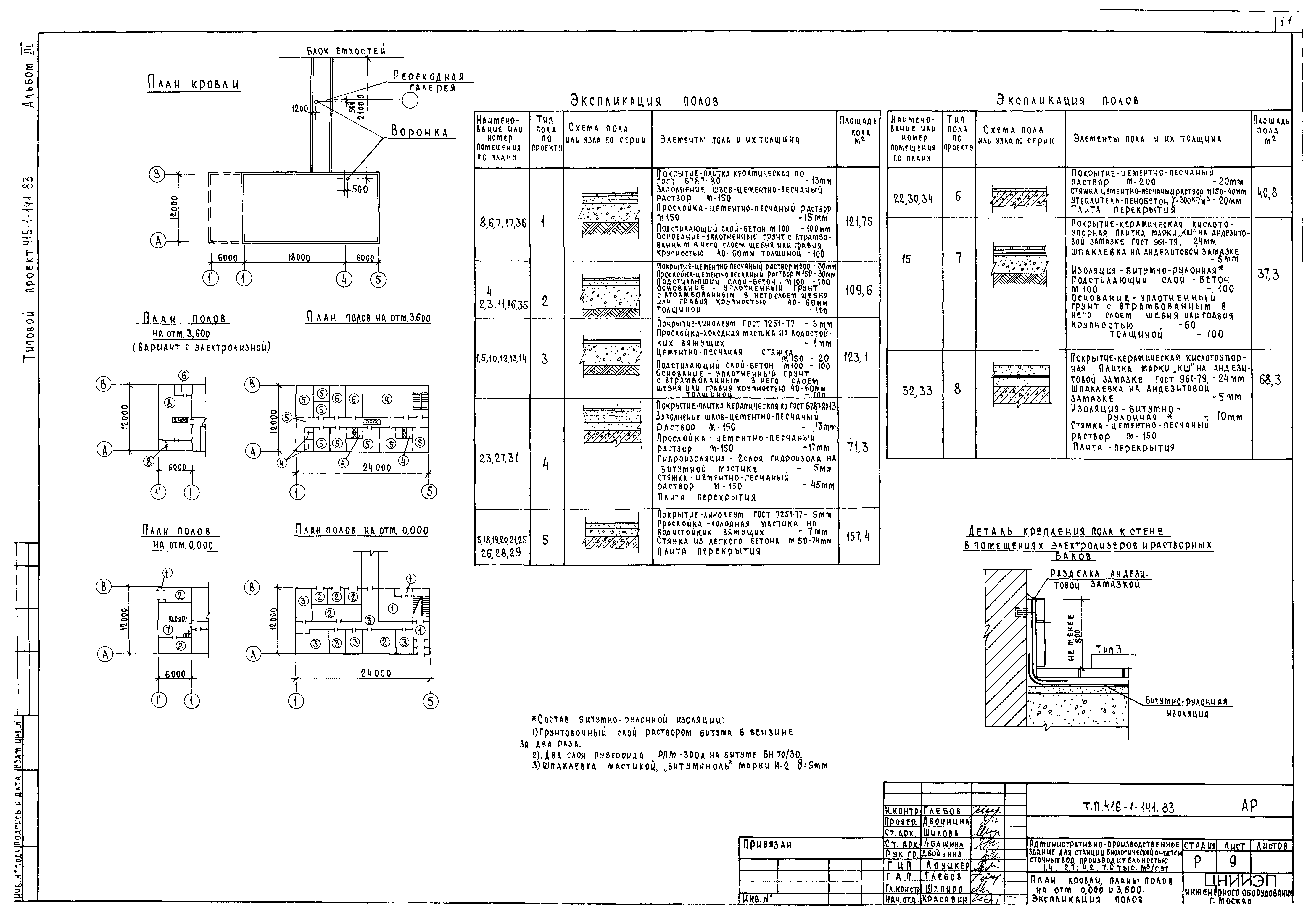
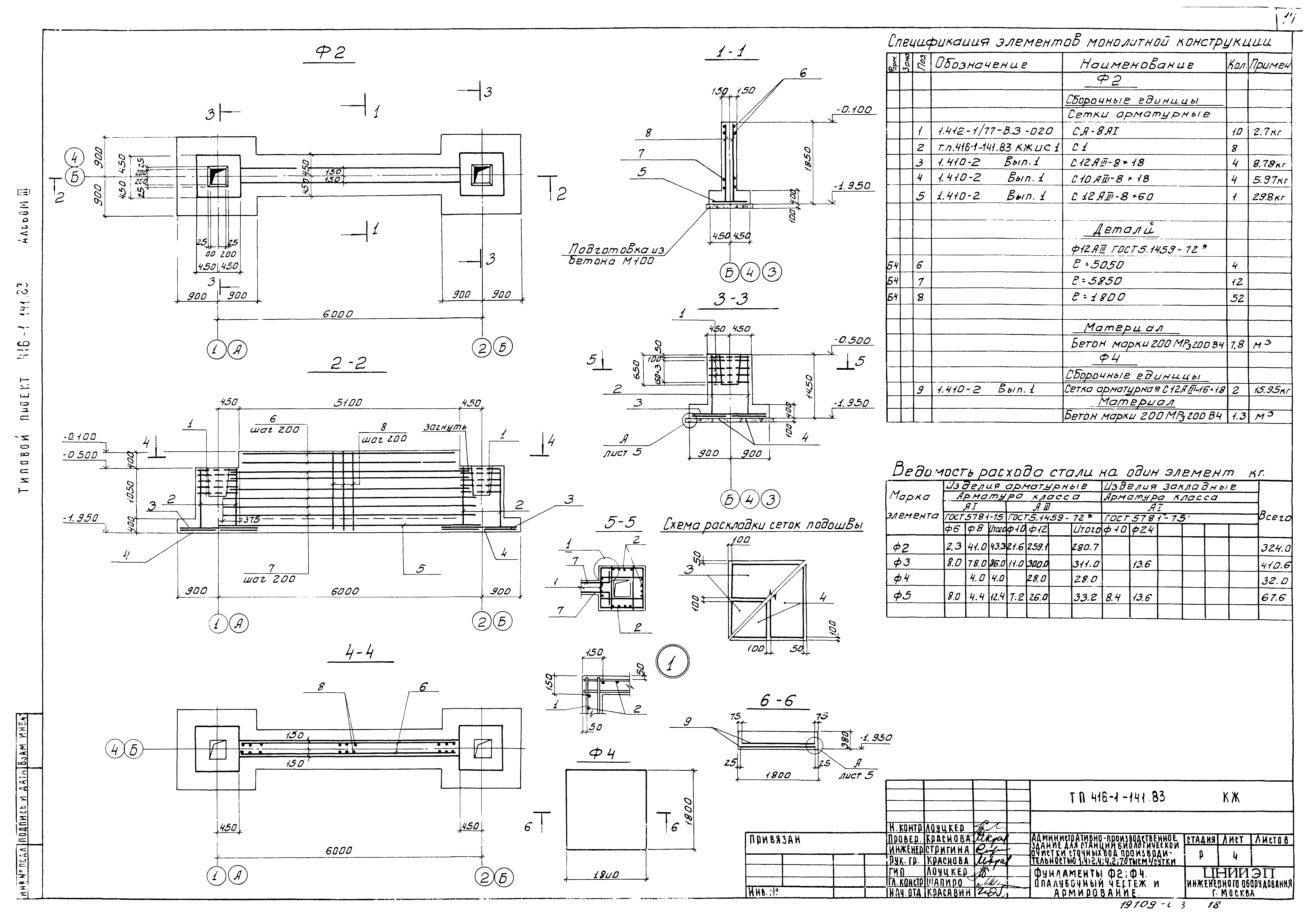
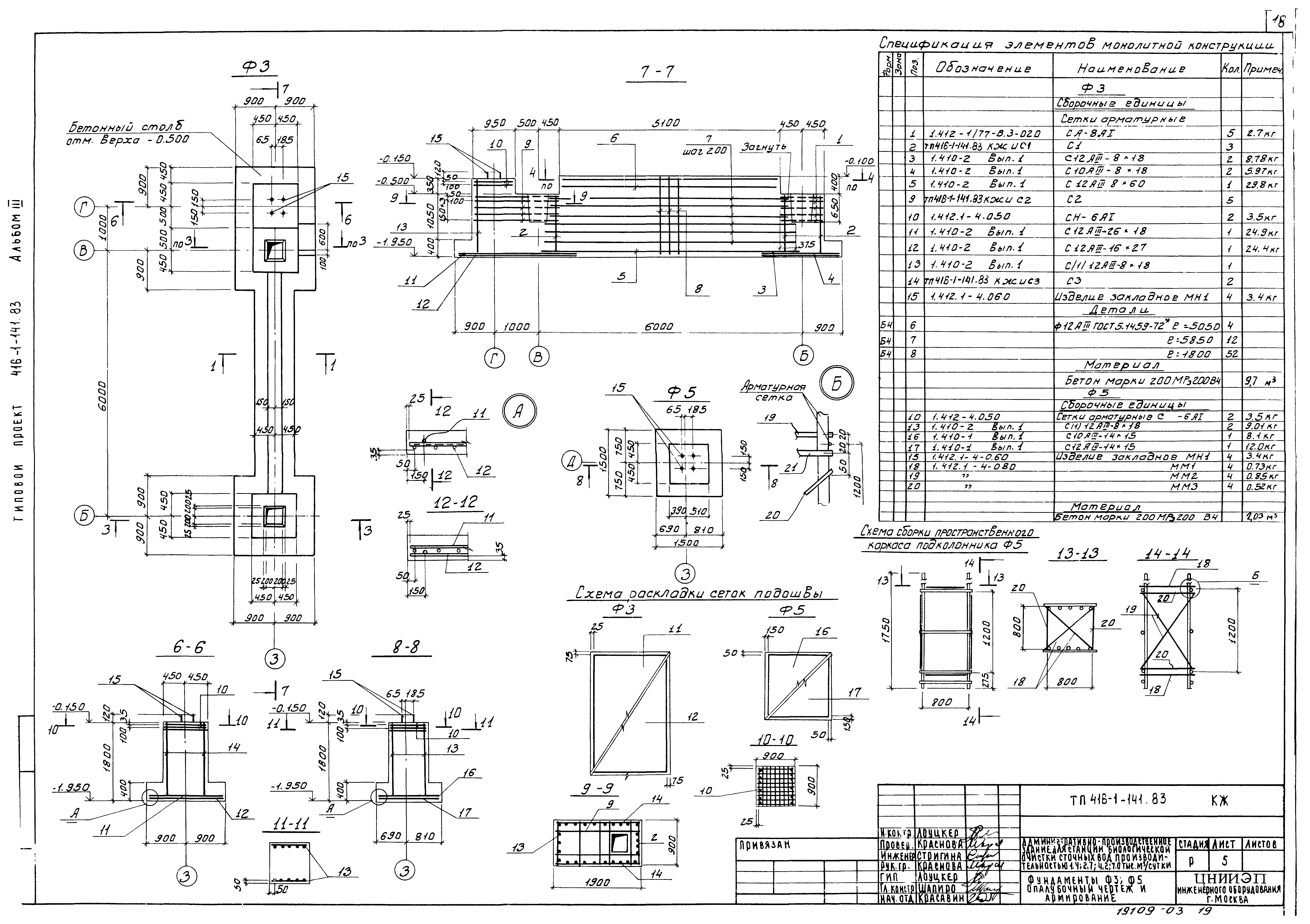
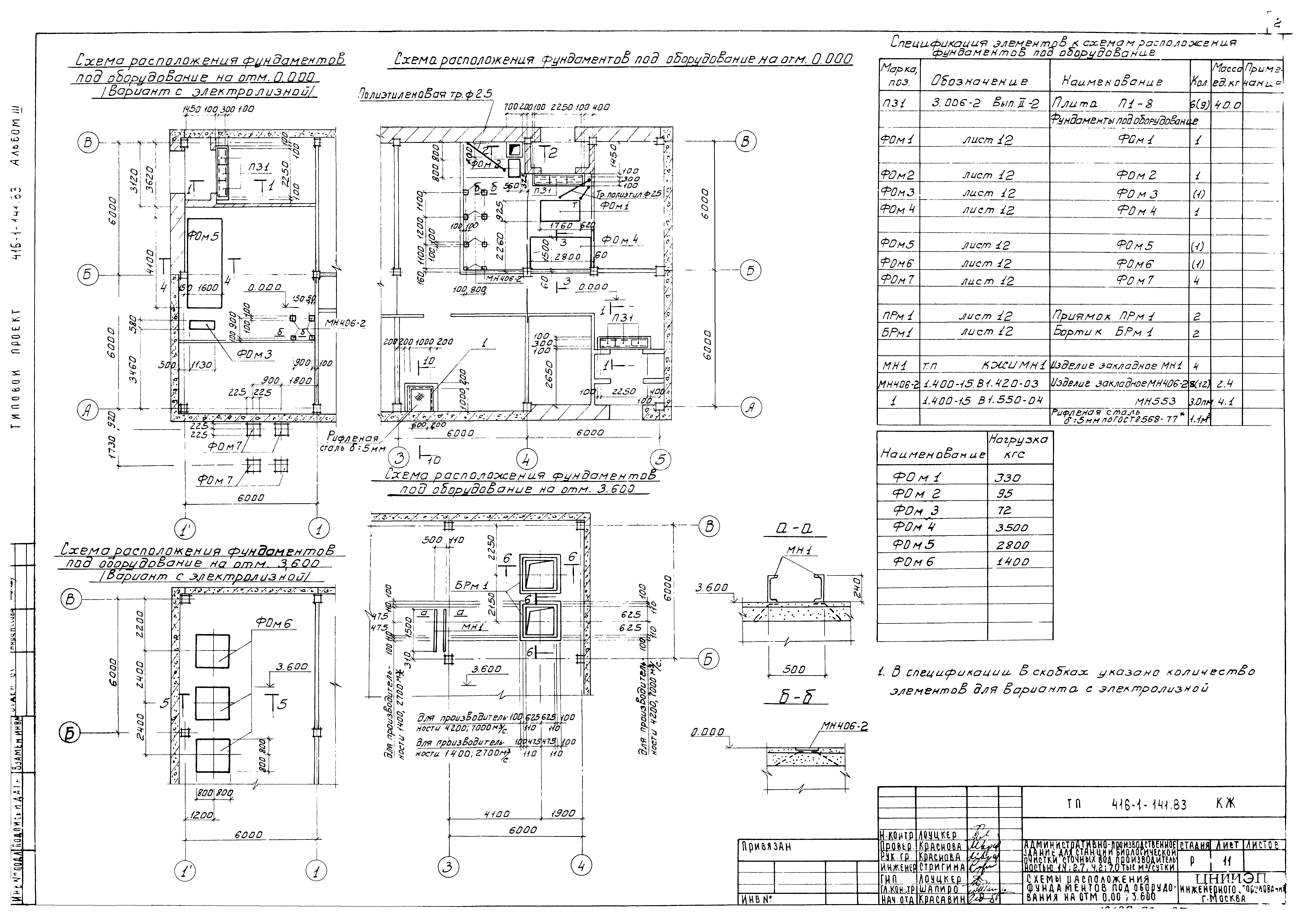
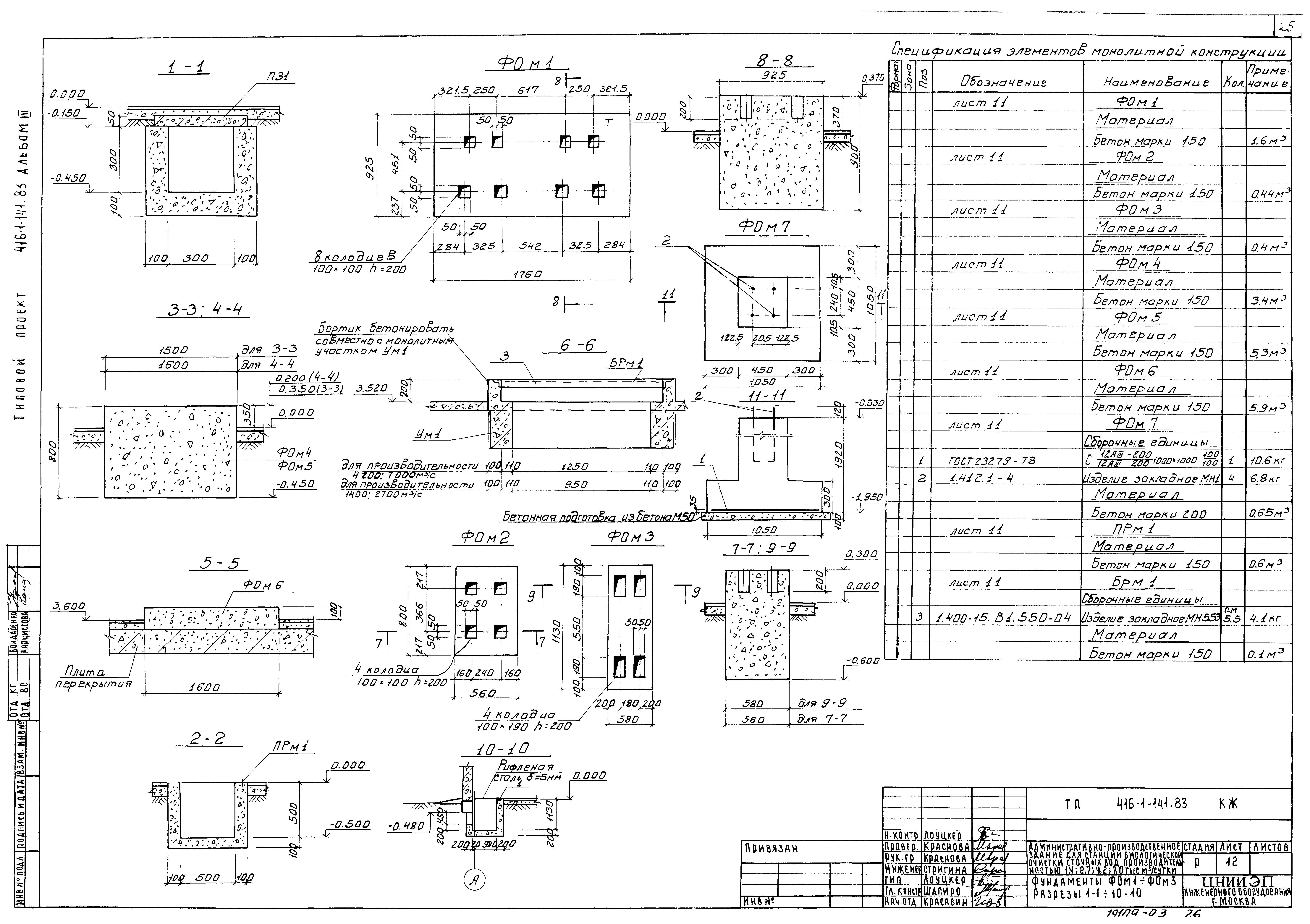
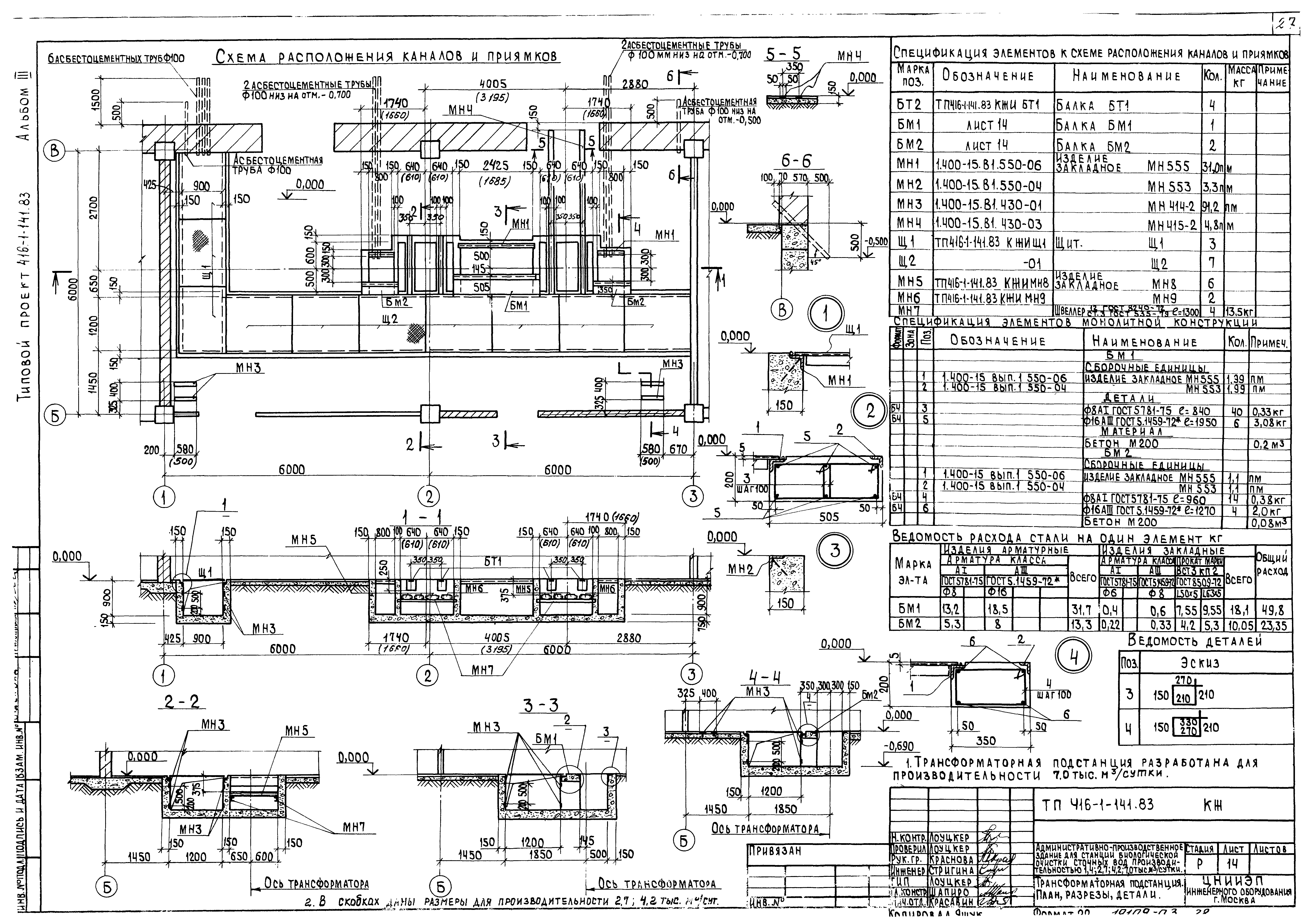
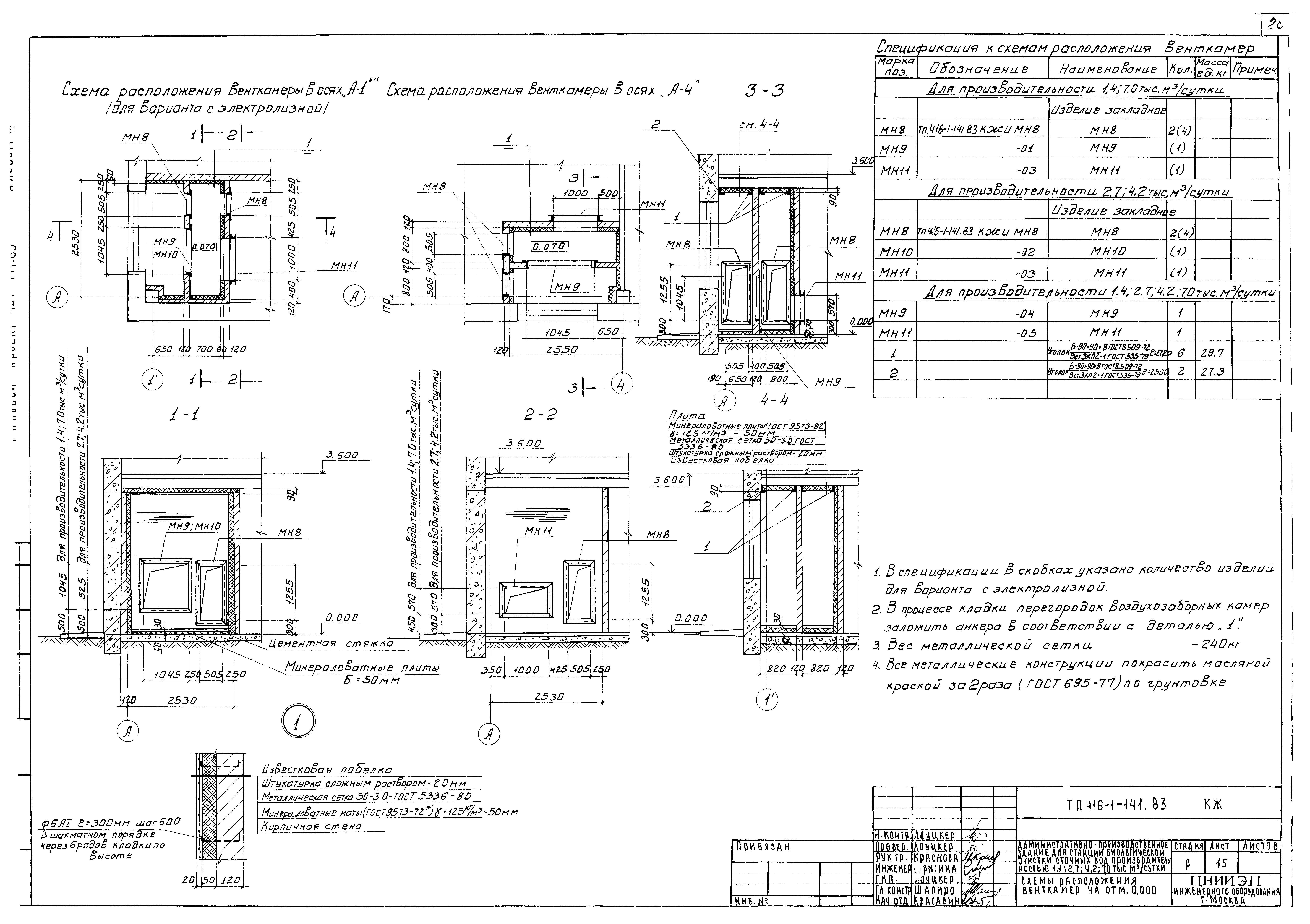
| Оглавление: | Содержание альбома Архитектурно-строительная часть Общие данные Схема компоновки зданий План на отм. 0.000 и фрагмент плана на отм. 0.000 (вариант с электролизной) План на отм. 3.600 и фрагмент плана на отм. 0.000 (вариант с электролизной) Разрезы 1-1, 2-2, 3-3, 4-4 Фасады 1` - 6; 6 - 1`; 1 - 6; 6 - 1; В - А; А - В Фрагменты плана. Фасады 5 - 1; 5 - 1`; В - А Планы перегородок на отм. 0.000 и 3.600. Спецификация и ведомость перемычек План кровли, планы полов на отм. 0.000 и 3.600. Экспликация полов Ведомость отделки помещений Переходная галерея. План. Разрезы 1-1, 2-2. Фасады В - А; А - В Конструкции железобетонные Общие данные Схема расположения фундаментов и фундаментных балок в осях "1` - 5"; "А - Б". Узлы 1 - 4 Схема расположения фундаментов и фундаментных балок в осях "Г - Ж"; "З". Узлы 5 - 8 Фундамент Ф2, Ф4. Опалубочный чертеж и армирование Фундамент Ф3, Ф5. Опалубочный чертеж и армирование Схема расположения колонн и ригелей на отм. 3.600 и 7.200 Схема расположения плит перекрытия и покрытия Схемы расположения стеновых панелей Монолитные участки Ум1, Ум2. Опалубочный чертеж и армирование Схема расположения лестничной клетки в осях "Б - В", "5". Козырек Схемы расположения фундаментов под оборудование на отм. 0.000; 3.600 Фундаменты Фом1 - Фом3. Разрезы 1-1 - 10-10 Трансформаторная подстанция. План, разрезы, детали Схемы расположения венткамер на отм. 0.000 Переходная галерея. Схемы расположения плит покрытия, перекрытия, стеновых панелей Конструкции металлические Общие данные Техническая спецификация металла Техническая спецификация металла на типовые конструкции Ведомость металлоконструкций по видам профилей Схема расположения монорельса и пути кран-балки. Разрезы, детали Схемы расположения металлических площадок и лестниц. Разрезы 1-1 - 5-5. Узел 9 Схемы расположения площадок в осях "Б - 4" на отм. 3.600 Переходная галерея. Схема расположения стоек и балок монорельса. Разрезы, узлы |
| Разработан: | ЦНИИЭП |
| Утверждён: | 14.02.1983 Госгражданстрой (Gosgrazhdanstroy 49) |


































