Скачать Типовой проект 903-1-198 Альбом 8.7. Водоподготовительная установка. Электротехническая часть. Задание заводу-изготовителю на щиты управления крупноблочныеДата актуализации: 01.01.2021
|
| Обозначение: | Типовой проект 903-1-198 |
| Обозначение англ: | 903-1-198 |
| Статус: | действует |
| Название рус.: | Альбом 8.7. Водоподготовительная установка. Электротехническая часть. Задание заводу-изготовителю на щиты управления крупноблочные |
| Дата добавления в базу: | 01.10.2014 |
| Дата актуализации: | 01.01.2021 |
| Дата введения: | 01.01.1983 |
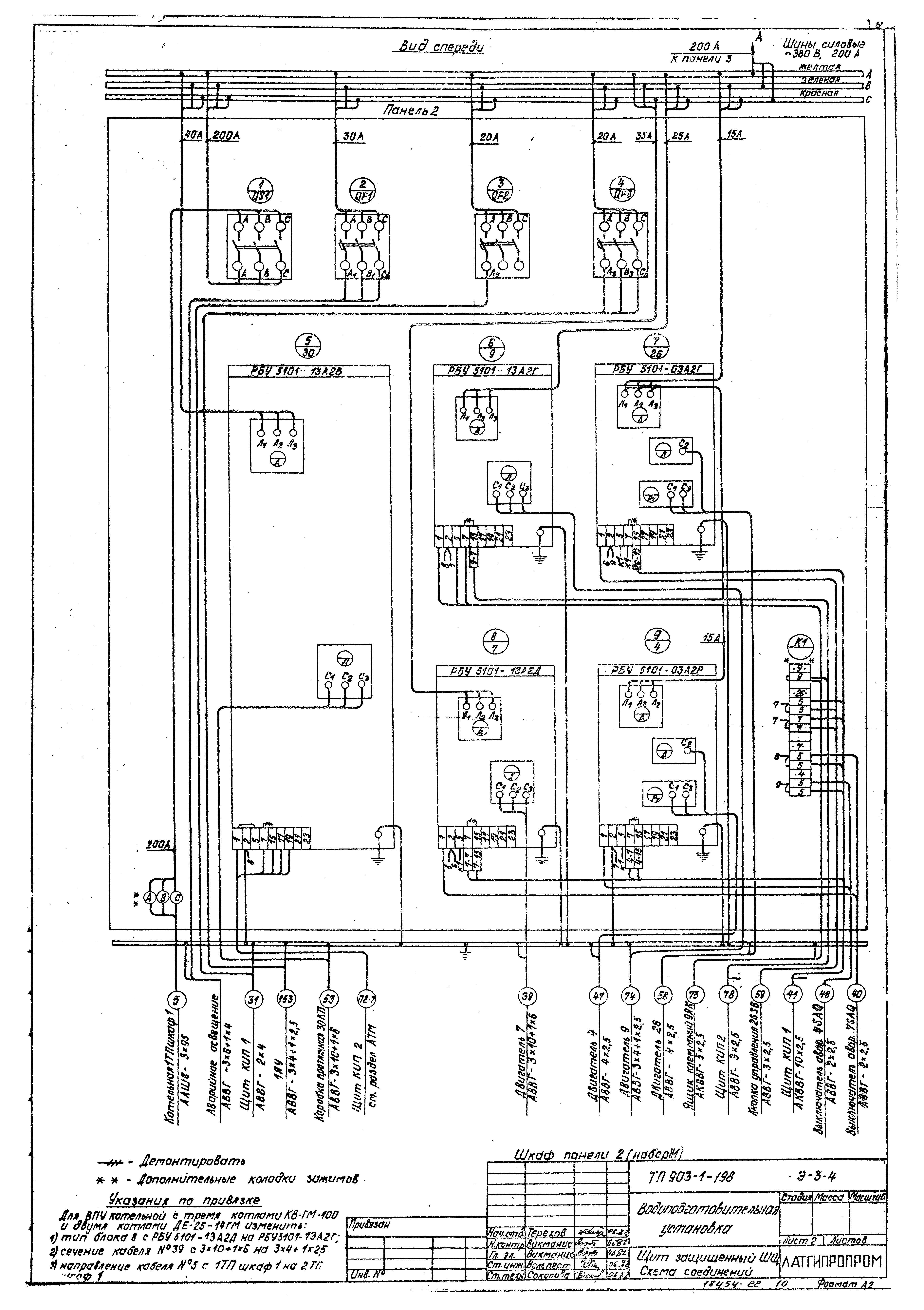
| Оглавление: | Перечень комплектных устройств Щит защищенный ШЩ. Технические данные аппаратов Щит защищенный ШЩ. Общий вид Щит защищенный ШЩ. Перечень надписей Щит защищенный ШЩ. Схема соединений |
| Разработан: | Латгипропром |
| Утверждён: | 14.05.1982 Латгипропром (101А) |












