Скачать Типовой проект А-IV-600-476.90 Альбом 2. Архитектурно-строительные решенияДата актуализации: 01.01.2021
|
| Обозначение: | Типовой проект А-IV-600-476.90 |
| Обозначение англ: | А-IV-600-476.90 |
| Статус: | не определен законодательством |
| Название рус.: | Альбом 2. Архитектурно-строительные решения |
| Дата добавления в базу: | 01.10.2014 |
| Дата актуализации: | 01.01.2021 |
| Дата введения: | 24.08.1990 |
| Дата окончания срока действия: | 30.06.2003 |
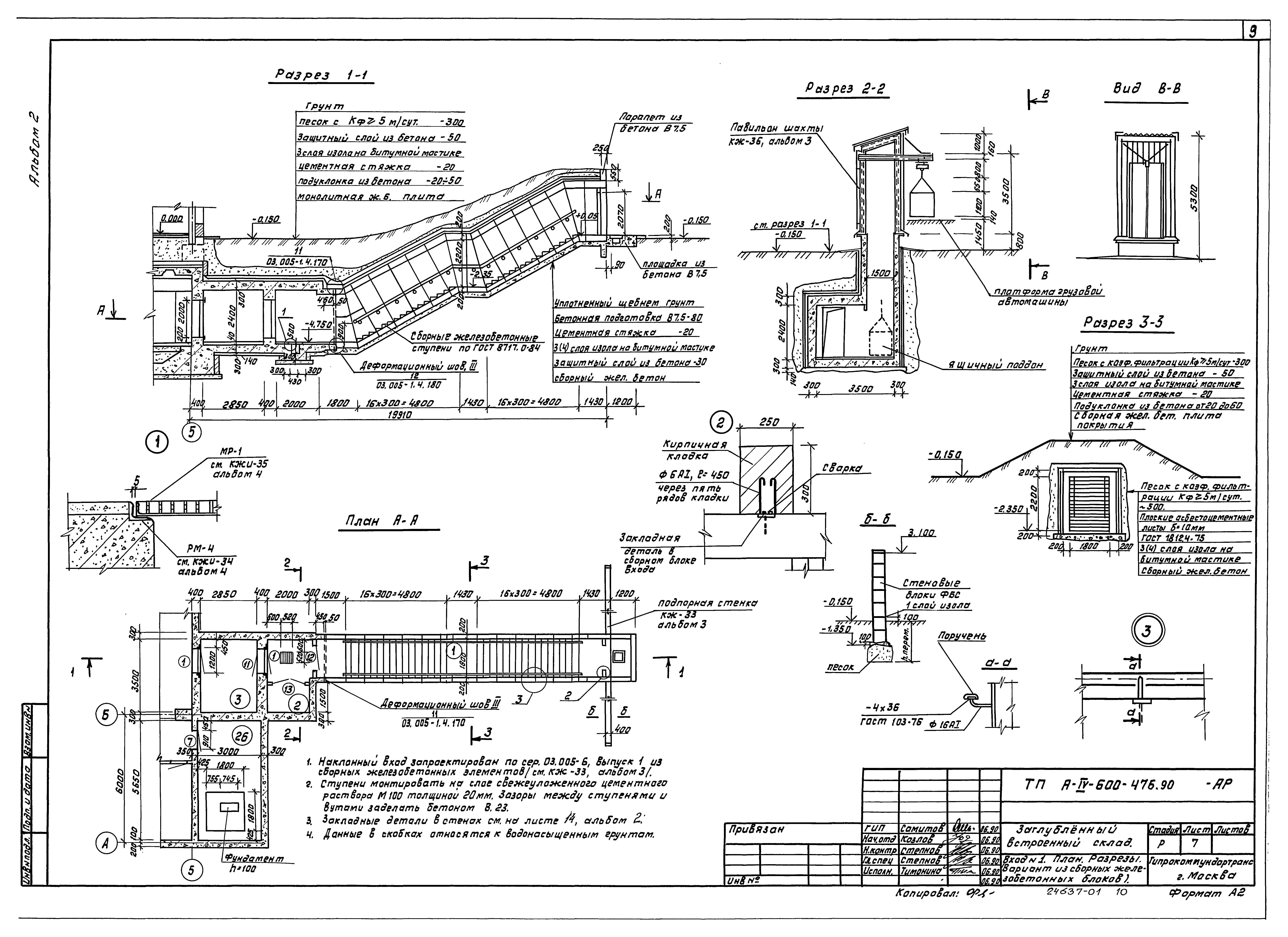
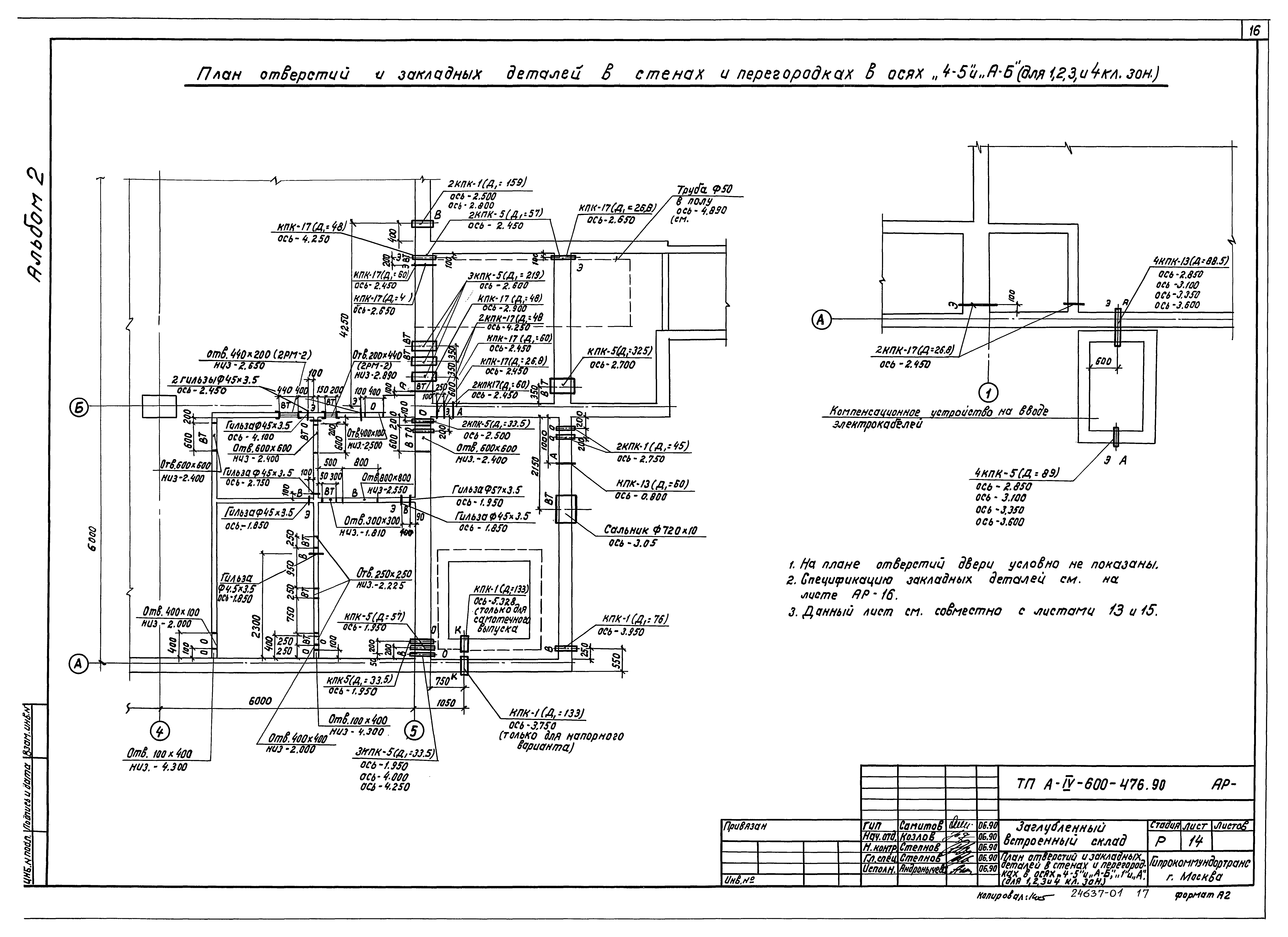
| Оглавление: | Содержание альбома Общие данные План каналов в помещении ДЭС и щитовой План сооружения на отм. - 4.750 Экспликация помещений. Спецификация элементов заполнения проемов. Схема генплана Разрезы 1-1, 2-2. План кровли Вход №1. План. Разрезы (вариант из монолитного железобетона) Вход №1. План. Разрезы (вариант из сборных железобетонных блоков) Вход №2. План. Разрезы План полов. Экспликация полов. Схема герметизации сооружения План дренажа. Продольный профиль дренажа Фекальный резервуар. План, разрезы План кабин санузлов. Вид по "А". Разрезы и узлы План отверстий и закладных деталей в стенах и перегородках в осях "1 - 5" и "В - Г" (для 1 и 2 климатических зон) План отверстий и закладных деталей в стенах и перегородках в осях "4 - 5" и "А - Б" (для 1, 2, 3 и 4 климатических зон) План отверстий и закладных деталей в стенах и перегородках в осях "1 - 3" и "В - Г" (для 3 и 4 климатических зон) Спецификация закладных деталей в стенах и перегородках Оголовок №1. План, разрезы. Компенсационное устройство на вводе электрокабелей. План. Разрезы Дверь павильона шахты подъемника. Спецификация элементов Схема установки нар. Технологическая схема склада Дверь Д-1. Спецификация материалов |
| Разработан: | Гипрокоммундортранс |
| Утверждён: | 17.08.1990 НГО СССР (62) |






















