Скачать Типовой проект 211-1-457.88 Альбом 4. Изделия заводского изготовленияДата актуализации: 01.01.2021
|
| Обозначение: | Типовой проект 211-1-457.88 |
| Обозначение англ: | 211-1-457.88 |
| Статус: | не определен законодательством |
| Название рус.: | Альбом 4. Изделия заводского изготовления |
| Дата добавления в базу: | 01.10.2014 |
| Дата актуализации: | 01.01.2021 |
| Дата введения: | 27.02.1986 |
| Дата окончания срока действия: | 30.06.2003 |
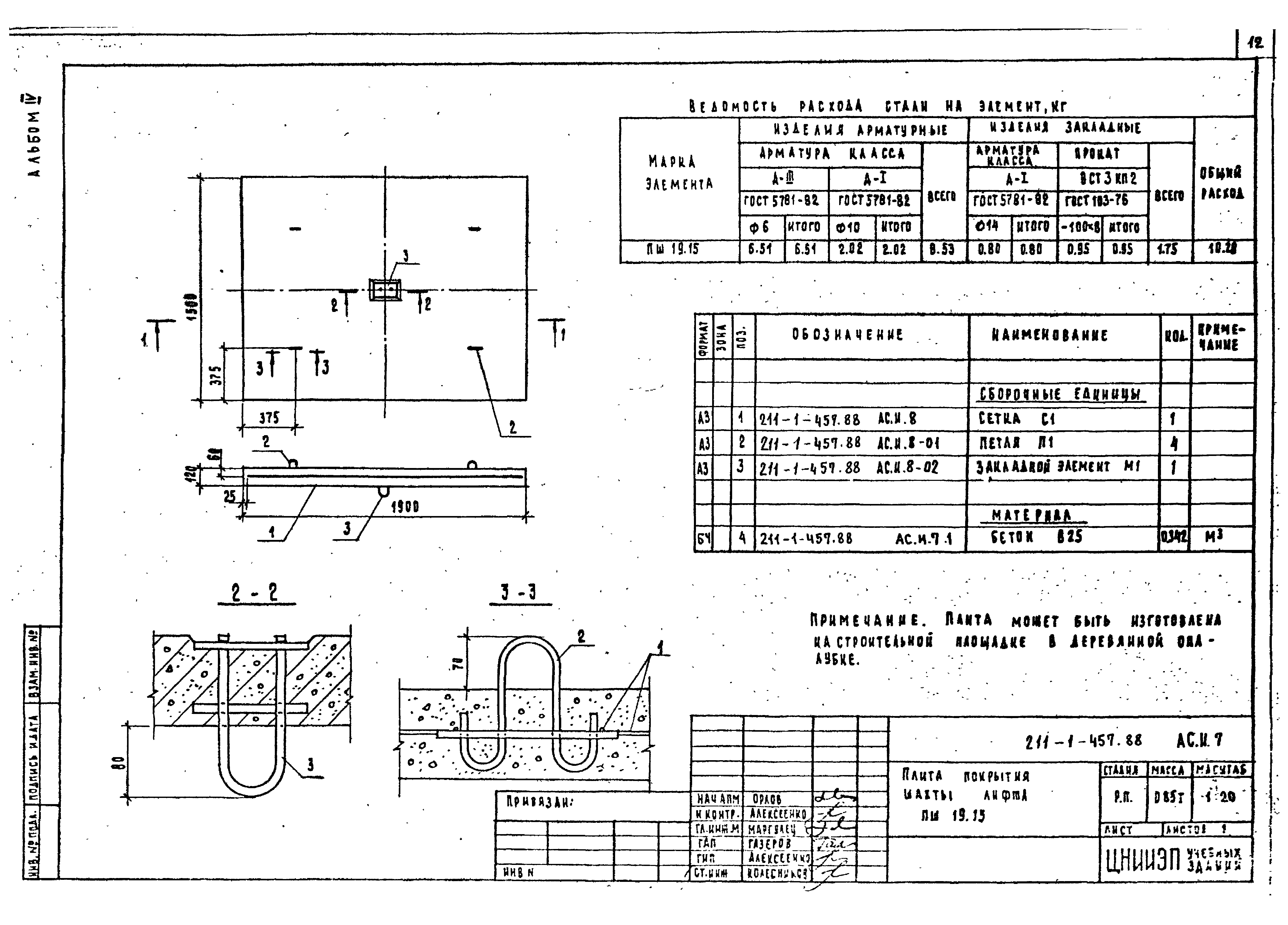
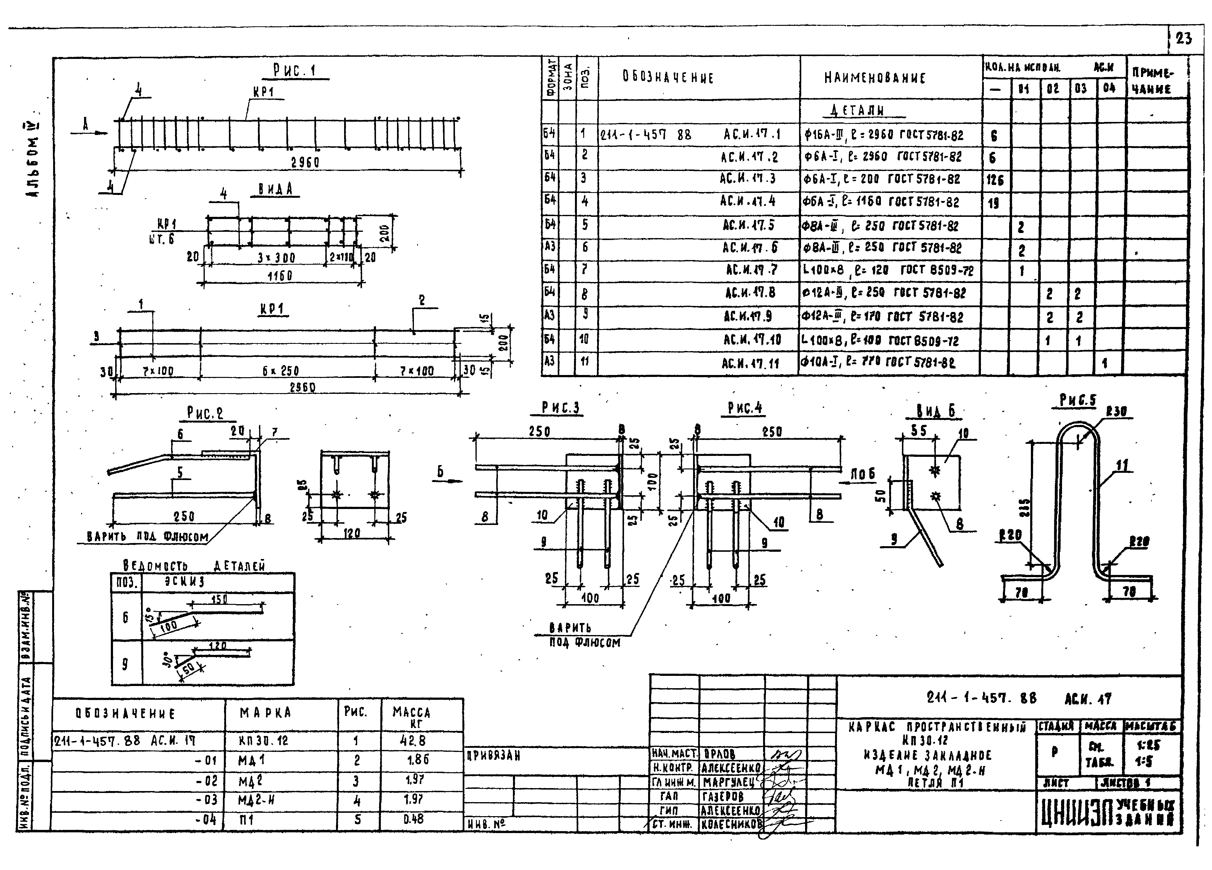
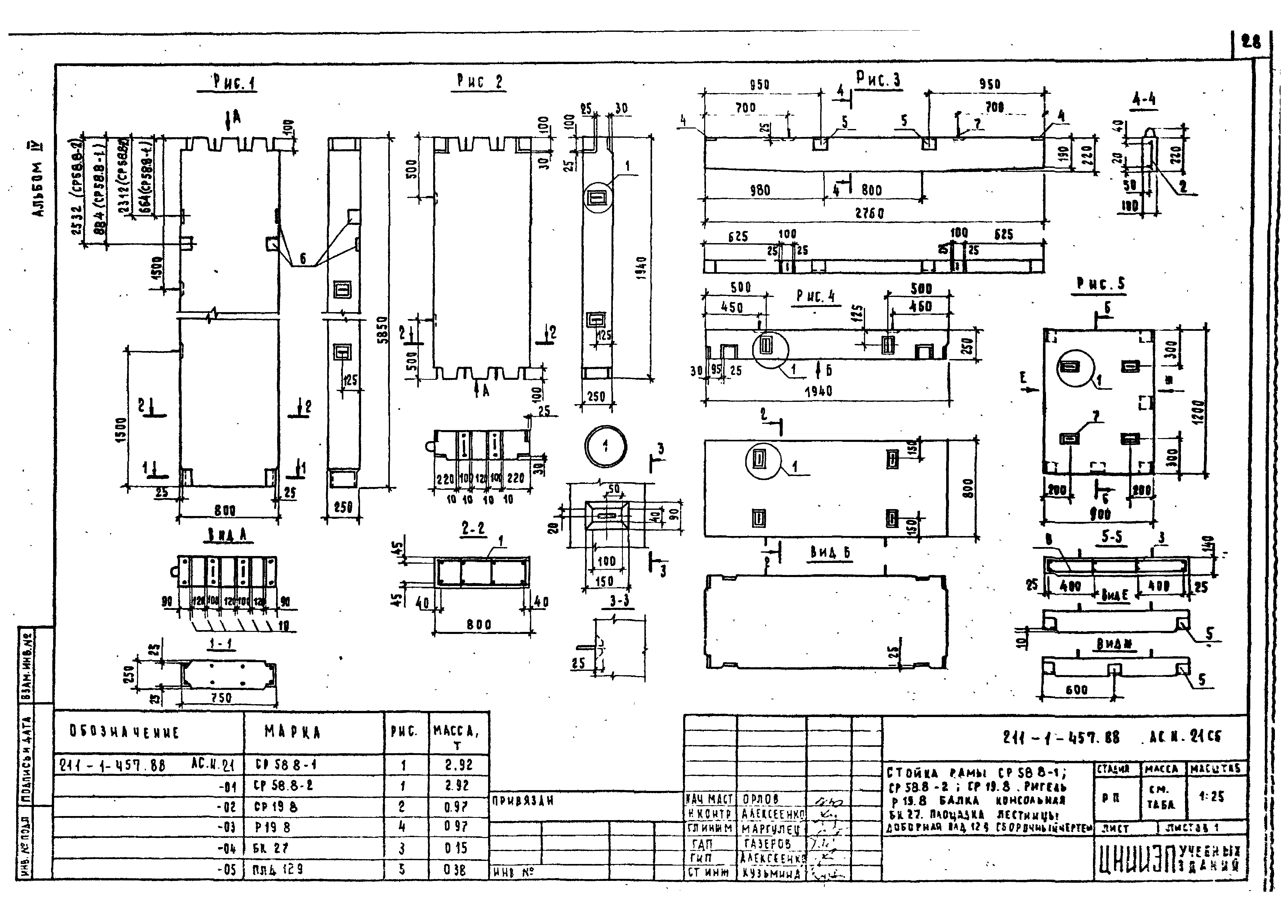
| Оглавление: | Содержание Технические условия Оголовок О-45-1; О-25-1 Каркас плоский КР1, КР2 Сетка С1 Блоки шахт лифтов БШЛ10гр-33-1м; БШЛ10гр-33-3м Блоки шахт лифтов БШЛ10гр-33-1м; БШЛ10гр-33-3м. Сборочный чертеж Пространственные каркасы ПК1-м; ПК3-м Арматурные изделия для пространственных каркасов ПК1-м; ПК3-м Арматурные изделия для пространственных каркасов ПК1-м; ПК3-м. Сборочный чертеж Плита покрытия шахты лифта ПШ19,15 Сетка С. Петля П1. Закладной элемент М1 Экран санузла ИЭС-1 Панель стеновая внутренняя ПВП29.30.9-7т Каркас пространственный КПП29.30.9-7 Каркасы КР2, КР3 Дверь служебная ИДС21-9ГУ Дверь служебная ИДС21-9ГУ. Сборочный чертеж Чертеж заказ на изготовление лифта Площадка лестницы доборная ПЛД30.12 Марш лестничный ЛМП60.11.17-5-1 Каркас пространственный КП30.12. Изделие закладное МД1, МД2, МД2-и. Петля П1 Марш лестничный ЛМ43.9.17 Марш лестничный ЛМ31.9.17 Каркас плоский КР1 - КР4. Сетка С1 Стойка рамы СР58.8-1; СР58.8-2; СР19.8. Ригель Р19.8. Балка консольная БК27. Площадка лестницы доборная ПЛД12.9 Стойка рамы СР58.8-1; СР58.8-2; СР19.8. Ригель Р19.8. Балка консольная БК27. Площадка лестницы доборная ПЛД12.9. Сборочный чертеж Каркас пространственный КП58.8; КП19.8-1; КП19.8-2 Каркас плоский КР1 - КР5 Установка столярных изделий в наружных стеновых панелях (при t наружного воздуха минус 20 градусов Цельсия) Установка столярных изделий в наружных стеновых панелях (при t наружного воздуха минус 30, минус 40 градусов Цельсия) Плита перекрытия ПР72.30-6АтVт. Пояснительная записка Плита перекрытия ПР72.30-6АтVт Плита перекрытия ПР72.30-6АтVт. Каркасы пространственные ПК1, ПК2 Плита перекрытия ПР72.30-6АтVт. Изделия арматурные плоские Плита перекрытия ПР72.30-6АтVт-1 - ПР72.30-6АтVт-4 Плита перекрытия ПР72.30-6АтVт-1 - ПР72.30-6АтVт-4. Сборочный чертеж Плита перекрытия ПР72.15-6АтVт-4 - ПР72.15-6АтVт-7 |
| Разработан: | ЦНИИЭП учебных зданий |
| Утверждён: | 27.02.1986 Госгражданстрой (Gosgrazhdanstroy 65) |
| Издан: | ЦИТП Госстроя СССР (CITP, Gosstroy (USSR) 1988 г. ) |










































