Скачать Типовой проект 223-1-419.84 Альбом VII. Приспособление здания школы под лечебное учреждениеДата актуализации: 01.01.2021
|
| Обозначение: | Типовой проект 223-1-419.84 |
| Обозначение англ: | 223-1-419.84 |
| Статус: | не определен законодательством |
| Название рус.: | Альбом VII. Приспособление здания школы под лечебное учреждение |
| Дата добавления в базу: | 01.10.2014 |
| Дата актуализации: | 01.01.2021 |
| Дата введения: | 24.01.1985 |
| Дата окончания срока действия: | 30.06.2003 |
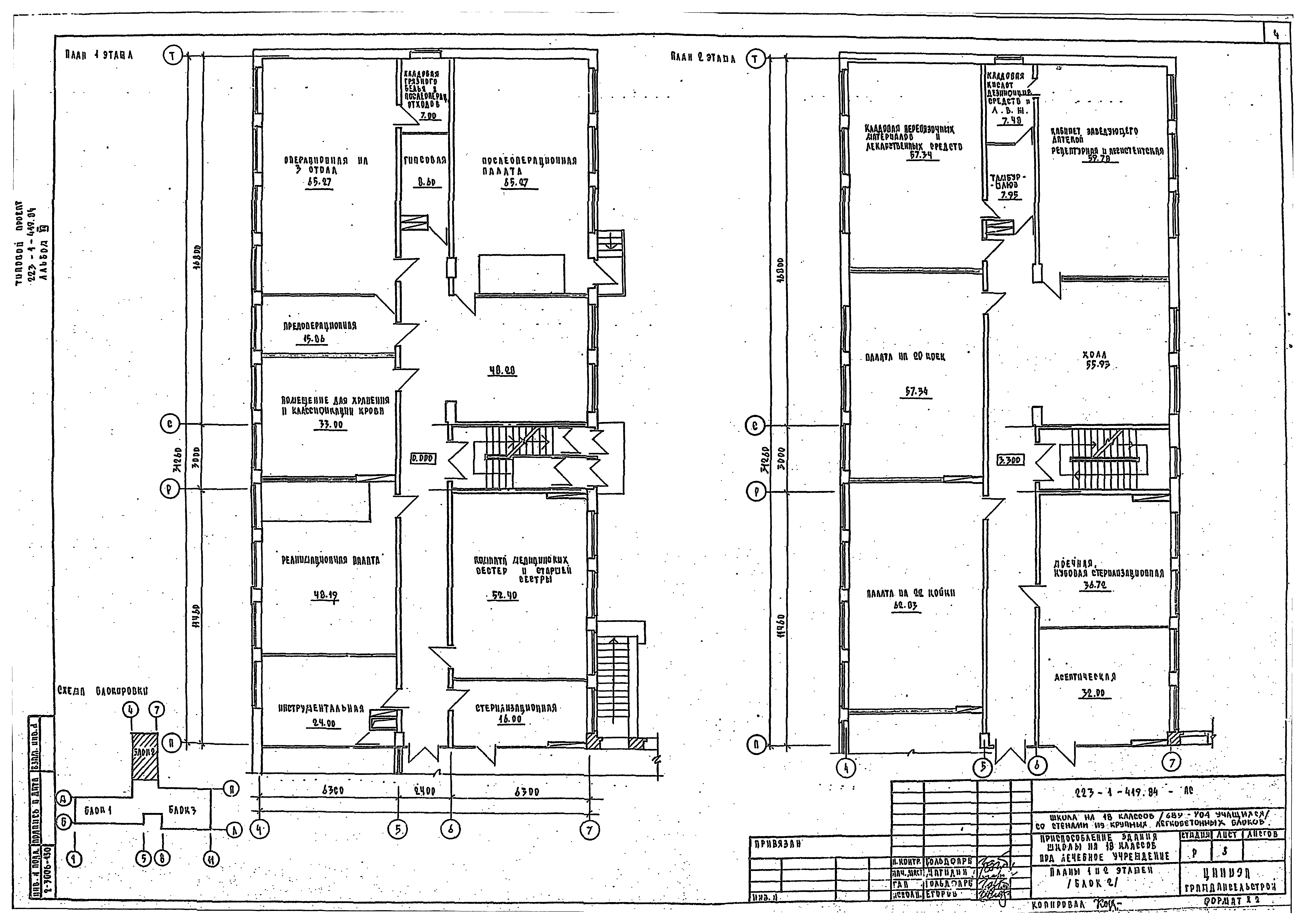
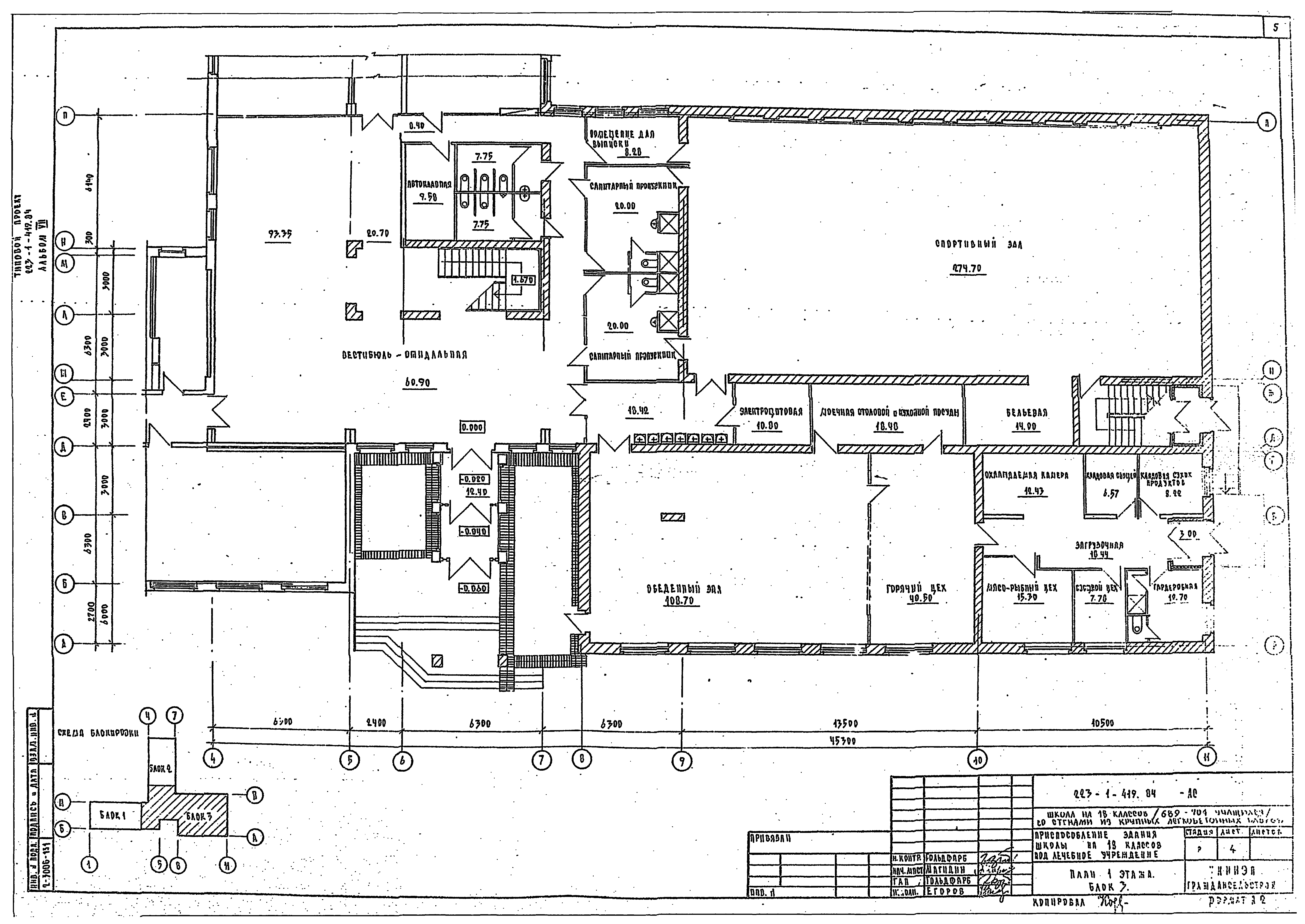
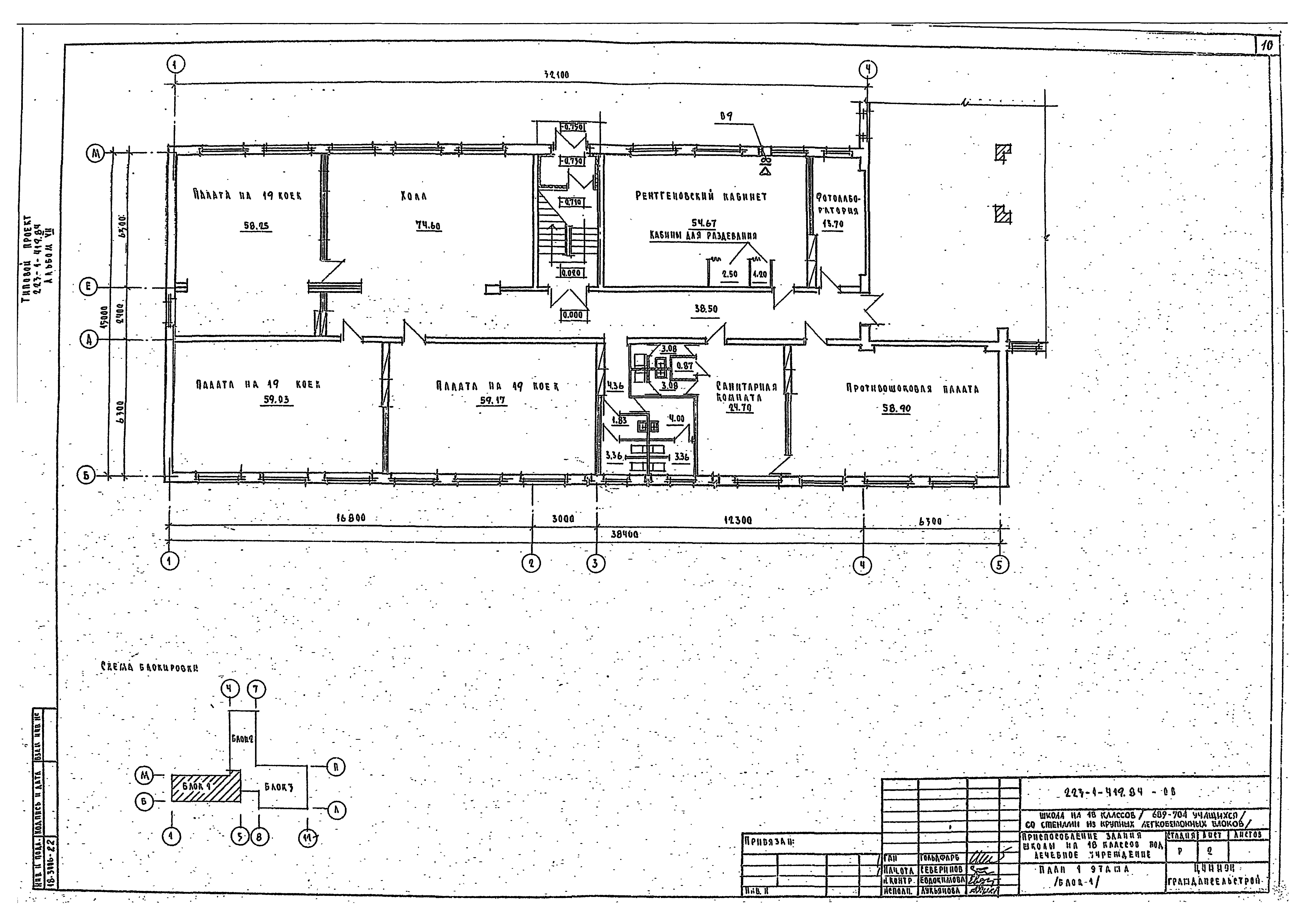
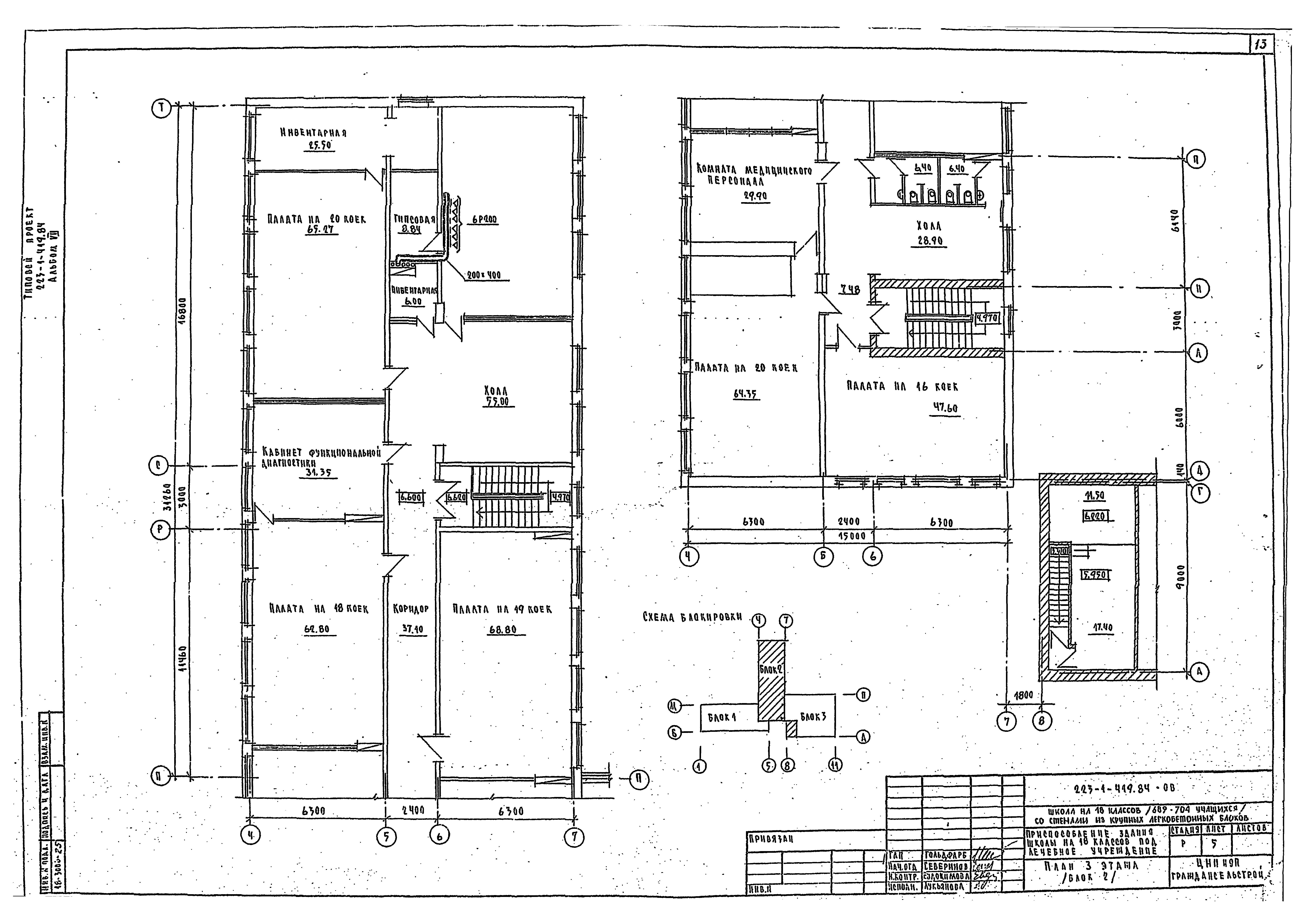
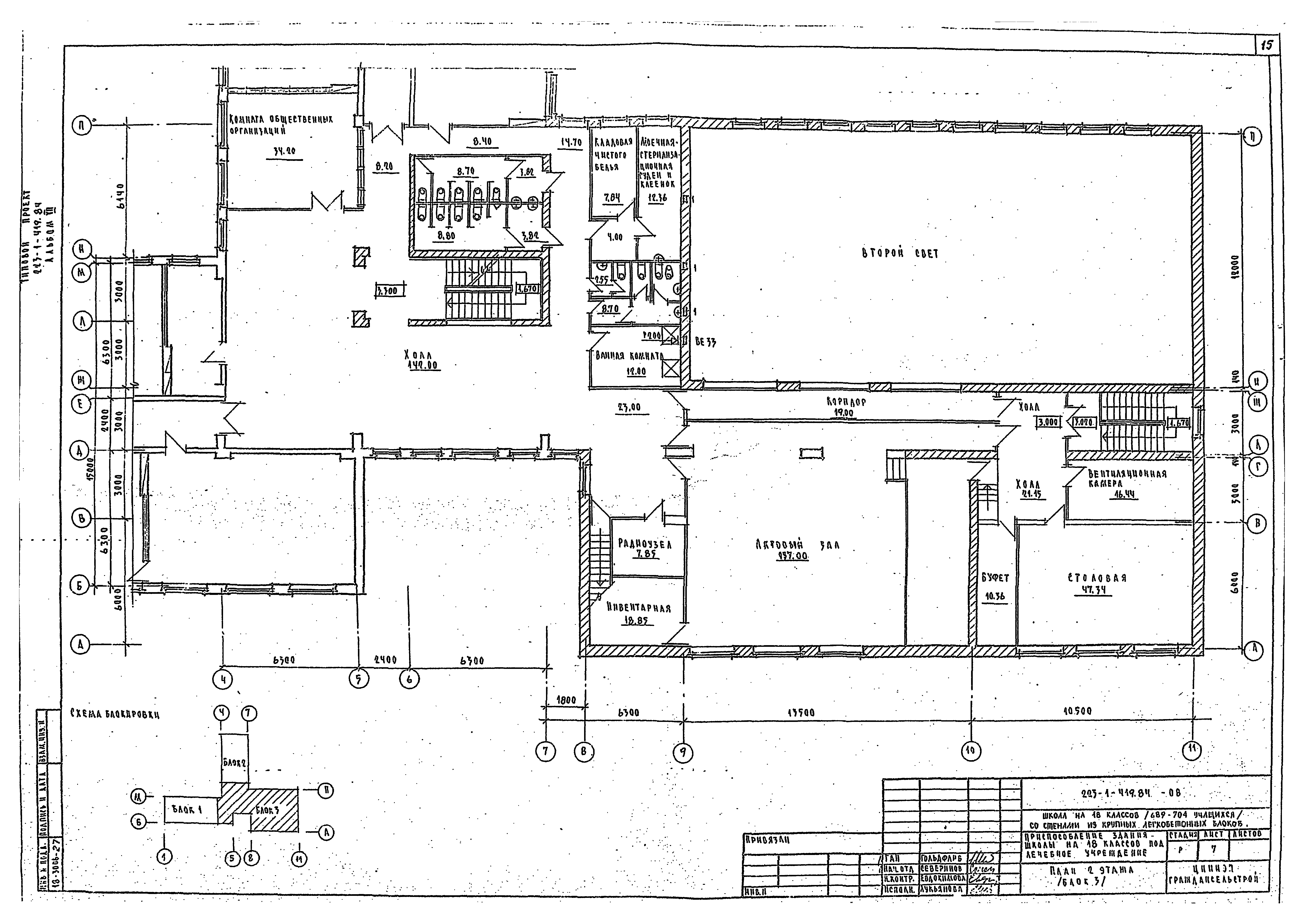
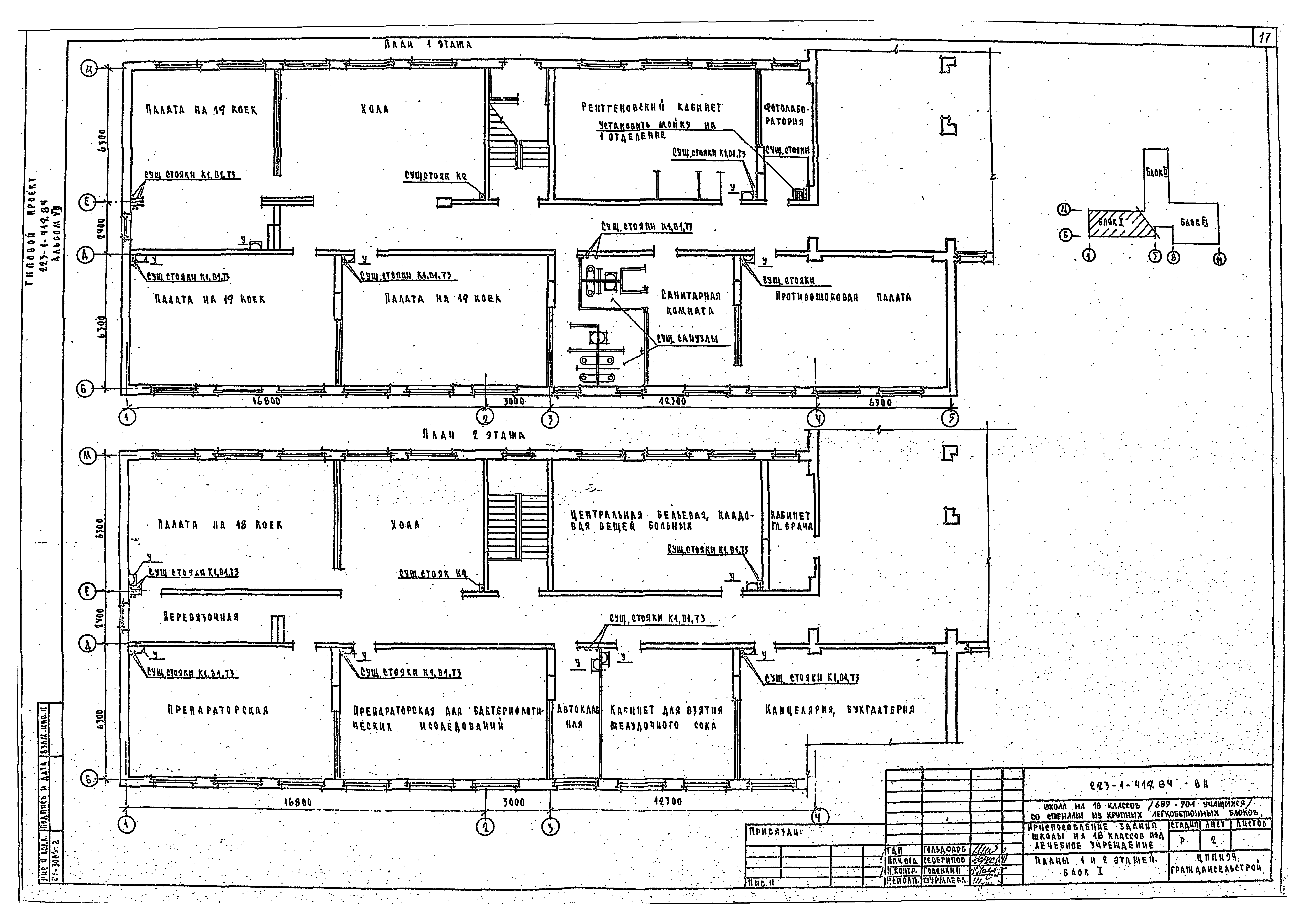
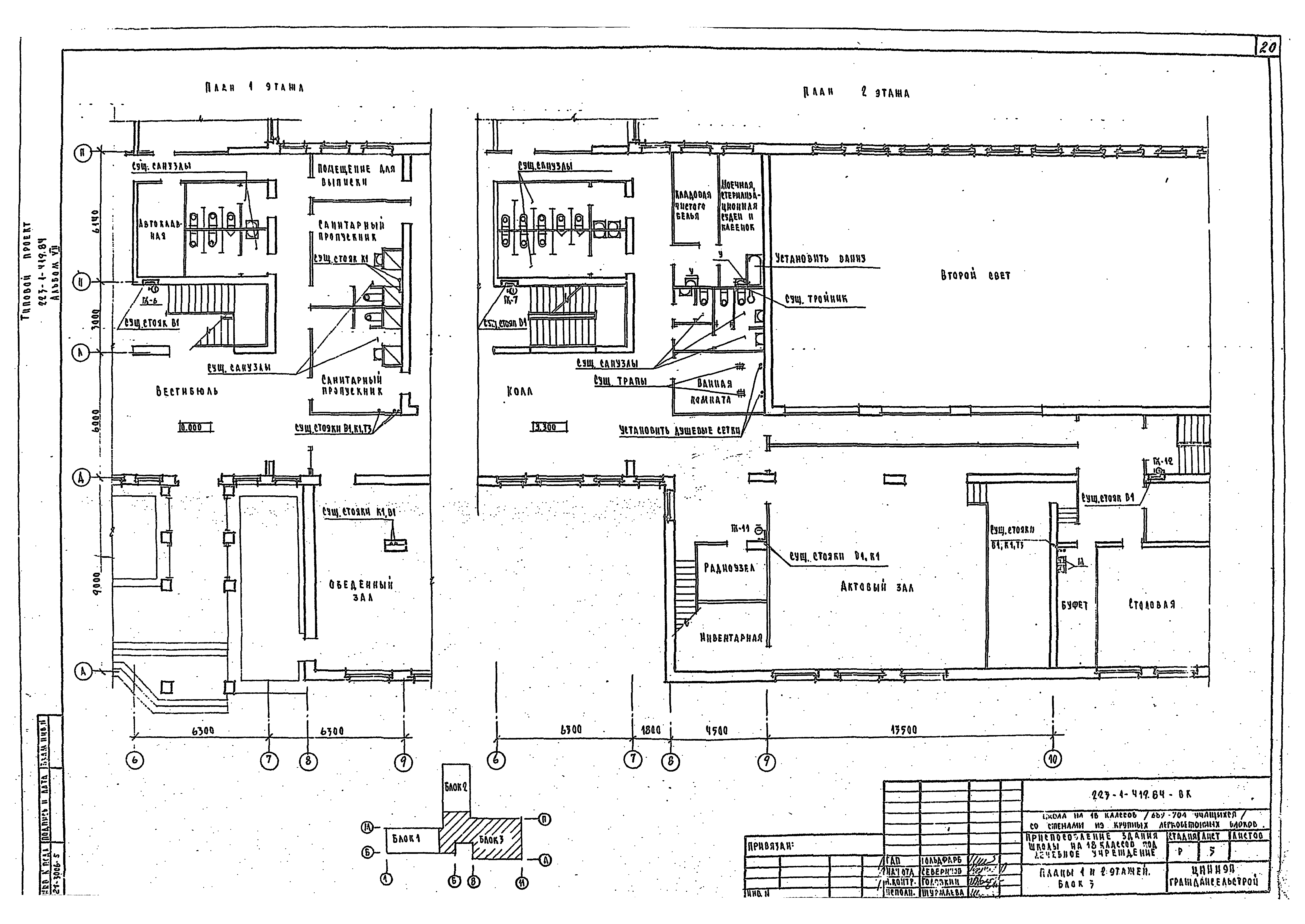
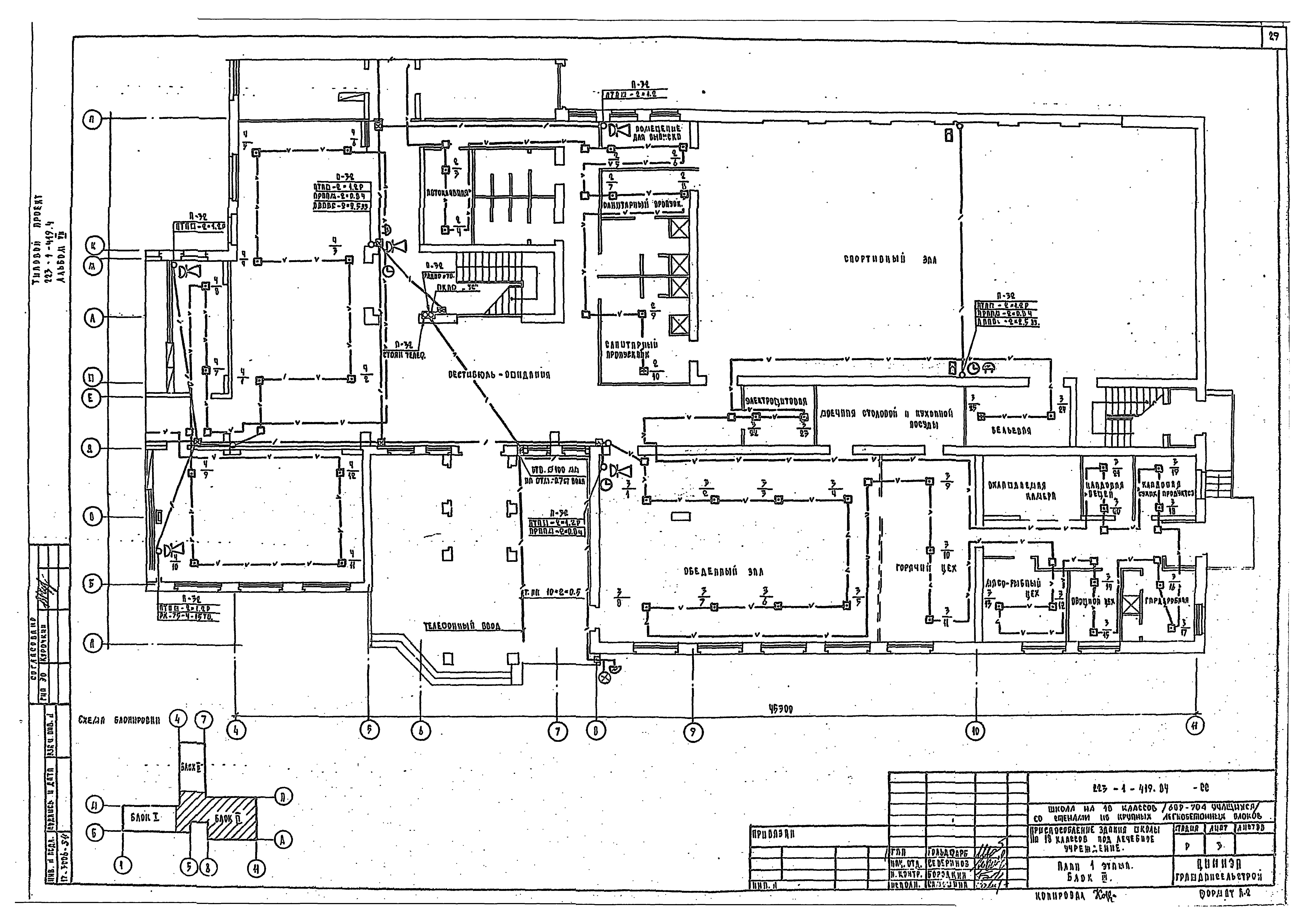
| Оглавление: | Архитектурно-строительные чертежи Общие данные План 1 этажа. Блок I План 1 и 2 этажей. Блок II План 1 этажа. Блок III План 2 этажа. Блок I План 2 этажа. Блок III План 3 этажа. Блок II Отопление и вентиляция Общие данные План 1 этажа (блок 1) План 2 этажа (блок 1) План 1 и 2 этажей (блок 2) План 3 этажа (блок 2) План 1 этажа (блок 3) План 2 этажа (блок 3) Водопровод и канализация Общие данные План 1 и 2 этажей. Блок I План 1 и 2 этажей. Блок II План 3 этажа. Блок II План 1 и 2 этажей. Блок III Электрооборудование Общие указания План осветительных и силовых сетей 1 этажа (блок 1) План осветительных сетей 2 этажа (блок 1) План осветительных и силовых сетей 1 и 2 этажей (блок 2) План осветительных и силовых сетей 3 этажа (блок 2) План осветительных сетей 2 этажа (блок 3) Связь и сигнализация Общие данные Схема расположения устройств связи (палатная сигнализация) План 1 этажа. Блок III План 1 и 2 этажей. Блок II План 1 этажа. Блок I План 2 этажа. Блок III План 2 этажа. Блок I План 3 этажа. Блок II |
| Разработан: | ЦНИИЭП граждансельстрой |
| Утверждён: | 19.08.1983 Госгражданстрой (Gosgrazhdanstroy 244) |


































