Скачать Типовой проект 262-12-151 Альбом 0. Материалы для привязки. Чертежи работ нулевого циклаДата актуализации: 01.01.2021
|
| Обозначение: | Типовой проект 262-12-151 |
| Обозначение англ: | 262-12-151 |
| Статус: | действует |
| Название рус.: | Альбом 0. Материалы для привязки. Чертежи работ нулевого цикла |
| Дата добавления в базу: | 01.10.2014 |
| Дата актуализации: | 01.01.2021 |
| Дата введения: | 30.11.1976 |
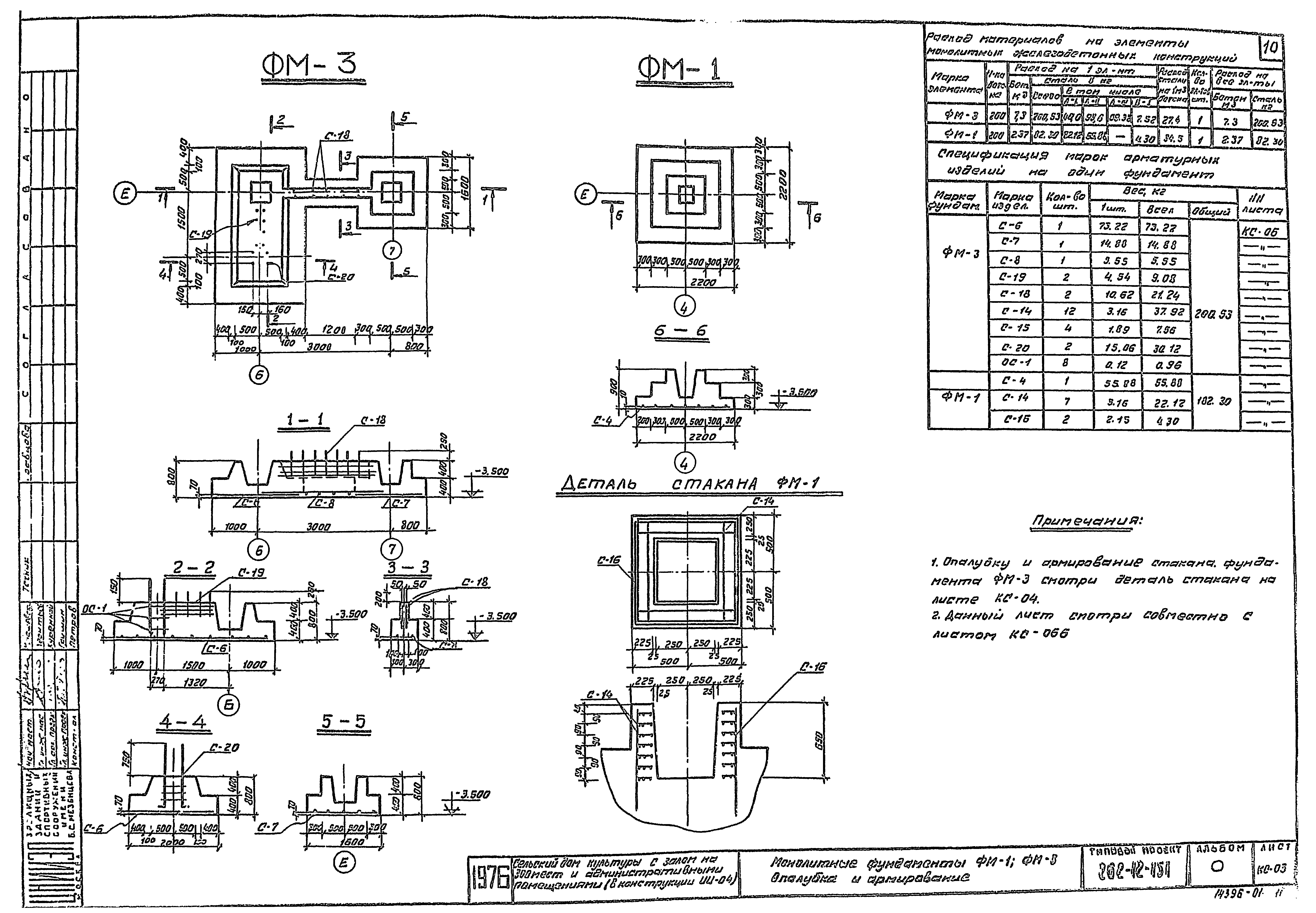
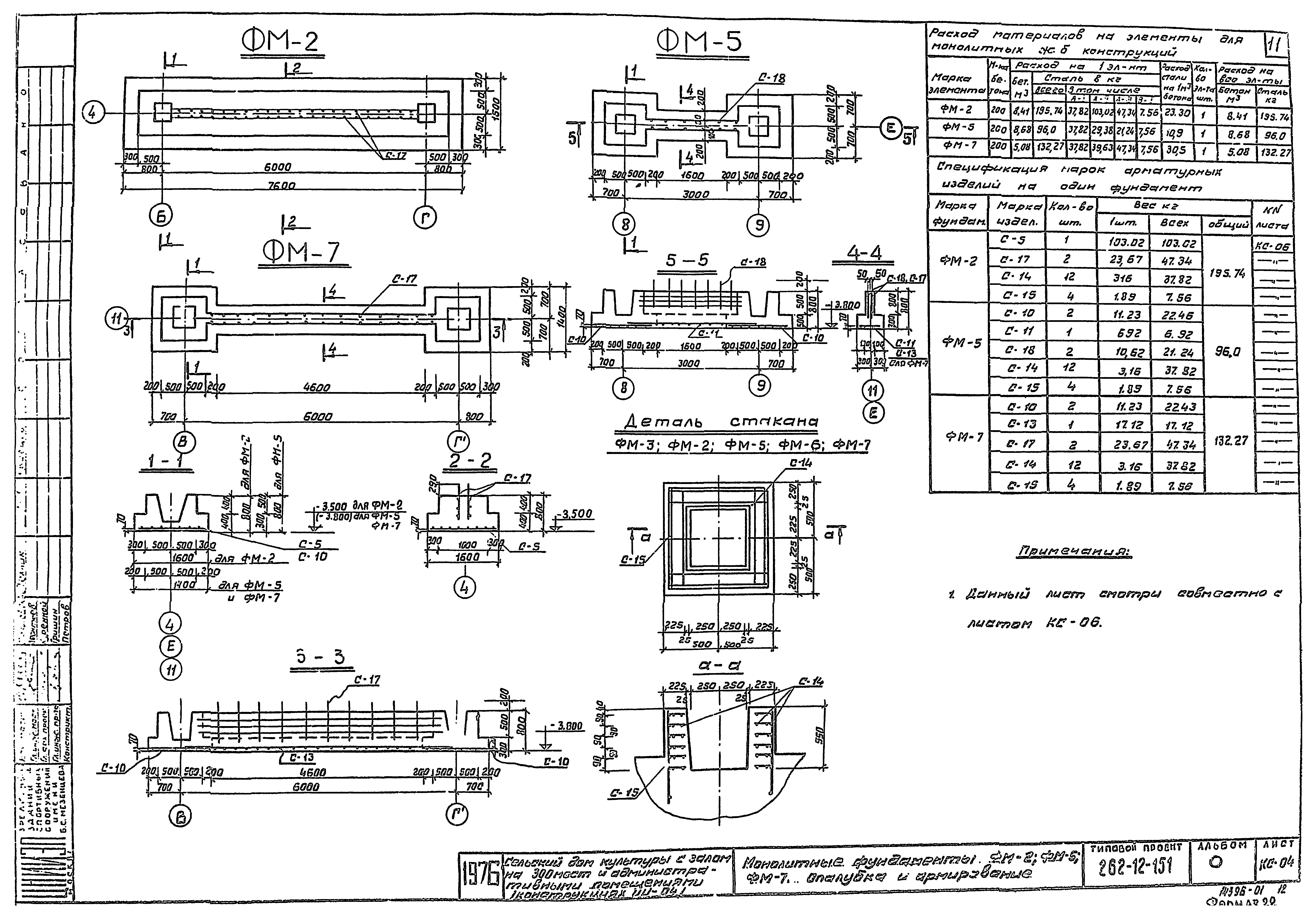
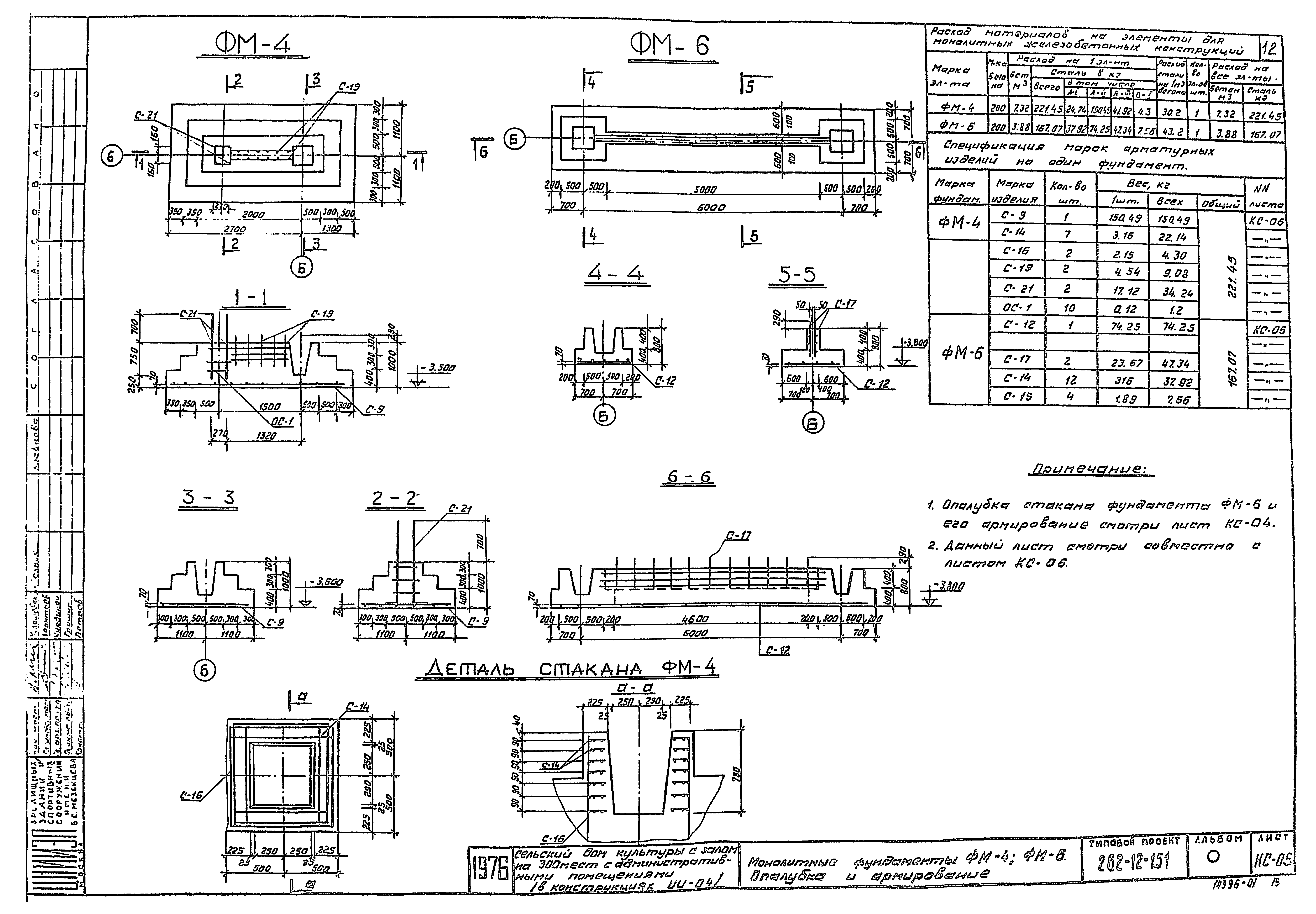
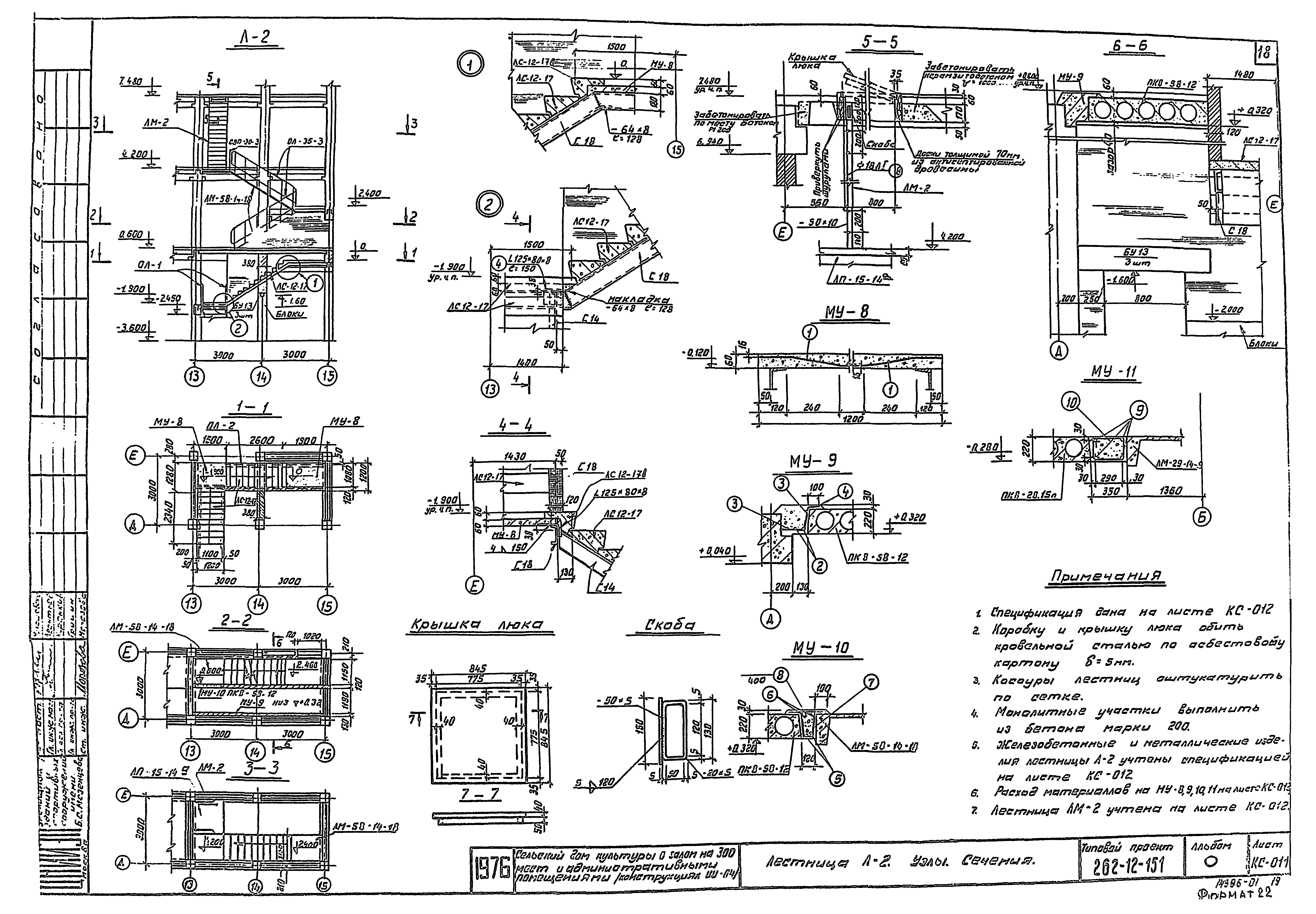
| Оглавление: | Содержание альбома Генеральный план, воздухозаборная шахта, технико-экономические показатели Сводная спецификация перегородок и столярных изделий План подвала в осях 1 - 6 и Б - Ж; 12 - 13 и ДЕ, спецификация столярки помещений подвала Крыльца Ведомость отделочных работ План фундаментов Схема нормативных нагрузок на фундаменты. Монолитные фундаменты Фм-8, Фм-9, Фм-10, Фм-11, Фм-12 Монолитные фундаменты Фм-1, Фм-3, опалубка и армирование Монолитные фундаменты Фм-2, Фм-5, Фм-7, опалубка и армирование Монолитные фундаменты Фм-4, Фм-6, опалубка и армирование Монолитные фундаменты. Арматурные изделия сетки С-4 - С-21 Развертки стен подвала по осям "А", "Б", "В", "Г", "Е", "Ж", "14", "15", план расположения стоек фахверка Развертки стен подвала по осям "1", "2", "6", "12", "Б", "Е" Сечения по стенам подвала. Узлы. Спецификации Монолитные железобетонные панели МП-1, 2, 3 Лестница Л-2. Узлы. Сечения Лестница Л-3. Узлы. Сечения. Спецификация План перекрытия на отм. 0.900; 0.960; 0.600 План подпольных каналов. План осей Разрезы и сечения подпольных каналов План подпольных каналов электрощитовой и регуляторной. Сечения. Спецификации Лестница Л-4. Приямки. Узлы. Сечения. Спецификации Козырек главного входа. Узлы. Сечения. Спецификации Конструкция шумоглушителя. План. Разрезы. Узлы и детали План канала воздухозаборной шахты. Воздухозаборная шахта Монолитные участки МУ-01 - МУ-04. Сечения Монолитный участок МУ-05. Сечения. План оркестровой ямы. Узлы. Сечения Монолитные участки МУ-06 - МУ-07. Сечения. Спецификация арматуры. Таблица расхода материалов на монолитные участки Сводная спецификация ниже отм. 0.000 |
| Разработан: | ЦНИИЭП зрелищных зданий и спортивных сооружений им. Б.С. Мезенцева |
| Утверждён: | 09.10.1976 Госгражданстрой (Gosgrazhdanstroy 6) |
































