Скачать Типовой проект 272-11-29.85 Альбом I. Архитектурно-строительные решения. Технология. Механизация. ВитражиДата актуализации: 01.01.2021
|
| Обозначение: | Типовой проект 272-11-29.85 |
| Обозначение англ: | 272-11-29.85 |
| Статус: | не определен законодательством |
| Название рус.: | Альбом I. Архитектурно-строительные решения. Технология. Механизация. Витражи |
| Дата добавления в базу: | 01.10.2014 |
| Дата актуализации: | 01.01.2021 |
| Дата введения: | 02.12.1985 |
| Дата окончания срока действия: | 30.06.2003 |
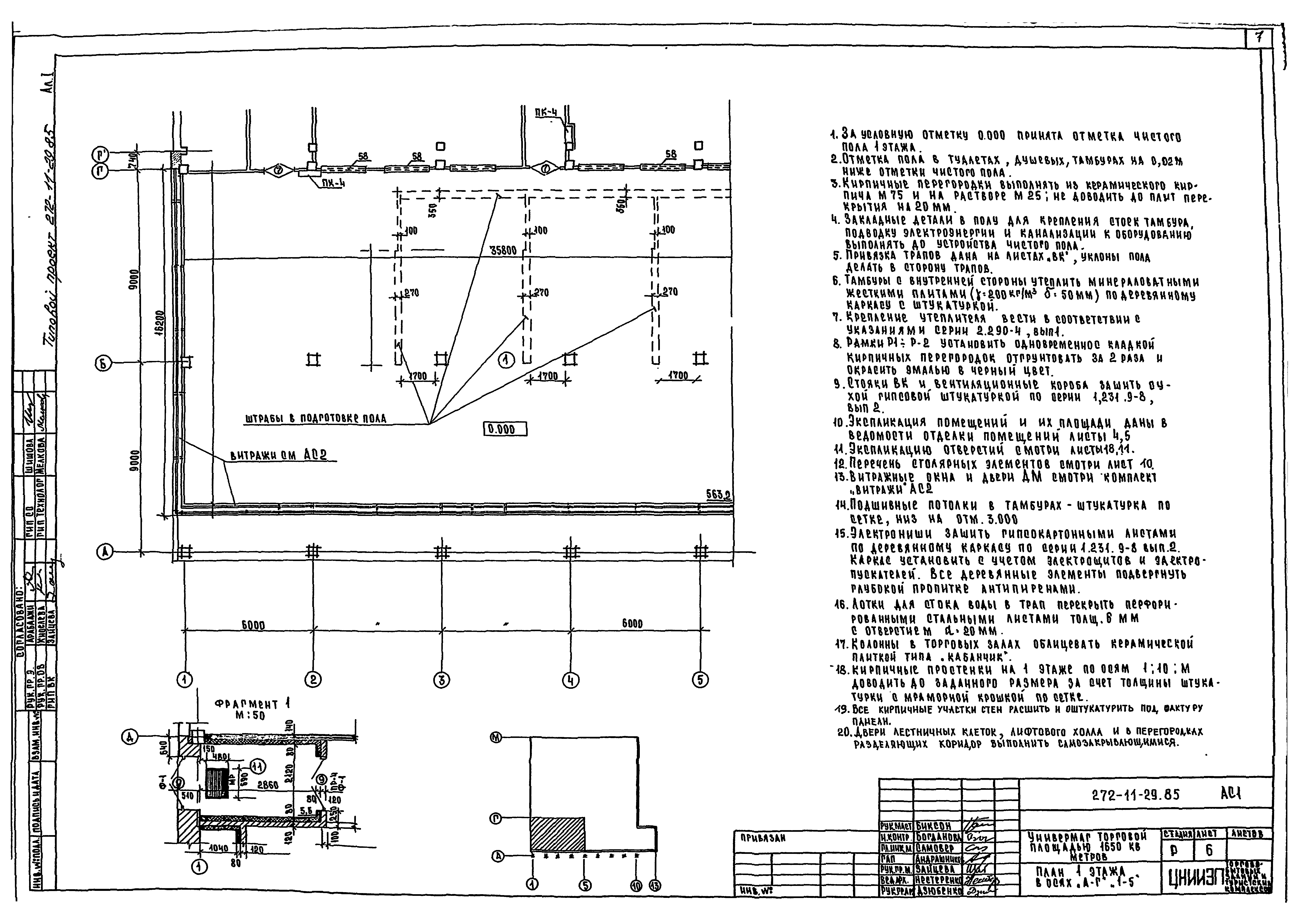
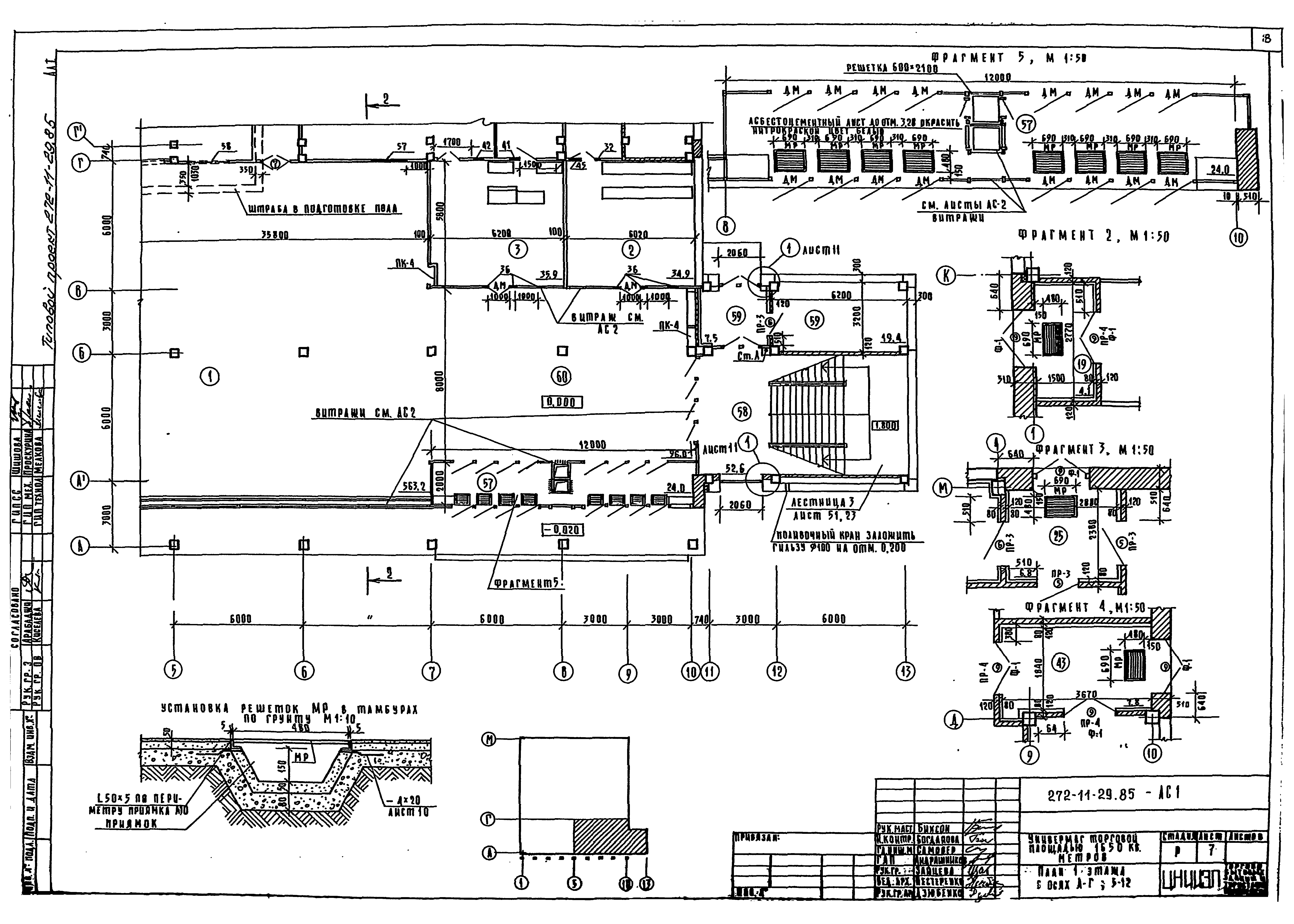
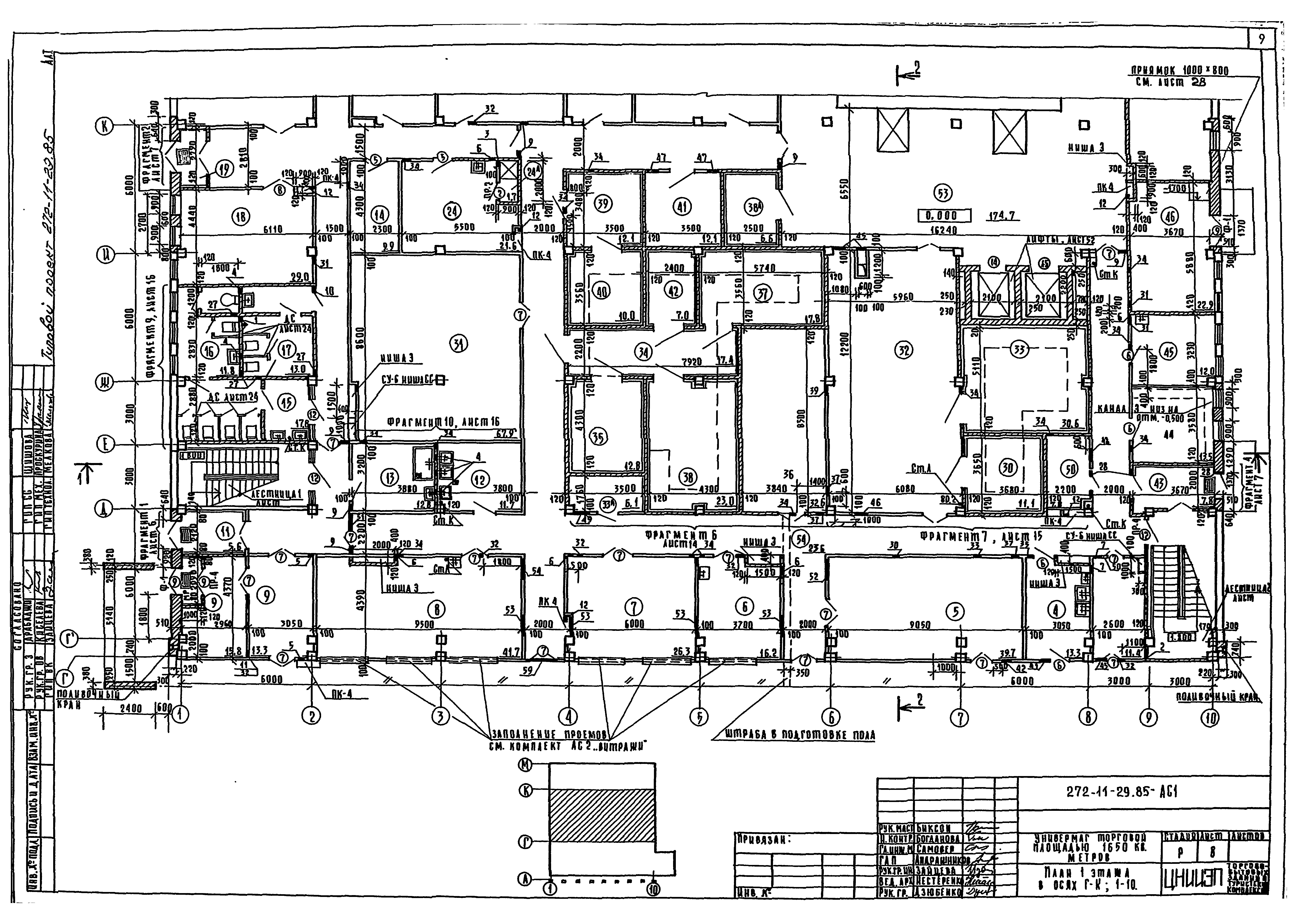
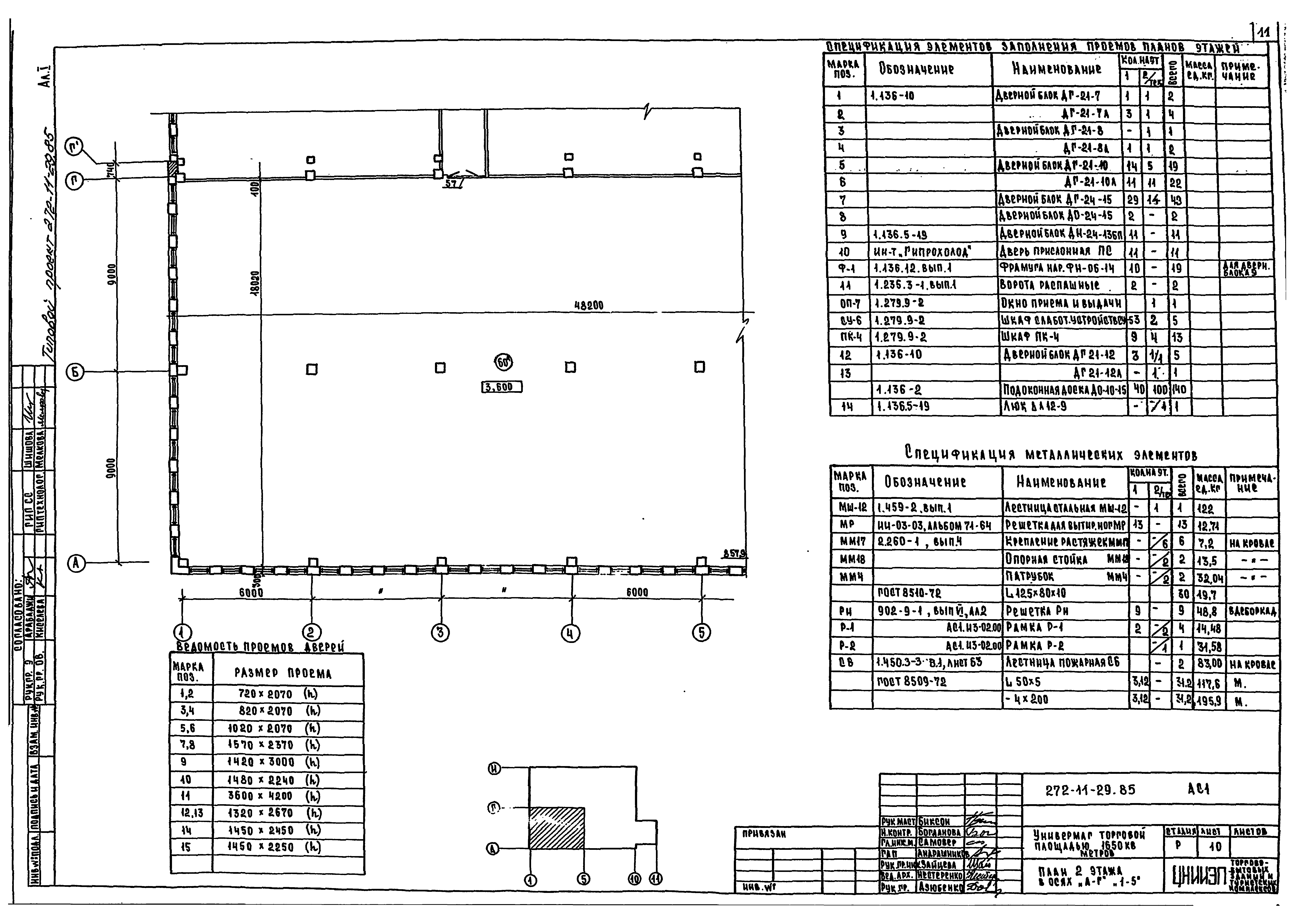
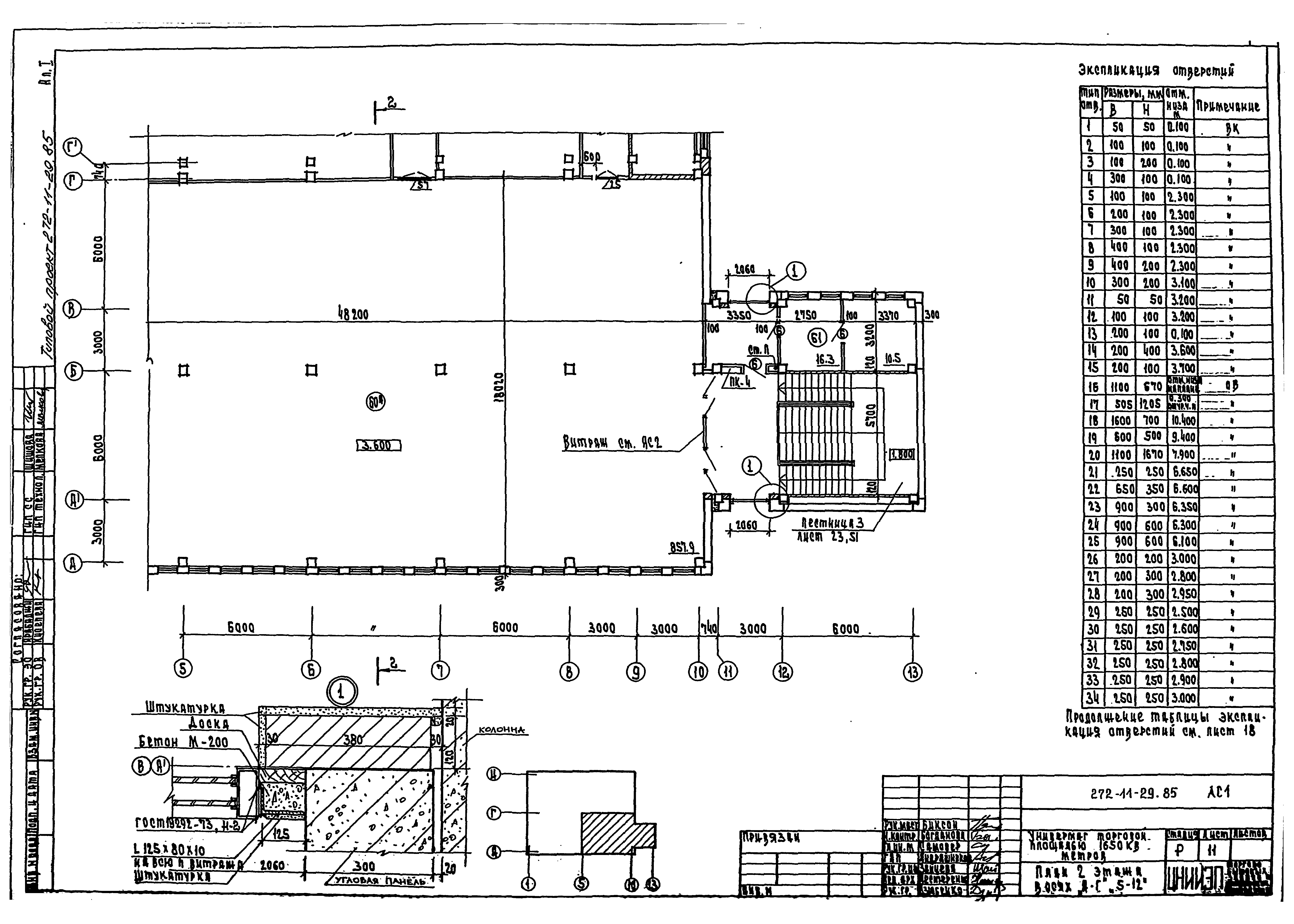
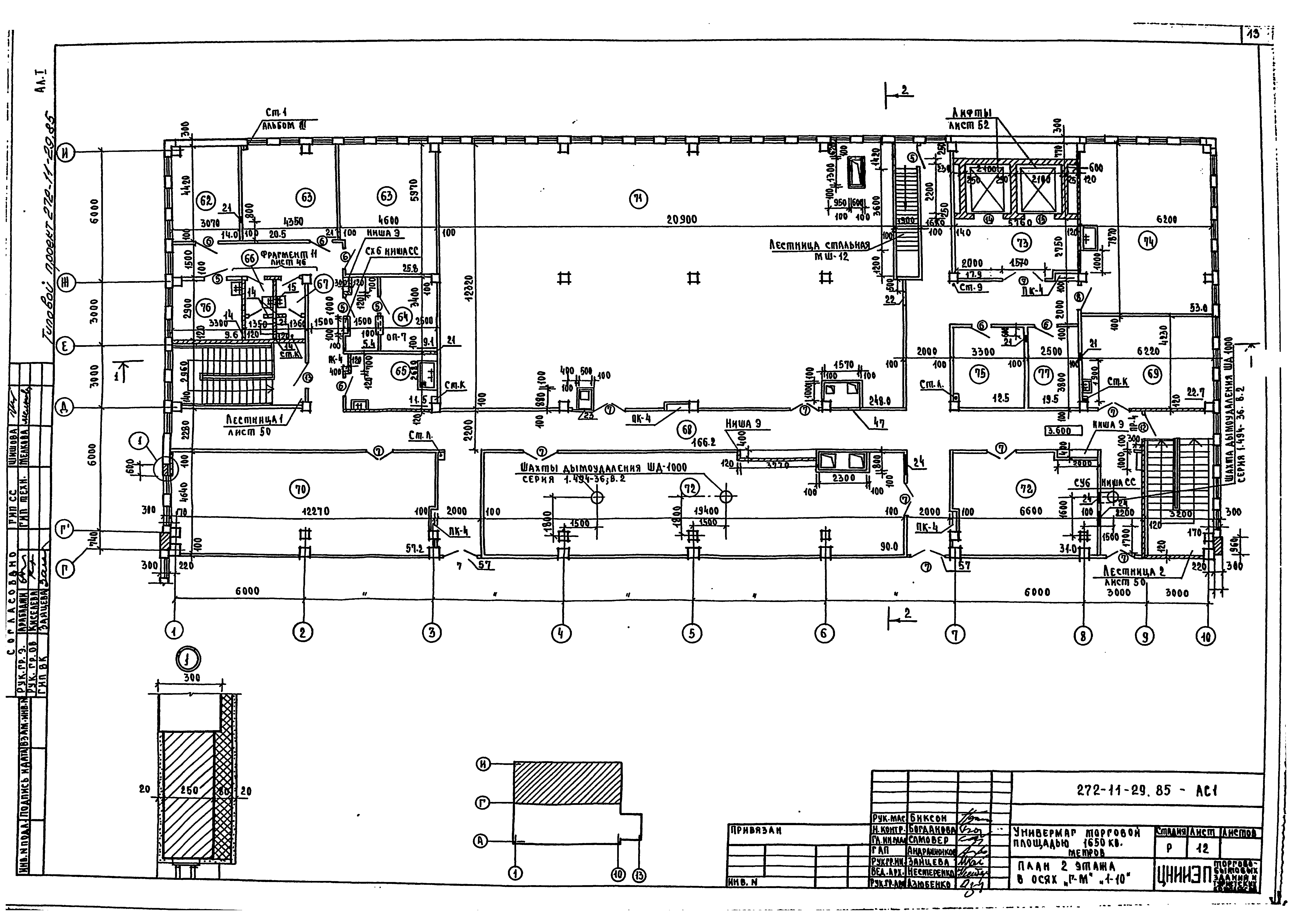
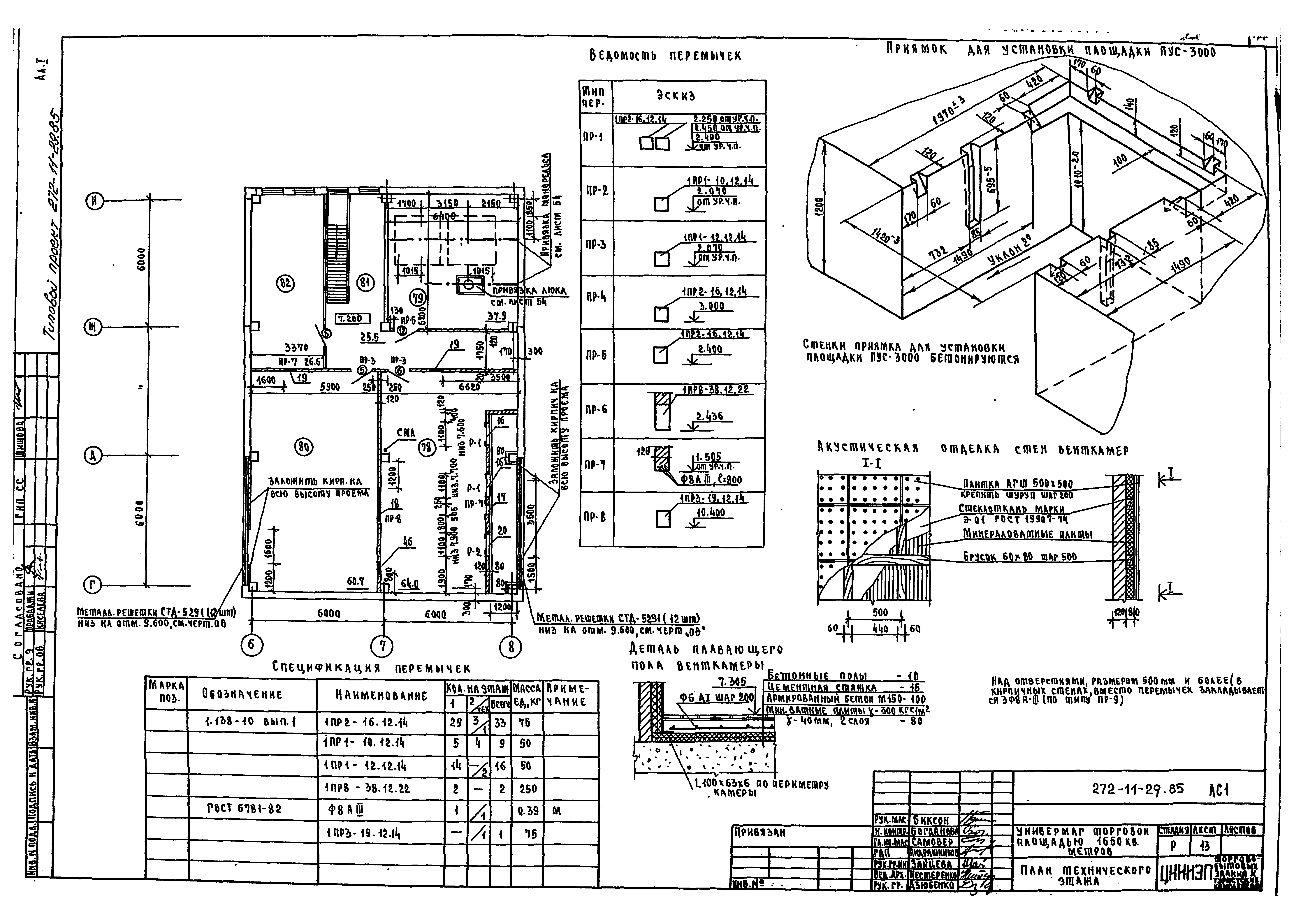
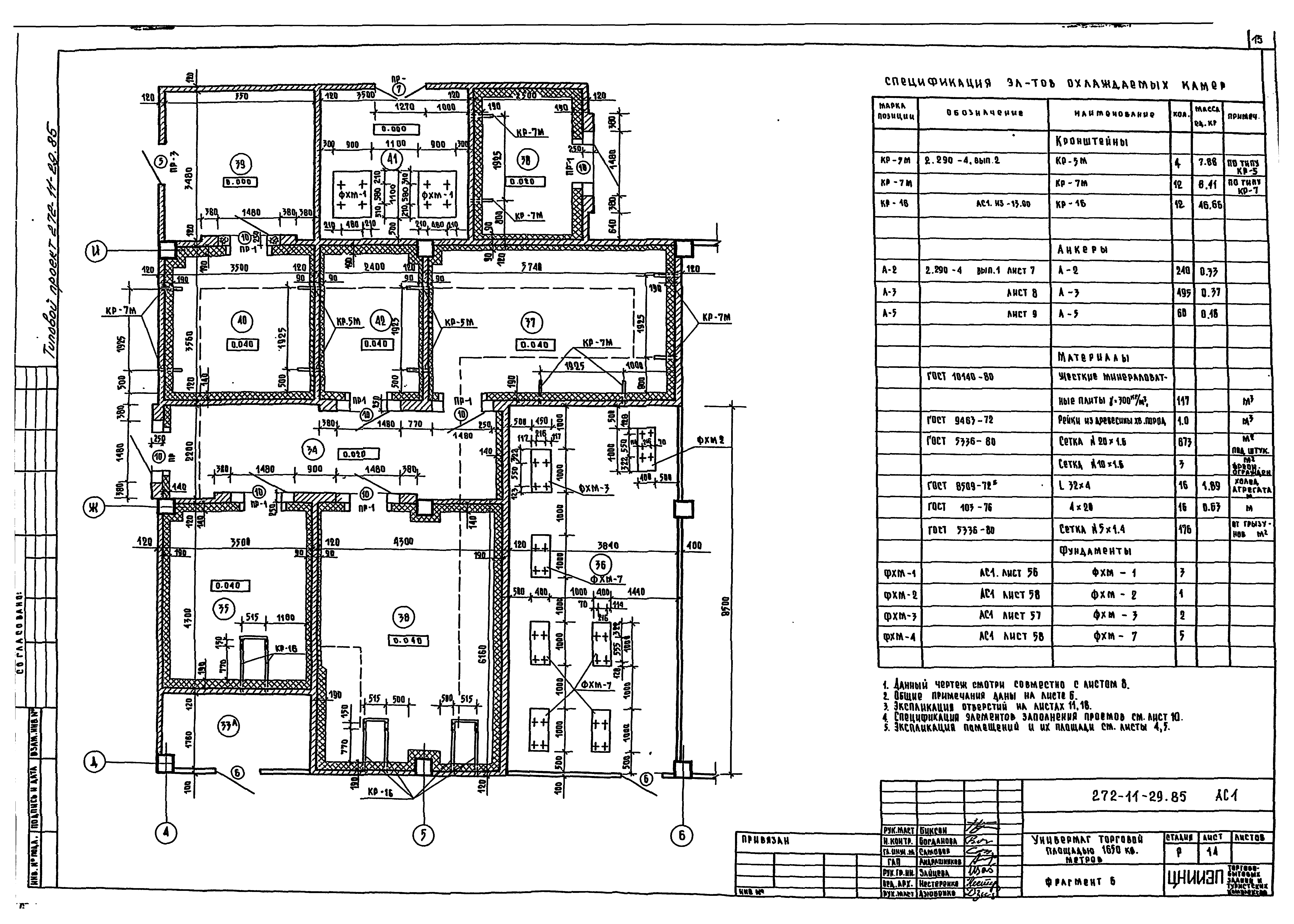
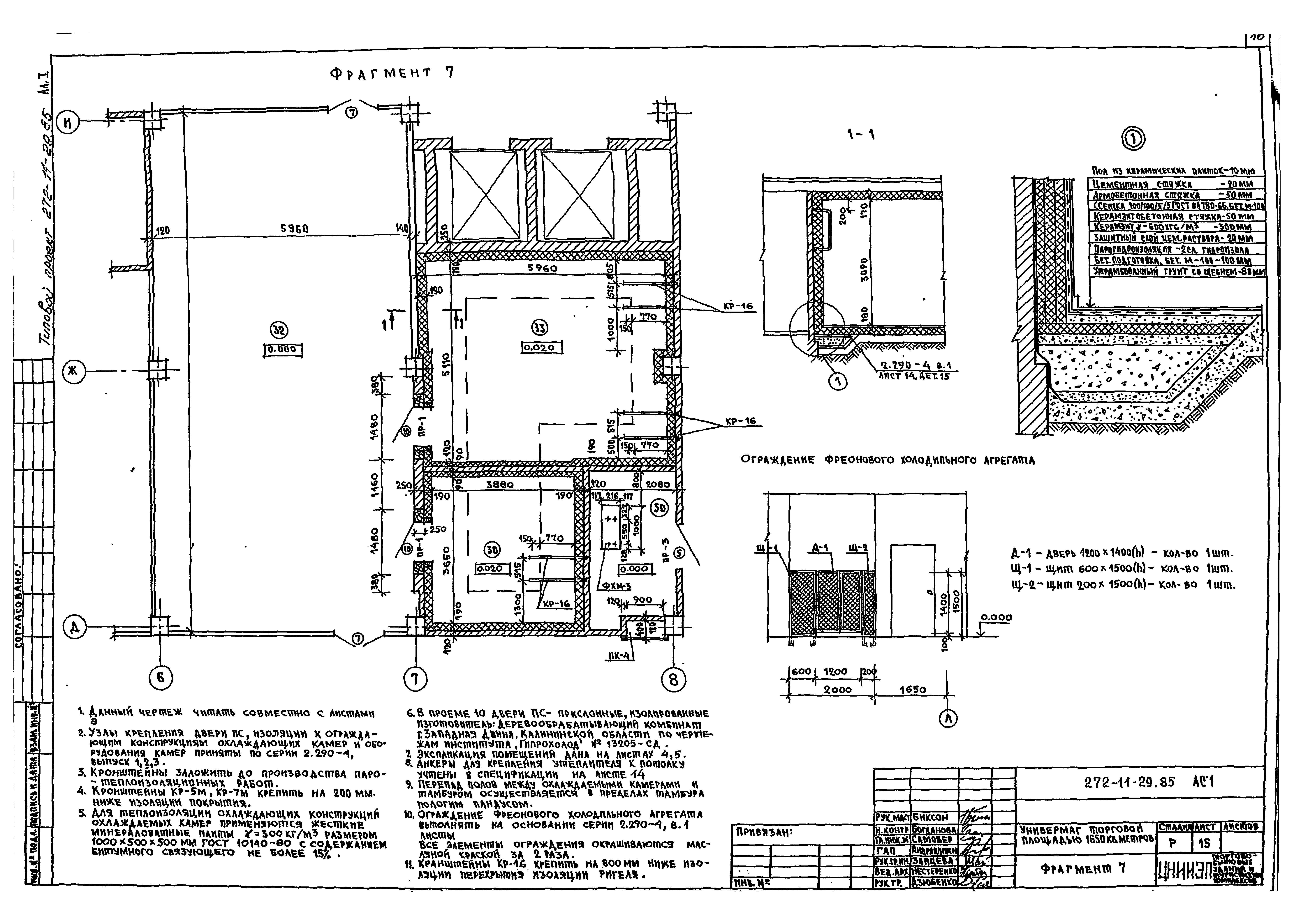
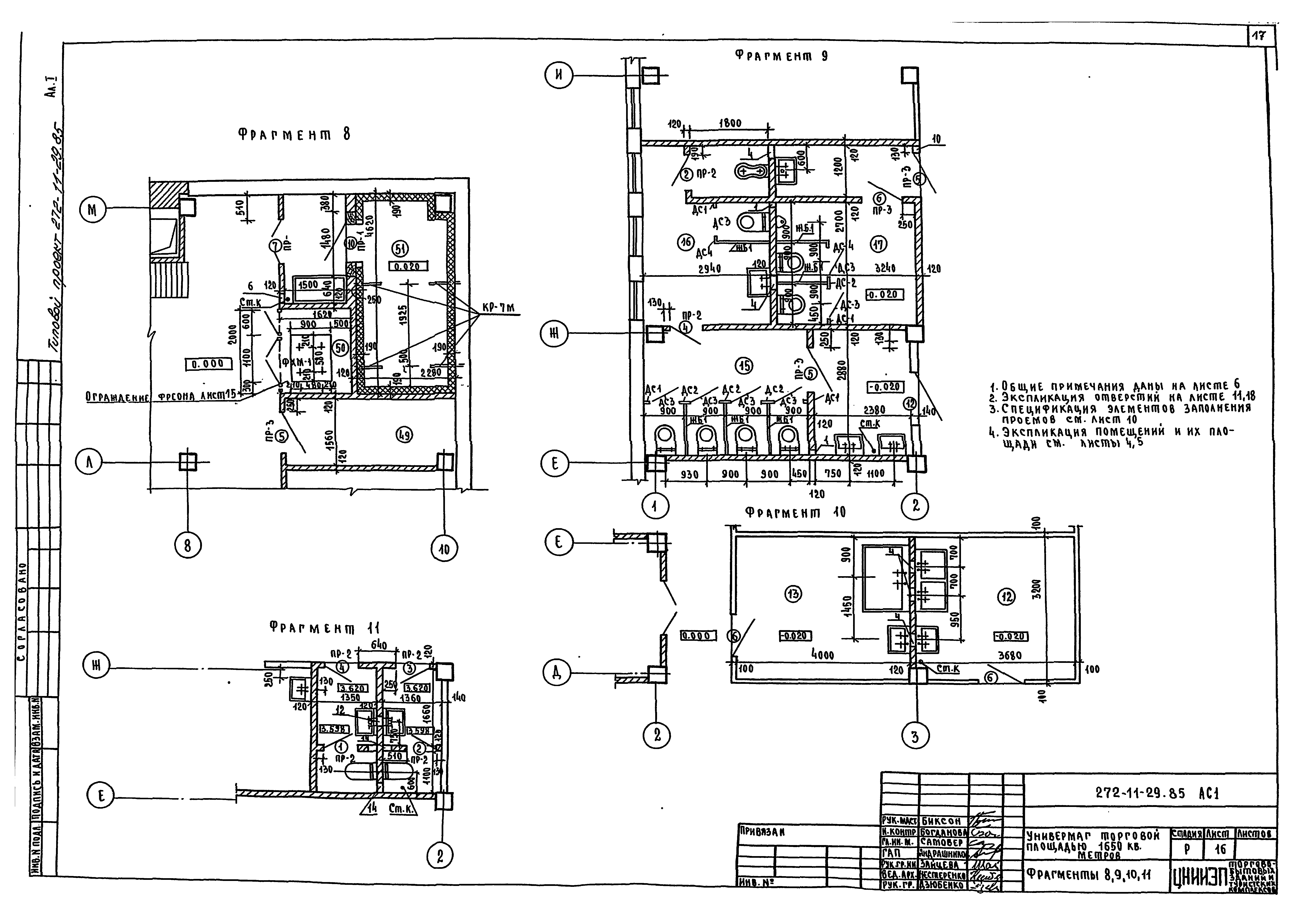
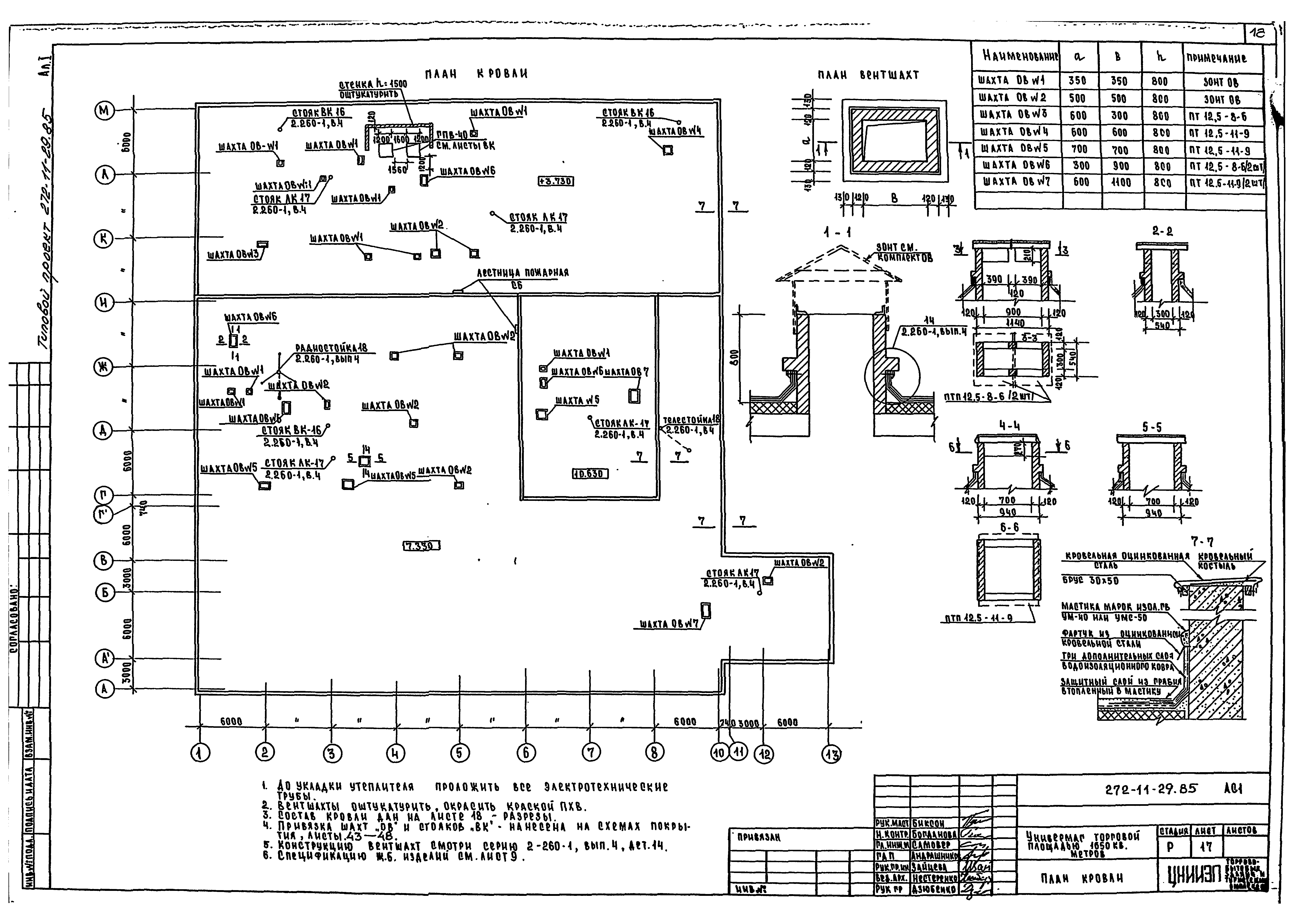
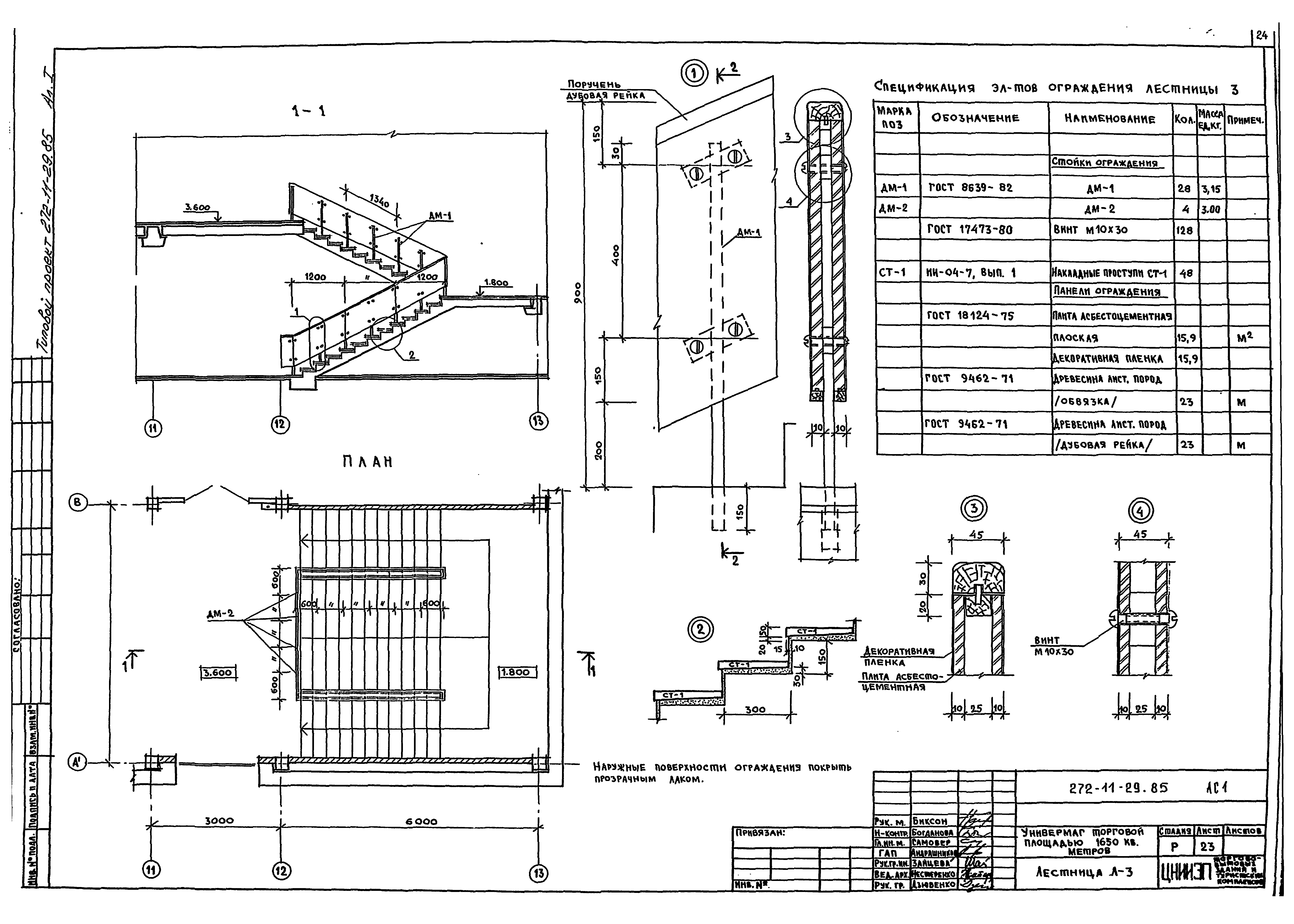
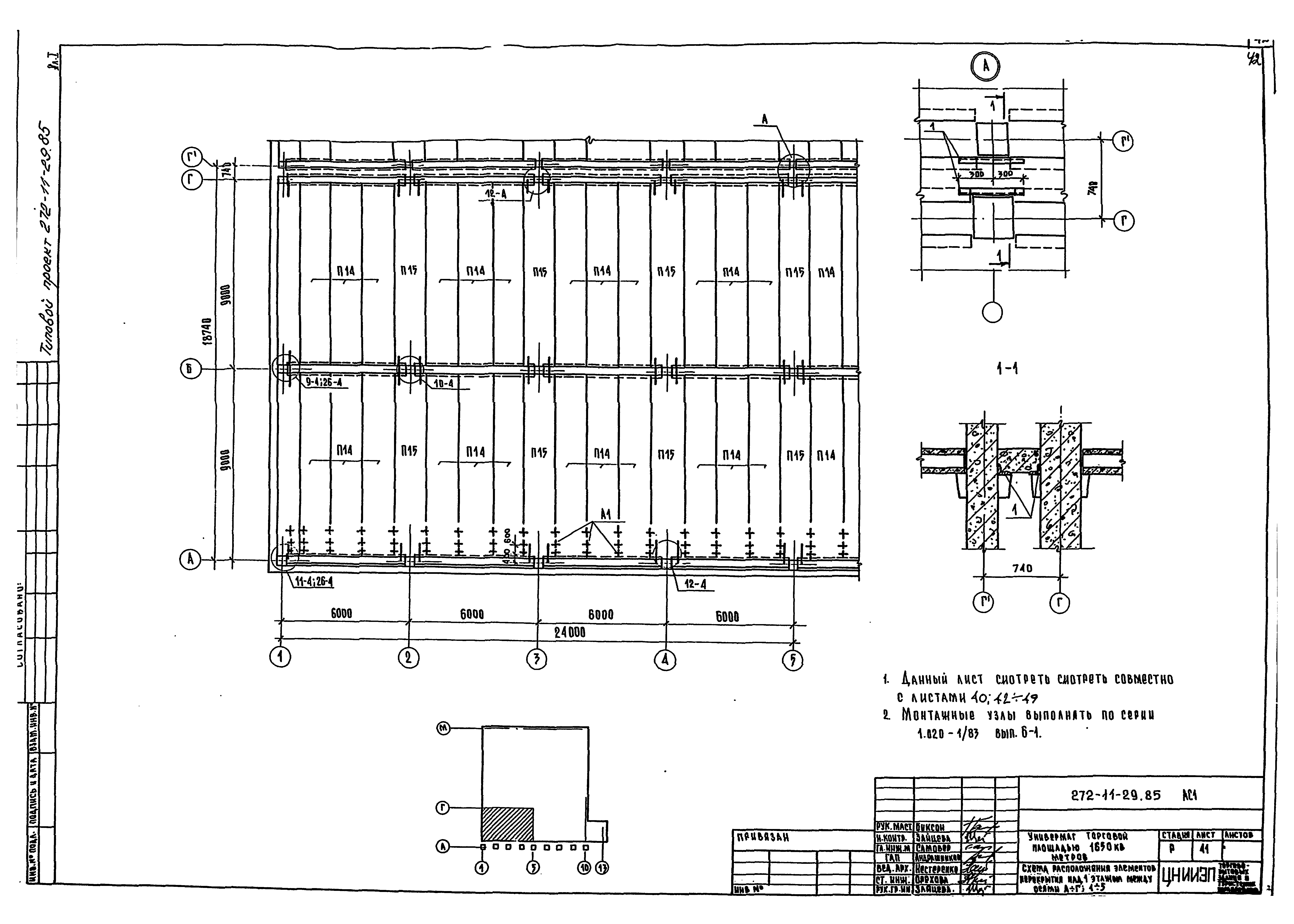
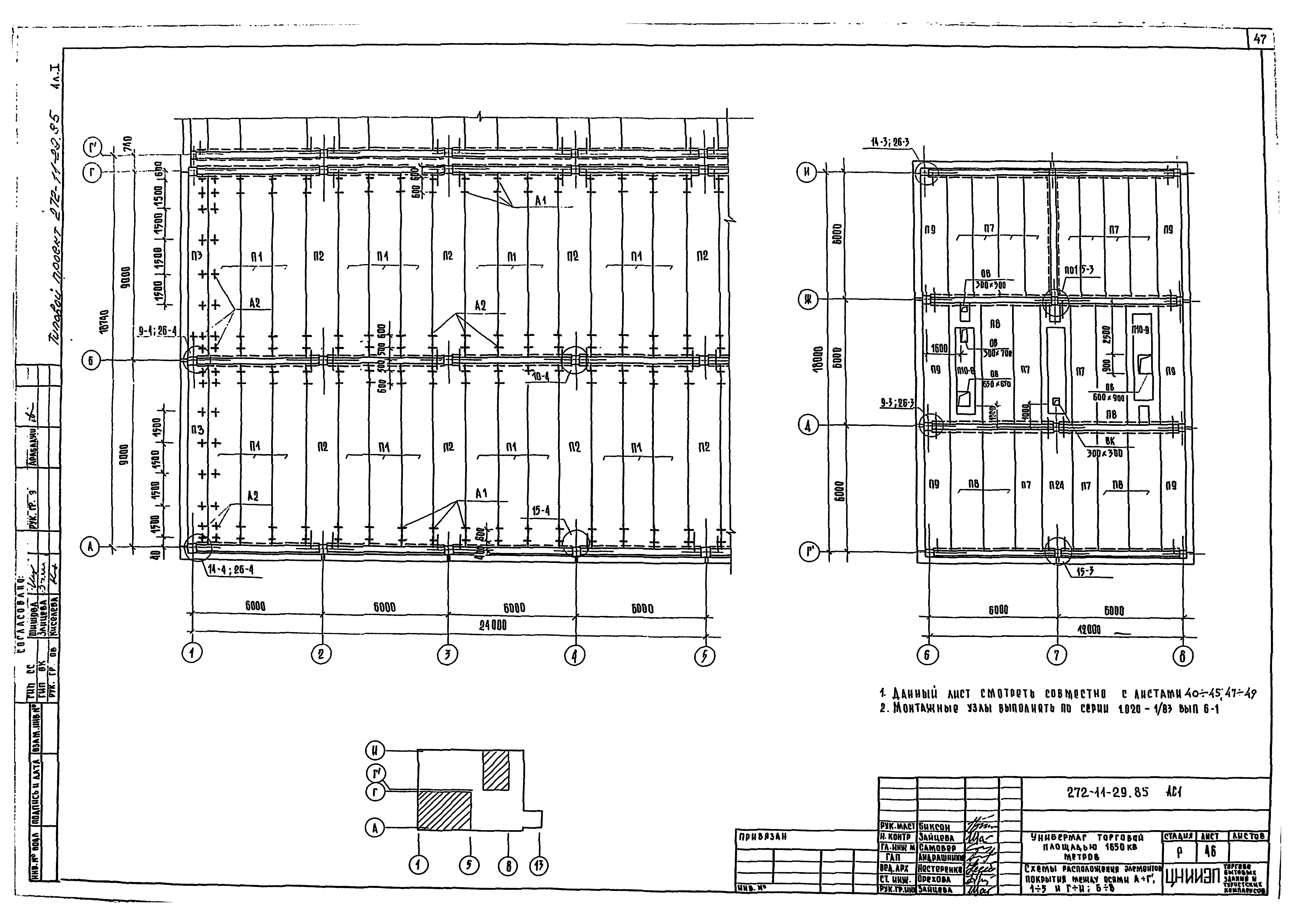
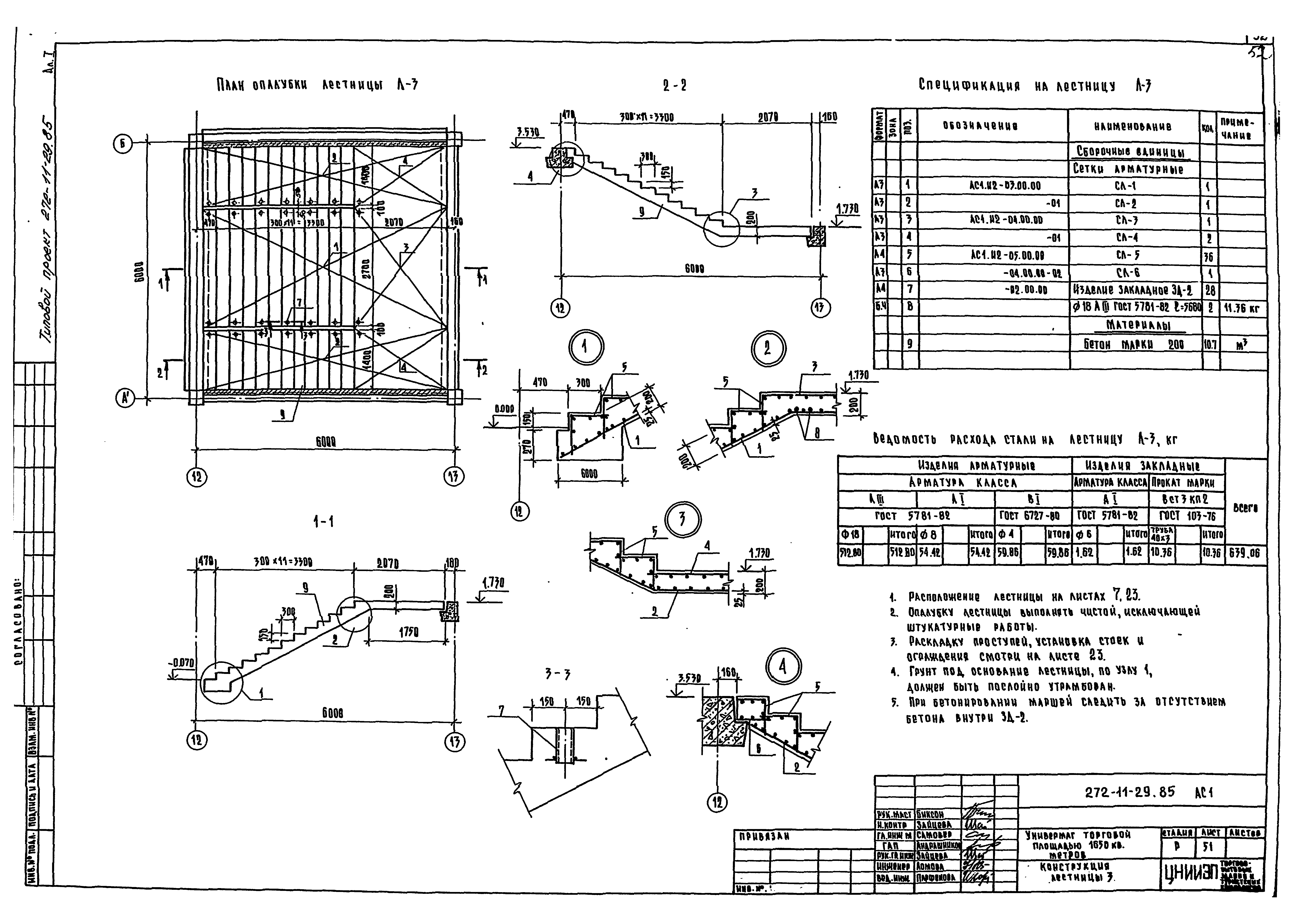
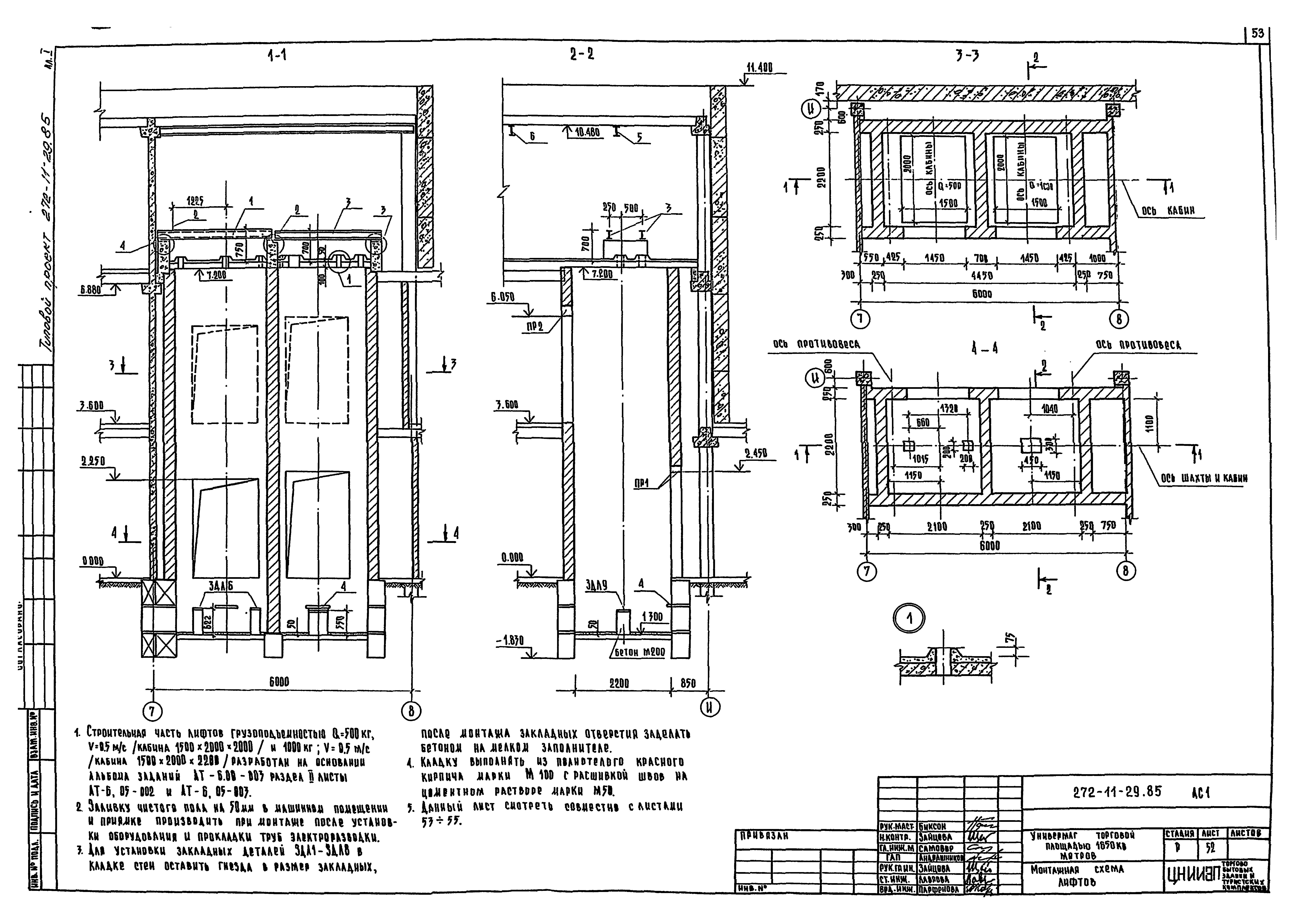
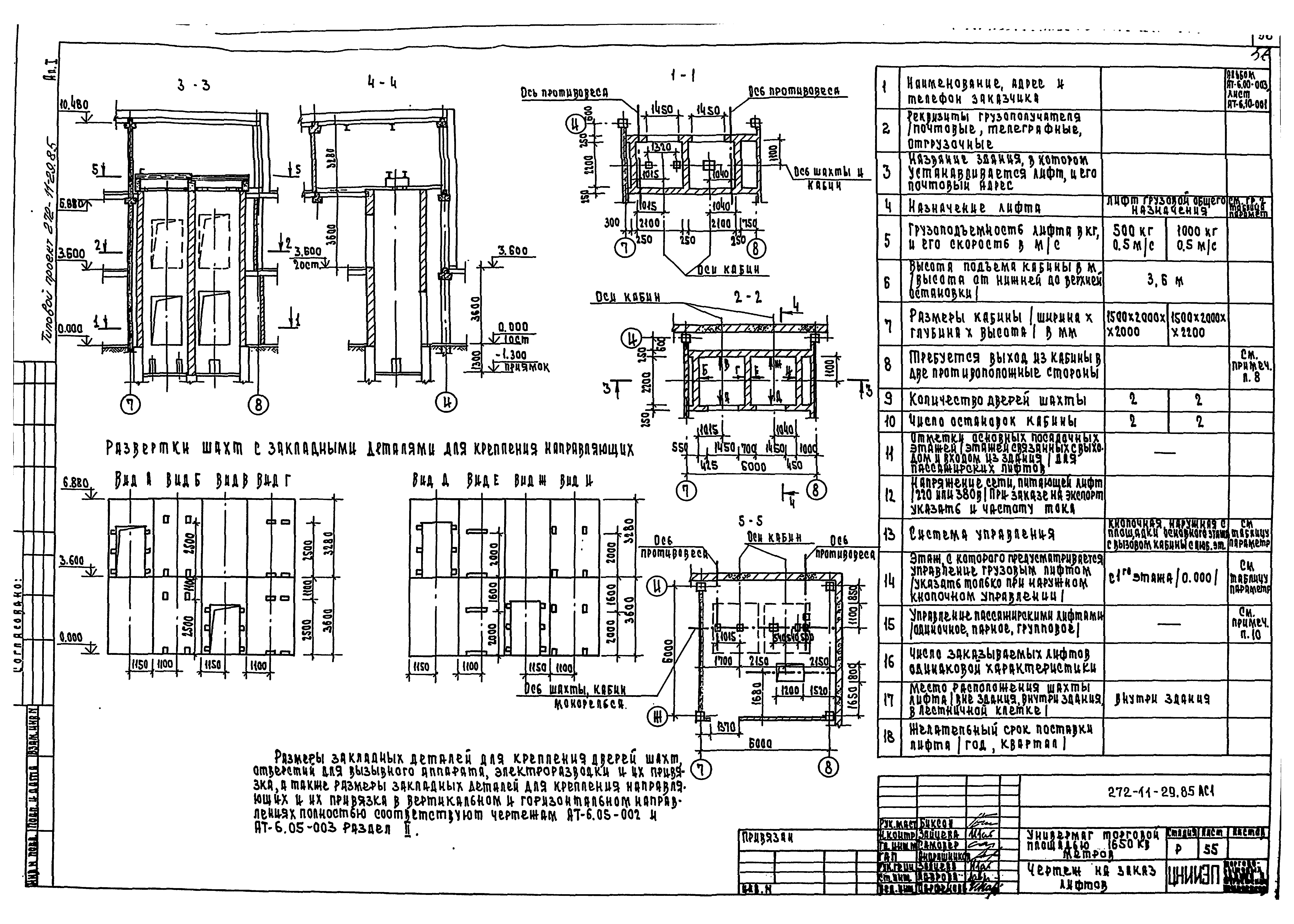
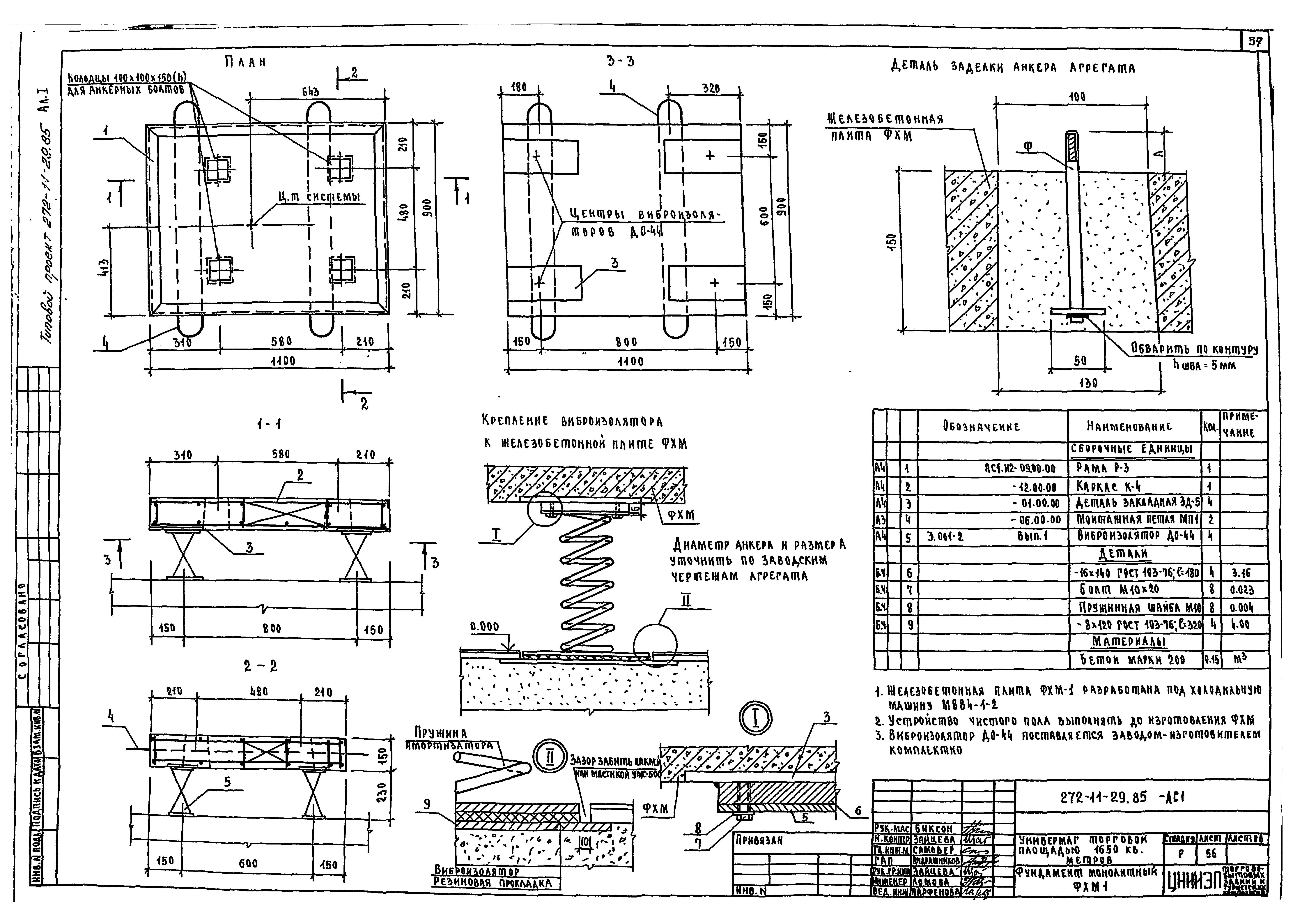
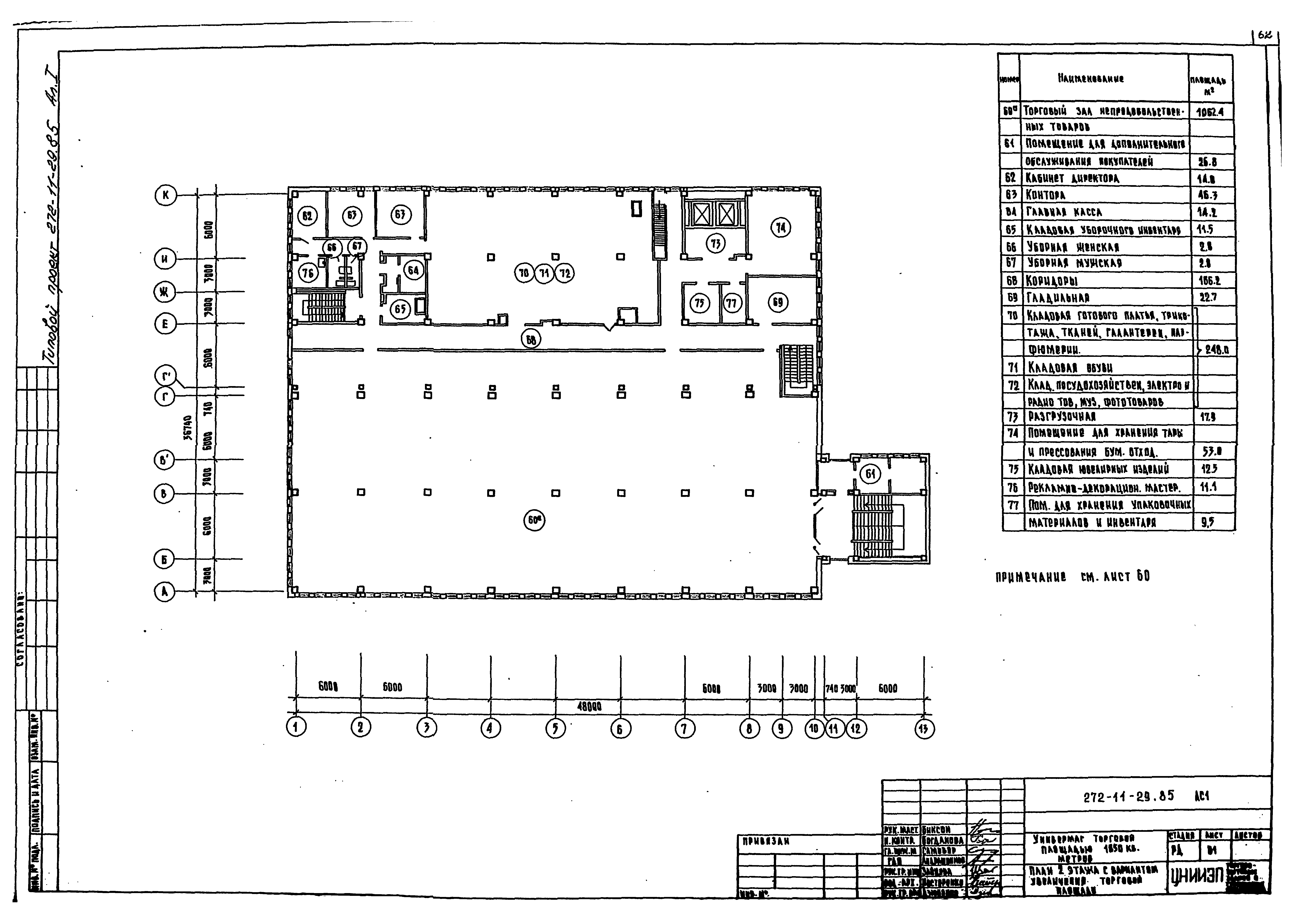
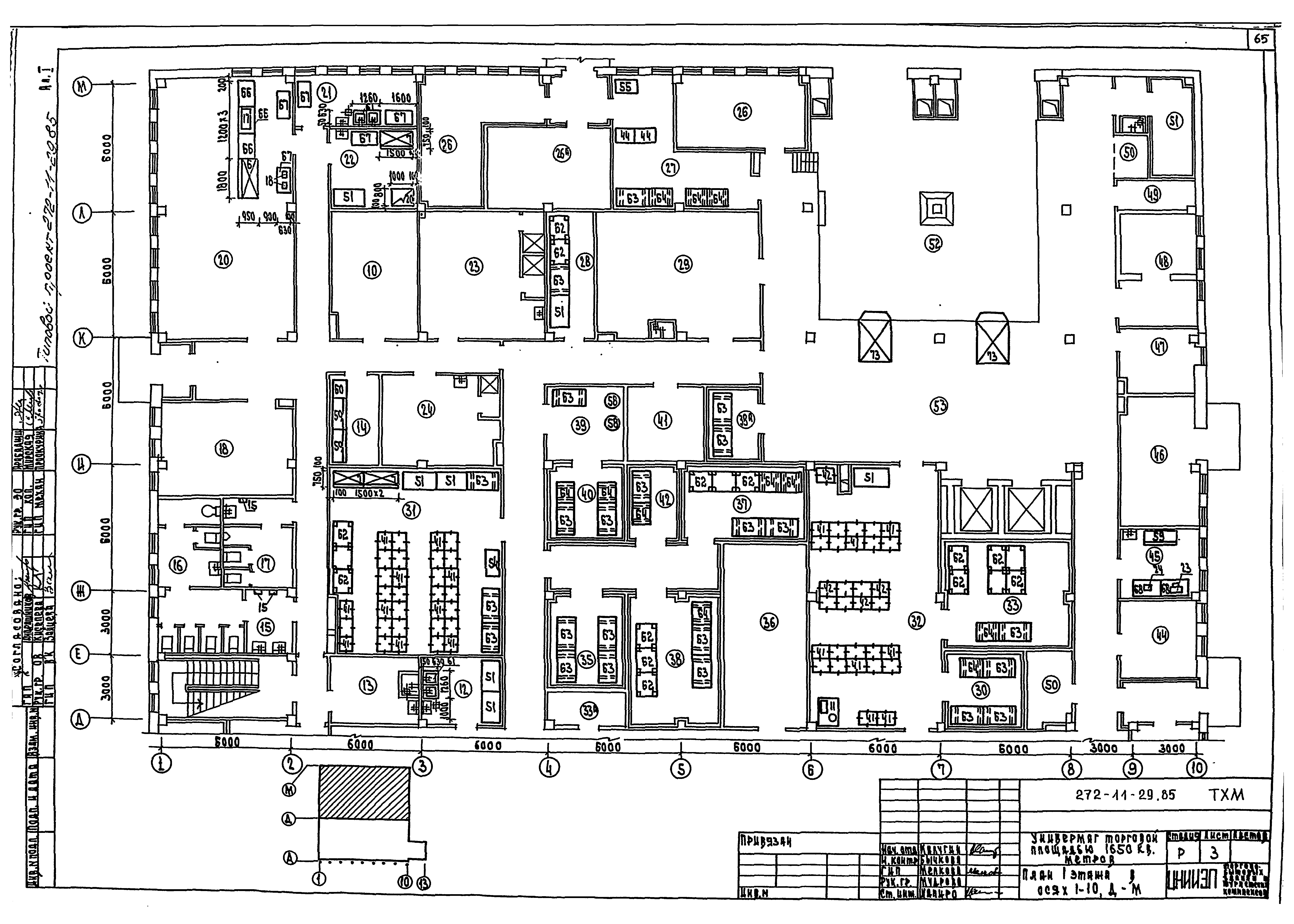
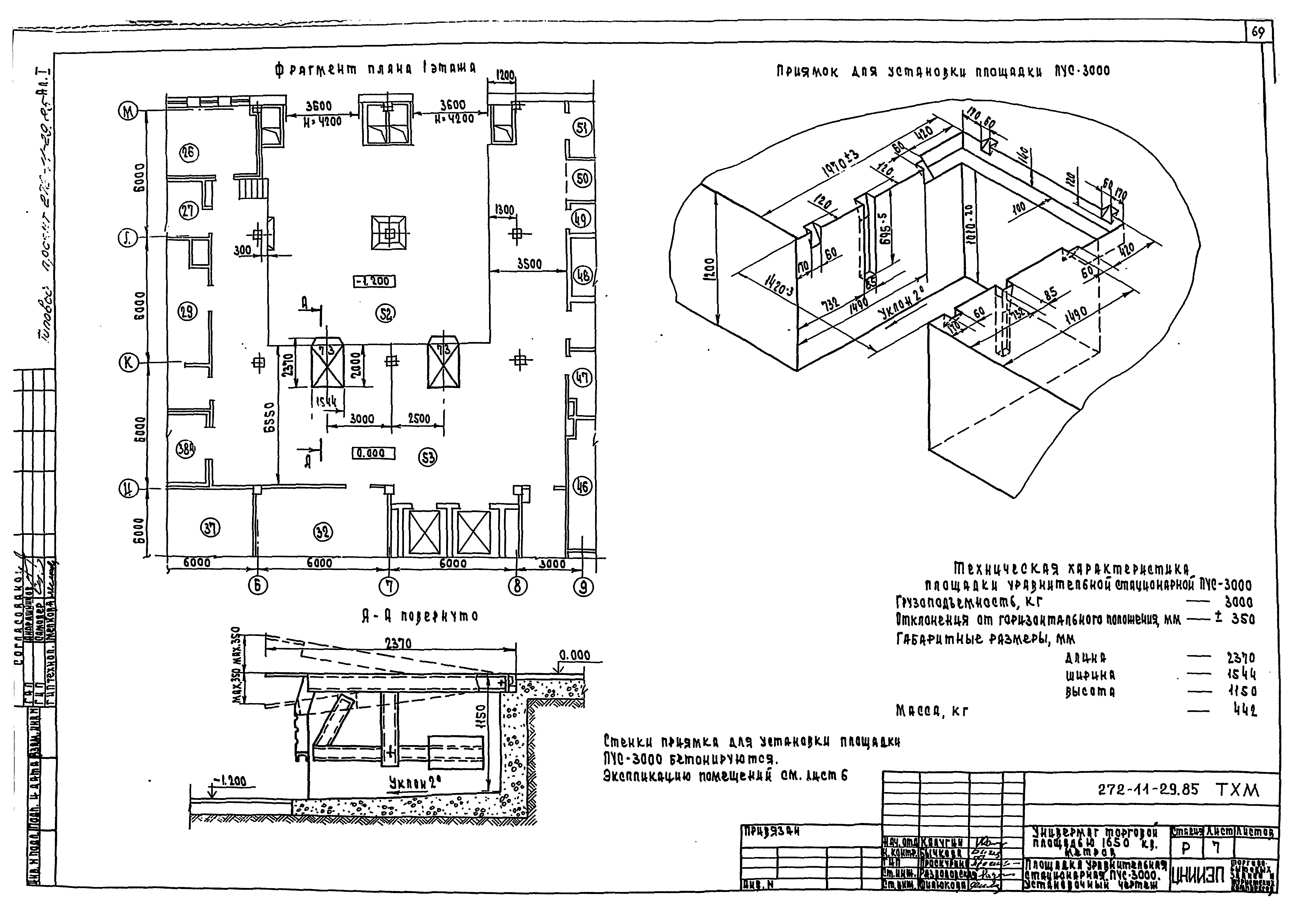
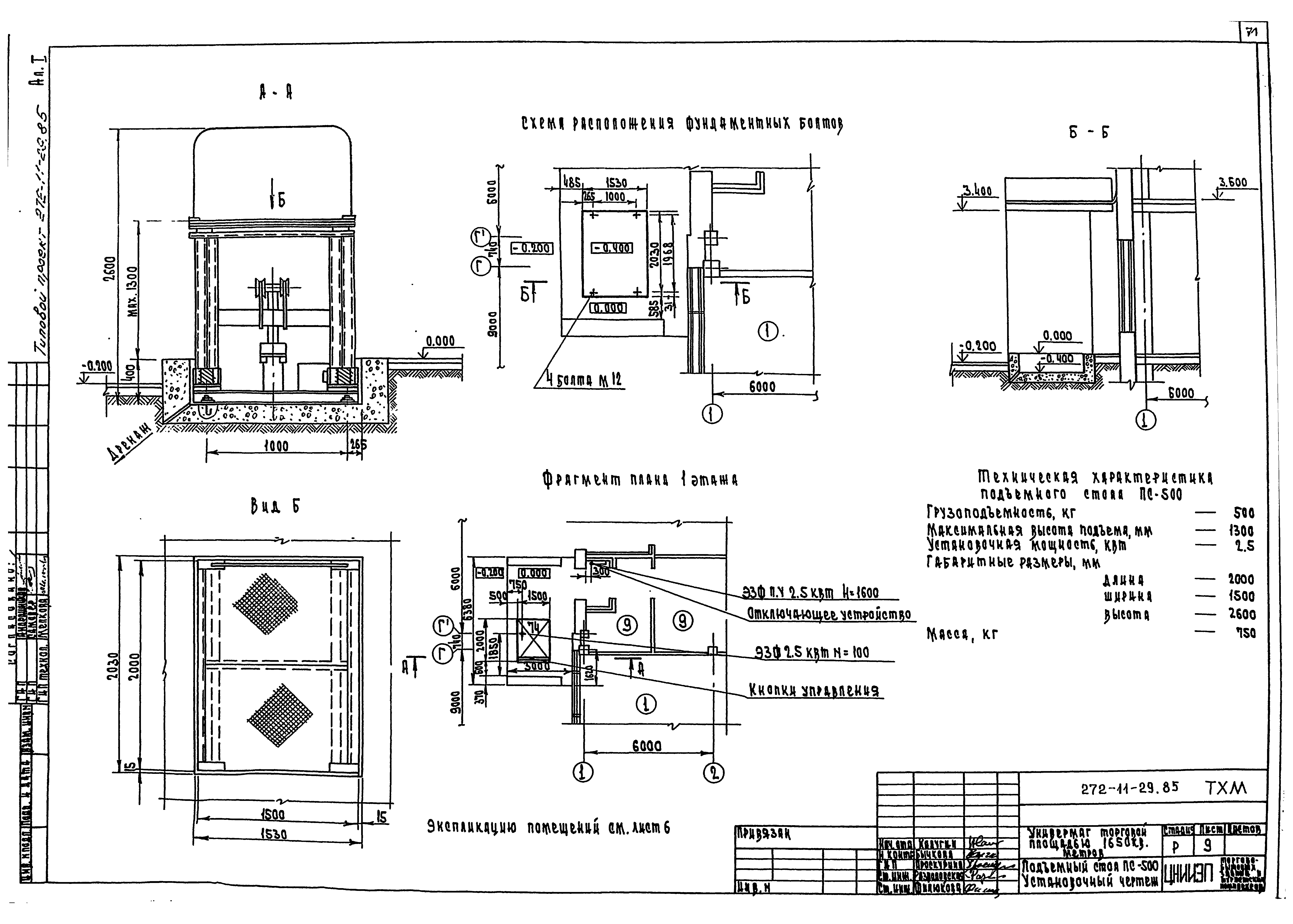
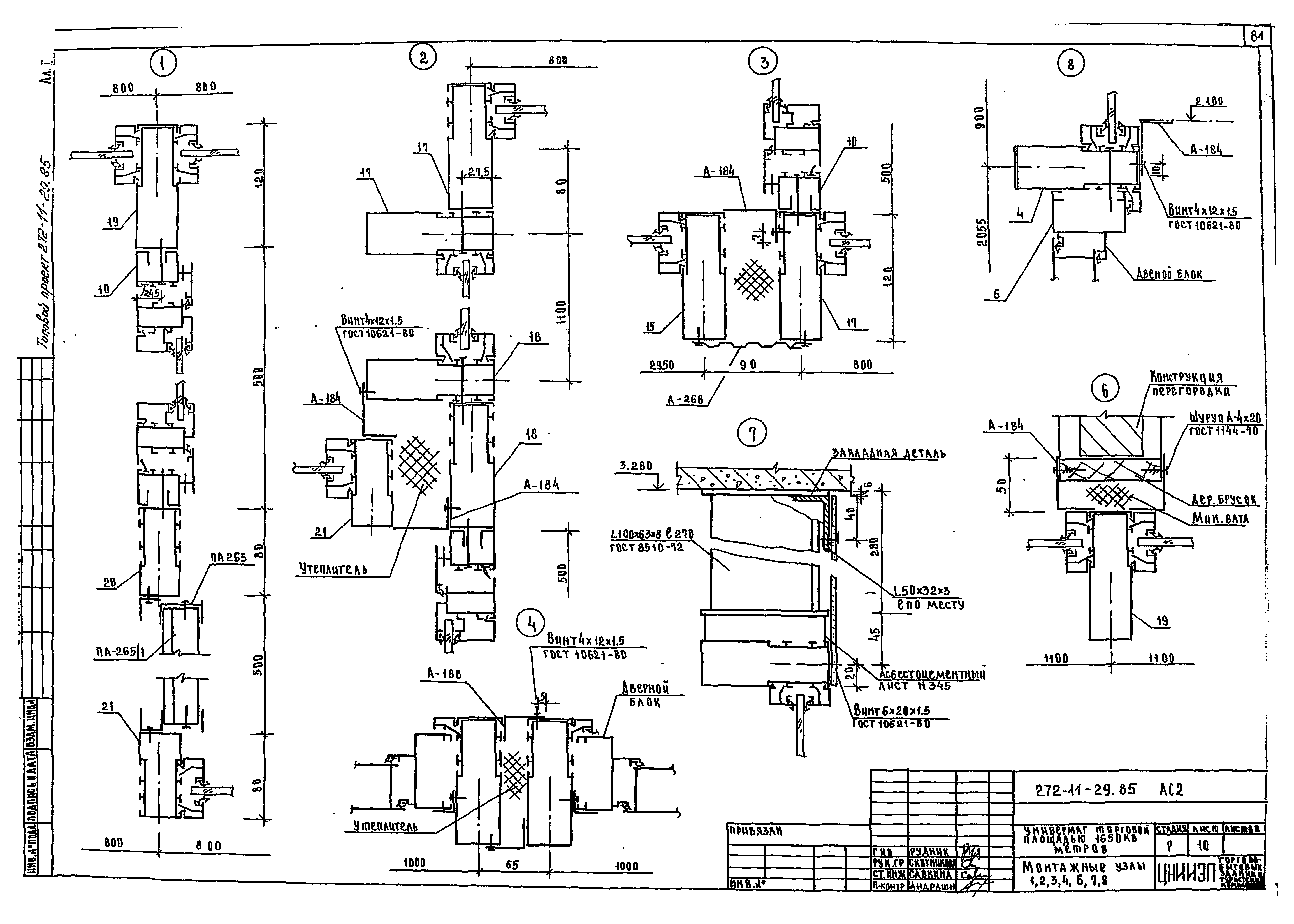
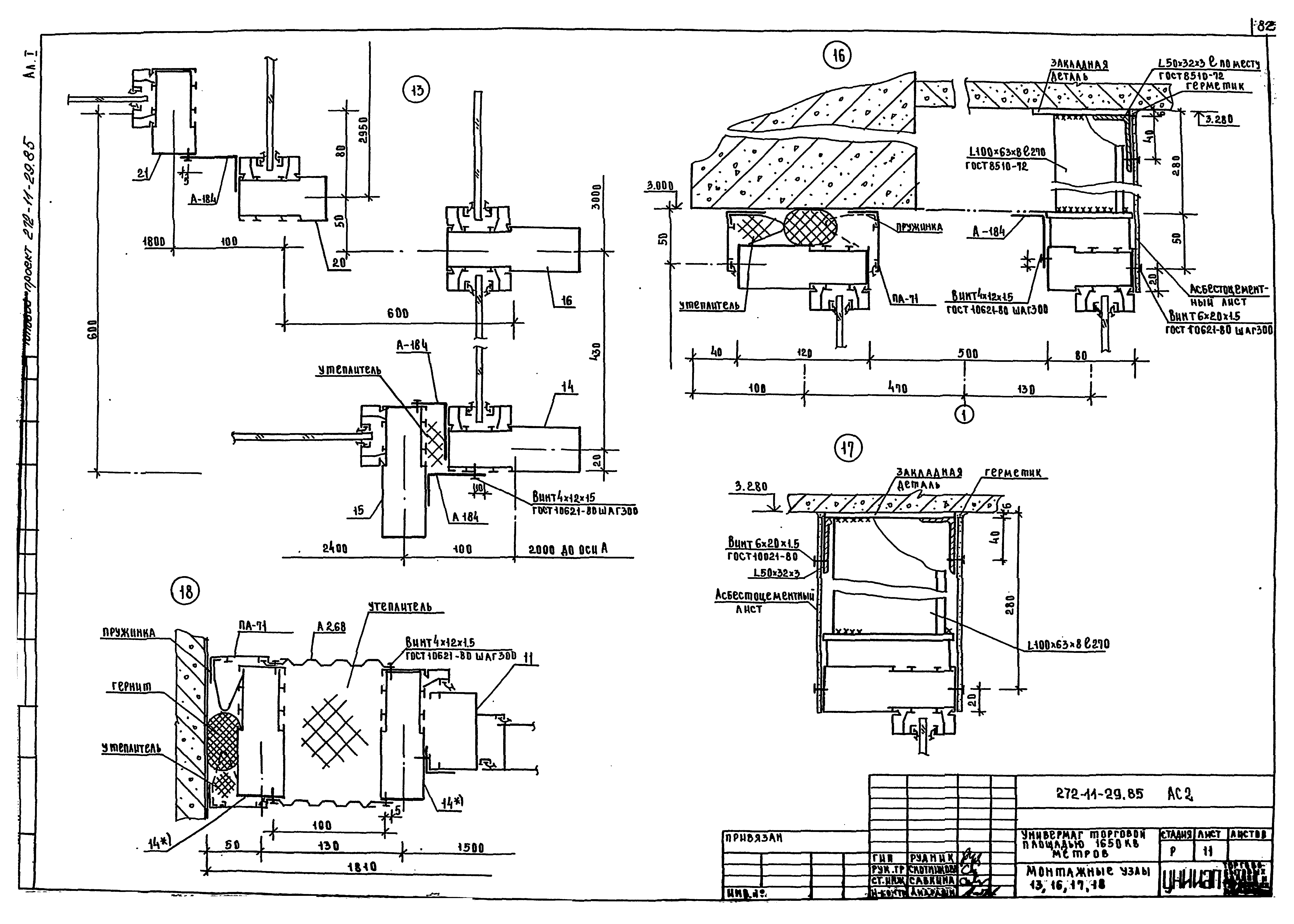
| Оглавление: | Чертежи основного комплекта марки АС1 Общие данные План 1 этажа в осях А - Г; 1 - 5 План 1 этажа в осях А - Г; 5 - 12 План 1 этажа в осях Г - К; 1 - 10 План 1 этажа в осях К - М; 1 - 10 План 2 этажа в осях А - Г; 1 - 5 План 2 этажа в осях А - Г; 5 - 12 План 2 этажа в осях Г - М; 1 - 10 План технического этажа Фрагмент 6 Фрагмент 7 Фрагменты 8, 9, 10, 11 План кровли Разрезы 1-1 и 2-2 Фасады в осях 1 - 12 и 12 - 1 Фасады в осях А - М и М - А Развертки стен торгового зала на отм. 0.000 План подшивного потолка торгового зала на отм. 3.600 Лестница Л-3 Монтажная схема и узлы перегородок марки ДС Схема нагрузок на элементы фундаментов Схема расположения элементов фундаментов между осями А - Г, 1 - 5 Схема расположения элементов фундаментов между осями А - Г, 5 - 13 Схема расположения элементов фундаментов между осями Г - К; 1 - 10 Схема расположения элементов фундаментов между осями К - М; 1 - 10 Монолитные фундаменты ФМ1 - ФМ5. Спецификации Схема расположения элементов каркаса 1 этажа Схемы расположения элементов каркаса 2 и 3 этажей Рамы по осям Ж и Б Схемы расположения стеновых панелей по осям 1 и 10 Схемы расположения стеновых панелей по осям Л, М, А, 13 и 10 Схемы расположения стеновых панелей по осям И, Г, В, Б и В Спецификация к схемам расположения стеновых панелей при толщине стен 300 мм Спецификация к схемам расположения стеновых панелей при толщине стен 250 мм Спецификация к схемам расположения стеновых панелей (вариант из трехслойных панелей) Схема нагрузок на перекрытия и покрытие Схема расположения элементов перекрытия над 1 этажом между осями А - Г; 1 - 5 Схема расположения элементов перекрытия над 1 этажом между осями А - Г, 5 - 13 Схема расположения элементов перекрытия и покрытия над 1 этажом между осями Г - К; 1 - 10 Схема расположения элементов покрытия между осями К - М; 1 - 10 Схема расположения элементов перекрытия и покрытия над 2 этажом между осями Г - И; 1 - 10 Схема расположения элементов покрытия между осями А - Г; 1 - 5 и Г` - И, 6 - 8 Схема расположения элементов покрытия между осями А - Г`; 5 - 13 Спецификация к схемам расположения элементов перекрытий и покрытий Монолитные участки УМ1 - УМ7 Монтажная схема элементов лестниц 1 и 2 Конструкция лестницы 3 Монтажная схема лифтов Развертки стен лифтовых шахт План машинного помещения лифтов Чертеж на заказ лифтов Фундамент монолитный ФХМ-1 Фундамент монолитный ФХМ-3 Фундаменты монолитные (ФХМ-2, ФХМ-7) Схема расположения закладных деталей для крепления витражей План 1 этажа с вариантом увеличения торговой площади План 2 этажа с вариантом увеличения торговой площади Чертежи основного комплекта марки ТХМ Общие данные План 1 этажа в осях 1 - 10; А - Д План 1 этажа в осях 1 - 10; Д - М План 2 этажа в осях 1 - 12; А - Г План 2 этажа в осях 1 - 10; Г - И Экспликация помещений Площадка уравнительная стационарная ПУС-3000. Установочный чертеж Вешало конвейерное с опуском. Установочный чертеж Подъемный стол ПС-500. Установочный чертеж Чертежи основного комплекта марки АС2 Общие данные Спецификация элементов витражей, тамбуров и перегородки Схема расположения элементов витража в осях 1 - 7 Схема расположения элементов витражей в осях Г - А, А - Б и по осям В, А` Схема расположения элементов витражей в осях 1 - 10; 12 - 1 Схема расположения элементов витражей в осях И - А; Г - И; Д - Л Схема расположения элементов витражей в осях М - Д; 8 - 1 Схема расположения элементов тамбура в осях 7 - 10 и остекленных перегородок Схема расположения элементов остекленной перегородки. Узлы 19, 20, 21 Монтажные узлы 1, 2, 3, 4, 6, 7, 8 Монтажные узлы 13, 16, 17, 18 Монтажные узлы 5, 9, 10, 11, 12, 14, 15 |
| Разработан: | ЦНИИЭП торгово-бытовых зданий и туристских комплексов |
| Утверждён: | 11.02.1977 Госгражданстрой (Gosgrazhdanstroy 31) |



















































































